集团现金、借款及费用报销管理制度
- 格式:docx
- 大小:33.29 KB
- 文档页数:9
万科集团借款及报销管理办法(MHKG-CW—ZD-004)ﻬ1 目的为了加强公司个人借款及报销管理,规范公司个人借款和报销行为,控制费用支出,加强费用管理,特制定本制度。
2 适用范围适用于集团本部。
集团下属子公司可以根据实际情况制定相应的实施细则或补充规定,报集团财经部审核、财务总监审批通过后执行。
3 定义:无4 职责:4。
1财经部:4。
1。
1根据年初各部门费用预算,审核相关报销是否在计划定额内;4.1.2负责审核原始单据与记账凭证是否一致、准确、完整,做到不错付、不超付。
;4。
1.3负责支付经审批的报销款。
4。
2 各部门:4。
2.1按照公司制度办理相关借款及报销手续;5 工作内容5.1个人借款管理5。
1。
1职工因公出差或零星采购开支均可到财经部办理借款事宜。
5。
1。
2职工因公出差借款,借款人必需按借款限额填写《现金借款单》和《出差审批单》,由部门负责人、分管副总签字,财务经理审核,总裁批准后,方可到财经部办理借款手续。
5.1。
3职工因业务需要开支招待费的(单笔金额在3000元以上应报集团总裁审批),由经办人按借款限额填写《借款单》,由部门负责人、行政副总签字,财务经理审核,方可到财经部办理借款手续.5.1。
4其他临时借款,如购买办公用品、电话费、维修费等,须填写《借款单》,写明用途、金额,由部门负责人、行政副总签字,财务经理审核,方可到财经部办理借款手续。
5。
1.5财经部收到借款单据后,要经过主管会计制作凭证后才可以交出纳付款。
5.1。
6职工借款必须按限额执行,限额由以下三部分组成:5。
1.6.1 车船票、飞机票按预计金额借款;5.1。
6。
2 住宿费、补助费按标准计算;5.1。
6。
3零星采购开支按计划金额借款。
5.1。
7 职工出差返回及零星采购结束后,须及时办理报销及剩余款项交回手续。
5。
1。
8职工借款的归还期限如下:借用支票须在三日内报销,借用现金在五日内报销,出差借款在返程后三日内报销。
5.1.9职工借款的归还实行逐笔结清的办法,已发生借款尚未结清者,一律不准再发生新的借款,长期外出人员回公司借款前必须要结清以前的欠款。
公司报销借支等管理制度我们需要明确报销和借支的基本概念。
报销是指员工因公出差或进行工作相关活动产生的费用,按照公司规定向财务部门申请返还的过程。
借支则是指员工因特殊原因需要预支一定金额的资金,待事后通过相应手续予以归还。
我们展开讨论这份制度范本的几个关键部分:一、申请与审批流程制度应明确规定报销和借支的申请流程,包括申请表的填写、必要的票据或证明文件的提供,以及审批权限的具体划分。
通常情况下,普通员工的报销借支需经过直接上级审批,而高级管理人员则可能需要更高层次的批准。
二、报销范围与标准企业应根据自身的财务状况和行业标准,设定合理的报销范围和标准。
这包括但不限于交通费、住宿费、餐饮费等各项具体费用的报销比例和上限。
同时,对于特殊项目或高额费用,应有详细的说明和特别审批流程。
三、借支管理借支管理需要严格控制,确保借出资金的安全和及时回笼。
制度中应包含借支的条件、限额、还款期限及相关责任。
对于逾期未还的情况,应有明确的处理措施和追责机制。
四、票据管理票据是报销的重要依据,因此对票据的收集、审核和保管应有严格的规定。
制度中要明确哪些类型的票据是可以被接受的,如何鉴别真伪,以及票据丢失或不符合要求时的处理方法。
五、违规处理为了维护制度的严肃性和权威性,对于违反报销借支规定的行为,应有明确的处罚措施。
这既包括经济上的罚款,也包括行政上的警告甚至解雇。
六、信息公开与透明企业应定期对报销借支情况进行公示,接受全体员工的监督。
这有助于提高制度的透明度,增强员工对财务管理的信任感。
七、持续改进企业应根据实际情况和员工反馈,不断优化和完善报销借支制度。
这要求企业管理者具备前瞻性思维,及时调整政策以适应环境变化。
报销管理制度(通用15篇)报销管理制度1一、现金只能支付公司员工的各种劳动报酬、劳保、福利、出差人员必须随身携带的差旅费等。
采购材料、办公用品、低耗品等使用金额在1000元以上的一般要通过银行转账支付,未通过银行转账支付的,报销时须提供现金支付凭证(收款收据、微信支付宝等转账记录)。
(特殊情况由总经理审批)。
二、所有的现金收入,都应开具收款收据。
开出收据的存根应与应入账的收据联按编号逐张核对金额,确保收入全部入账。
现金支付应以合法的'原始凭证为依据,并执行票据报销及审批程序,做到账款分管。
三、临时性小额现金支出,实行先垫支后报销原则(除出差外)。
经常性的大额现金支出由经办人填制领款单,部门负责人审批后可领取备用金。
四、领取备用金的人员,年底应到财务部门办理年度领款更换手续。
因公出差,应合理估算出差费用,填制领款单,由部门负责人审批后可从出纳处领取暂借款。
已安排备用金的人员,不得再预支差旅费。
如前一次借款不清的,不准再向公司借款。
五、控制现金的库存限额,一般以3-5天的日常零星支出为限,超过限额的出纳员应及时送存银行,每日业务终了前,出纳人员应盘点现金,做到账实相符。
一、本制度从二0二0年一月一日起执行,执行以后公司如有新的规定另行通知。
报销管理制度21.总则:为了充分利用互联网的信息化运作优势,提高信息传递、处理效率,确保安全;节约公司的快递成本,规范快递物品的收发管理,避免造成公司资料的丢失及浪费。
2.适用范围:本公司所有员工均属之3.定义: 3.1 快递物品:指员工因工作需要,向外部寄送文件,资料,配件,样品以及其他货品等。
(销售仪器和销售试剂的发货除外)4. 组织与职责:4.1:值班门卫:负责公司邮件、零散快递物品的收发管理。
4.2:物流部:负责公司邮件、快递物品的寄发管理。
4.3:各部门:递。
4.4:各部门负责对本部门的快递费进行管控。
5.流程图:(略)6 .执行说明:6.1 快递的'签收与发送寄件人必须按照本办法规定的寄件要求寄发快6.1.1 快递的接收6.1.1.1 值班门卫收到文件,资料,货物等快递物品时,要及时通知转交给相关部门人员。
费用报销管理制度(精选6篇)费用报销管理制度篇1第一章前言一、编制目的为了规范报销标准和报销流程,加强财务管理,确保公司资金按规定支付,结合公司及项目实际情况,特制定本制度。
二、适用范围及定义本规定适用于公司及公司涉及各项目。
三、本规定修改及审批本规定由总经理签批后方可执行。
四、执行时间本规定于颁布之日起开始执行。
第二章管理原则2.1归口管理原则为便于对各项费用开支情况进行分析考核,公司统一规定费用项目的归口管理部门,具体如下表列示(包括但不限于):略2.2预算管理原则2.2.1 年度预算经审议批准后各部门应严格按照年度预算进行开支,财务部将在预算期对预算执行情况进行监督、检查,并定期分析、考核。
2.2.2对临时发生的预算外经费或超预算费用,经办部门需向归口部门提交申请,由归口部门按公司的审批程序补报追加计划,根据审批权限规定,经批准后方可执行。
第三章授权审批权限规定3.1经济业务发生前授权审批3.1.1 根据业务发生时间先后分:事前审批、非事前审批;3.1.2 事前审批是指经济业务发生前,需提报审批通过后,才能进行经济业务交易。
3.1.3 非事前审批是指有的经济业务可以不需进审批,而由经办人员直接进行办理业务。
3.2 报销及付款授权审批流程3.2.1 报销或付(汇)款审批流程如下:3.2.1.1 单次报销或付(汇)款金额800元及以内的审批流程:经办人——主管——部门负责人(部门经理)——财务3.2.1.2 单次报销或付(汇)款金额801-2000元之间的审批流程:经办人——主管——部门负责人(部门经理)——分管领导(业务副总)——财务3.2.1.3 单次报销或付(汇)款金额2001-10000元的审批流程:经办人——主管——部门负责人(部门经理)——分管领导(业务副总)——总经理——财务3.2.1.4 单次报销或付(汇)款金额10000元以上的审批流程:经办人——主管——部门负责人(部门经理)——分管领导(业务副总)——总经理——董事会会签审批——财务第四章报销及付款流程4.1报销及付款流程图4.2报销及付款方式4.2.1 主要通过网上银行转账支付,付款至外部单位,原则上以转账、支票方式付款,个别特殊业务除外。
集团资金管理制度第一章资金管理原则第一条资金管理是指所有与资金有关的管理活动,包括库存现金、银行关系管理、银行帐户及存款、银行付款、对外融资、内部存贷、内部项目资金往来、外汇等。
第二条集团财务部负责根据公司董事会批准的资金管理政策,制订、监督、解释及修改本资金管理制度,本制度适用于集团及各子公司资金的管理。
第三条公司实行资金计划管理,通过编制和执行各项资金计划(包括月度资金计划和周资金申请等),对融资、付款等各项资金活动进行有序安排以控制资金成本。
第四条由集团财务部进行资金集中管理和统一支付。
各子公司财务部根据集团财务部要求对本公司各部门及所属油站资金和收款工作进行管理。
公司所有现金收入必须及时缴存公司的银行帐户,公司任何人不得侵占、挪用、坐支公司现金或有价票卡。
第五条公司对外融资、担保、抵押等资金业务由集团财务部统一管理,各子公司不得擅自进行上述活动。
第二章银行帐户和资金集中管理第六条集团及各子公司单位银行帐户的开立、变更、撤销,申请购买、保管支票等银行支付票据,申请开通和使用网银等,必须报经集团财务部资金经理审核、财务总监批准后,按照公司资金政策办理。
公司的会计账户设置应一一对应各银行账户,公司会计应每月出具银行余额调节表以监控银行未达账项。
第七条银行帐户预留印鉴原则上为法人公司财务专用章和总经理私章、副总经理私章,特殊情况必须报经集团财务部审核、集团副总经理及总经理批准。
财务专用章和总经理私章的使用遵循公司相关印章管理流程,副总经理私章由副总经理本人保管。
第八条公司的银行账户按照账户性质和用途分为基本户(支付和报销专用)、收入户(收入专用)、税务专户(税务和扣款专用)、资金池专户(资金池调拨专用)、贷款专户(贷款放款及还款专用)、其他专户(根据具体业务设置)。
第九条该帐户。
第十条集团下属子公司设立一级收入帐户,子公司及其下属油站所有收入资金全集团设立一级收入帐户,集团及所属油站,所有收入资金全部及时归集至第1页,共4页部及时归集至该帐户。
公司费用报销管理制度及流程(5篇)【第一篇】第一章、总则第一条、为进一步强化公司财务管理,完善财务管理制度,合理控制费用支出,规范公司的会计核算工作和财务报销行为,使公司财务管理制度化、规范化和可控性,发挥财务在公司生产经营管理中的作用,以保障提高公司的经济效益,特制定本制度。
第二条、凡涉及公司日常物资(包括零星材料、辅助材料、设备配件、固定资产、低值易耗品、办公用具、设备仪器及工具等)采购、税费支出、日常办公费用、招待费用、车辆费、差旅费用费用及其他涉及费用支出项目的报销均按此制度要求执行。
第三条、本制度适用公司全体员工。
第二章、借款及预付款管理规定第四条、借款是指公司员工因公务需要的临时性借款;预付款是指因公司业务需要,需预先支付的购买材料、货物及各项需要预先支付的款项。
第五条、借款管理规定凡涉及公司费用性其他支出项目(如日常办公费用、招待费用、车辆费用等),经办人员凭审批后按借款审批流程和审批权限办理借款;经办人员在业务办理完毕后应及时报帐,除周转金外其他借款原则上在结清前帐后方可办理借款。
各项借款金额超过3000元应提前一天通知财务室备款。
否则,财务室有权拒付超出借款金额。
第六条、预付款管理规定(一)、各项工程预付款:凡涉及公司固定资产(房屋建筑物、机器设备、工具等)建设、安装、维修等需要支付预付款,由业务经办人员依据合同规定的付款方式及金额填写《资金使用付款申请单》按审批程序批准后办理付款手续。
(二)、日常零星物资、材料采购预付款:凡涉及公司各项物资、材料采购需要提前预付货款由业务经办人员依据《物资供应采购合同》和《零星物资材料采购比质比价单》按借款审批流程和审批权限办理预付款手续。
(三)、办理公司各项预付款时,业务经办人员必须向财务室提供审批的“专项合同或协议”和《资金使用付款申请单》或《零星物资材料采购比质比价单》后,方可办理预付款支付手续,预付的金额不得超出合同规定的金额,财务人员要与经济合同核对后,方可支付。
公司借支与报销管理制度
我们需要明确借支与报销的基本概念。
借支是指员工因公出差或其他工作需要,暂时从公司预支一定金额的资金,而报销则是员工在工作中产生的合理费用,通过提交相关凭证向公司申请的费用补偿。
我们来详细解读这份管理制度范本:
一、制度目的
本制度旨在规范员工的借支与报销行为,确保每一笔支出都有明确的用途和合理的依据,防止财务风险,提高工作效率。
二、适用范围
本制度适用于公司全体员工,特别是经常需要进行差旅、采购等业务的人员。
三、借支管理
1. 借支条件:员工因公务需要预支款项时,必须提供详细的出差计划或项目预算。
2. 借支流程:员工需填写借支申请表,由直属上级审批后,提交至财务部门进行审核,审核通过后方可借款。
3. 借支限额:根据职位和工作性质设定不同的借支限额,超出限额需特殊审批。
4. 借支归还:员工应在规定时间内完成报销手续,归还借支款项。
四、报销管理
1. 报销条件:员工在工作中产生的合理费用,需提供合法有效的原始凭证。
2. 报销流程:员工需填写报销单,并附上相关凭证,经直属上级审批后,提交至财务部门进行复核,复核通过后予以报销。
3. 报销时限:员工应在费用发生后的一个月内完成报销手续,特殊情况需提前说明。
4. 报销标准:公司将根据国家相关规定和行业标准设定报销标准,超出部分原则上不予报销。
五、监督管理
1. 财务部门负责监督本制度的执行情况,定期对借支与报销情况进行审计。
2. 对于违反制度规定的行为,公司将视情节轻重给予相应的处罚。
六、附则
本制度自发布之日起实施,如有变动,以公司最新规定为准。
公司借款和报销管理制度一、目的和原则为规范员工因公出差或其他业务活动产生的费用预支与报销行为,根据国家有关财经法规和企业内部管理需要,特制定本制度。
本制度旨在确保公司资金的合理使用和流程的透明化,防范财务风险,提升管理效率。
二、适用范围本制度适用于公司全体员工。
所有因公出差、培训、会议等业务活动中的借款及后续报销均需遵循本制度规定。
三、借款程序1. 员工需提前填写借款申请单,并详细说明借款原因、金额及预计还款时间。
2. 部门主管需对借款申请进行审核,并根据情况予以批准或提出修改意见。
3. 财务部门负责复核借款申请的合规性,并在确认无误后安排款项发放。
4. 借款应尽量采用银行转账等非现金方式进行,以便于追踪和审计。
四、报销流程1. 员工应在活动结束后7个工作日内提交报销单据,包括发票、行程单等相关证明文件。
2. 报销单据须经部门主管初审并签字后,方可送至财务部门。
3. 财务部门将对报销单据的真实性、合法性进行审核,并对照预算进行核对。
4. 审核通过后,财务部门将在规定时间内完成报销款项的划拨。
五、费用控制1. 公司根据不同级别员工设定差旅费用标准,超出标准部分由员工自行承担。
2. 鼓励员工采取成本效益较高的出行方式和住宿选择,节约开支。
3. 对于高额费用开支,需提前报备财务部门,并得到高层管理者批准。
六、违规处理1. 对于违反借款和报销制度的行为,公司将视情节轻重给予警告、罚款直至解除劳动合同等处分。
2. 财务部门有权对任何不正当的借款或报销行为进行调查,并采取相应措施。
七、附则本制度自发布之日起生效,由财务部门负责解释和更新。
如有与国家法律法规相抵触之处,以国家法律法规为准。
公司差旅费及借款报销管理制度及流程----- 腾讯集团公司日常费用报销规定第一章总则一、为了加强公司内部管理,规范公司财务报销行为,倡导一切以业务为重的指导思想,合理控制费用支出,结合本公司的具体情况特制定本制度。
第二章借款报销程序一、借款报销的审批权限1.公司人员出差费用及日常费用支出须经总经理签字;2.各部门所有报销单据必须经总经理审批。
三、借款流程1•借款人员因公需要领用现金或支票时,应按规定填写《借款单》,注明借款事由、借款金额(大小写须完全一致,不得涂改)、支票或现金。
经总经理审核签字。
2•借款人员执审批后的借款单”到财务部,财务负责人根据公司的资金状况确定是否予以支付。
若支付,经会计制单、审核,由出纳按照批准金额予以支付;四、借款管理规定1.出差借款:借款人员借款后必须及时报销。
差旅费借款必须在返回公司上班之日起3天内办理报销及还款手续。
2•其他临时借款,如业务费、周转金等,借款人员应及时报帐,除周转金外其他借款原则上不允许跨月借支。
3.各项借款金额超过5000元应提前一天通知财务部备款。
五、报销管理程序1•借款销帐时应以借款申请单为依据,据实报销,超出申请单范围使用的,须经主管领导批准,否则财务人员有权拒绝销帐;借款人员在任务完成之后要及时报销,原则是前账不清,后账不借;2.报销时,报销单上应注明所办事由和用途,并附原始单据和发票,经总经理批准后到财务部报账;3.会计人员对报销凭据的合法性、真实性、合理性予以复核;第三章差旅费报销程序」、费用标准:•直辖市职务交通工具住宿标准伙食标准外埠市内交通费用一般员工火车硬卧200 元/天40 元/天40元/天经理飞机/火车180 元/天50元/天50元/天总经理飞机/火车实报实销实报实销实报实销2.省会城市职务交通工具住宿标准伙食标准外埠市内交通费用一般员工火车硬卧120 元/天30 元/天30 元/天经理飞机/火车150 元/天40元/天40元/天总经理飞机/火车实报实销实报实销实报实销3.县级及以下职务交通工具住宿标准伙食标准外埠市内交通费用一般员工火车硬卧80元/天30 元/天30元/天经理飞机/火车120 元/天40元/天40元/天总经理飞机/火车实报实销实报实销实报实销、费用标准的补充说明1•住宿费报销时必须提供住宿发票,实际发生额未达到住宿标准金额,不予补偿; 超出住宿标准部分由员工自行承担。
费用报销管理制度范本(通用6篇)费用报销管理制度1为了加强公司的财务管理工作,严格执行财务制度,完善财务管理,结合公司的具体实际,统一各部门的报销程序及规定,特制定本报销制度。
员工报销时应严格执行公司制定的审批管理制度一、报销审批监控程序1.除正常费用外,公司其他一切费用必须事先计划,经支出审批机关批准后,在计划范围内列支。
2、办公用品的购置:由各部门根据需要,编制计划报总裁办审核汇总,按审批权限批准后,由集团总裁办按计划统一购买,并建立实物帐,详细登记办公用品的进、出情景。
领用时,须填制出库单,经分管领导批准。
总裁办每月末应将办公领用清单交财务室进行核定监控。
3、物品采购报销须按公司采购控制程序、库房管理程序、进货检验程序完备审批手续后办理报销。
4、要求财务出纳人员严格执行财务制度,并于每月月初汇总上月的报销清单,上报上级主管。
5.总经理瑞德产生的费用由总经理徐报销。
6.每周三被指定为费用报销日。
培训回来的员工必须当月转入培训,经主管签字后才能报销。
当事人填写报销单,部门经理签字,交给财务方。
二、报销规定(一)、差旅费报销规定1、员工出差应填写出差“申请单”,并按规定程序报批后,到财务部门预借差旅费2、员工出差回到后,填写“差旅费”报销单,连同出差“申请单”,按规定的时光及审批手续到财务部报销。
3、员工差旅费报销标准严格按照公司规定执行。
4.住宿费:单次或双次出差最高不超过200元,出差深圳、广州、上海、北京最高不超过350元。
超出部分由个人承担,如有特殊情况需院长批准方可报销。
5.交通费:员工出差需要购买机票,由办公室统一购买,不得擅自购买。
如果擅自购买,费用由个人承担。
出差不是为了处理紧急事务,普通员工用车和船作为交通工具。
员工长途出差的交通费可以报销,打车票不能连续编号。
6、出差津贴:每人每一天30元。
(二)、市内交通费用报销规定公司员工在市内出差,尽量选择乘坐公司汽车或公交车。
原则上不建议打车。
财务管理制度第一条总则1.1、为了加强公司内部管理,规范公司财务报销行为,统一报销程序,提高财务管理水平,合理控制费用支出,根据相关法律法规,现结合公司具体情况,特制定本制度。
1.2、本制度根据相关的财经制度及公司的实际情况,财务报销分为日常办公费用、工薪福利及相关费用、工程相关支出及专项支出等。
1.3、本制度适用公司全体员工及项目公司员工。
第二条、借支管理规定及流程2.1、借款管理规定2.1.1员工因公借款:借款人员凭审批后的《借款单》按批准额度办理借款,相关事项办理完毕5个工作日内办理销帐手续。
2.1.2其他临时借款:如业务费、周转金等,借款人员应及时报账,除周转金外其他借款原则上不允许跨月借支。
2.1.3各项借款金额超过3000元应提前一天通知财务部备款。
2.1.4借款销账时应以《借款单》金额为依据,报销冲抵时实行多退少补;2.1.5借款未还者原则上不得再次借款,逾期未还者从其工资中扣回。
2.1.6原则上试用期员工、离职交接期员工不得借款。
2.1.7原则上员工借款金额不得超过其当月工资。
2.2、借款流程2.2.1借款人按规定填写《借款单》,注明借款事由、借款金额(大小写须完全一致,不得涂改)、标注支票或现金。
2.2.2审批流程:部门经理→财务负责人→副总裁→总裁2.2.3财务付款:借款凭审批后的《借款单》到财务部办理领款手续。
第三条日常费用报销及流程3.1、日常费用主要包括差旅费、交通费、办公费、低值易耗品及备品备件、业务招待费等。
3.1.1、日常费用报销的一般规定3.1.2报销人必须取得相应的合法票据,且发票上面须有日期、单位、经办人签名。
无正规发票一律不准报销,只允许走个人等额借支。
3.1.3填写报销单应注意:根据费用性质填写对应单据,严格按单据要求项目认真填写,注明附件张数,金额大小写须完全一致(不得涂改),简述费用内容或事由,原始单据须粘贴整齐。
须办理申请或出入库手续的应附批准后的《申请单》或《入库单》。
公司借款与报销管理制度公司借款及报销管理制度1.目的:为了加强借款、报销管理,规范借款、报销手续,特制定本规定。
2.适用范围:本规定适用于本公司的全体员工。
3.借款、报销办理流程:4.借款报销单据种类及适用范围:4.1借款单:用于除劳务费外其他所有费用类、采购类的借款业务。
4.2报销单:用于除差旅费、劳务费外其他所有费用类、采购类的报销业务。
4.3差旅费报销单:专门用于差旅费报销业务。
4.4招待费支出审批清单:用于招待费报销业务。
(暂用4.2报销单)5.借款的办理规定:5.1公司内人员借款务必是因公借款,坚持“前账不清后账不立”原5.2因公借款务必是正式员工(含试用期员工),临时员工不能借款报销;5.3所有借款务必写明归还日期,财务方可办理;5.4借款均务必填列“借款单”,按借款单内容、项目,真实、完整填写,经审批人或者授权人签批并经财务人员审核无误后方可办理借款;5.5在财务部借支票、汇款或者办理汇票均需全面填写借款单,写明收款单位、用途、金额或者限额等,经签字审批人签字审批并经财务审核后方可办理,内容不全或者未经签字审批的财务部拒绝办理。
5.6谁的费用谁报销;谁借款谁报销。
6.报销的办理规定:6.1所有报销业务要填制“报销单”或者“差旅费报销单”,将原始单据顺序粘贴在与报销单同样大小的空白纸张上,并将该纸张粘附在报销单后,假如签立了合同,须后附拨款单,经审批人或者其签字授权人在报销单与原始票据上签批后,到财务办理审核与登记手续,经财务审核无误后付款或者冲账;6.2报销招待费需注明招待费支出原因;7.专项支出借款报销的管理:专项支出(如批量购置家具、大型维修、装修、广告、劳务费等)借款时,应该将批准的项目计划报财务部。
计划内容应包含项目的总支出金额、明细项目支出计划金额、项目完成时间、结算方式及结算时间等,财务部据此办理付款。
(具体规定见资金拨付制8.借款报销签字权限规定:8.1公司规定按授权权限由总经理,分管副总,办公室主任审批;8.2员工发生的借款、报销规定:8.2.1 行政费用支出的借款、报销由项目文员经办并签字,报项目经理审核后,由办公室主任审批;5000元以上报总经理审批,办公室主任发生的借款,报销由总经理审批;总经理发生借款,报销由财务审批。
公司现金报销管理制度一、总则为规范公司现金报销管理,提高公司财务管理的效率和透明度,制定本制度。
二、适用范围本制度适用于公司内所有部门及员工的现金报销管理,凡涉及公司现金支出的费用均应按照本制度执行。
三、报销流程1. 提交报销申请:员工在发生现金支出后,应填写完整的报销申请表,附上相关的票据、发票等支出凭证,并经所在部门负责人审批签字。
2. 财务审核:部门负责人将经过审批的报销申请及相关凭证提交给财务部门进行审核。
财务部门应核对报销申请的真实性及凭证的完整性,确保支出符合公司政策规定。
3. 报销发放:财务部门审核通过后,将报销款项发放给员工,并将报销款项登记记录到公司财务系统中。
4. 实施监督:财务部门应定期对报销制度的执行情况进行检查,发现问题及时进行纠正,并向公司管理层报告。
四、报销核定标准1. 支出凭证:所有报销款项必须有相应的支出凭证,如发票、收据、费用清单等。
2. 支出事由:报销款项应符合公司政策规定的范围内,并必须是员工出差、公务、会议等工作相关支出。
3. 报销金额:报销金额应真实、合理,不得超出规定的标准。
4. 报销时限:报销申请应在费用发生后的7个工作日内提交,并在30个工作日内完成审核及发放。
五、报销管理责任1. 部门负责人:负责审批部门内的报销申请,确保报销事由合理、报销金额真实。
2. 职能部门:财务部门负责审核报销款项的真实性和合规性,对违反规定的报销行为进行处理。
3. 公司管理层:对报销制度的执行情况进行监督和检查,确保公司财务管理的透明度和规范性。
六、违纪处理1. 对于违反报销规定的员工,公司将根据情节轻重进行处理,包括口头警告、书面警告、扣发工资等。
2. 对于涉嫌贪污、挪用公款等严重违纪行为的员工,公司将依法追究法律责任。
七、附则1. 公司保留对本制度进行调整的权利,并将调整情况及时通知全体员工。
2. 本制度于公布后正式实施,如有修改版本,以最新版本为准。
以上为公司现金报销管理制度,希望全体员工严格遵守并执行,确保公司的财务管理工作顺利进行。
公司现金借支及报销制度第一条目的为加强昌泰集团公司借支管理,减少资金占用,提高资金使用效率,特制定本制度。
第二条本制度适用于本公司各职能部门员工办理个人借用资金的管理。
第三条借支现金范围(1) 员工出差、外出学习和培训等;(2) 需由公司负担的各类资料费、信息费等费用;(3) 特定的零星采购支出;(4) 公司日常零星的业务接待;(5) 其他为办理公司固定业务的支出。
第四条各项费用报销范围与批准权限1、差旅费报销1)出差人员回来后,必须在一周内将需要报销的差旅费单据和补助单,先由资金部审核,经主管领导和总经理签字后报销。
2)报销票据应符合法定要求,正规有效,严禁白条顶账。
出差人员要将报销票据粘贴规正干净,填制差旅费报销单应按要求写清出差时间、地点和事由。
3)出差人员所提供的差旅费票据应真实有效,票据与出差时间、地点不符的不予报销。
2、业务招待费报销1)业务招待费支出实行“预先申请、据实报销”的管理办法。
所有宴请、业务招待等费用开支必须列明事由和招待对象。
2)所报销的业务招待费票据必须是税务专用发票。
必须有经办人签字,证明人证明,并附招待申清单,方可按财务报销签批程序报支。
3)特殊业务招待费报公司董事长批准。
4)业务接待中坚持“厉行节约,反对浪费”的原则,控制一客多陪和超规格接待。
3、其它费用报销- 1 -公司日常费用报销经先由资金部审核、经部门经理验收、副总经理签字后资金部按有关规定支付;大额由资金部审核、部门经理验收、总经理签字后支付。
第五条办理借支程序公司职能管理部门员工借款时应向资金部提交“借款单”,写明事由、借款金额及还款期限,报经本部门负责人、资金部负责人、总经理签字同意后,资金部按有关规定办理支付。
第六条还款期限借支款项必须用于办理借款单上注明的指定业务,该指定业务办理完毕时应及时冲账,冲账时必须做到一笔借支一次性完全结账,借款期限原则上为壹个月内。
借款人必须在预计还款期限内归还或冲销借款,资金部门通知业务部门及时结账,对逾期未办理延期或超过延期期限的借支将从初始借款满壹个月的次日起以借款本金为基数按月计收1%的利息,并同时按借支额的10%从借支人当月核发工资总额中逐步扣除,直到扣完为止。
公司报销借款管理制度一、总则为规范公司报销借款行为,维护公司财务纪律,提高资金利用效率,制定本制度。
二、适用范围本制度适用于公司内所有员工及相关人员。
三、报销借款流程1. 申请报销借款:员工如需报销借款,应填写《报销借款申请单》,注明报销事由、金额及归还时间,并附上相关证明文件。
2. 部门负责人审批:申请表经申请人所在部门负责人审批后,方可向财务部提交。
3. 财务部审核:财务部对报销借款申请进行审核,核实申请人身份及报销事由,确认申请是否符合规定。
4. 发放报销借款:财务部在审核通过后,向申请人发放报销借款,同时记录相关信息。
5. 归还借款:员工在规定时间将借款归还公司,如有延期需提前向财务部申请。
6. 财务部复核:财务部对借款归还进行核对,确认金额无误后,将该笔借款关闭。
四、报销借款规定1. 报销借款金额原则上不得超过月收入的50%。
2. 报销借款应当用于公司业务支出,不得用于个人消费及其他用途。
3. 借款期限不得超过一个月,如有特殊情况需延期,须经财务部审核同意。
4. 如借款人逾期未还款,公司将采取相应措施,包括但不限于罚款、扣发工资等。
五、报销借款管理1. 财务部门负责对报销借款进行统一管理,确保资金使用合理有效。
2. 定期对报销借款情况进行统计分析,及时发现问题并提出解决方案。
3. 对于频繁报销借款或漫无目的的借款行为,将进行警告并严格监督。
4. 建立良好的借款档案,确保资金使用的透明度和合规性。
六、违规处理对于违反报销借款管理制度的行为,公司将按照公司规章制度进行处理,严肃追究责任。
七、附则本制度自发布之日起生效,若有任何修改或补充,须经公司领导层审批。
集团资金支付管理制度【目录】第1章总则第2章资金支付的分类、流程及审批权限第____条资金支付的审批流程。
第____条资金支付的审批权限第3章各种款项支付规定第____条财务业务款项支付基本原则第____条借款规定第____条部门五项费用报销规定:第____条采购付款第____条固定资产及在建工程付款第____条辅助物资采购付款第____条其他第____条审批事项说明:第4章资金支付审签人的责任规定1【正文】第1章总则第____条为有效执行企业资金管理内部控制制度,规范资金支付审批程序,明确审批权限,提高资金使用效率,控制资金风险,结合本公司实际情况,特制定本制度。
第____条本制度所涉及的对控股企业、附属企业及集团内各职能部门的资金支付项目,均应符合集团公司年度预先批准的范围和额度。
第____条本制度主要用于规范____公司及其分子公司资金支付业务;第____条本制度适用于集团内部调拨、公司固定资产构建、维修、供应商货款、物资采购、借款、费用报销等付款业务。
第____条支付原则为“分级会审、适当授权、分工明确、各司其职”。
第____条资金支付的依据是国家法规、公司章程、公司相关制度、批准的采购计划文件、授权相关人员的签字、必要的合同和验收手续、合法的内外部凭证等。
第____条出纳是付款业务的唯一执行者,只有相关人员按各自职权签字完毕后,才可付款。
第2章资金支付的分类、流程及审批权限第____条根据公司资金支付的性质,将资金支付分为以下两大类:经营性支付和非经营性支付。
经营性支出包括:(一)采购支出:包括采购设备、材料、辅助材料过程中发生的买价、运杂费、保险费、装卸费、租赁费及其他杂费等;2(二)日常经营管理费:包括办公费、交通费、差旅费、招待费、通讯费、车辆费、水电费、会议费、修理费、咨询服务费、低值易耗品、其他;(三)日常销售费用:包括广告费、宣传费、销售佣金、赠送礼品等;(四)工薪支出:包括工资、奖金、津贴、补贴、福利费等;(五)税费支出:包括公司应上交的各项税款、附加费、管理费等;(六)应付账款:主要指已签订合同尚未付清款项的公司对外欠款。
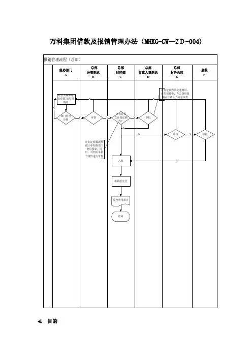
集团公司现金、借款及费用报销管理制度(试行)第一章总则第一条为规范集团财务管理,健全企业管理体系,完善内部控制制度,特针对公司现金、借款及费用报销等经济行为拟订本制度。
第二条本制度根据国家相关财经法规并结合集团目前的实际情况,在此主要规范:现金管理制度、借款管理制度、费用报销管理制度等。
费用报销分为日常办公费用、工薪福利费用、固定资产等专项支出等等。
第三条本制度适用集团全体员工。
第二章现金管理制度第四条现金管理规定:(一)集团可以在以下范围使用现金:1、1000 元以下零星办公用品、劳保用品采购;2、个人劳务(临时性)报酬;3、出差人员必须携带的差旅费;4、结算起点以下的零星支出;5、财务审计部长或集团总经理批准的其他开支;(二)结算起点:结算起点定为叁仟元,结算起点的调整,由财务审计部长和集团总经理确定。
(三)不得通过现金结算的项目:不得通过现金结算的项目包含:大额采购(固定资产、办公用品、劳保用品)、工资性支出、福利等。
大额采购需通过银行转账或支票方式支付;工资性支出需通过银行转账,统一发放;(四)除本规定第四条第一款外,财务审计部支付超过使用现金限额的部分,应当通过银行转账或以支票支付;确需全额支付现金的,需经财务审计部审核,财务审计部长或集团总经理批准后才能支付;(五)日常零星开支所需库存现金限额为叁仟元,超过部分应存入银行;(六)出纳支付现金,可以从库存现金限额中支付或从银行存款中提取,不得从现金收入中直接支付(即坐支);(七)出纳从银行提取现金,现金支票应写明用途和金额,由财务审计部长和集团总经理批准后提取;(八)无论何种汇款,财务审计部必须审核《付款通知单》,分别由经手人、部门负责人、财务审计部长、集团总经理签字;(九)出纳人员应当建立健全现金、银行存款账,逐笔登记资金业务,做到日清月结,保证账账、账款相符。
第三章借款管理制度第五条借款管理规定:(一)范围:适用于所有因公借款(集团不受理任何私人借款);其他临时性借款,如业务费、周转金等,借款人员应及时报账,除周转金外其他借款原则上不允许跨月借支。
(二)具体规定:1、借款程序、审批权限:员工出差或其它工作原因借款,先填制一式三联的《借款单》,根据业务需要如实填写借支金额,借款额应控制在其月工资性收入以内,由部门负责人审查、财务审计部长审批。
因特殊情况,借款额超过其月工资性收入的,除履行前款规定的审批手续外,还应报集团总经理批准;2、借款的清收:a、借款原则:“前款不清、后款不借、超期不还、自动扣除” 。
(1)员工出差需借款的,应持集团总经理审批过的《出差申请表》办理借款手续,出差结束返回集团后的 5 个工作日之内报账,否则,财务审计部应停止其下单借款手续的办理;(2)采购部门借款采购,需提供经集团总经理批准的《采购申请表》及按照审批额度填写的《借款单》;无《采购申请表》的借款不予受理。
应在采购工作结束后的 5 个工作日之内报账,否则,财务审计部应停止其下单借款手续的办理;b、未按期清还欠款的,主管会计于次月 3 日(遇节假日提前)之前提供在职员工欠款清单交财务审计部长审批并转交出纳,出纳应按照欠款清单及时从欠款人当月的工资、奖金中予以扣回;C、员工离职时应结清个人欠款,财务审计部长审核,未结清的人力资源部不予办理离职手续,财务审计部对欠款责任人的清算工资全额暂扣,结清后返还;d、主管会计应及时对集团员工费用借款账户进行清理、稽核,如发现记账错误应尽快调整,费用单据未按时收回冲账应督促借款人限期处理;e、集团员工在还款或通过费用报销核销借款后,出纳应将《借款单》第三联次退还借款人销账,第二联次由主管会计作为入账凭据,第一联次按月留存、归档备查。
3、借款金额在2000元人民币以上的,借款人应提前一天通知财务审计部;4、当年所有借款必须在12月31日之前清零。
第四章费用报销管理制度第六条费用报销规定及流程:(一)范围:适用于集团所有的管理、经营费用等的报销。
(二)费用报销制度范围:适用于集团所有的管理、经营费用的报销。
(三)费用报销的程序及职责:1、报销人员负责填写《费用报销单》并粘贴相关单据;2、部门负责人按照部门业务情况审查报销单;3、主管会计负责审核原始单据,并最终编制记账凭证;4、财务审计部长按照《会计法》及集团具体规定审批所有报销凭证;5、集团总经理按照相关业务情况及规定,审批报销单;6、出纳核实票据审批手续是否齐全;手续齐全方可签字付款。
(四)费用报销过程中的注意事项:1、相关部门及经办人对费用的真实性负责,财务审计部对费用的合理性及票据的合规性严格审核把关;2 、所有费用在发生后 5 个工作日内报销,并填写《费用报销单》,所附发票等原始单据需鱼鳞状粘贴在《费用报销单》后;3、发票必须为正式发票,印章清晰,无涂改痕迹。
发票后需注明费用发生原因、时间、经手人、验证人;对无正式发票的报销不予受理;4、无论何种情况一律不得乘坐出租车;5、已发生预借款项的报销,冲减借款后,多退少补;6、报销2000 元以上需提前一天通知财务审计部以便备款;7、所有费用报销,不能跨年度。
12月31日前发票未到时,报销者需在财务审计部年底结账前报财务审计部进行费用明细数据的备案;8、对于集团业务外的开支、罚款等不予报销。
特殊情况需财务审计部长或集团总经理审批报销。
(五)费用报销时间规定:每周四下午财务审计部集中办理报销事宜。
审批手续需提前办理,对于手续不齐全的票据不予受理。
若当月的最后一个报销日在该月的28 日以后,为了便于财务审计部集中时间月末结账,该报销日停止财务报销。
第七条日常费用主要包括差旅费、电话费、办公费、低值易耗品及备品备件、业务招待费、培训费、资料费等。
在一个预算期间内,各项费用的累计支出原则上不得超出预算。
第八条差旅费报销制度及流程(一)出差管理细则:1、集团员工因公出差,依照本细则预支和决算差旅费:2、乘坐飞机、火车、轮船及长途汽车凭相应的票据报账;住宿费报销时必须提供住宿发票,实际发生额未达到住宿标准金额,按实际数;超出住宿标准部分由员工自行承担;3、旅途500 公里以上的夜间乘车,方可乘坐卧铺;4、搭乘集团交通工具者,或由对方接待单位提供餐饮、住宿及交通工具等不予报支交通费;(二)集团员工出差乘坐交通工具标准:1、部门负责人及其以上职务应视业务的轻重缓急,适当乘坐火车、轮船或飞机,但乘坐飞机等出差前应经集团总经理批准;2、其他员工出差一般应乘坐火车,轮船或长途汽车;特殊情况应经部门主管及集团总经理审批后,才能乘坐飞机等交通工具。
三)出差费用报销标准:1、出差员工食宿、出发地和目的地内的交通费、通讯补等实行总额包干、超支自理的原则(会议除外);出差天数以实际出差天数为准。
2、具体报销标准:京沪广及特区城市320元/天;省会城市260元/天;地区市、县署所在地160元/天。
3、如果出差目的地有集团办事处及员工宿舍,具体报销标准为:20 元/ 天。
四)出差期间因公支出下列费用,其规定如下:1 、电话、电报及邮寄费凭电信局或邮政局开局的正式发票报销;2、因公宴请招待费用,应事先电话请示上级领导批准并且凭饭店开具正式发票报销;3、因公携带的文件资料及行李运费,凭交通部门正式的运费发票报销;4、西安市内短程(1 日内)的出差费用,据实报销车费及餐补费20 元/天;五)员工休假回家差旅费报销:按照集团规定的职工假期休假次数内,报销往返交通车票(汽车、火车),当年不超过 2 次(补助及其他费用不予报销)。
职工自行请假回家费用不予报销;六)会议、学习费用报销:在集团安排的学习、会议、考察、委培等期间,报销往返交通费用,补助标准执行:京沪广及特区城市50 元/天;省会城市30 元/天;地区市、县署所在地20 元/天会议费、学习费等经集团相关委派单位负责人及财务审计部长审批后进行报销;七)差旅费报销程序:1 、拟出差人员首先填写《出差申请表》,详细注明出差地点、目的、行程安排、交通工具及预计差旅费用项目等,《出差申请表》由集团总经理批准;2、出差人员将审批过的《出差申请表》交财务审计部, 按借款管理规定办理借款手续,出纳按规定支付所借款项。
原则上前款未清者不予办理新的借支;3、出差人员持审批过的出差申请复印件,到行政法务部订票(原则上机票一律用支票支付,特殊情况不能用支票的,需事先书面说明情况,经审批人签字后报财务审计部备案);4、出差返回报销的员工,应在返回的 5 个工作日内按规定填具《费用报销单》,所有原始单据必须为正式发票,发票印章清晰,送请部门负责人审核;经财务审计部长或集团总经理审批后,交出纳办理;5、特殊情况的单据应经本部门负责人审批签字后,经财务审计部长和集团总经理审批,最后交出纳办理;第九条电话费用报销制度及流程(一)费用报销标准:集团为员工提供工作必须的固定电话,并由集团统一支付话费。
禁止员工在上班期间打私人电话;(二)费用报销流程:电话费由行政法务部指定专人按日常费用审批程序及报销流程办理报销手续,若遇电话费异常变动情况应到电信局查明原因,特殊情况报集团总经理批示处理;第十条办公费、低值易耗品等报销制度及流程(一)费用管理规定: 为了合理控制费用支出, 此类费用由集团行政法务部统一管理,集中购置, 并指定专人负责;(二)费用报销流程1、集团行政法务部每季度根据需求及库存情况按预算管理办法编制购置预算,实际购置时填写《采购申请表》按资产管理办法规定报批;2、报销人先填写《费用报销单》(附出入库单),按日常费用审批程序报批。
审批后的《费用报销单》及原始单据(包括结账小票)交财务审计部,按日常费用报销流程付款或冲抵借支;3、财务审计部按月根据行政法务部提供的各部门购、领、存金额统计表,归集核算各部门相关费用,库存用品待实际领用时分摊计入费用;第十一条招待费、培训费、资料费及其他报销制度及流程(一)费用报销标准1、招待费:为了规范招待费的支出,招待费应事前征得集团总经理的审批;2、培训费:为了便于集团统筹安排,此费用原则上由集团人力资源部统一管理,各部门的培训需求应及时报送人力资源部。
人力资源部根据实际需要编制培训计划报集团总经理审批;3、资料费:在保证满足需要的前提下,尽量节约成本,注意资源共享。
各部门在购买资料前必须先填写《采购申请表》,在报销前必须到行政法务部资料管理人员处进行登记(资料管理人员在资料发票背面签字);4、其他费用:根据实际需要据实报批支付;(二)报销流程:1、招待费由经办人按日常费用报销一般规定及报销程序办理报销手续;2、培训费由人力资源部指定人员根据日常费用审批程序及报销程序办理报销手续;3、资料费在报销前需办理资料登记手续,相关部门经办人持按审批程序审批后的《费用报销单》及《采购申请表》到财务审计部办理报销手续;4、其他费用报销参照日常费用报销制度及流程办理;第十二条工薪福利及相关费用支出制度及流程(一)工薪福利等支出包括工资、临时工资、社会保险及各项福利等,此类费用按照资金支出制度相关规定执行;(二)工薪福利支付流程1、工资支付流程:a、当月考勤由人力资源部于次月 1 日统计出表,由人力资源部依据考勤表、集团总经理审批后的本月工资支付标准(含人员变动、额度变动、扣款、社会保险及住房公积金等)、职工月度奖金分配表编制标准格式的工资表,并于次月 3 日前提交财务审计部;b、财务审计部按工薪审批程序审核并报集团总经理审批;次月 5 日发放工资条并通过银行代发形式支付上月工资;如遇节假日,具体情况具体处理。