深圳文化中心音乐厅建筑方案文本 平面图 建A-49装
- 格式:dwg
- 大小:923.87 KB
- 文档页数:1
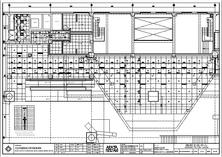
一、观众席演奏大厅总面积2323平方米,中为岛式舞台。
演奏大厅观众席呈峡谷梯田式,360°围绕着舞台而设计。
适合各种音乐会和演奏会,也可用作研讨会和会议用途。
观众席共设有1680个座位,其中普通席座位间距1.05米,贵宾席座位间距1.30米。
(座位分布详见附图1)二、舞台概况:●舞台面积:251平方米。
●舞台:宽21米、深13.5米。
●台下部基础净高为:2.3米。
●舞台高于首排观众0.8米。
演奏大厅舞台由固定舞台和36块升降台板组成,外形为不等边八角形,左右对称。
以指挥台位置为圆心,呈扇形布置共36块电动升降台,可供120人四管乐队和200多人大型合唱团同台演出。
演奏台的形式灵活多变,利用演奏升降台高度的变化,可以形成6种阶梯式演奏台面,既适合各种乐队的排位,又适合大型合唱队的排列。
合唱团可设于舞台后部3×4块升降台板,可容纳合唱演员100人;也可设于舞台后部上面的观众席,共分3部分席位,可容纳合唱演员109人。
舞台地面铺设美国道格拉斯冷杉木和柏木地板,禁止锤钉、重物碰撞和液体侵蚀。
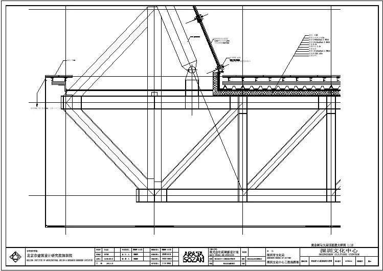
(舞台示意图详见附录2和附录4)三、吊杆和反音板舞台上部机械设备设有:电动吊杆,反声板吊挂装置等。
吊杆技术规格:吊杆共有6套,吊杆长16.4米,行程20米,载荷:380kg/套。
分别设置于舞台和后排座位上部。
其中1、3、5号吊杆可用于提升布景和投影幕,2、4、6号吊杆可用于吊挂灯具等。
反音板技术规格:反音板由19.8米(宽)×14.5(深)椭圆形钢结构玻璃反音罩组成。
反音板距离舞台的高度为14.5米。
反音板行程可达18米,最大载荷为28吨。
反音板通过其上面角度可调整的玻璃反音罩将舞台上的声音返送到观众区,玻璃反音罩的返送角度和距离舞台的高度会直接影响声音的返送效果。
目前反音板上玻璃的角度已根据音响设计师的测试调整到最佳位置,反音板距离舞台的高度为14.5米。
反音板上安装有舞台演出的顶光和面光灯具以及四组吊挂式线阵列音箱。
《新建文化艺术中心施工方案》一、项目背景随着人们生活水平的不断提高,对文化艺术的需求也日益增长。
为了满足广大市民的精神文化需求,提升城市的文化品位,拟新建一座现代化的文化艺术中心。
该文化艺术中心将集演出、展览、培训、休闲等多种功能于一体,成为城市的文化新地标。
二、空间布局1. 演出大厅- 位置:位于文化艺术中心的核心区域,可容纳[X]名观众。
- 设计:采用先进的声学设计,确保音质清晰、无回声。
舞台设计宽敞大气,配备先进的灯光、音响设备,满足各种演出需求。
- 设施:设置舒适的观众座椅,配备空调系统,保证观众的舒适度。
2. 展览厅- 位置:分布在文化艺术中心的不同楼层,总面积为[X]平方米。
- 设计:展厅空间开阔,采光良好,可根据不同的展览需求进行灵活布置。
- 设施:配备专业的展览照明设备、展架、展板等,为展览提供良好的展示条件。
3. 培训教室- 位置:设置在文化艺术中心的安静区域,便于教学活动的开展。
- 设计:教室大小适中,可根据不同的培训课程进行调整。
- 设施:配备多媒体教学设备、桌椅等,为培训提供良好的教学环境。
4. 休闲区域- 位置:分布在文化艺术中心的各个角落,为观众提供休息和交流的场所。
- 设计:休闲区域环境优雅,布置舒适的座椅、绿植等,营造出轻松愉悦的氛围。
- 设施:设置饮水机、自动售货机等便民设施,满足观众的基本需求。
三、设施配置1. 灯光系统- 演出大厅:采用专业的舞台灯光设备,包括聚光灯、柔光灯、追光灯等,满足各种演出的灯光需求。
- 展览厅:配备专业的展览照明设备,可根据不同的展览需求进行调整。
- 公共区域:设置节能型照明灯具,保证照明效果的同时,降低能源消耗。
2. 音响系统- 演出大厅:采用先进的音响设备,包括扬声器、功放、调音台等,确保音质清晰、无失真。
- 培训教室:配备多媒体音响设备,满足教学活动的音响需求。
- 公共区域:设置背景音乐系统,营造出舒适的氛围。
3. 空调系统- 采用中央空调系统,为文化艺术中心的各个区域提供舒适的温度和湿度。
深圳文化中心地下室工程施工方案深圳文化中心地下室工程施工方案第一节工程概况一、结构部分:1.深圳文化中心工程地下部分建筑面积3.1万m2。
主要柱网为7.8×7.8m2。
地下室(10-30轴)有两层,地下室长158m,宽89.7m。
地下二层地面标高-10.10m(局部-11.60m),作为设备用房及停车场。
停车场局部为平战结合六级人民防空掩蔽室。
地下一层地面标高为-5.65m,除局部用作设备用房外,其它均为停车场。
1-10轴及30-39轴有局部地下一层设备管沟。
2.挡土墙设计及25以上钢筋连接新技术的应用地下室外围挡土墙砼强度等级为C30,抗渗等级S10,墙厚地下二层为450~500mm地下一层为350mm。
外墙按设计要求设置竖向后浇带,后浇带为平口缝另加钢板止水带。
为避免或最大限度减少裂缝,特将外墙水平筋加密到φ12@125。
地下室部分25及25以上钢筋连接采用滚压直螺纹套筒接头,接头等级A级。
本工程梁柱节点主筋锚固及箍筋加密构造作法详建筑标准图集97G329(一)。
二、建筑部分1.本工程为一九九八年深圳文化中心设计方案国标竞赛的中标方案。
该项目由一座独立的图书馆和一座独立的音乐厅组成,地下设有停车库。
应委托方要求设计成为具有国际水平及时代特色的文化设施,并为市民提供环境优美的公共文化休闲场所。
2.音乐厅室内部分停车:地下一层:100辆地下二层:100辆图书馆室内部分停车:地下一层:100辆地下二层:90辆3.地下室部分消防工程地下室各层设备电气机房及辅助房间部分划分为不大于500m2的六个防火分区,各层停车库部分划分为不大于4000m2的三个防火分区。
地下室部分设置防烟楼梯10座,楼梯分布符合安全疏散距离的规定。
疏散宽度及前室面积符合有关规范的规定。
地下室部分设置消防电梯三部,分布于各主要防火分区中,供火灾时消防队员用。
地下室各层各主要房间均设有火灾自动报警系统,除机房外的主要房间还设有自动喷水灭火系统。