回用水处理工艺流程图
- 格式:xls
- 大小:37.00 KB
- 文档页数:1
雨水收集系统,是将雨水根据需求进行收集后,并经过对收集的雨水进行处理后达到符合设计使用标准的系统。
现今多数由弃流过滤系统、蓄水系统、净化系统组成!雨水收集系统根据雨水源不同,可粗略分为两类。
一、屋顶雨水。
屋顶雨水相对干净,杂质、泥沙及其他污染物少,可通过弃流和简单过滤后,直接排入蓄水系统,进行处理后使用。
二、地面雨水。
地面的雨水杂质多,污染物源复杂。
在弃流和粗略过滤后,还必须进行沉淀才能排入蓄水系统。
雨水收集回用工艺流程图各不同的雨水收集流程都具有针对性,可以有效处理不同汇水面的雨水。
既可以有效收集雨水又可以合理节约成本兼顾系统的雨水预处理、雨水蓄水、雨水深度净化、雨水供水、补水和系统控制,全面科学。
采用大量新型专利、专业装置,材料,可以方便地解决雨水收集中特殊问题,如弃流、蓄水、供水等。
收集设计中尽可能避免电气设备的使用,更多利用雨水自流的特点完成污染物的自动排放,净化、收集,做到真正节能、环保、高使用寿命、低成本的特点。
整套系统都由雨水控制器进行控制,完成收集、净化、供水、补水,安全保护等功能。
雨水收集系统,是指雨水收集的整个全过程,雨水收集主要包括四个主要方面:初期弃流---过滤---储存---回用。
完成了这四个阶段,就是一个雨水收集的全过程,也就是雨水收集系统。
回用工艺流程图雨水管道--------截污管道--------雨水弃流过滤装置--------雨水自动过滤器--------雨水蓄水模块--------消毒处理--------用水点工艺流程图说明:初期雨水经过多道预处理环节,保证了所收集雨水的水质。
采用蓄水模块进行蓄水,有效保证了蓄水水质,同时不占用空间,施工简单、方便,更加环保、安全。
通过压力控制泵和雨水控制器可以很方便地将雨水送至用水点,同时雨水控制器可以实时反应雨水蓄水池的水位状况,从而到达用水点。
雨水收集的意义:可以达到节能减排,绿色环保,减少雨水的排放量,使干旱,紧急情况(如火灾)能有水可取。
中水回用工艺流程与处理方式1中水处理方式:中水因用途不同有两种处理方式:1. 一种是将其处理到饮用水的标准而直接回用到日常生活中,即实现水资源直接循环利用,这种处理方式适用于水资源极度缺乏的地区,但投资高,工艺复杂;2. 另一种是将其处理到非饮用水的标准,主要用于不与人体直接接触的用水,如便器的冲洗,地面、汽车清洗,绿化浇洒,消防,工业普通用水等,这是通常的中水处理方式。
按处理方法中水处理工艺一般分为3种类型:物理处理法:膜滤法,适用于水质变化大的情况。
采用这种流程的特点是:装置紧凑,容易操作,以及受负荷变动的影响小。
膜滤法是在外力的作用下,被分离的溶液以一定的流速沿着滤膜表面流动,溶液中溶剂和低分子量物质、无机离子从高压侧透过滤膜进入低压侧,并作为滤液而排出;而溶液中高分子物质、胶体微粒及微生物等被超滤膜截留,溶液被浓缩并以浓缩形式排出。
适用于污水水质变化较大的情况。
一般采用的方法有:砂滤、活性炭吸附、浮选、混凝沉淀等。
这种流程的特点是:采用中空纤维超滤器进行处理,技术先进,结构紧凑,占地少,系统间歇运行,管理简单。
生物处理法:适用于有机物含量较高的污水。
一般采用活性污泥法、接触氧化法、生物转盘等生物处理方法。
或是单独使用,或是几种生物处理方法组合使用,如接触氧化 + 生物滤池;生物滤池 +活性炭吸附;转盘十砂滤等流程。
这种流程具有适应水力负荷变动能力强、产生污泥量少、维护管理容易等优点。
2中水处理回用系统按其供应的范围大小和规模,一般有下面四大类:1.排水设施完善地区的单位建筑中水回用系统:该系统中水水源取自本系统内杂用水和优质杂排水。
该排水经集流处理后供建筑内冲洗便器、清洗车、绿化等。
其处理设施根据条件可设于本建筑内部或临近外部。
如北京新万寿宾馆中水处理设备设于地下室中。
2.排水设施不完善地区的单位建筑中水回用系统:城市排水体系不健全的地区,其水处理设施达不到二级处理标准,通过中水回用可以减轻污水对当地河流再污染。
回用水处理工艺
水是我们生活中必不可少的资源,因此处理和回用水变得越来越重要。
以下是一些常见的用水处理工艺:
1. 沉淀:通过将含有悬浮物的水静置,使悬浮物沉淀到底部,从而分离出清水。
2. 过滤:使用过滤介质(如砂、炭等)去除水中的固体颗粒、沉淀物和悬浮物。
3. 离心分离:利用离心力将水中的固体颗粒与液体分离,从而实现水的净化。
4. 膜分离:利用半透膜或纳滤等技术,通过膜孔大小的选择性来分离水中的溶解物、微生物和其他杂质。
5. 活性炭吸附:利用活性炭的吸附能力去除水中的有机污染物和异味物质。
6. 臭氧氧化:利用臭氧氧化反应去除水中的有机物、细菌和病毒。
7. 紫外线消毒:使用紫外线辐射杀灭水中的微生物,如细菌、病毒和寄生虫。
8. 反渗透:通过使用半透膜来去除水中的溶解物、盐和有机物。
这些工艺可以单独应用或结合使用,根据水的质量要求和处理目标来选择合适的工艺。
回用水处理工艺可以有效地净化废水,降低对自然水资源的依赖,促进可持续发展。
化工回用水处理工程设计实例及分析摘要:随着工业经济的快速发展,区域水承载能力有限,导致水资源日益短缺,水污染加剧。
因此,水资源的循环利用对社会的可持续发展具有重要意义。
目前,越来越多的工业用水户参与到水资源的循环利用中,不仅缓解了水资源紧缺的压力,而且提高了资源的利用率,降低了企业的生产成本。
关键词:化工回用;水处理;工程设计;实例引言工业经济高速发展,然而区域水资源承载能力有限,导致水资源日益短缺,同时水污染不断加剧。
因此,水资源的循环利用对于社会可持续发展具有重要意义。
目前,越来越多的工业用水大户加入到水资源循环利用的行列,不仅缓解了水资源短缺的压力,还提高了资源的利用率,降低了企业的生产成本。
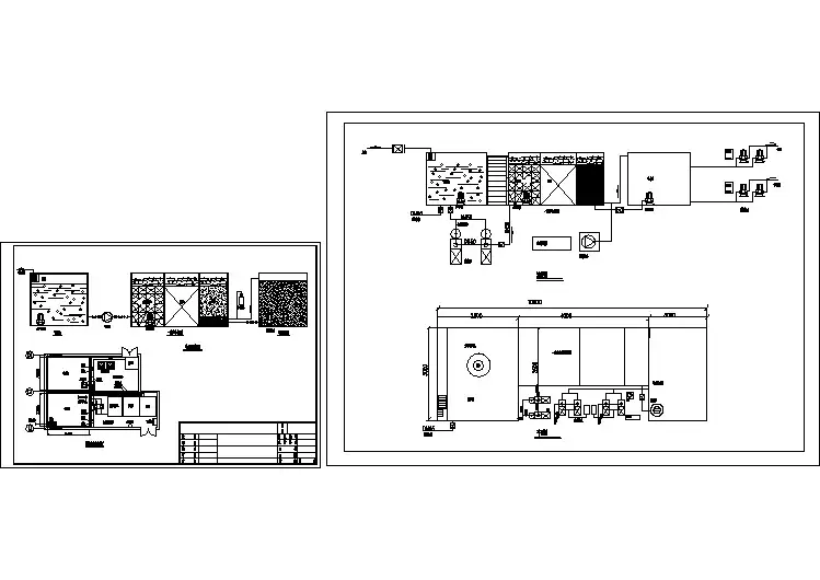
1 工程概况1.1 建设规模本工程设计污水处理能力为9600m3/d,其中循环污水排放水为7200m3/d(循环水侧过滤反冲洗水在反冲洗过程中间断产生,进入循环污水处理系统)。
同时考虑设计余量,该部分水为7200m3/d),二级生化处理水为2400m3/d。
1.2 设计进出水水质根据水质分析结果,并考虑不利工况的影响,设计进水水质,见表1。
表1进水水质由表1可知,循环水排污水浊度较高,硬度大,主要是钙盐、镁盐含量较高;二次生化处理水是经现有的生化处理系统处理后的气化灰水、冲渣水等废水,其氨氮、COD需进一步去除,以利于后续脱盐处理系统的运行。
1.3 工艺流程及说明生产废水(100m3/h)经已有的生化系统处理(A2O工艺)后进入本系统1#调节池,再经提升泵提升依次进入DN型BAF池+DC/N型BAF池。
为了增强脱氮效果,本工程采用了前置反硝化的两级BAF。
因在缺氧环境下反硝化作用会消耗部分碳源,而原水中COD较低,为避免因碳源不足而限制反硝化作用的效果,在DN型BAF池设有甲醇加药装置。
经处理废水中的TN、COD得到进一步去除。
处理后水自流进入中间水池。
循环水排污水(300m3/h)自流进入2#调节池,然后通过提升泵提升进入水质软化池。
双膜法中水回用工艺流程【摘要】双膜法中水回用工艺流程是一种高效的水处理方法,有助于实现水资源的可持续利用。
在这篇文章中,我们介绍了双膜法中水回用工艺流程的各个阶段。
首先是膜组件准备阶段的工艺流程,然后是预处理系统、反渗透膜系统、超滤膜系统和再循环系统的工艺流程。
通过这些流程,可以有效地去除水中的污染物和杂质,使废水变成清洁可再利用的水资源。
在我们总结了双膜法中水回用工艺流程的优点和适用性。
这种工艺流程不仅可以帮助减少环境污染,还可以节约水资源,促进可持续发展。
通过对双膜法中水回用工艺流程的研究和应用,可以为水资源管理提供重要参考和借鉴。
【关键词】双膜法、水回用、工艺流程、膜组件、预处理系统、反渗透膜系统、超滤膜系统、再循环系统、总结。
1. 引言1.1 双膜法中水回用工艺流程介绍双膜法中水回用工艺流程是一种高效、节能的水处理技术,广泛应用于工业和市政领域。
通过膜组件的过滤和透析作用,将废水中的有害物质和固体颗粒去除,使水质得到提升,满足再利用的要求,实现资源循环利用和环境保护的双重目的。
本文将详细介绍双膜法中水回用工艺流程的各个环节,包括膜组件准备阶段的工艺流程、预处理系统的工艺流程、反渗透膜系统的工艺流程、超滤膜系统的工艺流程以及再循环系统的工艺流程。
通过对每个环节的工艺流程进行细致的分析和探讨,可以帮助读者更好地理解双膜法中水回用工艺流程的原理和操作方法,为实际应用提供参考和指导。
双膜法中水回用工艺流程的优点在于能够高效地去除废水中的有害物质和颗粒物,降低废水排放对环境的污染,减少水资源的浪费。
随着我国水资源的日益紧缺和环境污染问题的加剧,双膜法中水回用工艺流程的应用前景广阔,具有重要的社会和经济意义。
2. 正文2.1 膜组件准备阶段的工艺流程膜组件准备阶段的工艺流程是双膜法中水回用工艺流程中的重要环节。
在这个阶段,主要是对膜组件进行处理和准备工作,以确保膜组件的性能和稳定性。
需要对膜组件进行清洗。
❝ 水处理车间各岗位工艺流程水处理车间的岗位分为:❝ 一、新鲜水岗位❝ 二、循环水岗位(净化循环水、空分循环水、热电循环水、气化循环水) ❝ 三、化学水(脱盐水)岗位❝ 四、中水回用岗位❝ 五、污水岗位(二)、循环水岗位:循环水各系统的工作原理基本一样,只是冷却塔、过滤器个数不一样。
其中,净化合成循环水设计能力(处理水量)为40000m3/h ,规格为8×5000m3/h ,空分循环水设计能力为25000m3/h ,规格5×5000m3/h ,热点循环水设计能力为11000m3/h ,规格为2×5500m3/h ,气化循环水设计能力为❝ 1.新鲜水的岗位任务将原水经预处理水质达标后供给全厂生活生产用水以及消防用水。
25000m3/h,规格为5×5000m3/h。
1.循环水的岗位任务净化、空分、热电、气化四套循环水系统主要任务是向各循环水装置提供合格水质,压力、温度、流量符合各工艺要求的冷却用循环水。
并根据工艺指标,对循环水进行加药及旁滤处理,负责循环水系统的操作与运行,确保循环循环水水质、水量、压力及温度等工艺指标在合格范围内。
2.工艺流程(结合图)以净化合成循环水为例:由厂外水处理厂处理过后的合格原水经由D426×8的生产给水管供入空分循环水系统,循环水泵从吸水池(V26201)将循环水送入D1220×12的主管网,经各支线到空分热交换器,循环水吸收工艺介质的热量后,依靠余压通过D1220×12的回水主管回到冷却塔塔顶,经塔内配水系统进入淋水填料蒸发、传导散热冷却后进塔下集水池,再进入循环水吸水池;另一部分经过循环水旁滤器过滤杂质后,进入循环水吸水池。
循环水在系统中损失的部分由厂区生产给水管、高浓盐水处理回用水管、中水处理回用水管及污水处理回用水管补入循环水池,旁滤器反洗废水进入反洗水集水池(V26102),经由反洗水回用水泵(P26104A-B)送入中水处理站,进行回用处理。
❝ 水处理车间各岗位工艺流程水处理车间的岗位分为:❝ 一、新鲜水岗位❝ 二、循环水岗位(净化循环水、空分循环水、热电循环水、气化循环水) ❝ 三、化学水(脱盐水)岗位❝ 四、中水回用岗位❝ 五、污水岗位(二)、循环水岗位:循环水各系统的工作原理基本一样,只是冷却塔、过滤器个数不一样。
其中,净化合成循环水设计能力(处理水量)为40000m3/h ,规格为8×5000m3/h ,空分循环水设计能力为25000m3/h ,规格5×5000m3/h ,热点循环水设计能力为11000m3/h ,规格为2×5500m3/h ,气化循环水设计能力为❝ 1.新鲜水的岗位任务将原水经预处理水质达标后供给全厂生活生25000m3/h,规格为5×5000m3/h。
1.循环水的岗位任务净化、空分、热电、气化四套循环水系统主要任务是向各循环水装置提供合格水质,压力、温度、流量符合各工艺要求的冷却用循环水。
并根据工艺指标,对循环水进行加药及旁滤处理,负责循环水系统的操作与运行,确保循环循环水水质、水量、压力及温度等工艺指标在合格范围内。
2.工艺流程(结合图)以净化合成循环水为例:由厂外水处理厂处理过后的合格原水经由D426×8的生产给水管供入空分循环水系统,循环水泵从吸水池(V26201)将循环水送入D1220×12的主管网,经各支线到空分热交换器,循环水吸收工艺介质的热量后,依靠余压通过D1220×12的回水主管回到冷却塔塔顶,经塔内配水系统进入淋水填料蒸发、传导散热冷却后进塔下集水池,再进入循环水吸水池;另一部分经过循环水旁滤器过滤杂质后,进入循环水吸水池。
循环水在系统中损失的部分由厂区生产给水管、高浓盐水处理回用水管、中水处理回用水管及污水处理回用水管补入循环水池,旁滤器反洗废水进入反洗水集水池(V26102),经由反洗水回用水泵(P26104A-B)送入中水处理站,进行回用处理。
××××有限公司中水回用处理工程设计方案目 录1概述 ...............................................................................1.1 项目概述 .....................................................................1.2 编制依据 .....................................................................1.3 编制原则 .....................................................................1.4 编制范围 ..................................................................... 2工程规模与处理程度 .................................................................2.1 规模确定 .....................................................................2.2 设计水质 ..................................................................... 3中水处理站的方案选择 ...............................................................3.1 污水概况 .....................................................................3.2 中水处理工艺流程的选择 .......................................................3.3 工艺流程简介 .................................................................4 中水处理工程设计 ..................................................................4.1 工艺设计 .....................................................................4.2 建筑设计 .....................................................................5.主要设备一览表 .....................................................................6 工程经济分析 ......................................................................6.1 运行成本分析 .................................................................6.2 环境效益分析 .................................................................6.3 社会效益 .....................................................................1概述1.1 项目概述××××有限公司新制剂项目动力车间排放的污水主要为工人的生活污水,直接排放会对环境造成污染,需要进行处理。
中水回用技术方案1 总论1。
1概述联合国早在1977年2月就向全世界发出警告“水不久将成为一个重要的全球性危机”。
如今,全世界面临水资源危机,产生的原因主要包括用水量急剧增加、水污染、水资源开发不合理、浪费严重等几个方面。
随着社会的迅速发展和文明的不断进步,特别是人口的急剧增加,人类对水的依赖程度越来越高,世界用水量急剧增加。
我国是一个水资源短缺的国家,人均水资源量约为2200 m3,约为世界平均水平的四分之一.而且,我国用水浪费严重,水资源利用效率较低.目前,我国农业用水利用率仅为40%~50%,灌溉用水有效利用系数只有0。
4左右.工业方面,工业用水重复利用率低,仅为20%~40%,单位产品用水定额高。
城市生活用水方面,供水管网和卫生设备的漏水是形成浪费的主要原因,我国城市供水管网的漏水量约占全部供水量的10%左右.此外,我国产业结构不合理,高耗水量行业发展集中,生产管理水平低,生产用水浪费严重;人们思想认识模糊,缺乏危机感,节水意识差,城市生活用水、家庭用水浪费现象普遍;缺少全局控制,违反生态规律发展,出现掠夺式开发、浪费式利用、混乱式管理;水的重复利用率低,相关法律、制度不健全,都是我国水资源危机出现的原因。
中水回用,是解决城市水资源危机的重要途径,也是协调城市水资源与水环境的根本出路,生活污水处理回用,既能减小对地下水的开采,又能给我们带来一定的经济效益。
中水是指各种排水经处理后,达到规定的水质标准,可在生活、市政、环境等范围内杂用的非饮用水。
因为它的水质指标低于生活饮用水的水质标准,但又高于允许排放的污水的水质标准,处于二者之间,所以叫做“中水".由于“水危机”的困扰,许多国家和地区积极着手巩固和加强节水意识以及研究城市废水再生与回用工作.城市污水回用就是将城市居民生活及生产中使用过的水经过处理后回用。
有两种不同程度的回用:一种是将污水处理到可饮用的程度,而另一种则是将污水处理到非饮用的程度.对于前一种,因其投资较高、工艺复杂,非特缺水地区一般不常采用。
污水处理厂中水回用方案1. 引言随着城市化进程的加快和水资源短缺问题的日益突出,水回用成为一种有效的解决方案。
污水处理厂中的水回用方案可以有效地减少水资源的消耗,同时减轻污水处理厂的负荷。
本文将针对污水处理厂中的水回用方案进行详细介绍和讨论。
2. 污水处理厂中的水回用方案2.1. 处理过程污水处理厂中的水回用方案需要经历以下处理过程:1.初级处理:包括网格过滤、沉砂池和均化池等处理工艺,目的是去除大颗粒物质和混合物。
2.生化处理:利用微生物对污水中的有机物进行降解和转化,常见的处理工艺有活性污泥法和膜生物反应器法。
3.二次沉淀:通过引入混凝剂将细小悬浮物聚结成较大颗粒物,以便于沉降和过滤。
4.过滤:利用滤材对水进行过滤,去除残留的悬浮物和微生物。
5.消毒:通过加入消毒剂(如氯或紫外线照射)杀灭水中的微生物,以确保水的安全性。
2.2. 水回用方案污水处理厂中的水回用主要包括工业回用和市政回用两种方案。
2.2.1. 工业回用工业回用是指将处理过的污水用于冶金、化工、造纸等工业生产过程中的水回用。
在工业回用过程中,需要对水进行再次处理,以满足不同工业生产对水质的要求。
常见的处理方法包括:•颗粒物过滤:通过滤器对水中的颗粒物进行过滤,以防止对生产设备的损坏。
•溶解氧增加:通过加氧设备对水中的溶解氧进行增加,以满足一些工艺过程对溶解氧的要求。
•pH调节:通过加入酸碱试剂对水的pH值进行调节,以适应不同工艺对水质pH值的要求。
2.2.2. 市政回用市政回用是指将处理过的污水用于城市景观绿化、公园灌溉、环境湖泊等市政用水的回用。
市政回用主要通过下述方法进行处理:•微生物处理:利用微生物处理设备对水中的有机物进行降解,以保证回用水的质量。
•深度过滤:通过滤材对水进行深度过滤,去除微小颗粒物和余氯。
•紫外线消毒:利用紫外线照射杀灭水中的细菌和病毒,确保回用水的安全性。
3. 污水处理厂中水回用的优势和挑战3.1. 优势污水处理厂中的水回用具有以下优势:•节约水资源:可以减少对自然水源的依赖,提高水资源利用率。
回用水处理技术、水质标准和回用方式回用水处理技术、水质标准和回用方式摘要本文概述了不同回用方式所要求的回用水质和处理技术之间的关系。
根据水回用的用途不同,可采取一系列的水质标准和相关的处理方法。
一些农业水回用中,公众不应接触回用水,或者所灌溉的作物不是被人类直接食用,或者经过深加工处理后才被人食用。
对于这一类回用水,基本的二级处理,甚至更低级的处理就足够了。
生物塘处理系统不仅可以将污水中可生物降解的有机物质稳定化,并进行消毒,而且还使水处理系统中附带具有季节性贮存水的作用,把供水与农业需水配合得更紧密。
任何情况下都应控制工业废水中有毒物质,不准工业排放物进入准备再生的污水收集系统和(或)要求工厂在排入集水系统之前去除有毒物质。
关键词回用水处理技术水质标准回用方式经适当程度消毒后的二级出水(100-1000个粪性大肠菌群/100mL)广泛适用于各种用途,包括限制接触性回用(如某些灌溉方式和非接触性景观用水)、环境修复和许多工业应用。
有些形式的环境修复要求去除营养物质,提高消毒水平。
回用水用作工业冷却水时,需去除硬度、氨和溶解性固体。
当用作给水补充之前要求有一系列的处理过程,要取决于原有供水对回用水的稀释程度和是否形成处理而定,例如回用水流经土壤后汇入原水源即可认为是行成处理工序。
目前,许多回用水工程正在运用膜处理技术生产回用水。
其中一种为采用二级出水作为原水,经过微滤(予处理)、反渗透、有时加上紫外线消毒。
微滤膜和超滤膜也可并入生物处理工艺,取代传统的二沉池。
1.简介目前存在许多水的再生和回用方法并在实践中正常运作(美国EPA,1992),每一种使用方式都有不同的水质要求,因此也要求不同的处理水平。
表1总结了常用的回用水使用方式和所要求的相应的处理水平,从最高水平到最低水平处理都有所涉及。
本文将论述不同的使用方式和相应的处理方法,还将讨论一些新出现的处理技术。
2.非食用型作物和深加工型食用作物的农业回用水回用水可以灌溉人类并不直接消费的各种作物,如灌溉那些动物食用的作物(苜蓿、青草、高粱、玉米、大豆等各种饲料作物)和需要深加工才可食用的作物(如小麦、也许还有大米)。