某小区热力外网工程设计方案
- 格式:doc
- 大小:30.50 KB
- 文档页数:2
室外热力管网施工方案室外热力管网施工方案是指在室外进行热力管道的敷设和安装工作的详细计划和方法。
它包括了工程前期准备、施工组织设计、管线敷设、管道安装、管道保护等各个环节和具体措施的安排。
下面是一份针对室外热力管网施工的方案,共计1200字左右。
一、工程前期准备1.安全准备:提前组织人员参加相关安全培训,并购买必要的安全防护装备和工具。
2.施工设备准备:调查研究施工场地的情况,购买或租赁必要的施工设备,如挖掘机、压缩机等。
3.材料采购:根据设计需要和实际情况,准备各项管道材料、连接器材、绝缘材料等。
二、施工组织设计1.组织结构:设立项目部,明确项目经理、施工队长、安全员、质量员等岗位,并确定各岗位的职责和权限。
2.工期计划:根据工程量和人力资源,编制详细的施工工期计划,并确保施工进度的可行性和合理性。
3.质量控制:明确质量控制的要点和流程,并建立相应的监测和纠正机制。
4.安全管理:制定详细的安全管理方案,包括安全培训、安全防护、事故应急预案等。
5.人员需求:根据工程量和施工进度,确定所需施工人员的数量和岗位需求,进行人员招聘和培训。
三、管线敷设1.地质勘察:对施工场地进行详细的地质勘察,了解地下管线和地质情况,确定敷设方案。
2.挖掘施工:根据设计要求和实际情况,进行挖掘施工,确保管道的准确位置和埋深。
3.管道敷设:根据管道设计图纸和要求,进行管道敷设,包括主管道和支管道的敷设。
4.管道连接:采用焊接、夹持或螺纹连接等方式,确保管道的连接牢固、密封性良好。
5.填埋工作:在管道敷设完成后,进行填埋工作,保护管道免受外界影响和损坏,同时进行管道标识和标志。
四、管道安装1.设备选型:根据设计要求和实际情况,选择合适的热力设备,包括锅炉、热交换器、阀门和泵等。
2.设备安装:按照设备安装图纸和说明书,进行设备的安装和连接,确保设备的正常运行和良好的工作状态。
3.调试试运行:在设备安装完成后,进行调试试运行,检查设备的运行情况和性能参数,确保设备的正常使用。
采暖外网工程工作方案一、项目建设背景及意义采暖外网是指在现有热电联产系统基础上,通过利用地源热泵、太阳能等新能源技术,进行对外供热系统进行扩建改造,将住宅区、商业区、工业区等区域的采暖设施纳入统一的热网系统中,实现能源的共享和节约。
采暖外网工程的建设对于推动新能源利用、节能减排、城市环境改善等方面具有重要的意义。
本项目选取某市区域为示范区进行采暖外网工程建设,项目规模为xxx万平方米,涉及住宅小区、商业综合体、办公楼等多种建筑类型。
通过采暖外网工程,不仅可以提高热能利用效率,减少二氧化碳排放,还可以满足群众对采暖舒适度的需求,促进区域经济发展和新能源产业的转型升级。
二、项目建设内容及技术方案本项目的建设内容主要包括:取暖源调整改造工程、管网及设备改造工程、智能化控制系统建设等几部分。
1. 取暖源调整改造工程取暖源调整改造工程主要包括地源热泵、太阳能热水系统、余热利用系统等。
通过调整现有的取暖源设施,引入新能源技术,提高取暖设施的利用效率,实现能源的多元化利用,减少碳排放,降低取暖成本。
2. 管网及设备改造工程管网及设备改造工程主要包括管网改造、换热站改造、泵站改造等。
在原有的管网设施基础上进行扩建改造,提高管网的输热效率,增加换热站和泵站,增加系统的可靠性和稳定性。
3. 智能化控制系统建设智能化控制系统建设主要包括远程监控系统、智能调度系统等。
通过对系统的智能化改造,实现对取暖设施的实时监控及调度,提高系统的管理效率和运行稳定性。
三、项目建设过程及主要工作内容1. 前期工作(1)项目论证及规划设计:组织专家对项目进行前期论证,确定项目规模、建设方案等;编制项目规划设计方案,报批相关部门。
(2)前期准备:确定项目建设范围、招标条件等;组织招标、确定承包单位。
2. 中期工作(1)取暖源调整改造工程:实施地源热泵、太阳能热水系统等设施的调整改造工作;引入新设备,提高设备利用效率。
(2)管网及设备改造工程:对原有管网设施进行改造扩建;增加换热站和泵站,提高系统的输热效率。
采暖外网管线工程预算方案一、项目概述本项目为某社区居民区采暖外网管线改造工程,主要包括采暖外网管线的更新、改造和维护,以及相关设备设施的升级和完善。
通过本次工程,将提高社区使用热力的效率,改善供热设施,提升居民生活质量。
二、工程建设范围1、外网管线更新:将老旧、损坏的外网管线进行更换,确保管线正常运行。
2、设备设施升级:对供热设备、阀门、配件等进行升级,以提高供热效率和节能。
3、管线维护:对已经运行的管线进行维护,确保管线的正常运行。
4、新增设备设施:根据实际情况新增供热设备、阀门等设施,以满足居民需求。
三、工程概算根据工程建设范围和相关要求,初步确定本次采暖外网管线工程的概算如下:1、外网管线更新工程1.1、管线材料费用:100万元1.2、人工费用:80万元1.3、设备设施购置费用:50万元1.4、其他费用:20万元1.5、小计:250万元2、设备设施升级2.1、设备设施购置费用:150万元2.2、安装费用:50万元2.3、人工费用:60万元2.4、其他费用:30万元2.5、小计:290万元3、管线维护3.1、材料费用:50万元3.2、人工费用:30万元3.3、其他费用:10万元3.4、小计:90万元4、新增设备设施4.1、设备设施购置费用:50万元4.2、安装费用:20万元4.3、人工费用:30万元4.4、其他费用:10万元4.5、小计:110万元四、费用总计综合以上工程概算,本次采暖外网管线工程的总概算为:250万元+290万元+90万元+110万元=740万元。
五、预算细则1、招投标费用:10万元2、工程施工管理费用:50万元3、安全生产费用:20万元4、工程设计费用:30万元5、项目监理费用:40万元6、工程保修费用:30万元六、工程实施计划1、工程启动:项目启动后,立即进行供热管网现状的调查和测量,制定出具体实施计划。
2、设备设施采购:按照实施计划,选定供应商,购置设备设施。
3、施工实施:按照实施计划,对管线进行更新改造,对设施进行升级完善。
小区供热外网工程课程设计一、课程目标知识目标:1. 让学生理解小区供热外网工程的基本概念,掌握供热系统的组成、工作原理及其在民用建筑中的应用。
2. 使学生了解并掌握小区供热外网工程的设计原则、施工流程及验收标准。
3. 帮助学生了解我国供热政策、技术规范及相关法规。
技能目标:1. 培养学生运用CAD等软件进行小区供热外网工程图纸的绘制与识图能力。
2. 提高学生分析和解决小区供热外网工程实际问题的能力。
3. 培养学生进行项目协调、沟通与团队协作的能力。
情感态度价值观目标:1. 培养学生对小区供热外网工程领域的兴趣,激发学生热爱专业、勤奋学习的态度。
2. 增强学生的环保意识,认识到节能减排在供热工程中的重要性。
3. 培养学生遵守职业道德,具备高度的社会责任感,关注民生问题,为我国供热事业的发展贡献力量。
本课程针对高年级学生,结合课程性质、学生特点和教学要求,明确以上课程目标。
在教学过程中,将目标分解为具体的学习成果,以便进行教学设计和评估。
通过本课程的学习,使学生具备扎实的理论基础和实践能力,为将来从事相关工作打下坚实基础。
二、教学内容1. 小区供热外网工程概述- 供热系统组成及其工作原理- 供热在民用建筑中的应用- 我国供热政策、技术规范及相关法规介绍2. 小区供热外网工程设计- 设计原则与要求- 热负荷计算方法- 管网布局及设备选型3. 小区供热外网工程施工- 施工流程及关键技术- 施工组织与管理- 质量控制与验收标准4. 小区供热外网工程案例分析- 典型工程案例介绍- 案例分析及讨论- 问题解决与经验总结5. 供热外网工程图纸绘制与识图- CAD软件操作技巧- 图纸绘制规范- 识图能力培养6. 供热外网工程实践与参观考察- 实践教学活动安排- 参观考察小区供热外网工程- 实际操作与体验本教学内容根据课程目标制定,涵盖小区供热外网工程的理论与实践环节。
明确教学大纲,安排合理进度,确保内容的科学性和系统性。
摘要近几年来,我国的集中供热事业发展迅速,整个供热行业以一种蓬勃向上的姿态向前发展。
供热工程是城市建设过程中的重要组成部分。
国家对计量供热方式的大力推行,给供热行业注入了新鲜的血液,这是一次质的改变,但是同时也伴随着新的问题出现,计量供热方式是在节能环保的大潮流下产生的,供热公司如何在这种计量方式下经济合理的调控供热系统,减少经济损失,是实行计量供热后我们面临的又一重大难题。
本设计名为大同市御东新区瑞兴花园小区供热外网及换热站设计。
该小区项目总建筑面积75166.84(含架空层建筑面积),计容面积115092.12m2,其中住宅面积99167.92m2,沿街商业及小区配套建筑面积15924.2m2。
项目主要由8 幢高层住宅,沿街商业及小区配套组成,最高建筑高度为96.60m。
本设计的主要内容是大同市瑞兴花园小区换热站及外网设计。
设计以节能建筑的热指标为计算基础,为了对热网实现精准调控,我们本着经济合理的原则,制定经济的供热系统方案,为计量供热做好充分的准备。
关键词:住宅小区;集中供热;换热站ABSTRACTIn recent years, the central heating in China has developed rapidly, the heating industry in a gesture that forward.The heating engineering is an important part in the process of urban construction.Countries to push forward the way of heat metering, injected fresh blood into the heating industry, this is a qualitative change, but also with new problems appear at the same time, heat metering method is generated in energy conservation and environmental protection tide flow and how heating company under this way of measuring economic and reasonable regulation of heating systems, reduce the economic loss, is we face after heat metering is a major problem.This design called royal ruixing east new district of datong city garden residential area design of outside heat supply network and heat transfer station.The community projects with a total construction area of 75166.84 (including stilt floor construction area), project covers an area of 115092.12 m2, including residential area of 99167.92 m2, commercial and residential construction area of 15924.2 m2 along the street.Project is mainly composed of eight high-rise residential, commercial and residential along the street, the highest building height of 96.60 m.The main content of this design is ruixing datong garden district outside the heat exchange station and web design.Design based on energy-saving building thermal indicators, in order to realize accurate control of network, we in line with the principle of economy and rationality, economic heating system plan, to be prepared for the heat metering.Keywords: residential area;The central heating;the heat exchange station目录1 设计任务书 (1)1.1设计题目 (1)1.2设计原始资料: (1)1.2.1大同市气象资料 (1)1.2.2土建资料 (1)1.2.3热媒 (1)1.3设计内容 (1)1.4设计要求 (2)1.5设计目的 (2)2 热负荷的计算 (3)2.1采暖设计热负荷的计算 (3)2.2 年负荷Q a n 的计算 (5)3 供热系统方案的选择 (8)3.1换热站的位置 (8)3.2供热管道的平面布置形式 (8)3.3供热管网布置原则 (9)3.4供热管网的敷设方式 (9)3.5供热管道的保温和防腐 (11)4 供暖管网的水力计算 (12)4.1供暖管网的水力计算 (12)4.1.1水力计算方法 (12)4.1.2水力计算的步骤 (12)4.1.3 本设计水力计算过程 (15)4.2水压图的绘制 (22)5 设备的选型 (25)5.1热力站形式 (25)5.2热力站原理及设备 (25)5.3热力站分类 (25)生活热水换热站 (26)5.4换热站的连接方式 (26)5.5换热器基本类型与构造 (27)5.5.1换热器基本类型 (27)5.5.2间壁式换热器基本构造与分类 (28)5.6换热器选型计算 (29)5.7水泵的选型计算 (31)5.7.1循环水泵的选择 (31)5.7.2补给水泵的选型 (32)5.8补水箱的选择 (34)5.9除污器的选择 (34)5.10水处理设备的选择 (35)6 集中供热系统的运行调节 (36)参考文献 (37)致谢 (38)附录 (39)附录一 (39)集中供热系统供热外网的管道布置要求 (39)附录二 (40)供热管道的保温及防腐 (40)附录三 (40)水压图绘制的步骤: (40)附录四 (41)补给水泵定压 (41)附录五 (41)集中供热系统的运行调节 (41)1 设计任务书1.1设计题目大同市御东新区瑞兴花园小区供热外网及换热站设计1.2设计原始资料:1.2.1大同市气象资料冬季室外供暖计算温度:t w’=-17℃采暖期日平均温度:t p.j=-5.2℃冬季主导风向:NNW冬季室外平均风速:v p.j= 2.9m/s冬季采暖天数:141d最大冻土深度:186m1.2.2土建资料小区平面布置图,包括建筑物分布、建筑面积、建筑用途、地形标高和位置坐标。
热力有限公司供热外网工程施工组织设计供热外网工程是指将热源与用户之间的供热管线和设施。
在供热外网工程施工组织设计中,需要全面考虑工程的工期、施工方法、施工组织、安全措施、质量保证等方面,以确保工程能够按时、安全、高质量地完成。
以下是热力有限公司供热外网工程施工组织设计的一个示例,供参考:一、工程概述根据热力有限公司与用户的供热需求,本次供热外网工程的目标是将热源与用户之间的供热管线和设施,以确保供热系统的正常运行。
本工程包括供热管线的敷设、管道连接、焊接、试压等工作。
二、工程组织架构本工程设立一个工程部,负责对该工程进行全面管理。
工程部包括总工程师、技术员、安全员等,总工程师负责工程的总体组织、协调和监督工作的进行。
三、工程计划与进度根据供热需求和工程的实际情况,制定了详细的工程计划与进度安排。
工程部将根据计划进行任务分解、分期实施,确保工程按时完成。
同时,工程部将建立日常工作会,定期评估和调整工程进度,及时解决工程中遇到的问题。
四、施工方法与工艺流程本工程采用分期施工的方式进行,首先进行供热管线的敷设和焊接工作,然后进行管道连接和试压工作。
具体施工方法如下:1.敷设工作:根据设计图纸和实地勘测结果,确定供热管线的敷设路径和深度。
采用开挖方法将地面开挖至标准深度后,进行管线的敷设,确保管线的平直和稳固。
2.焊接工作:采用氩弧焊接工艺进行管道的连接。
焊接质量需达到相应的焊接标准,确保焊缝的强度和密封性。
3.连接工作:采用橡胶密封圈或弹性接头等连接方式进行管道的连接,确保管道之间的密封性。
4.试压工作:在管道焊接和连接完成后,进行管道的试压工作。
试压压力需达到设计要求,保持一定时间,确保管道的密封性和安全性。
五、安全措施在施工过程中,需要严格按照相关的安全规范和操作规程进行操作,确保施工人员的人身安全和工程的安全。
具体安全措施如下:1.施工人员需佩戴符合要求的个人防护用品,如防护鞋、手套、安全帽等。
目录目录 (I)第一章课程任务书...................................................................................................... - 1 -1.1 已知条件 ............................................................................................................. - 1 -1.2 课程设计内容 ..................................................................................................... - 1 -1.3 具体要求 ............................................................................................................. - 1 - 第二章供热系统的热负荷.......................................................................................... - 1 -2.1供暖设计热负荷的计算 ...................................................................................... - 1 -2.1.1热负荷的计算 ............................................................................................ - 1 -2.1.2流量的计算 ................................................................................................ - 1 -2.2热负荷图 .............................................................................................................. - 1 -2.2.1供暖热负荷随室外温度变化曲线 ............................................................ - 1 -2.2.2热负荷延续时间图 .................................................................................... - 2 - 第三章集中供热系统.................................................................................................. - 5 -3.1 供热系统原理图的确定 ..................................................................................... - 5 -3.2热水供热系统的调节及调节曲线的绘制 .......................................................... - 5 - 第四章管网布置.......................................................................................................... - 7 -4.1热源位置 .............................................................................................................. - 7 -4.2管网的走向 .......................................................................................................... - 7 -4.3管径的选择 .......................................................................................................... - 7 -4.4管道的敷设 .......................................................................................................... - 7 -4.5阀门的设计 .......................................................................................................... - 8 -4.6检查井的设置 ...................................................................................................... - 8 -4.7支架及补偿器的设置 .......................................................................................... - 8 - 第五章水力计算.......................................................................................................... - 9 -5.1水力计算的步骤 ................................................................................................ - 11 -5.2水压图的绘制 .................................................................................................... - 11 -5.2.1水压图的绘制原则 .................................................................................. - 11 -5.2.2绘制水压图的步骤 .................................................................................. - 12 -5.3 水泵的选择 ....................................................................................................... - 12 -5.3.1循环水泵的选择 ...................................................................................... - 12 -5.3.2补给水泵的选择 .................................................................................... - 13 - 参考文献 ................................................................................................ 错误!未定义书签。
一、项目背景随着我国城市化进程的加快,居民生活水平的不断提高,对于居住环境的要求也越来越高。
为了满足居民对于舒适居住环境的需求,本工程拟对某住宅小区外网采暖系统进行改造升级,以提高供热效果和节能环保水平。
二、工程概况1. 工程名称:某住宅小区外网采暖系统工程2. 工程地点:某住宅小区3. 工程规模:共计改造采暖面积XX万平方米4. 工程内容:包括外网管道改造、换热站改造、控制系统升级等5. 工程工期:预计XX个月三、施工方案1. 施工准备(1)组织施工队伍,明确各工种人员职责;(2)对施工人员进行技术培训和安全教育;(3)准备好施工所需材料、设备、工具等;(4)编制详细的施工方案和进度计划。
2. 施工流程(1)外网管道改造1)对原有管道进行拆除,包括阀门、管道等;2)根据设计图纸,重新敷设管道,确保管道连接牢固、严密;3)对管道进行防腐处理,提高管道使用寿命;4)安装阀门、补偿器等附件,确保管道运行稳定。
(2)换热站改造1)拆除原有换热站设备,包括锅炉、水泵、管道等;2)根据设计图纸,重新安装设备,确保设备安装位置合理、连接牢固;3)对设备进行调试,确保设备运行正常;4)对换热站进行保温处理,提高能源利用率。
(3)控制系统升级1)拆除原有控制系统,包括显示屏、控制器等;2)根据设计图纸,重新安装控制系统,确保控制系统运行稳定;3)对控制系统进行调试,确保控制系统功能完善;4)对控制系统进行网络安全防护,确保系统安全可靠。
3. 施工质量控制(1)严格执行国家及地方相关标准和规范;(2)对施工材料、设备进行严格检验,确保质量合格;(3)加强施工现场管理,确保施工质量;(4)做好施工记录,为工程验收提供依据。
4. 施工安全管理(1)制定详细的施工安全措施,确保施工人员安全;(2)加强施工现场安全检查,及时发现并消除安全隐患;(3)做好施工人员安全教育,提高安全意识;(4)确保施工现场消防安全,防止火灾事故发生。
小区室外热力管网工程施工组织设计某小区室外热力管网工程施工组织设计一、工程概况:本工程为某小区室外热力管网工程,采用D219及以上的螺旋焊接钢管和无缝钢管,管道连接为焊接,采用聚氨脂保温。
二、施工部署:我们将集中力量在较短时间内做好图纸会审工作,并根据现场实际情况制定安装施工方案。
1.质量目标:严格按照施工图纸、国家标准和验收规范组织施工,确保分项工程一次合格率100%,实现工程质量达到国家工程建设质量评定标准优良标准。
2.管理目标:发挥公司传统的管理优势,实现现代化管理,保证工程在管理、质量、文明、作风上均创出一流水平,文明施工,实现管理一流,争创优质工程。
3.工期目标:服务甲方,满足甲方的要求,确保工程优质按期完工。
4.协作目标:抢困难,让方便,识大体,顾大局,服从甲方的指挥,实现协作配合一流。
5.承诺:信守合同,顾客至上,提供优质服务,建造精品。
三、施工组织机构:1.本工程实行项目法施工,设立项目管理组织机构,并选入富有施工经验的人员组成领导班子。
2.确定工程施工顺序,确定主要项目施工方法及屋架吊装方案的选择。
3.做好各施工阶段的劳动力组织安排,保证按计划、分期限、分批进场确保工期。
四、主要项目施工方法和技术保证措施:1.施工准备:1.1 材料要求:碳素钢管、无缝钢管应有产品合格证,管材不得弯曲、锈蚀、有飞刺、重皮及凹凸不平等缺陷。
管件、阀门、附属装置等也应符合现行标准,有出厂合格证。
1.2 主要机具:砂轮锯、套丝机、台钻、电焊机、煨弯器等。
1.3 作业条件:安装无地沟管道时,必须在沟底找平夯实,沿管线铺设位置无杂物,沟宽及沟底标高尺寸复核无误。
改写后的文章:本文介绍了某小区室外热力管网工程的施工组织设计。
该工程采用D219及以上的螺旋焊接钢管和无缝钢管,管道连接为焊接,采用聚氨脂保温。
施工部署方面,我们将集中力量在较短时间内做好图纸会审工作,并根据现场实际情况制定安装施工方案。
为了确保工程质量,我们严格按照施工图纸、国家标准和验收规范组织施工,实现分项工程一次合格率100%。
室外热力管网施工方案1 范围本工艺标准适用于民用建筑群(小区)饱和蒸汽压力不大于0.8MPa,热水温度不超过150℃的室外采暖及生活热水供应管道(包括直埋、地沟或架空管道)安装工程。
2 施工准备2.1 材料要求:2.1.1 管材:碳素钢管、无缝钢管、镀锌碳素钢管应有产品合格证,管材不得弯曲、锈蚀、无飞刺、重皮及凹凸不平等缺陷。
2.1.2 管件符合现行标准,有出厂合格证、无偏扣、乱扣、方扣、断丝和角度不准等缺陷。
2.1.3 各类阀门有出厂合格证,规格、型号、强度和严密性试验符合设计要求。
丝扣无损伤,铸造无毛刺、无裂纹,开关灵活严密,手轮无损伤。
2.1.4 附属装置:减压器、疏水器、过滤器、补偿器、法兰等应符合设计要求应有产品合格证及说明书。
2.1.5 型钢、圆钢、管卡、螺栓、螺母、油、麻、垫、电气焊条等符合设计要求。
2.2 主要机具:2.2.1 机具:砂轮锯、套丝机、台钻、电焊机、煨弯器等。
2.2.2 工具:套丝板、压力案、管钳、活板子、手锯、手锤、台虎钳、电气焊工具、钢卷尺、水平、小线等。
2.3 作业条件:2.3.1 安装无地沟管道,必须在沟底找平夯实,沿管线铺设位置无杂物,沟宽及沟底标高尺寸复核无误。
2.3.2 安装地沟内的干管,应在管沟砌完后,盖沟盖板前,安装好托吊卡架。
2.3.3 安装架空的干管,应先搭好脚手架,稳装好管道支架后进行。
3 操作工艺3.1 工艺流程:3.1.1 直埋:→防腐保温放线定位→→挖管沟→管道敷设→补偿器安装→水压试验→→砌井、铺底砂防腐保温修补→填盖细砂→回填土夯实3.1.2 管沟:放线定位→挖土方→砌管沟→卡架制安装→管道安装→补偿器安装→水压试验→防腐保温→盖沟盖板→回填土3.1.3 架设:放线定位→卡架安装→管道安装→补偿器安装→水压试验→防腐保温3.2 直埋管道安装:3.2.1 根据设计图纸的位置,进行测量,打桩、放线、挖土、地沟垫层处理等。
3.2.2 为便于管道安装,挖沟时应将挖出来的土堆放在沟边一侧,土堆底边应与沟边保持0.6~1m的距离,沟底要求打平夯实,以防止管道弯曲受力不均。
供热外网工程施工方案一、项目背景为了更好的解决城市供热问题,提高供热能力,改善供热环境,贯彻国家节能减排政策,提高能源利用效率,本工程将对城市现有的供热外网进行改造和升级。
通过改造,将原有供热外网提升至更高的性能指标,以满足城市居民对舒适供热的需求,同时降低供热成本,实现经济、环保和社会效益的双赢。
二、工程概况1. 工程地点:本工程位于城市中心区域。
2. 工程范围:包括供热管道、换热站、阀门、附件、管道支架等。
3. 工程目标:提升供热外网的性能指标,满足城市居民对舒适供热的需求。
4. 工程内容:对供热外网进行改造和升级,优化供热网络结构,提高系统运行效率。
5. 工程期限:本工程计划在12个月内完成。
三、工程施工方案1. 施工组织(1)成立项目部,设立相关的部门和班组,合理安排施工人员。
项目部负责工程施工的组织协调和管理工作,部门和班组负责具体的施工任务。
(2)划分施工区域,明确责任。
根据工程图纸和实际情况,将工程划分为若干个施工区域,每个施工区域设立负责人,明确责任、分工协作。
2. 施工准备(1)制定施工计划,明确目标。
根据工程的实际情况和要求,编制详细的施工计划,包括施工时间、工序安排、人员配备、物资准备等内容,确保施工进度和质量。
(2)购置施工设备和物资。
根据施工计划,组织采购所需的施工设备和物资,确保施工所需的设备和物资的准备齐全,保证施工的顺利进行。
3. 施工安全(1)制定安全施工方案,落实安全措施。
根据工程的实际情况,制定安全施工方案,明确安全管理措施和责任单位,对施工过程中可能存在的安全隐患进行全面排查,确保施工安全。
(2)设立安全监督机构,进行安全培训。
对施工人员进行安全培训,增强施工人员的安全意识和技能,提高施工安全水平,确保施工过程中的安全。
4. 施工技术(1)根据工程图纸,进行施工布置。
根据工程图纸的要求,进行施工布置,包括供热管道的敷设、换热站的安装、阀门的调试等工序,确保施工准确无误。
安徽建筑工业学院环能工程学院课程大作业说明书课程《供热工程》班级姓名学号指导教师2012年1月目录1工程概况 (2)1.1工程概况 (2)1.2设计内容 (2)2设计依据 (2)2.1 设计依据 (2)2.2 设计参数 (2)3负荷概算 (2)3.1 用户负荷 (3)3.2 负荷汇总 (3)4热交换站设计 (3)4.1换热器 (3)4.2 蒸汽系统 (3)4.3 热水系统 (3)4.4定压系统 (4)5室外管网设计 (4)5.1 管线布置与敷设方式 (4)5.2 热补偿 (8)5.3 管材与保温 (10)5.4 热力入口 (10)6 课程作业总结 (10)7 参考资料 (11)1 工程概况1.1 工程概况1.1.1 工程名称:某小区供热系统1.1.2 地理位置:合肥地区1.1.3 本工程为合肥某小区的供热系统设计,为小区的住宅楼和公寓楼采暖提供热源,各热用户如下表1:表1 热用户1.2 设计内容某小区换热站及室外热网方案设计2设计依据2.1 设计依据1.《城市热力网设计规范》CJJ34-20022.《采暖通风与空调设计规范》GB0019-2003,3.《城市热力网设计规范》CJJ34-2002,4.《公共建筑节能设计标准》50189-2005,5.《城市直埋供热管道工程技术规范》CJJ/T81-98,2.2 设计参数冬季采暖设计供水温度80℃,回水温度60℃。
3 热负荷概算3.1热用户热负荷概算一、确定总负荷:利用公式可以计算出各栋楼的热负荷,汇总列入下表2:表2 热负荷3.2 负荷汇总由上表计算的各用户的热负荷可以汇总得小区的总热负荷为:2348.5(KW)4 热交换热站设计4.1 换热器4.1.1 换热器选型及台数确定本小区的总热负荷为2348.5KW,由于正常情况下不会满负荷运行,所以选一台换热器不合适,而且考虑备用,所以选择单台换热量900kw的换热器三台。
4.2 蒸汽系统热源:小区由市政热网提供饱和蒸汽,蒸汽压力为0.6MPa。
某小区供热外网及换热站工程设计摘要本设计名称是白山市某小区的室外供热管网和换热站工程设计。
该小区的建筑面积为185073 m2,总热负荷为8328285W。
基本参数:一次网供回水温度为110/70℃,小区所有建筑物进行低温水供暖,要求供回水温度80/60℃。
本次设计主要有工程概述、热负荷计算、供热方案确定、管道水力计算、系统定压方式的确定和水压图绘制、设备及附件的选择计算,换热站设计及相关设备的选择计算等几方面的内容。
除上述内容外,在计算说明书中尚应包括如下一些曲线:热负荷随室外温度变化曲线,即热负荷延续图。
调节曲线(含水温变化和水量变化曲线)水泵选择曲线等。
本次设计要求使用CAD绘出图纸,其中包括设计施工说明、主要设备附件材料表,管网平面布置图,管道纵断面图,横断面图、水压图、检查井详图,热力管道平面图、换热站设备平面布置图、换热站管道平面布置图、换热站流程图及剖面图等。
在热网设计合理,安装质量符合标准和操作维修良好的条件下,热网能够顺利地运行,尤其对于只有供暖用户的热网,在非采暖期停止运行期内,可以维修并且排除各种隐患,以满足在采暖期内正常运行的要求。
关键词:供热负荷干线管网支线管网换热站供暖系统目录前言┅┅┅┅┅┅┅┅┅┅┅┅┅┅┅┅┅┅┅┅┅┅┅┅┅┅┅┅┅┅┅┅1 第一章工程概述第一节原始资料┅┅┅┅┅┅┅┅┅┅┅┅┅┅┅┅┅┅┅┅┅2第二节热源状况介绍┅┅┅┅┅┅┅┅┅┅┅┅┅┅┅┅┅┅┅2第二章热负荷计算第一节供热系统┅┅┅┅┅┅┅┅┅┅┅┅┅┅┅┅┅┅┅┅┅3第二节绘制热负荷延续时间图┅┅┅┅┅┅┅┅┅┅┅┅┅┅┅7第三章供暖方案的确定第一节热媒的选择及参数的确定┅┅┅┅┅┅┅┅┅┅┅┅┅10第二节供热管网的平面布置┅┅┅┅┅┅┅┅┅┅┅┅┅┅┅12第三节管网附件设计原则┅┅┅┅┅┅┅┅┅┅┅┅┅┅┅┅14第四章管道水力计算第一节管道水力计算图绘制┅┅┅┅┅┅┅┅┅┅┅┅┅┅┅16第二节计算管路的确定、比摩阻的选择┅┅┅┅┅┅┅┅┅┅┅16第三节阻力平衡的原则及措施┅┅┅┅┅┅┅┅┅┅┅┅┅┅18第四节水力计算┅┅┅┅┅┅┅┅┅┅┅┅┅┅┅┅┅┅┅┅19第五章系统水压图及设施的选择第一节系统定压方式及其确定┅┅┅┅┅┅┅┅┅┅┅┅┅┅31第二节水压图的绘制┅┅┅┅┅┅┅┅┅┅┅┅┅┅┅┅┅┅31第三节调节方式及调节曲线的绘制、供热系统工艺设备的选择┅32第四节供热系统供热设备的选择┅┅┅┅┅┅┅┅┅┅┅┅┅35第六章管道保温结构和管网土建措施第一节管道的保温选择和计算┅┅┅┅┅┅┅┅┅┅┅┅┅┅43第二节管沟形式和检查井的确定┅┅┅┅┅┅┅┅┅┅┅┅┅45第七章设计总结设计总结┅┅┅┅┅┅┅┅┅┅┅┅┅┅┅┅┅┅┅┅┅┅┅┅┅49参考文献┅┅┅┅┅┅┅┅┅┅┅┅┅┅┅┅┅┅┅┅┅┅┅┅┅┅┅┅50致谢┅┅┅┅┅┅┅┅┅┅┅┅┅┅┅┅┅┅┅┅┅┅┅┅┅┅┅┅┅┅51前言随着国家计量供热的逐步推行,供热行业面临着新的机遇和挑战。
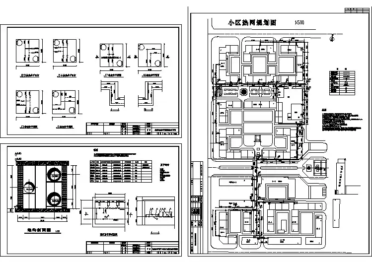
某小区热力外网工程设计方案
热力外网方案选择
室外供热管道的布置可分为架空敷设、地下敷设和直埋的敷设方式。
架空敷设的优点是管道不受地下水的侵蚀,同时管道的寿命长;造价低;有条件使用工作可靠、构造简单的自然补偿器;在运行中易于发现管道事故,维修方便;其缺点是占地面积较多,管道热损失大,不够美观。
地下敷设方式通常又分为通行地沟、半通行地沟和不通行地沟三种形式。
通行地沟敷设方式的优点是维护方便,缺点是投资大、占地面积大。
不通行地沟敷设方式的优点是占地面积小、并能使管道在地沟内自由变形,地沟所耗费的材料较少;缺点是难于发现管道中的缺陷和事故,维护和检修不方便。
半通行地沟的优缺点介于通行地沟和半通行地沟之间。
直埋敷设是把保温后的管道直接埋于地下,从而节省了大量建造地沟的材料、工时和空间;缺点是不易维修,同时对管道的保温材料的导热率、吸水率、电阻率等有较高的要求。
通过以上对室外热力管道敷设方式的对比,综合本小区的特点,即每栋楼和地下车库相连及小区内各楼高度的差别较大,同时为了满足小区景观的要求,小区的地势凹凸不平,为了满足房间的室内温度和运行调节的方便,本小区的外网敷设采用两种方式:①由热交换站引至各栋楼热力入口的二次热媒采用地下车库内架空的敷设方式;②由市政管网引至集中热交换站的一次热媒,只有供水和回水两条管线,从小区的景观要求、管线的施工和经济性等方面考虑,采用直埋的敷设方式均优于其它的室外管网的敷设方式。
外网设计
小区的热源部分由市政热力供给,供回水温度:55-45℃,楼的热媒由热交换站分南北两个方向分别引出。
外网的供热管线通常都比较长,供热管道安装后,当管道内供热介质及周围环境温度发生变化时,将引起管道的热胀冷缩,使管壁内产生巨大的应力,如果此应力超过管材的强度极限,就会使管道造成破坏,在供热管道上安装补偿器可以有效地解决这一问题,而管道的热伸长量是选择补偿器的依据,管道的热伸长量按下式计算:
△L=αL(t2-t1)x1000
△L-管道的热伸长量(㎜)
α-管材的线膨胀系数〖m/m℃〗
L-两固定支架之间的直线距离(m)
t2-供热介质最高温度(℃)
t1-管道安装温度(℃),一般取-5℃
管道热伸长量的大小和管道固定点之间的直线段长度、管材、热媒温度和环境温度有关,除此之外,在设计过程中还注意到管道的热伸长量与管线的埋深及管径均有关。
在热媒温度、环境温度、管材及管道管径均相同的情况下,管道的埋深不同,其对应的直管段的最大长度也不相同,从而管道的热伸长量也就不一样,补偿器的型号也就不一样;同样在热媒温度、环境温度、管材及管道埋深均相同的情况下,管道的管径不同,其对应的直管段的最大长度也不相同,从而管道的热伸长量也不一样,补偿器的型号也就不一样。
而补偿器的正确选择直接影响到外网管道使用的安全性。
在选用补偿器时,应根据敷设条件尽可能采用维修量小、工作可靠和价格较低的补偿器。
为节省投资和提高外网的可靠性,应尽可能利用管道敷设上的自然弯曲段来吸收管道的热伸长变形,在本次外网的设计中,在位于车库内的架空敷设管线上充分利用管道自然弯曲段来吸收管道热伸长变形的这种自然补偿方式,通过管道自然补偿不能满足管道热伸长变形的地方采用了相应的波纹型补偿器,为投资方节约了资金,为施工方减少了施工周期。