焊接常见坡口形式图解
- 格式:docx
- 大小:366.09 KB
- 文档页数:8
焊接常见坡口形式图解
为了保证焊接质量,在焊接前对工件需要焊接处进行的加工,可以气割,也可以切削而成,一般为斜面,有时也为曲面。
比如两块厚10mm的钢板要对焊到一起,为了焊缝牢固,会在板边缘铣出倒角,这个就叫开坡口。
由于材料厚度和焊接质量要求的不同,其焊接接头形式与坡口形状也不尽相同,一般坡口形式分为K型、V型、I型、U 型、X型等。
坡口的几何尺寸
(1)坡口面
待焊件上的坡口表面叫坡口面。
(2)坡口面角度和坡口角度
待加工坡口的端面与坡口面之间的夹角叫坡口面角度,两坡口面之间的夹角叫坡口角度。
(3)根部间隙
焊前在接头根部之间预留的空隙叫根部间隙。
其作用在于打底焊时能保证根部焊透。
根部间隙又叫装配间隙。
(4)钝边
焊件开坡口时,沿焊件接头坡口根部的端面直边部分叫钝边。
钝边的作用是防止根部烧穿。
(5)根部半径
在J形U形坡口底部的圆角半径叫根部半径。
它的作用是增大坡口根部的空间,以便焊透根部。
常见坡口形式
带钝边单边V型坡口
K型坡口
I型坡口
V型坡口
J型坡口
J型坡口
开坡口的主要作用是为了保证焊缝根部焊透,使焊接热源能深入接头根部,以保证接头质量。
同时坡口还能起到调节基本金属与填充金属比例的作用。
(本文来源网络,若涉及版权问题请与小编联系!)。
常⽤地坡⼝形式及焊缝符号表格⽰
三、常⽤的坡⼝形式
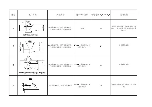
常⽤坡⼝形式包括:Y形坡⼝、VY形坡⼝、带钝边U形坡⼝、I 形坡⼝、V型带垫板坡⼝、Y型带垫板坡⼝、双U型坡⼝带钝边、双Y型坡⼝带钝边、K型坡⼝、I型坡⼝(T接)、Y形坡⼝(T接)、V型带垫板(T接)、单边V形坡⼝(T接)、单边V形带垫板(对接)、I 型坡⼝(搭接)、I型坡⼝(⽓电⽴焊)、V型坡⼝(⽓电⽴焊)、X型坡⼝(⽓电⽴焊)、单边V形坡⼝、带钝边单边V形坡⼝、2/3双Y形坡⼝等21种(见表1)。
焊接过程中,我们根据材质、板厚、焊接⽅法等因素的不同,合理选择不同的坡⼝形式进⾏焊接。
四、焊缝代号
焊缝代号由基本符号、辅助符号、引出线和焊缝尺⼨符号等组成,基本符号和辅助符号在图纸上⽤粗实线绘制,引出线⽤细实线绘制。
1、基本符号
基本符号是表⽰焊缝横截⾯形状的符号,它采⽤近似于焊缝横截⾯形状的符号来表⽰,基本符号表⽰⽅法见表2
基本符号表表2
焊缝尺⼨⼀般不标注。
如果设计要求或⽣产需要注明焊缝尺⼨,焊缝尺⼨符号表⽰⽅法见表4。
焊缝标注时,应注意其标注位置的正确性。
标注位置规定如下:(1)在焊缝符号左边标注:钝边⾼度p,坡⼝⾼度H,焊⾓⾼度K,焊缝余⾼h,熔透深度s,根部半径R,焊缝宽度c,焊点直径d。
(2)在焊缝符号右边标注:焊缝长度l,焊缝间隙e,相
同焊缝数量n。
各种焊缝坡口形式和尺寸大全1 焊缝坡口焊缝坡口即焊缝和材料表面间的引出角,可以去除滋生在焊缝内部有害介质。
适当的焊缝坡口有利于外表面质量与提高焊接强度。
1.1 九种不同焊缝坡口形式1.等宽坡口:就是两个斜面的角度相等的坡口,其斜面成直角。
2.两圆弧坡口:一端连接焊缝,另一端与材料原始表层成直角,其中一端有圆弧曲线,但其角度不同。
3.对锥坡口:两斜面的锥角不等,锥角大的斜面面向焊缝尾端,一般用于两种不同金属板材的联接时,如钢、铝;4.V型坡口:V型坡口是在正常V型坡口上,将其一部分变形为等宽坡口,或者一部分变形为对锥坡口,以此来改变坡口深度。
5.U型坡口:与V型坡口类似,但护角位置比V型坡口更靠近焊缝尾部,是为了更好的保护作用;6.J型坡口:正常的J形坡口斜面在正面观察时可见到J形,也就是上面是圆弧形,下面是直线形,焊接时在焊缝尾底部有一个护角;7.梯形V型坡口:它的坡口斜面由两段组成,一段是锥角小的等宽坡口,一段是锥角大的V型坡口,一般用于厚板。
8.厚板V型坡口:它有两个斜面,并且两个斜面形成一定角度,斜面前面有一定宽度护体,用于厚板;9.弧形坡口:坡口斜面由一段弧形组成,也是专用于厚板的,两端的弧形通常是90度,但是也可以改变角度。
1.2 焊缝坡口尺寸1.焊缝坡口尺寸有等宽尺寸和锥角尺寸两种,等宽尺寸表示两斜面角度相同,焊缝尺寸只需要用一个数字表示;而锥角尺寸则需要两个数字来表示,第一个数字表示较小斜面的角度,第二个数字表示较大斜面的角度。
2.焊缝坡口尺寸一般设置在2度-22.5度之间,根据材料、应力和热影响等因素,可选取合适的焊缝坡口尺寸。
3.焊缝坡口的深度一般小于焊缝的厚度,焊接工艺要求,一般深度应不小于0.5mm;且坡口深度过深,也会导致强度不佳,甚至损害焊接质量,所以要控制好深度。
目前而言,选取合适的焊缝坡口不仅有利于提升焊接性能,也有利于外表面质量与提高焊接强度,从而达到更有效率,更结实稳固的焊接效果。
三、常用的坡口形式
常用坡口形式包括:Y形坡口、VY形坡口、带钝边U形坡口、I 形坡口、V型带垫板坡口、Y型带垫板坡口、双U型坡口带钝边、双Y型坡口带钝边、K型坡口、I型坡口(T接)、Y形坡口(T接)、V型带垫板(T接)、单边V形坡口(T接)、单边V形带垫板(对接)、I 型坡口(搭接)、I型坡口(气电立焊)、V型坡口(气电立焊)、X型坡口(气电立焊)、单边V形坡口、带钝边单边V形坡口、2/3双Y形坡口等21种(见表1)。
焊接过程中,我们根据材质、板厚、焊接方法等因素的不同,合理选择不同的坡口形式进行焊接。
四、焊缝代号
焊缝代号由基本符号、辅助符号、引出线和焊缝尺寸符号等组成,基本符号和辅助符号在图纸上用粗实线绘制,引出线用细实线绘制。
1、基本符号
基本符号是表示焊缝横截面形状的符号,它采用近似于焊缝横截面形状的符号来表示,基本符号表示方法见表2
基本符号表表2
焊缝尺寸一般不标注。
如果设计要求或生产需要注明焊缝尺寸,焊缝尺寸符号表示方法见表4。
焊缝标注时,应注意其标注位置的正确性。
标注位置规定如下:(1)在焊缝符号左边标注:钝边高度p,坡口高度H,焊角高度K,焊缝余高h,熔透深度s,根部半径R,焊缝宽度c,焊点直径d。
(2)在焊缝符号右边标注:焊缝长度l,焊缝间隙e,相同焊缝数量n。
一、埋弧焊焊缝坡口的基本形式和尺寸:序号工件厚度名 称坡口形式和尺寸1 δ=10 Y 形坡口70°4102 δ=12 双Y 形坡口380°80°123 δ=14 双Y 形坡口1475°375°4 δ=16~25 双Y 形坡口70°δ70°35 δ=26带钝边双U 形坡口20°10°10°R 54R 512.32612.36 δ=28 带钝边双U形坡口12.62812.6R54R510°20°10°7 δ=30 带钝边双U形坡口301313R54R510°10°20°8 δ=32 带钝边双U形坡口20°10°10°R54R513.313.3329 δ=34 带钝边双U形坡口3413.713.7R54R510°10°20°10 δ=36 带钝边双U形坡口20°R54R514143610°10°11 δ=38 带钝边双U形坡口10°10°3814.414.4R54R520°12 δ=40 带钝边双U形坡口20°R54R514.714.7410°10°13 δ=44 带钝边双U形坡口R510°10°4415.415.4R5420°14 δ=50 带钝边双U形坡口R5R520°416.516.5510°10°15 δ=12~16带长舌双面单边V形坡口40°40°44δ16 δ=18~22带长舌双面单边V形坡口δ4435°35°17 δ=24 带长舌双面J形坡口30°11.73°R5324418 δ=25 带长舌双面J形坡口4253R53°3°11.919 δ=28 带长舌双面J形坡口12.83°30°R5328420 δ=30 带长舌双面J形坡口4303R53°3°13.4二、手工电弧焊焊缝坡口的基本形式和尺寸:序号工件厚度名称坡口形式和尺寸1 δ=6 Y形坡口80°622 δ=8 Y形坡口2870°3 δ=10 Y形坡口60°10 24 δ=12 Y形坡口50°12 25 δ=14 双Y 形坡口21460°680°6 δ=16 双Y 形坡口280°760°167 δ=18 双Y 形坡口21850°875°8 δ=20 双Y 形坡口2850°2075°9 δ=22 双Y 形坡口229270°10 δ=24 双Y 形坡口60°21050°2411 δ=25 双Y 形坡口2511250°12 δ=26 双Y 形坡口50°21150°2613 δ=28 双Y 形坡口2850°12250°14 δ=30 UY 形坡口50°21230R 510°10°14.715 δ=32 UY 形坡口R 514.710°10°3214250°16 δ=34 UY 形坡口R 550°2153410°10°15.117 δ=35 UY 形坡口R 515.110°10°3516250°18 δ=36 UY 形坡口R 550°2173610°15.119 δ=38 UY 形坡口R 515.410°10°3818250°20 δ=40 UY 形坡口R 550°2204010°10°15.421 δ=12带长舌双单边V 形坡口122250°50°22 δ=14~20带长舌双面单边V 形坡口45°2245°δ23 δ=22 带长舌双面单边V形坡口4°224°24 δ=24 带长舌双面J形坡口R511.224223°3°25 δ=25 带长舌双面J形坡口2522R53°3°11.526 δ=26 带长舌双面J形坡口11.83°3°R5222627 δ=28 带长舌双面J形坡口2822R53°3°12.428 δ=30 带长舌双面J形坡口133°30°R52229 δ=12 带长舌单面J形坡口1.2R523122°30 δ=14 带长舌单面J形坡口20°1432R51.931 δ=16 带长舌单面J形坡口1632R511.62°32 δ=18 带长舌单面J形坡口20°12.3R5231833 δ=20 带长舌单面J形坡口2032R511.715°34 δ=22 带长舌单面J形坡口15°12.2R5232235 δ=24 带长舌单面J形坡口2432R512.715°36 δ=25 带长舌单面J形坡口15°13R5232537 δ=26 带长舌单面J形坡口2632R513.315°38 δ=28 带长舌单面J形坡口15°13.8R5232839 δ=30 带长舌单面J形坡口3032R514.315°三、CO 2焊焊缝坡口的基本形式和尺寸:序号工件厚度名 称坡口形式和尺寸1 δ=6 双Y 形坡口2670°2 δ=8 双Y 形坡口60°823 δ=10 双Y 形坡口21050°4 δ=12 双Y 形坡口50°1225 δ=14 双Y 形坡口80°50°21466 δ=16 双Y 形坡口716250°70°7δ=18双Y 形坡口60°50°21889 δ=20 双Y 形坡口920260°50°10 δ=22 双Y 形坡口2950°2260°11 δ=24 双Y 形坡口2450°10250°12 δ=25 双Y 形坡口50°21150°2513 δ=26 双Y 形坡口2650°11250°14 δ=28 双Y 形坡口50°21250°2815 δ=30 UY 形坡口R 514.710°10°3012250°16 δ=32 UY 形坡口R 550°2143210°10°14.717 δ=34 UY 形坡口R 515.110°10°3415250°18 δ=35 UY 形坡口R 550°2163510°10°15.119 δ=36 UY 形坡口R 515.110°10°3617250°20 δ=38 UY 形坡口R 550°2183810°10°15.421 δ=40 UY 形坡口R 515.410°10°4020250°22 δ=12~18带长舌双面单边V 形坡口45°δ2245°23 δ=20~22带长舌双面单边V 形坡口40°2240°δ24 δ=24~30 带长舌双面J形坡口11.23°30°R522δ25 δ=8~10 带钝边单边V形坡口2δ45°26 δ=12~16 带钝边单边V形坡口24°δ27 δ=18~20 带钝边单边V形坡口δ35°228 δ=22 带长舌单面J形坡口2232R512.215°29 δ=24 带长舌单面J形坡口R515°12.7232430 δ=25 带长舌单面J形坡口R525321315°31 δ=26 带长舌单面J形坡口15°13.3R5232632 δ=28 带长舌单面J形坡口2832R513.815°33 δ=30 带长舌单面J形坡口15°14.3R52330说明:1、坡口形式和尺寸的编制依据了国家标准GB986、GB986和我厂的焊接生产实践。
焊接常见坡口形式图解
为了保证焊接质量,在焊接前对工件需要焊接处进行的加工,可以气割,也可以切削而成,一般为斜面,有时也为曲面。
比如两块厚10mm的钢板要对焊到一起,为了焊缝牢固,会在板边缘铣出倒角,这个就叫开坡口。
由于材料厚度和焊接质量要求的不同,其焊接接头形式与坡口形状也不尽相同,一般坡口形式分为K 型、V型、I型、U型、X型等。
坡口的几何尺寸
(1)坡口面
待焊件上的坡口表面叫坡口面。
(2)坡口面角度和坡口角度
待加工坡口的端面与坡口面之间的夹角叫坡口面角度,两坡口面之间的夹角叫坡口角度。
(3)根部间隙
焊前在接头根部之间预留的空隙叫根部间隙。
其作用在于打底焊时能保证根部焊透。
根部间隙又叫装配间隙。
(4)钝边
焊件开坡口时,沿焊件接头坡口根部的端面直边部分叫钝边。
钝边的作用是防止根部烧穿。
(5)根部半径
在J形 U形坡口底部的圆角半径叫根部半径。
它的作用是增大坡口根部的空间,以便焊透根部。
常见坡口形式
带钝边单边V型坡口
K型坡口
I型坡口
V型坡口
J型坡口
J型坡口
开坡口的主要作用是为了保证焊缝根部焊透,使焊接热源能深入接头根部,以保证接头质量。
同时坡口还能起到调节基本金属与填充金属比例的作用。
本文编辑:糖糖。