某地小型厂房钢结构工程设计图(节点详细)
- 格式:dwg
- 大小:3.62 MB
- 文档页数:1
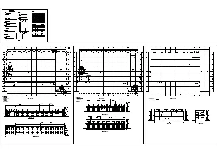
一、设计资料:1.某厂房总长度60m ,跨度为18m.,柱距6m 。
车间内设有两台30/5吨中级工作制吊车。
屋架端高1900mm,屋面坡度为1/10,置于钢筋混凝土柱上,上柱截面400x400,柱的混凝土强度等级为C25,无檩屋盖体系,采用1.5×6.0m 。
计算最低温度-200C 。
采用1.5×6.0m 预应力混凝土大型屋面板和卷材屋面。
二、结构形式与布置图:屋架支撑布置图如下图所示。
02279a.18米跨屋架(几何尺寸)b.18米跨屋架全跨单位荷载作用下各杆件的内力值Aacege'c'a'+2.5370.000-4.371-5.636-4.551-3.357-1.8500.00-4.754-1.862+0.615+1.17+1.344+1.581+3.158+0.540-1.632-1.305-1.520-1.748-1.0-1.0+0.4060.000.00-0.5+5.325+5.312+3.967+2.637+0.933BC DE FGF 'E 'D 'C 'B 'A '0.5 1.0 1.01.01.0 1.0 1.0c . 18米跨屋架半跨单位荷载作用下各杆件的内力值四、荷载计算与组合1、荷载计算预应力混凝土大型屋面板 1.40kN/㎡×1.35=1.89kN/m 2 三毡四油防水层 0.4kN/㎡×1.35=0.54kN/m 2 找平层(20mm 厚) 0.4kN/㎡×1.35=0.54kN/m 2 泡沫混凝土保温层 (80mm ) 0.48kN/㎡×1.35=0.648kN/m 2 钢屋架和支撑自重 (0.12+0.011×30)×1.35=0.608kN/㎡ 管道荷载 0.1×0.35=0.135 kN/㎡ 永久荷载总和 4.361 kN/㎡屋面活荷载 0.5×1.4=0.7kN/㎡ 积灰荷载 0.5×1.4=0.7kN/㎡ 可变荷载总和 1.4 kN/㎡2、荷载组合计算屋架杆内力时,应考虑如下三种荷载组合:1全跨永久荷载+全跨可变荷载F=(4.361+1.4)×1.5×6=51.849kN2全跨永久荷载+半跨可变荷载全跨节点永久荷载:F1=4.361×1.5×6=39.249 kN半跨节点可变荷载:F2=1.4×1.5×6=12.6 kN3全跨屋架(包括支撑)自重+半跨屋面板自重+半跨屋面活荷载全跨节点屋架自重:F3=0.608×1.5×6=5.47kN半跨节点屋面板自重及活荷载:F4=(1.89+0.5)×1.5×6=21.51 kN四、杆件截面设计腹杆最大内力,N=448.43kN(压),由屋架节点板厚度参考可知:支座节点板刚度取12mm;其余节点板与垫板厚度取10mm。