美标法兰标准尺寸表
- 格式:doc
- 大小:426.00 KB
- 文档页数:5
附录4 法兰标准尺寸表一、ANSI150、300、400、600、900、1500、2500RF法兰尺寸表(美标)表 1 ANSI 150RF mm表 2 ANSI 300RF mm表 3 ANSI 400RF mm表 4 ANSI 600RF mm表 5 ANSI 900RF mm表 6 ANSI 1500RF mm表7 ANSI 2500RF mm二、ANSI 150、300、400、600、900、1500、2500RJ法兰尺寸表(美标)表8 ANSI 150RJ mm表9 ANSI 300RJ mm表10 ANSI 600RJ mm表11 ANSI 900RJ mm表12 ANSI 1500RJ mm表13 ANSI 2500RJ mm三、JIS 10K、16K、20K、30K、40K、63K、RF、FF 法兰尺寸表(日标)表14 JIS 10K、RF、FF mm表15 JIS 16K、RF、FF mm表16 JIS 20K、RF、FF mm*t值中较小值为钢及可锻铸铁法兰;较大值为铸铁法兰。
表17 JIS 30K、RF、FF mm表18 JIS 40K、RF、FF表19 JIS 63K、RF、FF mm四、JPI 150、300、600RF、RJ法兰尺寸表表20 JPI 150RF mm表21 JPI 300RF mm表22 JPI 600RF mm表23 JPI 150RJ mm表24 JPI 300RJ mm表25 JPI 600RJ mm五、德国DIN标准法兰尺寸表26 PN16(1.6MPa) mm表27 PN40(4..0MPa) mm六、中国JB标准法兰尺寸1.凸面整体铸钢管法兰(JB/T79.1-94)图 1 凸面整体铸钢管法兰表28 PN1.6MPa mm表29 PN2.5MPa mm表30 PN4.0MPa mm注:表28~30中系列1法兰连接尺寸与国标及德国法兰标准尺寸互换;系列2尺寸与原机标准法兰尺寸互换;新产品设计应优先采用系列1尺寸。
美标法兰尺寸对照表随着工业工程的发展,法兰尺寸也逐渐成为了工业工程的重要参数,其规格也不断发生变化,增加了技术工程师的设计复杂度。
其中,美标法兰尺寸在世界轴承行业占据重要的地位,其参数涵盖了轴承的内圈尺寸、外圈尺寸、孔径及法兰厚度等,可以针对不同的轴承类型设计出恰当的尺寸规格。
下表是美标常见法兰尺寸对照表:系列 | 圈尺寸(mm) |圈尺寸(mm) |径(mm) |兰厚度(mm)《FF》| 15 | 35 | 25 | 2《F》| 15 | 35 | 25 | 4《FW》| 25 | 47 | 37 | 6《C》| 28 | 62 | 46 | 5.5《W》| 28 | 68 | 54 | 5.5在轴承的安装过程中,应当按照上述表格中所列出的参数来进行安装,以保证轴承的正常使用。
同时,在使用美标法兰尺寸时,应当考虑其润滑油的来源,以及法兰尺寸的相关性能。
例如,使用FF系列的轴承时,可以使用内油环法来防止润滑油漏失,而FW系列的轴承可以采用外油环法来保证润滑油稳定流出,以避免润滑油漏失。
此外,在选择法兰尺寸时,还应当考虑到轴承的精度要求和额定载荷,以及法兰尺寸的温度变化情况。
FF系列的轴承可以满足高精度要求和低额定载荷的应用场合,而F系列的轴承则更适用于较高的温度环境中,其可以抗温度波动的性能更出色。
另外,在安装美标法兰尺寸的轴承时,还需要注意法兰尺寸的安装角度,尤其是在垂直或者斜角安装的应用场合,其角度要求较为严格,以保证轴承的正常使用。
通过以上内容,可以看出,美标法兰尺寸对于安装轴承具有重要的意义,应当结合各种应用场景,仔细选择合适的尺寸规格,以保证轴承的正常使用。
此外,也应当注意法兰尺寸的安装角度,特别是在非水平的安装环境下,要求更为严格,以保证轴承的正常使用。
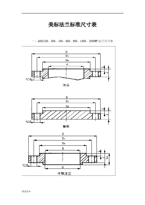
美标法兰上有孔眼,螺栓使两法兰紧连.法兰间用衬垫密封。
美标法兰可由浇铸而成也可由螺纹连接或焊接构成。
美标法兰标准尺寸见下图:
称直径
美标法兰连接是一种可拆连接。
是把两个管道、管件或器材,先各自固定在一个法兰盘上,两个法兰盘之间,加上法兰垫,用螺栓紧固在一起,完成了连接。
美标法兰连接是管道施工的重要连接方式。
新标法兰连接使用方便,能够承受较大的压力。
有的管件和器材已经自带法兰盘,也是属于法兰连接。
盲板
在工业管道中,美标法兰连接的使用十分广泛。
在家庭内,管道直径小,又是低压,看不见法兰连接。
如果在一个锅炉房或者生产现场,法兰连接的管道和器材随处可见。
ANSI-RF法兰标准尺寸表美标法兰标准凸面法兰标准尺寸表一、__、300、400、600、900、1500、2500RF 法兰尺寸表美标法兰标准凸面表1 ANSI 150RF公称通径DN 20 25 32 40 50 65 80 100 125 150 200 250 300外径D 98 108 118 127 152 178 190 229 254 279 343 406 483螺栓孔中连接凸出心圆直径部分直径D1 70 79.5 89 98.5 120.5 139.5 152.5 190.5 216 241.5 298.5 362 432 D2 43 51 63.5 73 92 105 127 157 186 216 270 324 381 A 21 27 35 41 53 63 78mm内径B 28 35 43 50 62 75 91 C 20 25 32 40 50 65 80 100 125 150 200 250 300焊接处颈部颈根部直径E 27 34 42 48 60.5 73 89 114 141 168 219 273 324 51 60 67 83 95 108 140 165 197 248 305 365 F直径G 38 49 59 65 78 91 108 135 164 192 246 305 365法兰厚度J 13 14 16 18 19 24 24 24 24 25 29 30 32焊接法兰长度L1 53 56 57 62 64 70 70 76 89 89 102 102 114 L2 16 17 21 22 25 29 30 33 37 40 44 49 56 305 229 L3连接凸出螺栓孔部分高度L 1.6 1.6 1.6 1.6 1.6 1.6 1.6 1.6 1.6 1.6 1.6 1.6 1.6直径 d 15 15 15 15 19 19 19 19 23 23 23 25 25数量n 4 4 4 4 44 4 8 8 8 8 12 12螺栓直径M 12 12 12 12 16 16 16 16 M20 M20 M20 M22 M22102 116 128 144 154 171 203 221 255 276 305 327表2 ANSI 300RF公称通径DN 20 25 32 40 50 65外径D 117 124 133 156 165 191螺栓孔中连接凸出心圆直径部分直径D1 82.5 89 98.4 114.5 127 149 D2 43 51 64 73 92 105 A 21 27 35 41 53 63mm内径B 28 35 43 50 62 75 C 20 25 32 40 50 65焊接处颈部颈根部直径 E 27 34 42 48 60 73 54 64 70 84 100 F直径G 48 54 64 70 84 100法兰厚度J 16 17 19 21 22 25焊接法兰长度L1 57 62 65 68 70 76 L2 25 27 27 30 33 38 L3 229连接凸出螺栓孔部分高度L 1.6 1.6 1.6 1.6 1.6 1.6直径 d 19 19 19 23 19 23数量n 4 4 4 4 8 8螺栓直径M 16 16 16 20 16 20美标法兰标准凸面80 100 125 150 200 250 300210 254 279 318 381 445 521168 200 235 270 330 387.5 451127 157 186 216 270 324 38178 102 128 154 203 255 30591 116 144 171 221 276 32780 100 125 150 200 250 30089 114 141 168 219 273 324117 146 178 206 260 321 375117 146 178 206 260 321 37529 32 35 37 41 48 5179 86 98 98 111 117 13043 48 51 52 62 67 73 3051.6 1.6 1.6 1.6 1.6 1.6 1.623 23 23 23 25 30 338 8 8 12 12 16 1620 20 20 20 22 27 30表3 ANSI 400RF公称通径DN 20 25 32 40 50 65 80 100 125 150 200 250 300外径D 117 124 133 156 165 191 210 254 279 318 381 445 521螺栓孔中连接凸出心圆直径部分直径D1 82.5 89 98 114 127 149 168 200 235 270 330 387 451 D2 43 51 64 73 92 105 127 157 186 216 270 324 381按用户要求Amm内径B 28 35 43 50 62 75 91 116 144 171 221 276 327 C 20 25 32 40 50 65 80 100 125 150 200 250 300焊接处颈部颈根部直径 E 27 34 42 48 60 73 89 114 141 168 219 273 324 54 64 70 84 100 117 146 178 206 260 321 375 F直径G 48 54 64 70 84 100 117 146 178 206 260 321 375法兰厚度J 22 24 27 29 32 35 38 41 45 48 54 60 64焊接法兰长度L1 64 68 73 76 79 86 89 95108 110 124 130 143 L2 32 33 35 38 43 48 52 57 60 64 75 79 86 311 235 L3连接凸出螺栓孔部分高度L 6.4 6.4 6.4 6.4 6.4 6.4 6.4 6.4 6.4 6.4 6.4 6.4 6.4直径d 19 19 19 23 19 23 23 25 25 25 30 33 35数量n 4 4 4 4 8 8 8 8 8 12 12 16 16螺栓直径M 16 16 16 20 16 20 20 22 22 22 27 30 32美标法兰标准凸面表4 ANSI 600RF公称通径DN 20 25 32 40 50 65 80 100 125 150 200 250 300外径D 117 124 133 156 165 191 210螺栓孔中连接凸出心圆直径部分直径D1 82.5 89 98 114.5 127 149 168 D2 43 51 64 73 92 105 127 157 186 216 270 324 381按用户要求 Amm内径B 28 35 43 50 62 75 91 116 144 171 221 276 327 C 20 25 32 40 50 65 80 100 125 150 200 250 300焊接处颈部直径 E 27 34 42 48 60 73 89 114 141 168 219 273 324 54 64 70 84 100 117 F颈根部直径G 48 54 64 70 84 100 117法兰厚度J 22 24 27 29 32 35 38 45 51 54 62 70 73焊接法兰长度L1 64 68 73 76 79 86 89 108 121 124 140 159 162 L2 32 33 35 38 43 48 52 57 67 73 83 92 98 311 235 L3连接凸出螺栓孔部分高度L 6.4 6.4 6.4 6.4 6.4 6.4 6.4 6.4 6.4 6.4 6.4 6.4 6.4直径d 19 19 19 23 19 23 23 25 30 33 36 36 36数量n 4 4 4 4 8 8 8 8 8 12 12 16 20螺栓直径M 16 16 16 20 16 20 20 22 27 30 33 33 33273 330 356 419 508 559216 266.5 292 349 432 489152 191 222 273 343 400152 189 222 273 343 400表5 ANSI 900RF公称通径DN 20 25 32 40 50 65外径D 130 149 159 178 216 244螺栓孔中连接凸出心圆直径部分直径D1 89 101.5 111 124 165 190.5 D2 43 51 64 73 92 105 A mm内径B 28 35 43 50 62 75 C 20 25 32 40 50 65焊接处颈部颈根部直径 E 27 34 42 48 60 73 52 63.5 70 105 124 F直径G 44 52 64 70 105 124法兰厚度J 32 35 35 38 45 48焊接法兰长度L1 76 79 79 89 108 111 L2 41 48 48 51 64 70 L3 235连接凸出螺栓孔部分高度L 6.4 6.4 6.4 6.4 6.4 6.4直径 d 23 25 25 30 25 30数量n 4 4 4 4 8 8螺栓直径M 20 22 22 27 22 27按用户要求美标法兰标准凸面80 100 125 150 200 250 300241 292 349 381 470 546 610190.5 235 279.5 317.5 393.5 470 533.5127 157 186 216 270 324 38191 116 144 171 221 276 32780 100 125 150 200 250 30089 114127 159127 159 191 235 298 368 41945 51 58 62 70 76 86108 121 133 146 168 191 20660 76 86 92 108 114 124 3116.4 6.4 6.4 6.4 6.4 6.4 6.425 33 36 33 39 39 398 8 8 12 12 16 2022 30 33 30 36 36 36141 190.5 168 219 273 324 235 298 368 419表6 ANSI 1500RF公称通径DN 20 25 32 40 50 65 80 100 125 150 200 250 300外径D 130 149 159 178 216 244 267 311 375 394 483 584 673螺栓孔中心圆直径D1 89 101.5 111 124 165 190.5 203 241.5 292 317.5 393.5 482.5 571.5连接凸出部分直径D2 43 51 64 73 92 105 127 157 186 216 270 324 381 mm内径焊接处颈部直颈根部径C 20 25 32 40 50 65 80 100 125 150 200 250 300 E 27 34 42 48 60 73 89 114 141 168 219 273 324 52 63.5 70 105 124 133 162 197 229 292 368 451 F直径G 44.5 52 63.5 70 105 124法兰厚度J 32 35 35 39 45 48焊接法兰长度连接凸出螺栓孔部分高度L 6.4 6.4 6.4 235 6.4 6.4 6.4 6.4 6.4 311 6.4 6.4 6.4 311∫ 514 6.4 6.4直径d 23 25 25 30 25 30 33 35 42 45 45 51 55 16数量螺栓直径M 20 22 22 27 22 27 30 32 39 42 42 48 52AB 28 35 43 50 62L1 76 79 79 89 108 111 124 130 162 178 219 260 289L2 41 48 48 51 64 70 79 97 111 125 149 165 187L3n 4 4 4 4 8 8 8 8 8 12 12 12按用户要求75 91 116 144 171 221 276 327133 162 170 229 __ 45154 61 80 89 99 115 131美标法兰标准凸面表7 ANSI 2500RF公称通径DN 20 25 32 40 50 65 80 100 125 150 200 250 300外径D 140 159 184 203 235 267 305 356 419 483 552 673 762螺栓孔中心圆直径D1 98 108 130 146 171.5 197 228.5 273 324 368.5 438 539.5 619连接凸出部分直径D2 43 51 63.5 73 92 105 127 157 186 216 270 324 381按用户要求A内径mm焊接处颈部直颈根部径C 20 25 32 40 50 65 80 100 125 150 200 250 300 E 27 34 42 48 60 73 89 114 141 168 219 273 324 57 73 79 95 114 133 165 203 235 305 375 441 F直径G 51 57 73 79 95 114 133 165 203 235 305 375 441法兰厚度J 38 41 45 51 57 64 73 83 98 114 133 172 191焊接法兰长度连接凸出螺栓孔部分高度L 6.4 6.4 6.4 6.4 6.4 6.4 311 6.4 6.4 6.4 6.4 6.4 311∫ 514 6.4 6.4直径d 23 25 30 33 30 33 36 42 48 55 55 67 75数量螺栓直径M 20 22 27 30 27 30 33 39 45 52 52 64 72B 28 35 43 50 62 75 91 116 144 171 221 276 327L1 86 95 102 118 133 149 175 197 235 279 324 426 470L2 49 54 59 67 76 86 98 114 137 159 184 235 260L3 235n 4 4 4 4 8 8 8 8 8 8 12 12 12美标法兰标准凸面二、ANSI 150、300、600、900、1500、2500RJ法兰尺寸表表8 ANSI 150RJ公称通径DN 25 40 50 65 80 100 125 150 200 250 300外径D 108 127 152 178 190 229 254 279 343 406 483螺栓孔中连接凸出心圆直径部分直径D1 79.5 98.5 120.5 139.5 152.5 190.5 216 241.5 298.5 362 432 D2 63.5 82.6 101.6 120.6 133.4 171.4 193.7 219.1 273 330.2 406.4mm内径D3 25 38 51 64 76 102 127 152 203 254 305法兰厚度t 20.7 23.9 25.5 28.7 30.3 30.3 30.3 31.8 35 36.6 38.2连接凸出部分高度 f 6.4 6.4 6.4 6.4 6.4 6.4 6.4 6.4 6.4 6.4 6.4梯形槽中梯形槽深心圆直径L 47.6 65.1 82.6 101.6 114.3 149.2 171.5 193.6 247.7 304.8 381度E 6.4 6.4 6.4 6.4 6.4 6.4 6.4 6.4 6.4 6.4 6.4梯形槽宽螺栓孔数度F 8.7 8.7 8.7 8.7 8.7 8.7 8.7 8.7 8.7 8.7 8.7量与直径n-d 4-15 4-15 4-19 4-19 4-19 8-19 8-23 8-23 8-23 12-25 12-25螺栓直径M 12 12 16 16 16 16 20 20 20 22 22美标法兰标准凸面表9 ANSI 300RJ公称通径DN 20 25 40 50 65 80 100 125 150 200 250 300外径D 117 124 156 165 190 210 254 279 318 381 444 521mm螺栓孔中连接凸出心圆直径部分直径D1 82.5 89 114.5 127 149 168 200 235 270 330 387.5 451 D2 63.5 69.8 90.5 108 127 146 174.6 209.6 241.3 301.6 355.6 412.5内径D3 19 25 38 51 64 76 102 127 152 203 254 305法兰厚度t 22.3 23.9 27.1 30.3 33.4 36.6 46.1 43 44.6 49.3 55.7 58.8连接凸出部分高度f 6.4 6.4 6.4 8 8 8 8 8 8 8 8 8梯形槽中梯形槽深心圆直径L 42.9 50.8 68.3 82.6 101.6 123.8 149.2 181.0 211.1 269.9 323.9 381度E 6.4 6.4 6.4 8 8 8 8 8 8 8 8 8梯形槽宽螺栓孔数度F 8.7 8.7 8.7 11.9 11.9 11.9 11.9 11.9 11.9 11.9 11.9 11.9量与直径n-d 4-19 4-19 4-23 8-19 8-23 8-23 8-23 8-2312-23 12-25 16-30 16-33螺栓直径M 16 16 20 16 20 20 20 20 20 22 27 30表10 ANSI 600RJ公称通径DN 20 25 40 50 65 80外径D 117 124 156 165 190 210螺栓孔中连接凸出心圆直径部分直径D1 82.5 89 114.5 127 149 168 D2 63.5 69.8 90.5 108 127 146 mm内径D3 19 25 38 51 64 76法兰厚度t 22.3 23.9 28.7 33.4 36.6 39.6连接凸出部分高度f 6.4 6.4 6.4 8 8 8梯形槽中梯形槽深心圆直径L 42.9 50.8 68.3 82.6 101.6 123.8度 E 6.4 6.4 6.4 8 8 8梯形槽宽螺栓孔数度F 8.7 8.7 8.7 11.9 11.9 11.9量与直径n-d 4-19 4-19 4-22 8-19 8-22 8-22螺栓直径M 16 16 20 16 20 20美标法兰标准凸面100 125 150 200 250 300273 330 356 419 508 559216 266.5 292 349 432 489174.6 209.6 241.3 301.6 355.6 412.8102 127 152 200 248 29846.1 52.5 55.7 63.6 71.5 74.78 8 8 8 8 8149.2 181.0 211.1 269.9 323.9 381.08 8 8 8 8 811.9 11.9 11.9 11.9 11.9 11.98-22 8-25 12-32 12-36 16-36 20-3622 27 30 33 33 33表11 ANSI 900RJ公称通径DN 80 100 125 150 200 250 300外径D 241 292 349 381 470 546 610螺栓孔中连接凸出心圆直径部分直径D1 190.5 235 279.5 317.5 393.5 470 533.5 D2 155.6 181 215.9 241.3 308 362 419.1mm内径D3 73 99 121 146 191 238 282法兰厚度t 46.1 52.5 58.8 63.6 71.5 77.9 87.4连接凸出梯形槽中梯形槽深梯形槽宽螺栓孔数部分高度心圆直径 f 8 8 8 8 8 8 8 L 123.8 149.2 181.0 211.1 270.0 323.9 381.0度E 8 8 8 8 8 8 8度F 11.9 11.9 11.9 11.9 11.9 11.9 11.9量与直径n-d 8-25 8-33 8-35 12-33 12-39 16-39 20-39螺栓直径M 22 30 32 30 36 36 36表12 ANSI 1500RJ公称通径DN 25 40 50 65 80外径D 149 178 216 244 267螺栓孔中连接凸出心圆直径部分直径D1 101.5 124 165 190.5 203 D2 71.4 92.1 123.8 136.5 168.3 mm内径D3 22 35 48 57 70法兰厚度t 35 38.2 46.1 49.3 55.7连接凸出部分高度f 6.4 6.4 8 8 8梯形槽中梯形槽深心圆直径L 50.8 68.3 95.3度 E 6.4 6.4 8 8 8梯形槽宽螺栓孔数度 F 8.7 8.7 11.9 11.9 11.9量与直径n-d 4-25 4-30 8-25 8-30 8-33螺栓直径M 22 27 22 27 30108 136.5美标法兰标准凸面100 125 150 200 250 300311 375 394 483 584 673241.5 292 317.5 393.5 482.5 571.5193.7 228.6 247.6 317.5 371.5 438.292 111 136 178 222 26462 81.1 92.2 103.3 119.2 138.28 8 9.6 11.2 11.2 14.3162 193.7 211.1 270 323.9 3818 8 9.6 11.2 11.2 14.311.9 11.9 13.5 16.7 16.7 23.08-36 8-42 12-39 12-45 12-51 16-5533 39 36 42 48 52表13 ANSI 2500RJ公称通径DN 25 40 50 65 80 100 125 150 200 250 300外径D 159 203 235 267 305 356 419 483 552 673 762螺栓孔中连接凸出心圆直径部分直径D1 108 146 171.5 197 228.5 273 324 368.5 438 539.5 619 D2 82.6 114.3 133.4 149.2 168.3 203.2 241.3 279.4 339.7 425.5 495.3内径D3 19 28 38 48 57 73 92 111 146 184 219mm法兰厚度t 41.4 52.5 58.8 66.8 76.3 87.4 104.8 120.7141.3 182.6 201.7连接凸出部分高度f 6.4 8 8 9.6 9.6 11.2 12.7 12.7 14.3 17.5 17.5梯形槽中梯形槽深心圆直径L 60.3 82.6 101.6 111.1 127 157.1 190.5 228.6 279.4 342.6 406.4度E 6.4 8 8 9.6 9.6 11.2 12.7 12.7 14.3 17.5 17.5梯形槽宽螺栓孔数度F 8.7 11.9 11.9 13.5 13.5 16.7 19.8 19.8 23.0 30.2 33.4量与直径n-d 4-25 4-33 8-30 8-33 8-36 8-42 8-48 8-55 12-55 12-67 12-74螺栓直径M 22 30 27 30 33 39 45 52 52 64 72美标法兰标准凸面三、JIS 10K、16K、20K、30K、40K、63K、RF、FF法兰尺寸表表14 JIS 10K、RF、FF公称通径DN 20 25 40 50 65 80 100 125 150 200 250 300外径D 100 125 140 155 175 185 210 250 280 330 400 415直径D1 75 90 105 120 140 150 175 210 240 290 355 400mm螺栓孔中心圆连接凸出部分直径D2 58 70 85 100 120 130 155 185 215 265 325 370内径D3 19 25 38 51 61 76 102 125 152 204 254 305法兰厚度t~连接凸出部分螺栓孔数量与高度 f 1 1 2 2 2 2 2 2 2 2 2 3直径n-d 4-15 4-19 4-19 4-19 4-19 8-19 8-19 8-23 8-23 8-23 12-25 16-25螺栓直径M 12 16 16 16 16 16 16 20 20 20 22 2214/ 18 14/18 16/20 16/ 20 18/ 22 18/22 18/ 24 20/ 24 22/ 26 22/ 26 24/ 30 24/ 32美标法兰标准凸面表15 JIS 16K、RF、FF公称通径DN 20 25 40 50 65 80 100 125 150 200 250 300外径D 100 125 140 155 175 200 225 270 305 350 430 480直径D1 75 60 105 120 140 160 185 225 260 305 380 430mm螺栓孔中心圆连接凸出部分直径D2 58 70 85 100 120 135 160 195 230 275 345 395内径D3 19 25 38 51 64 76 102 125 152 204 254 305法兰厚度t~连接凸出部分螺栓孔数量与高度 f 1 1 2 2 2 2 2 2 2 2 2 3直径n-d 4-15 4-19 4-19 8-19 8-19 8-23 8-23 12-25 12-25 12-25 12-27 16-27螺栓直径M 12 16 16 16 16 20 20 22 22 22 24 2414/ 18 14/18 16/20 16/ 20 18/ 22 20/ 24 22/ 26 22/ 26 24/ 28 26/ 30 28/ 34 30/ 36表16 JIS 20K、RF、FF公称通径DN 20 25 40 50 65 80外径 D 100 125 140 155 175 200直径D1 75 90 105 120 140 160 mm螺栓孔中心圆连接凸出部分直径D2 58 70 85 100 120 135内径D3 19 25 38 51 64 76法兰厚度t~连接凸出部分螺栓孔数量与高度 f 1 1 2 2 2 2直径n-d 4-15 4-19 4-19 8-19 8-19 8-23螺栓直径M 12 16 16 16 16 2016/ 18 16/ 20 18/ 22 18/22 20/ 24 22/ 26美标法兰标准凸面100 125 150 200 250 300225 270 305 350 430 480185 225 260 305 380 430160 195 230 275 345 395102 125 152 204 254 30524/ 28 26/ 30 28/ 32 30/ 34 34/ 38 36/ 402 2 2 2 2 38-23 8-25 12-25 12-25 12-27 16-2720 22 22 22 24 24~t值中较小值为钢及可锻铸铁法兰;较大值为铸铁法兰。