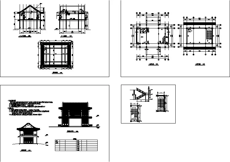
一层古建亭子歇山方亭图纸
- 格式:dwg
- 大小:306.24 KB
- 文档页数:30
单檐七檩歇山图解2上一回我们介绍了底座和檐柱、金柱的榫卯形状及配合状况,这回按照顺序实际安装,接下来要装的是雀替。
在前面图解廡殿的博文中,雀替是装完檐柱层枋件后才装的,这次不行了,角上的雀替按原图做成了连体件,榫卯插配合,如装完上层枋件,上落下的途径封死,两头没了退后的空间,只有先装才是合理的工艺顺序。
雀替的形状非常丰富,博主按原图式样做了个大概齐。
具体尺寸规矩各教科书中都有,形状色彩在现实中几乎没有重样的。
做雀替模型时挺费工夫,都是软件应用技巧的问题,在这就不多说了。
按原图的理解,雀替下部鱼肚型在接触斗拱形部位时是斜面相接,博主按此做了,见下图。
做完后有些纠结,在现实中没看到过这种做法的实例,多是平面直连斗拱,渐进斜面鱼肚型。
常见书中的图形也如是。
上图是《中国古建筑木做营造技术》中的细节描述。
上图是《故宫建筑图典》一书中的细节描述,只有梁先生的书中有两种表述。
上图是《清式营造则例图版》二十五截图:平面加渐进式斜面连接的图形表述。
上图是《清式营造则例图版》二十七截图:整体斜面连接的图形表述,和建模参照原图一致。
做完这种形式的雀替后,走到哪都留神看一眼这个部位,希望找到物证,直到有一天,在沈阳故宫看到了这种做法的实例,从此不再纠结了。
这种由于见识浅引起的纠结疑问在建模中不少,在以前的博文中还有乱下结论的,待说到相关问题时再讲,先往下装。
前一篇介绍檐柱榫卯形状与配合件时,按榫卯位置由下往上先装了小额枋,在这座宫殿的安装顺序中要先上穿插枋。
上图为全部穿插枋在整个建筑中的实际位置。
在这座建筑中,穿插枋按形状尺寸区分有三种:A是山面穿插枋,B是檐面旁穿插枋,C是檐面穿插枋。
山面穿插枋好区分,和金柱结合的长直榫在上边,是为和同在金柱位置配合的檐面旁穿插枋后直榫错开。
檐面旁穿插枋和檐面穿插枋的区分是和金柱结合的半直榫部位的长短,一个到金柱中线位置,一个到山面穿插枋直榫侧面,拿上张带隐线的线框图,看能不能看清。
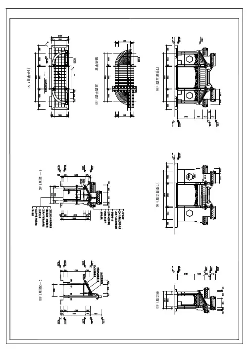
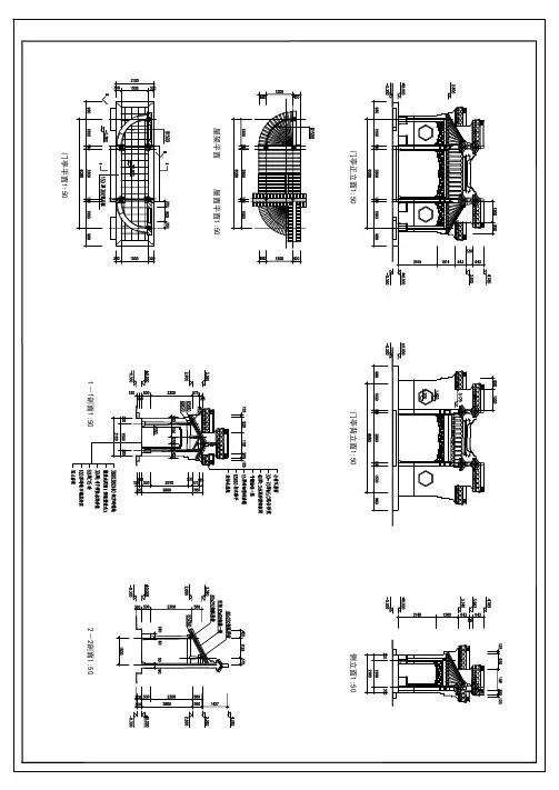
单檐七檩歇山-图解第九章上章节完成了屋顶框架,接着是安放椽子,形成屋顶的第一基础层。
按说桁檩位置已定,把椽子挨排搁上就行了。
搁多少?搁几根?这可是有图的,照图施工不就行了。
看原图:上图是原图截图,为了清楚起见,截了部分。
把对面间距的数据用红字标在相同的间隔里。
这样看,椽子的数量和摆放间隔都安排好了,但不仔细看或不真正施工画线没有疑问,但真的要问你椽档是多少、是否相等,问题就出来了。
大式建筑用斗口计算尺寸,本座歇山建筑斗口二寸五,合公制80mm,斗拱的攒档用11斗口,一攒为880mm。
稍间五攒4400 mm;次间六攒5280 mm;明间七攒6160 mm;山间四攒半3960 mm;按图中要求的椽子根数,求出的椽档能差多少?答案是稍间4400除以18加1为231.58,次间5280除以22加1为225.57,明间6160除以26加1为228.15。
山间3960除以16加1为232.94。
这样看需要有连续性的檐面得数之间最大也就差6毫米,不到一个指头宽,可忽略。
在实际建造中,按间排椽档没有问题;在虚拟建造中,还是一个固定连续的椽档好分,阵列一次就可完成。
这样做模型是只以稍间和山间为参考定了椽档,其它就忽略了,所以朋友们看图要数椽子数量的话,就这两间对得上。
看图:这种做法并非出于无奈,是出于省事,也可叫做偷工减料。
一个间量看似减一根,整个建筑减十八根椽子。
有一种说法,讲传统建筑中‘逢工必偷工,逢料必减料’,看过不少建筑,有时觉得作为工匠施工中出现的这种现象不一定是为了贪省,而是体现一种巧,巧妙的应付环境,应付结构和工艺。
哈!怎么看像拿这话在为自己做狡辩。
这回上来还没安装,为什么先说椽档呢?看了下图就清楚了。
则例图解中为何要不厌其烦的标出椽子的数量,就是因为在清式歇山大式建筑中,两个大木件上要刻出与椽子相配的椽椀,椽子的数量和位置是固定的,不能随意加减。
这两个大木件是踩步金和扶脊木。
细说说伏脊木,我前面图解廡殿的图文中,有对伏脊木的描述,通过进一步读书和观察,结合建模。
单檐七檩歇山图解1终于按照‘清工部工程做法则例卷三’完成了这座‘七檩歇山转角周围廊重昂斗拱斗口二寸五分’的宫殿建造,现在开始图解这一建造过程了,忽然不知要从何说起。
这个过程时间拉的长点,有一年多,建造的各个时间段所遇到的问题难点不同,且每个建造节点都有要面对的问题,做的时候有好多想说的,到完成时,把前面的感觉感慨全忘了,到现在看着自己做出的东西都感到陌生,看着图,看着书,先拿起来开个头,找找感觉。
建一座建筑,先要有大致的尺寸依据,本次建造的定型尺寸大多来自则例原图和‘清式营造则例各件权衡尺寸表’,大家记着是权衡不是参照。
在建造中,博主权衡各种尺寸关系,做出最终结果。
这次图解中给出各种实际建造尺寸供网友参考验证,虚拟建筑和原图有些出入,这就是权衡的结果,有必要的地方,我会解释一下。
由于之前写过图解廡殿,再写时重复太多觉得不好,基座、基础柱梁部分廡殿与歇山又差不多,要详解,有些重复难免,先从基座说起吧。
本座歇山建筑的底座长32400mm,宽14640mm,高1330mm,这是公制尺寸,用的是毫米单位。
原图用的是营造尺,一尺等于320mm。
带斗拱的大式建筑斗口是个参考值,原图中给出的斗口是二寸五分,合80mm,算来长就合405斗口,宽183斗口。
卷三这座歇山建筑底座原图没给出细节,博主按常规加上了角柱石、踏跺石、垂带石和柱顶石。
下面的线框图显示了这几种石材在底座中的具体安放位置。
在这座建筑中,用了两种规格的柱顶石,檐柱顶石,用二十块;金柱顶石,用料十二块。
柱顶石摆放的位置是根据间架、廊深、进深决定的。
与柱顶石相配要同样数量的檐柱和金柱,共由三十二根柱子组成本座歇山殿的柱网。
柱顶石据则例规矩厚等于柱径,两边长为柱径二倍。
上出圆台叫古镜,凸出高度为五分之一柱径。
这就要先找出柱径的尺寸才能决定柱顶石的尺寸。
按则例规定的权衡尺寸,檐柱高为六十斗口,径为六斗口,收分百分之一,上图中的大式千分之一应是笔误。
本座歇山殿檐柱径采用则例规矩,六斗口;高为4610mm,约合57.6斗口,这样做是为符合原图比例。