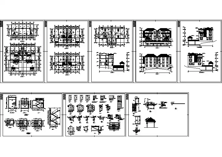
客厅餐厅厨房书房佣人房卧室卫生间门廊1-10.51.1.1.51.59.14.老人房主卧卧室书房上18级@240*161.1下18级@240*161.1上2级@300*1502.900%%p0.000-0.450-0.150阳台8503500102003500102009700230015002500100100120010049040001250150012504908501800100250040001800400011001500200025025011001001001400140012009700530400097004300970097002500700075040004902500102001001001001001001200490150010010035007508502500180010085010040002500102001001002000180017209501001001800400011001100100100100350020004000900150030010003001001000100430097004000200010200400040025001004001001200150049010004904003500180010008508501004001001000200030090030010001003500102002500400012001400180040001100100110010040014004000.0002.9005.8007.300-0.450-0.450%%p0.0002.9005.8007.30015002900290058004502.900%%p0.000-0.4507.3005.8005800290015002900450-0.450%%p0.0002.9005.8007.300580015002900290045011-0.450%%p0.0005.8002.9007.3005800290045029001500卫生间主卫120012008004004000.9002.4003.8005.3001.0004.0500.9002.4003.8005.3000.9002.4003.8005.3000.9002.4003.8005.3004.0501.0002.1005.000-0.1501.128起居室总建筑面积190.08M首层建筑面积95.04M除外墙为200MM墙外,其余均为120MM墙.注:卫生间、厨房楼面标高均比室内楼面标高低30mm门除靠柱边安装外 ,未注明门垛宽度均为60mm首层平面图1:100门除靠柱边安装外 ,未注明门垛宽度均为60mm除外墙为200MM墙外,其余均为120MM墙.注:卫生间、阳台楼面标高均比室内楼面标高低30mm二层平面图1:100屋顶层平面图1:100屋顶暗棕色瓦砖3-065(余同)果绿色100*100面砖5-094(余同)2-039(余同)那坡黄100*100面砖3-065(余同)屋顶暗棕色瓦砖果绿色100*100面砖5-094(余同)那坡黄100*100面砖2-039(余同)3-065(余同)屋顶暗棕色瓦砖果绿色100*100面砖5-094(余同)那坡黄100*100面砖2-039(余同)3-065(余同)屋顶暗棕色瓦砖果绿色100*100面砖5-094(余同)那坡黄100*100面砖2-039(余同)161.1*11161.1*7~ 立面图1:1001:100~ 立面图~ 立面图1:1001-1剖面图1:100~ 立面图1:100卫生间漏口%%c501200首层卫生间大样图1:50厨房%%c50漏口22003460100026083034608301800130012002500首层厨房大样图1:50主卫卫生间80012080012012001200120800二层卫生间大样图1:50(余同)(余同)(余同)%%c50漏口(余同)%%c50漏口(余同)%%c50漏口%%c50(余同)漏口上18级@240*161.12000108020005400258060142090014098060900606015009809002002409001280900首层楼梯大样图1:50下18级@240*161.1起居室%%p0.0009005400200606098060120282040404040198040401270127040401420142040403120312040404040410820410404025007707702580240060510051002009003200二层楼梯大样图1:50(余同)%%c50地漏雨水管%%c100(余同)(余同)%%c100雨水管(余同)%%c100雨水管详闽98J04(余同)楼梯栏杆,防滑条做法1715175111详闽98J04(余同)楼梯栏杆,防滑条做法详建施图(余同)11:251素混凝土2(余同)详建施图1501503001:252素混凝土-0.15030MM不锈钢钢管100MM镀锌钢管50MM不锈钢钢管与结构钢筋焊接预埋80X80X5铁片100高反口阳台楼面标高5010080120301:2031150100MM镀锌钢管50MM不锈钢钢管30MM不锈钢钢管150高反口预埋80X80X5铁片与结构钢筋焊接950150300100300950100100128012010050305050详建施图(余同)3油毡瓦屋面檐沟详闽00J202-1(余同)142i=0.5%i=0.5%i=0.5%i=0.5%i=0.5%i=0.5%i=0.5%i=0.5%2二层建筑面积95.04M总建筑面积190.08M5.8005.8005.8005.8005.80070001800023000用地面积:建筑占地面积:建筑指标:建筑总面积:建筑容积率:绿化率:建筑密度:414.00m95.04m190.08m0.4636%22.96%%% 2 2 22F10200970030002-038(余同)浅橙色外墙漆总平面布置图1:100车库3000100100400400100100网易 NetEase建筑工程师与建材商的专业网站市场部:ivpmarket@ 技术部:ivptech@穃u5efa筑 编辑部:ivpinfo@土木在线==