土石方工程工程量计算实例
- 格式:doc
- 大小:287.50 KB
- 文档页数:9
土石方工程量计算例题1. 土石方工程的基本概念土石方工程,听起来有点复杂,但其实就是在搞一些跟土和石头有关的活儿。
比如说,建房子、修公路,或者挖池塘,统统都离不开它。
简单来说,就是把地面上的土挖掉,或者把土填进去,这样才有空间做其他事情。
不过,这其中可有许多学问呢,计算工程量就是其中之一,不能马虎。
想象一下,如果你在挖坑,结果挖得太深或太浅,那可真是费劲不讨好啊!2. 土石方工程量的计算2.1 计算方法好了,咱们进入正题,如何计算这些土石方工程的量呢?首先,得明确你要挖多大一个坑。
假设你要挖一个长方体的坑,计算起来其实挺简单的。
公式是:体积 = 长× 宽× 高。
你就把每一边的尺寸量出来,算上去,得出的就是这个坑的体积,嘿,简单吧?但是,这里有个小细节不能忽视,那就是土的松散度。
挖出来的土和压实后的土,体积可是不同的哦!就像你把棉花和石头放在一起,棉花占的空间可比石头大得多。
因此,松散土和压实土的比重要考虑到,这样才能算得更准确。
2.2 工程量的调整再说说填土,填土的量计算和挖土差不多,不过你得先知道填土的密度和填土的高度。
填土的时候,记得要压实,不然时间长了,土会沉降,房子可就容易出问题了。
因此,计算填土时,一定要加上压实后的土量,这样才能确保后续的工程不会出岔子。
3. 现场实操经验3.1 现场注意事项在实际操作中,有时候现场会遇到一些意想不到的情况。
比如说,你本以为土是松软的,结果一铲下去,发现下面是一块大石头,那可真是出乎意料啊!这时候,你就得重新评估一下工程量,估计得费不少劲才能把这块石头弄走。
此外,天公不作美也会让你头疼。
下雨天,泥巴可就变得稀烂,挖土的时候简直跟打水漂似的,根本就不成样子。
所以,在下雨天施工时,一定要小心翼翼,别让泥巴给你整得手忙脚乱的。
3.2 实际案例分享我记得有一次,朋友找我帮忙挖一个花池,结果发现地下竟然有根大树的树根,真是哭笑不得!我们两个在那里奋战了好几个小时,手都累得快断了,但最后挖出来那片土,哇,真是好看极了,填上花土,种上花草,简直就是个小花园,心里那个得意啊,完全不觉得累了。
工程工程量计算实例
一、工程量计算概述
二、工程量计算
(一)土石方工程量计算
1.土石方工程量计算公式:
总量=挖方量+衬砌量+碾压量+其它;
2.土石方工程量计算结果:
根据上文提到的工程信息,按照国家工程技术标准进行计算:挖方量:1000m3;
衬砌量:1500m3;
碾压量:500m3;
其它:200m3
总量:3200m3
(二)主体结构工程量计算
1.主体结构工程量计算公式:
总量=混凝土量+钢筋量+模板量+其它;
2.主体结构工程量计算结果:
根据上文提到的工程信息
混凝土量:2500m3;
钢筋量:200t;
模板量:500m2;
其它:300m3
总量:3200m3
(三)装饰装修工程量计算
1.装饰装修工程量计算公式:
总量=墙面饰面量+地面饰面量+吊顶饰面量+其它;2.装饰装修工程量计算结果:
根据上文提到的工程信息。
土石方工程工程量计算实例土石方工程是指通过挖掘、填方、挖沟、填平等操作,对地面的土石进行移动和调整,以满足建设工程的需求。
土石方工程量计算是对土石方工程中所涉及的土石方的数量进行计算,以确定工程所需的土石材料的规模和数量,从而为工程的设计、施工和预算提供依据。
下面将以土石方工程为例,详细介绍土石方工程量计算:土方的体积计算公式为:V=A*h其中,V表示土方的体积,A表示土方的面积,h表示土方的厚度。
代入数值,得到土方的总体积:接下来,需要计算土方的挖方量和填方量。
挖方量是指为了达到平整效果,需要从原地挖掉的土方量。
挖方量可以通过挖方体积与挖方率的乘积来计算。
挖方体积=V挖方率是指挖方体积与土方体积之比,通常在1.0-1.3之间,根据实际情况确定。
假设挖方率为1.2,代入数值,得到挖方量:填方量是指为了平整地面,需要填充进去的土方量。
填方量可以通过总体积与挖方量之差来计算。
填方量=V-挖方量通过计算,我们得到填方量为负数,说明工程需要额外的填土材料才能完成。
此时,需要进行填方计算。
填方计算需要考虑填方材料的堆积率。
假设填方材料的堆积率为 1.2,填方深度为0.5米,代入数值,得到填方量:填方量=-3000立方米/(1.2*0.5)=-2500立方米填方量为负数,说明需要从外部引入2500立方米的填土材料。
需要注意的是,土石方工程量计算中还需要考虑松散状态与压实状态的转换系数、土方的各种堆放情况与收集情况等因素,此处简化计算,仅给出基本的计算方法。
在实际工程中,应根据具体情况进行详细计算和施工规划。
⼯程量清单计价编制实例(⼟建全套实例)⼀、⼟⽯⽅⼯程清单编制例题例1:某⼯程外墙外边线尺⼨为36.24m ×12.24m ,底层设有围护栏板的室外平台共4只,围护外围尺⼨为3.84m ×1.68m ;设计室外地坪⼟⽅标⾼为-0.15m ,现场⾃然地坪平均标⾼为-0.05m ,现场⼟⽅多余,需运⾄场外5km 处松散弃置,按规范编制该⼯程平整场地清单项⽬。
解:该⼯程按⾃然标⾼计算,多余⼟⽅平均厚度0.10m ,按题意需考虑外运。
⼯程量计算:平整场地:S =36.24×12.24+3.84×1.68×4=469.38m2例2:如图,某房屋⼯程基础平⾯及断⾯如图,已知:基底⼟质均衡,为⼆类⼟,地下常⽔位标⾼为-1.1m ,⼟⽅含⽔率30%;室外地坪设计标⾼-0.15m ,交付施⼯的地坪标⾼-0.3m ,基坑回填后余⼟弃运5km 。
试计算该基础⼟⽅开挖⼯程量,编制⼯程量清单。
解:本⼯程基础槽坑开挖按基础类型有1-1、2-2和J -1三种,应分别列项。
⼯程量计算:挖⼟深度=1.6-0.3=1.30 m1、断⾯1-1:L =(10+9)×2-1.1×6+0.38=31.78m (0.38为垛折加长度) V =31.78×1.4×1.3=57.84m 3 其中:湿⼟ V =31.78×1.4×0.5=22.25m 32、断⾯2-2:L =9-0.7×2+0.38=7.98m V =7.98×1.6×1.3=16.60m 3图4-1其中:湿⼟V=7.98×1.6×0.5=6.38m33、J-1:V=2.2×2.2×1.3×3=18.88m3其中:湿⼟V=2.2×2.2×0.5×3=7.26m3根据⼯程量清单格式,编制该基础⼟⽅开挖⼯程量清单如下表:例3:某⼯程室外排⽔管道WSI,⼯程量80m(含窨井),采⽤外径450mm⽔泥涵管直铺。
土石方工程1.某地槽开挖如下图所示,不放坡,不设工作面,三类土。
试计算挖土工程量。
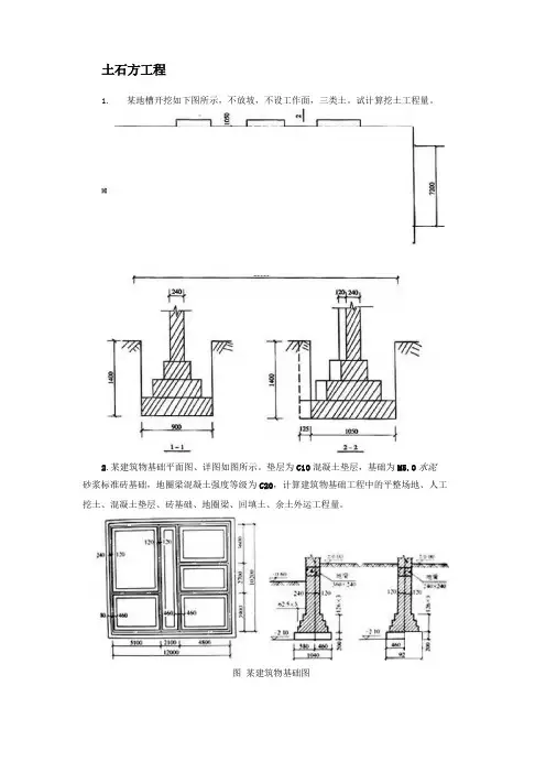
2.某建筑物基础平面图、详图如图所示。
垫层为C10混凝土垫层,基础为M5.0水泥砂浆标准砖基础,地圈梁混凝土强度等级为C20,计算建筑物基础工程中的平整场地、人工挖土、混凝土垫层、砖基础、地圈梁、回填土、余土外运工程量。
图某建筑物基础图3.某工程挖地槽放坡如下图所示,三类土,计算其工程量。
4.挖方形地坑如图所示,工作面宽度150,放坡系数1:0.25,四类土。
求其工程量及其综合基价。
-0.300 X-4S0t> ._______ ^ASQSL5.某构筑物基础为满堂基础,基础垫层为无筋混凝土,长宽方向的外边线尺寸为8.04m 和5.64m,垫层厚20cm,垫层顶面标高为一 4.55m,室外地面标高为0.65m,地下常水位标高为一3.50m,该处土壤类别为三类土,人工挖土,试计算挖土方工程量。
桩与地基基础工程1.某工程桩基础有泥浆护壁钻孔灌注桩共48根。
设计桩长20m,桩顶距自然地平面5m, 桩径为1000mm,混凝土强度等级C30 (40)。
每根桩钢筋笼设计重量为450kg,泥浆外运6km。
试计算桩工程综合单价费(需要考虑翻浆高度,无入岩增加费)。
2.某工程有30根钢筋混凝土桩,根据计算,每根柱下有4根350x350mm方桩,桩长30m (用2根15m方桩焊接接桩),其上设4mX6mX 700mm的承台,桩顶距自然地坪4m,外购商品桩至工地的单价为850元/ m3采用柴油打桩机打桩,桩和承台均采用C20混凝土。
试计算桩基础工程定额直接费用(人工费、材料费、机械费)。
砌筑工程1.如图所示,某单层建筑物为框架结构,墙下均有基础梁,基础梁面标高为-0.200m, 柱截面均为400mmX400mm ,轴线居柱中,所有墙上均设有框架梁,框架梁截面均为400mmX600mm ,板厚100mm ,已知门窗混凝土过梁体积为1.29m 3,求墙体工程量。
第三节工程量计算及定额应用[例1-1]某工程如图所示,人工挖土方不大开挖,有工作面,土质为坚土,试计算条形基础土石方工程量,确定定额项目。
习题1解:L外墙=(27+13.7)*2=81.4mL内墙=9.6-1.14+11.7-1.14=19.02m工程量=81.4*1.54*0.15+81.4*(1.14+0.2*2+0.3*1.75)*1.75+19.02*1.54*0.15+19.02*(1.14+0.2*2+0.3*1.75)*1.75=368.51m3套1-2-12368.51/10*140.13=5163.93元[例1-2]如习题1图所示,计算回填土工程量,确定定额项目。
(已知垫层体积23.01m3,毛石基础体积88.57m3,砖基础体积17.17m3)解:368.33-(23.01+88.57+17.17)=239.58 m3套1-4-121-4-12 夯填土|沟槽、地坑|人工10m3 44.26 44.00 0.26 239.58/10*44.26=1060.38元[例1-3]学院某处预埋铸铁管道,Ⅰ类管沟,管沟宽1米,长51米,挖深0.9米,预埋管道直径600,计算挖土工程量,回填土工程量。
解:1*0.9*51=1*0.9*51-0.22*51=[例1-3]如习题1图铲运机土方大开挖工程,土质为坚土,余土须运至400米,计算挖运土工程量,确定定额项目。
解:=[(13.7+0.77*2)* (27+0.77*2)-2*21.6-2.1*7.2]*0.15+[(13.7+0.72*2)*( 27+0.72*2)+(13.7+0.72*2+0.3*1.75)*( 27+0.72*2+0.3*1.75) +)(*272722*72.0+)(++++7.13(+.0.01372.023.0)75.1*27**72)(27.3.075.1*]* 1.75/3-2*21.6-2.1*7.2=748.63m3套1-3-7,1-3-8748.63m3*27.04/10+748.63m3*5.64*2/10=2868.75元[例1-4]某建筑平面图如下图所示,墙厚240,计算建筑物人工场地平整旳工程量,确定定额项目。
土石方工程量计算方法及实例1.探土工作:首先需要对工程所在地进行土质探查和勘探,通过取样和测试得到土质参数,包括土壤的密度、含水量、摩擦角等,这些参数将用于后续的土方开挖和填筑计算。
2.土方开挖计算:通过土质参数和开挖区域的设计剖面图,可以计算出需要开挖的土方量。
通常采用的方法是将开挖区域按水平方向划分为若干横断面,再按纵向方向划分多个地块,计算每个地块的土方量,最后将各地块的土方量相加得到总的土方量。
3.土方填筑计算:对于需要填筑的区域,首先需要确定填筑的土石方类型和填筑方式,根据填筑区域的设计剖面图,按照横断面和地块的方式计算每个地块的填筑体积,最后将各地块的填筑体积相加得到总的填筑体积。
4.土方回填计算:在土方开挖和填筑中,常常需要对部分土方进行回填,回填的目的是平衡场地的高差和改善地基。
回填计算的方法与土方填筑计算相似,主要是根据回填区域的设计剖面图,按照横断面和地块的方式计算每个地块的回填体积,最后将各地块的回填体积相加得到总的回填体积。
下面以一个土石方工程为例进行详细说明。
假设有一座道路工程,其横断面图如下所示:```------------------------------------------------------30m------------------------------------------------------^5mV10mV8mV20mV------------------------------------------------------```该道路的设计宽度为10米,包括两条行车道,中间隔离带和人行道。
根据横断面图,可以将土方开挖分为三个地块,分别对每个地块进行土方开挖计算。
1.地块1:宽度为5米,长度为30米,深度为2米。
土方开挖体积=5m×30m×2m=300立方米2.地块2:宽度为10米,长度为10米,深度为2.5米。
土方开挖体积=10m×10m×2.5m=250立方米3.地块3:宽度为8米,长度为20米,深度为1米。
建筑工程预算工程量土石方工程计算例题:例题:某工程基础平面图、剖面图如下所示,自然地坪平均标高为设计室外地坪标高。
已知室外设计地坪以下各个项目的工程量为:垫层体积4.12m3,砖基础体积24.62m3;地圈梁(底标高为设计室外地坪标高)体积2.55m3。
试求建筑物平整场地、挖土方、基础回填土、室内回填土、余(取)土运输工程量(不考虑挖填土方运输)。
图示尺寸单位为毫米,按三类土计算。
解:1、场地平整面积S=(9+0.24+4)×(6+0.24+4)=135.58 m22、挖土方:(采用人工放坡开挖)H=2.0-0.3=1.7m 放坡系数K=0.33 工作面宽度C=300mm断面1:断面面积S1=(B+2C+KH) ×H=(1+2×0.3+0.33×1.7) ×1.7=3.6737 m2断面长度L1=(9+6)×2+[9-(0.3×2+0.5×2)]=37.4m断面1开挖体积V1=S1×L1=3.6737×37.4=137.40 m3断面2:断面面积S2=(B+2C+KH)×H=(0.8+2×0.3+0.33×1.7)×1.7=3.3337 m2断面长度L2=2×(3-10.322+⨯-10.322+⨯)=2.8m断面1开挖体积V2=S2×L2=3.3337×2.8=9.33 m3挖土方V= V1+ V2=137.40+9.33=146.73 m33、基础回填土体积=146.73-4.12-24.62=117.99 m34、室内回填土厚度=0.3-0.1=0.2m室内回填土净面积=(4.5-0.24)×(3-0.24)×4 =47.03 m2室内回填土体积=47.03×0.2=9.41 m35、余(取)土运输工程量=挖土方-基础回填土体积-室内回填土体积=146.73-117.99-9.41=19.33 m3。
土石方工程1.如下图所示,底宽1.2m,挖深1.6m土质为三类土,求人工挖地槽两侧边坡各放宽多少?【解】已知:K=0.33,h=1.6m,则:每边放坡宽度b=1.6×0.33m=0.53m地槽底宽1.2m,放坡后上口宽度为:(1.2+0.53×2)m=2.26m2.某地槽开挖如下图所示,不放坡,不设工作面,三类土。
试计算其综合基价。
【解】外墙地槽工程量=1.05×1.4×(21.6+7.2)×2m3=84.67m3内墙地槽工程量=0.9×1.4×(7.2-1.05)×3m3=23.25m3附垛地槽工程量=0.125×1.4×1.2×6m2=1.26m3合计=(84.67+23.25+1.26)m3=109.18m3套定额子目1-331453.23/100m2×767.16=11148.60(元)挖地槽适用于建筑物的条形基础、埋设地下水管的沟槽,通讯线缆及排水沟等的挖土工程。
挖土方和挖地坑是底面积大小的区别,它们适用建造地下室、满堂基础、独立基础、设备基础等挖土工程。
3.某建筑物基础如下图所示,三类土,室内外高差为0.3米。
计算:(1)人工挖地槽综合基价;(2)砖基础的体积及其综合基价。
砖基础体积=基础顶宽×(设计高度+折加高度)×基础长度砖基础大放脚折扣高度是把大放脚断面层数,按不同的墙厚,折成高度。
折加高度见下表。
表1 标准砖基础大放脚等高式折加高度(单位:m)【解】(1)计算挖地槽的体积:地槽长度=内墙地槽净长+外墙地槽中心线长={[5.00-(0.45+0.3+0.1)×2]+[7+5+7+5]}m=27.30m地槽体积=(0.9+2×0.3+2×0.1)×1.0×27.30m3=46.41m3套定额子目1-331453.23/100m2×46.41=674.44(元)(2)计算砖基础的体积:本工程为等高式大放脚砖基础,放脚三层,砖,查上表得折扣高度为0.259。
砖基础截面积为:(0.259+1.2)×0.365=0.5325(m2)砖基础长=内墙砖基础净长+外墙砖基础中心线长={(5.0-0.37)+(7+5+7+5)}m=28.63m砖基础体积=基础截面面积×基础长=0.5325×28.63m3=15.25m3套定额子目3-11461.08/10m2×15.25=2228.15(元)4.某建筑物的基础如下图所示,三类土,计算人工挖地槽工程量及其综合基价。
` 【解】计算次序按轴线编号,从左至右,由下而上。
基础宽度相同者合并。
11、12轴:室外地面至槽底的深度×槽宽×长=(0.98-0.3)×(0.92+0.3×2)×9×2m3=25.99m3①、②轴:(0.98-0.3)×(0.92+0.3×2)×(9-0.68)×2m3=24.03m3③、④、⑤、⑧、⑨、⑩轴:(0.98—0.3)×(0.92+0.3×2)×(7-0.68-0.3×2)×6m3=49.56m3⑥、⑦轴:(0.98-0.3)×(0.92+0.3×2)×(8.5-0.68-0.3×2)×2m3=20.85m3A、B、C、D、E、F轴:(0.84-0.3)×(0.68+0.3×2)×[39.6×2+(3.6-0.92)]m3=84.89m3挖地槽工程量=(25.99+24.03+49.56+20.85+84.89)m3=m3套定额子目1-331453.23/ 100m2×205.32=2983.775.某工程挖地槽放坡如下图所示,三类土,计算其综合基价。
【解】工程量=(1.5+1.5+0.594×2)×1.8÷2×[(21十12+15)×2+(15-1.5)]m2=412.73m2套定额子目1-341530.46/ m2×412.73=6316.67(元)6.如图所示,求人工挖沟槽支挡土板土方工程量(二类土)及其综合基价。
【解】(1)挖土方工程量:(1.4+0.1×2+0.15×2)×1.5×(20+10)×2m3=1.9×1.5×60m3=171.00m3定额子目1-29换(767.16×1.1)/100m2×171.00=1443.03(元)(2)挡土板工程量:1.5×2×(20+10)×2m2=3×60m2=180m2套定额子目1-621948.57/100m2×180=3507.43(元)人工挖地槽定额,一般以土壤类别和挖土深度划分定额子目,工程内容包括挖土、装土、抛土于槽边1m以外,修理槽壁、槽底,在编制工程预算时,没有地质资料,又不易确定土壤类别时暂按干土、坚土计算。
在竣工结算时按实际土壤类别加以调整。
7.挖方形地坑如图所示,工作面宽度150,放坡系数1:0.25,四类土。
求其工程量及其综合基价。
【解】方形不放坡地坑计算公式:V=abH,坑深2.8m,放坡系数0.25时V=(2.8+0.15×2+0.25×2.8)2×2.8+1/3×0.252×2.83m3=40.89m3套定额子目1-512567.43/100m2×40.89=1049.81(元)8.如图所示,求其工程量及综合基价。
土质为三类土,有垫层,一次放坡基槽,坡度0.33。
【解】工程量=(2+0.15×2+2+0.15×2+1.9×0.33×2)×1.9÷2×[(9+7.5+7.5+8.4)×2+(8.4-2-0.15×2)×2]m3=428.22m3套定额子目1-341530.46/100m2×428.22=6553.74(元)9.某建筑物基础的平面图、剖面图如图所示。
已知室外设计地坪以下各工程量:垫层体积2.4m2,砖基础体积16.24m3。
试求该建筑物平整场地、挖土方、回填土、房心回填土、余土运输工程量(不考虑挖填土方的运输),人工装土翻斗车运土,运距300m。
图中尺寸均以mm计。
放坡系数K=0.33,工作面宽度c=300mm。
【解】平整场地面积F=(a+4)×(6+4)=(3.2×2+0.24+4)×(6+0.24+4)m2=108.95m2套定额子目1-56 218.44/100m2×108.95=237.99(元)挖地槽体积(按垫层下表面放坡计算)V1=H(a+2c+K×H)L=1.5×(0.8+2×0.3+0.33×1.5)×[(6.4+6)×2+(6-0.4×2-0.3×2)]m3=83.50m3套定额子目1-331453.23/100 m3×83.50=1213.45(元)基础回填体积V2=挖土体积一室外地坪以下埋设的砌筑量=(83.50—2.4—16.24)m3=64.86m3套定额子目1-54680.64/100m3×64.86=441.46(元)房心回填土体积V3=室内地面面积×h=(3.2-0.24)×(6—0.24)×2×0.27m3=9.21m3套定额子目1-54680.64/100 m3×9.21=62.69(元)余土运输体积V4=挖土体积一基础回填土体积-房心回填土体积=(83.50-64.86-9.21)m3=9.43m3套定额子目1-1361272.04/100 m3×9.43=117.15(元)10.某构筑物基础为满堂基础,基础垫层为无筋混凝土,长宽方向的外边线尺寸为8.04m和5.64m,垫层厚20cm,垫层顶面标高为一4.55m,室外地面标高为0.65m,地下常水位标高为-3.50m,该处土壤类别为三类土,人工挖土,试计算挖土方工程量。
【解】基坑如图所示,基础埋至地下常水位以下,坑内有干、湿土,应分别计算:(1)挖干湿土总量:查表得k=0.33,k2h3=×0.332×3.93=2.15,设垫层部分的土方量为V1,垫层以上的挖方量为V2,总土方为V0,则V0=V l+V2=a×b×0.2+(a+k×h)(b+k×h)×h+k2h3=(8.04×5.64×0.2+9.327×6.927×3.9+2.15)m3=(9.07+254.12)m3=263.19m3(2)挖湿土量:按图,放坡部分挖湿土深度为1.05m,则告k2h3=0.042,设湿土量为V3,则V3=V1+(8.04+0.33×1.05)(5.64+0.33×1.05)×1.05+0.042=(907+8.387×5.987×1.05+0.042)m3=61.84m3定额子目1-5换(1111.76+668.01×0.18)/100m2×61.84=761.87(元)(3)挖干土量V4:V4=V o—V3=(263.19—61.84)m3=201.35m3套定额子目1-51111.76/100m2×201.35=2238.53(元)。