第1讲:第一章:工艺流程图
- 格式:ppt
- 大小:1.09 MB
- 文档页数:58
流程图、PI图入门知识一、基本定义1、工艺流程图﹙又叫PI图﹚,通过图解的形式,表示出在化工生产过程中,由原料制得产品过程的物料和能量发生的变化及其流向;表示出生产中采用的化工过程和设备,PF图是了解工艺原理进行物料衡算和热量衡算的基础。
2、带控制点工艺流程图﹙又叫PI图﹚,是在PF图的基础上,更详细地表达工艺过程,并将所有的仪表及控制回路,设备主要指标及工艺管道表在图上。
PI图较全面地反映了特定的化工生产过程。
3、带控制点工艺流程的内容①工艺设备一览表所列设备。
②所有的工艺管道,包括阀门、管件、管道附件等,并标注出所有的管段号及管径、管材、保温情况等。
③标注出所有的检测仪表、调节控制系统、分析取样系统。
④对成套设备或机组在带控制点工艺流程图中以双点划线框图表示制造厂的供货范围,仅注明外围与之配套的设备、管线衔接关系。
⑤对于在工艺中有特殊要求的要在带控制点工艺流程图中表示。
⑥对于管道代号、图例、管线编号说明、物料代号、设备位号、装置代号、仪表功能字母及被测变量代号等需附注或说明。
⑦图签:包括设计单位名称、工程项目名称、设计阶段、设计项目、专业、比例、图名等。
二、工艺流程图的绘制工艺流程图的绘制时不一定按比例绘制,设备及工序方块轮廓线用细实线,并表注设备名称和代号,主要物料线用粗实线,辅助物料用中粗线,并对物料的流向用箭头表示,在流程线的起始和终了部位用文字注明物料名称、来源和去向。
对原料、辅助材料、产品及通过某设备或工序而使其流量、温度、压力、组分发生变化的中间物料进行标注。
三、工艺流程图的识读及注意事项识读带控制点的工艺流程图的主要目的是了解和掌握物料介质的工艺流程,设备的数量、名称和设备代号,所有管线的管段号、物料介质、管道规格、管道材质,管件、阀件及控制点﹙包括测压点、测温点、流量、分析点﹚的部位和名称及自动控制系统,与工艺设备有关的辅助物料﹙水、汽﹚的使用情况。
以便在检修和工艺操作实践中,做到心中有数。
工艺流程图识图基础知识工艺流程图是工艺设计的关键文件,同时也是生产过程中的指导工具。
而在这里我们要讲的只是其在运用于生产实际中大家应了解的基础知识(涉及化工工艺流程设计的内容有兴趣的师傅可以找些资料来看)。
它以形象的图形、符号、代号,表示出工艺过程选用的化工设备、管路、附件和仪表等的排列及连接,借以表达在一个化工生产中物量和能量的变化过程。
流程图是管道、仪表、设备设计和装置布置专业的设计基础,也是操作运行及检修的指南。
在生产实际中我们经常能见到的表述流程的工艺图纸一般只有两种,也就是大家所知道的PFD和P&ID。
PFD实际上是英文单词的词头缩写,全称为Process Flow Diagram,翻译议成中文就是“工艺流程图”的意思。
而P&ID也是英文单词的词头缩写,全称为Piping and Instrumentation Diagram,“&”在英语中表示and。
整句翻译过来就是“工艺管道及仪表流程图”。
二者的主要区别就是图中所表达内容多少的不同,PFD较P&ID内容简单。
更明了的解释就是P&ID图纸里面基本上包括了现场中所有的管件、阀门、仪表控制点等,非常全面,而PFD图将整个生产过程表述明白就可以了,不必将所有的阀门、管件、仪表都画出来。
另外,还有一种图纸虽不是表述流程的,但也很重要即设备布置图。
但相对以上两类图而言,读起来要容易得多,所以在后面只做简要介绍。
下面就介绍一下大家在图纸中经常看到的一些内容及表示方法。
1 流程图主要内容不管是哪一种,那一类流程图,概括起来里面的内容大体上包括图形、标注、图例、标题栏等四部分,我们在拿到一张图纸后,首先就是整体的认识一下它的主要内容。
具体内容分别如下:a 图形将全部工艺设备按简单形式展开在同一平面上,再配以连接的主、辅管线及管件,阀门、仪表控制点等符号。
b 标注主要注写设备位号及名称、管段编号、控制点代号、必要的尺寸数据等。
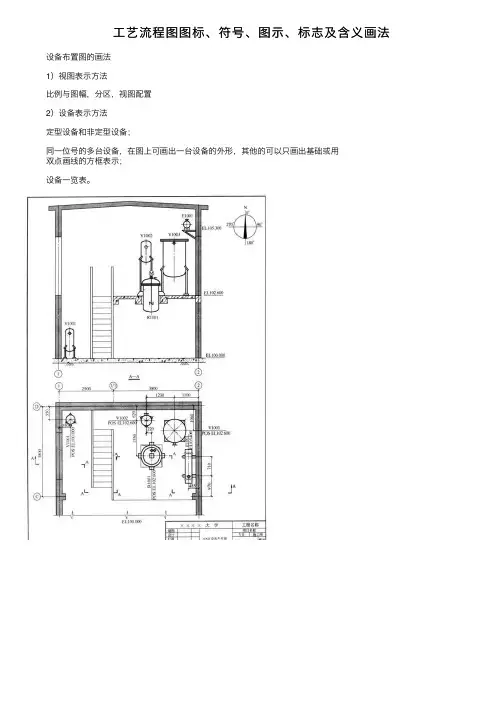
⼯艺流程图图标、符号、图⽰、标志及含义画法设备布置图的画法1)视图表⽰⽅法⽐例与图幅,分区,视图配置2)设备表⽰⽅法定型设备和⾮定型设备;同⼀位号的多台设备,在图上可画出⼀台设备的外形,其他的可以只画出基础或⽤双点画线的⽅框表⽰;设备⼀览表。
特征管⼝的⽅位⾓2.3设备布置图的阅读某物料残液蒸馏系统设备布置图样中有平⾯图和I-I剖⾯图。
按⼯艺要求,冷凝器E0401架空,其物料出⼝的管⼝⾼于真空受液槽V0408A和V0408B的进料⼝,物料可以⾃流到V0408A和V0408B中,为便于E0401的⽀承和避免遮挡窗户,将其靠墙并靠近建筑轴线②附件布置。
为满⾜操作维修要求,各设备之间留有必要的间距。
剖⾯图表达了室内设备在⽴⾯上的位置关系,剖⾯图的剖切位置在平⾯图上I-I处,蒸馏釜和真空受槽A和B布置在标⾼为5m的楼⾯上,冷凝器布置在标⾼为6.95m处。
3、管道布置图3.1、管道布置图的图⽰1)⼀组视图⽤平⾯图、剖视图等表⽰整个车间(装置)的设备、建筑物的简单轮廓以及管道管件、阀门、仪表控制点等的布置安装情况。
2)尺⼨标注管道管件、阀门、控制点等的平⾯位置尺⼨和标⾼以及建筑物轴线编号、设备位号及说明等。
3)指北针表⽰管道安装的⽅位基准。
4)标题栏注写图名、图号、⽐例、修改、签字等。
5)管⼝表在图纸右上⾓,列出与所有设备管⼝有关内容的管⼝表。
3.2、管道的图⽰⽅法1)管道视图的配置与画法管道视图的配置2)管道视图的画法a.设备的画法b.管道的画法管道的画法替换⾼清⼤图管道的连接画法管道⽤三通的表⽰法各种管道的画法c.管道附件的画法⽰例:根据图(a)所⽰管道(装有阀门)轴测图画出其平⾯图和⽴⾯图。
分析:该段管道有两部分,主管道的⾛向为⾃下向上⼀向后⼀向左⼀向上⼀向后;⽀管向左。
管道上有四个截⽌阀,上部两个阀的⼿轮朝上(阀门与管道为法兰连接),中间⼀个阀的⼿轮朝右(阀门与管道为螺纹连接),下部⼀个阀的⼿轮朝前(阀门与管道为法兰连接)。
工艺流程图识图基础知识工艺流程图是工艺设计的关键文件,同时也是生产过程中的指导工具.而在这里我们要讲的只是其在运用于生产实际中大家应了解的基础知识(涉及化工工艺流程设计的内容有兴趣的师傅可以找些资料来看).它以形象的图形、符号、代号,表示出工艺过程选用的化工设备、管路、附件和仪表等的排列及连接,借以表达在一个化工生产中物量和能量的变化过程。
流程图是管道、仪表、设备设计和装置布置专业的设计基础,也是操作运行及检修的指南。
在生产实际中我们经常能见到的表述流程的工艺图纸一般只有两种,也就是大家所知道的PFD和P&ID.PFD实际上是英文单词的词头缩写,全称为Process Flow Diagram,翻译议成中文就是“工艺流程图”的意思。
而P&ID也是英文单词的词头缩写,全称为Piping and Instrumentation Diagram,“&”在英语中表示and。
整句翻译过来就是“工艺管道及仪表流程图"。
二者的主要区别就是图中所表达内容多少的不同,PFD较P&ID内容简单.更明了的解释就是P&ID图纸里面基本上包括了现场中所有的管件、阀门、仪表控制点等,非常全面,而PFD图将整个生产过程表述明白就可以了,不必将所有的阀门、管件、仪表都画出来。
另外,还有一种图纸虽不是表述流程的,但也很重要即设备布置图。
但相对以上两类图而言,读起来要容易得多,所以在后面只做简要介绍。
下面就介绍一下大家在图纸中经常看到的一些内容及表示方法.1 流程图主要内容不管是哪一种,那一类流程图,概括起来里面的内容大体上包括图形、标注、图例、标题栏等四部分,我们在拿到一张图纸后,首先就是整体的认识一下它的主要内容。
具体内容分别如下:a 图形将全部工艺设备按简单形式展开在同一平面上,再配以连接的主、辅管线及管件,阀门、仪表控制点等符号。
b 标注主要注写设备位号及名称、管段编号、控制点代号、必要的尺寸数据等。
项目四、工艺流程图的识读与绘制一、什么是工艺流程图工艺流程图是指将一个产品或者过程的制作流程绘制出来的图表。
它通常是一张图表或者一组图表,以流程图的形式描绘每个步骤所需的操作、材料、工具和资源,通常用来指导和监控生产流程。
一个典型的工艺流程图包含以下五个部分:1.资源和设备列表:描述了在流程中涉及的资源和设备。
2.原料及其他要素:描述了原料以及其他要素在流程图中所占的位置和作用。
3.工作步骤:描述了每一个生产过程中必须完成的工作步骤。
4.流程控制:描述了完成每个步骤所需的关键指令或控制信号。
5.流程输出:描述了生产过程的结果,包括产品或服务,以及生产过程中可能出现的错误或过程控制问题。
二、工艺流程图的识读在进行工艺流程图的识别时,需要对图中每个元素的功能和属性进行分析。
以下是一些常见的元素:1.开始或结束:通常表示流程的开始或结束点。
2.操作:通常是一个矩形或圆角矩形,表示需要进行的操作或步骤。
3.判断:通常是一个菱形,表示需要进行选择或决策。
4.文本框:在操作或判断元素中,可能需要添加补充说明或注释。
5.连接线:连接不同的元素或操作步骤。
以下是一个工艺流程图的示例:开始 --> 操作A --> 判断A --> 操作B1 --> 操作B2 --> 结束| |V V操作C --> 操作D在这个示例中,开始表示了整个工艺流程的开始,接下来的操作A表示第一个操作步骤,判断A表示需要进行决策,如果判断成功,则会执行操作B1和操作B2,否则直接结束,如果执行完操作B1和操作B2后,会结束工艺流程。
操作C 和操作D是并行的操作,意味着在执行操作A之后,操作C和操作D可以同步进行。
三、工艺流程图的绘制绘制一个清晰易懂的工艺流程图需要遵循以下步骤:1. 确定步骤和控制点在创建一个工艺流程图之前,需要先确定需要进行的步骤和控制点。
可以通过列出流程中的每个步骤和所需的资源来完成这个过程。
工艺流程图画法工艺流程图是以图形的形式表示和描述某个工艺过程的方法。
它是将工艺过程中的各个步骤、工作内容、工作流程、工作对象等用图形符号表示出来,以达到易于理解和方便操作的目的。
下面将介绍一种常用的工艺流程图画法。
第一步:确定绘图对象工艺流程图通常是针对一个特定的工艺过程进行绘制的。
在开始绘图之前,需要明确绘图的对象是什么,即要描述和表示的是哪个工艺过程。
例如,可以选择某种产品的生产工艺过程作为绘图对象。
第二步:收集信息在绘制工艺流程图之前,需要收集和整理相关的信息。
这些信息包括:工艺过程的各个步骤,每个步骤的工作内容,步骤之间的关系和流程,以及可能的变量和控制要素等。
第三步:确定符号和表示方式确定使用何种符号和表示方式来表示不同的工作步骤、操作和对象。
常见的符号包括:圆形表示操作步骤,矩形表示操作对象,箭头表示工作流程和步骤之间的关系,加号表示增加的内容,减号表示删除的内容,等等。
可以根据需要自行设计符号,但要确保符号的含义清晰易懂。
第四步:绘制主框架根据收集到的信息和确定的符号,绘制工艺流程图的主框架。
主框架通常是一个大的矩形,表示整个工艺过程的范围。
根据具体情况,可以将主框架分为不同的区域或列,用于表示不同的操作步骤或工作对象。
第五步:添加步骤和操作在主框架中,按照工艺过程的顺序添加各个步骤和操作。
使用预先确定的符号来表示每个步骤和操作。
步骤和操作之间用箭头表示流程的方向和关系。
第六步:标记增加和删除的内容如果工艺流程中有增加和删除的内容,需要使用加号和减号来标记并表示。
加号表示增加的内容,减号表示删除的内容。
可以将加号和减号放在相应的步骤或操作上方或下方。
第七步:添加变量和控制要素根据需要,添加与工艺流程相关的变量和控制要素。
这些变量和控制要素可以通过箭头和符号来表示。
第八步:完善细节在绘制工艺流程图的过程中,需要不断调整和完善细节。
确保每个步骤和操作都清晰易懂,流程和关系都正确无误。
可以使用不同的颜色、线条粗细、文字等方式来突出重点或区分不同的内容。