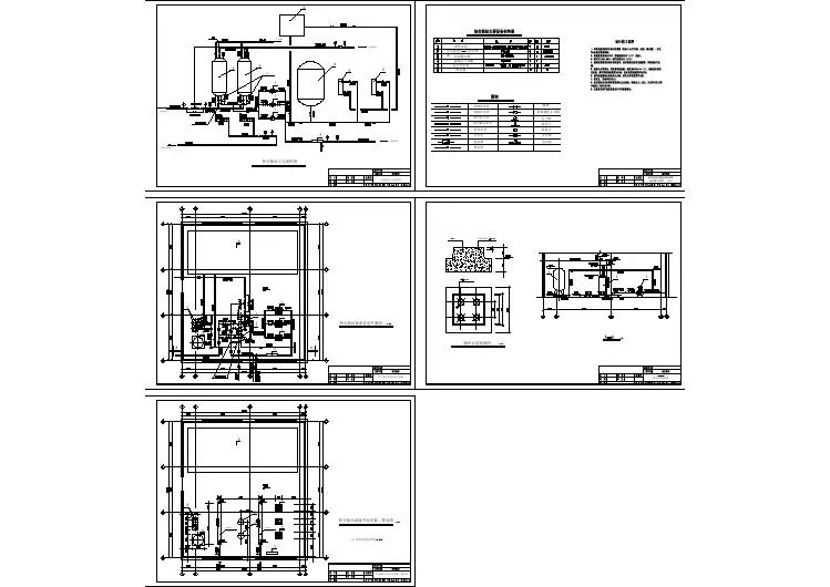
换热站工艺流程
- 格式:doc
- 大小:22.00 KB
- 文档页数:2
一、总过程一次热源通过管道送到换热站,并进入换热器内,通过换热器的换热,将一次热源交换到二次供热管道内,二次供热管道引出至热用户。
二次水经过过滤除污,经由循环进入换热器,被蒸汽或高温水加热后进行供热,蒸汽或高温水进入板式换热器后,变成凝结水或高温回水,返回热源,进行一二次给你个热系统的会热循环。
补水泵将软水打入系统中医保持系统压力恒定。
1、一次水一般是指的热源(锅炉房、各类热泵、热电联产集中供热)到换热器的水系统(锅炉热水),热源为锅炉房时,供回水温度不得小于20摄氏度。
& x( {+ l2、二次水一般是指的换热器到采暖末端的水系统(采暖系统与热源间接联系)。
3、汽-水换热用板换,对蒸汽压力和温度有要求。
压力低于换热器的承载压力,温度低于胶垫的使用温度。
对蒸汽压力和温度都比较低,压力一般要小于2.5MPa而且板换汽水换热效率较低。
4、当热水、冷水系统补水能力有限需控制管道充水流量,或蒸汽管道气东暖管需控制蒸汽流量时,管道阀门应装设口径较小的旁通阀作为控制阀门。
因为热电厂出来的水,压力太大,温度太高,普通用户暖气承受不了这个压力。
所以经过一道程序,把水的压力和温度降到合理标准。
这里有两个循环系统:(1)市政的供回水;(2)用户的供回水。
二者之间没有物质的交换。
就在换热器里面换一下热量。
二、换热器主要设备1、换热器转换供热介质种类改变供热介质参数的设备。
按照热交换的介质分类:汽水换热器水水换热器按照传热方式分类:表面式换热器:冷热两种流体被金属壁隔开,通过金属壁面进行热交换的换热器,如壳管式、容积式、板式、螺旋板式、浮动盘管式等;混合式换热器:冷热两种流体直接接触进行混合而实现热交换的换热器,如淋水式喷管式2、循环泵为二次循环回水提供动力的设备3、除污器对系统介质的杂质进行过滤器清理的设备4、补水泵对系统介质的损失进行补充的设备5、疏水器自动的排除加热器设备或蒸汽管道中的凝结水及空气等不凝结气体且不漏出蒸汽的设备6、水箱储备补水水源(凝结水自来水)的设备7、配电设备主要对泵等设备控制和监控作用8、计量设备对供热进行参数进行统计计算的作用9、其他各类阀门,如球阀、止回阀等。
换热站工程施工流程是一个复杂的系统工程,涉及到多个环节的配合和协调。
下面简要介绍一下换热站工程施工的基本流程。
一、前期准备1. 工程调研:对换热站工程进行现场勘查,了解地形、地貌、地质、交通、供水、供电等情况,为工程设计提供基础资料。
2. 设计阶段:根据工程调研结果,进行换热站工程的设计,包括土建工程、设备选型、管道布局、控制系统等,并编制施工图和施工方案。
3. 招投标:根据设计文件,编制招标文件,进行公开招投标,选定施工单位和材料供应商。
4. 签订合同:与中标单位签订施工合同,明确双方的权利和义务。
5. 施工现场准备:对施工场地进行清理,设置临时设施,如办公室、仓库、施工工棚等。
6. 施工人员培训:对施工人员进行技术培训和安全教育,确保施工人员掌握相关技能和安全生产知识。
二、施工阶段1. 土建工程:进行换热站建筑物的施工,包括基础、主体结构、屋面、地面等。
2. 设备安装:按照设计文件要求,安装换热设备、管道、阀门、控制系统等设备。
3. 管道工程:进行管道铺设、焊接、防腐、保温等施工。
4. 系统调试:对换热站系统进行调试,确保设备运行正常,系统安全可靠。
5. 验收阶段:施工完成后,组织验收,对工程质量、设备性能、系统运行等进行检查,确保符合设计要求。
6. 培训和移交:对业主进行设备操作和维护培训,办理工程移交手续。
三、后期维护1. 设备运行:换热站工程竣工后,进入运行阶段,对设备进行日常巡检、维护和保养。
2. 售后服务:提供技术支持,解答业主在运行过程中遇到的问题,定期回访,了解设备运行情况。
3. 定期检查:按照相关规定,定期对换热站设备进行检验、检测,确保设备安全运行。
4. 技术更新:随着科技的发展,及时关注新技术、新设备,为业主提供技术升级方案。
总之,换热站工程施工流程包括前期准备、施工阶段和后期维护三个阶段。
在施工过程中,要注重质量控制、安全生产和环境保护,确保换热站工程顺利实施,为业主提供优质、高效的供暖服务。
第1篇一、前期准备阶段1. 设计审查:对换热站的设计方案进行审查,确保其符合相关规范要求,满足供热需求。
2. 工程招标:根据设计文件,进行工程招标,确定施工单位。
3. 施工组织设计:施工单位编制详细的施工组织设计,明确施工方案、进度计划、质量保证措施、安全措施等。
4. 施工图纸会审:组织各参建单位进行施工图纸会审,解决图纸中的疑问,确保施工顺利进行。
5. 材料设备采购:根据设计要求,采购所需的材料、设备,并进行质量验收。
二、基础施工阶段1. 土方开挖:按照设计要求进行土方开挖,确保基础垫层厚度满足要求。
2. 垫层铺设:铺设C15混凝土垫层,确保平整度,为后续施工提供基础。
3. 基础施工:根据设计图纸,进行基础施工,包括柱、墙、梁等构件的浇筑。
4. 防水施工:在基础施工完成后,进行防水层施工,确保基础防水效果。
5. 地下管道施工:按照设计要求,进行地下管道的铺设,包括热力管道、循环管道等。
三、主体结构施工阶段1. 钢结构安装:按照设计要求,进行钢结构安装,确保焊接质量。
2. 混凝土浇筑:按照设计要求,进行混凝土浇筑,确保结构强度。
3. 防火施工:在主体结构施工过程中,进行防火涂料涂抹,确保防火效果。
4. 保温施工:按照设计要求,进行保温材料施工,确保换热站保温效果。
四、设备安装阶段1. 换热器安装:按照设计要求,进行换热器安装,确保安装质量。
2. 管道安装:按照设计要求,进行管道安装,包括一次管网、二次管网等。
3. 阀门安装:按照设计要求,进行阀门安装,确保阀门启闭灵活。
4. 循环水泵安装:按照设计要求,进行循环水泵安装,确保水泵运行稳定。
5. 电气设备安装:按照设计要求,进行电气设备安装,包括变压器、配电柜等。
五、调试阶段1. 系统试压:对供热系统进行试压,确保管道、阀门等无泄漏。
2. 系统冲洗:对供热系统进行冲洗,清除管道内的杂质。
3. 系统调试:对供热系统进行调试,确保系统运行稳定。
4. 系统试运行:进行系统试运行,检验供热效果。
换热站安装工艺1 适用范围本工艺标准适用于民用和一般工业建筑用换热站安装。
2 引用标准GB50242《建筑给水排水及采暖工程施工质量验收规范》3 材料设备要求3.1 换热设备汽-水换热器、水-水换热器、循环水泵、分汽缸、分水缸、循环水箱、补给水泵、补给水箱、除污器、疏水阀等设备型号、规格、性能参数均符合设计要求。
3.2 换热器工艺管道用管子要符合设计要求,采用流体用管道,工作压力和强度应在材料许可范围内。
4 主要机具4.1 机具:卷扬机或绞磨、千斤顶、链式起重机、砂轮机、套螺纹机、手电钻、冲击钻、砂轮锯、电焊机等。
4.2 工具:各种扳手、夹钳、试压泵、手锯、榔头、布剪子、滑轮、道木、滚杠等。
4.3 量具:钢直尺、钢卷尺、水平仪、水平尺、游标卡尺、焊缝检测器、温度计、压力表、线坠等。
5 作业条件5.1 施工员应熟悉掌握换热器安装设计图纸,换热站内设备使用说明书。
5.2 施工现场应具备满足施工用的水源、电源,设备运输车辆进出的道路,材料及机具存放场地和仓库等,冬雨季施工时应油防寒防雨措施及消防安全措施。
5.3 设备基础完工并达到安装强度,土建施工预备的孔洞、沟槽及各类预埋铁件的位置、尺寸、数量符合设计图要求。
6 操作工艺6.1 工艺流程:6.2 设备安装6.2.1 设备安装应按说明书及GB50231《机械设备安装工程施工及验收规范》进行。
设备安装前,应对设备基础进行验收,基础验收包括两方面:a 基础的内在质量验收:安装前设备基础的混凝土强度不低于设计强度的75%。
b 基础几何尺寸检查:基础的报告、坐标位置应符合设计要求。
6.2.2 水泵基础应高出地面0.1m以上,水泵基础之间距离和水泵基础与墙距离应大于0.7m,如两台水泵为联合基础时机组之间突出部分净距应大于0.3m,两台以上水泵不应做联合基础。
6.2.3 换热器侧面离墙应具有不小于0.8m之通道,容积式换热器罐底距地面不应小于0.5m,罐后距离墙面不应小于0.8m,罐顶距离顶梁底不小于2.0m。
换热站工艺流程
《换热站工艺流程》
换热站工艺是指利用换热设备将能量从一种介质传递到另一种介质的过程。
换热站是利用这种工艺将热能传递到需要加热的介质中的设备。
换热站主要用于工业生产中的加热和供热过程,其工艺流程包括接收、储存、输送、处理和运行监控。
首先是换热介质的接收和储存。
换热站需要定期接收燃料或其他能量介质,并储存在储罐或其他容器中,以备后续使用。
在接收和储存过程中需要严格遵守安全规定,确保安全生产。
其次是换热介质的输送。
一旦储存好的换热介质需要使用时,需要通过管道系统将其输送到换热设备中。
输送过程中需要保证介质的流动稳定、温度适宜,以确保换热效果和设备的正常运行。
接着是换热介质的处理。
换热介质可能需要经过一些处理过程才能达到使用要求,比如过滤、加热、调节温度等。
这些处理过程需要严格控制,以保证介质的质量和稳定性。
最后是换热站的运行监控。
换热站在使用过程中需要进行实时监控,包括介质流量、温度、压力等参数的监测。
通过监控可以及时发现问题并采取措施处理,确保设备的安全和稳定运行。
总的来说,换热站工艺流程涉及到介质的接收、储存、输送、
处理和运行监控等环节,需要严格遵守工艺规程和安全规定,确保换热设备的正常运行和安全生产。
换热站系统工艺流程.热交换站工艺根据设计院图纸及技术资料,热交换站采用汽水加热方式,热水供应系统采用闭式系统,蒸汽由工业场地锅炉房提供。
.设计要求工业场地北部行政办公楼、培训中心、单身公寓以及职工餐厅热水总量为:。
热水计算温度℃。
热水系统用水最不利点为北部行政区办公楼最高层热水用水点,入户管道所需压力约为。
热交换站热水供水压力为。
.工艺流程根据热水量计算,蒸汽耗量为,由锅炉房通往热交换站的蒸汽管道管径为,压力为。
过桥热回水管的管径采用。
来自锅炉房压力为的饱和蒸汽通过容积式浮动盘管换器将热量传给二次水,使二次水温度达到设定温度℃,二次水被加热后进入热水循环系统,一次蒸汽被冷却后变为冷凝水,送回锅炉房软水箱。
本系统在蒸汽入口处安装电动温控调节阀,用以调节蒸汽耗量,保证二次水出口温度达到设定工作温度。
在二次水进口处安装有安全阀,确保设备在安全工况下运行。
电动温控调节阀通过二次水出口温度传感器的信号调节蒸汽耗量,达到自动温度控制的目的,为解决传统卫生热水系统管道、换热设备、水龙头、淋浴喷头结垢和堵塞现象,在自来水补水系统进入换热系统时增加了阻垢加药设备。
.设备配置为确保系统安全、稳定、可靠运行,换热站系统主要设备均采用一用一备的配置方式运行,任何一台设备出现故障均可切换到另一台设备工作,以保证系统工作的连续性。
运行方式分手动、自动两种工作方式,整个系统为闭式系统,即用户用水时,自来水通过变频定压补水机组从不锈钢水箱抽水补进系统,维持系统恒压。
为保证用户长时间不用水和随时打开水龙头均有热水,在系统内装有循环水泵推动系统内水循环,确保系统供水温度恒定,供水水压恒定,通过使用我公司自行开发的换热站控制系统,真正实现了换热站恒温恒压智能化无人值守的功能。
(工艺流程见下页附图)。
换热站工艺流程换热站是指用于实现热能的传递和转换的设备。
换热站通常包括换热器、泵和阀门等组件。
下面是一个典型的换热站的工艺流程。
首先,热能从原料中产生。
常见的热能源包括锅炉、热水炉和热泵等。
这些热能源将能量传给换热站。
在换热站中,热能源通过管道输送到换热器。
换热器是一种设备,用于将热能从热源传递给需要加热的介质。
换热器通常由许多细小的管道组成,通过这些管道传输热能。
热能在换热器中通过对流、传导和辐射等方式传递给介质。
常见的换热介质包括水、蒸汽和油等。
热能的传递导致介质的温度升高。
当介质达到目标温度时,泵开始工作。
泵是用来输送介质的设备。
它通过产生压力将介质从换热器中抽出,并将其推向需要加热的系统。
泵通过管道将介质输送到所需的位置。
在传输过程中,泵必须克服摩擦力和管道阻力等因素。
泵的流量和压力必须满足系统的要求。
当介质到达所需位置时,阀门开始发挥作用。
阀门通常用于控制介质的流量和压力。
它们可以打开或关闭以调节系统的运行情况。
一些换热站还配备有过滤器。
过滤器用于去除介质中的杂质和污染物,以保护系统的正常运行。
过滤器通常定期维护以保持其有效性。
最后,介质被再次送回换热器。
在换热器中,介质再次接收热能,并且其温度再次升高。
整个循环过程将持续进行,直到系统的热能需求满足或者热能源耗尽。
通过上述工艺流程,换热站能够实现热能的传递和转换。
它可以用于供暖、空调和工业生产等各种应用中。
换热站的工艺流程可根据具体需求进行调整和优化,以提高系统的效率和性能。
北方供暖换热站的工艺流程北方供暖换热站工艺流程一、引言北方寒冷的冬季,供暖是人们生活中不可或缺的重要需求。
而北方供暖换热站就是为了满足人们的供暖需求而建设的。
本文将以人类视角,详细描述北方供暖换热站的工艺流程。
二、蓄热设备的工艺流程1. 蓄热设备的选择:根据供暖面积和需求热量,选择适当的蓄热设备,如水箱、热水器等。
2. 蓄热设备的布置:根据供暖范围和布局,将蓄热设备布置在合适的位置,确保热量能够均匀地传递到各个房间。
3. 连接管道:将蓄热设备与供暖系统的主管道连接起来,确保热水能够顺利地流动到各个房间。
4. 控制系统:安装控制系统,监测和控制蓄热设备的温度和热量输出,以确保供暖效果。
三、换热设备的工艺流程1. 换热器的选择:根据供暖面积和需求热量,选择适当的换热器,如板式换热器、管壳式换热器等。
2. 换热器的布置:根据供暖范围和布局,将换热器布置在合适的位置,确保热量能够均匀地传递到各个房间。
3. 连接管道:将换热器与供暖系统的主管道连接起来,确保热水能够顺利地流动到各个房间。
4. 控制系统:安装控制系统,监测和控制换热器的温度和热量输出,以确保供暖效果。
四、供暖系统的工艺流程1. 供水系统:将热水通过管道输送到各个房间,确保供暖的连续性和稳定性。
2. 回水系统:将冷却的水通过管道回流到蓄热设备或换热器,以进行二次加热,提高供暖效果。
3. 控制系统:安装控制系统,监测和控制供水和回水的温度和流量,以确保供暖效果和节能。
五、安全措施的工艺流程1. 检修设备:定期检修蓄热设备、换热器和控制系统,确保其正常运行。
2. 安全监测:安装安全监测系统,监测供暖设备的温度、压力和水质等指标,及时发现故障并采取措施。
3. 应急预案:制定供暖系统的应急预案,包括停暖、排水等措施,以应对突发情况。
六、结语北方供暖换热站的工艺流程包括蓄热设备、换热设备、供暖系统和安全措施等多个环节。
通过合理的布置和控制,可以确保供暖的连续性、稳定性和安全性。
一、施工前准备工作1、确定施工方案和设计图纸,明确施工范围和任务。
2、组织施工人员进行技术交底和安全教育,并分工明确责任。
3、确定施工现场和办公区域,设置施工区域标志和安全警示标志。
4、准备必要的施工材料和设备,检查工具和器具的完好性。
5、确定施工进度计划和安排施工人员,确保施工进度和质量。
二、地基处理1、对施工现场进行勘测和验收,确定地基处理方案。
2、清理施工现场,清除杂物和障碍物。
3、进行土方开挖和平整,保持地面水平和坚实。
4、进行地基沉降和承载力检测,确保基础安全稳定。
5、进行地基处理和基础建筑,施工合格后方可进行上部结构施工。
三、设备安装1、进行设备安装前的准备工作,检查设备完好性和安全性。
2、安装设备支架和管道连接,确保各部件安装正确位置。
3、调试设备和管道系统,检测泄漏和故障。
4、进行设备调试和试运行,确保设备运行正常和稳定。
5、设备安装结束后,整理施工现场和清除杂物。
四、管道连接和保温1、进行管道连接前的准备工作,清理管道和准备连接件。
2、进行管道连接和焊接,确保连接牢固和密封。
3、进行保温层施工,选用合适的保温材料和施工工艺。
4、进行保温层检测和验收,确保保温效果和质量。
5、保温层施工完成后,进行保温材料表面处理和防护。
1、进行电气和控制系统布线,选用合适的电缆和配件。
2、进行电气箱安装和接线,确保电气连接正确和稳定。
3、进行控制系统调试和监测,检测仪表和开关的正常工作。
4、进行电气和控制系统调试和试运行,确保系统稳定和可靠。
5、设备运行正常后,进行电气和控制系统的调整和改进。
六、环境保护和安全防护1、进行施工现场的环境保护工作,遵守环境保护法律法规。
2、进行施工现场的安全防护工作,遵守安全生产标准和规范。
3、施工过程中加强监督和检查,及时发现和处理安全隐患。
4、组织施工人员参加安全培训,提高安全意识和技能。
5、施工结束后,对施工现场进行清理和整理,确保环境卫生和安全。
七、验收和结算1、进行设备和管道系统的验收,遵循验收标准和流程。
换热站操作规程一、工艺流程饱和蒸汽由锅炉房送出的蒸汽供应到换热站的分汽缸,由分汽缸分配到两个换热器上与换热器里的水经过管壁传热对流,然后蒸汽在对流传热过程中降温,形成冷凝水从换热器下部管道流入水箱。
冷水由管道送入换热站水箱处由阀门控制送入水箱,水箱始终保持2/3水位,当换热器启动时,首先启动通往供热管线的阀门,然后开启换热器前的补水泵往供热系统送水,当水压升至额定压力后,停补水泵,启动循环阀门,启动循环泵,使水形成循环流动状态。
然后缓慢开启蒸汽冷凝水阀门,再缓慢开启蒸汽阀门,进行换热。
缓慢提升供暖系统水温。
当供暖系统水温升到额定温度时,调整蒸汽阀门控制进汽量,控制水温,实现稳定供热。
当水箱的水位要满时,启动送往锅炉房的送水阀门,启动水泵将水箱水位降到水箱的1/2处,水箱水位计要在交接班时冲洗1次,确保水箱水位的真实反映。
换热工要按时做好记录,按时交接班,交班前要清理好室内外卫生,设备卫生,做好调整水温工作。
上岗期间严禁脱岗、串岗、睡岗,保持清醒旺胜的工作状态,另外换热站要设一个开水茶炉,由换热工负责供应开水。
换热工要始终供应开水,而且要保证茶炉安全和人身安全。
操作规程是操作工操作全过程的规定和程序,每一个操作工必须遵照执行,请每个员工时刻遵照执行。
二、换热机组的操作(一)补水前的准备工作补水前必须将二次侧供、回水阀门完全打开,使管网成封闭循环状态,方可进行补水。
(二)补水泵的起动操作1、将控制柜门上的补水自动旋钮旋至1#位置,按补水泵自动起动按钮,补水泵按设定的压力自动起停。
2、补水泵达到设定压力停止后,方可起动循环泵。
(三)循环泵的操作1、起动1#循环泵时,必须将2#循环泵的出口阀门关闭,如起动2#循环泵时则必须将1#循环泵出口阀门关闭。
2、将控制柜门上的循环泵手动起动旋钮至1#位置,则1#循环泵起动完毕。
(四)开、关蒸汽的操作1、先将冷凝水阀门打开然后慢慢打开蒸汽入口阀门。
2、关闭时先关蒸汽入口阀门再关冷凝水阀门。
集中供热换热站工艺原理和施工流程集中供热换热站工艺原理和施工流程由于城市集中供热可以保护环境,节约能源,减少污染,能使能源得到有效的合理利用,消除了旧式热源造成对环境的污染和噪音,所以应用越来越广泛。
但由于集中供热换热站多建于居民住宅区,占地面积小,管道多,室内设备多,且布置紧凑,给施工安装带来一定的难度,下面介绍一下集中供热换热站施工技术。
1 工艺原理换热站是采用板式换热器:BRB进行换热,为间接换热方式,换热分两个密闭的热水系统,1)高温热源系统,由电厂蒸汽加热的150℃高温水,进入站内水—水交换器,释放热量后,再流回电厂。
2)居民采暖用水系统,由换热器处得到热量,升温后的水进入采暖管网区,放热、降温,再回到换热器升温,反复循环。
2 工艺安装流程测量放线→设备及容器的安装→管道及配件安装→管道水压试验及冲洗→仪表安装→管道防腐保温→试运行→交工验收。
3 测量放线测量放线是在土建设备基础检查验收合格后,具备安装条件时,按下述方法进行。
根据工艺施工图结合设备图和建设单位提供安装的基础检验记录,核对基础的几何尺寸、标高等是否符合要求,填写设备基础复测记录。
平面位置放线时,应先根据施工图有关的柱轴线、边沿线或标高线划定设备的基准线,将基准线引出并做好标志,互有连接、排列或衔接关系的设备,应划定共同的安装基准线,划定设备基础的横向纵向中心线。
根据建筑物或划定的安装基准线测定的标高,用水准仪转移到设备基础适当位置上,并划定标高基准线或埋设标高基准点。
复核支吊架的预埋件是否正确、牢固,与图纸位置是否相符,出入大时应与业主代表、监理工程师、设计单位协商解决,并办理技术核定单,方可进行下一步工作。
4 水泵及设备安装1)安装较大的水泵时,可用三角架加倒链吊装,吊装时钢丝绳不得系在泵体上、轴承架或轴上。
2)设备就位后,先找中心,再找标高,后找水平。
水平找正时,底座下垫铁尽量靠近螺栓,每组垫铁应尽量减少垫铁块数,一般不超过三块,应少用薄垫铁,放置垫铁时将厚的放在下面,把薄的放在中间,并将各垫铁焊接牢固。
热力换热站工作流程
热力换热站工作流程:
热力换热站是一个重要的能源转换站点,通过分发热能以满足不同用户的供热
和供热水需求。
以下是热力换热站的一般工作流程:
1. 热能供应:热力换热站通常由一或多个主要的热源供应,例如锅炉或余热回
收装置。
这些热源会产生高温热水、蒸汽或热风等热能,并输送到热力换热站进行进一步的处理和分配。
2. 热能调节与传输:在热力换热站中,热能会通过各种热交换设备,如换热器、热泵或蓄热装置进行调节和传输。
这些设备的作用是将高温热源中的热能转移到供热系统中,使其达到所需温度。
3. 热能分配:一旦热能调节完毕,它将通过管道网络传输到不同的用户点。
热
力换热站通常会根据用户需求和对应的热能规格,将热能分配到不同的区域或建筑物,并确保热能能够有效地传送到用户的供热系统中。
4. 热能回收与再利用:在一些高效的热力换热站中,废水、排烟气或其他废热
会经过热能回收装置进行处理。
这些设备能够从废热中提取能量,并将其重新利用,以最大限度地提高热能的利用效率和节能效果。
总之,热力换热站的工作流程涉及热能的供应、调节、传输、分配和回收等关
键过程。
这些流程的高效运行有助于确保热能的有效利用,并满足用户的供热需求。
换热站施工工艺换热站施工工艺一、引言换热站是热力系统中起到集中供热和供冷的作用的设施,施工工艺是确保换热站正常运行的关键。
本文档旨在提供一个最新、最全的换热站施工工艺范本,以供参考使用。
二、施工前准备1.制定详细的施工方案:根据项目要求和设计图纸,制定详细的施工方案,包括人员组织,工期计划,材料准备等。
2.检查施工设备和工具:确保施工设备和工具齐全并具备正常运行条件。
3.配合其他工程进度:与其他工程部分进行协调,确保施工进度的顺利进行。
三、土建工程1.地面处理:对施工现场的地面进行平整处理,保证地面平整度满足换热站设备的安装要求。
2.基础施工:按照设计要求进行基础的浇筑和加固。
3.墙体施工:按照设计图纸要求,进行墙体的砌筑和抹灰。
四、设备安装1.进场验收:对进场的设备进行验收,确保设备的质量和数量符合合同要求。
2.设备安装位置确定:根据设计图纸确定设备的安装位置,并进行标记。
3.设备安装:按照设备安装图纸和安装说明进行设备的安装。
4.设备连接:连接设备之间的管道和阀门,并进行密封测试。
五、管道安装1.管道制作:根据设计图纸制作管道,包括切割、弯曲等。
2.管道安装:按照设计图纸和安装要求进行管道的安装,包括焊接和连接等工艺。
3.管道隔离:对管道进行正确的隔离和支撑,确保安装质量。
六、电气工程1.电气线路布置:根据设计要求进行电气线路的布置和接线。
2.设备接入:对设备进行接入电源和控制信号的连接。
3.电气安装:按照电气工程图纸和安装说明进行电气设备的安装。
七、测试调试1.水压试验:使用水压试验设备对管道和设备进行水压试验,确保其耐压性能。
2.安全阀调试:调试安全阀的启闭压力和排放能力,确保其正常工作。
3.系统试运行:进行系统的试运行,包括设备的启停和工作正常性的检查。
八、附件:本文档所涉及附件如下:1.施工方案;2.设计图纸;3.设备进场验收记录;4.设备安装图纸和安装说明;5.管道焊接记录;6.水压试验记录;7.系统试运行记录。
换热站施工工艺引言:换热站是集热源和热用户之间换热的关键环节,它在城市供热系统中起着非常重要的作用。
换热站的施工工艺是确保换热站正常运行的关键,本文将介绍换热站施工的主要工艺流程和注意事项。
一、施工前的准备换热站施工前需要进行一系列的准备工作,包括确定施工方案、编制施工图纸、准备施工所需材料和机械设备等。
在确定施工方案时,需要充分考虑换热站的布局和几组热源之间的连接方式,确保施工后的换热站结构合理、紧凑。
编制施工图纸时,要详细标注各个设备的位置、尺寸及管道的布置方案,以便施工人员能够按图施工。
准备施工所需材料和机械设备时,要选择优质的材料和设备,确保施工质量和工期。
二、基础施工换热站的基础施工是确保换热站稳定、坚固的重要步骤。
基础施工包括地基的开挖和填筑、基础的浇筑等过程。
在地基开挖时,要按照施工图纸的要求进行开挖,保证基础的稳定。
地基开挖完成后,需要进行填筑,填筑材料要选用优质的砂、石等材料,并按照要求进行夯实。
填筑完成后,进行基础的浇筑,浇筑过程中要注意控制浇筑的速度和浇注的质量,确保基础的强度和稳定性。
三、设备安装设备安装是换热站施工的重要环节,涉及到各个设备的安装和调试。
在设备安装前,需要进行设备的检查和验收,确保设备符合质量要求。
设备安装时,要按照施工图纸和安装说明进行操作,确保设备的安装位置准确、稳固。
设备安装完成后,需要进行设备的调试,包括设备的连接、管道的连接等。
调试过程中要注意检查设备的运行情况和参数,确保设备能够正常工作。
四、管道连接管道连接是换热站施工的关键步骤,涉及到热网管道的连接、热源管道的连接以及与热用户之间的连接。
在管道连接前,需要检查管道的尺寸和材质是否符合要求,确保管道的质量和使用寿命。
管道连接时,要使用专业的工具和方法进行连接,确保连接的牢固和密封。
在与热用户之间的连接过程中,要根据用户需求进行连接方式的选择,确保热量能够准确传递给用户。
五、绝热施工绝热施工是换热站施工的重要环节,用来保证换热站的热量损失最小。
脱硫脱硝换热站的工艺流程与要求下载提示:该文档是本店铺精心编制而成的,希望大家下载后,能够帮助大家解决实际问题。
文档下载后可定制修改,请根据实际需要进行调整和使用,谢谢!本店铺为大家提供各种类型的实用资料,如教育随笔、日记赏析、句子摘抄、古诗大全、经典美文、话题作文、工作总结、词语解析、文案摘录、其他资料等等,想了解不同资料格式和写法,敬请关注!Download tips: This document is carefully compiled by this editor. I hope that after you download it, it can help you solve practical problems. The document can be customized and modified after downloading, please adjust and use it according to actual needs, thank you! In addition, this shop provides you with various types of practical materials, such as educational essays, diary appreciation, sentence excerpts, ancient poems, classic articles, topic composition, work summary, word parsing, copy excerpts, other materials and so on, want to know different data formats and writing methods, please pay attention!一、工艺流程1.原料进料:燃煤或燃油等燃料在换热站内燃烧产生的含硫、含氮化合物的烟气成为原料进料。
换热站工艺流程本系统采用补水泵向循环热水管网内补水,在经过循环水泵将热回水加压后经过换热器汽水换热,换热后的热水经过换热器进出口送至室外热水管网,经过外界管网后热回水进入除污器除污,再由循环水泵加压到换热器,其中采用2台变频补水泵进行系统稳压。
一、运行启动过程:开启水箱的进水阀门,将水箱注满水。
用手转动补水泵及循环泵轴,察看是否能转动,检查油箱里的润滑量是否合适。
启动补水泵往网管内注水,通过补水箱、补水泵向系统内补水,在系统顶点排气阀排掉系统空气,待排气阀排气带水时,关闭排气阀,保证补水点规定压力。
将网管压力提高到安全阀规定的开启压力1.5MPa,检验安全阀是否安全可靠。
启动循环泵前应打开换热器的所有出口阀,并关闭换热器的进口阀,启动循环泵后再慢慢打开换热器的进口阀,逐渐提高流量及压力,避免瞬时冲击而产生局部高压损坏设备。
打开站内蒸气总阀门;开启放空排气阀门,将气缸及管道内的空气排放干净,有蒸气排出时再关闭;打开换热器蒸气侧排污和排气阀门,打开疏水器旁通阀门。
缓慢打开换热器热源侧蒸气入口阀门,(排污阀出口没有污物时关闭,排气阀有蒸气排出时再关闭)逐渐加压至采暖系统所需要运行的温度。
运行时的注意事项运行人员应随时察看官网的供回水温度计压力,根据室外气温、参照室外温度、供水温度,合理调节蒸气阀门的流量大小。
随时巡检各运行设备的运行情况是否正常,各运行设备的压力表、温度表,发现问题马上报告有关人员进行解决。
每班检查一次水泵的润滑油情况,保持油箱油位正常。
随时察看水箱内的水位是否正常,应保持水位在水箱的2/3以上。
每小时记录水供回水压力、温度。
交班人员应向接班人员交待清楚当班的运行情况,并附有值班记录,如有故障未处理完毕,交班人员不得离开。
停运关闭步骤首先关闭蒸气进口总阀,分别关闭换热器蒸气进口阀门。
关闭补水泵出口阀门,停补水泵。
关闭循环水泵出口阀门,停循环水泵。
打开气缸底部排水阀将内部的冷凝水排出,同时打开换热器底部的排空阀排空。
换热站工艺流程
本系统采用补水泵向循环热水管网内补水,在经过循环水泵将热回水加压后经过换热器汽水换热,换热后的热水经过换热器进出口送至室外热水管网,经过外界管网后热回水进入除污器除污,再由循环水泵加压到换热器,其中采用2台变频补水泵进行系统稳压。
一、运行启动过程:
开启水箱的进水阀门,将水箱注满水。
用手转动补水泵及循环泵轴,察看是否能转动,检查油箱里的润滑量是否合适。
启动补水泵往网管内注水,通过补水箱、补水泵向系统内补水,在系统顶点排气阀排掉系统空气,待排气阀排气带水时,关闭排气阀,保证补水点规定压力。
将网管压力提高到安全阀规定的开启压力1.5MPa,检验安全阀是否安全可靠。
启动循环泵前应打开换热器的所有出口阀,并关闭换热器的进口阀,启动循环泵后再慢慢打开换热器的进口阀,逐渐提高流量及压力,避免瞬时冲击而产生局部高压损坏设备。
打开站内蒸气总阀门;开启放空排气阀门,将气缸及管道内的空气排放干净,有蒸气排出时再关闭;打开换热器蒸气侧排污和排气阀门,打开疏水器旁通阀门。
缓慢打开换热器热源侧蒸气入口阀门,(排污阀出口没有污物时关闭,排气阀有蒸气排出时再关闭)逐渐加压至采暖系统所需要运行的温度。
运行时的注意事项
运行人员应随时察看官网的供回水温度计压力,根据室外气温、参照室外温度、供水温度,合理调节蒸气阀门的流量大小。
随时巡检各运行设备的运行情况是否正常,各运行设备的压力表、温度表,发现问题马上报告有关人员进行解决。
每班检查一次水泵的润滑油情况,保持油箱油位正常。
随时察看水箱内的水位是否正常,应保持水位在水箱的2/3以上。
每小时记录水供回水压力、温度。
交班人员应向接班人员交待清楚当班的运行情况,并附有值班记录,如有故障未处理完毕,交班人员不得离开。
停运关闭步骤
首先关闭蒸气进口总阀,分别关闭换热器蒸气进口阀门。
关闭补水泵出口阀门,停补水泵。
关闭循环水泵出口阀门,停循环水泵。
打开气缸底部排水阀将内部的冷凝水排出,同时打开换热器底部的排空阀排空。
事故处理
突然停电:立即关闭蒸气进口总阀及换热器进口阀,关闭循环泵出口阀,并打开汽缸及换热器底部的排空阀。
突然停热:维持采暖水正常压力运行,若停热时间较长,可将循环泵停机,用补水泵维持压力。
突然停水:维持设备运行,密切注视运行情况,尽可能利用一次水补水,同时汇报相关负责人,安排应急补水措施。
当系统回水压力低于最低允许定压值0.2MPa时,停机,关闭进水阀。
换热器突然泄露:如轻微泄露,可暂时维持运行,并通知有关人员处理。
如泄露严重,可立即停机,将旁通阀打开,并将换热器进出口阀门全部关闭,通知有关人员检查处理。
注意事项
循环水泵和补水泵在系统充满水后运行之前,都要打开泵体上的排气阀,使水充满泵腔,排气阀出水后关闭,然后再启动运行。
换热站在运行中要随时监测热源系统的供回水压力、温度,送入换热器的压力不得超过其设计压力值,以免损坏换热器。
运行中要随时观测热源蒸气和采暖系统水在管道内的运行状态(可通过观察除污器两端压力表的指示差值判断),定时或不定期地开启除污器的排污阀门,将污物及时排除。
由于循环热水介质温度高,在启动泵时防止产生汽蚀现象,可从出口压力表处进行排气。
所有电气设备在维修时不准带点操作,所有承压设备、管道、阀门、仪表等维修时不准带压作业。
热力站在运行期间如出现人身事故、设备重大事故、停电、停水、停汽等情况时,应视情况果断应急处理,并同时报告主管领导。
补水泵每天互换使用,热水罐没使用时在三天左右要补水。