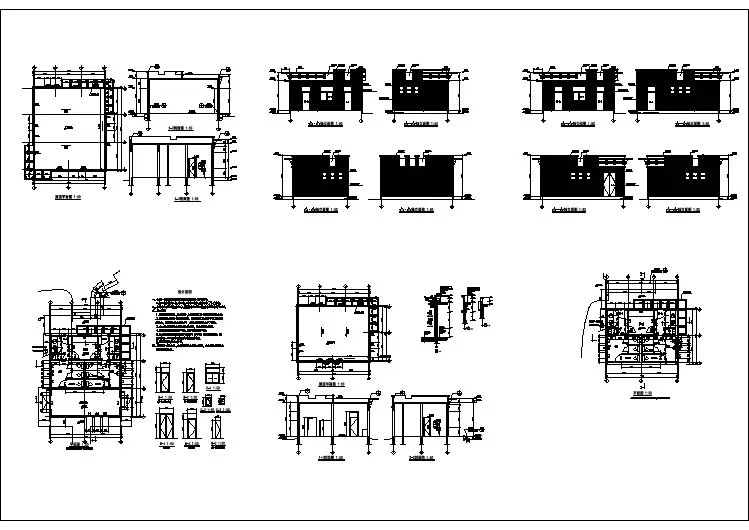
某残疾人厕所建筑CAD图,标注详细
- 格式:dwg
- 大小:247.96 KB
- 文档页数:1
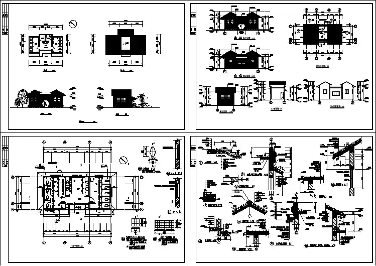
一、无障碍通道1、坡道和升降平台1)建筑的入口、室内走道及室外人行通道的地面有高低差和有台阶时,必须设符合轮椅通行的坡道,在坡道和两级台阶以上的两侧应设扶手。
2)供轮椅通行的坡道应设计成直线形,不应设计成弧线形和螺旋形。
按照地面的高差程度,坡道可分为单跑式、双跑式和多跑式坡道。
3)双跑式和多跑式坡道休息平台的深度不应小于1.50m。
在坡道起点及终点应留有深度不小于1.50m的轮椅缓冲地带。
4)建筑入口的坡道宽度不应小于1.20m,室内走道的坡道宽度不应小于1.00m,室外通路的坡道宽度不应小于1.50m。
5)建筑入口及室内坡道的坡度不应大于1/12,室外人行通路坡道的坡度不应大于1/16。
6)坡道高度的限定每段坡道的高度,其最大容许值应符合表1.1的规定。
表1.1 每段坡道高度与长度的限定坡度(高/长)1/12 1/16 1/20容许高度(m)0.75 1.00 1.50水平长度(m)9.00 16.00 30.007)在坡道两侧和休息平台只设栏杆时,应在栏杆下方的地面上筑起50mm的安全档台。
8)供轮椅通行的坡道面层应平整,但不应光滑。
也不应在坡面上加防滑条和作成礓礤式的坡面。
9)自动升降平台占地面积小,适用于改建、改造困难的地段。
升降平台的净面积不应小于1.50m X 1.00m,平台应设栏板或栏杆及轮椅进出口和启动按钮。
2、出入口1)大、中型公共建筑入口的内外应留有不小于2.00m X 2.00m轮椅回旋面积,小型公共建筑入口内外应留有不小于1.50m X 1.50m轮椅回旋面积。
2)建筑入口设有避风阁,或在门厅、过厅设有两道门,在两道门扇开启后的净距不应小于1.20m。
3)供残疾人使用的门,首先应采用自动门和推拉门,其次是平开门。
不应采用旋转门和力度大的弹簧门。
4)轮椅通过自动门的有效通行净宽度不应小于1.00m,通过推拉门与平开门的有效通行净宽度不应小于0.80m。
5)乘轮椅者开启推拉门或平开门时,在门把手一侧的墙面,应留有不小于0.50m的墙面宽度。
残疾人公厕标准尺寸残疾人公厕是为了满足残疾人群体在使用公共卫生间时的特殊需求而设计的。
残疾人公厕的标准尺寸在设计中非常重要,既要满足功能需求,又要考虑残疾人的身体特点和使用设施的便捷性。
下面是一些关于残疾人公厕标准尺寸的参考内容。
1. 公厕总面积:一般来说,残疾人公厕的总面积在30平方米以上。
这样可以保证空间宽敞舒适,残疾人在其中移动和操作更加方便。
2. 厕位面积:残疾人公厕中的每个坐便位根据不同残疾类型和需求,其尺寸有所差异。
但一般来说,坐便位的面积应不小于1.5平方米,以确保残疾人能够在其中自由转身和移动。
3. 通道宽度:为了满足轮椅用户的需求,公厕内的通道宽度至少应达到1.5米。
这样可以确保轮椅能够畅通无阻地进入和操作。
4. 手拉设施:残疾人公厕内应设有适当的手拉设施,例如坐便前的支撑手把和边缘提升杆等。
这些设施的高度和位置应根据不同残疾人的需求进行调整。
5. 洗手设施:洗手池应设置在残疾人易于接近的位置,并具备易于转动的水龙头和自动感应的洗手液器。
洗手间的台面高度应便于轮椅用户和身高较矮的残疾人使用。
6. 紧急呼叫装置:公厕内应设有紧急呼叫装置,以便残疾人在需要协助时能够及时呼叫工作人员。
7. 禁止占用设施:公厕内的禁止占用设施应设置在易于触及的位置,并采用明显的视觉标识,以便其他人员遵守。
8. 无障碍设施:除了满足基本的标准尺寸要求外,残疾人公厕还应提供无障碍设施,如斜坡、无障碍通道、减速器等,以确保残疾人能够方便进入和使用。
以上是对残疾人公厕标准尺寸的一些参考内容。
在实际设计过程中,应根据不同地区的规范和残疾人的具体需求进行调整和补充。
通过合理的设计,可以为残疾人提供更便捷、安全和舒适的公共厕所使用体验。