配电柜型号配电柜图纸详解
- 格式:doc
- 大小:230.00 KB
- 文档页数:4
低压配电柜型号及意思GGD、GCS、MNS、JYD、GCK等很多的,标准一般按照GB7251。
GGD/M/J①②③G-交流低压配电柜G-电器元件固定安装,固定接线D/M/J-D:电力用柜M:面板操作J:静电电容器①-设计序号:1.分断能力为15kA;2.分断能力为30kA;3.分断能力为50kA②-主电路方案代号③-辅助电路方案代号PGL □—□P-低压开启式配电柜G-电器元件固定安装,固定接线L-动力用前面□-设计序号后面□-主电路方案号PGL1型为15KA(有效值),PGL2型为30KA(有效值);现在PGL已基本不用了,动力大部分采用GGD了。
GGD交流低压配电柜:G--低压配电柜;G--固定安装、固定接线;D--电力用柜GCK交流低压配电柜:G--柜式结构;C--抽出式;K--控制中心GCS交流低压配电柜:G--封闭式开关柜;C--抽出式;S--森源电气系统价钱区别不大,主要取决内部元器件的选择。
低压柜的型号可能会因为厂家不同,型号略有不同。
一般低压柜可以分为固定式,抽屉式,框架式。
只要确定用哪种形式的,柜子的短路容量,母线电流,主进线开关规格,各支路规格,就可以让厂家帮助选定。
当然如果能有单线图那是最好的了。
XL----指【动力配电箱】,其中的X表示【箱】、L表示【动力】;后面的数字代号表示设计开发序号。
动力配电箱没有太多的要求,不同的厂家,会有不同的“标准”配置,用户可以自己选用不同品牌的部件。
按照设计图纸中的系统图加工定做即可。
可以参考的资料:建筑电气设备手册、工厂常用电气设备手册、电气安装工程图集(吕光大主编)。
现在很多厂家自已都有自已的型号,这个型号就太多了。
主要的国产型号有MLS、GCS、GCK GGD其中前面三种是抽屉柜,GGD是固定式的柜子。
国外厂家ABB有:MD190,MNS,ArTu施耐德的型号是:Blokset、8PT还有其它的型号我拼不出来,其它国外厂家大家型号都不一样,标准就都是按照GB7251.1XL-21动力配电柜/配电箱:品牌:鑫鼎,型号:XL-21,额定电流:100-630(A),短路关合电流:0.5(KA),壳体防护等级:1,外形尺寸:1600*600*400(mm)。
最全的配电柜型号解读配电柜是电动机控制中心的统称,配电柜使用在负荷比较分散、回路较少的场合。
一般我们看到配电柜都是安装在比较隐蔽的角落。
配电柜型号配电柜型号有很多,一般不同的厂家都有自己的型号。
国产型号有MLS、GCS、GCK GGD等;国外厂家ABB有:MD190,MNS,ArTu、Blokset、8PT等等。
一般标准的型号是GB7251.1配电柜型号标示第一位:P-开启式低压开关柜,G-封闭式低压开关柜第二位:G-固定死,C-抽出式,H-固定、抽出混装式。
第三位:L(或D)-动力用,K-控制用,S-森源电气系统GGD较便宜,GCS、GCK为经济型。
例:GGD/M/J①②③G-交流低压配电柜G-电器元件固定安装,固定接线D-电力用柜M-面板操作J-静电电容器①-设计序号:1.分断能力为15kA;2.分断能力为30kA;3.分断能力为50kA②-主电路方案代号③-辅助电路方案代号配电柜图纸详解1、我们平时看到多家多户用电的时候,大多是由一个配电柜里面发出来的,简单的接线图就是这个样子。
低压配电柜一次系统图2、配电板的电路图分为一次原理图和二次原理图:一次原理图即为主电路原理图,二次原理图即为控制电路的原理图。
智能配电柜图纸配电箱柜的识别GCK、GCS、MNS是低压抽出式开关柜;GGD、GDH、PGL是低压固定式开关柜;XZW综合配电箱;ZBW箱式变电站;XL、GXL低压配电柜、建筑工地箱;JXF电器控制箱;PZ20、PZ30系列终端照明配电箱;PZ40、XDD(R)电表计量箱PXT(R)K-□/□-□/□-□/□-□/IP□系列规格型号解释:(1)PXT明装配电箱,暗装加(R)(2)K有如表1的系列配线方式(3)□/□额定电流/额定短时耐受电流能力:用数字表示,250/10表示:额定电流250A/额定短时耐受电流能力10kA,根据顾客要求可以降低。
(4)□/□进线型式:□/1单相输入;□/3三相输入;1/3表示混合输入(5)□×□出线回路:单相回路×三相回路,6×3单相6回路,三相3回路(6)□/ □主开关型式/防护等级;1/IP30单相主开关/IP30;3/IP30三相主开关/IP30表1:序号汉语拼音字头中文解释装配图号电气原理图号1 JL 计量箱PXT01 PXT01 dq系列2 CZ 插座箱PXT02 PXT02 dq系列3 ZM 照明箱PXT03 PXT03 dq系列4 DL 动力箱PXT04 PXT04 dq系列5 JC 计量插座箱PXT05 PXT05 dq系列6 JZ 计量照明箱PXT06 PXT06 dq系列7 JD 计量动力箱PXT07 PXT07 dq系列8 ZC 照明插座箱PXT08 PXT08 dq系列9 DC 动力插座箱PXT09 PXT09 dq系列10 DZ 动力照明箱PXT10 PXT10 dq系列11 HH 混合功能箱PXT11 PXT11 dq系列12 ZN 智能箱PXT12 PXT12 dq系列电气箱柜名称编号规格型号高压开关柜 AH高压计量柜 AM高压配电柜 AA高压电容柜 AJ低压电力配电箱柜AP低压照明配电箱柜AL应急电力配电箱柜APE应急照明配电箱柜ALE低压负荷开关箱柜AF低压电容补偿柜 ACC或ACP直流配电箱柜AD操作信号箱柜 AS控制屏台箱柜AC 继电保护箱柜AR 计量箱柜AW 励磁箱柜AE 低压漏电断路器箱柜ARC 双电源自动切换箱柜 AT 多种电源配电箱柜AM 刀开关箱柜AK 电源插座箱AX 建筑自动化控制器箱ABC 火灾报警控制器箱 AFC 设备监控器箱 ABC 住户配线箱ADD。
配电箱系统图识图解在家用配电箱接线的时候,一定要看清楚家用配电箱接线图的设计,不要把零线和火线搞混淆了,如果两者一旦接错了的话,就不会产生电源,给人造成误区,其实不管是接正还是接反,因为有漏电开关的作用,都会让零线以及火线有动作的,因为很多零线在漏电开关里面都是连同的,所以开闸之后,断开的没有零线只有火线,所以关于火线以及零线接错这个问题是需要注意的,至于怎么区分两者不要搞错,可以看看漏电开关,上面一般都是有标记的,如果是字母N的话就表示零线了。
户内配电箱箱体安装一般有明装和暗装两种,不过现在为了美观大部分户内配电箱选用暗装较多:明装配电箱,配电箱安装在墙上时,应采用开脚螺栓(胀管螺栓)固定,螺栓长度一般为埋入深度(75~150mm)、箱底板厚度、螺帽和垫圈的厚度之和,再加上5mm左右的“出头余量”。
对于较小的配电箱,也可在安装处预埋好木砖(按配电箱或配电板四角安装孔的位置埋设),然后用木螺钉在木砖处固定配电箱或配电板。
暗装配电箱,配电箱嵌入墙内安装,在砌墙时预留孔洞应比配电箱的长和宽各大20mm左右,预留的深度为配电箱厚度加上洞内壁抹灰的厚度。
在埋配电箱时,箱体与墙之间填以混凝土即可把箱体固定住。
配电箱应用的范围不同,那么接线的方法就是不同的,家用的家用配电箱接线图算是比较简单的,一般学物理的人都能看懂。
配电箱系统图识图解正确安装的配电箱不仅仅美观,而且安全配电箱系统图一般分为:一次线图、二次线图。
下面简单介绍:一次线图是主电源控制图,一个总开关加几路分开关构成,标准设计图纸上一般都会标明进出现电缆的大小和每路分开关与总开关之间连线电线大小以及进线电源哪里来、出线到哪里去。
二次线是一般为控制部分,比较一次线图复杂。
框线外左上角,AL1:配电箱代号;框线内左上角第1行:PZ30(R)-30:配电箱型号为PZ30,(R)暗装,30回路;框线内左上角第2-4行:计算功率,计算电流,需用系数,功率因数;C65N-1P **A:施耐德品牌,单相单极,额定电流:**A,微型断路器;DPN Vigi 1P+N **A:施耐德,单相双极(不断零),额定电流:**A,微型漏电断路器;MC116P 1P 10A:海格品牌,单相单极,额定电流:10A,微型断路器(设计笔误,没改一致);框线内右下角N,PE:箱内设零地排。
配电柜型号、图纸解读
配电柜是动力控制设备的统称,配电柜使用在负荷比较分散,回路较少的场合。
一般我们看到配电柜都是安装在负荷集中又比较安全的地方。
对配电柜有兴趣的朋友可以简单的了解一下配电柜型号,和配电柜图纸详解的相关信息。
配电柜型号有很多,一般不同的厂家都有自己的型号。
国产型号有MLS、GCS、GCK GGD等;国外厂家ABB有:MD190,MNS,ArTu、Blokset、8PT等等。
一般标准的型号是GB7251.
1 配电柜型号型号意思
第一位:P-开启式低压开关柜,G-封闭式低压开关柜
第二位:G-固定死,C-抽出式,H-固定、抽出混装式。
第三位:L(或D)-动力用,K-控制用,S-森源电气系统 GGD较便宜,GCS、GCK为经济型。
例:GGD/M/J①②③ G-交流低压配电柜 G-电器元件固定安装,固定接线 D-电力用柜 M-面板操作 J-静电电容器①-设计序号:1.分断能力为15kA;2.分断能力为30kA;3.分断能力为50kA ②-主电路方案代号③-辅助电路方案代号
配电柜图纸解读:
1.我们平时看到多家多户用电的时候,大多是由一个配电柜里面发出来的,简单的接线图就是这个样子。
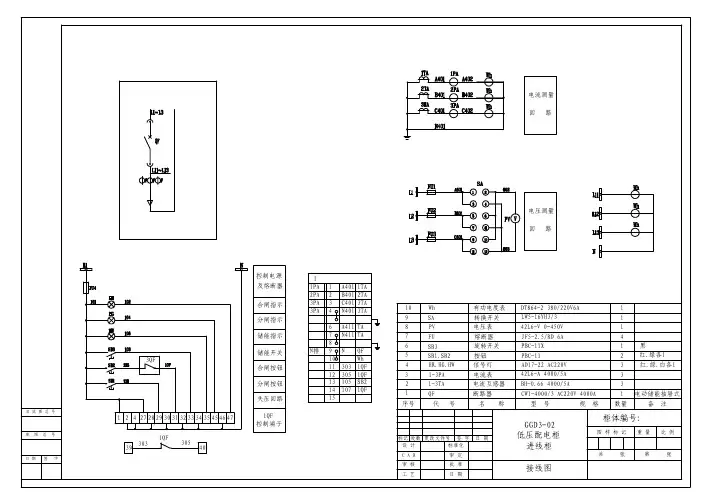
2.配电板的电路图分为一次原理图和二次原理图,一次原理图即为主电路原理图,二次原理图即为控制电路的原理图。
3.以上是智能配电柜的原理图、展开图、端子排图、安装接线图等等,这些接线都比较的麻烦,智能配电柜操作起来更方便。
注:关于配电柜的信息资料有限,仅供参考。
10kV配电房低压系统识图解读(二)总进线柜上一章,我们讲了10kV配电房低压系统识图解读的变压器部分,接下来,我们继续上课,今天讲总进线柜。
低压系统图二、总进线柜上图中,最左侧的部分就是总进线柜,接下来,我们从上到下,一点一点剖析。
柜子顶部图纸在这个图中:1.编号:D11,D—表示低压,11表示第一路电的第一个柜子。
2.名称:进线柜,这个好理解,变压器出来就进到这里。
3.型号:GCK-08,第一个G 代表配电柜,第二个C 代表抽屉式,第三个K 代表控制,中文学名叫低压抽出式开关柜。
4.母线:表示载流的铜母线,这里的规格图上没标。
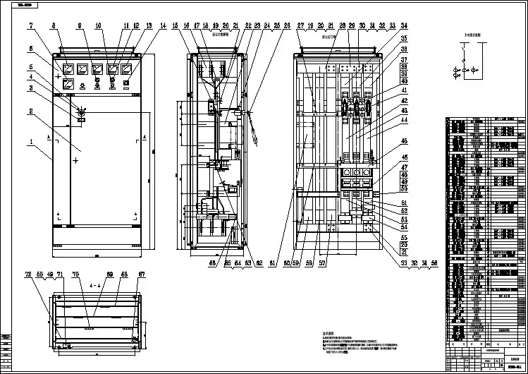
柜子详图在这个图中,它分为1-9单元,我们都知道,GCK柜的高度为2200mm,顶上的400MM走母线,那么,地下最小的一个抽屉间隔为200mm,最多可以放9个抽屉,当然,作为进线柜,开关很大,这里就仅仅放了一个间隔。
在这个图中,顶上的1-2间隔是空的,主断路器安装在了3-7间隔内,在这里,我们把主断路器的参数放大了看。
主断路器参数在这里:1.1QF,表示断路器的编号,QF,英文即表示断路器。
这里的断路器采用的是框架断路器,框架电流为2000A,4P—表示4级开关,可以带漏电保护。
2.In=2000A, 表示断路器额定电流为2000安培。
3.Ir1=1600A,tL=120s,表示长延时整定为1600A,时间整定为120秒。
4.Ir2=4Ir1,Ts=0.2s,表示短延时电流整定为4倍的长延时电流,即6400安培,整定时间为,0.2秒。
5.Ir3=10Ir1,表示速断电流为10倍长延时电流,为16000A, 整定时间没写,其实为0秒动作。
6.Ir3=0.5Ir1 ,Ts=0.2s,表示接地电流整定为800A,整定时间为0.2秒。
互感器图这个图是互感器的图,图中表示ABC三相都装一个互感器,共两组,没零序互感器,但上面的图纸有零序的整定电流,有点问题,电流互感器的作用是测电流用,因为如果不经过互感器,那电流的接线是几乎没法完成的,一次电流太大了,必须用铜排,通过互感器,可以转变成小电流,那就可以用很小的线,方便接线。
电缆型号电缆型号是指电缆的各种型号。
目录1232电力电缆型号各部分的代号及其含义1.绝缘种类:V代表聚氯乙烯;X代表橡胶;Y代表聚乙烯;YJ代表交联聚乙烯;Z代表纸。
2.导体材料:L代表铝;T(省略)代表铜。
3.内护层:V代表聚氯乙烯护套;Y护套;L铝护套;Q铅护套;H橡胶护套;F氯丁橡胶护套。
4.特征:D不滴流;F分相;CY充油;P贫油干绝缘;P屏蔽;Z直流。
5.控制层:0无;2双钢带;3细钢丝;4粗钢丝。
6.外被层:0无;1纤维外被;2聚氯乙烯护套;3聚乙烯护套。
7.阻燃电缆在代号前加ZR;耐火电缆在代号前加NH。
充油电缆型号及产品表示方法充油电缆型号由系列代号和电缆结构各部分代号组成。
自容式充油电缆产品系列代号CY。
外护套结构从里到外用加强层、铠装层、外被层的代号组合表示。
种类、导体材料、内护层及各代号的排列次序以及产品的表示方法与35kV及以下电力电缆相同。
如CYZQ102 220/1×4表示铜芯、纸绝缘、铅护套、铜带径向加强、无铠装、聚氯乙烯护套、额定电压220kV、单芯、标称截面积400mm2的自容式充油电缆。
充油电缆外护层代号为1.加强层:1代表铜带径向加强;2代表不锈钢带径向加强;3钢带径向加强;4不锈钢带径向、窄不锈钢带纵向加强。
2.铠装层:0无铠装;2钢带铠装;4粗钢丝铠装。
3.外被层:1纤维层;2聚氯乙烯护套;3聚乙烯护套。
3常见耐火电缆型号介绍及用途说明乙烯护套控制电缆。
目录11. 1.12. 1.221. 2.12. 2.23. 2.331. 3.12. 3.241. 4.12. 4.251. 5.12. 5.21概述使用特性额定电压:U0/U为450/750V。
导体线芯长期工作温度为70℃、95℃两种,电缆敷设温度不低于0℃。
电缆的推荐允许弯曲半径如下:无,应不低于电缆外径的6倍;铠装或铜带,应不低于电缆外径的12倍;屏蔽软电缆,不低于电缆外径的6倍。
控制电缆泛指设备仪表供电/信号控制代表型号:KVV/KYJV/还有其它仪表线等等[1]产品说明执行标准:GB/T 9330-2008。
配电柜是电动机控制中心的统称,配电柜使用在负荷比较分散、回路较少的场合。
一般我们看到配电柜都是安装在比较隐蔽的角落。
配电柜型号配电柜型号有很多,一般不同的厂家都有自己的型号。
国产型号有MLS、GCS、GCK GGD等;国外厂家ABB有:MD190,MNS,ArTu、Blokset、8PT等等。
一般标准的型号是GB7251.1配电柜型号标示第一位:P-开启式低压开关柜,G-封闭式低压开关柜第二位:G-固定死,C-抽出式,H-固定、抽出混装式。
第三位:L(或D)-动力用,K-控制用,S-森源电气系统GGD较便宜,GCS、GCK为经济型。
例:GGD/M/J①②③G-交流低压配电柜G-电器元件固定安装,固定接线D-电力用柜M-面板操作J-静电电容器①-设计序号:1.分断能力为15kA;2.分断能力为30kA;3.分断能力为50kA②-主电路方案代号③-辅助电路方案代号配电柜图纸详解1、我们平时看到多家多户用电的时候,大多是由一个配电柜里面发出来的,简单的接线图就是这个样子。
低压配电柜一次系统图2、配电板的电路图分为一次原理图和二次原理图:一次原理图即为主电路原理图,二次原理图即为控制电路的原理图。
智能配电柜图纸配电箱柜的识别GCK、GCS、MNS是低压抽出式开关柜;GGD、GDH、PGL是低压固定式开关柜;XZW综合配电箱;ZBW箱式变电站;XL、GXL低压配电柜、建筑工地箱;JXF电器控制箱;PZ20、PZ30系列终端照明配电箱;PZ40、XDD(R)电表计量箱PXT(R)K-□/□-□/□-□/□-□/IP□系列规格型号解释:(1)PXT明装配电箱,暗装加(R)(2)K有如表1的系列配线方式(3)□/□额定电流/额定短时耐受电流能力:用数字表示,250/10表示:额定电流250A/额定短时耐受电流能力10kA,根据顾客要求可以降低。
(4)□/□进线型式:□/1单相输入;□/3三相输入;1/3表示混合输入(5)□×□出线回路:单相回路×三相回路,6×3单相6回路,三相3回路(6)□/ □主开关型式/防护等级;1/IP30单相主开关/IP30;3/IP30三相主开关/IP30表1:序号汉语拼音字头中文解释装配图号电气原理图号1 JL 计量箱PXT01 PXT01 dq系列2 CZ 插座箱PXT02 PXT02 dq系列3 ZM 照明箱PXT03 PXT03 dq系列4 DL 动力箱PXT04 PXT04 dq系列5 JC 计量插座箱PXT05 PXT05 dq系列6 JZ 计量照明箱PXT06 PXT06 dq系列7 JD 计量动力箱PXT07 PXT07 dq系列8 ZC 照明插座箱PXT08 PXT08 dq系列9 DC 动力插座箱PXT09 PXT09 dq系列10 DZ 动力照明箱PXT10 PXT10 dq系列11 HH 混合功能箱PXT11 PXT11 dq系列12 ZN 智能箱PXT12 PXT12 dq系列电气箱柜名称编号规格型号高压开关柜 AH高压计量柜 AM高压配电柜 AA高压电容柜 AJ低压电力配电箱柜AP低压照明配电箱柜AL应急电力配电箱柜APE应急照明配电箱柜ALE低压负荷开关箱柜AF低压电容补偿柜 ACC或ACP 直流配电箱柜AD操作信号箱柜 AS控制屏台箱柜AC继电保护箱柜AR计量箱柜AW励磁箱柜AE低压漏电断路器箱柜ARC双电源自动切换箱柜 AT多种电源配电箱柜AM刀开关箱柜AK电源插座箱AX建筑自动化控制器箱ABC 火灾报警控制器箱 AFC 设备监控器箱 ABC 住户配线箱ADD。
认识这60种配电箱柜图例,没有看不懂的电气图纸
图纸中的图例,是对于图纸中图形符号的定义,表示这种图形代表什么设备或者有什么含义,图例对于图纸的重要性不言而喻,可以说,没有图例是看不懂图纸。
就算没看过的图纸的人,也一定看过地图,地图边上总会给出山川河流和省会、首都图例,CAD图纸的图例和这个道理是一样的。
做电气工程预算、施工的相关技术人员,在看电气图纸的时候会遇到大量的配电箱、配电柜,像常见的照明配电箱、电表箱、动力配电柜、应急配电箱等,每一套图纸都会声明配电箱柜的图例。
下面来看一下常见的60种配电箱和配电柜的图例,看完这些图例再也不用愁看不懂电气图纸。
配电箱、配电柜图例一
配电箱、配电柜图例二
配电箱、配电柜图例三
配电箱、配电柜图例四
配电箱、配电柜图例五
配电箱、配电柜图例六
友情提示,记下这些图例对看图纸当然是有好处的,尤其是图纸没有给图例的时候。
但千万要注意,不要经验主义行事,有时候图纸
的图例定义的和国标是不一样的,这个时候要遵从图纸给出的图例。
配电箱系统图及各类符号标注说明之宇文皓月创作什么是配电箱? 所有用户用电的总的一个电路分配箱. 工作原理配电箱是按电气接线要求将开关设备、丈量仪表、呵护电器和辅助设备组装在封闭或半封闭金属柜中或屏幅上,构成低压配电装置。
正常运行时可借助手动或自动开关接通或分断电路。
故障或不正常运行时借助呵护电器切断电路或报警。
借丈量仪表可显示运行中的各种参数,还可对某些电气参数进行调整,对偏离正常工作状态进行提示或发出信号。
经常使用于各发、配、变电所中。
用途:便于管理,当发生电路故障时有利于检修。
配电箱和配电柜配电盘配电凭等,是集中装置开关、仪表等设备的成套装置。
经常使用的配电箱有木制和铁板制两种,现在哪儿的用电量都挺大的,所以还是铁的用的比较多。
配电箱的用途:当然是方便停、送电,起到计量和判断停、送电的作用。
按结构特征和用途分类:(1)固定面板式开关柜,常称开关板或配电屏。
它是一种有面板遮拦的开启式开关柜,正面有防护作用,反面和正面仍能触及带电部分,防护等级低,只能用于对供电连续性和可靠性要求较低的工矿企业,作变电室集中供电用。
(2)防护式(即封闭式)开关柜,指除装置面外,其它所有正面都被封闭起来的一种低压开关柜。
这种柜子的开关、呵护和监测控制等电气元件,均装置在一个用钢或绝缘资料制成的封闭外壳内,可靠墙或离墙装置。
柜内每条回路之间可以不加隔离措施,也可以采取接地的金属板或绝缘板进行隔离。
通常门与主开关操纵有机械联锁。
另外还有防护式台型开关柜(即控制台),面板上装有控制、丈量、信号等电器。
防护式开关柜主要用作工艺现场的配电装置。
(3)抽屉式开关柜。
这类开关柜采取钢板制成封闭外壳,进出线回路的电器元件都装置在可抽出的抽屉中,构成能完成某一类供电任务的功能单元。
功能单元与母线或电缆之间,用接地的金属板或塑料制成的功能板隔开,形成母线、功能单元和电缆三个区域。
每个功能单元之间也有隔离措施。
抽屉式开关柜有较高的可靠性、平安性和互换性,是比较先进的开关柜,目前生产的开关柜,多数是抽屉式开关柜。
配电箱系统图详解2017-06-02什么是配电箱?所有用户用电的总的一个电路分配箱.工作原理配电箱是按电气接线要求将开关设备、测量仪表、保护电器和辅助设备组装在封闭或半封闭金属柜中或屏幅上,构成低压配电装置。
正常运行时可借助手动或自动开关接通或分断电路。
故障或不正常运行时借助保护电器切断电路或报警。
借测量仪表可显示运行中的各种参数,还可对某些电气参数进行调整,对偏离正常工作状态进行提示或发出信号。
常用于各发、配、变电所中。
用途便于管理,当发生电路故障时有利于检修。
配电箱和配电柜配电盘配电凭等,是集中安装开关、仪表等设备的成套装置。
常用的配电箱有木制和铁板制两种,现在哪儿的用电量都挺大的,所以还是铁的用的比较多。
配电箱的用途:当然是方便停、送电,起到计量和判断停、送电的作用。
分类按结构特征和用途分类:〔1〕固定面板式开关柜,常称开关板或配电屏。
它是一种有面板遮拦的开启式开关柜,正面有防护作用,反面和侧面仍能触与带电局部,防护等级低,只能用于对供电连续性和可靠性要求较低的工矿企业,作变电室集中供电用。
〔2〕防护式〔即封闭式〕开关柜,指除安装面外,其它所有侧面都被封闭起来的一种低压开关柜。
这种柜子的开关、保护和监测控制等电气元件,均安装在一个用钢或绝缘材料制成的封闭外壳内,可靠墙或离墙安装。
柜内每条回路之间可以不加隔离措施,也可以采用接地的金属板或绝缘板进行隔离。
通常门与主开关操作有机械联锁。
另外还有防护式台型开关柜〔即控制台〕,面板上装有控制、测量、信号等电器。
防护式开关柜主要用作工艺现场的配电装置。
〔3〕抽屉式开关柜。
这类开关柜采用钢板制成封闭外壳,进出线回路的电器元件都安装在可抽出的抽屉中,构成能完成某一类供电任务的功能单元。
功能单元与母线或电缆之间,用接地的金属板或塑料制成的功能板隔开,形成母线、功能单元和电缆三个区域。
每个功能单元之间也有隔离措施。
抽屉式开关柜有较高的可靠性、平安性和互换性,是比较先进的开关柜,目前生产的开关柜,多数是抽屉式开关柜。
精心整理
配电柜型号配电柜图纸详解
配电柜是电动机控制中心的统称,配电柜使用在负荷比较分散,回路较少的场合。
一般我们看到配电柜都是安装在比较隐蔽的角落。
对配电柜有兴趣的朋友可以简单的了解一下配电柜型号,和配电柜图纸详解的相关信息。
2015家装专业配件!对抗万次磨损!点击了解>>
配电柜型号
配电柜型号有很多,一般不同的厂家都有自己的型号。
国产型号有MLS、GCS、GCKGGD等;国外厂家ABB有:MD190,MNS,ArTu、Blokset、8PT等等。
一般标准的型号是GB7251.1
配电柜型号型号意思
第一位:P-开启式低压开关柜,G-封闭式低压开关柜
第二位:G-固定死,C-抽出式,H-固定、抽出混装式。
第三位:L(或D)-动力用,K-控制用,S-森源电气系统
GGD较便宜,GCS、GCK为经济型。
例:GGD/M/J①②③
G-交流低压配电柜
G-电器元件固定安装,固定接线
D-电力用柜
M-面板操作
J-静电电容器
①-设计序号:1.分断能力为15kA;2.分断能力为30kA;3.分断能力为50kA
②-主电路方案代号
③-辅助电路方案代号
配电柜图纸详解
1.我们平时看到多家多户用电的时候,大多是由一个配电柜里面发出来的,简单的接线图就是这个样子。
2.配电板的电路图分为一次原理图和二次原理图,一次原理图即为主电路原理图,二次原理图即为控制电路的原理图。
3.以上是智能配电柜的原理图、展开图、端子排图、安装接线图等等,这些接线都比较的麻烦,智能配电柜操作起来更方便。
注:以上关于配电柜的信息就简单的介绍到这里,资料有限,仅供参考。
推荐文章:
●生物安全柜原理
●机柜有什么作用
●全能保险柜价格。