三层别墅中央空调工程设计
- 格式:doc
- 大小:801.00 KB
- 文档页数:37
陕西别墅中央空调工程施工随着人们生活水平的不断提高,对于生活品质的追求也越来越高。
别墅作为高端住宅的代表,其内部装修和设施配置自然也不例外。
在别墅的舒适配置中,中央空调无疑是一款提升生活品质的重要设备。
本文将以陕西别墅中央空调工程施工为主题,为大家介绍相关知识。
一、中央空调工程施工前的准备工作1. 设计方案:在施工前,需要根据别墅的实际情况,制定合理的中央空调设计方案。
这包括确定空调系统的类型、容量、管路布局、出风口及回风口的设置等。
2. 设备选型:根据设计方案,选择适合别墅的中央空调设备。
设备的选型应考虑到别墅的面积、朝向、保温性能等因素,以确保空调系统的制冷制热效果。
3. 材料准备:施工前需要准备相应的材料,如空调主机、管道、阀门、保温材料、出风口等。
这些材料应符合国家相关标准,确保施工质量。
4. 施工队伍:选择具备专业资质的施工队伍,确保施工过程中的安全和质量。
二、中央空调工程施工流程1. 管道安装:首先进行管道的安装,包括冷水管、热水管、新风管等。
管道安装应遵循一定的顺序,确保管道的流畅性和安全性。
2. 设备安装:将选定的空调主机、水泵、风机等设备安装到指定位置。
设备安装应保证水平度和垂直度,避免出现倾斜现象。
3. 管路保温:在管道外部包裹保温材料,防止热量损失,提高空调系统的效率。
4. 出风口和回风口的安装:根据设计方案,在合适的位置安装出风口和回风口,确保室内空气的循环。
5. 控制系统安装:安装中央空调的控制系统,包括温度控制器、湿度控制器等。
控制系统应具备智能化的特点,方便用户调节和控制。
6. 调试与验收:施工完成后,对中央空调系统进行调试,检查各部件是否正常运行。
在调试过程中,发现问题及时进行整改。
验收时,确保中央空调系统达到预期的效果。
三、中央空调工程施工注意事项1. 施工过程中,应严格遵守国家相关法律法规,确保施工安全。
2. 注重施工细节,确保空调系统的稳定性和安全性。
3. 加强与业主的沟通,了解业主的需求,确保施工质量和效果。
中央空调设计工程方案一、引言中央空调系统是一种大型的空调系统,它可以为建筑物内部提供舒适的温度和湿度。
在建筑物中,中央空调系统往往是建筑内部环境控制的核心,它的设计和使用可以对建筑物的舒适性、能源效率和室内空气质量产生重要影响。
因此,中央空调系统的设计工程方案显得尤为重要。
中央空调系统的设计工程方案需要综合考虑建筑的结构、使用功能、环境条件、能源消耗等多方面因素,以求达到最佳的舒适性、节能性和环保性。
本文将从中央空调系统的设计原理、设计流程、系统组成、设计参数、设备选择以及运行管理等方面进行介绍和分析,为中央空调系统的设计工程方案提供参考。
二、中央空调系统的设计原理中央空调系统是指将整个建筑物内部都连接在一个空调系统之下,通过一种集中式的方式来控制整个建筑物内部的空气质量、温度和湿度。
其设计原理主要包括以下几个方面:1. 集中供冷供热:中央空调系统通过集中的供冷和供热装置,为整个建筑提供制冷和供热服务。
这种集中供冷供热的方式可以减少每个房间内部的设备数量,降低系统的成本和维护难度。
2. 风管系统:中央空调系统的送风和回风通常通过一种风管系统来进行传输,这可以减少管道的布置数量,并提高空气的循环效率。
3. 自动控制:中央空调系统通常会采用自动控制系统来对室内空气质量、温度和湿度进行监测和调控,以保证空调系统的运行效果。
4. 节能性:中央空调系统的设计需要考虑到系统的节能性,可以通过优化系统结构、选用高效设备、合理控制运行方式等手段来降低能耗。
5. 综合性能:中央空调系统的设计需要综合考虑建筑的使用需求、环境条件以及系统自身的性能,以提供最佳的舒适度和节能性能。
三、中央空调系统的设计流程中央空调系统的设计流程一般包括以下几个步骤:1. 确定需求:首先需要确定建筑的使用需求,包括建筑类型、面积、使用功能、环境条件等,以确定中央空调系统的设计目标和设计参数。
2. 制定设计方案:根据建筑的使用需求和环境条件,制定中央空调系统的设计方案,包括系统结构、设备布置、管道布局、控制系统等。
别墅空调方案简介:随着现代人对生活质量的不断追求,别墅空调方案成为了别墅设计中一个重要的组成部分。
正确选择并优化别墅空调方案不仅可以为居住者提供舒适的室内环境,还可以减少能源消耗,降低运行成本。
本文将介绍几种常见的别墅空调方案,并讨论其优缺点与适用场景。
一、中央空调系统中央空调系统是一种高级别墅常用的空调方案。
它通过一台位于别墅地下室或屋顶的中央冷暖机组,利用风管系统或水管系统将冷暖空气送入各个房间。
这种系统具有以下优点:1. 空调效果均匀:中央空调系统可以确保各个房间的温度和湿度保持一致,避免了传统的分体式空调的温差问题。
2. 配置灵活:中央空调系统可以根据别墅的布局和房间的需求进行灵活配置,实现个性化的空调效果。
3. 噪音低:由于中央机组位于别墅的较远位置,噪音对居住者的干扰较小。
然而,中央空调系统也存在一些缺点:1. 安装成本高:中央空调系统的安装需要考虑到房屋的结构和管道的铺设,安装成本较高。
2. 维护困难:中央空调系统的维护和清洁需要专业人员进行操作,对业主的技术要求较高。
3. 能耗稍高:由于需要通过风管或水管来输送冷暖空气,中央空调系统的能耗会稍高于其他系统。
二、分体式空调系统分体式空调系统是一种常见的别墅空调方案,它通过在各个房间内安装独立的室内机和室外机来实现空调效果。
这种系统具有以下优点:1. 安装方便:由于每个房间都有独立的室内机和室外机,不需要对房屋进行结构改造,安装非常方便。
2. 维护简单:每个室内机可以独立维护和清洁,不需要专业人员进行操作。
3. 能耗较低:分体式空调系统只在需要制冷或制热时运行,所以能耗比较低。
然而,分体式空调系统也存在一些缺点:1. 噪音较大:由于室内机和室外机分别安装在房间内和别墅的墙壁上,有一定的噪音产生。
2. 温差较大:由于每个房间都有独立的室内机,无法保证各个房间的温度和湿度保持一致。
3. 外观影响:室内机和室外机的安装会占据一定的空间,对别墅的外观造成一定的影响。
潮州别墅中央空调施工方案引言中央空调系统是一种为大型建筑提供制冷、制热和通风服务的系统。
在潮州别墅中安装中央空调系统可以提供舒适的室内环境,增强居住体验。
本文将介绍在潮州别墅中安装中央空调系统的施工方案,包括设备选型、布局设计、空调管道和风管安装等。
设备选型在选择中央空调设备时,需要考虑房屋的大小、结构以及居住需求。
对于潮州别墅来说,由于其相对较大的面积,建议选用分体式中央空调系统。
分体式中央空调系统由室内机和室外机两部分组成,适合别墅的布局。
要选择容量适当的中央空调设备,以确保房屋每个空间都能保持舒适的温度。
根据房屋的面积和层数,可以使用能够提供足够制冷和制热能力的中央空调设备。
布局设计在潮州别墅中安装中央空调系统时,需要合理设计空调的布局,以确保每个房间都能够得到充分的制冷和制热。
以下是一些建议的布局设计原则:1.尽量将室内机安装在房间的中央位置,以便空气可以均匀地分布到每个角落。
2.根据房屋的具体结构和需求,可以选择将室内机分散安装或集中安装。
分散安装可以减少空调管道的长度,提高空气流动效率;集中安装可以简化管道布局,便于维护和管理。
3.合理安排空调设备的数量和位置,避免设备过多或过少导致的能耗浪费或制冷不足的问题。
4.布局设计时要考虑到家具的摆放和空间利用,避免空调设备受到遮挡,影响空气流动效果。
空调管道和风管安装空调管道和风管的安装是中央空调施工的重要环节。
以下是空调管道和风管安装的几个关键步骤:1.确定管道的路径和长度,根据房屋结构和空调布局设计出最优的管道连接方案。
2.在墙壁、天花板等位置预留适当的开孔,以便将空调管道和风管穿过,并保持整洁美观。
3.确保管道安装牢固,避免振动和漏风现象。
使用专用的连接件和密封材料,确保管道连接处密封牢固。
4.安装和连接空调室内外机之间的铜管,采用合适的工具和技术,确保铜管连接牢固、无泄漏。
5.安装和连接风管,根据房屋的具体布局和通风需求,设计合理的风管路径和连接方式。
高层住宅中央空调施工方案高层住宅是现代城市中的典型建筑形式,为了满足居民在炎热夏季和寒冷冬季的舒适需求,中央空调成为了必不可少的设备。
本文将对高层住宅中央空调的施工方案进行探讨,以保证其高效运行和居民的舒适体验。
一、安装位置选择在高层住宅中,中央空调的安装位置对于整个系统的运行效果至关重要。
通常情况下,中央空调系统的主机包括冷却机组和冷冻机组,应该尽量集中安装在建筑屋顶或机房。
这样可以减少管道长度和布线的复杂性,提高冷热源设备的效率和运行稳定性。
二、管线布置中央空调的供冷供热管线布置应该合理、紧凑,以减少能量损失。
根据建筑结构特点和业主需求,应合理选择管道材质和直径,并注意防冻保温。
管线的布置应尽量减少弯头和转角,以降低系统的阻力。
同时,应确保管道与建筑结构之间的距离,以方便后期的检修和维护。
三、空调末端设备选择高层住宅的每个房间都需要有相应的空调末端设备,例如风口、风帘和风机盘管等。
在选择空调末端设备时,应根据房间的面积、高度和使用情况来确定。
同时,应注意末端设备的噪音控制,以不影响居住者的正常生活。
此外,末端设备的布置应合理,确保空气循环畅通,均衡分布。
四、系统控制和监测中央空调系统的控制和监测对于整个系统的运行效果和能耗控制至关重要。
可采用智能化的控制系统,实现温度、湿度和风速等参数的调节和监控。
此外,还可以通过设置定时开关和分区控制等功能,提高能源利用率和居民的舒适感受。
五、维护和保养为了确保中央空调系统的长期稳定运行,维护和保养工作不可忽视。
定期进行设备的清洁和消毒,清除空调过滤网上的灰尘和杂质。
对于制冷剂的管理也要严格把控,定期检查和维护冷却机组和冷冻机组的运行状态,及时发现并处理故障。
结语高层住宅中央空调的施工方案涉及诸多因素,从设备选择到管线布置,再到控制和监测等方面,都需要综合考虑,以确保系统的高效运行和居民的舒适体验。
只有在科学规划、精心施工和有效维护的基础上,中央空调才能发挥出其最佳性能。
别墅类建筑的中央空调设计随着生活水平的提高,人居环境舒适度的改善成为当今社会关注的问题之一。
住宅一体化进程加快,曾经遥不可及的中央空调终于放下身段,从大型商用公共建筑飞入普通民用住宅。
家用中央空调的出现弥补了建筑外观与家居功能无法统一的缺陷,同时对空调的使用效果进行升级,一时间,家用中央空调成为新房装修新的亮点。
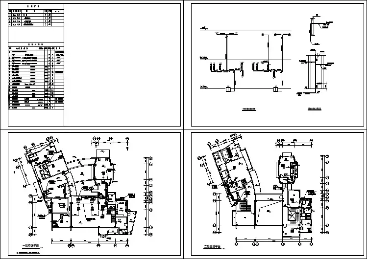
一、工程概述本工程位于江西顶佳珑山林豪华别墅社区。
珑山林在总体规划和住宅设计中以“人性、纯生态”为宗旨,精心规划,随处都能感受人性的情结和各个环境之间的互动,以半园合、坡地错落式的小区布局,成就了叹为观止的“上饶养生第一豪宅”。
本别墅共三层,建筑面积约504m2,空调面积235m2。
设计要求满足夏季供冷、冬季供热,同时满足安全、舒适、经济、美观基本原则。
二、设计依据1)本工程依据建设单位提供的建施图和设计要求;2)《通风与空调工程施工质量验收规范》(GB50283-2002);3)《采暖通风与空气调节设计规范》(GB50019-2003);4)《民用建筑设计防火规范》(GB50045-95)2005版;5)《全国民用建筑工程设计技术措施暖通空调·动力》(GB19-2007);6)《空气调节设计手册》(中国建筑工业出版社、第二版);7)《采暖空调制冷手册》(机械工业出版社);8)《建筑设计防火规范》(GB50016-2006);9) PHNIX金刚机组的性能参数;10)国家现行的其他相关规范及措施。
设计资料1、室内外设计计算参数:·夏季室外设计计算参数(见表1)·冬季室外设计计算参数(见表2)·室内设计计算参数(见表3)·维护结构材料主体墙采用导热系数较小的加气粉煤灰砌块,外围护砌体及梁柱部位均采用欧文斯外保温,建筑物的外门窗及外封阳台采用传热系数较小的单框中空玻璃铝合金窗,屋顶采用硬发泡聚氨脂保温。
2、主要设计指标建筑面积约504m2,空调面积235m2。
河南机电高等专科学校毕业设计说明书设计题目:三层别墅中央空调系统系部专业班级学生姓名学号指导教师2012年12 月28 日摘要家用中央空调是指根据国家空调设计规范的设计参数和要求进行选型设计、安装的,用于家庭的空调系统。
家用中央空调是由室外主机、室内风机盘管及其连接的风道送出冷热风以达到室内空气调节目的的空调系统,按工作原理可分为二种:一种是由大型中央空调系统的设备演化而来的空调系统如小型风冷冷水机组,小型风管机组为主机的产品;另一种是由分体壁挂空调设备演化而来的空调系统如一拖小型风管机组属集中中央空调系统,此系统由室外机组,室内风机盘管及盘管连接的送风管道组成。
送风管道通向各个需要空气调节的房间,风道系统可安装流量调节阀、风口等配件,一台主机可控制多个不同房间并且可引入新风,有效改善室内空气品质。
步入21世纪,人们对生活品质要求不断提高,住宅面积不断地扩大,以窗机、分体挂壁机和柜机为代表的传统的家用空调已不能充分满足环境、能源的需要。
目前家用空调市场上的产品,从严格意义上讲只能称为“温调”,真正的”空调”应具备空气质量调节的功能,不仅调节空气冷暖,而且可以通风换气,调节空气湿度、有机挥发物含量、细菌含量等室内空气的综合品质。
从这个意义上,家用中央空调才把人们带入到“真正的空调时代”。
这种集大型中央空调和家用空调优点于一体的小型化独立空调系统恰到好处地适应了目前市场的需求,代表了21世纪人居空调的发展趋势,更重要的是,它跨越了我国空调产业长期以来存在的“中央空调”与“家用空调”间的界限,开辟出了一个崭新的市场空间。
关键词:工作原理系统分类中央空调的现状前景家用中央空调的发展趋势SummaryHome central air conditioning is based on the design parameters of the national air-conditioning design specification and requirements for selection and design, installation, air-conditioning system for families. From outside the host home central air conditioning, indoor fan coil duct connection sends cold and hot wind in order to achieve the purpose of air conditioning indoor air-conditioning system, according to the principle can be divided into two kinds: one is the large central air-conditioning system the air-conditioning system, such as a small air-cooled chiller, small wind pipe mill equipment evolved a host of products; another split wall air conditioning equipment air conditioning system evolved like a drag small wind pipe mill is a concentrated central air conditioning system this system consists of an outdoor unit, an indoor fan coil and the coil connected to the supply duct. Supply duct leading to various rooms need air conditioning duct system can be installed flow control valve, vents and other accessories, a host can control a number of different rooms and the introduction of new wind effectively improve indoor air quality.Into the 21st century, the quality of life requirements continue to increase residential area continues to expand, the hanging wall of the machine and a windows machine, split Guiji representative of the traditional home air not fully meet the needs of thethe strict sense can only be called "warm tone" real "air-conditioned" air quality regulation should have not only regulate air heating and cooling, but also ventilation, adjust the air humidity, indoor air quality of the content of volatile organic compounds, bacteria content. In this sense, the home central air conditioning and only then people into real air conditioning era. The miniaturization of such a large central air conditioning and home air conditioning advantages one independent air-conditioning system, the right to adapt to the current market demand, and represents the development trend of the 21st century Habitat air conditioning, more importantly, across our air-conditioning industry, long-term boundaries since the presence of central air conditioning and home air conditioning, open up a new market space.Keywords: home central air conditioning works system classified the status of the central air-conditioning prospects trends目录第一节前言1.1 家用小型中央空调的发展现状 (1)1.2 外国家用小型中央空调发展现状 (1)1.3 中国家用小型中央空调发展现状 (1)1221.4家用中央空调的分类 (3)34第2节建筑信息2.1 建筑概述 (5)2.2地理位置 (5)2.3大气参数 (5)662.3.3 室内计算参数 (6)2.4 建筑围护结构信息 (6)2.5设计依据 (6)第三节负荷计算3.1 负荷计算特点 (7)3.2 冷负荷系数法公式 (7)3.3 负荷计算 (7)3.3.1 外墙和屋面瞬变传热引起的冷负荷 (7)3.3.2 内墙,楼板等室内传热维护结构形成的瞬时冷负荷 (8)3.3.3 外玻璃窗瞬变传热引起的冷负荷 (9)3.3.4 透过玻璃窗的日射得热引起的冷负荷 (9)3.3.5 设备散热形成的冷负荷 (10)3.3.6 人体散热形成的冷负荷 (11)3.3.7 门引起的冷负荷 (12)3.4负荷汇总 (12)第四节空调系统方案的确定4.1空调系统设计的基本原则 (14)4.2空调系统方案的比较 (15)第五节空调系统的选择计算5.1风机盘管加新风空调系统选型计算 (16)5.2新风机组的选型 (18)5.3水源热泵机组的特点 (19)5.4冷水机组选型 (20)5.5机组的安装 (21)5.6膨胀水箱 (21)5.7冷凝水管道设计 (22)2222225.7.4 冷水机组选型计算 (23)5.7.5 冷却塔的设计计算 (23)第六节空调系统的风道设计6.1 确定空调房间的气流组织 (23)6.1.1 气流组织介绍 (23)6.1.2 送风口、回风口的选择 (26)6.2风管的布置 (26)设计总结 (26)致谢 (27)参考文献 (27)第一节前言中央空调(或称户式中央空调、单无式可调中央空调)是指由一个室外机产生冷(热)源,进而向各个房间供冷(热)的空调,它是属于商用空调的一种。
河南机电高等专科学校毕业设计说明书设计题目:三层别墅中央空调系统系部专业班级学生姓名学号指导教师2012年12 月31 日摘要家用中央空调是指根据国家空调设计规范的设计参数和要求进行选型设计、安装的,用于家庭的空调系统。
家用中央空调是由室外主机、室内风机盘管及其连接的风道送出冷热风以达到室内空气调节目的的空调系统,按工作原理可分为二种:一种是由大型中央空调系统的设备演化而来的空调系统如小型风冷冷水机组,小型风管机组为主机的产品;另一种是由分体壁挂空调设备演化而来的空调系统如一拖小型风管机组属集中中央空调系统,此系统由室外机组,室内风机盘管及盘管连接的送风管道组成。
送风管道通向各个需要空气调节的房间,风道系统可安装流量调节阀、风口等配件,一台主机可控制多个不同房间并且可引入新风,有效改善室内空气品质。
步入21世纪,人们对生活品质要求不断提高,住宅面积不断地扩大,以窗机、分体挂壁机和柜机为代表的传统的家用空调已不能充分满足环境、能源的需要。
目前家用空调市场上的产品,从严格意义上讲只能称为“温调”,真正的”空调”应具备空气质量调节的功能,不仅调节空气冷暖,而且可以通风换气,调节空气湿度、有机挥发物含量、细菌含量等室内空气的综合品质。
从这个意义上,家用中央空调才把人们带入到“真正的空调时代”。
这种集大型中央空调和家用空调优点于一体的小型化独立空调系统恰到好处地适应了目前市场的需求,代表了21世纪人居空调的发展趋势,更重要的是,它跨越了我国空调产业长期以来存在的“中央空调”与“家用空调”间的界限,开辟出了一个崭新的市场空间。
关键词:工作原理系统分类中央空调的现状前景家用中央空调的发展趋势SummaryHome central air conditioning is based on the design parameters of the national air-conditioning design specification and requirements for selection and design, installation, air-conditioning system for families. From outside the host home central air conditioning, indoor fan coil duct connection sends cold and hot wind in order to achieve the purpose of air conditioning indoor air-conditioning system, according to the principle can be divided into two kinds: one is the large central air-conditioning system the air-conditioning system, such as a small air-cooled chiller, small wind pipe mill equipment evolved a host of products; another split wall air conditioning equipment air conditioning system evolved like a drag small wind pipe mill is a concentrated central air conditioning system this system consists of an outdoor unit, an indoor fan coil and the coil connected to the supply duct. Supply duct leading to various rooms need air conditioning duct system can be installed flow control valve, vents and other accessories, a host can control a number of different rooms and the introduction of new wind effectively improve indoor air quality.Into the 21st century, the quality of life requirements continue to increase residential area continues to expand, the hanging wall of the machine and a windows machine, split Guiji representative of the traditional home air conditioning has not fully meet the needs of the environment, energy. Products on the domestic air conditioner market in the strict sense can only be called "warm tone" real "air-conditioned" air quality regulation should have not only regulate air heating and cooling, but also ventilation, adjust the air humidity, indoor air quality of the content of volatile organic compounds, bacteria content. In this sense, the home central air conditioning and only then people into real air conditioning era. The miniaturization of such a large central air conditioning and home air conditioning advantages one independent air-conditioning system, the right to adapt to the current market demand, and represents the development trend of the 21st century Habitat air conditioning, more importantly, across our air-conditioning industry, long-term boundaries since the presence of central air conditioning and home air conditioning, open up a new market space.Keywords: home central air conditioning works system classified the status of the central air-conditioning prospects trends目录第1节前言1.1 家用小型中央空调的发展现状 (1)1.2 外国家用小型中央空调发展现状 (1)1.3 中国家用小型中央空调发展现状 (2)1.3.1中国家用小型中央空调发展情况与国外的对比 (2)1.3.2中国小型中央空调发展前景 (2)1.3.3中国小型中央空调的优势 (3)1.4家用中央空调的分类 (3)1.4.1风管机 (4)1.4.2冷热水机 (4)第2节建筑信息2.1 建筑概述 (6)2.2地理位置 (6)2.3计算参数 (6)2.3.1建筑平面图 (6)2.3.2室外计算参数 (6)2.3.3室内计算参数 (7)2.4 建筑围护结构信息 (7)2.5设计依据 (7)第3节负荷计算3.1 负荷计算特点 (8)3.2 冷负荷系数法公式 (8)3.3 负荷计算 (9)3.3.1 外墙和屋面瞬变传热引起的冷负荷 (9)3.3.2 内墙,楼板等室内传热维护结构形成的瞬时冷负荷 (9)3.3.3 外玻璃窗瞬变传热引起的冷负荷 (10)3.3.4 透过玻璃窗的日射得热引起的冷负荷 (11)3.3.5 设备散热形成的冷负荷 (12)3.3.6 人体散热形成的冷负荷 (12)3.3.7 门引起的冷负荷 (13)3.4负荷汇总 (13)第4节空调系统方案的确定4.1空调系统设计的基本原则 (16)4.2空调系统方案的比较 (16)第5节空调系统的计算5.1风机盘管加新风空调系统选型计算 (19)5.1.1 风机盘管处理过程 (19)5.1.2风机盘管加新风系统设计 (20)5.1.3新风管道水力计算 (20)5.2新风机组的选型 (22)5.3风管的布置 (23)5.4风机盘管水系统水力计算 (24)5.4.1基本公式 (24)5.4.2冷冻水供水管路水力计算 (24)5.5冷水机组选型 (26)5.6机组的安装 (27)5.7冷凝水管道设计 (28)5.7.1设计原则 (28)5.7.2水系统安装要求 (28)5.7.3冷却塔的设计计算 (29)设计总结 (30)致谢 (30)参考文献 (31)第1节前言中央空调(或称户式中央空调、单无式可调中央空调)是指由一个室外机产生冷(热)源,进而向各个房间供冷(热)的空调,它是属于商用空调的一种。
中央空调的最突出特点是产生舒适的居住环境,其次从审美观点和最佳空间利用上考虑,使用家用中央空调使室内装饰更灵活,更容易实现各种装饰效果,即使您不喜欢原来的装饰,重新装修,原来的中央空调系统稍微改变即可与新的装修和谐一致。
1.1 家用小型中央空调的发展现状一个国家家用空调的发展是与该国的地理气候条件、经济发展水平、人民生活水准、居住住宅形式以及社会人文环境等因素密切相关的,脱离了这些因素来谈家用空调的发展是不现实的。
同样,分析家用小型中央空调的发展也离不开这些因素。
一般而言,常见的住宅可以分为公寓型住宅和别墅型住宅。
以下将分别结合这两种典型住宅的特点,结合各个国家的不同特点,对外国和中国的家用小型中央空调的发展现状进行分析。