FANUC系统数控铣床与加工中心编程
- 格式:ppt
- 大小:3.01 MB
- 文档页数:11
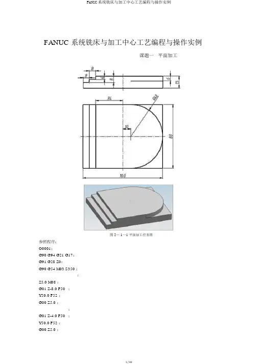
FANUC 系统铣床与加工中心工艺编程与操作实例课题一平面加工图 2— 1—1平面加工任务图参照程序:O0001;G90 G94 G21 G17;G91 G28 Z0;G90 G54 M03 S350 ;;Z5.0 M08 ;G01 Z-8.0 F50;Y50.0 F52 ;G00 Z5.0 ;;G01 Z-4.0 F50;Y50.0 F52 ;G00 Z5.0 ;X10. Y50.0 ;G01 Z-6.0 F50;G02 X10.0 Y-50.0 R50.0 F52;G00 Z20.0 M09 ;G91 G28 Z0;M30;课题二外形轮廓加工图 2—2—1零件加工任务图参照程序:(1)圆柱台加工程序○0001 ;G90 G94 G40 G17 G21 ;G91 G28 Z0;G90 G54 M3 S350 ;G00 X62.0 Y0 ;Z5.0 ;G01 Z-4.0 F52;G41 D02 G01 X47.0 Y0 F52;G02 I-47.0 J0;G40 G01 X62.0 Y0 ;G41 D02 G01 X31.0 YO ;G02 I-31.0 J0 ;G40 G01 X62.0 Y0 ;G41 D02 G01 X15.0 Y0 ;G02 I-15.0 J0 ;G40 G01 X62.0 Y0 ;G00 Z20.0 ;G91 G28 Z0;M30;(2)外轮廓加工程序○0002 ;G90 G94 G40 G17 G21 ;G91 G28 ZO;G90 G54 M03 S350 ;G00 X-62.0 Y52.0 M08 ;Z5.0 ;G01 Z-9.0 F52 ;G41 D02 G01 X-40.0 Y30.0 F52 ;G01 X-20.0 Y30.0 ;X30.0 ;G02 ;G01 Y-20.0 ;G02 ;G01 X-30.0 ;G02 X-40.0 Y-20.0 R10.0 ;G01 Y10.0 ;G03 ;G40 ;G00 Z20.0 M09 ;G91 G28 Z0;M30;粗加工时,采用Φ 20 的立铣刀,刀具号为T02,刀具半径补偿号为D02,补偿值为(0.2mm 是精加工余量)。
FANUC系统加工中心编程与操作实例教学要求:1.了解加工中心的分类及特点;掌握机床坐标系和工作坐标系的建立原则和方法。
2.掌握加工中心常用指令(FANUC系统)。
3.掌握固定循环的应用(FANUC系统)。
4.掌握宏程序的格式及应用。
5.掌握加工中心的操作。
6.运用数控编程的知识,进行零件加工工艺分析,完成典型零件的加工程序编制。
2.教学内容:⌝加工中心概述⌝FANUC系统加工中心常用指令⌝常用指令的综合应用⌝典型零件的加工⌝宏程序的应用⌝FANUC系统加工中心的操作第一节加工中心概述一、加工中心种类1.立式加工中心2.卧式加工中心3.立卧加工中心二、数控加工中心工具及辅助设备1.数控回转工作台和数控分度工作台(1)数控回转工作台(2)数控分度工作台2.常用工具。
(1)对刀器(2)找正器(3)光学数显对刀仪三、数控加工中心1.刀柄及刀具系统(1)刀柄(2)刀具系统加工中心常用的铣刀有面铣刀、立铣刀两种,也可用锯片铣刀、三刃面铣刀等2.镗铣加工中心刀库(1)刀库类型加工中心常用的有盘式和链式刀库两种。
(2)选刀方式常用的选刀方式有顺序选刀方式、光电识别选刀方式两种。
第二节FANUC系统加工中心常用指令一、G代码命令1.绝对值坐标指令G90和增量值坐标指令G912.平面选择指令G17、G18、G193.快速点定位G00指令,直线插补G01指令例1使用G00、G01指令,使刀具按如图2-24所示的路径进给。
图2-24 G00、G01指令的使用程序:O0001;G90G54G00X20.0Y20.0;G01Y50.0F50;X50.0;Y20.0;X20.0;G00X0Y0;…4.圆弧插补指令G02、G03例2完成图2-25所示加工路径程序编制(刀具现位于A点上方,只进行轨迹运动)。
图2-25程序:O0002;G90G54G00X0Y25.0;G02X25.0Y0I0J-25.0;A—B点G02X0Y-25.0I-25.0J0;B—C点G02X-25.0Y0I0J25.0;C—D点G02X0Y25.0I25.0J0;D—A点或:G90G54G00X0Y25.0;G02X0Y25.0I0J-25.0;A—A点整圆5.自动原点返回(G28/G30)6.暂停指令G047.刀具半径补偿功能(G40/G41/G42)格式G41G0/G01X_Y_D_;G42G0/G01X_Y_D_;G40G0/G01X_Y_Z_;8.刀具长度补偿实现这种功能的G代码是G43、G44、G49。
FANUC系统铣床与加工中心工艺编程与操作实例首先,我们先来介绍FANUC系统的编程语言G代码。
FANUC系统的编程语言主要是G代码和M代码,其中G代码用于控制加工的动作,M代码用于控制机床的各种辅助功能。
在编程时,需要先编写主程序,然后在主程序中调用子程序,可以实现复杂的工艺路径。
下面是一个简单的FANUC 系统的G代码实例:```O0001(主程序)G00G17G20G40G80G90(设定绝对坐标系,单位为英寸,取消刀具半径补偿,取消切削速度平滑,取消跟随错误)T01M06(刀具切换)S3000M03(主轴转速设定)G54(刀具补偿坐标系选择)G00X1.0Y1.0Z1.0(快速定位到工件零点)G43H01Z0.1M08(刀具长度补偿,冷却液开启)G01X2.0Y2.0Z-2.0F100.0(线性插补,以F100进给速度向X2.0Y2.0Z-2.0点移动)G02X3.0Y3.0Z-2.0I1.0J1.0F50.0(顺时针圆弧插补,以F50进给速度沿着半径为1.0的圆弧移动到X3.0Y3.0Z-2.0点)G01X4.0Y4.0Z-2.0(线性插补,以F100进给速度向X4.0Y4.0Z-2.0点移动)G00Z1.0(快速定位到Z轴1.0点)G49(取消刀具长度补偿)M05(主轴停止)M09(冷却液停止)M30(程序结束)```接下来,我们将以一个铣床加工工件的实例来介绍FANUC系统的操作。
首先,我们需要设置机床的工作坐标系,并安装好需要使用的刀具。
然后,在FANUC系统的操作界面上选择刀具形状以及工具长度信息,以便进行刀具补偿。
接下来,我们需要编写工艺程序,输入上述的G代码。
在输入完G代码后,我们按下循环启动按钮,FANUC系统会根据G代码的指令依次执行相应的加工动作。
在加工的过程中,FANUC系统会自动控制刀具的进给速度、主轴转速以及冷却液的开启。
在加工过程中,如果需要改变加工速度或者停止加工,我们可以通过FANUC系统的操作界面来进行相应的操作。
《数控铣床 / 加工中心编程与操作》学习领域(课程)教课标准一、课程说明课程名称数控铣床 / 加工中心编程开课分院(系部)与操作合用专业数控技术应用专业课程代码学时先修课程后续课程编制人判定人制(修)定日期二、课程性质与任务在机械制造行业,数控加工技术岗位主要有:数控机床操作员(中心岗位)、数控工艺编程员(中心岗位)。
数控机床操作工按工种又可分为:数控车、数控铣、加工中心操作工等。
本课程是为培育数控铣、加工中心操作员、数控工艺编程员的数控镗铣类机床操作、数控工艺剖析与编程、数控加工以及质量控制等方面技术而设置的一门专业骨干课程,它与《数控车床编程与操作》课程一同对数控专业学生的职业能力的形成起要点支撑作用。
本课程先修课程有《机加工岗位与工作过程认识实训》、《工程图识读与使用软件画图》、《使用手动工具的部件加工》、《使用一般机床的部件加工》;后修学习领域有《顶岗实训》、《机械创新设计》。
同修的课程有《数控车床编程与操作》、《计算机协助造型与自动编程》。
本课程合用于数控技术专业。
三、课程设计思路本课程标准是以就业为导向拟订。
其课程内容以过程性知识为主、陈说性知识为辅,即以实质应用的经验和策略的习得为主、以适量够用的观点和原理的理解为辅。
由实践情境构成的以过程逻辑为中心的行动系统,重申的是获得过程性知识,主要解决“怎么做”(经验)和“怎么做更好” (策略)的问题。
课程内容的选择应按照三个原则:(1)科学性原则(2)情境性原则( 3)人天性原则。
课程内容的选用既表现职业性,也表现开放性;既服务于地方经济,知足公司的需要,也便于教课活动的展开。
所以本课程标准就以数控铣床和加工中心作为学习平台,选择最常用、最常有、最适用、最有代表性的典型部件加工过程为教课内容。
实现能力为本位的培育目标,是《数控铣床/ 加工中心编程与操作》课程内容定位的方向。
四、课程教课目的( 一) 素质目标经过本课程教课,正直学生的学习态度,能够锻炼学生的思想方法和思想能力,提升学生的职业素质和职业能力。
fanuc-oi数控铣床加工中心编程技巧与实例一、fanuc-oi数控铣床加工中心编程技巧在fanuc-oi数控铣床加工中心编程中,有一些技巧可以帮助操作者提高效率和准确性。
要熟练掌握fanuc-oi数控系统的基本操作和功能,包括编程界面的布局、参数设置、常用指令等。
在编程过程中要注意正确使用G代码和M代码,合理安排刀具路径,避免工件干涉和碰撞。
另外,还需要精确计算刀具补偿值,保证加工出来的零件尺寸精准。
要及时保存和备份编程数据,以防意外情况发生。
对于复杂的加工任务,可以考虑使用宏编程或子程序,提高编程的复用性和可维护性。
二、fanuc-oi数控铣床加工中心编程实例以fanuc-oi数控铣床加工中心编程为例,假设我们需要加工一个复杂的铝合金零件。
在编程之前要对零件的图纸进行仔细分析,确定加工顺序和切削参数。
在fanuc-oi数控系统中进行编程,设置好工件坐标系、刀具半径补偿、进给速度、主轴转速等参数。
接下来,按照加工顺序,逐步编写G代码和M代码,控制刀具的移动轨迹和加工过程。
在编程过程中,要考虑好刀具的选择和刀具路径,避免碰撞和干涉。
进行仿真和调试,确保编写的程序没有错误,可以顺利加工出符合要求的零件。
三、关于fanuc-oi数控铣床加工中心编程的个人观点和理解在fanuc-oi数控铣床加工中心编程中,技巧和实例只是基础,更重要的是理解加工原理和工艺要求。
在实际操作中,需要根据不同的零件特点和加工要求,灵活运用编程技巧,确保加工效率和加工质量。
保持对新技术和新工艺的学习和探索,不断提高自身的编程水平和创造力。
通过不断的实践和总结,形成自己的一套fanuc-oi数控铣床加工中心编程经验和方法,提高工作效率和竞争力。
总结:通过fanuc-oi数控铣床加工中心编程技巧与实例的介绍,我们可以更全面、深刻地理解在实际应用中,如何合理地进行加工中心编程。
熟练掌握fanuc-oi数控系统的基本操作和功能,合理选择加工策略和路径,对加工过程进行仿真和调试,将有助于提高加工效率和加工质量。
附录A FANUC 0i-MC系统数控铣床/加工中心操作一、记住操作面板外观及按键作用图A-1FANUC 0i-MC系统VDF-850型加工中心系统及机床操作面板FANUC 0i-MC系统VDF-850型加工中心系统及机床操作面板见图A-1..1.数控系统MDI面板数控系统MDI面板如图A-2所示;各键说明见表A-1..表A-1 FANUC 0i-MC系统MDI面板各键名称及功能说明步骤中文英文功能说明1 地址/数据键O/P、7/A等输入字母、数字等文字通过SHIFT键切换;可输入按键右下角所示字符2 分号键EOB 输入程序段结束符号“;”3 功能键POS 在CRT上显示当前机床位置的坐标PROG在EDIT方式;编辑和显示程序;在MDI方式;输入和显示MDI数据;在AUTO方式下显示程序及执行进度.. OFFSETSETTING设定刀补、工件坐标系、变量等SYSTEM 设置、编辑参数;显示、编辑 PMC 程序等MESSAGE 显示报警信息CUSTOMGRAPH动态显示刀具路径4 换档键SHIFT 按下该键可以在同一键的两个字符间切换图A-2 数控系统MDI面板5 取消键 CAN 删除最后一个进入输入行的字符或符号6 输入键 INPUT 非EDIT 方式下程序段及各种数据的输入7 编辑键 替换键 ALTER 由输入字替换光标所在字 插入键 INSERT 在光标后输入字 删除键 DELETE 删除光标所在位置的字10换页键PAGE↓向程序结束方向翻页;↑向程序开始方向翻页11 光标移动键分别向四个方向移动光标12 帮助键 HELP 显示帮助信息 13 复位键RESET解除报警;CNC 复位2.CRT 显示操作软键按下MDI 面板某一功能键如POS 键;属于所选功能的一组软键就会出现见图A-3..按下一个“章节选择软键”;所选章节的屏幕就会显示出来;若目标章节的屏幕没有显示出来;可按下“菜单继续软键”进行搜索;直到目标章节显示后;按“操作选择软键”以显示要进行操作的数据..章节选择软键 菜单继续软键菜单返回软键 操作选择软键 菜单返回软键:用于显示某一功能键下的第一级菜单..章节选择软键:用于某一功能键下各级菜单的显示和操作..操作选择软键:显示某一命令下的各种操作方式..菜单继续软键:显示命令多于5个时;可用该键换屏显示..3.机床操作面板图A-1下半部分为机床操作面板;其各键说明见表A-2..表A-2 机床操作面板各键名称及功能说明步骤图形/英文键名名称功能说明1 见图A-4 机床指示灯显示机床状态2 方式选择波段开关见图A-5AUTO 自动运行方式EDIT 程序编辑方式MDI 半自动方式或手动数据输入方式DNC 数据包括程序传输方式HANDLE 手轮进给方式JOG 点动进给方式INC 增量进给方式REF 返回参考点方式3 进给倍率开关在0~150%内调整进给速度4主轴转速调整在50~120%内调整主轴转速图A-4 机床指示灯图A-5方式选择键22 RAPID 快速移动键 快移速度可由“快移倍率选择键”调控 23 HOME START 回零键 控制“Z 、X 、Y ”轴回参考点 24O;TRA VEL RELEASE 超程解除开关 解除超程引起的急停状态 25SPD ORI 主轴定向 主轴定向 SPD CW 主轴正转 主轴顺时针回转 SPD STOP 主轴停转 主轴停止转动.. SPD CCW 主轴反转 主轴逆时针回转 26POWER ON 系统开 接通CNC 电源 POWER OFF系统关 断开CNC 电源27急停开关 使机床紧急停止;断开伺服驱动电源 28 CYCLE START 循环启动 在自动工作方式下;启动加工程序 29 FEED HOLD 进给保持自动运行时进给停止30PROGRAM PROTECT程序保护开关钥匙开关;控制存储器中程序的编辑、数据传输等二、手动操作 1.启闭机床 步骤 操作动作机床动作或CRT 显示画面 1 接通机床电柜电源稍等一会;CRT 显示如图A-6画面;机床启动完毕..2 按“POWER ON ”键接通系统电源;指示灯亮3如图A-6画面;机床启动完毕 4 移动机床各坐标轴到行程中间位置;防止机床变形和回参考点超程5按“POWER OFF ”键关闭系统图A-6 机床启动就绪画面电源6 切断机床电柜电源2.回参考点步骤操作动作机床动作或CRT显示画面1 开启机床见图A-6..2 按图A-6画面中综合软键CRT显示如图A-7画面2 将“方式选择”开关旋至“REF”方式见图A-53 按“+Z”地址键该键指示灯闪烁..4 按“HOME START”键机床执行Z轴回零;Z轴回零后机床指示灯亮起5 按“+X、+Y”地址键该键指示灯闪烁..6 按“HOME START”键执行X、Y轴回零;X、Y轴回零后指示灯亮起CRT显示如图A-8画面;机床完成回参考点操作;正确建立了机床坐标系..“相对坐标”指机床测量基点相对上次设定坐标移动的距离和方向..“绝对坐标”指机床测量基点在当前工件坐标系中的坐标值..“机床坐标”指机床测量基点在机床坐标系中的坐标值..注:1、增量式位置反馈系统;开机后先回参考点;才能建立机床坐标系..2、Z轴先回零;可以防止发生撞刀事故..3、机床加工中发生以下情况;必须重新回参考点:①发生撞刀;影响控制精度;图A-7 综合坐标画面图A-8 机床回参考点画面3.JOG点动4.INC增量进给5.HANDLE手轮进给3旋转“手轮轴倍率”旋钮;选定手轮每转一格机床移动的距离 手轮倍率选“1”;手轮转一格机床移动0.001mm ;选“10”→0.01mm ;选“100”0.1mm4顺时针转动手轮 机床向坐标轴正方向移动 逆时针转动手轮机床向坐标轴负方向移动长距离移动机床可摇小手柄来实现;短距离或精确调整机床位置;转大轮盘调整6.主轴操作 步骤操作动作 机床动作或CRT 显示画面机床已回过参考点.. 1 将“方式选择”开关旋至“MDI ”方式 见图A-52 按MDI 面板上“PROG ”键CRT 显示如图A-10a 画面 3 按MDI 面板上“字母、数字”键;在输入行键入“M03 S300;”4 按MDI 面板上“INSERT ”键插入CRT 显示如图A-10b 画面5 在图A-10b 画面中;移动光标到“O0000”之前6 按机床面板上“CYCLE START ”键 机床主轴以300r/min 正转7 将“方式选择”开关旋至“JOG ”方式 见图A-58 按机床面板上“SPD STOP ”键主轴停转9 按机床面板上“SPD CW ”或“SPD CCW ”键主轴重新启动;以300r/min 正转或反转10旋转“主轴转速调整”旋钮主轴转速在300×50~120%范图A-9 手轮操作面盘大轮盘小手柄围内变速注:①自动加入程序号O0000..②要完全删除在MDI 方式中编制的程序;可在图A-10中输入字符“O ”;按MDI 面板上“DELETE ”键..③在MDI 方式中编制的程序;最长达10段;可以调用子程序;最多4级嵌套;如图A-11所示..三、程序编辑 1.新程序的输入 步骤 操作动作机床动作或CRT 显示画面 1 将“方式选择”开关旋至“EDIT ”方式 见图A-52 按MDI 面板上“PROG ”键 屏幕显示如图A-12画面3 在图A-12中按列表软键屏幕显示如图A-13画面a b图A-10 MDI 编程画面当前程序输入行图A-12 程序编辑画面图A-13程序号列表画面已有程序号图A-11 MDI 方式调用子程序嵌套4 按MDI面板上“字母”、“数字”键;在图A-13输入行中;键入图A-13列表中没有的程序号;如O8989;按“INSERT”键插入屏幕显示如图A-14所示画面:5 按“EOB”键;在图A-13输入行中;键入“;”字符;按“INSERT”键插入6 按“字母、数字、EOB”键;编辑一个完整的程序段;按“INSERT”键输入一个完整程序段7 即输即存;编辑整个程序最终屏幕画面样式见图A-122.旧程序的编辑1程序号的检索步骤操作动作机床动作或CRT显示画面1 在图A-13输入行中输入要查找的程序号;如O1234屏幕画面样式见图A-14所示2 按图A-13中O 搜索软键3 检索结束后;搜索到的程序显示在画面上.. 见图A-124 检索结束后;如果没找到该程序屏幕出现P/S报警NO.712字的检索步骤操作动作机床动作或CRT显示画面1 在“EDIT”方式下;按MDI面板上“PROG”键屏幕显示见图A-122 在图A-12中;按操作软键屏幕显示如图A-15所示画面:3 在输入行中键入要检索的字;如“M03”图A-15 字检索画面新程序号图A-14 新程序号输入画面3字的插入、替换、删除4删除一个程序段5删除连续多个程序段1 选择“EDIT”方式;按“PROG”键; 屏幕显示见图A-122 在图A-12中移动光标或检索将要删除的程序段的第一个指令字光标定位在将要删除的程序段的第一个指令字上包括段号3 键入将要删除的最后一个程序段的第一个指令字包括段号在图A-12输入行中显示该指令字4按MDI面板上“DELETE”键多个程序段被删除;操作过程见图A-16中1、2、3步3.程序的管理1删除程序一个或多个程序步骤操作动作机床动作或CRT显示画面1 选择“EDIT”方式;按“PROG”键; 见图A-122 按图A-12中列表软键见图A-133①在图A-13中键入将要被删除的程序号“O1234”在图A-13的输入行中显示该程序号按MDI面板上“DELETE”键该程序被删除3②在图A-13中键入将要被删除的程序号的范围;如“O1234;O8989”O1234:代表将要被删除程序的起始程序号O8989:代表将要被删除程序的终止程序号图A-16这些程序段将被删除按MDI面板上“DELETE”键程序号从O1234到O8989之间的程序被删除3③在图A-13中键入“O-9999”在图A-13的输入行中显示“O-9999”按MDI面板上“DELETE”键存储区中所有的程序都被删除程序删除后不能恢复;删除要谨慎..2拷贝程序①拷贝一个完整的程序;生成另一个程序;如图A-17所示..拷贝“OXXXX”程序;新建“OYYYY”程序步骤操作动作机床动作或CRT显示画面1 选择“EDIT”方式;按“PROG”键; 当前程序号O1234;见图A-12;2 在图A-12中;按操作软键见图A-153 在图A-15中;按菜单继续键软键屏幕显示见图A-184 在图A-18中;按EX-EDT软键屏幕显示见图A-195 在图A-19中;按复制软键屏幕显示见图A-206 在图A-20中;按全部软键屏幕显示见图A-217 在图A-21中;只用“数字键”输入新建的程序号;如“1235”图A-21的输入行中显现“1235”8 按MDI面板上的“INPUT”键图A-21的输入行中字符消失;存储器中创建了程序号“O1235”但是没有内容..在图A-21中;按执行软键完成拷贝;生成新程序O1235..9 打开程序号列表画面见图A-13;可以看见程序号“O1235”已经显现在存储器存图A-17储的程序列表中了②拷贝程序的一部分;生成另一个程序;如图A-22所示..通过拷贝程序的一部分来生成一个新的程序步骤操作动作机床动作或CRT显示画面1 执行“拷贝一个完整程序”中的1~5步操作过程见上表..屏幕显示见图A-202 在图A-20中;移动光标到拷贝范围的开头确定拷贝的范围从“起点”到“终点”之间的程序内容或从“起点”到程序结束处的内容;屏幕显示见图A-21 在图A-20;按起点软键3①在图A-20中;移动光标到拷贝范围的末尾在图A-20中;按终点软键图A-22图A-18 图A-19图A-20图A-213② 在图A-20中直接按末端软键 4 在图A-21中;用“数字键” 只输入新建程序的数字号;如“1235”图A-21的输入行中显现“1235”5 按MDI 面板上的“INPUT ”键 图A-21输入行中字符消失 6在图A-21中;按执行软键完成拷贝;生成新程序O12357 打开程序号列表可以看见新生成的程序号“O1235”3移动程序 通过移动程序的一部分;来生成新的程序..如图A-23所示步骤 操作动作机床动作或CRT 显示画面 1 执行“拷贝一个完整程序”中的1~4步 见图A-192 在图A-19中;按移动软键屏幕显示见图A-24 3在图A-24中;移动光标到移动范围的开头 确定移动程序的范围从“起点”到“终点”之间的程序或从“起点”到程序结束处的程序屏幕显示见图A-25 在图A-24中;按起点软键4①在图A-24中;移动光标到移动范围的末尾 在图A-24中;按终点软键4② 在图A-24直接按末端软键 5 在图A-25中;用“数字键” 只输入新建程序的数字号;如“1235” 图A-25的输入行中显现“1235”6 按MDI 面板上的“INPUT ”键 图A-25输入行中字符消失7 在图A-25中;按执行软键完成移动;生成新程序..图A-23 移动之后移动之前4合并程序另外一个程序可以插入当前程序的任何位置..见图A-26步骤操作动作机床动作或CRT显示画面1 执行“拷贝”过程中的1~4步见图A-192 在图A-19中;按合并软键屏幕显示见图A-273①在图A-27中;移动光标到某一位置确定程序插入的位置在光标处插入或在结尾插入..屏幕显示见图A-28然后按终点软键3②或在图A-27中;直接按末端软键5 在图A-28中;用“数字键”;只输入新建程序的数字号;如“1237”图A-28的输入行中显现“1237”6 按MDI面板上的“INPUT”键图A-28输入行中字符消失7 在图A-28中;按执行软键完成合并;在原有程序号中生成新程序..图A-26图A-24 图A-255字的全部替换步骤操作动作机床动作或CRT显示画面1 执行“拷贝”过程中的1~4步见图A-192 在图A-19中;按改变软键屏幕显示见图A-293 在图A-29中;键入要被替换的字或地址图A-29输入行显示该指令字4 在图A-29中;按之前软键屏幕显示见图A-305 在图A-30中;键入新的字或地址图A-30输入行显示新字6 在图A-30中;按之后软键屏幕显示见图A-317①在图A-31中;按执行软键新字替换光标后所有指定的字或地址7②在图A-31中;按跳转软键只搜索光标后的第一个指定的字或地址图A-27图A-28图A-29 图A-30输入被替换字;如D01 输入新字;如D027③在图A-31中;按EX-SGL软键搜索并替换光标后第一个找到的指定字或地址注:①最多可以替换15个字符②可替换字或地址;不能只替换数字..示例:●用X30替换X100Y200:“替换X100Y200 之前X30 之后执行”●用WHILE替换IF:“替换IF 之前WHILE 之后执行”四、对刀及数据设置1.相对坐标显示操作及设置步骤操作动作机床动作或CRT显示画面1 开机;执行手动回参考点2 将“方式选择”开关旋至“JOG”方式3 按MDI面板上“POS”键见图A-64 在图A-6中;按相对软键屏幕显示见图A-325①在图A-32输入行中键入“坐标轴地址+数据”屏幕显示选定坐标轴地址闪烁按预置软键该轴相对坐标值改为输入数据值5②在图A-32输入行中键入坐标轴地址屏幕显示选定坐标轴地址闪烁按归零软键该轴相对坐标值清为05③在图A-32中;直接按归零软键屏幕显示见图A-33③-1、在图A-33中;按所有轴软键X、Y、Z的相对坐标值都清为0 ③-2在图A-33的输入行中输入某一坐标轴地址屏幕显示选定坐标轴地址闪烁在图A-33中;按执行软键该轴相对坐标值清为0 图A-312.零点偏置值设置 步骤 操作动作机床动作或CRT 显示画面 1 开机;执行手动回参考点2 将“方式选择”开关旋至“JOG ”方式3 通过“对刀”等操作;机床移动到某一位置4 按MDI 面板上“OFFSET SETTING ”键 屏幕显示见图A-34 5在图A-34中;按工件系软键屏幕显示见图A-356① 在图A-35中;直接按“换页键”或按“光标移动”键光标定位;选定需要设置零点偏置值的坐标系 按操作软键屏幕显示见图A-366② 在图A-35中;按操作软键 在图A-36中;键入数字“0~6”光标定位;选定需要设置零点偏置值的坐标系 按搜索软键7① 在图A-36中;键入“X0或Y0或Z0” 当前刀具测量基点在机床坐标系中的坐标值;自动显示在选定坐标系零点偏置值的位置上;并存储.. 按测量软键7② 在图A-36中;键入“坐标轴地址+数据”输入数据和原有偏置值相图A-32图A-33按+输入软键加7③在图A-33中;键入“坐标轴地址+数据”输入数据替代原有偏置值按输入软键3.刀具补偿值设置步骤操作动作机床动作或CRT显示画面1 开机;执行手动回参考点2 将“方式选择”开关旋至“JOG”方式3 按MDI面板上“OFFSET SETTING”键屏幕显示如图A-34所示画面4①在图A-34中;直接按“换页键”或按“光标移动”键光标定位;选定需要设置补偿值的刀具号然后按操作软键屏幕显示如图A-37所示画面4②在图A-34中;按操作软键在图A-37中;键入“偏置号”数字光标定位;选定需要设置补偿值图A-34图A-35图A-36按搜索软键的刀具号5①在图A-37中;键入“补偿值”数据输入的数据显示在指定刀具号的补偿位置上按输入软键5②在图A-37中;键入“补偿值”数据输入数据和原有偏置值相加按+输入软键1.外形数据和磨损数据设置时可正可负;二者代数和之后综合补偿..2.H数据用于刀具长度补偿;D数据用于刀具半径补偿4.对刀1X、Y方向对刀工件在机床上正确安装后;工件原点在机床坐标系中的坐标值即零点偏置值必须通过对刀才能获得;零点偏置值设定之后;机床就知道了工件的装夹位置..①立铣刀/寻边器对刀对于如图A-38所示工件;粗略方法可以采用立铣刀试切工件对刀如图A-39图A-37图 A-38图 A-39立铣刀侧刃对刀图A-40 寻边器接触对刀步骤操作动作机床动作或CRT显示画面1 开机;执行手动回参考点2 将“方式选择”开关旋至“MDI”方式3 按MDI面板上“PROG”键4 按MDI面板上“字母、数字”键;在程序O0000中输入“M03 S200;”见图A-105 按“CYCLE START”键主轴以200RPM正转6 选择“JOG”或“HANDLE”方式;控制刀具或寻边器在一定高度上接触工件的一边如图A-38中①边7 按MDI面板上“POS”键、相对软键见图A-328 输入“X”字符;按归零软键X相对坐标清为09 抬高刀具或寻边器;移动接触工件另一边如图A-38中②边;X相对坐标显示一个数值;如α;记住α/210 抬高刀具或寻边器;反向移动机床控制机床移动到X相对坐标显示为α/2处11 按“OFFSET SETTING”键、工件系软键、操作软键见图A-3612 选定工件坐标系零点存储区13 在输入行中输入“X0”14 按测量软键当前测量基点X方向的机床坐标值自动显示并存储15 将X改为Y;重复6~14步可获得Y向的机床坐标值②杠杆表对刀对于圆孔或圆柱面;除可以用寻边器对刀外;还可以采用杠杆表对刀;如图A-41所示..拨动主轴转一周时;表针的摆图动量在允许的对刀误差内;如0.01mm;此时可认为主轴的旋转中心与被测孔中心重合;则孔中心在机床坐标系下的坐标值可知.. 步骤 操作动作机床动作或CRT 显示画面 1 开机;执行手动回参考点2调整机床位置;让主轴的旋转中心与被测孔中心重合见图A-413 按MDI 面板上“OFFSET SETTING ”键、工件系软键、操作软键 见图A-364 选定工件坐标系零点存储区5在图A-36输入行中输入“X0” 孔中心位置X 方向的机床坐标值自动显示并存储按测量软键6在图A-36缓存区中输入“Y0” 孔中心位置Y 方向的机床坐标值自动显示并存储按测量软键 2Z 向对刀Z 向零点偏置值的设置;与刀具长度补偿值的设定、编程方法有关;常用三种方法;如图A-42、A-43、A-44所示..工件坐标系Z 向零点偏置值的设置方法不同;刀具长度补偿值、编程方法也需作相应的调整..①主轴端面对刀及刀具长度补偿 步骤 操作动作机床动作或CRT 显示画面1 机床开机;执行手动回参考点2 手轮摇动主轴端面靠工件坐标系Z=0的平面见图A-42a3按MDI 面板上“OFFSET SETTING ”见图A-36a b编程用工件Z 向零点位置E 点:测量基点图A-42键、工件系软键、操作软键 4 选定工件坐标系零点存储区5 在图A-36缓存区中输入“Z0” 图A-42a 中E 点Z 向机床坐标值自动显示并存储 按测量软键6 按MDI 面板上“POS ”键、相对软键 见图A-327 输入“Z ”字符;按归零软键Z 相对坐标清为0 8抬起主轴;装上新刀;手轮摇动让刀具Z 向刀位点靠工件坐标系Z=0的平面 如图A-42b 所示9 按MDI 面板上“OFFSET SETTING ”键、操作软键见图A-3710在图A-37中 “移动光标”或按搜索软键搜索刀具补偿号 让光标定位在该刀具的“外形H ”处11在图A-37中;按INP.C 软键该刀具的“外形H ”补偿值自动显现并存储补偿值L ﹥0.. 12 重复8、9、10、11步完成所有刀具“外形H ”值的设置这种方法测量的外形H 数据是刀具的实际长度L;加工不同的零件时;通用刀具刀补数据不需要改变;适用于多刀加工;刀具长度补偿..刀具实际长度L 也可从机外对刀仪测得;通过操作面板输入..②标准刀具对刀及刀具长度补偿步骤 操作动作机床动作或CRT 显示画面1主轴安装标准刀具;手轮摇动标准刀具见A-43aa 图A-43 bZ 向工件零点实际位置编程用工件Z 向零点位置LZ 向刀位点靠工件坐标系Z=0的平面 2 将机床坐标Z 值设定为工件Z 向零点偏置值操作过程见主轴端面对刀及刀具长度补偿3 Z 轴相对坐标值清04 更换新刀具;Z 向刀位点靠工件坐标系Z=0的平面 见图A-43b 5选定刀具补偿号见图A-376 在图A-37中;按INP.C 软键 完成所选刀具“外形H ”值L 的设置..补偿值L 可“正”、可“负”、也可为“0”7 重复4、5、6步骤完成所有刀具“外形H ”值的设置这种方法设定的Z 向零点偏置值是标准刀具的Z 向刀位点靠工件坐标系Z=0平面时E 点的机床坐标值;标准刀具长度补偿值是0;其它刀具与标准刀具的长度差L 作为该刀具的长度补偿值;可正可负;正负号由相对坐标值的正负号决定;L 不反映刀具的实际长度..加工不同工件时;需用标准刀具对刀重新设定Z 轴零点偏置值;刀补长度L 不变;适用于标准刀具单刀加工;刀具长度不补偿;也适合多刀加工;刀具长度补偿..标准刀具实质上是其它刀具长度的比较基准;是对刀的第一把刀具;并非什么真正的标准..③Z 轴回零及刀具长度补偿值的设置a 图A-44 bLE 点:Z 轴回参考点Z 向工件零点实际位置编程用工件Z 向零点位置五、自动操作1.空运行空运行的目的是为了校验程序格式和粗略判断刀具轨迹是否正确..2移动刀具离开工件上表面50mm 左右安全的情况下;距离小;轨迹看的清楚3 选定“EDIT ”方式;按“PROG ”键搜索要运行的程序;见图A-12 4 选定“AUTO ”方式 屏幕显示如图A-45所示 5在图A-45中;按监视软键屏幕显示如图A-46所示5按下机床操作面板上“DRY RUN ”键+“Z AXIS CANCLE ”键6按机床操作面板上“CYCLE START ”键机床自动运行..程序格式有错误;机床报警停止运动.. 机床运行轨迹不对;按“RESET ”键中断自动运行7记住机床报警时显示出错的程序段号..在“EDIT ”方式下显示程序;移动光标到出错的程序段.. 见图A-12..数控系统能预处理2个程序段;从光标所在的程序段往下多看几段程序;找出错误;进行编辑 8切换成“AUTO ”方式重新运行;直到程序调试完毕 9解除Z 轴锁紧;Z 轴回参考点由于数据正常运算、而锁紧轴不动;二者不匹配有差距;必须通过会参考点方式“对齐”图形显示功能也用于校验程序格式和刀具路径;这种方法比空运行判断刀具图A-45图A-46刀具基准点在工件坐标系中的位置刀具现在位置和目标位置之间的距离和移动方向 机床所用的初始G 代码和工作G 代码路径要来的直观、准确..步骤操作动作机床动作或CRT显示画面1 开机;手动回参考点2 移动刀具离开工件上表面50mm左右3 选定“EDIT”方式;按“PROG”键;搜索要运行的程序见图A-124 选定“AUTO”方式见图A-455 按MDI面板上“CUSTOM GRAPH”键屏幕显示如图A-47所示6 在图A-47中;输入必要的参数屏幕显示如图A-48所示;参数含义见下表然后按图A-47中执行软键7 在图A-48中按操作软键屏幕显示如图A-49所示8 在图A-49中按自动软键或开始软键屏幕显示刀具中心运行轨迹;如图A-50所示..机床不动图A-47 图A-48 绘图区:选定绘图平面角度:当绘图平面参数选择4、5时;设置图形水平旋转和垂直旋转的角度比例:0—根据设定的最大值和最小值;系统自动决定绘图比例..0.01~100:放大或缩小绘图显示;设定为1.0时;用实际尺寸绘图..中心或最大/最小:当比例设定为0时;地址X、Y、Z中输入工件上X、Y、Z正方向的最大尺寸;地址I、J、K 中输入工件上X、Y、Z负方向的最大尺寸;这样就指定了绘图的范围;系统根据CRT显示屏的尺寸自动调整绘图比例..当比例设定为非0时;地址X、Y、Z中输入CRT 中心点在工件上的位置坐标值;I、J、K无效.. 开始顺序号、结束顺序号:程序从头开始运行;但图形只显示两者中间的部分..3.单程序段运行这种方式多用于刀具完成工件的试切加工;主要检测刀具运行轨迹的准确性等..4.存储器自动运行5.后台编辑机床正在执行一个加工程序时;可在显示屏上编辑另一个程序;称为后台编辑..这种功能可以有效减少机床的停顿时间..在图A-52中;可按搜索↑软键、搜索↓软键;对显示的程序进行字的搜索5 编辑结束后按BG-EDT 软键返回前台加工画面屏幕显示如图A-45所示注:在后台编辑过程中;不能按“RESET ”键;否则机床将中断运行;停止加工..6.程序传输RS-232传输程序选用一台计算机;安装专用程序传输软件如Winpcin;用专用数据传输线把数控系统RS-232C 串行端口和计算机RS-232串行端口连接起来..注意需在机床和计算机非通电状态下连接..在数据通讯时;必须是接收方首先进入等待接收状态..下面用Winpcin 传输软件举例说明传输程序的具体操作方法..1设置通讯参数 步骤 操作动作机床动作或CRT 显示画面 1 计算机侧进入Winpcin 工具软件进入如图A-53所示Winpcin 画面2在图A-53中点击“Rs232 Config ”键 进入如图A-54所示“通讯参数设置”画面3在图A-54中将传输软件及数控系统的的串行通讯参数设置一致 如图A-54所示;如“BAUDRATE 波特率常设为9600、PARITY 齐偶校验不校验、STOPBITS 停止位为2、DATABITS 数据位为8”4 在图A-54中点击Text Format 键 设定文本模式的通讯参数5在图A-54中点击Save & Activate 键 将通讯参数保存并激活图A-52图A-51。