观光电梯钢结构井道图纸6
- 格式:pdf
- 大小:308.04 KB
- 文档页数:1
观光电梯钢构施工方案 HUA system office room 【HUA16H-TTMS2A-HUAS8Q8-HUAH1688】x x x x x x x x x x x x x x x x x x x x x x幕墙工程观光电梯钢结构施工方案编制人:(签字)审核人:(签字)批准人:(签字)xxxxxxxxxxxxxxxxxxx编制日期:二〇一五年四月目录第一章编制说明..............................................................第1节编制目的:........................................................第2节编制依据..........................................................第3节本工程施工采用的主要标准.......................................... 第二章工程概况..............................................................第1节工程概况:........................................................ 第三章施工总体部署..........................................................第1节实施目标..........................................................第2节施工顺序..........................................................第四章工程进度计划及进度保证措施............................................第1节工期目标..........................................................1、工期目标设定依据:...............................................第2节施工进度计划安排..................................................1、施工进度的计划的编制.............................................第3节施工进度计划控制..................................................1、计划的控制依据...................................................2、进度计划的过程控制:............................................. 第五章主要分部、分项施工方法................................................第1节钢板基层除锈、除锈油漆、制作、打包与运输、验收....................1、除锈标准及方法...................................................2、油漆.............................................................3、钢结构制作.......................................................4、焊接.............................................................第2节观光电梯井道钢结构安装............................................ 第六章主要技术措施..........................................................第1节焊接质量控制...................................................... 第七章施工安全和安全保证措施................................................第1节安全目标..........................................................第2节安全管理的意义....................................................第3节安全管理的原则:................................................... 第4节安全管理手段...................................................... 第5节安全管理体系...................................................... 第6节安全生产保证措施..................................................1、安全管理措施.....................................................2、施工安全管理防护措施.............................................3、“三宝”、“四口”防护措施.......................................4、施工现场临时用电.................................................5、季节性施工措施...................................................6、现场防火措施.....................................................7、施工期间突发事件的防范和救护.....................................8、常用中小机具使用安全要求.........................................9、严格执行安全技术操作规程......................................... 第八章应急预案..............................................................第1节应急预案的方针与原则..............................................第2节成立应急准备管理体系..............................................第3节应急工具清单......................................................第4节应急准备..........................................................第5节应急响应..........................................................第6节具体的安全事故及环境紧急情况的应急准备与响应措施..................第7节应急措施..........................................................第8节处理与改进........................................................第一章编制说明第1节编制目的:本施工方案是依据xxxxxxx有限公司设计的xxxxxxxxxx幕墙工程(电梯井道钢结构)施工图纸并结合现场的实际情况编制而成的,本施工方案编制的目的是:为了xxxxx医疗救治中心(区一医院)幕墙工程(电梯井道钢结构)施工,提供较为完整的纲领性技术文件,用以指导工程施工与管理,确保优质、高效、安全、文明地完成该工程的施工任务。
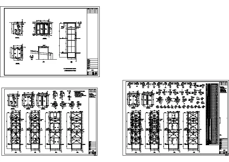
钢架结构观光电梯井道工程材料及施工技术要求清单,圆弧、型序号材料名称(规格)及安装要求1 矩形方管要按电梯井道荷载范围内使用钢材2 横梁拉弯要参照电梯的弧度3 钢架井道俩侧横梁支撑架荷载范围内焊接4 钢架井道内的配重尺寸要预留。
以便电梯安装5 电梯井道内的轿厢尺寸焊接横梁支架要预留6 钢架井道电梯上下门槛焊接。
以便电梯门安装7 钢架井道电梯主机承载大梁荷载计算内焊接8 220型防震不锈钢驳接爪顶部焊接承重吊钩9 导轨支架焊接,要满足电梯安装要求10 钢架井道电梯层站呼叫按钮预留开孔11 顶部钢丝绳预留开孔12 后置钢板400×300×1613 反冲器钢板250×250×2014 收口钢板150*150*1515 M18化学植筋螺栓。
拉力满足钢架安装要求16钢立柱安装加工,《套管插芯》17 避雷。
安装时要接地装置等。
18 钢架井道门框焊接。
要满足电梯安装19 铝单板尺寸定做加工20 220型防震不锈钢驳接爪21 220型防震不锈钢驳接头22 220型防震不锈钢底座连接件23 12mm(钢化)平板安全打孔玻璃24 12mm(钢化)拉弯玻璃弯矩系数挠度理论计算25 结构防水耐候玻璃胶26 钢架井道构件的重力荷载标准。
27 钢架井道底部基坑爬梯焊接28 线管安装及井道照明30 不锈钢大包门套套731 高悬空外墙雨水墙拆除m3 1.5备注:7层7站7门12mm钢化玻璃外装饰钢结构井道,无机房,总高度为30米(实际高度根据现场测量尺寸为准)这些古语风物长宜放眼量”,一个人之所以伟大,首先是因为他有超于常人的心。
“志当存高远”,“一种是“活着是为了吃饭”.古希腊哲学大师亚里士多德说:人有两种,一种即“吃饭是为了活着”,皆鼓舞人们要树立雄无数个自己,万千种模样,万千愫情怀。
有的和你心手相牵,有的和你对抗,有的给你雪中送炭,有的给你烦忧……与其说人的一生是同命运抗争,与性格妥协,不如说是与自己抗争,与自己妥协。
旧楼加装电梯,是选择钢结构井道还是混凝土井道?
旧楼加装电梯,是选择钢结构井道还是混凝土井道?
现今的电梯井道一般分为钢结构井道和混凝土井道两大类,它们各有优缺点。
下面让我带你简单了解两种类型的电梯井道:
钢结构电梯井道
1、施工干扰小,速度快。
2、钢材塑性好、韧性好,可有较大变形,能很好地承受动力荷载,是旧楼加建的不二选择。
3、钢结构抗震可以达到10级,然而土建工程的抗震性最多只能达到7级,钢结构自重小,刚度小,这样在计算水平地震作用的时候,往往地震力就会比混凝土结构小,而且其塑性能力强,在地震时可以吸收大量能量,所以钢结构的优势显而易见。
4、施工方便,施工周期短。
已建成的钢结构也易于拆卸、加固或改造。
5、钢结构的密封性好、钢结构的气密性和水密性较好。
6、采光性好。
7、钢材易于锈蚀,必须应采取防护措施。
混凝土井道
1、造价经济。
2、混泥土承受压力具有坚固、耐久、耐腐蚀的特性。
3、施工周期长。
4、建筑材料不可回收再用。
混凝土井道经济实惠、坚固耐用、免于维护是市民群众多数的选择。
外部景观好的楼宇,也有选择做钢结构观光电梯,观光井道同时能满足狭窄场地的部分采光要求。
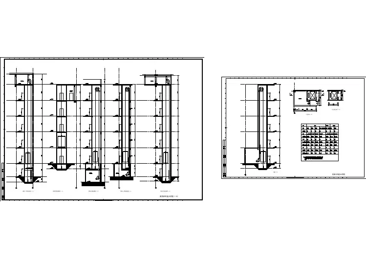
文化艺术中心观光电梯井道钢结构施工组织设计工程名称:文化艺术中心观光电梯井道钢结构工程编制单位:北京城五工程建设有限公司编制人:焦铁兴审核:叶惠泉日期:2015年8月3日目录编制依据 (3)杆件的加工及准备 (3)钢结构的垂直运输与安装 (3)钢结构的焊接施工 (4)焊接施工工艺 (5)钢结构涂饰施工 (5)玻璃幕墙的施工方法及技术措施 (6)安装工程流程 (6)安装工艺 (6)主要施工方法、技术难点、重点的分析及措施 (10)施工现场安全生产交底 (10)安全技术措施 (11)编制依据建筑结构荷载规范GB50009-2001建筑设计防火规范GB50016-2006建筑结构可靠度合计统一标准GB50068-2001钢结构设计规范GB50017-2003建筑结构用冷弯矩型钢管JG/T200-2007建筑钢结构焊接技术规程JGJ81-2002杆件的加工及准备根据设计图纸,对现场的实际尺寸进行测量,明确钢结构的各杆件、构建、紧固件连接件的型号及实际尺寸。
各型钢原材料,同时备齐钢结构施工的各种技术资料。
工厂根据实际尺寸及图纸各杆件、构件、紧固件、连接件的型号对原材料进行加工,校正。
检查符合钢结构的定位轴线及标高,并做好钢构件安装辅助放线工作;钢结构的垂直运输与安装1、由于本大楼未配备塔吊等吊装工具,构件原则上均为散装构件,构件最大荷载为600kg,选用φ10钢丝绳、高强度尼龙吊带与主体结构作可靠连接,神仙葫芦拉装。
严禁违章操作,确保安全,电梯外围搭设脚手架。
吊装前应将吊点位置按照规定高度安装好,并将保险绳按要求扣牢;施工中钢丝绳、高强度尼龙吊带作为一个重点检查部位,每天进行检查,发现磨损立即更换。
2、吊装中得方向控制:吊装前应固定好吊点得牢固性,尤其就位前依靠拉绳控制方向和高度,但注意用力要适当,以便减少吊装的重量。
3、吊装指挥:由于吊装受到条件的限制,如脚手架间距的限制,安全高度的限制。
因此人员组织时必须选派责任心强的指挥和操作手。