不锈钢楼梯栏杆制作安装工程报价单
- 格式:doc
- 大小:276.00 KB
- 文档页数:2
一、工程概况项目名称:XX住宅楼楼梯工程项目地点:XX市XX区XX路XX号项目规模:XX栋住宅楼,共XX层,楼梯间XX个工程内容:楼梯制作、安装、油漆及现场清理等二、工程量清单1. 楼梯制作:- 钢筋混凝土楼梯:XX平方米- 钢结构楼梯:XX平方米- 钢木楼梯:XX平方米2. 楼梯安装:- 钢筋混凝土楼梯安装:XX个- 钢结构楼梯安装:XX个- 钢木楼梯安装:XX个3. 楼梯油漆:- 钢筋混凝土楼梯油漆:XX平方米- 钢结构楼梯油漆:XX平方米- 钢木楼梯油漆:XX平方米4. 现场清理:- 楼梯安装现场清理:XX次三、材料清单及单价1. 钢筋混凝土楼梯材料:- 混凝土:XX元/立方米- 钢筋:XX元/吨- 模板:XX元/平方米2. 钢结构楼梯材料:- 钢板:XX元/平方米- 钢管:XX元/吨- 钢丝:XX元/千克3. 钢木楼梯材料:- 钢材:XX元/千克- 木材:XX元/立方米4. 楼梯油漆材料:- 油漆:XX元/千克四、人工费及机械费1. 人工费:- 楼梯制作、安装、油漆等人工费:XX元/平方米2. 机械费:- 模板支撑机械租赁:XX元/天- 油漆喷枪等设备租赁:XX元/天五、综合单价及总价1. 综合单价:- 钢筋混凝土楼梯:XX元/平方米- 钢结构楼梯:XX元/平方米- 钢木楼梯:XX元/平方米2. 总价:- 钢筋混凝土楼梯总价:XX元- 钢结构楼梯总价:XX元- 钢木楼梯总价:XX元六、其他费用1. 环保费:XX元2. 税费:XX元七、总计本工程楼梯施工总价为:XX元(含材料、人工、机械、环保费及税费)八、付款方式1. 合同签订后支付合同总价款的30%作为预付款;2. 施工过程中按实际完成工程量支付60%;3. 工程验收合格后支付10%;4. 售后服务期结束,无质量问题后支付剩余10%。
九、工期本工程计划工期为XX天,具体开工及竣工时间以合同约定为准。
特此报价,敬请审阅。
XX建筑工程有限公司联系人:XXX联系电话:XXX电子邮箱:XXX报价日期:XXXX年XX月XX日。
家庭楼梯装饰工程报价单范文
尊敬的xxx您好:
我公司接受了您的家庭楼梯装饰工程项目,经过现场踏勘和设计,拟定如下报价单,请查阅。
一、工程内容
1、楼梯拆除:拆除旧楼梯,清理废弃物。
2、楼梯主体:装修用12mm厚密度板,表面喷涂UV漆。
3、楼梯护栏:不锈钢扶手+玻璃护栏。
4、楼梯踏面:采用A级防滑木地板。
5、楼梯装饰:墙面粉刷,天花装饰灯。
6、电器安装:楼梯灯、墙壁插座。
二、工程费用
项目数量单价金额
楼梯拆除 1项 1000元 1000元
楼梯主体构造 1项 5000元 5000元
护栏安装 12米 150元/米 1800元
踏面地板 50平方米 80元/平方米 4000元
墙面粉刷 60平方米 25元/平方米 1500元
天花装饰 6盏 200元/盏 1200元
楼梯灯 6盏 180元/盏 1080元
墙壁插座 5个 50元/个 250元
小计 14830元
其他杂项费用 1000元
总计 15830元
三、服务内容
1、提供完整的施工方案和效果图。
2、保证施工质量,杜绝安全隐患。
3、工程尾款结算前进行全面检查。
4、提供完善的售后服务。
请您审阅后给予批复,我们将严格按照约定的施工方案和进度进行施工。
如果有任何问题,随时与我们联系。
感谢您的信任和支持!
顺颂
商祺!
XX装饰工程有限公司
2022年X月X日。
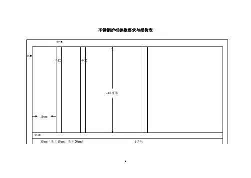
不锈钢护栏参数要求与报价表
说明:1、不锈钢护栏上管、下管、中间管、立柱材质均为壁厚≥1.2mm的不锈钢圆管(国标)。
2、护栏一节长1.5米,每节如图如示,上管直径≥76mm,下管直径≥50mm,中间管直径≥32mm,
两边立柱直径≥63mm。
两边立柱长120cm,其中上下管净距为105cm,下管到地面为10cm,地下
部分为20cm。
每个接头焊点不得少于四个。
3、每节中间有10根不锈钢管,管直径≥32mm,管净距≤11cm。
4、立柱地下部分20cm用C20以上混凝土(基座尺寸30cm*30cm*20cm)浇注。
5、施工时现场焊接,建设单位随时检查材料质量。
报价单位全称:
按照以上参数要求,每米不锈钢护栏报价(含安装费)为小写:元整,大写:整。
(报价单位盖章)
年月日
说明:(1)以上技术参数不接受负偏离。
(2)本次采购安装不锈钢护栏总价在8万元至10万元,最终,按照实际安装的数量结算费用。