剪力墙钢筋详解
- 格式:doc
- 大小:1.13 MB
- 文档页数:12
剪力墙的钢筋计算剪力墙是指由墙体承担剪力的一种结构元素,主要承担建筑物在水平方向的剪力传递和抗剪能力。
在进行剪力墙的钢筋计算时,需要考虑墙体受力、钢筋数量和布置、钢筋直径和间距等因素。
一、剪力墙的受力分析剪力墙主要受到水平荷载的作用,根据建筑结构的特点以及设计要求,计算得到剪力墙所受到的剪力大小。
剪力墙的受力分析要考虑结构所处的地震烈度、楼层高度、建筑材料等因素,并结合设计规范进行计算。
二、钢筋数量计算根据剪力墙的受力大小,可以计算出所需要的钢筋总面积。
剪力墙的钢筋数量通常按照钢筋配筋率进行计算。
具体计算公式如下:As = (V / (ρ × fy)) × 10^3其中,As为所需钢筋总面积(mm²),V为剪力大小(kN),ρ为钢筋配筋率,fy为钢筋的屈服强度。
三、钢筋布置根据设计要求和钢筋配筋率,可以计算出每层剪力墙所需的钢筋数量,然后根据剪力墙的高度和钢筋直径计算出每个截面所需的钢筋根数。
钢筋应尽量均匀分布在截面内,并注意与封闭壁等其他构件的联接。
四、钢筋直径和间距根据设计规范和结构要求,可以确定剪力墙所需的钢筋直径和间距。
一般情况下,剪力墙的钢筋直径应在12-40mm范围内,钢筋间距应根据构造要求进行设计。
五、验算完成钢筋配筋后,需要进行验算以确保设计符合要求。
验算包括钢筋受力验证、截面尺寸验证等。
主要通过计算各个截面的受力和变形情况,检查是否满足设计要求。
在进行剪力墙的钢筋计算时,需要根据具体的设计要求和结构特点进行综合考虑。
只有满足结构的受力和强度要求,才能确保剪力墙的安全可靠。
从计算设置学平法之二——剪力墙的计算设置介绍剪力墙分为墙身、墙柱(暗柱和端柱)和墙梁(暗梁和连梁)。
剪力墙墙身中的钢筋一般有水平钢筋、垂直钢筋和拉筋。
墙柱的钢筋有纵筋和箍筋、拉筋。
墙梁的钢筋也分为纵筋和箍筋,有时候还有拉筋。
下面主要介绍剪力墙的钢筋算法,墙柱的算法见柱/墙柱计算设置介绍,墙梁的计算比较简单,这里不做详细介绍。
一、剪力墙算量基本方法:一、水平筋的计算(图集规定):(一)长度计算:水平筋计算,需要根据端部是暗柱或端柱,取不同的做法。
一字型端部无暗柱的水平筋做法,见03G101-1第47页;采用U形封边或者端部弯折15d。
有暗柱的L形和T形墙水平筋做法,见03G101-1第47页;有端柱的墙水平筋做法,见03G101-1第47页。
(二)根数计算:根数=(墙高-起步)/间距+1,扣洞口。
二、垂直筋的计算:(一)长度计算:1、基础层:插筋长度=露出长度(按规范计算,见计算设置第20项)+搭接长度+基础厚度-保护层+弯折(按规范取,见计算设置第21项)垂直筋长度=层高-本层露出长度+上层露出长度,见03G101-1第48页。
2、中间层:垂直筋长度=层高-本层露出长度+上层露出长度,见03G101-1第48页,同上图。
3、顶层:垂直筋长度=墙高-本层露出长度-节点高+锚固,见03G101-1第48页。
(二)根数计算:根数=(净长-起步)/间距+1,扣洞口。
三、拉筋的计算:(一)长度计算:墙身范围内拉筋长度=bw(墙厚)-2*保护层+2*拉筋弯勾长度+拉筋调整长度边框梁范围内拉筋长度=hb(边框梁截面宽度)-2*保护层+2*拉筋弯勾长度+拉筋调整长度(二)根数计算:1、计算拉筋应扣除连梁、洞口范围;2、当墙上有暗梁、边框梁时,且暗梁、边框梁输入了拉筋时,则需要扣除暗梁、边框梁的范围;3、当墙上有暗梁、边框梁时,且暗梁、边框梁没有输入拉筋时,则不扣除暗梁、边框梁的范围,同时边框梁范围的拉筋长度应根据边框梁的截面宽度进行计算;4、计算拉筋数量时,还需要根据节点设置中拉筋的布置方式进行排列计算;拉筋双向布置计算方法:1、N=ceil(墙净面积/拉筋面积)+12、拉筋面积=S1*S2拉筋梅花布置一计算方法:1、N=2*[ceil(墙净面积/拉筋面积)+1]二、软件计算设置:一、公共设置项:2.纵筋搭接接头错开百分率:提供四种选项。
剪力墙钢筋详解在建筑结构中,剪力墙扮演着至关重要的角色,而剪力墙中的钢筋更是其稳固性和承载能力的关键所在。
接下来,让我们一起深入了解一下剪力墙钢筋的方方面面。
剪力墙,顾名思义,是一种能够承受风荷载或地震作用引起的水平力的墙体。
为了使其具备足够的强度和抗震性能,钢筋的配置和布置就显得尤为重要。
首先,我们来谈谈剪力墙钢筋的种类。
一般来说,剪力墙中常见的钢筋包括纵向钢筋、横向钢筋和箍筋。
纵向钢筋主要承受拉力和压力,沿着墙体的长度方向布置。
横向钢筋则主要用于约束混凝土,增强墙体的抗剪能力,它们垂直于纵向钢筋分布。
箍筋通常用于固定纵向钢筋和横向钢筋的位置,提高钢筋骨架的整体性。
纵向钢筋的配置数量和直径是根据剪力墙所承受的荷载以及设计要求来确定的。
在设计过程中,需要考虑到墙体的高度、宽度、混凝土强度等多个因素。
一般来说,较高的剪力墙需要配置更多、直径更大的纵向钢筋,以确保其在受力时不会发生过大的变形或破坏。
横向钢筋的间距和直径同样有严格的要求。
间距过小会增加施工难度和成本,间距过大则可能导致混凝土开裂。
通常,横向钢筋的间距会根据墙体的厚度和受力情况进行合理的设置。
箍筋的作用不可小觑。
它不仅能够固定钢筋骨架,还能在一定程度上提高墙体的延性和抗震性能。
箍筋的形式和间距也需要按照设计规范进行布置。
接下来,说说剪力墙钢筋的布置方式。
纵向钢筋通常均匀分布在墙体的两侧,以保证墙体在两个方向上的受力性能均衡。
横向钢筋则与纵向钢筋相互垂直交织,形成一个坚固的钢筋网。
在剪力墙的端部和转角处,钢筋的布置会更加密集。
这是因为这些部位往往是受力较为集中的区域,需要更强的钢筋来承受和传递荷载。
钢筋的连接方式也有多种,常见的有焊接、机械连接和绑扎连接。
每种连接方式都有其适用的条件和要求,例如焊接连接的质量要求较高,机械连接则适用于直径较大的钢筋。
在施工过程中,确保剪力墙钢筋的位置准确和保护层厚度符合要求是至关重要的。
如果钢筋位置偏差过大,可能会影响墙体的受力性能;而保护层厚度不足则可能导致钢筋过早锈蚀,降低墙体的使用寿命。
剪力墙钢筋计算详解在建筑结构中,剪力墙是一种重要的抗侧力构件,能够有效地抵抗水平荷载,如地震作用和风荷载。
而剪力墙钢筋的计算则是确保剪力墙结构安全性和稳定性的关键环节。
接下来,咱们就详细地说一说剪力墙钢筋的计算。
剪力墙的钢筋主要包括竖向钢筋、水平钢筋和拉筋。
先说竖向钢筋。
竖向钢筋的作用主要是承受剪力墙在竖向荷载下产生的压力和弯矩。
计算竖向钢筋时,需要先确定剪力墙的受力情况。
一般来说,根据剪力墙的高度和受力特点,可以将其分为底部加强区和非底部加强区。
在底部加强区,由于受到的地震作用较大,竖向钢筋的配筋率通常会有所增加。
计算竖向钢筋的数量,需要考虑剪力墙的轴压力设计值、混凝土抗压强度、钢筋抗压强度等因素。
通过这些参数,可以利用相关的计算公式算出所需的竖向钢筋面积,然后根据钢筋的直径和间距进行配置。
非底部加强区的竖向钢筋计算相对较为简单,但也需要考虑轴压力和弯矩的影响。
在实际计算中,要根据具体的设计规范和要求进行。
再来说水平钢筋。
水平钢筋主要用于抵抗剪力墙在水平荷载作用下产生的剪力。
水平钢筋的间距通常较小,以保证剪力墙的抗剪性能。
计算水平钢筋时,要先确定水平剪力的设计值。
这个值的确定需要考虑地震作用、风荷载以及结构的自振特性等因素。
然后,根据混凝土的抗剪强度和水平钢筋的抗拉强度,计算出所需的水平钢筋面积。
在配置水平钢筋时,还要注意钢筋的间距不能超过规范规定的最大值,以确保剪力墙在各个部位都能有效地抵抗剪力。
除了竖向钢筋和水平钢筋,拉筋在剪力墙中也起着重要的作用。
拉筋的主要作用是将竖向钢筋和水平钢筋拉结在一起,形成一个整体的钢筋骨架,增强剪力墙的整体性和稳定性。
拉筋的计算相对简单,主要是根据竖向钢筋和水平钢筋的间距以及设计要求来确定拉筋的间距和直径。
在实际的工程设计中,剪力墙钢筋的计算还需要考虑很多其他因素。
比如,剪力墙的形状和尺寸、洞口的位置和大小、边缘构件的设置等等。
对于形状不规则的剪力墙,可能需要采用有限元分析等方法来精确计算钢筋的受力情况。
引言概述:剪力墙是建筑结构中的一种重要承载组件,通过抵抗水平地震力和风力荷载来保护建筑物的安全。
在剪力墙的设计和施工中,钢筋起着关键的作用。
本文将详细阐述剪力墙钢筋的设计和施工,包括钢筋的选择、布置和连接方法等。
正文内容:1.钢筋选择:1.1强度等级:根据相关设计规范和结构要求,选择适当的钢筋强度等级。
1.2直径选择:根据剪力墙的尺寸和受力要求,选择合适的钢筋直径,通常采用直径为12mm至32mm的钢筋。
1.3型号选择:根据剪力墙的具体受力情况和设计要求,选择合适的钢筋型号,如HRB400、HRB500等。
2.钢筋布置:2.1基本原则:钢筋布置应满足构造要求和规范规定,确保剪力墙的整体性能。
2.2水平钢筋布置:在剪力墙的水平方向上,通过布置水平钢筋来抵抗水平地震力和风力荷载。
2.3竖向钢筋布置:在剪力墙的竖向方向上,通过布置竖向钢筋来抵抗竖向地震力和垂直荷载。
2.4弯曲钢筋布置:在剪力墙的门窗洞口、开口等处,通过布置弯曲钢筋来保持剪力墙的完整性。
2.5交错钢筋布置:在剪力墙的不同水平层之间,通过交错布置钢筋来提高抗震性能。
3.钢筋连接:3.1焊接连接:适用于直径较大的钢筋连接。
3.2扭剪连接:适用于直径较小的钢筋连接。
3.3套筒连接:适用于钢筋连接需求频繁的剪力墙。
3.4螺栓连接:适用于需要可拆卸的钢筋连接。
3.5立柱连接:剪力墙与剪力墙之间的连接通常采用立柱连接,确保整体结构的稳定性。
4.施工要点:4.1钢筋加工:钢筋必须按照设计要求进行切割、弯曲和焊接等加工,确保钢筋的几何尺寸和力学性能。
4.2钢筋安装:钢筋必须按照设计图纸和施工要求进行正确的安装,避免错位和错漏。
4.3钢筋固定:钢筋必须通过适当的固定措施,如焊接、绑扎、套筒等,确保其在混凝土中的位置和稳定性。
4.4钢筋保护:施工过程中,要注意保护钢筋免受腐蚀和损坏,以保证剪力墙的长期使用性能。
4.5连接质量控制:钢筋连接时,要严格控制焊接质量和连接强度,确保连接的可靠性和安全性。
剪力墙钢筋计算详解1、暗柱钢筋计算(1)(A)纵筋长度计算:中间层:采用绑扎连接时,长度=层高+1.2Lae,采用机械连接(如直螺纹套筒)时,长度=层高-500+500(B)顶层:采用绑扎连接时,长度=层高-500-板厚+Lae采用机械连接(如直螺纹套筒)时,长度=层高-500-板厚+Lae(C)纵筋根数:按图数(D)箍筋计算:(梁宽 + 梁高 - 4 * 保护层) * 2 + 11.9*d*2+8*d (E)拉筋长度:墙厚-保护层*2+2d+1.9d*2+max(75,10d)*2根数:层高/拉筋间距+1(端柱同暗柱)(2)剪力墙中的暗梁;暗梁纵筋长度=暗梁净长+两端锚固:(3)箍筋长度=暗梁宽+暗梁高)*2-8*保护层+8*d+2*11.9*d;箍筋根数=暗梁净长/间距+1(4)剪力墙中的连梁连梁纵筋长度=洞口宽+左右两边锚固max(Lae,600)中间层连梁箍筋根数=(洞口宽-50*2)/箍筋配置间距+1顶层连梁箍筋根数(两端为直锚时)=(洞口宽-50*2/箍筋配置间距+1)+(连梁锚固直段长-100/150+1)*2连梁箍筋的长度=(梁宽 + 梁高 - 4 * 保护层) * 2 + 11.9*d*2+8*d (5)拉筋长度= 梁宽-保护层+2*11.9*d+2*d;根数=排数*((洞口宽-100)/间距)2、墙身水平钢筋(墙端为暗柱)外侧钢筋=墙长-保护层;内侧钢筋=墙长-保护层+15d根数:层高/间距+1(暗梁、连梁墙身水平筋照设)墙身水平钢筋(墙端为端柱)外侧钢筋=墙长-保护层;内侧钢筋=墙净长+锚固长度(弯锚、直锚)根数=层高/间距+1(暗梁、连梁内水平筋照设墙身纵筋计算基础插筋=弯折长度a+锚固竖直长度h1+搭接长度1.2LaE或非连接区500中间层纵筋=层高+搭接长度1.2LaE或非连接区500顶层纵筋=层高-板厚+锚固根数=(墙净长(墙长-暗柱截面长)-2*s/2)/间距3、墙身垂直钢筋(1)墙身竖向分布钢筋根数=墙身净长-1个竖向间距s/2(或2*50)/竖向布置间距+1墙身垂直分布筋是从暗柱或端柱边开始布置(2)遇有洞口时,需要分段计算根数墙梁钢筋与墙身钢筋的关系当设计未注明时,侧面构造纵筋同剪力墙水平分布筋;拉筋直径:当梁宽≤ 350时为6mm,梁宽>350时为8mm,拉筋间距为两倍箍筋间距;当连梁截面高度>700时,侧面纵向构造钢筋直径应≥10mm,间距应≤200。
剪力墙钢筋标注-概述说明以及解释1.引言概述部分的内容可以对剪力墙钢筋标注的背景和意义进行简要介绍。
以下是可能的一份初稿:"1.1 概述剪力墙是建筑结构中常见的承重墙体,主要用于抵抗地震和风力等外力作用。
为了增强剪力墙的承载能力和抗震性能,钢筋起着至关重要的作用。
剪力墙钢筋标注是指在设计和施工过程中,对剪力墙中的钢筋进行标记和记录,以便更好地进行施工和质量监控。
剪力墙钢筋标注对于确保剪力墙的结构安全和稳定性非常关键。
首先,标注可以帮助工程师和施工人员准确理解剪力墙中钢筋的位置和布置方式。
这对于施工人员在进行施工时能够正确地安装钢筋起到重要作用。
其次,标注也有助于监理人员和质检人员在施工过程中进行质量监控,确保剪力墙的钢筋布置符合设计要求和相关标准。
此外,标注还可以在后期维护和检修时提供重要的参考资料,帮助工程人员及时找到、维修和更换剪力墙中的钢筋。
因此,剪力墙钢筋标注在建筑结构设计和施工中起着至关重要的作用。
本文将对剪力墙钢筋标注的定义、作用和重要性进行详细讨论,并提出相关的建议,旨在更好地推动剪力墙钢筋标注工作的规范化和优化。
"请根据实际需要和文章主题进行修改和调整。
1.2 文章结构文章结构:本篇文章主要分为引言、正文和结论三个部分。
引言部分主要包括概述、文章结构和目的三个方面的内容。
在概述部分,对剪力墙钢筋标注的重要性进行简要介绍,引起读者的兴趣和关注。
文章结构部分,即本部分,详细说明了文章的结构,使读者可以清晰地了解到文章的组成和框架。
目的部分则明确了本篇文章的写作目的,即通过对剪力墙钢筋标注的讨论,提高人们对于这一标注的认识和重视程度。
正文部分着重说明了剪力墙的定义和作用,以及剪力墙钢筋标注的重要性。
在剪力墙的定义和作用部分,详细介绍了剪力墙的概念、结构以及在建筑工程中的重要角色。
同时,阐述了剪力墙在抵抗水平荷载和提高结构整体刚度方面的作用。
在剪力墙钢筋标注的重要性部分,强调了合理标注剪力墙钢筋对于确保工程质量、减少安全隐患和提高施工效率的重要性。
剪力墙钢筋计算规则在建筑结构中,剪力墙是一种重要的抗侧力构件,能够有效地抵抗水平荷载,如地震力和风荷载。
而剪力墙钢筋的计算则是确保剪力墙结构安全和稳定的关键环节。
接下来,让我们详细了解一下剪力墙钢筋计算的规则。
一、剪力墙钢筋的分类剪力墙中的钢筋主要包括竖向钢筋、水平钢筋和拉筋。
竖向钢筋通常沿着剪力墙的高度方向布置,主要承受剪力墙在竖向荷载作用下产生的压力和拉力。
水平钢筋则沿着剪力墙的水平方向布置,主要用于抵抗水平荷载产生的剪力,并约束混凝土,提高剪力墙的抗震性能。
拉筋一般呈梅花形或矩形布置,用于将竖向钢筋和水平钢筋拉结在一起,增强钢筋骨架的整体性。
二、剪力墙钢筋计算的基本原理剪力墙钢筋的计算基于结构力学和混凝土结构设计原理。
计算时需要考虑剪力墙所承受的荷载、混凝土和钢筋的材料性能以及剪力墙的几何尺寸等因素。
在计算竖向钢筋时,需要根据剪力墙所承受的竖向轴力和弯矩,按照钢筋混凝土结构设计规范中的公式进行计算,确定所需的钢筋面积。
对于水平钢筋,其计算主要依据剪力墙所承受的水平剪力,通过相应的公式计算出所需的钢筋面积。
拉筋的计算则通常根据构造要求确定其间距和直径。
三、剪力墙竖向钢筋计算1、边缘构件纵筋计算边缘构件包括约束边缘构件和构造边缘构件。
其纵筋的计算需要根据剪力墙的抗震等级、轴压比等参数确定。
一般来说,纵筋的面积应满足规范规定的最小配筋率要求,同时还要根据计算结果进行调整。
2、墙身竖向分布钢筋计算墙身竖向分布钢筋的计算要考虑剪力墙的高度、混凝土强度等级、钢筋强度等级等因素。
通常按照受弯构件的正截面承载力计算方法,计算出所需的钢筋面积。
在计算墙身竖向分布钢筋时,还需要考虑钢筋的搭接和锚固长度。
搭接长度应符合规范要求,以保证钢筋的传力性能;锚固长度则要根据钢筋在混凝土中的粘结性能和受力情况确定,确保钢筋能够有效地发挥作用。
四、剪力墙水平钢筋计算1、计算剪力首先需要根据结构所承受的水平荷载,计算出剪力墙所承受的剪力。
电梯井剪力墙钢筋详解:高清在建筑结构中,电梯井剪力墙起着至关重要的作用,而其中的钢筋配置更是决定其强度和稳定性的关键因素。
今天,咱们就来详细聊聊电梯井剪力墙钢筋那些事儿,用高清视角为您揭开它的神秘面纱。
首先,咱们得明白啥是电梯井剪力墙。
简单来说,它就是围绕着电梯井设置的、能够承受水平和垂直荷载的混凝土墙体。
而钢筋呢,则像骨架一样嵌入在混凝土中,增强墙体的抗拉、抗压和抗弯能力。
电梯井剪力墙中的钢筋种类繁多,常见的有纵向钢筋和横向钢筋。
纵向钢筋主要承受沿着墙体长度方向的拉力和压力,就像是一列列整齐排列的士兵,坚守着防线。
横向钢筋呢,则主要用来约束纵向钢筋,防止它们在受力时发生位移和变形,同时也能提高墙体的抗剪能力,就好比是给纵向钢筋系上了安全带,让它们更稳定地发挥作用。
在钢筋的布置上,那也是有讲究的。
纵向钢筋通常沿着墙体的两侧边缘布置,而且要保证在墙的两端和转角处有足够的锚固长度。
锚固长度可是个重要概念,它指的是钢筋伸入支座或节点内的长度,足够的锚固长度能确保钢筋与混凝土之间的粘结力,使它们共同工作。
横向钢筋呢,则按照一定的间距均匀分布在纵向钢筋之间,形成一个牢固的钢筋网。
说到钢筋的规格和型号,那得根据建筑物的高度、地震设防烈度、风荷载等多种因素来确定。
一般来说,钢筋的直径越大,其承载能力就越强,但同时成本也会相应增加。
所以,在设计时要综合考虑各种因素,选择合适的钢筋规格和型号,以达到既安全又经济的目的。
接下来,咱们再聊聊钢筋的连接方式。
常见的有绑扎连接、焊接连接和机械连接。
绑扎连接比较简单,但对钢筋的位置和间距要求较高;焊接连接的连接强度较高,但施工难度较大,对焊工的技术要求也高;机械连接则具有连接速度快、质量稳定等优点,但成本相对较高。
在实际施工中,要根据具体情况选择合适的连接方式。
在施工过程中,钢筋的安装质量至关重要。
钢筋的间距、位置、保护层厚度等都必须严格按照设计要求进行控制。
如果间距过大或过小,都会影响墙体的受力性能;位置偏差过大可能导致钢筋不能有效地发挥作用;而保护层厚度不足则会使钢筋容易受到腐蚀,降低其使用寿命。
剪力墙内部钢筋分类其中墙柱的类型及代号剪力墙,听起来好像挺高大上的一个概念,其实它就在我们的身边,不管是高楼大厦还是小区里的楼房,都少不了剪力墙的身影。
你可别小看这块“墙”,它可不仅仅是用来分隔空间的,还是建筑物的“硬骨头”,起到承受水平力和剪切力的作用。
咱们今天就来聊聊剪力墙里的钢筋分类,特别是墙柱类型和代号。
别急,听我慢慢道来,保证你看完这篇文章对剪力墙有一个全新的认识。
得说说墙柱的类型。
墙柱啊,顾名思义,就是墙里的一种特殊柱子,通常位于剪力墙的转角或者重要部位。
一般来说,墙柱的主要任务就是加强剪力墙的抗力,让建筑物在风力、地震等外力的作用下更加稳固。
墙柱的种类可不少,从位置上来说,可以分为外墙柱和内墙柱;从钢筋的配置角度,常见的有钢筋混凝土墙柱和钢结构墙柱。
说白了,外墙柱一般是指在建筑外部的那些柱子,而内墙柱则多是在室内起到加强作用的柱子。
我们说说代号。
剪力墙里的钢筋可不是随便弄的,得有明确的编号和代号,才能方便大家理解和施工。
比如,墙柱的代号一般会根据其位置、构造形式以及受力方式来设定。
你看,那些外墙柱,通常代号里就有“外”字,而内墙柱则可能带着“内”字。
再比如,墙柱的钢筋配置要有不同的标号,钢筋越强,代号也就越大。
这样的代号就像给每一个墙柱发了个身份证,施工人员一看代号,心里就有数了。
有趣的是,钢筋的安排并不是随便的。
咱们常说“一个萝卜一个坑”,这在剪力墙的钢筋分类里也是一样的。
钢筋的数量、间距、位置,都有着严格的要求。
墙柱的钢筋大多采用纵向钢筋和横向钢筋的配合方式,纵向钢筋主要承受拉力,横向钢筋则负责防止墙柱发生裂缝。
说到这里,有没有觉得墙柱其实就像是一个超级有责任感的“健身教练”?不仅自己要强壮,还得确保墙体的其他部分也能“跟得上”。
有些朋友可能会问,墙柱究竟有多重要呢?其实它就像是建筑物的“护航员”。
你想想,地震来了,风来了,建筑物得有人顶住这些外力,才不会摇摇欲坠。
而墙柱正是为了这个目的而存在。
剪力墙钢筋构造剪力墙钢筋构造1. 引言剪力墙是一种常用的结构构件,主要目的是承受水平荷载,并将其传递到基础上。
钢筋在剪力墙中的定位和布置至关重要,因为它们直接影响到剪力墙的强度和刚度。
2. 钢筋布置2.1 主剪力筋主剪力筋是指在剪力墙的受力平面上,沿高度方向布置的钢筋。
其布置应满足设计要求,以确保剪力墙具有足够的强度和刚度。
主剪力筋的直径、间距和数量应根据设计荷载和钢筋的抗拉强度进行计算。
2.2 垂直筋垂直筋是指在剪力墙的受力平面上,垂直于主剪力筋布置的钢筋。
其主要作用是增加剪力墙的抗剪强度和刚度,防止剪力墙的纵向开裂。
垂直筋的直径、间距和数量应根据设计要求进行计算。
2.3 水平筋水平筋是指在剪力墙的受力平面上,水平布置的钢筋。
其主要作用是增加剪力墙的抗弯强度和刚度,承担剪力墙顶部的荷载。
水平筋的直径、间距和数量应根据设计要求进行计算。
3. 钢筋连接钢筋在剪力墙中的连接是确保剪力墙整体工作的关键。
合适的连接方式可以提高钢筋的传力效果,同时防止钢筋的滑移和跨越缝隙。
常用的钢筋连接方式包括焊接、搭接和机械连接等。
4. 施工要点4.1 施工前准备在施工剪力墙之前,应对施工现场进行充分的准备工作。
包括施工材料的检查和采购、工具设备的准备、施工人员的组织和培训等。
4.2 钢筋加工和安装钢筋应按照设计要求进行加工和安装。
钢筋的加工应注意尺寸的准确性和牢固性,并进行防锈处理。
钢筋的安装应按照布置图纸的要求进行,注意与其他构造的连接。
4.3 混凝土浇筑剪力墙的混凝土浇筑应遵循相应的施工规范。
应确保混凝土的配合比准确,并采取适当的振捣措施以提高混凝土的密实性和均匀性。
浇筑过程中要注意排除气泡和杂质。
扩展内容:1、本所涉及附件如下:- 图纸附件:含剪力墙钢筋布置图纸、连接细节图等。
- 施工规范附件:包括剪力墙施工的具体要求和操作规范等。
- 实例附件:提供剪力墙钢筋构造的实例及其计算过程。
2、本所涉及的法律名词及注释:- 结构设计规范:指国家针对剪力墙的设计要求所做的规范性文件。
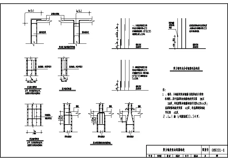
第三章剪力墙钢筋计算在计算剪力墙钢筋时,需要考虑以下几个问题:(图18)1、剪力墙需要计算哪些钢筋剪力墙主要有墙身、墙柱、墙梁、洞口四大部分构成,其中墙身钢筋包括水平筋、垂直筋、拉筋和洞口加强筋;墙柱包括暗柱和端柱两种类型,其钢筋主要有纵筋和箍筋;墙梁包括暗梁和连梁两种类型,其钢筋主要有纵筋和箍筋。
2、计算剪力墙墙身钢筋需要考虑以下几个因素:基础型式、中间层和顶层构造;墙柱、墙梁对墙身钢筋的影响.。
(图18)一、墙身竖向筋计算当筏板基础>2000mm时:基础插筋长度=基础高度/2-保护层+基础弯折a++伸出基础顶面外露长度+与上层钢筋连接(如采用焊接时,搭接长度为0)04G101-3P45墙插筋构造二图20基础插筋(基础主梁中)当基础梁底与基础板底一平时:基础插筋长度=基础高度-保护层+基础底部弯折a+伸出基础顶面外露长度+与上层钢筋连接04G101-3P32墙竖向钢筋插筋构造注:如采用焊接时,搭接长度为0图21当基础梁顶与基础板顶一平时:基础插筋长度=基础高度-保护层+基础底部弯折a+伸出基础顶面外露长度+与上层钢筋连接图22(图19)(图20)(图21)(图22)钢筋部位及其名称计算公式说明附图中间层竖向钢筋长度=层高-露出本层的高度+伸出本层楼面外露长度+与上层钢筋连接04G101-3P48注:如采用焊接时,搭接长度为0图24图25(图24)(图25)钢筋部位及其名称计算公式说明附图顶层竖向钢筋长度=层高-露出本层的高度-板厚+锚固lae(la)04G101-3P48图26(图26)二、墙身水平筋计算钢筋部位及其名称计算公式说明附图内侧钢筋长度=墙长-保护层+15d-保护层+15d 03G101-1P47剪力墙钢筋配置若多于两排,中间排水平筋端部构造同内侧钢筋(03G101-1P47注5)图27外侧钢筋外侧钢筋连续通过,则水平筋伸至墙对边,长度=墙长-2*保护层03G101-1P47根数基础层:在基础部位布置间距小于等于500且不小于两04G101-3P32、45道水平分布筋与拉筋楼层:(层高-水平分布筋间距)/间距+103G101-1P47(图27)三、墙身拉筋计算钢筋部位及其名称计算公式说明附图拉筋长度=墙厚-2*保护层+max(75+,*2+2d04G101-3P48图28根数=(墙面积-门洞总面积-暗柱所占面积-暗梁面积-连梁所占面积)/(横向间距*纵向间距)当剪力墙竖向钢筋为多排布置时,拉筋的个数与剪力墙竖向钢筋的排数无关。
图29图30(图28)(图29)(图30)剪力墙墙柱包括约束边缘暗柱YAZ、约束边缘端柱YDZ、约束边缘翼墙柱YYZ、约束边缘转角柱YJZ、构造边缘暗柱GAZ、构造边缘端柱GDZ、构造边缘翼墙柱GYZ、构造边缘转角柱GJZ(GB50010-2002P195、196、03G101-1P18、49、50)、非边缘暗柱AZ和扶壁柱FBZ共十类,在计算钢筋工程量时,只需要考虑为端柱和暗柱即可。
1、纵筋计算(03G101-1P12、18、49、50)由于剪力墙可视为由剪力墙柱、剪力墙身和剪力墙梁三类构件构成,因此暗柱纵向钢筋构造同墙身竖向筋。
(03G101-1P48)。
钢筋部位及其名称计算公式说明附图暗柱钢筋基础插筋长度同剪力墙身04G101-3P32、45中间层钢筋如图03G101-1P49、50图31顶层构造:同剪力墙竖向钢筋顶层构造03G101-1P48图26所有暗柱纵向钢筋搭接范围内的箍筋间距要求同(03G101-1P40)注的第2条,即:当柱纵筋采用搭接连接时,应在柱纵筋搭接长度范围内均按≤5d(d为搭接钢筋较小直径)及≤100的间距加密箍筋。
03G101-1P40图13(图31)通常情况下端柱、小墙肢(截面高度不大于截面厚度3倍的矩形截面独立墙肢)的竖向钢筋与箍筋构造与框架柱相同,其中抗震竖向钢筋构造详见03G101-1P36至P38页,箍筋构造详见P40;非抗震竖向箍筋构造详见03G101-1P42至P44页,箍筋构造详见P45页。
(03G101-1P48)六、剪力墙端为暗柱钢筋计算钢筋部位及其名称计算公式说明附图墙端为暗柱水平筋L形:外侧钢筋长度=墙长-保护层;内侧钢筋长度=墙长-保护层+15*d*2。
当外侧钢筋有连续通过节点和搭接通过两种节点构造要求,水平筋通常布置在暗柱纵筋的外侧图32T形:伸至墙对边-保护层+15*d图33一字形:长度=墙长-保护层*2+15*d*2图34斜交:外侧:墙净长+锚固Lae(La)内侧:钢筋连续通过连续通过图35水平筋根数:基础层:在基础部位布置间距小于等于500且不小于两道水平分布筋与拉筋楼层:(层高-水平分布筋间距)/间距+104G101-3P32、45竖向筋根数计算根数=墙身净长-1个竖向间距(或2*50)/竖向筋间距+1(图32)(图33)(图34)(图35)七、剪力墙端为端柱钢筋计算钢筋部位及其名称计算公式说明附图水平筋长度外侧钢筋连续通过,伸至墙对边,长度=墙长-保护层内侧钢筋锚入端柱内,长度=墙净长+锚固锚固取值:当柱宽-保护层≥Lae时,锚固=Lae;当柱宽-保护层<Lae时,锚固=柱宽-保护层+15*d。
图36竖向筋根数根数=墙身净长-1个竖向间距(或2*50)/竖向筋间距+1(图36)八、剪力墙开洞钢筋计算钢筋部位及其名称计算公式说明附图水平筋长度长度=水平筋伸到洞口边-保护层+15d03G101-1P16水平筋根数水平筋距离洞口边50mm或二分之一个间距竖向筋长度长度=水平筋伸到洞口边-保护层+15d竖向筋根数竖向筋距离洞口边50mm或二分之一个间距拉筋根数(墙面积-门洞总面积-暗柱所占面积-暗梁面积-连梁所占面积)/(横向间距*纵向间距)洞口加强构造当矩形洞宽和洞高均不大于800mm时,洞口补强纵筋构造(图111);当设计注写补强纵筋时,按注写值补强;当设计未注写时,按每边配置两根直径不小于12mm且不小于同向被切割纵向钢筋总面积的50%补强,补强钢筋种类与被切割钢筋相同。
03G101-1P16、17、53注:括号内标注用于非抗震图37-42当矩形洞宽和洞高均大于800mm时,洞口补强纵筋构造圆形洞口直径不大于300mm时,补强纵筋构造圆形洞口直径大于300mm时,补强纵筋构造注:剪力墙开洞除了洞口加强纵筋构造外,还有连梁斜向交叉暗撑构造和连梁斜向交叉钢筋构造两种情况,连梁斜向交叉暗撑的及斜向交叉构造钢筋的纵筋锚固长度为:La E或La,斜向交叉暗撑的箍筋加密要求适用于抗震设计(03G101-1P52)。
(图37)(图38)(图39)(图40)(图41)(图42)九、连梁钢筋计算剪力墙墙梁分为:连梁、暗梁和边框梁。
钢筋部位及其名称计算公式说明附图中间层连梁钢筋纵向钢筋长度=洞口宽度+2*max{锚固,600}03G101-1P16、51锚固取值:当柱宽(或墙宽)-保护层≥Lae时,锚固=Lae;当柱宽(或墙宽)-保护层<Lae时,锚固=柱宽-保护层+15*d;注:当连梁端部支座为小墙肢时,连梁纵向钢筋图43图44图45锚固与框架梁纵筋锚固相同。
箍筋根数=(洞口宽度-100)/间距+1箍筋根数=(洞口宽度-100)/间距+1+(左锚顶层连梁钢筋固-100)/150+1+(右锚固-100)/间距+1双洞口连梁钢筋图45(图43)(图44)(图45)(图46)十、暗梁钢筋计算钢筋部位及其名称计算公式说明附图暗梁钢筋计算当暗梁与端柱相连接时:纵筋长度=暗梁净长(从柱边开始算)+左锚固+右锚固锚固取值:当柱宽(或墙宽)-保护层≥Lae时,锚固=Lae;当柱宽(或墙宽)-保护层<Lae时,锚固=柱宽-保护层+15*d;图47当暗梁与暗柱相连接时:纵筋长度=暗梁净长(从柱边开始算)+2*Lae(或La)箍筋根数=暗梁净长/箍筋间距+1(图47)钢筋部位及其名称计算公式说明附图墙梁侧面纵筋和拉筋当设计未注写时,侧面构造纵筋同剪力墙水平分布筋;03G101-1P51当连梁截面高度>700时,侧面纵向构造钢筋直径应≥10mm,间距应≤200;当跨高比≤时,侧面构造纵筋的面积配筋率应≥%。
图46拉筋直径:当梁宽≤ 350时为6mm,梁宽>350时为8mm,拉筋间距为两倍箍筋间距,竖向沿侧面水平筋隔一拉一;钢筋部位及其名称计算公式说明附图墙梁对墙身钢筋的影响竖向筋长度:剪力墙的竖向钢筋连续穿越边框梁和暗梁,因此暗梁和连梁不影响剪力墙的竖向钢筋计算。
水平筋根数:剪力墙水平钢筋连续穿过暗梁和连梁拉筋根数=(墙面积-门洞总面积-暗柱所占面积-暗梁面积-连梁所占面积)/(横向间距*纵向间距)拉筋构造见03G101-1P35十一、剪力墙变截面钢筋计算钢筋部位及其名称计算公式说明附图竖向筋计算墙身变截面下层竖向钢筋长度:层高-下层钢筋露出长度-板厚+锚固Lae(La)竖向钢筋构造如图03G101-1P48图48墙身变截面插筋长度:+本层露出长度+与上层钢筋进行搭接(如采用焊接时,搭接长度为0)竖向筋根数:墙身净长-1个竖向间距(或2*50)/竖向布置间距+1(图48)。