给排水练习题及答案
- 格式:doc
- 大小:5.44 KB
- 文档页数:3
公用设备工程师之基础知识(给排水)通关练习题库附答案详解单选题(共14题)1. 设平面π的方程为3x-4y-5z-2=0,以下选项中错误的是:A.平面π过点(-1,0,-1)B.C.平面π在Z轴的截距是-2/5D.平面π与平面-2x-y-2z+2=0垂直【答案】 D2. 若在区间(a,b)内,f'(x)=g'(x),则下列等式中错误的是:A.f(x)=cg(x)B.f(x)=g(x)+cC.D.df(x)=dg(x)【答案】 A3. 若P(A) >0,F(B) >0,P(A B)=P(A),则下列各式不成立的是:A.P(B A)=P(B)B.C.P(AB)=P(A)P(B)D.A,B互斥【答案】 D4. 设平面π的方程为3x-4y-5z-2=0,以下选项中错误的是:A.平面π过点(-1,0,-1)B.C.平面π在Z轴的截距是-2/5D.平面π与平面-2x-y-2z+2=0垂直【答案】 D5. 设A,B是n阶矩阵,且B≠0,满足AB=0,则以下选项中错误的是:A.r(A)+r(B)≤nB.A =0 或B =0C.0≤rD.0≤r(A)【答案】 D6. 若在区间(a,b)内,f'(x)=g'(x),则下列等式中错误的是:A.f(x)=cg(x)B.f(x)=g(x)+cC.D.df(x)=dg(x)【答案】 A7. 对某一流段,设其上、下游两断面1-1、2-2的断面面积分别为A1、A2,断面流速分别为v1、v2,两断面上任一点相对于选定基准面的高程分别为Z1、Z2,相应断面同一选定点的压强分别为P1、P2,两断面处的流体密度分别为ρ1、ρ2,流体为不可压缩流体,两断面间的水头损失为下列方程表述一定错误的是:A.连续性方程:v1A1= v2A2B.连续性方程:ρ1v1A1= ρ2v2A2C.【答案】 C8. 设A是m阶矩阵,B是n阶矩阵,A.- A BB.A BC.(-1)m+n A BD.(-1)mn A B【答案】 D9. 设A是m阶矩阵,B是n阶矩阵,A.- A BB.A BC.(-1)m+n A BD.(-1)mn A B【答案】 D10. 设A,B是n阶矩阵,且B≠0,满足AB=0,则以下选项中错误的是:A.r(A)+r(B)≤nB.A =0 或B =0C.0≤rD.0≤r(A)【答案】 D11. 对某一流段,设其上、下游两断面1-1、2-2的断面面积分别为A1、A2,断面流速分别为v1、v2,两断面上任一点相对于选定基准面的高程分别为Z1、Z2,相应断面同一选定点的压强分别为P1、P2,两断面处的流体密度分别为ρ1、ρ2,流体为不可压缩流体,两断面间的水头损失为下列方程表述一定错误的是:A.连续性方程:v1A1= v2A2B.连续性方程:ρ1v1A1= ρ2v2A2C.【答案】 C12. 25℃时,在[Cu(NH3)4]SO4水溶液中,滴加BaCl2溶液时有白色沉淀产生,滴加NaOH时,而滴加Na2S时则有黑色沉淀,以上现象说明该溶液中:A.已无SO42-B.已无游离NH3C.已无D.u2+【答案】 D13. 25℃时,在[Cu(NH3)4]SO4水溶液中,滴加BaCl2溶液时有白色沉淀产生,滴加NaOH时,而滴加Na2S时则有黑色沉淀,以上现象说明该溶液中:A.已无SO42-B.已无游离NH3C.已无D.u2+【答案】 D14. 若P(A) >0,F(B) >0,P(A B)=P(A),则下列各式不成立的是:A.P(B A)=P(B)B.C.P(AB)=P(A)P(B)D.A,B互斥【答案】 D。
1、图为某幢单元住宅楼的某户厨房与卫生间的给排水设计图。
给水用镀锌焊
接钢管(丝接),排水用铸铁承插排水管(水泥接口)
2、如图,该工程⑦~⑨轴线之间为楼梯、厕所,C、D轴线间底层和二层的
厕所内,设计说明:
3、该工程为某单位职工宿舍楼。
建筑面积为2400平方米,共四层,层高.3.3
米。
每层设男厕所、女厕所、盥洗室各一个。
盥洗室内沿两侧墙设盥洗槽,每个盥洗槽设水嘴5个;男女厕所各装高蹲式大便器3个,各砌污水池一个,污水池各装水嘴1个,男厕所设小便槽1个,设冲洗管(管长2m),上水立管均在1楼设置控制阀门,每层从上水立管引出的支干管均设控制阀门。
给水管道全部采用镀锌钢管,螺纹连接;排水管道采用排水铸铁管,石棉水泥接口。
洗涤污水和粪便污水分别由甲乙两个出水口排出室外。
第一个检查井距建筑物外墙面3.5米。
埋地铸铁管刷两道沥青漆防腐,地面以上铸铁管刷一道防锈漆,刷两道银粉漆。
4、请根据给定的给排水施工图,计算工程量并编制分部分项工程量清单。
有关施工说明:
给水:管道采用镀锌钢管,丝接;
所有阀门均为截止阀;
洗手盆为瓷洗手盆;
大便器为蹲便器。
排水:管道采用承插式铸铁管,水泥接口;
地上管道部分刷防锈漆一遍,沥青漆一遍;
地下管道部分刷沥青漆两遍;
检查口,地漏均为铸铁件。
给排水平面图
给水管道系统图
排水管道系统图。
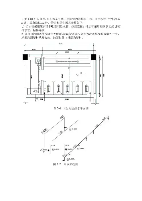
1.如下图3-1、3-2、3-3为某公共卫生间室内给排水工程,图中标注尺寸标高以m计,其余均以mm计。
管道和卫生器具参数如下:
1)给水管采用聚丙烯PPR塑料给水管,热熔连接;排水管采用硬聚氯乙烯UPVC 排水管,粘接连接。
2)采用自闭阀式冲洗蹲式大便器,洗涤盆水龙头分别为冷水单嘴和双嘴各一个,地漏选用塑料地漏安装,地面扫除口材质为塑料。
图3-1 卫生间给排水平面图
图3-2 给水系统图
图3-3 排水系统图
根据上面的图3-1、图3-2、图3-3,回答下列问题:
(1)水平管计算:根据平面图上标注的尺寸计算,如上图3-1某卫生间的平面图中排水系统,计算水平管道的长度时,参考图3-1-图3-3中标注的管径,在平面图中读取尺寸。
排水水平管道
De110:
De75:
De50:
(2)垂直管计算:根据系统图标注的标高进行计算,如图3-2某卫生间的平面图中的给水系统,计算垂直管道的长度时,依据系统图中管标注的管径和标高进行计算。
(4分)
JL-1中:De25
JL-2中:De25
(3)查询定额和清单,完成下面的表格。
2021年给排水专业知识练习题和答案(Part7)共2种题型,共85题一、单选题(共50题)1.以下有关确定通气管管径的叙述中,哪项正确?()A:排水管管径为DN100,其专用通气立管的最小管径为DN75B:9根DN100通气立管的汇合通气总管管径为DN200C:与排水立管管径为DN100连接的自循环通气立管的最小管径为DN75D:通气立管管径为DN75,其与排水立管相连的结合通气管管径为DN50【答案】:B2.以下关于用水点的服务水头的描述,哪项正确?()A:从供水区域内统一的基准水平面算起,量测该用水点的测压管水柱所达到的高度B:从该用水点接管处的管中心算起,量测该用水点的测压管水柱所达到的高度C:从该用水点接管处的地面上算起,量测该用水点的测压管水柱所达到的高度D:从该用水点接管处的管内顶算起,量测该用水点的测压管水柱所达到的高度【答案】:C3.某洗衣房,最高日热水用水定额为15L/kg干衣,热水使用时间为8h,则该洗衣房最高日用水定额不应小于下列哪项?()A:15L/kg干衣B:25L/kg干衣C:40L/kg干衣D:80L/kg干衣【答案】:C【解析】:参见《建筑给水排水设计规范》5.1.1条,15L/kg是最高日用水定额中的最小值,参见《建筑给水排水设计规范》3.1.10条,对应最小值为40L/kg,故选C4.住宅集中生活热水供应系统配水点最低水温(℃)不应低于下列哪项?()A:40B:45C:50D:55【答案】:B【解析】:依据《建筑给水排水设计规范》5.1.5A条,设置集中热水供应系统的住宅,配水点的水温不应低于45℃。
5.关于热媒耗量,下列哪项是正确的?()A:热媒耗量是确定热水配水管网管径的依据B:热媒耗量与设计小时耗热量数值大小无关C:热媒管道热损失附加系数与系统耗热量有关D:燃油机组热媒耗量与加热设备效率有关【答案】:D【解析】:热煤耗量是第一循环管网水力计算的依据(配水管网是热水设计流量),故A项错误;热媒耗量和设计小时供热量有关,而设计小时供热量和设计小时耗热量有关(参P244),故B错误;K由管线长度取值,故C项错误。
建筑给排水工程练习题四1:[论述题]1、建筑内部的排水系统管道坡度有哪几种?分别有什么规定?2、报警阀作用是什么?有那些类型?参考答案:1、答:建筑内排水管道坡度有通用坡度和最小坡度两种。
通用(标准)坡度:指正常条件下应予以保证的坡度,一般情况下应采用通用坡度。
最小坡度:必须保证的坡度,以保证管内的水流速度。
2、答:作用:开启和关闭水流;传递控制信号至控制系统并启动水力警铃直接报警。
类型:湿式、干式、干湿式、雨淋式。
2:[填空题]1、给水管道的布置和敷设的基本要求是、、、。
2、用于饮用水的膜分离法处理工艺分为、、、四类。
参考答案:1、确保供水安全和良好的水力条件,力求经济合理,保护管道不受损坏、不影响生产安全和建筑物的使用,便于维修安装2、微滤、超滤、钠滤、反渗透3:[判断题]国内外一般将水封高度定为50~100mm。
参考答案:正确4:[单选题]在管网中充水,适用于环境温度为4-700C之间的建筑物的灭火系统是()A:干式自动喷水灭火系统B:水幕系统C:湿式自动喷水灭火系统D:预作用喷水灭火系统参考答案:C5:[单选题]生活管道设计秒流量公式qg =0.2•U•Ng适用的建筑有( )A:医院B:办公楼C:职工食堂D:住宅参考答案:D6:[多选题]1、高位冲洗水箱多用于A:蹲式大便器B:大便槽C:小便槽D:坐式大便器参考答案:ABC7:[单选题]塑料排水立管应每()层设置一个检查口A:4B:5C:6D:7参考答案:C8:[判断题]重力半有压流系统状态下雨水排水立管进行水力计算时按水满流计算。
参考答案:错误9:[单选题]天沟外排水中天沟坡度一般在()之间A:0.01~0.03B:0.003~0.006C:0.005~0.01D:0.001~0.003参考答案:B10:[多选题]给水管网的水力计算目的在于()A:确定各管段管径B:确定管网水头损失和给水系统所需压力C:选择给水设备D:确定管材参考答案:AB11:[单选题]活性炭过滤一般置于中水处理流程的()A:前部B:中间C:前部和后部D:后部参考答案:D12:[判断题]给水管道上行下给式布置形式适用于所有民用建筑。
给排水练习题在给排水系统设计和施工中,排水练习题是一种常见的方法,用于考察和巩固对相关知识的理解和应用。
本文将通过一系列排水练习题来测试读者对给排水系统设计的熟悉程度,以帮助读者巩固所学的知识,并提供正确的解答和详细的解析。
题目一:某建筑物的排水系统需要设计一个洗手盆的下水管道。
该洗手盆为单盆单出水,出水管道连接到主排水管。
根据以下信息,计算出该下水管道的合适直径和坡度:- 洗手盆水流量为1.5L/s;- 允许的最大管道坡度为0.01;- 主排水管的直径为200mm。
解答及解析:根据给定的水流量和管道坡度要求,我们可以使用洗手盆的流量和最大坡度来计算下水管道的最小直径。
具体计算步骤如下:首先,根据洗手盆的水流量和管道坡度要求,计算出洗手盆的最小下水管道直径。
根据经验公式可得:最小下水管道直径 = 1.25 * (流量 / 坡度)^0.54= 1.25 * (1.5 / 0.01)^0.54然后,根据主排水管的直径和洗手盆下水管道的最小直径,选择合适的下水管道直径。
一般来说,选择比最小直径稍大一些的下水管道直径为佳。
在本题中,主排水管的直径为200mm,可以选择下水管道直径为75mm。
最后,根据所选下水管道的直径和坡度要求,设计并安装下水管道。
题目二:某住宅小区的给排水系统需要设计一个雨水管道。
该雨水管道连接到附近的排水沟,用于排水小区内的雨水。
根据以下信息,计算出该雨水管道的合适直径和坡度:- 小区的屋顶面积为500平米;- 平均降雨量为50mm/h;- 允许的最大管道坡度为0.02;- 排水沟的直径为600mm。
解答及解析:根据给定的屋顶面积和降雨量,我们可以计算出小区内雨水的总流量。
具体计算步骤如下:首先,计算出雨水流量。
根据经验公式可得:雨水流量 = 屋顶面积 * 降雨强度= 25m³/h然后,根据雨水流量和管道坡度要求,计算出雨水管道的最小直径。
根据经验公式可得:最小雨水管道直径 = 1.25 * (流量 / 坡度)^0.54= 1.25 * (25 / 0.02)^0.54≈ 150mm最后,根据排水沟的直径和雨水管道的最小直径,选择合适的雨水管道直径。
建筑给排水试题一、自测练习1、给水系统的类型包括()A 生活给水系统B 消防给水系统C 生产给水系统D 组合给水系统答案:ABCD2、升压和贮水设备包括()A 贮水箱B 水泵装置C 气压给水装置D 水箱答案:ABCD3、给水方式的基本形式有()A 依靠外网压力的给水方式B 设水箱供水方式C 依靠水泵升压给水方式D 分质给水方式答案:AC4、给水管道布置形式有()A 下行上给式B 上行下给式C 中分式D 下行下给式答案:ABC5、管道防护包括()A 防腐B 防漏C 防振D 防冻、防结露答案:ABCD6、管道敷设,根据建筑对卫生、美观方面的要求不同,可分为()两种基本形式A 直埋B 明装C 暗装D 架空答案:BC问答题1、什么叫给水设计秒流量?归纳起来设计秒流量有那几种计算方法:建筑内的生活用水在一昼夜、1h内都是不均匀的,为保证用水,生活给水管道的设计流量应为建筑内卫生器具按最不利情况组合出流时的最大瞬时流量,既设计秒流量。
设计秒流量,归纳起来有经验法,平方根法和概率法三种计算方法。
2、给水管网水头损失的计算包括哪几部分?分别怎么计算?给水管网水头损失的计算包括沿程损失和局部损失两部分。
1)给水管道沿程水头损失hi= i . L这里:hi:沿程水头损失dj: 管道计算长度i : 管道单位长度水头损失2)生活给水管道局部水头损失:这里:h j;:管段局部水头损失之和ξ:管段局部阻力系数v:沿水流方向局部管件下游的流速g:重力加速度3、什么叫管(配)件的当量长度?将、管(配)件产生的局部水头损失大小与同管径某长度管道产生的沿程水头损失相等,则该长度为该管(配)件当量长度。
4、什么是气压给水设备?工作原理是什么?有那些种类?气压给水设备是利用密闭贮罐内压缩空气的压力变化,调节和压送水量,起到增压和水量调节的作用。
原理:根据波义耳-马略特定律,即在定温条件下,一定质量的气体的绝对压力和它所占的体积成反比的原理制造的。
2021年给排水专业知识练习题和答案(Part5)共2种题型,共85题一、单选题(共50题)1.排水管道接口一般有柔性、刚性和半柔性半刚性三种形式,污水和污水合流管道应采用下列哪项接口形式?()A:柔性接口B:刚性接口C:半柔性半刚性接口D:以上三种形式均可,依据地质条件确定【答案】:A【解析】:根据《室外排水设计规范》4.3.4条,管道接口应根据管道材质和地质条件确定,污水和合流污水管道应采用柔性接口。
故选A2.下述活性污泥法工艺均具有脱氧除磷能力,哪项反应器设计不宜采用最高日最高时流量?()A:AAO法反应器B:Orbal氧化沟C:多点进水多级AO反应器D:CAST反应器【答案】:D【解析】:依据《室外排水设计规范》6.6.34条,SBR反应池宜按平均日污水量设计,而CAST反应器属于SBR反应池的一种,故选择D 3.下列关于高层建筑生活热水供应系统减压阀设置的图示中,哪个是错误的?()A:B:C:D:【答案】:A【解析】:依据《建筑给水排水设计规范》5.2.13条的条文说明:“为高低两区共用一加热供热系统,分区减压阀设在低区的热水供水立管上,这样高低区热水回水汇合至图中A点时,由于低区系统经过了减压,其压力将低于高区,即低区管网中的热水就循环不了”。
4.某小区的车行道、绿地下均敷设给水管道.地坪标高均按-3.0m计,土壤冰冻深度为0.5m。
则下列哪项错误?()A:车行道下给水管的管顶标高不得高于-3.65mB:车行道下给水管的管顶覆土厚度不得小于0.70mC:绿地下给水管的管顶标高不得高于-3.65mD:绿地下给水管的管顶覆土厚度不得小于0.65m【答案】:B【解析】:参见《建筑给水排水设计规范》3.5.3条,室外给水管道的覆土深度,应根据土壤冰冻深度、车辆荷载、管道材质及管道交叉等因素确定;管顶最小覆土深度不得小于土壤冰冻线以下0.15m,行车道下的管线覆土深度不宜小于0.70m。
5.下列关于排水泵站设计的说法中,哪项不合理?()A:某雨水泵站水泵叶轮轴心设计标高与集水井最高水位持平B:某地雨水泵站入口处设计地面标高仅高于设计洪水位0.80mC:某地商业街的排水泵站供电按二级负荷设计D:某位于居民区的污水泵站采用生物除臭装置【答案】:A【解析】:参见《室外排水设计规范》5.1.6条,可知A项正确。
计算题:1.某住宅内共有住户20户,每户以4人计,生活用水定额为250l/人·d,时变化系数为2.0,请计算该建筑的日用水量,平均小时流量和最大小时流量。
2.某住宅内共有住户20户,每户以4人计,生活用水定额为250l/人·d,时变化系数为2.0,请计算该建筑的日用水量,平均小时流量和最大小时流量。
如该住宅的给水方式为市政管网直接供水,则引入管的管径应由什么流量确定?3. 某建筑拟选用隔膜式气压给水设备供水方式,已知水泵出水量为3.5L/S,设计最小工作压力为250KP(表压),最大工作压力为400KP(表压)。
试求气压罐总容积。
(隔膜式气压罐的容积附加系数为1.05)1.某办公楼建筑给水系统,水泵从贮水池抽水,其水泵的吸水管和压水管全长40m,自贮水池最低水位±0.00至水箱最高水位32.00m,已知该管O。
试求路沿程水头损失为4.16mH2a.水泵所应需总扬程?O,此时该b. 该泵若从市政管网直接抽水,该管网连接处水压为20 mH2水泵所需扬程又为多少?5.某建筑拟选用隔膜式气压给水设备供水方式,已知该建筑的最高日最大工作压力为400kpa(表压)。
试求气压水罐总容积?6.某旅馆建筑给排水系统选用的给水方式为自动启动水泵供水到管网和水箱,此种工况水泵出水量qb=15m3/h,试求水箱净容积?2.7. 已知雨水设计流量以5min暴雨强度q5(L/sh)与汇水面积F(m2)之积和以小时降雨厚度h5(mm/h)与汇水面积F(m2)之积。
试推导当q5以l/s。
min2为单位时h5=36q58.某科研楼H<24m,V<1000m3,需设置室内消火栓灭火时需2支水枪,每支流量<5l/s,若设消防水箱置于屋顶,试计算其消防容积(最小)?9. 某塔式高层住宅楼平面面积为24*24m,高度〈50m,试确定其消火栓给水系统最不利消火栓处压力,并自选水枪、水带管径、长度?据高层建筑消火栓给水系统的要求,其消防用水量不小于10l/s,需2股射流,每股射流量qxh不小于5l/s,水枪射出的充实水柱Hm不小于10m。
第二章管道材料、器材及卫生器具学习指导/要求1、了解钢管、铸铁管、塑料管的分类、应用和特点,掌握钢管、铸铁管、塑料管的连接方式及管径表示方法2、了解给水控制附件(截止阀、闸阀、蝶阀、止回阀、浮球阀)的结构特点,掌握给水控制附件的应用场合3、了解水表的分类及其各自结构特点,掌握各自的适用场合4、了解卫生器具的分类,掌握坐便器的分类及其各自特点和工作原理5、了解冲洗设备的分类练习题一、填空题1、钢管分为无缝钢管和焊接(有缝)钢管,焊接钢管按厚度分为普通钢管和加厚钢管,普通钢管一般用在工作压力的管道上,加厚钢管用在工作压力的管道上。
2、钢管的连接方法有、、和。
3、铸铁管的连接方式主要有和。
4、塑料管的连接方式有、、和。
5、卫生器具分为、、和。
6、存水弯水封的作用是,水封深度一般不小于。
7、为了防止排水系统中的有害气体窜入室内,每一卫生器具下面必须设。
二、单选题1、当需要控制水位时,需在水箱或水池进水管上安装的阀门是()。
A、止回阀B、安全阀C、蝶阀D、浮球阀2、目前最常用的排水塑料管是()A、UPVCB、PEC、PPD、ABS3、为防止管道水倒流,需在管道上安装的阀门是()A、止回阀B、截至阀C、蝶阀D、闸阀4、安装冷、热水龙头时,冷水龙头安装在热水龙头()A、右边B、前边C、左边D、后边5、设高位水箱给水时,为防止水箱的水回流至室外管网,在进入室内的引入管设置()A、止回阀B、截至阀C、蝶阀D、闸阀6、以下管材可以采用热熔连接的是()。
A、复合管B、镀锌钢管C、铸铁管D、塑料管7、消防管道不能采用的管材是()A、无缝钢管B、镀锌钢管C、焊接钢管D、塑料管8、以下哪条是错误的?()A、截止阀安装时无方向性B、止回阀安装时有方向性,不可装反C、闸阀安装时无方向性D、蝶阀可在90°范围内实现全开全闭9、镀锌钢管规格有DN15、DN20等,DN表示()A、内径B、公称直径C、外径D、其他10、无缝钢管管径采用()标注方式。
2021年给排水专业知识练习题和答案(Part6)共2种题型,共85题一、单选题(共50题)1.污泥抽升设备一般有单螺杆泵、隔膜泵、柱塞泵,在工程实际中,脱水机进泥泵一般宜选用哪种形式的泵?()A:隔膜泵B:螺旋泵C:单螺杆泵D:多级柱塞泵【答案】:C【解析】:对具有一定浓度的污泥,采用单螺杆泵(旋转螺栓泵)较为合理。
2.下列关于给水系统各构筑物流量关系叙述中,错误的是哪项?() A:给水系统中所有构筑物以最高日用水量为基础计算B:地表水取水构筑物按最高日平均时流量进行设计C:配水管网内不设调节构筑物时,水厂二级泵站按最高日最高时流量设计D:管网中无论是否设置调节构筑物,配水管网都应按最高日最高时流量设计【答案】:B【解析】:“取用地表水作为给水水源时,取水构筑物、一级泵站及一级泵站到净水厂的输水管及净水厂的设计流量,按最高日平均时流量加水厂自用水量设计计算。
”故答案为B3.住宅集中生活热水供应系统配水点最低水温(℃)不应低于下列哪项?()A:40B:45C:50D:55【答案】:B【解析】:依据《建筑给水排水设计规范》5.1.5A条,设置集中热水供应系统的住宅,配水点的水温不应低于45℃。
4.指出下列四种生物脱氮工艺中,哪种是错误的?()A:三段生物脱氮法B:二段生物脱氮法C:厌氧—厌氧—好氧生物脱氮法D:缺氧—好氧生物脱氮法【答案】:C5.城市自来水厂采用液氯消毒时,最常见的氯投加点为下列哪项?() A:水厂取水口B:絮凝池前C:清水池前D:出厂水的输水泵站吸水井【答案】:C【解析】:清水池前的投加是消毒剂的主要投加点。
6.在进行雨水管渠设计流量计算时,下列关于暴雨强度公式中暴雨特征要素解释与理解的叙述中,哪项不正确?()A:暴雨特征要素包括降雨历时、暴雨强度和重现期B:暴雨强度的设计重现期越大,暴雨出现的频率越小C:设计暴雨强度等于设计降雨历时下对应的平均降雨量D:降雨历时是设计重现期下最大一场雨的全部降雨时间【答案】:D【解析】:降雨历时可以指一场雨全部降雨的时间。
第五章管道和设备工程第一节给排水、采暖、燃气工程综合练习与答案一、单选题1、最高层配水点流出水头较高,可能因漏水、结露损坏吊顶和墙面,要求外网水压稍高一些的水平干管的敷设布置形式为()。
A.下行上给式B.上行下给式C.环状式D.枝状式【参考答案】:B【试题解析】:本题考查的是给水系统。
给水系统按给水管网的敷设方式不同,可以布置成下行上给式、上行下给式和环状供水式三种管网方式。
上行下给式最高层配水点流出水头较高,安装在吊顶内的配水干管可能因漏水、结露损坏吊顶和墙面,要求外网水压稍高一些。
2、排出管与室外排水管连接处的检查井,井中心距建筑物外墙不大于()。
A.2mB.6mC.8mD.10m【参考答案】:D【试题解析】:本题考查的是排水系统。
排出管与室外排水管连接处设置检查井。
一般检查井中心至建筑物外墙的距离不小于3m,不大于10m。
3、生活给水系统在交付使用之前必须进行冲洗和消毒,以下作法正确的是()。
A.试压合格后,利用系统内存水进行冲洗,再进行消毒B.冲洗顺序是先室外、后室内;先地下、后地上C.冲洗前可不拆除节流阀、报警阀、孔板和喷嘴D.消毒用水应在管道中停留12h【参考答案】:B【试题解析】:本题考查的是给水系统。
选项A中生活给水系统管道试压合格后,应将管道系统内存水放空。
选项B冲洗顺序应先室外,后室内;先地下,后地上。
室内部分的冲洗应按配水干管、配水管、配水支管的顺序进行;选项C中节流阀、止回阀阀芯和报警阀等应拆除,已安装的孔板、喷嘴、滤网等装置也应拆下保管好,待冲洗后及时复位;选项D中水在管道中停留24h以上。
4、在室内排水系统中,排出管在隐蔽前必须做()。
A.通球试验B.高压水清洗C.水压试验D.灌水试验【参考答案】:D【试题解析】:本题考查的是排水系统。
排水立管应做通球试验。
排出管在隐蔽前必须做灌水试验。
排水横支管、立管应作灌水试验。
5、建筑给水系统设有水箱时,水泵的扬程设置应()。
A.满足最不利处的配水点或消火栓所需水压B.满足距水泵直线距离最远处配水点或消火栓所需水压C.满足水箱进水所需水压和消火栓所需水压D.满足水箱出水所需水压和消火栓所需水压【参考答案】:C【试题解析】:本题考查的是给水系统。
一、判断题1、建筑物所需水压包括最不利点与引入管中心的几何高差、给水管路总水头损失、最不利点配水设备的最小服务水头。
()2、给水管道布置按干管位置分为上行下给式、下行上给式、中分式和环状式。
()3、固定管道常采用管卡、托架、吊环等。
()4、给水管道埋深应大于2.0米。
()5、旋翼式水表属小阻力、小流量水表。
()6、生活饮用水池(箱)应与其它用水的水池(箱)分开设置。
()7、水泵的性能参数有流量、扬程、功率、转速、效率和吸程。
()8、水泵吸水井容积应大于泵房的水泵5分钟抽水量。
()9、水泵接合器作用是接水枪喷水灭火。
()10、高层建筑(建筑高度不超过100m)消防水箱高度应保证最不利点的消火栓的静水水压≥7m水柱。
()11、发生火灾后,由消防水泵供给的消防用水应首先进入消防水箱。
()12、消防水泵出水管上应设置试验和检查用的压力表和DN65的放水阀门。
()13、自动喷淋灭火系统的喷头均为开式喷头。
()14、清通设备常见的有检查口、清扫口、带清扫口的存水弯和检查井等。
()15、穿越屋面处应设置防火套管。
()16、排水检查井接管一般采用管顶平接,也可采用水面平接。
()17、排水当量为0.2L/S,给水当量为0.33L/S,因为给水压力大。
()18、污水提升多采用潜污泵、液下泵和清水离心泵。
()19、化粪池的作用是处理生活污水的局部处理设备。
()20、屋面排水系统由雨水斗、水落管、排出管、雨水井等组成。
()二、单项选择题:1、一个卫生器具排水当量相当于_。
A、0.1L/SB、0.2L/SC、0.33L/SD、0.4L/S2、消火栓处静水压力超过__时,宜采用分区供水的室内消火栓给水方式。
A.400Kpa B.500Kpa C.800Kpa D.1000Kpa3、同一建筑__消火栓、水枪、水带。
A、应采用同一规格的B、可采用不同规格的4、对平屋顶可上人屋面,伸顶通气管应伸出屋面__。
A 、2.0m B、 1.5m C、 0.6m D、 1 .0m5、室外消火栓距路边不应超过__。
公用设备工程师-专业知识(给水排水)-建筑给水排水工程-强化练习题一[单选题]1.计算居住小区室外给水管道设计流量时,下列哪种因素不必考虑?()A.服务人数B.小区内建筑物高度C.用水定额(江南博哥)D.卫生器具设置标准正确答案:B参考解析:参见《建筑给水排水设计规范》3.1.1条、3.1.2条及3.1.9条可知ACD正确,B错误,设计流量和高度没有关系(水压和高度有关系)。
[单选题]2.下列建筑生活给水系统设计中,哪项措施不具有节水效果?()A.控制配水点处的水压B.设置备用加压供水泵C.贮水池设置溢流信号管D.控制用水点处冷、热水供水压差≤0.02MPa正确答案:B参考解析:备用加压供水泵是为了供水安全,不具备节水功能[单选题]3.下列关于建筑给水管道上止回阀的选择和安装要求中,哪项是不正确的?()A.在引入管设置倒流防止器前的管段上应设置止回阀B.进、出水管合用一条管道的高位水箱,其出水管段上应设置止回阀C.为削弱停泵水锤,在大口径水泵出水管上选用安装阻尼缓闭止回阀D.水流方向自上而下的立管,不应安装止回阀正确答案:A参考解析:装设倒流防止器后不需再装止回阀。
[单选题]4.某10层住宅(层高2.8m)的供水系统如图所示,低层利用市政管网直接供水,可利用的水压为0.22mpa,初步确定其中正确合理的给水系统是哪一项?()A.B.C.D.正确答案:A参考解析:条件为0.22MPa,即可直供到四层。
而D项中不应采用变频泵。
[单选题]5.下列关于高层建筑给水系统竖向分区的叙述中,哪项正确?()A.由于并联供水方式投资大,不宜用于超高层建筑中B.由于减压供水方式能耗大,不应用于生活给水系统中C.由于并联供水方式管道承压大,不宜用于超高层建筑中D.由于串联供水方式的安全可靠性差,不宜用于超高层建筑中正确答案:C参考解析:A错误,不宜用于超高层建筑中的理由是管道承压大,参见《建筑给水排水设计规范》第3.3.6条以及条文解释。
物业给排水试题及答案# 物业给排水试题及答案一、选择题1. 给水系统的主要功能是什么?A. 供应生活用水B. 供应消防用水C. 供应工业用水D. 供应绿化用水答案:A2. 排水系统的主要作用是?A. 收集雨水B. 排除生活污水C. 防止水害D. 调节地下水位答案:B3. 以下哪个不是给排水管道的常见材料?A. 铸铁管B. 塑料管C. 铜管D. 钢筋混凝土管答案:C4. 给水管道的敷设方式通常有哪些?A. 直埋B. 架空C. 隧道D. 所有选项都是答案:D5. 排水管道的坡度设计主要考虑什么因素?A. 管道材质B. 管道直径C. 流体的流速D. 流体的粘度答案:C二、判断题1. 给水系统和排水系统是完全独立的两个系统。
(错误)2. 给水管道的直径越大,其流速越快。
(错误)3. 排水管道的坡度越大,其排水效果越好。
(正确)4. 给排水管道的维护不需要定期进行。
(错误)5. 给排水管道的敷设需要考虑地形和地质条件。
(正确)三、简答题1. 简述给水系统和排水系统的区别。
答案:给水系统主要负责将水从水源输送到用户,包括生活用水、工业用水等。
它需要保证水质、水压和水量的稳定性。
排水系统则负责收集和输送用户排放的污水,包括生活污水、工业废水等,其目的是将污水安全有效地排出,防止环境污染。
2. 为什么需要对给排水管道进行定期维护?答案:给排水管道的定期维护可以预防管道堵塞、破裂等问题,确保管道的正常运行和使用寿命。
此外,定期维护还可以及时发现和处理潜在的安全隐患,保障供水和排水的安全性。
3. 描述给排水管道敷设时需要考虑的因素。
答案:给排水管道敷设时需要考虑的因素包括:地形和地质条件、管道的材质和直径、管道的坡度和弯头设计、管道的埋深和保护措施、以及周围环境的影响等。
四、计算题1. 已知某住宅小区的给水管道直径为200mm,设计流速为1.5m/s,计算该管道的流量。
答案:流量 Q = 管道截面积A × 流速 v首先计算管道截面积A = π/4 × (直径/2)^2 = π/4 ×(0.2/2)^2 = 0.0314 m²然后计算流量Q = 0.0314 × 1.5 = 0.0471 m³/s2. 假设某排水管道的坡度为0.005,管道长度为100m,计算管道的总落差。
1、如果将500立方米亚砂土运走,实际运走的土是多少?如果需要回填500立方米亚砂土,问需要挖方体积是多少?(ks=1.10,ks2=1.02) P34解:ks=v2/v1 v2=ks*v1=1.10*500=550Ks`=v3/v1 v1=v3/ks=500/1.02=490.19612、试计算下图土方量。
其为正方形边长为20m。
P34解:1:1.00 2:0.6 4:-0.4 3:0.35.71 3-4边上o点的位置距离4点的距离20—8.57= 11.43V填=5.71*11.43*0.4/6=4.35V挖=(20*20-5.71*11.43/2)*(1.00+0.6+0.3)/5=139.63、某处开挖一段污水管道沟槽。
长度60m,土质为三类土,管材为混凝土管,D=500mm。
沟槽始端为3.5m,末端为4m,试计算其土方量。
P34解:W=B+2b=1.1 S1=W+2nH=1.1+2*0.5*3.5=4.6S2=W+2nH=1.1+2*0.5*4=5.1F1=(S1+W)*H1/2=(4.6+1.1)*3.5/2=9.975 F2=(S2+W)*H2/2=(5.1+1.1)*4/2=12.4V=(F1+F2)*L/2=(9.975+12.4)*60/2=671.254、土方调配的意义和基本原则是什么?P9答:意义是使土方运输量或费用达到最小,而且又能方便施工。
原则(1)力求使挖方与填土方基本平衡和就近调配使挖方与运距的乘积之和尽可能为最小亦即使土方运输和费用最小。
(2)考虑近期施工与后期利用相结合的原则;考虑分区与全家相结合的原则;还应尽可能与大型地下建筑物的施工相结合;使土方运输无对流和乱流的现象。
(3)合理选择恰当的调配方式向、运输路线,使土方机械和运输车辆的功效能得到充分发挥。
(4)土质好的土使用在回填质量要求高的地区。
5、某地建造一地下式给水泵站,其平面尺寸为10m,宽为8m。
基础地面高程15m,天然地面高程为18.5m。
练习题(六)一、单项选择题1.某城镇给水系统有三座水厂,水源管网边有一条河流和一个水库,三座水厂以不同的压力将出水接入同一个管网,该城镇给水系统属于()系统。
A.多水源分质给水系统B.多水源分压给水系统C.多水源统一给水系统D.多水源混合给水系统答案:C2.某工厂将设备冷却排水不经处理直接用作工艺用水。
该系统为()A.直流给水系统B.复用给水系统C.分质给水系统D.循环给水系统答案:B3.在给水系统中,下列哪项不属于调节构筑物?A.清水池B.二级泵站吸水井C.网前水塔D与管网连接的高位水池答案:B4.下列有关配水管网的描述中,哪项正确?A.包括输水管以及供水区域内各用户的管道B.除管道以外,还包括增压泵站和调节设施C.是指将清水配送至供水区域内各用户的管道系统D.由向供水区域内各用户供水的支管构成答案:C5.下列哪项不属于给水系统或给水系统的组成部分?A.泉水B.泉水泵房C.泉室D.南水北调工程答案:A6.下列关于给水系统组成的提法中,何项是不正确的?A.当地下水的原水浊度满足要求时,都可省去消毒外的水处理设施B.当管网中设有水量调节构筑物时,水厂清水池调节容量可以减少C.当配水管网采用重力配水时,水厂不必设置二级泵房D.任何给水系统都必须设置取水构筑物答案:A7.在一定条件下组成城镇生活用水给水系统时,下列何项工程设施可不设置?A.管网B.泵站C.取水构筑物D.水处理设施答案:A8.在配水管网中设置水量调节构筑物可达到以下哪项目的?A.减小管网最小服务水头B.降低用水的时变化系数C.减小净水构筑物设计流量D.减小二级泵房设计流量答案:C9.下列关于各类给水系统组成的叙述何项是正确的?A.地下水给水系统都不必设水处理构筑物B.地表水给水系统都必须设水处理构筑物C.任何一个城市给水系统都必须有管网和水塔D.任何一个给水系统都必须有取水构筑物和管网答案:D10、下列因素中不影响城市给水系统选择的是何项?A.用户对水质的要求B.城市地形起伏C.居住建筑密度D.供水水源条件答案:C11.下述一般情况下,地下水与地表水相比所具有特点中,哪一项是错误的?A.矿化度比地表水高B.水温比地表水低C.水量季节性变化比地表水小D.净水工艺较地表水简单答案:B12、当河流冰凌情况不严重而含砂量较高时,斗槽式取水构筑物形式宜采用下列哪一种?A.侧坝进水逆流式B.逆流式C.双向进水式D.顺流式答案:D13、某临时取水工程拟采用移动式取水构筑物,下面何项因素是进一步确定选用浮船式还是选用缆车式取水的主要依据?A.河岸坡度B.漂浮物C.冰凌D.水位涨落速度答案:A14、以下关于地表水取水构筑物类型的叙述中,错误的是哪一项?A.河岸较陡,水流深槽近岸,宜建岸边式取水构筑物B.河流冰凌较多时,可建斗槽式取水构筑物C.推移质较多的山区浅水河流,可建低坝取水构筑物D.水位变幅较大,要求施工周期短,可建移动式取水构筑物答案:C15.下列哪项不能被认为是混凝作用机理?A.电解加水解B.电性中和C.吸附架桥D.网捕答案:A16.某理想沉淀池的截留沉速U0=4.0cm/min,有一混合均匀的水流含有沉速分别为U1=2.0cm/min和U2=45cm/min的两种颗粒,进入该池后按理想沉淀池条件进行固液分离,且这两种颗粒的重量各占总重量的一半,则颗粒的总去除率应为下列哪项?A.25%B.50%C.75%D.90%答案:C17.下列有关斜管、斜板沉淀池的特点叙述中,正确的是何项?A.上向流斜管沉淀池中,水流向上流动,沉泥沿斜管壁面向下运动B.上向流斜板沉淀池中,水流水平流动,沉泥沿斜板壁面向下运动C.同向流斜板沉淀池中,水流水平流动,沉泥沿斜板壁面向下运动D.侧向流斜板沉淀池中,水流向上流动,沉泥向下运动答案:A18.一座上向流斜板沉淀池水平投影面积165m2,安装斜长L=1000mm,倾角θ=60度,间距d=40mm。
给排水练习题及答案
1.给水支管一般沿墙敷设,用_管卡__固定:横支管暗装墙槽中时,应把立管上的三通口_向墙外拧偏一个适当角度__,当横支管装好后,在推动横支管使立管三通转回原位,横支管即可进入管槽中
2.给水支管的安装一般先做到卫生器具的_进水阀__处,以下管段待卫生器具安装后进行连接。
3.安装排水支管时,应根据各卫生器具位置_排料__、_断管__、_捻口养护__,然后将预制好的支管运到各层。
安装时需要两人将管托起,插入立管三通口内,用_铁丝__临时吊牢,找好坡度、找平,即可打麻捻口,配装吊价,其吊价间距不得大于_2__m:然后安装_存水弯__,找平找正,并按地面三通口高度量卫生器具短管尺寸,配管捻口、找平找正,在安装卫生器具,但要临时堵好_预留口__,以免杂物落入。
4.《建筑给水排水及采暖工程施工质量验收规范》GB50242-2002中规定;阀门安装前,应做_强度__和__严密性_试验;各种承压管道系统和设备应做_水压__试验;非承压系统和设备应做_灌水__试验。
5.水压试验需要准备的材料有_钢管、阀门、止回阀、生料带_等;需要准备的机具有_电动水泵、手压泵、压力表、活动扳手___等。
6.水压试验的作业条件是;
(1)室内给水管道系统安装完毕,支架、管卡已固定牢靠。
(2)管道坐标、标高经检查合格。
(3)各接口处未作防腐、防露和保温,能够检查。
(4)各种卫生设备均未安装水嘴、阀门。
已安装了临时排气管和排气阀。
(5)试压环境空气温度在5℃以上。
(6)加压装置及其仪表动作灵活、准确、可靠。
7.水压试验的操作步骤;
(1) __打开高位处的排气阀门__,向管路注水___。
(2)___启动手动水泵或电动试压泵加压__:先将系统压力逐渐升至工作压力,停泵观察,各部位无裂缝,无渗透时,在升至试验压力。
(3)_试验过程中如发现接口处泄漏,泄压后进行修理,再重新试压:塑料管应在试验压力下稳压_1_小时,压降不得超过_0.05_Mpa,然后在工作压力的_1.15__倍下稳压_2__小时,压降不得超过__0.03_Mpa,同时检查各连接处_不渗漏__为合格。
(4)_试压合格后,及时将系统的存水泄掉_。
(5)___填写管道系统试压记录__。
8.室内给排水的水压试验必须符合设计要求。
当设计未注明时,各种材质的给水管道系统试验压力均为工作压力的_1.5_倍,但不得小于_0.6_Mpa。
9.水压试验的安全注意事项有:
(1)试压时,在管道末端如没有墙板或丝堵时,严禁在其对面站人,以防跑水时伤人。
(2)在试验压力下不许紧固螺栓或锁紧螺母。
(3)试压时所处环境的温度,必须在5℃以上,若低于此温度时,应采取升温措施,或使用其他介质进行压力试验。
(4)试压后应将管道低处的积水泄放干净,防止沉积物堵塞管道或冬季冻结管道。
(5)管道试验中,不可再试验压力下超过规定时间去检查管道,严防管道本身受内伤而留下人为的隐患。
10. __隐蔽或埋地的排水管道_在隐蔽前应做灌水试验。
其灌水高度应不低于底层卫生
器具的上边缘或底层地面高度。
满水_15_分钟水面下降后,在灌满观察与交付使用之前,还需要进行__通水试验__。
11.给水管道系统清洗施工需要准备的材料有; 高压橡胶管_、_阀门__、_冲洗用水__等:需要准备的机具有_水泵__、_压力表__、_管钳__、_钢锯__、__活动扳手_等。
12.给水管道系统清洗施工作业的条件是:
(1)给水管道系统水压试验经验收合格。
(2)各环路控制阀门关闭灵活可靠,不允许清洗的设备与清洗系统临时隔开。
(3)临时供水装置运转正常,增压水泵工作性能符合要求。
(4)清洗水放出时有排出的条件。
(5)清洗前将系统内孔板、喷嘴、滤网、节流阀、水表等全拆除,带冲洗后复位。
13.给水管道系统清洗施工的顺序是先底部干管后各环路支管:水自__控制阀_接临时供水入口向系统充水,关闭支管上_控制阀门__,只开启干管末端支管(一根或几根)底层阀门,将冲洗水排至排水系统,观察__出水口_水质变化。
底层干管清洗完后,依次清洗各支管环路,直至全系统吹洗完毕。
14.给水管道系统的清洗条件:水压应大于_系统供水__工作压力;出水口管应比被冲洗管管径小_1__号;出水口排水流速不小于_1.5__m/s,清洗加压泵__流量_与接管流速达到要求。
15.给水管道系统清洗的检查标准:观察各种洗环路出水口处水质,以__无杂质_____、__无沉积物___、__与入口处水质相比无异样___为合格。
16.给水管道系统清洗的注意事项:
(1)当环境温度低于___0°C___时,不得进行水清洗作业。
(2)当冲洗水排出___流速缓慢__,送水压力急剧___上升时___时,应立即__停泵降压_检查,查清是否有堵塞物或有阀门尚未尚未全开。
(3)清洗后应将管中积水及时排净,避免_积水冻结__而破换管道。
(4)应按规定如实填写_冲洗__记录表。
(5)不可以__系统水压试验后的泄水__代替清洗试验。
17.熟悉相关安装质量规范和标准;
查阅《建筑给水排水及采暖工程施工质量验收规范》GB50240-2002,回答以下问题:
(1)塑料管道的连接方式有_橡胶圈接口、粘结接口、热熔连接、专用管件连接及法兰连接等形式__。
(2) DN25的冷水管水平敷设时,管道支架的最大间距为_塑料管为0.7m,钢管为2.5m_。
(3)各种承压管道系统和设备应做__水压__试验,非承压管道系统和设备应做____灌水__实验。
(4)室内给水管道的水压试验必须符合设计要求。
当设计未注明时,各种材质的给水管道试验压力均为工作压力的_1.5__倍,但不得小于_0.6__MPa。
检验方法:金属及复合管给水管道系统在试验压力下观测__10__min,压降不得大于_0.02__Mpa,然后降到工作压力进行检查,应不渗不漏。
(5)室内给水与排水管道平行敷设时,两管间的最平净距不得小于_0.5__m交叉铺设时垂直净距不得小于_0.15__m。
给水管应铺在排水管_上面_,若给水管应铺在排水管的_下面__时,给水管应加_套管_,其长度不得小于排水管管径的_3__倍,检验方法:_尺量检查_。
(6)给水水平管道应有_2‰~5‰__的坡度坡向泄水装置。
检验方法:__水平尺和尺量检查_。
(7)隐蔽或埋地尚的排水管道在隐蔽前做__灌水__记录,其灌水高度应不低于底层卫生器具的上边缘或底层地面高度。
检验方法:满水_15__min水面,液面不降,管道及接口无渗透为合格。
(8)生活污水塑料管道的坡度必须符合设计或规范要求:DN75的塑料排水管的通用坡度为__15‰__,最小坡度为__8‰___。
检验方法:_水平尺、拉线尺量检查___。
(9) DN75的排水塑料管道支、吊间距为__立管为1.5 m,横管为0.75m____。
(10)洗涤盆的安装高度为_800mm__,洗涤盆水龙头的安装高度为__1000mm_。