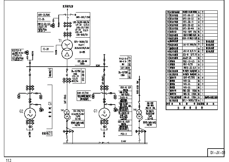
电气一次主接线图
- 格式:pdf
- 大小:3.92 MB
- 文档页数:1
电气课件主接线图发电机变压器二、电气运行安全知识电气课件一、电气一次系统图一、电气主接线的基本接线形式汇流母线单母线、单母线分段、单母线分段带旁母、双母线、双母线分段、双母线带旁母、23接线、变压器母线无汇流母线单元及扩大单元接线、桥型内、外接线、角型接线电气主接线图的作用电气主接线图对电气设备的选择、配电装置的布置、电能的质量和安全运行等都起决定性作用。
所以电气专业人员必须熟悉掌握电气主接线图发电机变压器线路单元接线1.接线简单、使用设备少。
2.线路故障或检修时 变压器停运 反过来同样。
3.适用于只有一台变压器和一回线路时或当发电厂内不设高压配电装置、直接将电能送至系统枢纽变电站的情况。
我司发电机出口无甲刀闸。
输送功率及距离110KV功率1050MW、距离50 150KM。
220KV功率100150MW、距离2000300KM500KV功率10001500MW、距离250 1000KM 我公司2135兆瓦热电联产工程厂内电气主接线原定设计为双母线接线 此种接线方式虽然具有供电可靠 调度灵活及便于扩建等优点 但这种接线方式所用设备较多 配电装置复杂 经济性较差 在运行中隔离开关作为操作电器 很容易发生误操作事故 并且对于实现自动化不方便 当母线故障时 须切除较多的电源和线路经济性好。
单元接线是发电机经变压器直接接入春林变电站 需要断路器及隔离开关的数量要远远小于双母线接线 如果按国内六氟化硫开关的配置 仅此一项就可节约近200万元。
另外启备变的电压等级也由220kv降到110kv这一项也可节省投资100万元。
单元接线方式的占地面积也要远远小于双母线接线所占用的面积 这也更符合我公司的实际情况。
还有 单元接线的保护配置也更加简单化 没有了升压站母线保护。
可靠性较高。
单元接线的最突出的特点就是开关设备少 操作简单 设备少相对来说也就是减少了设备的故障率 操作简单也就减少的设备误操作的次数 所以可靠性相对也就提高了。