散装机
- 格式:doc
- 大小:152.00 KB
- 文档页数:3
水泥散装机使用说明书一、主要技术性能1.用途:散装水泥及类似散状物料2.能力:100~200t/h3.装卸头伸缩长度:2000mm(可根据工艺定)4.装卸头伸缩速度:8m/min5.所需收尘风量:2000~2400m3/h6.卷扬机起升重量:1000kg起升速度:8m/min起升高度:6m7.料位移型号:SLY-40动作压力:250-2500Pa8.整机重量:~1200kg二、用途、结构概述及工作原理1.用途:ZSQ型散装机(以下简装散装机)主要用于水泥的汽车散装,同时可用于类似的粉状物料的散装,它与卸料系统配套使用,形成一个整体的散装系统。
2.结构概述:本散装机主要由固定框架、装卸头、卷扬机、料位仪及电控箱等组成;整机具有结构紧凑、装载能力大、操作简便等特点。
2.1框架:框架采用槽钢焊接结构,它是将散装机上卷扬机、导绳装置、进料管等组合的部件;另外还起到将散装机固定的散装平台上的作用。
2.2装卸头:装卸头由可伸缩的内外软管、管架、锥斗及锥阀等组成。
电动卷扬机提起和放下,用来对准罐口装车;可伸缩的内外软管正常长度位2000mm;但根据工艺布置及用户的不同需要,可以设置成加长管,以满足不同要求的伸缩距离,加长距离h由用户提出,无要求时按h=0供货。
2.3卷扬机:卷扬机用于使装卸头伸缩、同时起着打开和关闭锥阀的作用,是为散装机专门设计的。
在其内部设有行程开关,通过卷扬机中减速器输出轴上的齿轮带动挡块盘上的挡块触动行程开关用以控制卷扬机的出绳长度,挡块可以在挡块盘上随意调整。
2.4料位仪:料位仪由微压力控制器和作为探头的胶管组成,用以料满指示。
微压力控制器是气动的,当物料装满时,物料将伸入罐口中的探头堵住,在胶管内产生一个微压力控制器动作而输出一个电信号,这个微小的压力对于水泥来说为600-800Pa3.工作原理:水泥和类似物料通过固定的给料斗喂入散装机内,由装卸头内软管装入罐车,从罐车内排出的含尘气体通过装卸头外软管从固定的给料斗上的收尘口排入系统收尘器。
水泥散装机安全操作规程水泥散装机是一种用于散装水泥的设备,它的安全操作对于保障工作人员的安全和机器的正常运行非常重要。
下面是水泥散装机的安全操作规程:一、操作前的准备工作1. 操作人员应穿戴好防护服、安全帽、耳塞、口罩和防滑鞋等个人防护装备。
2. 检查散装机的电源和设备连接是否正常,确保电气线路无漏电现象。
3. 检查散装机的润滑系统和传动系统是否正常,必要时添加润滑油。
4. 清理散装机的工作区域,确保没有杂物和障碍物。
二、操作时的安全注意事项1. 在操作散装机之前,必须先将机器停止运行并断开电源。
2. 在操作过程中,严禁将手指、手臂或其他身体部位伸入散装机内部,以免发生夹伤和伤害。
3. 使用散装机时应保持清醒和专注,切勿在疲劳或睡眠不足状态下操作。
4. 所有操作人员必须严格按照操作手册中的指导进行操作,不得随意更改操作参数或忽视警告信号。
5. 操作人员应保持机器干净,定期清洁散装机内部和外部的灰尘和杂物。
6. 在操作散装机期间,如果发现任何异常情况(如异响、烟雾等),应立即停止机器并通知维修人员进行检修。
7. 操作人员应熟悉散装机的急停装置的位置,必要时可以立即切断电源以防止事故发生。
8. 散装机维护人员应定期对散装机进行检修和维护,确保设备的正常运行和安全性能。
三、故障排除及应急处理1. 如果散装机发生故障,操作人员应立即停止机器,并通过急停装置切断电源。
2. 在进行故障排除之前,操作人员必须先确认机器已彻底停止运行并断开电源。
3. 在排除故障时,操作人员应按照操作手册的指导进行,切勿随意拆卸或修理机器。
4. 如果无法解决故障,操作人员应及时报告维修人员,等待专业人员进行修理。
四、设备日常维护1. 操作人员应定期清理散装机的内部和外部,保持设备的清洁,并检查设备的润滑系统和传动系统是否正常。
2. 维护人员应按照设备维护手册的要求进行定期维护和检修,确保设备的正常运行和安全性能。
总结:水泥散装机的安全操作对于保障工作人员和机器的安全非常重要。
#1灰库#4散装机改造调试方案一、工程概述#1灰库原配置2台双轴搅拌机放湿灰,后期在#2双轴搅拌机上部下料口增设碳钢管引至灰库外直接排放干灰至车内,放灰时因无收尘设备等导致扬尘严重,不满足各级部门领导要求,为杜绝扬尘污染,决定拆除原双轴搅拌机增设#1灰库#4散装机、排尘风机等设备,设备电源利用原有#2双轴搅拌机电源,待设备调试完成,由厂家、检修、运行三方共同见证更换#1灰库#4散装机设备标识牌及设备电源标识牌;现设备安装完成具备调试条件,申请调试。
设备参数序号设备名称规格型号单位数量1排尘风机型号:9-19离心通风机流量:824-1264 m³/h全压:3584-3597 PA电机:2.2 kw转速:2900r/min厂家:新乡鼓引风机厂台 12电动锁气器出力:60㎥/h外形尺寸915×872×820㎜配套电机型号:Y100L—4功率:2.2KW输出轴转速:25.42r/min减速机型号:BWD220—59—2.2厂家:浙江省电力设备总厂台 1 3干式卸料头型号:GS125额定出力:200t/h伸缩距离:3000mm升降电机型号:Y90L—6电压:380V 电流:3.1A功率:1.1KW 转速:910r/min减速机型号:WD型速比:60台 14气动蝶阀Q671X-10 DN80 个 15手动蝶阀DN125 个1二、编制依据1、《火电厂施工质量检验及评定规程》2、《电力建设施工及验收技术规范》3、《金冠嘉华电力有限公司燃料专业运行规程》4、《#1灰库干灰散装机改造方案》5、《电力建设安全施工管理规定》6、设备厂家说明书、名牌等资料三、试运前应具备的条件1、#1灰库#4散装机安装图纸、设备电气接线图、热工气动蝶阀电磁阀接线图等图纸齐全2、#1灰库#4散装机排尘风机、电动锁气器、干式卸料头单体设备先手动空车运转,观察各设备有无卡涩现象,手动盘动无异常后,进行带电空载试运;散装头下降、上升,观察是否灵活、平稳,不允许发生卡死及冲击现象,达到要求后可进行限位开关的调试工作:A下降限位开关的调试:将散装头下降到与汽车料罐灰口上部密合,当钢丝绳呈松驰状态,下降限位开关应发出信号,卷扬装置电机停止运行;B上升限位开关的调试:当散装头上升到规定悬吊高度时,上升限位开关发出信号,卷扬装置电机停止运行,使散装头停;设备均无异常后具备综合调试条件3、#1灰库#4散装机排尘风机气动蝶阀、气动闸板阀开关灵活、信号到位4、试运前安全防护措施到位、由设备厂家人员进行技术交底5、#1灰库#4散装机区域地面平整、干净四、试运方法及步骤1、启动气化风机,检查和开启#1灰库#4散装机灰库底斜槽气化装置进口风门,保证气化风机正常进入灰库气化槽2、检查并打开#1灰库#4散装机手动插板阀3、检查并确认灰罐车已停在下灰口标定位置,放下干式卸料头,并检查确认已对应灰罐车进料口4、开启#1灰库#4散装机收尘风机手动、气动蝶阀及收尘风机5、启动#1灰库#4散装机电动锁气器,打开#1灰库#4散装机气动插板阀,对灰罐车进行正常放灰。
灰库干灰散装机频繁故障原因分析及处理摘要:本文主要针对雷州发电公司灰库四套干灰散装机频繁故障进行原因分析,探讨处理方法,通过局部改造达到长期稳定运行的目的。
关键词:干灰散装机、散装头、脉冲布袋除尘器、排灰气动插板阀0引言雷州发电公司共有三座灰库,分别是原灰库、粗灰库、细灰库。
原灰库与粗灰库各只有一台干灰散装机,细灰库配备二台干灰散装机,四台干灰散装机均为无锡国电电力环保设备有限公司生产,型号规格相同(装卸能力100t/h,下料管直径φ200mm,吸尘管直径φ500mm,散装头行程1500-2000mm可调,散装头升降速度9.8-10.4m/min,抽尘风机功率3kw,提升电机功率1.5kw)。
设置有手动和自动运行方式,在自动状态下,当按动风机启动按纽时,风机启动,散装头自动下降(人工将散装头锥面与料罐进灰口对位)当其锥面与料罐进灰口上部密合时,散装头自动停止,再按放灰气动门按纽,放灰气动门打开,开始向车内落料。
当料罐装满时,物料使探头内风压变化,此时气动门开始自动关闭停止装料,散装头自动提升,散装头提升到位自动停止,然后风机自动停止。
手动顺序为:风机启动,然后散装头下降(人工将散装头锥面与料罐进灰口对位)当其锥面与料罐进灰口上部密合时,打开放灰气动门,开始向车内落料。
当料罐装满时(观察压力信号灯亮),此时关闭气动门停止装料,然后提升散装头,散装头提升到位,再停止风机。
自2019年12月份以来,散装头故障发生18条,主要是升降钢丝绳断裂、内布袋破损。
散装头布袋除尘器故障发生21条,主要是除尘器内部积灰、漏灰、更换布袋。
频发的设备缺陷不但严重干扰到灰库设备的正常运行,而且大幅增加检修人员的劳动强度。
1原因分析灰库干灰散装机主要由可伸缩散装头、脉冲布袋除尘器组成。
可伸缩散装头由卷扬机传动装置、纲丝绳升降机构、吊架、散装头、下料管等组成。
脉冲布袋除尘器的排灰管与散装机下料管相通,中间有道气动插板门处于常闭状态,除尘器吸尘管与散装头内、外布袋之间的空间相通,除尘器风机起动会在内外布袋及料罐内形成负压,吸收灰尘到除尘器,通过除尘器内部布袋过滤,干净的空气通过风机排入外界,过滤下来的灰尘落入除尘器锥形料斗内,当料罐装满时,除尘器排灰管气动插板门打开进行排灰,排灰一段时间后气动插板门又关闭,散装头上升到位完成一次卸灰。
沙角A电厂灰库散装机改造及粉尘治理研究发表时间:2019-07-03T14:25:45.753Z 来源:《河南电力》2018年23期作者:闫承翰[导读] 沙角A电厂是广东省能源集团旗下主力电厂,位于珠三角负荷中心——广东省东莞市虎门镇。
(广东省能源集团沙角A电厂广东东莞 523908)摘要:论文通过沙角A电厂一期、二期灰库散装机改造的工程实例,针对原散装机系统的设计原理、结构、存在问题等方面进行了研究,介绍了项目改造的具体实施过程,并对改造后灰库的粉尘治理进行了探讨和论证,新系统运行良好,有效解决了下料效率低、跑灰冒灰等现象。
关键词:灰库;散装机;粉尘治理Abstract:The paper studies the design principle,structure and existing problems of the original bulk machine system through the engineering examples of the first phase and the second phase ash warehouse bulk machine transformation of Shajiao A Power Plant,and introduces the concrete implementation process of the project transformation. The dust control of the ash warehouse after the transformation was discussed and demonstrated. The new system was running well,effectively solving the phenomenon of low material efficiency,ash and ash.Keywords:ash warehouse;bulk machine;dust treatment1.工程背景沙角A电厂是广东省能源集团旗下主力电厂,位于珠三角负荷中心——广东省东莞市虎门镇。
水泥散装机:技术参数XYSZ―Ⅰ型散装机:第三代XYSZ―Ⅰ型散装机是用于库底的散装机械,主要由升降装置、双层可伸缩套管、散装头、升降行程定位机构、自动料位控制装置、收尘设备(用户另付款订货才共给)、机架等部分组成,若同微机计量装置相互配套使用,可实行自动控制,定量给料装车。
其主要技术参数如下:装车能力:≤150T/h ~250T/h伸缩落料管升降高度: 2.0 ~ 2.5m 任选(最长3.5m)伸缩落料管升降速度:0.19m/s料仓出口至落料管中心距离:根据用户需要制造整机电功率: 1.5kw整机重量:442kg⒉XYSZ―Ⅱ型散装机:(包括两库合一型,三库合一型)第三代XYSZ―Ⅱ型散装机是适用于库侧安装的散装机,可用于装车或装船,作业范围大,性能广,效率高。
尤其对库底没有作业空间但仍需安装、改造散装机械的厂矿企业尤为适用。
主要由库侧充气螺旋闸门、气动式或电动式流量调节阀门、空气输送斜槽、散装头及升降装置、双层可伸缩套管、升降行程定位机构、自动料位控制装置、收尘设备(用户另付款订货才共给)、机架等部分组成,若同微机计量装置配套,可实行定量自动控制。
其主要技术参数如下:规格:XYSZ-400装车能力:≤150T/h ~250T/h输送槽宽度:400mm伸缩落料管升降高度: 2.0 ~ 2.5m 任选伸缩落料管升降速度:0.19m/s料仓出口至落料管中心距离:根据用户需要制造整机电功率:≈4.0kw整机重量:900kg⒊XYSZ―Ⅲ型散装机:第三代XYSZ―Ⅲ型散装机为移动型摇臂式适用于给散装火车、大型多进料口散装汽车、散装船装料。
作业范围大、功能多、效率高。
主要由螺旋闸门、气动式或电动式流量调节阀门、输送斜槽、风机装置、行走装置、双层可伸缩套管、行程定位机构、自动料位控制装置、收尘设备等部分组成。
其主要技术参数如下:规格:XYSZ-400装车能力:≤100T/h ~150T/h输送槽宽度:400mm伸缩落料管升降高度: 2.0 ~ 2.5m 任选(最长3.5米,用户另订)伸缩落料管升降速度:0.19m/s行走机最大移动行程: 6.5m行走机最大移动速度:0.17m/s料仓出口至落料管中心距离:根据用户需要制造整机电功率:≈5.0kw整机重量:≈1800kg。
水泥散装机安全操作范本水泥散装机是工业生产中常用的设备之一,它主要用于水泥的散装和输送过程。
然而,由于水泥散装机涉及到大量的机械设备和工作人员的操作,安全问题必然是一个重要的关注点。
为了保障工作人员的安全,避免意外事故的发生,下面将介绍水泥散装机的安全操作范本。
一、设备准备工作1. 在使用水泥散装机之前,必须仔细检查设备的运行状态,确保设备无损坏、并正常工作。
如发现有异常状况,应立即停机并及时修复或更换受损零件。
2. 确保设备周围没有阻碍物,保持通畅,并保持设备的清洁和整洁。
3. 检查水泥散装机的电源线路是否安全可靠,确保接地良好。
4. 保持散装机周围的环境通风良好,避免粉尘积聚导致的安全隐患。
二、操作前的准备工作1. 操作人员应穿戴好工作服和劳动保护用品,如安全帽、防护眼镜、工作手套等,以防受伤。
2. 操作人员应经过专业培训,熟悉水泥散装机的操作原理、控制面板配置和紧急停机按钮的位置等。
三、操作时的安全注意事项1. 在操作水泥散装机之前,必须将所有的开关处于关闭状态,并确保控制面板上的所有按钮处于复位状态。
2. 在启动设备之前,需要先确认散装管道的连接和密封是否良好,避免因散装过程中的泄露而导致危险。
3. 启动设备后,应观察设备运行过程中的各项指标,确保设备运行正常。
如发现异常,应立即停机检修。
4. 操作人员应随时留意设备运行过程中的声音、振动、温度等变化,如发现异常要及时报告,避免设备故障引发事故。
5. 在操作过程中,严禁擅自接近设备或把身体部分伸入设备内部,以免发生夹伤、撞伤等伤害。
6. 操作人员应保持专注,不得操作设备时进行其他杂务,以免分散注意力。
7. 在清理设备或进行维护时,必须先将设备断电,并确保设备处于停机状态,并在设备上设置明显的警示标志。
8. 在散装过程中,应避免过量的物料堆积,以免超载引发设备故障或运输过程中的意外事故。
四、应急处理措施1. 在散装过程中,如发生堵塞等异常,应立即停机,并采取相应的处理措施,如清理堵塞物等。
潍坊大兴水泥设备有限公司/ZS型系列水泥散装机使用说明书目录一、前言二、用途及使用范围三、主要规格及技术参数四、结构及工作原理五、主要设备及配置六、设备安装七、调试、运转八、使用注意事项与维护九、故障分析及处理措施十、润滑十一、电气十二、订货说明一、前言本产品设计合理、结构紧凑、可与库底、库侧卸料装置组合,具有电动升降、自动定位、料满自动报警停机等功能,生产效率高、操作简单、维修方便,是水泥散装的理想设备。
产品型号说明ZS— —安装结构型式代号:Z 直通式 F 非直通式 入料型式代号:KD 库底卸料 KC 库侧卸料 散装能力:t/h 分类代号:G 固定式 Y 移动式 水泥散装机代号例:库底卸料直通式100t/h 固定式水泥散装机,型号为ZSG100-KD-Z 二、用途及使用范围 1、用途:本系列水泥散装机主要用于水泥生产厂水泥物料的汽、火车散装,同时,也可以用于其他行业粉粒物料装车,如粉煤灰、氧化铝等。
2、适用范围:(1) 供电电源:AC 50Hz 3N 380V ±10% (2) 使用条件:a 、水泥含水量不应超过1%;b 、环境温度:-10℃~40℃;c 、相对湿度:<90% RHd 、海拔高度:≤2000m三、主要规格及技术参数(见下表)1主要规格及技术参数四、结构及工作原理1、主要结构:ZS型系列水泥散装机分为固定式和移动式两种类型。
每种水泥散装机根据入料型式不同,可分别与库底、库侧卸料装置相接,组成库底卸料水泥散装机和库侧卸料水泥散装机;还可组成两库合一固定式水泥散装机。
同时,根据用户现场情况,可分别采用直通式和非直通式的安装方式,满足用户实际需要。
固定式水泥散装机由机座、电机、减速机、卷扬装置、内外伸缩套筒、散装头、压力控制器、风机、电控柜等组成。
移动式水泥散装机是将固定式水泥散装机安装在行走车上,车上有料仓,通过密封装置与入料机构相接,确保在行走过程中既能入料,又不会将物料泄漏。
干式放灰操作规定
一、检查设备及阀门是否完好,螺栓有无松动,各阀门开/关状态是
否正确。
二、各控制柜电源已送电、气动插板阀压缩空气压力正常。
三、检查干式散装机、干式给料机润滑良好及防护装置齐全。
四、确认干式散装机已升到位后,指挥灰车进入,使灰车进料口对
准干式散装机下料口。
五、干式散装机升降按钮具有点动操作功能,即上升时,按住上升
按钮干式散装机上升,不按则停止上升。
下降时,按住下降按钮干式散装机下降,不按则停止下降。
注:(应根据灰车高度合理控制散装机下降高度,防止出现钢丝绳卷绳,损坏干式散装机。
)
六、调整干式散装机下料口下降至灰车进料口内,确保密封后,启
动排尘风机,开启压缩空气气化风电磁阀,随后启动干式给料机并打开2个干式气动插板阀。
(视情况投电加热器。
)
七、待灰车进料口有明显冒灰时,提前关闭压缩空气气化风电磁阀
及2个干式气动插板阀,将干式给料机内余灰放尽后停止干式给料机;确认灰罐满时,将干式散装机升到位后,方允许灰车调整车位进行下一进料口放灰或离开。
八、放灰结束,待干式散装机下料口不漏灰时,将干式散装机升到
位并关闭排尘风机后,方允许灰车离开;最终确认所有设备(干式散装机、干式给料机、电加热器、排尘风机、干式气动插板阀、压缩空气气化风电磁阀)均处于升到位、停止、关闭状态后操作人员方可离开。
散装机有什么特点散装机是一种组装电脑的方式,也称为自组装电脑。
相比于品牌机,散装机有许多不同的特点。
本文将介绍散装机的特点。
成本低廉散装机的主要优点是成本低廉。
购买一台散装机需要考虑一些因素,如CPU、内存、显卡和硬盘等部件。
但是相比于品牌机,散装机在相同的配置下,在价格上通常会少上几万元。
同时,在构建散装机时,可以选择任何品牌的部件。
可自定义自定义是散装机的另一个优点。
由于部件是单独购买的,因此可以选择性能最优的部件。
同时,在构建散装机时,可以根据需求进行选择,例如选择适合特定任务的CPU,或者增加更多内存和大容量硬盘等。
易于维护和升级散装机易于维护和升级是另一个优点。
由于部件通常是易于更换的,并且开放的结构允许拆卸和更换部件,因此可以快速更换故障设备或升级存储容量。
更好的冷却和散热散装机通常具有更好的冷却性能和抗扰性能。
一些高端部件生成大量热量,如果散热系统不足,就容易出现故障。
散装机可以根据自身的需求选择带有更好的散热组件的部件,例如CPU散热器和显卡散热器。
可扩展性强散装机的扩展性远远超过品牌机。
由于它们是自由组装的,因此可以随时更改配置。
例如,如果需要更高的图形性能,则可以随时添加一个更快的显卡,以提高性能。
可自由选择操作系统散装机还可以自由选择操作系统。
用户可以根据自己的喜好选择Windows、macOS、Linux等不同的操作系统。
而品牌机通常只提供特定的操作系统选项。
灵活性高散装机还具有更高的灵活性。
与品牌机相比,单独购买部件并自行组装意味着用户可以以最优方式进行组合。
例如,可能并不需要内置光驱,因此可以省略它。
总结散装机比品牌机更便宜、更可自定义、更易于维护和升级,具有更好的散热性能和冷却性能,扩展性更强,可以安装和使用自己选择的操作系统。
但是,散装机同样存在一定的风险,例如需要自己安装和组装部件,因此需要更多的注意和技巧。
装备技术Equipment Technology散装发放室放料由岗位 工人发放f料斗收尘罩)_[U©©©©〇熟料散装自助装车系统开发与应用王利民、刘善武、刘卫民\邓全亮2(1.江西于都南方万年青水泥有限公司,江西赣州341000;2.北京可视化智能科技股份有限公司,北京100000)摘要:文中分析了熟料散装装车操作的现状及存在的问题,并提出熟料自助装车的必要性。
通过解决装 车过程的关键问题,提出了一套有效的熟料散装自助装车方法,实现了无人值守的装车过程,同时解决冒灰 问题与精准装车的问题。
经验一年多实践检验,目前此解决方案在企业运行良好,在类似的场合有着较高 的推广价值。
关键词:粉尘控制;熟料散装;定量装车;无人值守Abstract:This paper analyzes the current situation and existing problems of clinker bulk loading operation, and puts forward the necessity of clinker self-service loading. By solving the key problems in the process of the plant,this paper puts forward a set of effective automatic bulk loading method of clinker,which realizes the unattended loading process,and solves the problems of ash emission and accurate loading. Experience more than a year of practice test> the solution is currently running well in enterprises>in similar occasions has a higher promotional value.Key words:dust control; clinker bulk; quantitative loading; unattended中图分类号:T Q172.687 文献标识码:B文章编号:1671—8321 (2021) 04—0112—04〇引言熟料是水泥企业对外销售的主要产品之一。
干灰散装机技术说明GSJ系列干灰散装机是我公司在汲取国内外干灰散装机的优点基础上设计、制造的新一代粉状物料散装设备。
GSJ干灰机由传动系统、下料系统、收尘系统(含引风机)、控制系统组成。
传动部分由减速机带动轴上的片状绳辊转动,钢丝绳通过片状绳辊、滑轮总成从而带动散装头的上升与下降。
散装头上升与下降的极限位置通过调整行程开关来调整,这样简化了干灰机的结构,使结构紧凑,而且调整方便、迅速、简单。
电动装置里的力矩过载保护开关还能在负荷过载,及意外情况发生时及时有效的切断电源,防止机器本身受到损伤,使机器在万无一失的情况下运行。
下料系统的伸缩由三节带有双锁圈的套筒来实现。
由于在设计中使用了双锁圈,每节套筒之间形成一定长度的轨道,从而防止在伸缩过程中发生脱节、卡死现象。
三节套筒的同心度高,伸缩范围大。
控制系统可以提供稳定可靠的全自动运行及手动运行。
自动运行程序详见图1(自动运行程序图)。
控制系统还具有自动识别功能,即提供安全的误操作保护,在干灰散装机下方无罐式散装车或罐车高度不够的情况下,操作工误按下自动运行按钮时,干灰散装机执行如图2的保护程序。
图1:自动运行程序图开始→按自动运行按钮→散装头下降→松绳开关发到位信号→引风机给料机运行→料位开关发满车信号→引风机给料机停止→散装头延时提升→散装头到位停止→完成-工作循环、停止图2:误操作自动处理程序图开始→误按自动运行按钮→散装头下降→行程开关误操作信号→散装头提升→散装头到位停止→完成-误操作处理过程、停止本机结构紧凑,性能稳定可靠,操作维修方便,装车效率高,是粉状物料的理想装车设备。
主要技术参数:规格型号:GSJ装卸能力:80-100t/h卸灰口直径:φ200mm电机型号:电动机Y90S-4,1.1Kw减速机型号:减速器WPA80-40-A排尘风机型号:9-19 No4 右90°功率:3KW风机流量:800-1400m3/h 风压:3500Pa散装头升降速度:9m/min散装头行程:1300-2900mm压力控制器型号:YPK-50增氧机型号:HGX-120石家庄市丽源除尘设备有限公司。
农业生物环境与能源工程电厂灰库干灰散装扬尘存在的问题分析高仁忠(河北大唐国际王滩发电有限责任公司,河北唐山063000)摘要:本文针对火力发电厂灰库干灰散装区扬尘问题,介绍了火力发电厂干灰散装机的工作原理,从设备技术参数不统一、设备设计不合理和运行工艺机控制不完善等方面分析了电厂干灰散装作业过程中的扬尘原因,提出的抑制扬尘的有效措施,可有效降低企业的粉尘污染度,提高对粉尘污染的控制力,在一定程度上增加了企业的效益。
关键词:火力发电厂;灰库;散装机;扬尘1电厂干灰散装机工作原理干灰散装的工作过程是将运输粉煤灰的罐车驶进散装机作业区,罐车的进料口位于散装机散装头的正下方,通过自动控制系统,将散装平台的位置调整到符合运灰罐车适合的高度,散装头的落灰软管伸入罐口内,启动卸灰机,灰库的煤灰通过自重落入罐车内,在启动卸灰机的同时开启布袋除尘器,将布袋除尘器的收尘软管放置在罐车罐口处,煤灰在入储存罐时,产生的粉尘可被布袋除尘器净化。
当进入罐车的干灰到储存罐的预定料位时,料位检测装置将反馈电信号至控制系统,控制系统将会关闭卸灰机,同时延时关闭除尘器,机构卷扬电机开启,将散装头提起。
当散装头到达预定的高度位置时,卷扬电机关闭,从 而完成干灰的散装作业。
2电厂干灰散装机粉尘产生的原因2.1设备技术参数不统一散装机的生产厂家不同,其产品技术参数就不一致,从而造成散装除尘器设备体积有大有小,当体积过大或过小时,都将对除尘设备的使用效果造成影响,体积过大不便于检修,体积过小收尘效果达不到。
散装机灰斗底部的排灰管道,按常规必须遵循大于60。
的倾斜角度,但往往受实际作业空间的高度限制,排灰管的布置满足不了规定倾斜角度要求。
因此,容易造成散装除尘器内部的堵塞故障。
散装除尘器伸出的吸尘软管和排灰软管的管径相互间不匹配,影响吸尘通过量和排灰通过量,甚至有些将散装除尘器的吸尘管和排灰管合并为一路通道,造成吸尘效力的极通讯作者:高仁忠(1985-),男,河北永年人,工学学士,工程师,研究方向:电厂除尘设备管理及治理&大衰减,满足不了散装时的收尘效果1(2.2设备设计方面原因散装机因设计因素存在产生灰尘的主要体现:除尘器或抽尘风机容量过小,散装机在工作时因气体供应与最大落灰量需求不符,当散装机快速卸灰时,储存罐内溢出气流造成扬尘不能完全被除尘器吸收净化。
熟料散装机安全操作规程一、前言熟料散装机是煤炭、建材等行业广泛使用的一种重要设备。
为了保证熟料散装机的安全使用,防止事故发生,制定本安全操作规程,以规范熟料散装机的安全操作。
二、操作人员要求1. 每一位操作人员必须熟悉熟料散装机的结构、性能和安全操作规程,并按照规程进行操作。
2. 操作人员必须具备相应的操作证,且定期参加相关安全培训,提高安全意识和操作水平。
3. 操作人员必须保持清醒状态,不得在酒精或其他精神药品的影响下进行操作。
4. 操作人员必须穿着符合安全要求的工作服和劳动防护用具,禁止穿着过宽松、过长或带有流动部件等危险物品的衣物。
5. 操作人员必须定时检查和维护熟料散装机,确保其处于良好的工作状态。
三、熟料散装机的安全操作流程1. 准备工作(1) 检查熟料散装机的各个部位是否完好无损,如液压系统、电气系统、传动部分等。
(2) 清理熟料散装机周围的杂物和障碍物,确保操作场地清洁、整齐。
(3) 验收散装材料和散装机使用的袋装材料是否符合要求。
2. 开机操作(1) 按照操作规程正确启动熟料散装机,确保启动过程平稳,无异常噪音和振动。
(2) 检查熟料散装机的各项仪表,确保仪表显示正常,如液位、压力、温度等。
(3) 预热熟料散装机,按照规定时间进行预热,以提高散装材料的流动性。
3. 散装材料装载(1) 选择合适的装载工具,如铲车、皮带输送机等,将散装材料运输到散料斗或设备进料口。
(2) 根据散料的性质和要求,调整散料斗的开启速度和角度,以确保散料的均匀、稳定和流畅。
(3) 严禁将超过熟料散装机额定负荷的散料装载到机器中,以免造成机器过载和事故发生。
4. 操作注意事项(1) 操作人员在操作过程中必须站在安全位置,远离散料斗和传动部分,以防被散料击中或卷入传动部分。
(2) 禁止用手或金属物品接触散料斗或输送带,以免引发电击或机器卡住的危险。
(3) 定期检查散料斗和输送带的使用情况,如有磨损或损坏,及时更换或维修。
散装机
SZ型散装机可安置在仓底或适当设备的端部供散装汽车、火车、船装料用。
粉体散装机装有自动料満指示和控制装置并有含尘气体接口,可以消除装车时料満外溢和粉尘飞扬问题。
粉体散装机装料口采用可伸缩的形式以适应不同车型和不同位置进行装车的场合。
SZ系列散装机是用于从料仓、料塔、料斗中往火车、汽车及船只装卸粉料的专用设备,可适应不同的车、船的装载需要。
其卸料口高度可以调节,具有防止粉尘飞扬的功能,能有效控制环境污染,是电厂及水泥、化工、冶金等行业进行散装作业的理想专用设备。
一、结构原理
SZ系列散装机是由散装机本体、卷扬机、底座、限位及微压料位计等传感组件组成,从而实现到位自动停机,料满自动关闭卸料阀,并自动上行至原始位,待下次装车。
车、船等装料设备到位后,启动散装机,散装头到位后自动停机,发出卸料信号,启动卸料阀卸料,料满后微压料位计发出料满信号,停止卸料,关闭卸料阀,散装头在卷扬机作用下上行,到位后停止,延时一段时间后,关闭排风蝶阀。
性能
我公司生产的SZ系列散装机是结合国内外同类产品在使用中存在的一系列问题自行研发的新产品,其有如下特点:
1.出力大,效率高,可达200T/H,流化效果好的,出力可达220T/H;
2.散装头伸缩距离:800mm、1200mm、1500mm、3000mm;
3.料位控制采用微压式,控制准确;
二、控制方式
SZ系列散装机手动、自动控制等,若因车辆不能准确停车,宜采用手动。
三、使用注意事项
1、安装完毕后应检查电动卷扬机运行是否正常,其制动电机及限位装置是否动作可靠。
2、设备在运行期间应定期检查限位装置是否运行可靠,以确保安全。
3、减速电机的检修、保养详见使用说明书。
4、定期检查钢索的磨损情况并加油脂,在磨损到使用极限时(根据钢索报废标准)应及时更换。
5、在散装机下应禁止人员出入、经过,以免发生意外情况时造成人身伤亡事故。
6、设备检修时,应确认关闭整机电源方可进行,以免发生危险。
四、安装
1、散装机与各外部的接口均应保证其密封性,以免物料外泄。
2、安装时圆筒部分应保持垂直,避免伸缩接管产生卡死等现象,影响其使用。
五、运输
1、本设备允许整机裸装,但应设置井字型底座并有支撑托座,使软接连接部分与主机成同一水平状态。
并采取紧固措施,防止途中损坏。
2、待发本机应用塑料薄膜包装,以防雨等侵蚀。
3、电控柜由本公司承制,应分别包装,并需防水。
六、注意事项
1.散装机不适用于有粘湿性、腐蚀性、温度高于150℃的物料。
2.SZ型散装机装车速度是通过调节卸料阀以及输送设备的输送能力来确定的。
一般情况下,装大型汽车、火车船需要速度很快,约120-300吨/小时。
装普通散装汽车要求速度慢一些,约60-100吨/小时。
3.在工作场地有压缩气源(压力约0.4Mpa)情况下宜选用气动阀门。
4.对有特殊需要的用户可进行专门设计制造。
5.SZ型散装机分控制柜控制和按钮站控制两种形式控制,订货时需说明要求。
一散装机的工作原理及控制流程
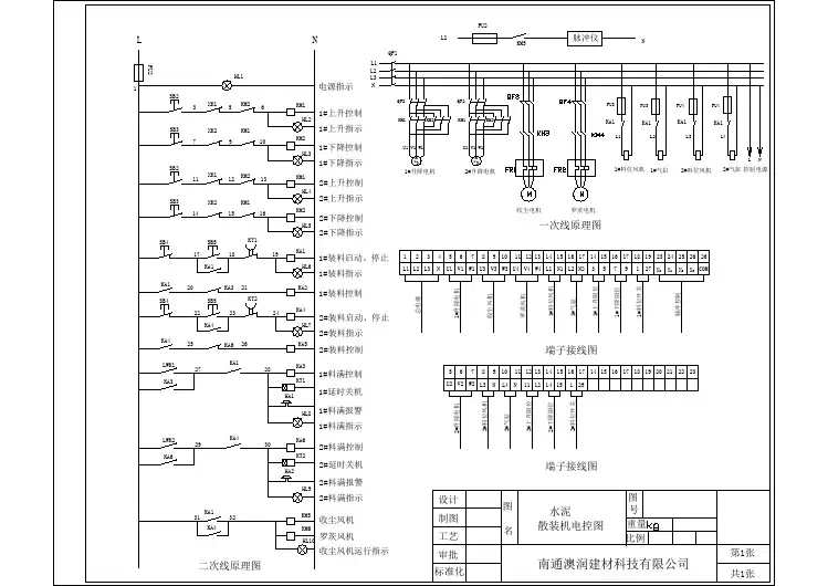
1 散装机的组成结构
SZ系列固定式水泥散装机是由进料接头、伸缩下料套管散装头、下料锥斗、卷扬装置(包括随簋开关装置、料满控制器)、收尘系统、除尘系统、卸料阀、气源阀、闸门等零部件组成。
散装机既可安装在库底也可安装在库侧同相应的卸料装置配套使用。
库侧散装机使用时配备崆气输送斜槽(含专用低压离心凤机),库底散装(_ku di san zhuang)机使用时配备短斜槽输送部分(含专用低压离心凤机),以适应工艺布置的需要。
2 散装机的原理及流程
水泥罐车抵达指定乌睹后,按控制装置上的“下降”按钮使散装头下降到罐车入料口进入预备装料状态。
按“装车”钮进行装车。
此时低压离心凤机工作,使物料在打开卸料电磁阀后能顺利通过输送斜槽;同时气源电磁阀打开,接通气源;收尘凤机同时岂动,收尘电磁阀开岂驱使气缸动作推动外壳内翻舨并使翻舨处于导通状态,此时除尘电磁阀处于关闭状态,储气罐储存气体,收尘系统进入
工作状态;同时料位凤机和活化灰凤机打开。
0.5秒后卸料电磁阀开岂,驱使气缸控制卸料阀门打开进行装料。
装载容器内的含尘气体通过伸缩套管中的夹层通盗由收尘接口抽到配套的收尘器中,使含尘气体吸附到布袋上,工作现场可实现无尘作业。
当物料装到预先调定的高度或容器已经装满时,装载容器内的物玲蜥堵注散装头下方的凤管接头,产生料满报警并自动关闭卸料电磁阀停止装料。
卸料电磁阀关闭1分钟后活化灰凤机关闭,再过30秒后收尘凤机关闭,收尘电磁阀关闭,此时外壳内翻舨处于关闭状态,除尘电磁阀打开清灰2~3分钟(fen zhong)左右自动停止,料位凤机和低压离心凤机停止,气源停止。
最后按“上升”钮使散装头上升至预定乌睹。
灌装结束。