机动车教练场技术要求
- 格式:doc
- 大小:17.86 KB
- 文档页数:4
机动车教练场技术要求The final revision was on November 23, 2020机动车教练场技术要求(JT/T434--2000)1范围本标准规定了机动车教练场应该具备的训练场地规模、功能、设施设备、环境、安全等条件。
本标准适用于从事机动车驾驶员培训的教练场,是教练场的设计以及道路运政管理机构对教练场开业审批和年度审验的依据。
2 引用标准下列标准包含的条文,通过在本标准中引用而构成为本标准的条文。
本标准出版时,所示版本均为有效。
所有标准都会被修订,使用本标准的各方应探讨使用下列标准最新版本的可能性。
GB 5768--1999道路交通标志和标线JTJ 001--1997 公路工程技术标准3 定义本标准采用下列定义。
机动车教练场vehicle driving training site机动车教练场是为培训机动车驾驶员提供专用训练场地、配套设施设备和实施训练的场所。
4 场地规模条件场地规模4.1.1 教练场的训练场地建设规模应该根据预定的训练规模确定。
训练平场训练平场总面积根据单车平场训练面积和训练车辆数按下式计算:S1=∑1/4m i n i式中: S1--训练平场总面积,m2;n i--大型、小型训练车辆总数;m i--单车平场训练面积,大型车取值750m2/车,小型车取值400m2/车。
训练道路4.3.1 训练道路应满足容纳训练车辆总数的3/4车辆同时进行道路训练的要求.训练道路单车道总长度根据训练车辆平均间距和训练车辆数按下式计算:L=3/4dn 式中: L--训练道路单车道总长度,m2;d--训练车辆平均间距,取值100m/车;n--训练车辆总数。
4.3.3 训练道路总面积根据训练道路单车道宽度和总长度按下式计算:S2=bL=3/4bdn式中: S2--训练道路总面积,m2;b--单车道宽度,m.停车场4.4.1 停车场应该满足全部训练车辆同时停放的要求.停车场总面积根据单车停占面积和训练车辆总数按下式计算:S j=S1+S2+S3式中:S j--训练场地建筑面积,m2.4.5.2 训练场地总面积为训练场地建筑面积与训练场地利用率之比.S e=S j/η式中: S e--训练场地总面积,m2;η--训练场地利用率,平原地区取值大于60%,丘陵地区取值大于40%。
机动车教练场技术要求(JT/T434--2000)1围本标准规定了机动车教练场应该具备的训练场地规模、功能、设施设备、环境、安全等条件。
本标准适用于从事机动车驾驶员培训的教练场,是教练场的设计以及道路运政管理机构对教练场开业审批和年度审验的依据。
2 引用标准下列标准包含的条文,通过在本标准中引用而构成为本标准的条文。
本标准出版时,所示版本均为有效。
所有标准都会被修订,使用本标准的各方应探讨使用下列标准最新版本的可能性。
GB 5768--1999道路交通标志和标线JTJ 001--1997 公路工程技术标准3 定义本标准采用下列定义。
3.1 机动车教练场vehicle driving training site机动车教练场是为培训机动车驾驶员提供专用训练场地、配套设施设备和实施训练的场所。
4 场地规模条件4.1 场地规模4.1.1 教练场的训练场地建设规模应该根据预定的训练规模确定。
4.1.2教练场的最小训练规模应该达到训练车辆总数不少于50辆.4.2 训练平场4.2.1训练平场应该满足容纳训练车辆总数的1/4车辆同时进行基础训练和场地式样驾驶训练的要求.4.2.2 训练平场总面积根据单车平场训练面积和训练车辆数按下式计算:S1=∑1/4m i n i式中: S1--训练平场总面积,m2;n i--大型、小型训练车辆总数;m i--单车平场训练面积,大型车取值750m2/车,小型车取值400m2/车。
4.3 训练道路4.3.1 训练道路应满足容纳训练车辆总数的3/4车辆同时进行道路训练的要求.4.3.2 训练道路单车道总长度根据训练车辆平均间距和训练车辆数按下式计算:L=3/4dn式中: L--训练道路单车道总长度,m2;d--训练车辆平均间距,取值100m/车;n--训练车辆总数。
4.3.3 训练道路总面积根据训练道路单车道宽度和总长度按下式计算:S2=bL=3/4bdn式中: S2--训练道路总面积,m2;b--单车道宽度,m.4.4 停车场4.4.1 停车场应该满足全部训练车辆同时停放的要求.4.4.2 停车场总面积根据单车停占面积和训练车辆总数按下式计算:S j=S1+S2+S3式中:S j--训练场地建筑面积,m2.4.5.2 训练场地总面积为训练场地建筑面积与训练场地利用率之比.S e=S j/η式中: S e--训练场地总面积,m2;η--训练场地利用率,平原地区取值大于60%,丘陵地区取值大于40%。
【标准】机动车驾驶员培训教练场技术要求(GB/T 30341–2013)中华人民国标准GB/T 30341–2013机动车驾驶员培训教练场技术要求Specifications of vehicle drivers training site中华人民国质量监督检验检疫总局中国标准化管理委员会发布目次前言 (I)1 围 (1)2 规性引用文件 (1)3 术语和定义 (1)4 场地规模 (1)5 场地训练项目设施、设备及道路条件16 办公、教学与服务设施27 安全条件 (3)8 环境条件 (3)附录A(资料性附录)机动车驾驶员培训教练场场地面积计算方法 (4)附录B(规性附录)教练场训练项目设施配置要求 (6)附录C(规性附录)教练场训练项目设施技术要求 (7)前言本标准按照GB/T 1.1-2009给出的规则起草。
本标准由中华人民国交通运输部提出。
本标准由全国道路运输标准化技术委员会(SAC/TC 521)归口。
本标准负责起草单位:交通运输部公路科学研究院。
本标准参加起草单位:省交通运输厅运输管理局、省公路运输管理局、省交通运输厅道路运输管理局、省交通运输厅道路运输局、长安大学。
本标准主要起草人:曾诚、蔡凤田、家欣、莉、窦秋月、殷国祥、王生昌、韦勇、施溢源、顾敏、家齐、学文。
机动车驾驶员培训教练场技术要求1 围本标准规定了机动车驾驶员培训教练场的场地规模,场地训练项目设施、设备及道路条件,办公、教学与服务设施,安全条件,环境条件等基本要求。
本标准适用于从事机动车驾驶员培训的教练场。
2 规性引用文件下列文件对于本文件的应用是必不可少的。
凡是注日期的引用文件,仅注日期的版本适用于本文件。
凡是不注日期的引用文件,其最新版本(包括所有的修改单)适用于本文件。
GB 5768.2 道路交通标志和标线第2部分:道路交通标志GB 5768.3 道路交通标志和标线第3部分:道路交通标线GB 14886 道路交通信号灯设置与安装规GB 50763 无障碍设计规CJJ 152 城市道路交叉口设计规程GA/T 963 交通安全宣传教育设施设置规JGJ 100 汽车库建筑设计规JTG B01 公路工程技术标准3 术语和定义下列术语和定义适用于本文件。
机动车教练场技术要求一、学员驾驶技术要求:1.掌握车辆仪表盘的功能和读数,包括仪表指针的示意、速度表的读数、转速表的读数等。
2.熟练掌握车辆的启动和停车方法,包括插钥匙、踩刹车、推起离合器踏板、点火等步骤。
3.掌握方向盘的正确用法,包括手握方向盘的姿势、按技巧给方向盘施加力度等。
4.掌握踩离合器踏板、挂挡、松离合器踏板的正确顺序和方法,确保平稳换档。
5.熟练掌握刹车的使用技巧,包括踩刹车的力度、踩刹车的时间等,保证能够及时刹车。
6.掌握油门的使用技巧,包括踩油门的力度、油门的用法等,确保平稳加速。
7.了解并掌握泊车、倒车、坡道起步等特殊驾驶技术。
二、驾驶操作技术要求:1.保持良好的驾驶姿势,包括坐姿正直、视线平顺、车厢稳定等。
2.行车过程中,保持稳定的速度,并注意与前车的距离,确保能够安全停车。
3.行车过程中,注意观察交通标志和交通信号灯,根据信号灯的指示行驶。
4.行车过程中,及时观察道路情况,注意观察左右后方的车辆,确保安全。
5.行车过程中,保持安全车距,不紧靠车前,确保有足够的刹车距离。
6.行车过程中,掌握并准确使用转向灯和喇叭,示意自己的驾驶意图。
7.行车过程中,驾驶员要时刻保持警觉状态,防止疲劳驾驶和分神驾驶。
三、安全意识和遵纪守法要求:1.学员要时刻保持安全驾驶意识,遵守交通法规和道路交通信号规定。
2.学员要遵守机动车道行驶规则,不占用非机动车道和人行横道,不逆行、不违规变更车道。
3.学员要及时关注和适应复杂道路交通环境,尽量避免交通堵塞和交通事故。
4.学员要注意观察和避免危险路段或地点,如弯道、斑马线附近等。
5.学员要保持车辆稳定,不急转弯、不急刹车,确保行车平稳安全。
6.学员要遵守机动车停车规定和停车秩序,妥善停放车辆,不妨碍其他车辆通行。
7.学员要尊重并礼让行人和其他车辆,保持良好的交通秩序。
综上所述,机动车教练场的技术要求涉及学员的驾驶技术、驾驶操作技术以及安全意识和遵纪守法要求等方面。
【国家标准】机动车驾驶员培训教练场技术要求(GB/T 30341–2013)中华人民共和国国家标准GB/T 30341–2013机动车驾驶员培训教练场技术要求Specifications of vehicle drivers training site中华人民共和国国家质量监督检验检疫总局中国国家标准化管理委员会发布目次前言 (I)1 范围 (1)2 规范性引用文件 (1)3 术语和定义 (1)4 场地规模 (1)5 场地训练项目设施、设备及道路条件16 办公、教学与服务设施27 安全条件 (3)8 环境条件 (3)附录A(资料性附录)机动车驾驶员培训教练场场地面积计算方法 (4)附录B(规范性附录)教练场训练项目设施配置要求 (6)附录C(规范性附录)教练场训练项目设施技术要求 (7)前言本标准按照GB/T 1.1-2009给出的规则起草。
本标准由中华人民共和国交通运输部提出。
本标准由全国道路运输标准化技术委员会(SAC/TC 521)归口。
本标准负责起草单位:交通运输部公路科学研究院。
本标准参加起草单位:江苏省交通运输厅运输管理局、安徽省公路运输管理局、四川省交通运输厅道路运输管理局、河南省交通运输厅道路运输局、长安大学。
本标准主要起草人:曾诚、蔡凤田、刘家欣、刘莉、窦秋月、殷国祥、王生昌、韦勇、施溢源、顾敏、杨家齐、张学文。
机动车驾驶员培训教练场技术要求1 范围本标准规定了机动车驾驶员培训教练场的场地规模,场地训练项目设施、设备及道路条件,办公、教学与服务设施,安全条件,环境条件等基本要求。
本标准适用于从事机动车驾驶员培训的教练场。
2 规范性引用文件下列文件对于本文件的应用是必不可少的。
凡是注日期的引用文件,仅注日期的版本适用于本文件。
凡是不注日期的引用文件,其最新版本(包括所有的修改单)适用于本文件。
GB 5768.2 道路交通标志和标线第2部分:道路交通标志GB 5768.3 道路交通标志和标线第3部分:道路交通标线GB 14886 道路交通信号灯设置与安装规范GB 50763 无障碍设计规范CJJ 152 城市道路交叉口设计规程GA/T 963 交通安全宣传教育设施设置规范JGJ 100 汽车库建筑设计规范JTG B01 公路工程技术标准3 术语和定义下列术语和定义适用于本文件。
中华人民共和国交通行业标准机动车教练场技术要求JT/T434-2000Specifications of vehicle driving training site1范围本标准规定了机动车教练场应该具备的训练场地规模、功能、设施设备、环境、安全等条件。
本标准适用于从事机动车驾驶员培训的教练场,是教练场的设计以及道路运政管理机构对教练场开业审批和年度审验的依据。
2 引用标准下列标准包含的条文,通过在本标准中引用而构成为本标准的条文。
本标准出版时,所示版本均为有效。
所有标准都会被修订,使用本标准的各方应探讨使用下列标准最新版本的可能性。
GB 5768--1999道路交通标志和标线JTJ 001--1997 公路工程技术标准3 定义本标准采用下列定义。
3.1 机动车教练场vehicle driving training site机动车教练场是为培训机动车驾驶员提供专用训练场地、配套设施设备和实施训练的场所。
4 场地规模条件4.1 场地规模4.1.1 教练场的训练场地建设规模应该根据预定的训练规模确定。
4.1.2教练场的最小训练规模应该达到训练车辆总数不少于50辆。
4.2 训练平场4.2.1训练平场应该满足容纳训练车辆总数的1/4车辆同时进行基础训练和场地式样驾驶训练的要求。
4.2.2 训练平场总面积根据单车平场训练面积和训练车辆数按下式计算:S1=∑1/4m i n i式中:S1--训练平场总面积,m2;n i--大型、小型训练车辆总数;m i--单车平场训练面积,大型车取值750m2/车,小型车取值400m2/车。
4.3 训练道路4.3.1 训练道路应满足容纳训练车辆总数的3/4车辆同时进行道路训练的要求。
4.3.2 训练道路单车道总长度根据训练车辆平均间距和训练车辆数按下式计算:L=3/4dn式中: L--训练道路单车道总长度,m2;d--训练车辆平均间距,取值100m/车;n--训练车辆总数。
4.3.3 训练道路总面积根据训练道路单车道宽度和总长度按下式计算:S2=bL=3/4bdn式中: S2--训练道路总面积,m2;b--单车道宽度,m。
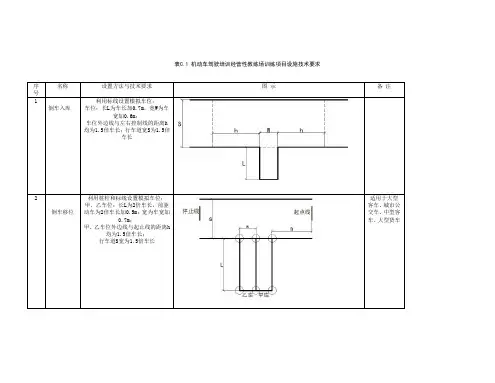
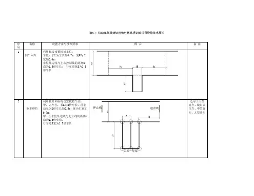
表C.1 机动车驾驶培训经营性教练场训练项目设施技术要求序号名称设置方法与技术要求图示备注1倒车入库利用标线设置模拟车位;车位:长L为车长加0.7m,宽W为车宽加0.6m;车位外边线与左右控制线的距离h 均为1.5倍车长;行车道宽S为1.5倍车长2倒车移位利用桩杆和标线设置模拟车位;甲、乙车位:长L为2倍车长,前驱动车为2倍车长加0.5m;宽为车宽加0.7m;甲、乙车位外边线与起止线的距离h均为1.5倍车长;行车道S宽为1.5倍车长适用于大型客车、城市公交车、中型客车、大型货车2 倒车移位利用桩杆和标线设置模拟车位;甲、乙车位:长L为整车长加1m,宽W为1.5倍整车宽;甲、乙车位之间的距离h为2倍整车长;行车道宽S为3倍车宽适用于牵引车3 曲线穿桩利用桩杆和标线设置桩位;1~5桩杆位于同一直线上;桩杆纵向间距L为车长加0.4m~0.8m;桩与边线的距离S为车宽加0.3m;起终点线距最近一根桩杆的距离h均为2倍~3倍车长适用于三轮汽车、普通三轮摩托车、普通二轮摩托车和轻便摩托车4 侧方停车位利用标线在道路右侧设置模拟车位;车位长L:大型客车为1.5倍车长减1m,小型汽车、小型自动挡汽车、残疾人专用小型自动挡载客汽车、低速载货汽车为1.5倍车长加1m,其它车辆为1.5倍车长;车位宽W为车宽加0.8m;行车道宽S为1.5倍车宽加0.8m5 斜位停车位利用标线设置斜位停车位,每4个~6个车位为一组;车位:长L为1.5倍车长,宽W为车宽加0.6m;车位与道路的倾角β为45°~60°;行车道宽S不小于1.5倍车长6 停靠站台利用标线在道路右侧设置梯形停车带;梯形:顶边长L1为20m,斜边投影长L2为10m,高L3为3.5m;沿道路边缘线施划停车线模拟隔离带A,隔离带长L4为10m、宽L5为0.5m;行车道宽S不小于7m适用于大型客车、城市公交车、中型客车7 停靠货台在道路右侧设置模拟货台;货台:长度L为3m,宽度W为0.5m,高度为1.2m~1.3m,应与货车车厢底板持平;货台外边线与左右线的距离H均为1.5倍车长;行车道宽S为1.5倍车长适用于牵引车、大型货车8 坡道定点停车和起步起点标线为单停车线实线;定点停车停车点位处设停车让行标志、标线;停车标线内侧设停车控制线,设置位置应在坡底向上1.5倍车长以上、坡顶缓坡以下;坡道坡度i为10%;坡道长L1:大型客车、牵引车、城市公交车、中型客车、大型货车不小于30m,小型汽车、小型自动挡汽车、残疾人专用小型自动挡载客汽车、低速载货汽车不小于20m,普通三轮摩托车、普通二轮摩托车、轻便摩托车不小于8m;竖曲线半径R不小于30m;停车点两侧施划停车控制线的距离L2为0.65m;行车道宽S不小于3.5m9 曲线行驶设置连续圆弧曲线路;外圆半径R:大型客车、牵引车、城市公交车、大型货车为12m,中型客车、低速载货汽车为9.5m,其它车辆为7.5m; R弧长L为八分之三圆周长;行车道宽S:大型客车、城市公交车、大型货车为4m,牵引车为7m,中型客车、低速载货汽车为3.7m,其它车辆为3.5m10 直角转弯直角弯路长L不小于1.5倍车长;行车道宽S:小型汽车、小型自动挡汽车、残疾人专用小型自动挡载客汽车、低速载货汽车为轴距加1m,牵引车为前轴距加4m,其它车辆为轴距加0.5m11 通过单边桥在平直道路上顺车道设置相互错位的单边桥;桥:桥面长度L1为1.5倍车辆轴距,桥高L2为0.07m~0.12m,桥宽L3为0.2m;左右桥横向间距L4为车辆轮距加1m;左右桥纵向间距L5:牵引车为2倍轴距,三轮汽车为3倍轴距,其它车辆为2.5倍轴距;桥面斜坡长L6为0.5m~1.7m; 6L 桥面直角适度倒角12 通过限宽门在平直道路上设置若干等距、相互错位的桩杆或悬杆模拟限宽门,每3个门为一组;限宽门宽W为车宽加0.7m;相邻两限宽门间距L为3倍车长,且横向交错一个门宽,相间两门应位于同一轴线上;行车道宽S不小于7m13 通过连续障碍路在平直道路上设置若干等距、相互错位的圆饼模拟障碍物;圆饼数量:牵引车设置三个圆饼,其它车辆设置六个圆饼;圆饼:直径d为0.7m,高h为0.1m;圆饼间距:大型客车、城市公交车、大型货车为2倍轴距(车辆最前轮轴至最后轮轴的距离),牵引车为1.5倍轴距(牵引车前轴至挂车最后轴的距离),其它车辆为2.5倍车辆轴距;B、C、D、E圆饼中心点偏离道路中心线距离L2为1m;行车道宽S不小于7m14 起伏路行驶在平直道路上设置横向设置圆弧形凸埂和段沟;凹凸路引道及间距长度L1大于车辆的1.5倍轴距;凸埂高和段沟深L2为0.06m~0.12m;凸埂及段沟长度L3为车轮直径加0.6m;行车道宽S不小于3.5m设置路面不平警告标志15 模拟连续急弯山区路设置连续2个以上方向不同的急弯,可根据场地情况设置为S形或U形;外圆半径R为40m~60m;弯道宽W1为9m~10m;直线行车道宽W2为7m;弯道间距L1为0m~30m;弯道外缘弧长⌒L不小于1/3圆周;引道长S不小于50m;纵坡为3%~5%,弯道超高为2%;(为平衡汽车在弯道上行驶所产生的离心力,所设置的弯道横向坡度,而形成的高差,内低外高)设置前方连续弯路标志、限速标志等,道路直线段设置中心黄色单虚线,弯道段设置中心黄色单实线16 模拟高速公路沿场地外沿设置环道或者利用场地主干路模拟高速公路;模拟高速公路直线路段长不小于400m,圆曲线半径不小于100 m;同向不少于两车道,车道宽度为3.75m;有条件的可设置应急停车带,宽度为3.5m;设置专用入口、出口匝道及起、落杆设施;设置入口指示标志,分道限速标志、地面限速标识,出口预告标志、出口指示标志、出口匝道限速标志等标志和标线,有条件的可设置可变信息牌17 窄路掉头窄路掉头路段直线长:牵引车不小于30m,其它车辆不小于20m;窄路掉头行车道宽:牵引车为14m,其它车辆为9m;窄路掉头路段车头驶抵方向侧向净空取值不小于2m,车尾倒车方向侧向净空取值不小于4m18 模拟隧道在道路的上部空间设置遮阳设施模拟隧道;隧道设置为直线时,长度不小于100m;设置为弯道时,长度不小于60m,圆曲线半径不小于50m;隧道净空高度h为4.2m,车道宽度不小于3.5 m,左右侧侧向宽度L均为0.5m;设置为弯道时,弯道超高为2%,行车道宽度S应增加1.5m;隧道内无照明,其最暗处白天照度不高于50lx(勒克司);设置隧道警告标志、隧道开车灯标志、限速标志、禁止超车标志等19 模拟雨(雾)天湿滑路在道路的上部空间设置喷淋设施模拟雨(雾)天及湿滑路面;模拟湿滑路面附着系数不大于0.3,车道宽不小于4m,左右侧侧向宽度均为1m,模拟雨天路段长不小于30m,模拟雾天路段长不小于30m;湿滑路面外侧设置对车辆无损的安全防护设施;设置易滑警告标志、限速标志等20 模拟城市街道在教练场内设置人行横道、交叉路口、注意儿童、铁路道口、公交站点等标志和标线,设置模拟公交车站内行人突然横穿道路的设施、设备注:车宽是指不含后视镜的车身宽度。
【国家标准】机动车驾驶员培训教练场技术要求(GB/T30341–2013)中华人民共和国国家标准GB/T 30341–2013机动车驾驶员培训教练场技术要求Specifications of vehicle drivers training site中华人民共和国国家质量监督检验检疫总局中国国家标准化管理委员会发布目次前言 (I)1 范围 (1)2 规范性引用文件 (1)3 术语和定义 (1)4 场地规模 (1)5 场地训练项目设施、设备及道路条件16 办公、教学与服务设施27 安全条件 (3)8 环境条件 (3)附录A(资料性附录)机动车驾驶员培训教练场场地面积计算方法 (4)附录B(规范性附录)教练场训练项目设施配置要求 (6)附录C(规范性附录)教练场训练项目设施技术要求 (7)前言本标准按照GB/T 1.1-2009给出的规则起草。
本标准由中华人民共和国交通运输部提出。
本标准由全国道路运输标准化技术委员会(SAC/TC 521)归口。
本标准负责起草单位:交通运输部公路科学研究院。
本标准参加起草单位:江苏省交通运输厅运输管理局、安徽省公路运输管理局、四川省交通运输厅道路运输管理局、河南省交通运输厅道路运输局、长安大学。
本标准主要起草人:曾诚、蔡凤田、刘家欣、刘莉、窦秋月、殷国祥、王生昌、韦勇、施溢源、顾敏、杨家齐、张学文。
机动车驾驶员培训教练场技术要求1 范围本标准规定了机动车驾驶员培训教练场的场地规模,场地训练项目设施、设备及道路条件,办公、教学与服务设施,安全条件,环境条件等基本要求。
本标准适用于从事机动车驾驶员培训的教练场。
2 规范性引用文件下列文件对于本文件的应用是必不可少的。
凡是注日期的引用文件,仅注日期的版本适用于本文件。
凡是不注日期的引用文件,其最新版本(包括所有的修改单)适用于本文件。
GB 5768.2 道路交通标志和标线第2部分:道路交通标志GB 5768.3 道路交通标志和标线第3部分:道路交通标线GB 14886 道路交通信号灯设置与安装规范GB 50763 无障碍设计规范CJJ 152 城市道路交叉口设计规程GA/T 963 交通安全宣传教育设施设置规范JGJ 100 汽车库建筑设计规范JTG B01 公路工程技术标准3 术语和定义下列术语和定义适用于本文件。
表C.1 机动车驾驶培训经营性教练场训练项目设施技术要求为车倍倍车长,前驱宽为车宽加h 客车、交车、车、,宽倍整车汽车、轮摩托车、倍车长减,小型汽车、小型自动挡汽车、残疾人专用小型自动挡载客汽车、其个~为车宽利用标线在道路右侧设置梯形停车,斜边投影长沿道路边缘线施划停车线模拟隔离客车、交车、,车、,应与货车车厢定点停车停车点位处设停车让行标停车标线内侧设停车控制线,设置倍车长以上、:大型客车、牵引车、城市公交车、中型客车、大型货车不,小型汽车、小型自动挡汽车、残疾人专用小型自动挡载客汽,普通三轮摩托车、普通二轮摩托车、轻停车点两侧施划停车控制线的距离:大型客车、牵引车、城,中型客,其它车城市公交车、,中型,其它:小型汽车、小型自动挡汽车、残疾人专用小型自动挡载客,,其它车辆为在平直道路上顺车道设置相互错位倍车辆轴距,为倍轴倍轴距,其它车辆6L在平直道路上设置若干等距、相互3倍车长,且横向交错一个门宽,相间两门应位不小于在平直道路上设置若干等距、相互圆饼数量:牵引车设置三个圆饼,;圆饼间距:大型客车、城市公交车、(车辆最前轮轴1.5倍轴距(牵引车前轴至挂车最后轴倍车辆轴圆饼中心点偏离道路中在平直道路上设置横向设置圆弧形大于车辆个以上方向不同的急弯,形;圆周;设置前方连续弯路标志、限速标志等,道路直线段设置中心黄色单虚沿场地外沿设置环道或者利用场地在道路的上部空间设置遮阳设施模;设置为弯道时,长度不小于车道宽度不;设置为弯道时,弯道超;隧道内无照明,其最暗处白天照度设置隧道警告标志、隧道开车灯标在道路的上部空间设置喷淋设施模精品文档精品文档。
【国家标准】机动车驾驶员培训教练场技术要求(GB/T 30341–2013)中华人民国国家标准GB/T 30341–2013机动车驾驶员培训教练场技术要求Specifications of vehicle drivers training site中华人民国国家质量监督检验检疫总局中国国家标准化管理委员会发布目次前言 (I)1 围 (1)2 规性引用文件 (1)3 术语和定义 (1)4 场地规模 (1)5 场地训练项目设施、设备及道路条件16 办公、教学与服务设施27 安全条件 (3)8 环境条件 (3)附录A(资料性附录)机动车驾驶员培训教练场场地面积计算方法 (4)附录B(规性附录)教练场训练项目设施配置要求 (6)附录C(规性附录)教练场训练项目设施技术要求 (7)前言本标准按照GB/T 1.1-2009给出的规则起草。
本标准由中华人民国交通运输部提出。
本标准由全国道路运输标准化技术委员会(SAC/TC 521)归口。
本标准负责起草单位:交通运输部公路科学研究院。
本标准参加起草单位:省交通运输厅运输管理局、省公路运输管理局、省交通运输厅道路运输管理局、省交通运输厅道路运输局、长安大学。
本标准主要起草人:曾诚、蔡凤田、家欣、莉、窦秋月、殷国祥、王生昌、韦勇、施溢源、顾敏、家齐、学文。
机动车驾驶员培训教练场技术要求1 围本标准规定了机动车驾驶员培训教练场的场地规模,场地训练项目设施、设备及道路条件,办公、教学与服务设施,安全条件,环境条件等基本要求。
本标准适用于从事机动车驾驶员培训的教练场。
2 规性引用文件下列文件对于本文件的应用是必不可少的。
凡是注日期的引用文件,仅注日期的版本适用于本文件。
凡是不注日期的引用文件,其最新版本(包括所有的修改单)适用于本文件。
GB 5768.2 道路交通标志和标线第2部分:道路交通标志GB 5768.3 道路交通标志和标线第3部分:道路交通标线GB 14886 道路交通信号灯设置与安装规GB 50763 无障碍设计规CJJ 152 城市道路交叉口设计规程GA/T 963 交通安全宣传教育设施设置规JGJ 100 汽车库建筑设计规JTG B01 公路工程技术标准3 术语和定义下列术语和定义适用于本文件。
机动车教练场技术要求一、起步和停车技术要求1.起步:要求学员掌握离合器的离合点,合理使用油门和刹车,控制车辆缓慢起步;起步时要保持车辆稳定,避免熄火或者急冲。
2.停车:要求学员掌握车辆的停车位置和停车距离,能够准确停放在指定位置,并保持车辆稳定。
二、直线行驶技术要求1.稳定行驶:要求学员掌握方向盘的正确使用方法,保持车辆在直线行驶时的稳定性;注意车辆与道路中央线的对齐,避免偏离。
2.转向:要求学员掌握车辆的转向技术,在直线行驶的过程中,能够准确地进行左右转向,并完成弯道行驶。
三、曲线行驶技术要求1.稳定行驶:要求学员在曲线行驶时,保持车辆的稳定性;正确控制车辆的速度,提前减速;同时保持车辆与道路的正确位置,避免偏离或者碰撞。
2.转向:要求学员在曲线行驶中完成车辆的转向,转弯时要注意方向盘的正确操作,保持车辆的稳定性和平衡性。
四、综合难度场地技术要求此项技术要求包括起步、停车、直线行驶和曲线行驶等综合要素,学员需要在复杂的场地环境中进行驾驶操作,综合运用各项技术要求,确保驾驶安全和稳定性。
五、变线技术要求要求学员能够准确判断道路的宽度和交通情况,根据需要进行变线行驶,保持车辆的稳定性和平衡性。
六、加减挡技术要求要求学员能够准确而平稳地进行换挡操作,合理使用离合器、油门和刹车,并保持车辆的稳定性和平衡性。
七、倒车和坡道技术要求1.倒车:要求学员能够准确判断车辆的后方情况,准确后视镜的使用,进行安全的倒车操作;同时注意观察车辆与周围环境的距离,防止碰撞。
2.坡道:要求学员掌握坡道定点停车、起步和行驶技巧;在坡道起步时要注意离合器的运用,控制车辆缓慢前进,防止溜车、熄火或者急冲。
总结起来,机动车教练场技术要求包括起步和停车、直线行驶、曲线行驶、综合难度场地、变线、加减挡、倒车和坡道等多个方面的内容。
学员需要熟练掌握这些技术要求,才能安全地驾驶车辆。
驾驶教练在训练学员时,应根据不同要求采取相应的教学方法和训练手段,帮助学员提高驾驶技能。
机动车教练场技术要求(JT/T434--2000)1范围本标准规定了机动车教练场应该具备的训练场地规模、功能、设施设备、环境、安全等条件。
本标准适用于从事机动车驾驶员培训的教练场,是教练场的设计以及道路运政管理机构对教练场开业审批和年度审验的依据。
2 引用标准下列标准包含的条文,通过在本标准中引用而构成为本标准的条文。
本标准出版时,所示版本均为有效。
所有标准都会被修订,使用本标准的各方应探讨使用下列标准最新版本的可能性。
GB 5768--1999道路交通标志和标线JTJ 001--1997 公路工程技术标准3 定义本标准采用下列定义。
3.1 机动车教练场vehicle driving training site机动车教练场是为培训机动车驾驶员提供专用训练场地、配套设施设备和实施训练的场所。
4 场地规模条件4.1 场地规模4.1.1 教练场的训练场地建设规模应该根据预定的训练规模确定。
4.1.2教练场的最小训练规模应该达到训练车辆总数不少于50辆.4.2 训练平场4.2.1训练平场应该满足容纳训练车辆总数的1/4车辆同时进行基础训练和场地式样驾驶训练的要求.4.2.2 训练平场总面积根据单车平场训练面积和训练车辆数按下式计算:S1=∑1/4m i n i式中: S1--训练平场总面积,m2;n i--大型、小型训练车辆总数;m i--单车平场训练面积,大型车取值750m2/车,小型车取值400m2/车。
4.3 训练道路4.3.1 训练道路应满足容纳训练车辆总数的3/4车辆同时进行道路训练的要求.4.3.2 训练道路单车道总长度根据训练车辆平均间距和训练车辆数按下式计算: L=3/4dn式中: L--训练道路单车道总长度,m2;d--训练车辆平均间距,取值100m/车;n--训练车辆总数。
4.3.3 训练道路总面积根据训练道路单车道宽度和总长度按下式计算:S2=bL=3/4bdn式中: S2--训练道路总面积,m2;b--单车道宽度,m.4.4 停车场4.4.1 停车场应该满足全部训练车辆同时停放的要求.4.4.2 停车场总面积根据单车停占面积和训练车辆总数按下式计算:S j=S1+S2+S3式中:S j--训练场地建筑面积,m2.4.5.2 训练场地总面积为训练场地建筑面积与训练场地利用率之比.S e=S j/η式中: S e--训练场地总面积,m2;η--训练场地利用率,平原地区取值大于60%,丘陵地区取值大于40%。
机动车教练场技术要求
首先是地面要求。
机动车教练场的地面要求平整、硬实、无积水,尽
量避免有斜坡、横轨、凹洼、塌陷等地面缺陷,确保学员在教练场内进行
各项训练动作时,车辆能够稳定行驶,不受地面条件的影响。
其次是标线标识要求。
机动车教练场上必须按照相应的标准规范进行
标线标识,各项标线需清晰、精确、准确的绘制,包括车辆行驶路线标线、停车位标线、倒车入库标线、练习点标线等,以便于学员理解和掌握各项
训练内容,提高训练效果。
再次是设施要求。
机动车教练场内需要配备各项必要的教学设施,包
括训练车辆、教练座位、学员座位、车辆操作仪表、车辆手册等。
此外,
还需要配备相应的辅助设备,如摄像头、喇叭等,以方便教练员对学员进
行指导和点评,提高教学效果。
另外是环境要求。
机动车教练场周边的交通环境要尽量安全、平稳,
避免有大型车辆、行人、自行车等频繁通行,以免干扰学员的驾驶操作,
增加安全风险。
同时,要保持教练场周边的整洁和景观的美观,营造一个
良好的学习环境。
最后是其他要求。
机动车教练场的周边应设有便于学员和教练员停放
车辆的停车场,以便于学员和教练员的出入方便。
此外,教练场应有成熟
的消防设施和安全管理制度,确保学员和教练员的人身安全。
综上所述,机动车教练场的技术要求是非常重要的,它直接关系到学
员的驾驶技能的培养和提高。
只有按照规范和标准建设和管理机动车教练场,才能有效保障学员的学习效果和人身安全。
教练场设置说明根据《机动车驾驶员培训机构资格条件》和《机动车驾驶员培训教练场技术要求》,为切实做好我省驾校场地改造及新增驾校建设,经请示部运输司,现对有关教练场技术要求说明如下。
一、教练场地总面积包括:场内训练项目设施总面积、场内训练道路总面积、停车场总面积之和与教练场地利用率之比值。
不包括考试场地(或训、考一体场地)、办公场所及其它服务设施的占地面积。
二、办公场所应有足够的办公用房、前厅或服务台。
办公用房,每人使用面积≥6 m2;前厅或服务台可采用大开间,提高办公效率,每人使用面积≥4 m2,大厅总面积≥50 m2。
三、三级机动车驾驶员培训机构规模要求,教练场总面积>10000平方米,单车道总长>1000米,小型教练车总数不少于20台,每增加1台小型车辆b,应增加400 m2。
(二级、一级不另说明)。
(一)教练场训练项目设施数量(二)模拟城市街道1、模拟城市街道应设置:十字形、T字形、环形及模拟道路与铁路交叉口等道路交叉口至少各一个,人行横道、注意儿童、公交站点等标志、标线,设置模拟公交车站内行人突然横穿道路的设施、设备。
2、十字形交叉路口训练道路设置双向单车道,行车道宽度≥6.5米。
3、附录C中20模拟城市街道中:在教练场内设置人行横道、交叉路口、注意儿童、铁道路口、公交站点等标志、标线。
均按照国家标准《道路交通标志和标线》(GB5768-2009)中GB5768.2和GB5768.3规定设置标志和画标线,可不安装设施、设备(如与铁道交叉路口)。
4、附录C中20模拟城市街道中设置模拟公交车站内行人突然横穿道路的设施、设备。
可以用语音、灯光或人体模型等进行模拟。
5、环形交叉口环形交叉口:具有单向环形车道,中心岛最小半径>5 m,道路为双车道,设置5公里限速牌;其他设置技术要求应符合CJJ 152。
6、指引标志牌具体要求如下:(1)指引标志设置方位,进入项目前10m内右侧设置指引标志;(2)指引标志颜色,蓝底白字;(3)指引标志汉字高度一般为25cm~30cm,汉字字宽和字高相等,汉字的间隔、行距等符合要求;(4)指引标志应垂直于道路行车方向,并且板面宜倾斜0°~10°。
机动车教练场技术要求
Specifications of Vehicle Driving Training Site中华人民共和国交通行业标准 JT/T 434—2000 2000-12-25发布 2001-04-01实施
目次
前言
1 范围 (1)
2 引用标准 (1)
3 定义 (1)
4 场地规模条件 (1)
5 场地设施、设备条件 (2)
6 办公、教学和生活设施 (2)
7 维护服务设施 (5)
8 安全条件 (6)
9 环境条件 (6)
前言
为规范机动车教练场(以下简称教练场)的建设,提高教练场的投资质效益、建设质量、使用效果、加强教练场的管理,特制定本标准。
本标准由中华人民共和国交通部公路司提出并归口。
本标准主要起草单位:交通部公路科学研究所、中华人民共和国解放军汽车管理学院。
本标准主要起草人:贺亚平、蔡凤田、寇学智。
1 范围
本标准规定了机动车教练场应该具备的训练场地规模、功能、设施设备、环境、安全等条件。
本标准适用于从事机动车驾驶员培训的教练场,是教练场的设计以及道路运政管理机构对教练场开业审批和年度审验的依据。
2 引用标准
下列标准包含的条文,通过在本标准中引用而构成为本标准的条文。
本标准出版时,所示版本均为有效。
所有标准都会被修订,使用本标准的各方应探讨使用下列标准最新版本的可能性。
GB 5768—1999 道路交通标志和标线
JTJ001—1997公路工程技术标准
3 定义
本标准采用下列定义。
3.1机动车教练场vehicle driving training site
机动车教练场是为培训机动车驾驶员提供专用训练场地、配套设施设备和实施训练的场所。
4 场地规模条件
4.1场地规模
4.1.1教练场的训练场地建设规模应该根据预定的训练规模确定。
4.1.2教练场的最小训练规模应该达到训练车辆总数不少于50辆。
4.2训练平场
4.2.1训练平场应该满足容纳训练车辆总数的1/4车辆同时进行基础训练和场地式样驾驶训练
的要求。
4.2.2训练平场总面积根据单车平场训练面积和训练车辆数按下式计算:
S——训练平场总面积,m;1 n——大型、小型训练车辆总数;i22 m /车。
400m 2式中:
/车,小型车取值750m——单车平场训练面积,大型车取值i
4.3训练道路
4.3.1训练道路应该满足容纳训练车辆总数的3/4车辆同时进行道路训练的要求。
4.3.2训练道路单车道总长度根据训练车辆平均间距和训练车辆数按下式计算
式中:L——训练道路单车道总长度,m;
d——训练车辆平均间距,取值100m/车;
n——训练车辆总数。
4.3.3训练道路总面积根据训练道路单车道宽度和总长度按下式计算:
S2——训练道路总面积,m;
2式中:
b——单车道宽度,m 。
4.4停车场
4.4.1停车场应该满足全部训练车辆同时停放的要求。
4.4.2停车场总面积根据单车停占面积和训练车辆总数按下式计算:
S=cn
S——停车场总面积,m;32 c——单车停占面积,取值不少于25m/车。
32式中:
4.5训练场地
4.5.1训练场地的建筑面积为训练平场总面积、训练道路总面积和停车场总面积之和。
S=S十S十S 3j212式中:S——训练场地建筑面积,m。
j4.5.2训练场地总面积为训练场地建筑面积与训练场地利用率之比。
S=S/ηjc2式中:S——训练场地总面积,m;cη——训练场地利用率,平原地区取值大于60%,丘陵地区取值大于40%。
4.5.3训练场地总面积视占地和训练实际情况允许浮动5%。
10%。
5 场地设施、设备条件
5.1训练平场
5.1.1训练平场要求路面压实、平整,其中沥青或水泥铺设面积不少于60%。
5.1.2训练平场根据训练和场地情况可以分块设置。
5.2训练道路
5.2.1训练道路按JTJ001的规定建设。
5.2.2训练科目循环路段的路基和路面按四级公路、单车道建设,行车道宽度不小于3.5m。
5.2.3训练道路循环路线网的路基和路面按三级公路、双车道建设,行车道宽度不小于 6.0m。
5.2.4训练道路应该充分利用地形,形成多种复杂的路型、路况。
5.2.5训练道路应该形成各种训练道路联通的循环路线网,增加交叉点和汇合点。
5.2.6训练场地应该依照GB 5768的要求,根据实际情况设置道路交通标志、标线和信号。
5.3停车场
5.3.1停车场要求压实、平整,或铺设沥青、水泥。
5.3.2停车场根据训练和场地情况可以分块设置。
5.3.3教练场应该为每一租用场地单位提供一块独立的停车场。
5.3.4停车场应该尽量靠近办公区和汽车维修车间。
5.4 场地设备
场地包括以下主要设备
a) 交通标准牌按道路情况设置
b) 交通信号灯至少两套
c) 科目设置牌按需配备
d) 桩杆、桩头按需配备
按需配备路障栏、路障堆 e)
f) 画线滚筒按需配备
5.5 场地训练科目
教练场应设置下列训练科目,见表1。
6 办公、教学和生活设施
6.1 教练场应该按照开办驾校的有关规定配有相应的办公、教学和生活用房。
6.2 教练场应该为租用者提供相应的食堂、寄宿生宿舍、学员休息室等设施。
7 维护服务设施
教练场应该配备与其训练规模相适应的汽车维修车间、加油站(或加油车)、车辆外部清洗等设备。
8 安全条件
8.1 教练场应该有围墙或利用天然屏障封闭,除有专人看守的通行口外,车辆、行人与外界不能通行。
8.2 训练区与公务、生活区之间应该有分隔设施,除有专人看守的通行口外,车辆不能通行。
8.3 教练场应该配备消防设施、设备。
8.4 教练场应该配备紧急救护药品和设备。
9 环境条件
在教学区、生活区、训练道路两侧及场区空地中应该进行植树绿化。
表1 练场设置的训练科目
序名设置方法与技术要数
1~桩杆位于同一直线上桩杆纵向视训曲 a=倍长,车道b车情况1
穿 +(0.6~0.8)m
倒两库a=倍车长;b车+0.6m2
移回车场c=1.倍车
限定在直行路段设加档区长a=(50~60)m;每50辆3 距离减档区长b=(20~30)m,画出起始、车设一换档减档和终止线,路边设标志杆个
外圆径R=(1.8~2)倍车长;路宽c=车“8”字4 宽+1m;两内圆距L=路宽+0.2m;入口长形路 a=车长、宽b=3倍车宽
直角路上设连续直角弯路,路宽b=轴距 5
弯路 +0.8m;路段长a≥2倍车长
蛇形路上设连续圆弧弯路,路宽b=4m;内 6
路圆弧半径R=9m;进出口长=车长
序号名称设置方法与技术要求图示数量
道路右侧设停车带,长a=20m、b=10m;
就位宽c=3.5m;隔离带长d=10m、e=0.5m,7 停车其外侧与道路边缘在一条直线上,带内设停车线和标杆
顺行道路右侧设停车位,长a=1.5倍车长; 8 停车宽b=车宽+0.6m
道路右侧设停车位,长a=1.5倍车长;至少设9 °°一组4~6每~60=45β斜角;+0.6m车宽b=宽
个车位为一
双凸埂平行顺车道设置,中心L5双车设b10
轮轮距,凸埂a=倍轴距;胎+0.1;=0.2;斜坡=0.5m
右右单边桥设在距单凸埂顺车道设置边处,左单边桥设在路右侧边0.811
左 2.5处,其它同双边道路右侧边边在道路上设横向圆弧凸埂埂长为车单c+1顶12
h=3/车轮半径底轮半双在道路上设两根平行凸埂中心距为13
0.6,其余要求同单凸在道路上设横向圆弧形段沟长为车横14
车轮半径;上口+1;b=3/ 轮半沿道路纵向设三个圆形凸
最小轮内侧骑h=0.08m半R=1/15
横向间障胎纵间a=倍轴=R
至少两侧坡度分别为训练最大爬坡度每超车轴坡7060%坡顶直16 10=7.5m坡道上标出倍车1.坡车增档区和停车一
每种利用道路交叉形成十字形字形交式至设置交通标志和17 岔路口和环形路路一通信视情8m路200m路宽单双高7.5m218 设专用进出匝道路标标牌齐互式 19 体叉桥。