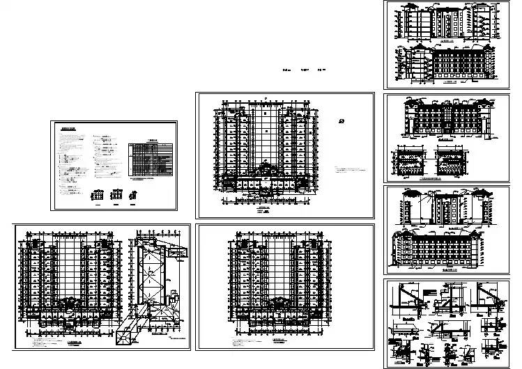
暗红色外墙砖(竖贴)1125150015005550C41150150015007504900立面图立面图6000291006000291006000480002%60006000510060002%8.10屋面检修孔作法详西南J212-11:100600010.20220060006000屋顶平面图2%2%500600060002%1520.450.0010.208.103060240240180033001000500310012004504800500500105021001300300~900不锈钢架雨棚(由二装定)2。 所有需预留的沟、管、线、孔洞及需预埋的预埋件等应按各专业图纸准确预埋,避免事4。 凡施工质量及其它未尽事宜均按现行施工验收规范办理。3。 本工程所选用的产品必须具有国家许可证并经建设单位及设计人员认可后方可订货使用。由于甲方未提供地形图及道路的高程,建筑物室内标高的确定由现场决定。4。外墙面 贴外墙面砖,详见立面标注,作法见西南J516-59-5407。3。内墙面 均作水泥混合砂浆面,刷白色乳胶漆,作法见西南J515-5-N05。充墙间的联接构造见97G329(一)构造柱位置、作法见结构设计说明。 框架填充墙为200厚空心砖墙,墙体及砌筑材料要求详见结构设计说明。框架与填一。 受甲方委托,本院对xxxxx学院新校舍 食堂、多功能厅进行施工图设计。1。门窗 均为塑钢门窗,玻璃为5mm浅绿色玻璃。6。屋面 屋面为SBS改性沥青防水屋面,上作架空隔热层,架空隔热层作法见西南二。 本工程结构为二层框架结构,按七度地震烈度设防。建筑面积为2526平方米。1。 楼地面 厨房、蒸煮间地面为棕色地面砖,作法见西南J312-17-3180b2。踢脚板 墙裙 厨房、蒸煮间贴1.8米高的彩色印花瓷砖墙裙,作法见西南J515-9-Q07.5。顶棚 均作水泥混合砂浆顶棚,面刷白色乳胶漆,作法见