医疗针筒模具设计说明书
- 格式:doc
- 大小:384.00 KB
- 文档页数:22
注射模具模毕业设计说明书前言模具是塑料成型加工的一种重要的工艺装备,同时又是原料和设备的“效益放大器”,模具生产的最终产品的价值,往往是模具自身价值的几十倍、上百倍。
因此,模具工业已成为国民经济的基础工业,被称为“工业之母”,模具生产技术的高低,已成为衡量一个国家产品制造技术的重要标志。
因为模具在很大程度上决定着产品的质量、效益和新产品的开发能力。
随着我国加入WTO,我国模具工业的发展将面临新的机遇和挑战。
我国的模具工业的发展,日益受到人们的重视和关注。
“模具是工业生产的基础工艺装备”也已经取得了共识。
注塑成型作为一种重要的成型加工方法,在家电行业、汽车工业、机械工业等都有广泛的应用,且生产的制件具有精度高、复杂度高、一致性高、生产效率高和消耗低的特点,有很大的市场需求和良好的发展前景。
随着国民经济总量和工业产品技术的不断发展,各行各业对模具的需求量越来越大,技术要求也越来越高。
虽然模具种类繁多,但其发展重点应该是既能满足大量需要,又有较高技术含量,特别是目前国内尚不能自给,需大量进口的模具和能代表发展方向的大型、精密、复杂、长寿命模具。
模具标准件的种类、数量、水平、生产集中度等对整个模具行业的发展有重大影响。
因此,一些重要的模具标准件也必须重点发展,而且其发展速度应快于模具的发展速度,这样才能不断提高我国模具标准化水平,从而提高模具质量,缩短模具生产周期,降低成本。
由于我国的模具产品在国际市场上占有较大的价格优势,因此对于出口前景好的模具产品也应作为重点来发展。
根据上述需要量大、技术含量高、代表发展方向、出口前景好的原则选择重点发展产品,而且所选产品必须目前已有一定技术基础,属于有条件、有可能发展起来的产品。
振兴和发展我国塑料模具工业,特别是注射模具模日益受到人们的重视和关注。
现在对于“模具是工业生产的基础工艺装备”这一点,已经取得了共识。
在电子、汽车、通讯等产品中,60%~80%的零件都要依靠塑料模具,尤其是注射模具来成型。
把手臂注射模具设计说明书1. 简介把手臂注射模具是一种用于模拟人体手臂的工具,用于进行药物注射的实践培训和教学。
本文档旨在提供把手臂注射模具的设计说明,包括材料选用、制作工艺和组装方法等。
2. 材料选用为了实现尽可能真实的模拟效果,以下材料分别用于模拟不同的人体组织和结构:•外层皮肤模拟材料:采用柔软的硅胶材料,质地接近人体皮肤。
•手臂骨骼模拟材料:使用坚硬的塑料或金属材料,如聚合物或铝合金,以模拟人体骨骼结构。
•肌肉模拟材料:使用软质的塑料或橡胶材料,以模拟人体肌肉组织。
•血管模拟材料:采用柔软且具有弹性的管状材料,以模拟人体血管。
3. 制作工艺3.1 制作手臂骨骼1.根据设计要求,使用3D打印技术或数控雕刻机制作手臂骨骼模型。
2.选择合适的材料,如聚合物或铝合金,以确保模型具有足够的坚硬度和稳定性。
3.经过表面处理和打磨,以确保模型平滑且无毛刺。
4.骨骼模型制作完成后,进行装配和固定,以确保稳定性和可移动性。
3.2 制作肌肉组织1.使用软质塑料或橡胶材料制作肌肉的模拟组织。
2.根据模型的需求,将肌肉模拟材料裁剪成适当的形状和尺寸。
3.将肌肉模拟材料粘贴或缝制到手臂骨骼上,确保紧密贴合。
4.对肌肉组织进行着色处理,以增加模型的真实感。
3.3 模拟血管1.使用柔软且具有弹性的管状材料制作血管模拟。
2.选取适当的直径和长度,确保与手臂模型相匹配。
3.将血管模拟材料固定在手臂模型中,以模拟真实的血管分布。
4.在血管模拟材料的内部注入液体,以增加模型的真实感。
3.4 外层皮肤1.使用柔软的硅胶材料制作外层皮肤。
2.根据手臂模型的形状和尺寸,将硅胶材料裁剪成相应的形状。
3.将硅胶材料粘贴或缝制到手臂模型上,确保平整贴合。
4.对硅胶材料进行染色处理,以使外观更贴近真实皮肤。
4. 组装方法1.将制作完成的手臂骨骼、肌肉模拟、血管模拟和外层皮肤组件放置在工作台上。
2.根据设计图纸和装配说明,将各个组件逐步装配到手臂骨骼上。
摘要本次课程设计主要是针对圆形盖的注射模具设计,该盖材料为ABS塑料,是工业生产中常见的一种产品。
通过对塑件进行工艺的分析和比较,最终设计出一副注射模。
该课题从产品结构工艺性,具体模具结构出发,对模具的浇注系统、模具成型部分的结构、顶出系统、冷却系统、注塑机的选择及有关参数的校核等都有详细的设计。
通过整个设计过程表明该模具能够达到此塑件所要求的加工工艺。
根据题目设计的主要任务是圆形盖注射模具的设计,也就是设计一副注射模具来生产塑件产品,以实现自动化提高产量。
针对塑件的具体结构工艺性要求,该模具是单分型面注射模具。
关键词:ABS塑料注射成型浇注系统冷却系统单分型面目录第1章塑件的工艺性分析 (1)1.1塑件的几何形状分析 (1)1.2塑件原材料的成型特性分析 (1)1.3塑件的结构工艺性分析 (2)1.3.1塑件的尺寸精度分析 (2)1.3.2 塑件的表面质量分析 (3)1.3.3 塑件的结构工艺性分析 (3)第2章成型设备选择与模具工艺参数 (4)2.1 塑件的体积计算 (4)2.2 型腔数量选择 (4)2.3 注射机的初步选择 (4)第3章注射模的结构设计 (5)3.1 成型方法的确定 (5)3.2 分型面的选择 (5)3.3 浇注系统的设计 (5)3.3.1 主流道的设计 (5)3.3.2 分流道的设计 (7)3.3.3 浇口的设计 (8)3.4 排气槽的设计 (9)3.5 脱模机构的设计 (10)3.6 导向与定位机构的设计 (11)3.7 冷却系统的设计 (12)第4章成型零件的设计 (13)4.1 成型零件应具备的性能 (13)4.2 成型零件的结构设计 (13)4.2.1 型腔结构设计 (13)4.2.2 型芯结构设计 (13)第5章成型零件的工作尺寸计算 (14)5.1 型腔工作尺寸计算 (15)5.1.1 型腔径向尺寸 (15)5.1.2 型腔深度尺寸 (15)5.2 型芯工作尺寸计算 (15)5.2.1 型芯径向尺寸 (15)5.2.2 型芯高度尺寸 (15)5.3 型腔壁厚计算 (16)5.3.1矩形整体式型腔壁厚和底板厚的计算 (16)第6章注射机有关参数的校核 (18)6.1 注射机最大注射量的校核 (18)6.2 锁模力的校核 (18)6.3模具闭合高度的确定与校核 (18)6.3.1模具闭合高度的确定 (18)6.3.2 模具安装部分的校核 (19)6.4开模行程的校核 (19)第7章模具总装配图 (20)总结 (21)参考文献 (22)第1章塑件的工艺性分析1.1塑件的几何形状分析图1.1零件图塑件的名称:某型号零件塑件的材料:丙烯腈-丁二烯-苯乙烯共聚物(ABS),属于热塑性材料塑件的用途:属于工业用品塑件的生产批量:大批量注:(1)外形尺寸:该塑件壁厚为1mm,塑件高度为3mm,所用材料为ABS塑料,是热塑性塑料,适合于注射成型。
目录中文摘要 (I)英文摘要 (II)1 绪论 (1)1.1塑料模具的认识和发展 (1)1.2塑料模具的组成 (2)1.3 我国和国外模具发展现状和趋势 (2)2 塑料模具的成型工艺分析 (4)2.1塑料的简介与选择 (4)2.2医用注射器筒体塑件的测绘 (5)2.2.1 医用注射器筒体塑件的二维视图 (5)2.2.2 医用注射器筒体塑件的三维视图 (6)2.3医用注射器筒体塑件的结构分析 (6)2.4医用注射器筒体塑件的镶件设计 (7)3 模仁及模架的设计 (9)3.1 模仁的尺寸确定 (9)3.2模仁的固定 (10)3.3模架的选择与设计 (11)4 医用注射器筒体塑件的型腔数量及布局 (13)4.1 医用注射器筒体塑件型腔数量的确定 (13)4.2医用注射器筒体塑件型腔的布局 (13)5 医用注射器筒体塑件的浇注系统 (14)5.1 浇注系统的介绍及构成 (15)5.2 浇注系统各部分的详细介绍 (15)5.3产品的浇注系统设计 (16)6 医用注射器筒体塑件的顶出系统 (18)6.1 顶出系统的作用 (18)6.2 顶出系统的常用结构 (18)6.3产品顶出系统设计 (19)6.4顶出行程的计算 (21)7 医用注射器筒体塑件的冷却系统 (22)7.1冷却系统的介绍 (22)7.2 冷却系统的分类 (22)7.3产品的冷却系统设计 (23)8 模具的工作原理 (26)结束语 (28)致谢 (29)参考文献 (30)附录 (30)医用注射器筒体注塑模具的设计摘要模具生产技术水平的高低,已经成为衡量一个国家产品制造水平高低的一个标志,并且塑料工业是当今世界上增长最快的工业门类之一,而注塑模具是其中发展较快的种类,因此,研究注塑模具对了解塑料产品的生产过程和提高产品质量有很大意义。
本文是关于医用注射器筒体注塑模具设计的说明,分别从七个章节介绍了注塑模具的设计,即对型腔、模仁、浇注系统、顶出系统、冷却系统等设计的详细阐述。
医疗针筒模具设计说明书医疗针筒模具设计说明书1. 引言本文档旨在提供医疗针筒模具设计的详细说明。
针对医疗行业的需求,设计一个功能齐全、符合相关标准的针筒模具,以确保生产出优质的医疗器械。
2. 设计目标本模具的设计目标包括但不限于以下几点:2.1 尺寸精确:确保针筒模具的尺寸符合相关标准,以保证生产的针筒能够与其他设备完美配合,并提供准确的药液量度。
2.2 注射顺畅:设计合理的针筒模具结构,确保在注射过程中能够流畅输送药液,降低压力和阻力。
2.3 安全可靠:考虑使用安全材料制造,确保针筒模具的品质稳定可靠,防止任何材料溢出或断裂的情况发生。
2.4 生产效率:设计一个高效且易于操作的针筒模具,以提高生产效率、降低生产成本。
3. 材料选择在设计医疗针筒模具时,我们选择以下材料:3.1 外壳材料:选用医用不锈钢材料,具有优异的耐腐蚀性和耐高温性能。
3.2 注射材料:选用医用聚碳酸酯(PC)材料,具有良好的透明度、刚性和耐高温性。
3.3 密封材料:采用医用硅胶材料,具有良好的柔韧性和耐腐蚀性能。
4. 设计细节4.1 针头设计:采用可拆卸式针头设计,以便于更换和清洁。
针头与针筒之间采用精密螺纹连接,确保密封性和稳定性。
4.2 注射器筒体设计:设置刻度线,以便于医务人员准确控制注射量。
筒体表面采用防滑设计,增加使用时的握持力。
4.3 注射器活塞设计:活塞与筒体之间采用密封圈进行密封,确保注射时无泄漏。
活塞材料选用高耐磨聚酰亚胺材料,以提高耐磨性和密封性。
4.4 注射器保护套设计:为了保护针筒免受外界压力和冲击,设计了注射器保护套,采用高强度聚碳酸酯材料制造。
4.5 模具结构设计:采用模块化设计,方便更换和维修模具。
模具表面采用抛光处理,以减少摩擦和损耗。
5. 法律名词及注释5.1 医用不锈钢:符合医疗行业相关法律法规的不锈钢材料,适用于医疗器械制造。
5.2 医用聚碳酸酯:一种透明、高强度的塑料材料,广泛应用于医疗器械的制造中。
《塑料成型工艺与模具设计》课程设计注射模具设计说明书姓名:陈滔所在院系:机电工程学院所学专业:模具设计与制造专业班级:模具0901班学号:200914200212指导老师:郑英成绩:湖南交通职业技术学院2011年6月设计任务书1 课程设计的任务与内容1、设计任务矩形盖材料为晴-丁二烯—苯乙烯(ABS)塑料制品的注塑模设计.2、设计依据根据塑料制品课程设计的产品进行注射模具设计3、设计内容(1)绘出产品图(用#2图纸)(2)模具设计绘出模具总装图(用#1图纸);型腔、型芯图(用#32图纸);~模具其余各零件图绘在说明书内容的相应位置中。
(3)编写出设计说明书2 时间与进度安排课程设计在2011年6月13日——28日内完成,设计进度大体安排如下:6月13——19日:完成产品图设计及模具设计的有关计算;6月19—-25日:完成模具设计;2011年6月28日交设计资料.3 设计要求(1)设计内容完整合理,文理通顺,层次分明。
(2)参数选取恰当,数据准确无误.(3)论理论据充分,资料来源可靠。
(4)图纸试图正确,图面整洁规范.(5)按时完成任务。
目录设计任务书 (2)1 课程设计的任务与内容 (2)2 时间与进度安排 (2)3 设计要求 (2)前言 (4)第一章模具工艺规程的编制 (5)1 塑件的原材料分析 (5)1.1塑件的结构和尺寸精度及表面质量分析 (5)1.2注塑模工艺 (6)第二章注射机的选择 (7)1 脱模力计算 (7)2 注射机选择 (7)第三章塑料在模具中的位置 (8)1 型腔数量及排列方式 (8)1。
1计算产品体积 (8)1.2脱模力计算 (8)1。
3型腔数量的确定 (8)2 分型面的设计 (9)第四章浇注系统与排溢系统的设计 (10)1 主流道的设计 (10)1。
1主流道的形式和尺寸如图四 (10)1。
2主浇道的体积计算 (10)2 浇口的设计 (11)3 排溢系统设置 (11)第五章成型零件设计 (12)1 成型零件的结构设计 (12)1.1凹模结构设计 (12)1。
旋钮外壳注射模具设计说明书设计人:指导教师:刘海初设计时间:2011年12月一、塑件图材料:ABS生产批量:10万件塑件具体尺寸见三维图。
塑件为旋钮盖子,要求下端能放入杯体即可。
由于盖子本身具有一定柔性,故对上盖精度要求不高,对密封性无要求。
二、工艺性分析材料性能取收缩率为0.5%2、塑件分析(1)形状特性体积 =3824.757361687 mm^3面积 =7848.654803147mm^2质量 = 0.030091264 kg塑件形状较为规则,易于成型。
(2)厚度分析塑件平均壁厚0.95,最大壁厚1.02,塑件局部壁厚均匀。
ABS极限流动长度与塑件厚度的比值为250:1,塑件最大流程与壁厚大约在54:1.25,流程中无尖锐拐角,故注塑时流动性较好。
(3)拔模分析塑件外表面侧壁拔模角为3度,内表面侧壁拔模角为3度,满足脱模要求。
(4)塑件精度塑件为日常用品,精度要求不高,从加工经济性考虑,选用7级精度等级。
三、成型方案为提高生产率,初步确定模具采用三板式大水口模具成型,一出二,推件板推出,其简图如下:模具温度40度,熔体温度98度。
四、注塑机选用选用SZ250/1250卧式注射机,其参数如下:1、最大注射量每次注射两个塑件,重量为60g,浇注系统凝料为 1.830g,总注射量约为61.83g,选用注射机最大注射量为270g,为理论注射量的23%。
五.型芯型腔设计、分型面选在塑件最大轮廓处。
1、型腔设计型腔为圆柱形凸缘式结构,如图,材料采用P20。
型腔壁厚的计算(1)按刚度计算侧壁11443310361.15() 1.15()16[]2100000.03ph s E δ⨯≥=⨯=⨯㎜ 底板11443310360.56()0.56()7.76[]2100000.03ph h E δ⨯≥==⨯㎜(2)按强度计算公式侧壁1122[]400[()1]23[()1]0.6[]2400210s r p σσ≥-=-=--⨯11222220230.87()0.87() 4.47[]400pr h σ⨯≥==型腔压力p=10Mpa 塑件高度h=36㎜ 弹性模量E=210000 Mpa 允许变形量[]δ=0.03㎜ 塑件半径r=23㎜材料许用应力[]σ=400 Mpa因按强度计算结果远小于按刚度计算结果,故型腔壁厚按满足刚度要求取侧壁厚20㎜,底部厚8㎜。
毕业设计说明书课题名称小型盖体注射模设计系别信息控制与制造系专业计算机辅助设计与制造班级 xx姓名 xx学号 xx指导教师 xx起讫时间:年月日~年月日(共8 周)目录摘要1工艺性分析:41.1制品原料(ABS)的工艺参数51.2塑件结构工艺性分析:51.3塑件尺寸精度分析·61.4塑件表面质量分析61.5计算塑件的体积:62型腔数目与位置排列62.1型腔数目:62.2型腔的位置排列73分型面的选择74浇注系统84.1浇注系统的组成84.2浇注系统的设计原则84.3初步设计主流道与分流道的形状和尺寸9 5型芯和型腔95.1型腔和型芯的设计考虑因素95.2型芯和型腔的形状和尺寸105.2.1确定型腔的工作尺寸105.2.2确定型芯的工作尺寸105.3型芯,型腔镶件尺寸设计115.3.1型腔镶件的尺寸设计115.3.2型芯镶件的尺寸设计126脱模斜度的确定127推出机构的设计127.1推件力的计算127.2确定顶出方式与顶杆位置138排气系统的设计148.1排气系统的作用148.2排气槽的设计原则148.3排气槽的尺寸设计149冷却装置设计1410初选注射机1510.1注射量的计算:1510.2注射压力1610.3锁模力1610.4注射机的相关技术参数1711选定标准模架1712注射模结构总体设计1812.1浇注系统零件设计1812.2成型零件设计1912.3机构支承零件设计2012.4导向机构设计2112.5推出机构设计2212.6抽芯机构设计2313模具总装25总结摘要本论文介绍了注射成型的基本原理,特别是单分型面注射模具的结构与工作原理,对注塑产品提出了基本的设计原则,详细介绍了冷流道注射模具浇注系统、温度调节系统和顶出系统的设计过程,并对模具强度要求做了说明。
设计成型零部件以与设计合理的推出机构。
对设计进行验证主要是对注射机的相关重要参数进行验证,包括模具闭合厚度、模具安装尺寸、模具开模行程、注射机的锁模力等。
课程设计报告题目:旋转体塑料模具设计专业:材料成型及控制工程:朱朝辉导师:周伟时间:2010年9月12日目录目录1一、设计任务4二、塑件成型工艺性分析52.1、塑件的分析52.2、LDPE的性能分析52.3、LDPE的注射成型过程及工艺参数72.3.1注射成型过程7三、拟定模具的结构形式93.1分型面位置的确定93.2型腔数量和排列方式的确定103.3注射剂型号的确定10四、浇注系统的设计144.1主流道的设计144.2冷料井的设计154.3分流道的设计154.3.1分流道的布置形式154.3.2分流道的截面形状164.3.3分流道的截面尺寸164.3.4分流道的长度164.3.5凝料体积164.3.6校核剪切速率164.4浇口的设计16五、成型零件的结构设计及计算185.1成型零件的结构设计185.1.1凹模的结构形式185.1.2凸模的结构形式195.2成型零件钢材的选用195.3成型零件的工作尺寸的计算205.3.1凹模径向尺寸计算205.3.2凹模深度尺寸的计算205.3.3凸模径向尺寸的计算215.3.4凸模高度方向尺寸的计算225.4成型零件尺寸和底板厚度计算235.4.1型腔侧壁厚度的校核235.4.2动模垫板厚度的计算24六、模架的确定266.1各模板尺寸的确定266.2模架各尺寸的校核27七、脱模推出机构的设计287.1脱模机构的设计原则287.2推出方式的确定297.3推杆的结构形式及形状297.4推杆的固定方式(图5-3)297.5脱模力的计算307.6校核推出机构作用在塑件上的单位压应力30八、导向与定位结构的设计31九、冷却系统的设计349.1冷却系统设计349.2冷却系统设计原则349.3冷却系统的结构形式359.4冷却系统的选用35十、模具整体三维结构展示36十一、设计小结37参考文献38一、设计任务零件简图如下图所示材料:LDPE;精度:MT5;生产批量:大批量生产。
塑料注射模具设计说明书引⾔本说明书为机械塑料注射模具设计说明书,是根据塑料模具⼿册上的设计过程及相关⼯艺编写的。
本说明书的内容包括:⽬录、课程设计指导书、课程设计说明书、参考⽂献等。
编写本说明书时,⼒求符合设计步骤,详细说明了塑料注射模具设计⽅法,以及各种参数的具体计算⽅法,如塑件的成型⼯艺、塑料脱模机构的设计。
本说明书在编写过程中,得到….⽼师和同学的⼤⼒⽀持和热情帮助,在此谨表谢意。
由于本⼈设计⽔平有限,在设计过程中难免有错误之处,敬请各位⽼师批评指正。
设计者:朱海 2009年11⽉11⽇课程设计指导书⼀、题⽬:塑料套筒材料:ABS⼆、明确设计任务,收集有关资料:1、了解设计的任务、内容、要求和步骤,制定设计⼯作进度计划2、将Pro/E零件图转化为CAD平⾯图,并标好尺⼨3、查阅、收集有关的设计参考资料4、了解所设计零件的⽤途、结构、性能,在整个产品中装配关系、技术要求、⽣产批量5、塑胶⼚车间的设备资料6、模具制造技能和设备条件及可采⽤的模具标准情况三、⼯艺性分析分析塑胶件的⼯艺性包括技术和经济两⽅⾯,在技术⽅⾯,根据产品图纸,只要分析塑胶件的形状特点、尺⼨⼤⼩、尺⼨标注⽅法、精度要求、表⾯质量和材料性能等因素,是否符合模塑⼯艺要求;在经济⽅⾯,主要根据塑胶件的⽣产批量分析产品成本,阐明采⽤注射⽣产可取得的经济效益。
1、塑胶件的形状和尺⼨:塑胶件的形状和尺⼨不同,对模塑⼯艺要求也不同。
2、塑胶件的尺⼨精度和外观要求:塑胶件的尺⼨精度和外观要求与模塑⼯艺⽅法、模具结构型式及制造精度等有关。
3、⽣产批量⽣产批量的⼤⼩,直接影响模具的结构型式,⼀般⼤批量⽣产时,可选⽤⼀模多腔来提⾼⽣产率;⼩批量⽣产时,可采⽤单型腔模具等进⾏⽣产来降低模具的制造费⽤。
4、其它⽅⾯在对塑胶件进⾏⼯艺分析时,除了考虑上诉因素外,还应分析塑胶件的厚度、塑料成型性能及模塑⽣产常见的制品缺陷问题对模塑⼯艺的影响。
四、确定成型⽅案及模具型式:根据对塑胶零件的形状、尺⼨、精度及表⾯质量要求的分析结果,确定所需的,模塑成型⽅案,制品的后加⼯、分型⾯的选择、型腔的数⽬和排列、成型零件的结构、浇注系统等。
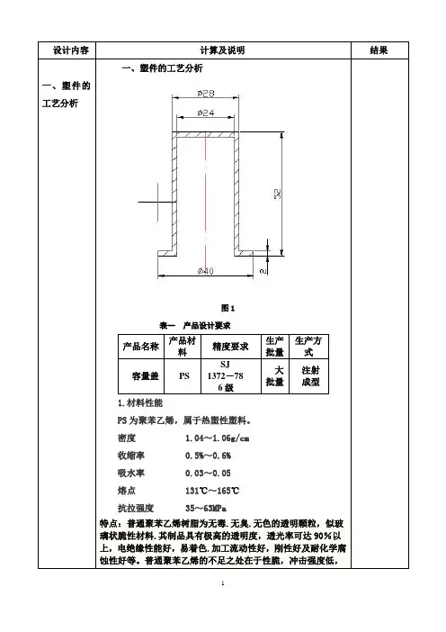
一、塑件的工艺分析一、塑件的工艺分析图1表一产品设计要求产品名称产品材料精度要求生产批量生产方式容量盖PSSJ1372-786级大批量注射成型1.材料性能PS为聚苯乙烯,属于热塑性塑料。
密度 1.04~1.06g/cm收缩率 0.5%~0.6%吸水率 0.03~0.05熔点 131℃~165℃抗拉强度 35~63MPa特点:普通聚苯乙烯树脂为无毒.无臭.无色的透明颗粒,似玻璃状脆性材料.其制品具有极高的透明度,透光率可达90%以上,电绝缘性能好,易着色.加工流动性好,刚性好及耐化学腐蚀性好等。
普通聚苯乙烯的不足之处在于性脆,冲击强度低,易出现应力开裂,耐热性差及不耐沸水等。
该塑件尺寸较小且要求塑件表面精度等级较低,表面不允许有明显的熔接痕,收缩痕。
采用点浇口的双分型面型腔注射模可以满足其表面要求。
此塑件是采用PS(聚笨乙烯)注塑成的。
查相关手册可知:聚苯乙烯聚苯乙烯是指有苯乙烯单体经自由基缩聚反应合成的聚合物,英文名称为Polystyrene,日文名称为ポリスチロール,简称PS。
玻璃化温度80~90℃,非晶态密度 1.04~1.06克/厘米3,晶体密度1.11~1.12克/厘米3,熔融温度240℃,电阻率为1020~1022欧·厘米。
导热系数30℃时0.116瓦/(米·开)。
通常的聚苯乙烯为非晶态无规聚合物,具有优良的绝热、绝缘和透明性,长期使用温度0~70℃,但脆,低温易开裂。
此外还有全同和间同立构聚苯乙烯。
全同聚合物有高度结晶性。
普通聚苯乙烯树脂属无定形高分子聚合物,聚苯乙烯大分子链的侧基为苯环,大体积侧基为苯环的无规排列决定了聚苯乙烯的物理化学性质,如透明度高.刚度大.玻璃化温度高.性脆等。
可发性聚苯乙烯为在普通聚苯乙烯中浸渍低沸点的物理发泡剂制成,加工过程中受热发泡,专用于制作泡沫塑料产品。
高抗冲聚苯乙工程力学、机械原理及设计、电子与电子技术、微机原理与应用、模具CAD/CAM、检测技术、控制工程、模具设计与制造、表面工程新技术、材料成型与设备管理学、防伪技术、市场营销、企业管理工程力学、机械原理及设计、电子与电子技术、微机原理与应用、模具CAD/CAM、检测技术、控制工程、模具设计与制造、表面工程新技术、材料成型与设备管理学、防伪技术、市场营销、企业管理工程力学、机械原理及设计、电子与电子技术、微机原理与应用、模具CAD/CAM、检测技术、控制工程、模具设计与制造、表面工程新技术、材料成型与设备管理学、防伪技术、市场营销、企业管理工程力学、机械原理及设计、电子与电子技术、微机原理与应用、模具CAD/CAM、检测技术、控制工程、模具设计与制造、表面工程新技术、材料成型与设备管理学、防伪技术、市场营销、企业管理工程力学、机械原理及设计、电子与电子技术、微机原理与应用、模具CAD/CAM、检测技术、控制工程、模具设计与制造、表面工程新技术、材料成型与设备管理学、防伪技术、市场营销、企业管理工程力学、机械原理及设计、电子与电子技术、微机原理与应用、模具CAD/CAM、检测技术、控制工程、模具设计与制造、表面工程新技术、材料成型与设备管理学、防伪技术、市场营销、企业管理工程力学、机械原理及设计、电子与电子技术、微机原理与应用、模具CAD/CAM、检测技术、控制工程、模具设计与制造、表面工程新技术、材料成型与设备管理学、防伪技术、市场营销、企业管理工程力学、机械原理及设计、电子与电子技术、微机原理与应用、模具二、计算塑件的体积和质量以及选定压力机CAD/CAM、检测技术、控制工程、模具设计与制造、表面工程新技术、材料成型与设备管理学、防伪技术、市场营销、企业管理工程力学、机械原理及设计、电子与电子技术、微机原理与应用、模具CAD/CAM、检测技术、控制工程、模具设计与制造、表面工程新技术、材料成型与设备管理学、防伪技术、市场营销、企业管理工程力学、机械原理及设计、电子与电子技术、微机原理与应用、模具CAD/CAM、检测技术、控制工程、模具设计与制造、表面工程新技术、材料成型与设备管理学、防伪技术、市场营销、企业管理工程力学、机械原理及设计、电子与电子技术、微机原理与应用、模具CAD/CAM、检测技术、控制工程、模具设计与制造、表面工程新技术、材料成型与设备管理学、防伪技术、市场营销、企业管理烯为苯乙烯和丁二烯的共聚物,丁二烯为分散相,提高了材料的冲击强度,但产品不透明。
第一章绪论1.1.江苏省模具工业江苏是我国工业比较发达的省份,以加工工业为主,是模具需求的集中地域。
据不完全统计,江苏省模具生产厂现有350余家,在职职工23000多人,其中技术人员比例快要1/3。
2003年,全省模具工业形势良好,模具、模具标淮件等呈现购销两旺势头,全年模具企业模具销售收人超过25亿元。
目前,江苏省生产模具、模具标准件、模具材料及其他模具配件的生产企业和经营网点,以苏南为中心遍及全省备地,大体上形成了苏南以大型塑料模、压铸模为主;苏中以塑料模、冷冲模为主;苏北以汽车冲压模为主的生产营销格局。
1.2.我国模具行业前景出过国的人都会有一种体会,就是国外的比较精美,特别是日本、德国的产品,大到机械、小到文具,都给人一种精美绝伦的感觉,恍如是一件件做工精湛的工艺品,这就是模具的功劳。
咱们要想成为世界制造业大国,没有先进的模具工业是不行的。
在这方面咱们还有很长的路要走,还有很多东西要学。
首要的一条是要重视模具行业的发展,不但要有先进的技术,更要重视模具行业的商品化,让模具行业从企业中走出来,成为一个具有市场竞争力的新兴行业。
,是工业生产的基础工艺装备,在电子、汽车、电机、电器、仪表、家电和通信等产品中,60%-80%的零部件都依托模具成形,模具质量的高低决定着产品质量的高低,因此,模具被称之为“百业之母”。
模具又是“效益放大器”,用模具生产的最终产品的价值,往往是模具自身价值的几十倍、上百倍。
模具生产的工艺水平及科技含量的高低,已成为衡量一个国家科技与产品制造水平的重要标志,它在很大程度上决定着产品的质量、效益、新产品的开发能力,决定着一个国家制造业的国际竞争力。
改革开放以来,我国模具工业发展迅猛。
1996至2001年间,我国模具工业的产值年平均增加14%左右。
目前,全国共有模具生产厂点万个,从业人员50多万人。
2001年全国模具工业总产值达300亿元人民币,我国模具年产值已位居世界第四。
湖南工程学院课程设计目录一.塑件工艺分析 (1)1原材料分析 (1)2、塑件的结构、精度、质量分析 (1)二.成型设备的选择与模塑工艺参数的确定 (2)1、确定制品的成型方法、型腔数。
(2)2、计算制品的体积、质量及制品的正面投影面积 (2)3、预选注射机的型号 (2)4、拟定制品成型工艺参数 (2)三.模具结构方案及尺寸的确定 (3)1、选择制品发的分型面 (3)2、型腔布置 (4)3、浇注系统 (4)4、溢流、排气系统的设计 (5)5、选择脱模方式 (5)6、成型零件工件尺寸的计算 (6)7、模具主要零件的结构和尺寸设计 (7)8、模具调温系统的设置 (8)四.注射机有关工艺参数的校核 (9)五.编写工作零件机械加工工艺 (10)六.温度调节系统 (11)七. 设计小结 (12)八.参考文献: (13)一.塑件工艺分析1原材料分析ABS为热塑性塑料,工程塑料ABS,属热塑性塑料,是由丙烯腈,丁二烯和苯乙烯组成的三不共聚物,化学稳定性较好,机械强度较好,有一定的耐磨性,但耐热性较差。
ABS吸水性较大,塑件上的脱模斜度易稍大;易产生熔接痕,模具设计时应注意尽量减少浇注系统对料流的阻力;在正常成型条件下,壁厚、熔料温度及收缩率影响较小,总的成型性能很好。
表1 ABS 主要技术指标2、塑件的结构、精度、质量分析塑件为上部分为半圆形下部分为长方形的课壳体零件,壁厚2mm,半圆部分半径为R11mm,在圆心处以及距离长方形底边5mm,距离长方形侧边5mm处有3个直径为3mm,高度为3mm的圆柱台。
整体尺寸不大不小,成型工艺性较好。
零件上有尺寸R11、15、10、12、2、5、Φ3为IT14级,精度较低。
成型工艺较好。
塑件质量没有较高要求,外表面粗糙度为Ra1.6μm,内表面粗糙度为Ra3.2μm,成型工艺性较好。
二.成型设备的选择与模塑工艺参数的确定1、确定制品的成型方法、型腔数。
根据塑件所用材料和批量,成型该零件采用注射成型方法来成型。
湖南工学院机械工程系2006届毕业设计说书明设计题目:注射器针头套机械设计专业班级姓名指导老师职称教授目录引言 (1)设计指导书 (2)设计说明书 (4)一、毕业设计课题 (4)二、塑件及材料分析 (5)三、拟定的成型工艺 (6)四、型腔数目确定 (7)五、型腔布局 (7)六、分型面与排气系统设计 (8)七、浇注系统设计 (9)八、成型零件设计 (11)九、导向与定位机构设计 (15)十、脱模机构设计 (16)十一、模温调节与冷却系统设计 (18)十二、模体设计 (20)十三、注射模与注射机的关系 (21)十四、模具装配草图及工作原理 (23)十五、设计小结 (23)十六、参考资料 (24)引言本说明书为我机械系2006届模具专业毕业生毕业设计说明书,意在对我专业的学生在大学期间所学专业知识的综合考察、评估。
要在有限的时间内单独完成设计。
也是在走上工作岗位前的一次考察。
本设计说明书是本人完全根据《塑料模具技术手册》的要求形式及相关的工艺编写的。
说明书的内容包括:毕业设计要求,设计课题,设计过程,设计体会及参考文献等。
编写说明书时,力求符合设计步骤,详细说明了塑料注射模具设计的方法,以及各种参数的具体计算方法,如塑件的成型工艺,型腔及型芯的计算,塑料脱模机构的设计,调温系统的设计等。
在编写设计说明书前,得到张老师的悉心指导;在编写过程中,又得到同学的热情帮助和指点,在此谨以致意。
由于本人水平有限,编写过程中错误难免会有的,敬请老师批评指正。
谢谢!设计者:2006年4月20日设计指导书1.设计前应明确的事项(1)明确制品的几何形状及使用要求。
对于形状复杂的制品,有时除看懂其图样外,还需参考产品模型或样品,考虑塑料的种类及制品的成型收缩率、透明度、尺寸公差、表面粗糙度、允许变形范围等范围,即充分了解制品的使用要求,因为这不仅是模具设计的主要依据,而且还是减少模具设计者与产品设计者已意见分歧的手段。
(2)估算制品的体积和重量及确定成型总体方案。
计算制品重量的目的在于选择设备和确定成型总体方案。
成型总体方案包括确定模具的机构形式,型腔数目,制品成型的自动化程度,采用流道的形式(冷流道或热流道),制品的侧向型孔是同时成型还是后序加工,侧凹的脱模方式等。
(3)明确注射成型机的型号和规则。
只有确定采用什么型号和规则的注射成型机,在模具设计时才能对模具上与注射机有关的结构和尺寸的数据进行校核。
(4)检查制品的工艺性。
对制品进行成型前的工艺性检查,以确认制品的各个细小部分是否均符合注射成型的工艺性条件。
2.基本程序模具及其操作必须满足各种要求,其模具设计的最佳方法是综合考虑,系统制定设计方案,模具设计流程图表示了各条件间的相互关系,以及必须满足主功能的边界条件和附加条件的关系。
3.注射模设计审核要点(1)基本结构审核1)模具的结构和基本参数是否与注射机规格匹配。
2)模具是否具有合模道向机构,机构设计是否合理。
3)分型面选择是否合理,有无产生飞边的可能,制品能否滞留在设有推出脱模机构的动模(或定模)一侧。
4)模腔的布置与浇注系统设计是否合理。
浇口是否与塑料原料相适应,浇口位置是否恰当,浇口与流道的几何形状及尺寸是否合适,流动比数值是否合理。
5)成型零部件结构设计是否合理。
6)推出脱模机构与侧向分型或抽芯机构是否合理、安全和可靠。
它们之间或它们与其它模具零部件之间有无干涉或碰撞的可能,脱模板(推板)是否会与凸模咬合。
7)是否需要排气结构,如果需要,其设置情况是否合理。
8)是否需要温度调节系统,如果需要,其热源和冷却方式是否合理。
温控元件随是否足够,精度等级如何,寿命长短如何,加热和冷却介质的循环回路是否合理。
9)支承零部件结构设计是否合理。
10)外形尺寸能否保证安装,紧固方式选择是否合理可靠,安装用的螺栓孔是否与注射动、定模固定板上的螺孔位置一致,压板槽附近的固定板上是否有紧固用的螺孔。
(2)设计图样审核要点1)装配图。
零部件的装配关系是否明确,配合代号标注得是否恰当合理,零件标注是否齐全,与明细表中的序号是否对应,有关的必要说明是否具有明确的标记,整个模具的标准化程度如何。
2)零件图。
零件号、名称、加工数量是否有确切的标注,尺寸公差和形位公差标注是否合理齐合。
成型零件容易磨损是部位是否预留了修磨量。
哪些零件具有超高精度要求,这种要求是否合理。
各个零件的材料选择是否恰当,热处理要求和表面粗糙度要求是否合理。
3)制图方法。
制图方法是否正确,是否合乎有关规范标准(包括工厂企业的规范标准)。
图面表达的几何图形与技术内容是否容易理解。
(3)模具设计质量审核要点1)设计模具时,是否正确地考虑了塑料原材料的工艺特性、成型性能,以及注射机类型可对成型质量产生的影响。
对成型过程中可能产生的缺陷是否在模具设计时采取了相应的预防措施。
2)是否考虑了制品对模具导向精度的要求,导向结果设计得是否合理。
3)成型零部件的工作尺寸计算是否合理,能否保证制品的精度,其本身是否具有足够的强度和刚度。
4)支撑部件能否保证模具具有足够的整体强度和刚度。
5)设计模具时是否考虑了试模和修模要求。
(4)装拆及搬运条件审核要点有无便于装拆时用的橇槽、装拆孔和牵引螺钉,对其是否作出了标记。
有无供搬运用的吊环或起重螺栓孔,对其是否也作出了标记。
模具设计流程图设计说明书一、设计课题注射器针筒套注塑模(一)简介医疗注射器针筒套体积小,比较细长,该塑件外表面容易出现缩水、顶白、浪痕、飞边等缺陷(见图1)的注塑模。
材料用PP。
(二) 特点1, 注塑件平整、美观、光洁度▽ 7以上,没有推杆痕迹。
2, 注塑件尺寸稳定,全部尺寸达到图纸规定要求。
3, 注塑件的关键零件一型板采用坐标镗床直接一次镗成,减少加工误差,提高模具精度。
4, 注塑模具寿命高,下模板镶有淬火凹模套,型芯淬火,型板(推板)调质后加工。
5, 如果试模不合格,仅仅更换型芯、型板和型芯固定板,又可投入试模,缩短了制模周期。
二、塑件及材料分析1, 塑件形状分析从上图可看出,塑件小,内腔有两个角度,两个环形槽,外腔有四个角度,另加六个加强肋板。
塑件小而长为了便于加工凹模可将设计成组合式凹模,设置成三块凹模板,而凸模由于是一模八腔,可设计整体嵌入凸模固定板。
2, 材料分析该塑件的材料为PP,它的性质如下:聚丙炳化学性能较好,耐寒性差,光、氧作用下易分解,机械性能比聚 烯好。
成型时收缩大,成型性能好,易变形翘曲,尺寸稳定性好,柔软性好,有“铰链”特性。
聚丙炳相对密度在0.90~1.05之间,该塑件相对密度为1。
016,玻纤增强;收缩率0。
4~0.8之间、熔点170~178oC 、抗拉强度78~90MPa 、抗弯强度132MPa.因有“铰链”特性浇口位置设计;防缩孔,变形‘收缩率为 1.3%~1.7%.使用温度οοc c 20~10。
成型收缩范围大易发生缩孔凹痕及变形热容量大注射成型模具必须设计充分进行冷却的冷却回路适宜模温为80 C0左右不可低于50 C0否则会造成成型塑件表面光泽差或产生熔接痕等缺陷温度过高会产生翘曲现象聚丙炳主要用与板、片、透明薄膜、绳、绝缘零件、汽车零件、阀门配件、日用品等3, 塑件体积及质量计算。
根据塑件,可粗略算出体积及质量。
图 2如图2所示,可把塑件分成13部分来计算,具体计算如下:V圆台=1/3π[R²H - r²h] h V圆柱=πr²hV1 = 1/3π(9.7/2)²x 1.7 = 41.85V2 = 1/3π(9.3/2)²x 18.6 = 420.95V3 = 1/3π(8/2)²x 25.6 = 428.71V4 = 1/3π(7.11/2)²x 2.79 = 36.9V5 = 1/3π(6.81/2)²x 27.51 = 333.84V6 = 1/3π(2/2)²x 2 = 2.09V7 = 6 x 1/2 x 0.58 x 17.18 x 0.8 = 23.91V8 = 1/3π(5.7/2)²x 28.16 = 239.4V9 = 1/3π(5.85/2)²x 1.39 = 12.45V10 = 1/3π(7.5/2)²x 47.2 = 694.73V11 = 1/3π[(7.86/2)² -(7.36/2)]² = 2.99V12 = 1/3π[(7.95/2)² -(7.45/2)]² = 3.05V13 = 1/3π(8.2/2)²x 1 = 52.78V塑件= V1 + V2 + V3 + V4 + V5 + V6 + V7 - V8 - V9- V10– V10– V11– V12–V13 = 0.9416cm³V总= V塑件x 8 = 8 x 0.9416 = 7.5328c m³m塑件= ρ x v = 1.016 x 0.9416 x 103- = 0.9566gm总= ρ x v x 8 = 1.016 x 0.9566 x 103- x 8 = 7.6533g三、拟定的成型工艺1、制品的成型方法热塑性塑料指定采用注射成型,本设计选用热塑性塑料PP,可用注射成型。
2、制品的成型参数根据制品结构特点及选定的原料PP,可拟定如下工艺参数(塑料模设计手册)。
塑料名称: PP密度(g/cm³): 1.04~1.05计算收缩率(%):0.4~0.8预热温度(℃): 80~85预热时间(h): 2~3料筒温度(℃)前段 190~200中段 210~220后段 160~170喷嘴温度(℃): 180~190模具温度(℃): 70~90注射压力(MPa):90~130保压力(MPa):40~50成型时间(s):注射时间 2~5保压时间 15~40冷却时间 15~40总周期 40~140螺杆转速(r/min): 30~60适应注射机类型:螺杆后处理温度(℃): 70后处理时间(h): 2~4四、型腔数目型腔数目的确定主要参考以下几点来确定(1)、塑件制品的批量和交货期,以及塑料制件的成本。
因为是毕业设计,因此这点可不予考虑。
(2)、所选用注射机的技术规则,因为上面只进行了结构及工艺成型的分析,还没确定注射机,也可暂时不予考虑。
(3)、质量控制要求。
塑件小要求成批量生产,因此可设成一模八腔,以保证生产数量。
根据以上综合考虑,实际采用一模八腔注射成型。
同时根据塑件体积v=7.5328 cm³,初步确定注射机为SZ-60/40注射机各参数如下:项目 SZ-60/40结构形式卧式理论注射容量(cm³) 60螺杆直径(mm) 30注射压力(MPa) 180注射速率(g/s) 70塑化能力(Kg/h) 35螺杆转速(r/min) 0~200锁模力(KN) 400拉杆内间距(mm) 220x300移模行程(mm) 250最大模具厚度(mm) 250最小模具厚度(mm) 15锁模形式模具定位孔直径(mm)ф80喷嘴球半径(mm) SR10喷嘴口孔径(mm)五、型腔布局模具型腔为一模八腔,其结构基本上呈圆两排分布。