2009年清考水泵站试题A答案
- 格式:doc
- 大小:131.50 KB
- 文档页数:5
[真题] 2009年水利水电工程管理与实务真题单项选择题第1题:根据《水利水电工程等级划分及洪水标准》(SL252—2000)的规定,某泵站工程等别为Ⅱ等,其次要建筑物级别应为_____级。
A.2B.3C.4D.5参考答案:B第2题:某水闸底板混凝土所用砂的细度模数(Mx)为2.6,该砂属于_____砂。
A.粗B.中C.细D.特细参考答案:B砂的粗细程度用细度模数(M<sub>x</sub>)表示,M<sub>x</sub>越大,表示砂越粗。
M<sub>x</sub>在3.7~3.1之间为粗砂,M<sub>x</sub>在3.0~2.3之间为中砂,M<sub>x</sub>在2.2~1.6之间为细砂,M<sub>x</sub>在1.5~0.7之间为特细砂。
第3题:干硬性混凝土拌合物的和易性指标是_____A.维勃稠度B.分层度C.坍落度D.黏聚度参考答案:A对于干硬性混凝土拌合物(坍落度小于10mm),采用维勃稠度(VB)作为其和易性指标。
第4题:某水电工程坐落在河谷狭窄、两岸地形陡峻、山岩坚实的山区河段,设计采用全段围堰法导流,此工程宜采用_____导流。
A.束窄河床B.明渠C.涵管D.隧洞参考答案:D隧洞导流是在河岸边开挖隧洞,在基坑的上下游修筑围堰,施工期间河道的水流由隧洞下泄。
这种导流方法适用于河谷狭窄、两岸地形陡峻、山岩坚实的山区河流。
第5题:钻孔爆破时,衡量浅孔和深孔的临界孔深是_____m。
A.3B.4C.5D.6参考答案:C孔径小于75mm、深度小于5m的钻孔爆破称为浅孔爆破。
孔径大于75mm、孔深大于5m的钻孔爆破称为深孔爆破。
第6题:测定混凝土面板堆石坝的堆石干密度一般采用_____法。
A.环刀B.烘干C.灌砂D.灌水参考答案:D堆石因其空隙大,干密度一般用灌水法测定。
《水泵与水泵站》试题A参考答案姓名专业班级学号一、名词解释(4小题,每小题2.5分,共计10分):1.水泵站由抽水机(水泵、动力机、传动设备)、机房、管道、进出水构筑物、电力系统等所组成的多功能、多目标的综合水利枢纽。
2.扬程单位重量水体从水泵的进口到出口所获得的能量。
3.轴功率水泵泵轴的输入功率。
4.水锤由于某种原因,使水力机械或管道内的运动要素发生急剧变化的现象。
二、空题(本题共20个空,每空0.5分,共10分):1.叶片泵可以分为离心泵、轴流泵、混流泵。
离心泵的工作原理是利用装有叶片的叶轮的高速旋转时所产生的离心力来工作的泵。
2.水泵的功率主要有有效功率、轴功率、配套功率。
3.水泵的汽蚀危害有使水泵的性能变坏、使过流部件损坏、产生噪音和震动,缩短机组的使用寿命。
4 .轴流泵应采用 开阀 启动方式,离心泵应采用 关阀 启动方式。
5.根据其结构型式,泵房可分为 分基型 、 干室型 、 湿室型 、 块基型 。
6.压力管道的布置形式有 平行布置 、 辐射状布置 、 并联布置 、 串联布置 。
三、 单项选择题(四选一,每小题1分,共10分)1. 某台离心泵装置的运行功率为N,采用变阀调节后流量减小,其功率变由N为N',则调节前后的功率关系为 。
【 A 】 A N'<N B N'=N C N>'N D N' ≥N2. 离心泵的叶片一般都制成 【 C 】A 旋转抛物线 B 扭曲面 C柱状 D 球形3. 叶片泵在一定转数下运行时,所抽升流体的容重越大(流体的其它物理性质相同),其轴功率 【 A 】 A 越大 B 越小 C 不变 D 不一定4. 水泵调速运行时,调速泵的转速由1n 变为2n 时,其流量Q 、扬程H 与转速n 之间的关系符合比例律,其关系式为 【 C 】 A (H1/H2)=(Q1/Q2)2=(n1/n2) B (H1/H2)=(Q1/Q2)=(n1/n2)2 C (H1/H2)=(Q1/Q2) 2=(n1/n2) 2 D (H1/H2) =(Q1/Q2) =(n1/n2)5. 当水泵站其它吸水条件不变时,随输送水温的增高,水泵的允许安装高度 【 B 】 A 将增大 B 将减小 C 保持不变 D 不一定6.定速运行水泵从水源向高水池供水,当高水池水位不变而水源水位逐渐升高时,水泵的流量 【 B 】 A 逐渐减小 B 逐渐增大 C 保持不变 D 不一定7.性能参数中的水泵额定功率是指水泵的 【 C 】 A 有效功率 B 配套功率 C 轴功率 D 动力机的输出功率8..当起吊设备的最大重量为4吨时,一般采用 起吊设备。
2009年注册给排水基础真题答案((完整版完整版))下午】】真题答案年注册给排水基础【【下午1.对水文现象进行地理综合分析的方法:经验公式法2.径流总量的单位:立方米3.设计标准采用频率:经验频率4.沉积岩的种类:页岩5.决定螺旋泵流量的参数:手册上有6.能量沿程不变的是均匀流:临界流(手册上有)7.勘察设计收费原则:公平竞争:按照国家相关部门的规定。
8.蛋白质合成场所是核糖体。
9.水泵使液体获得:动能和势能10.四台水泵并联运行:二定二调11.排水泵吸水管流速,和去年的一样:0.7~1.5m/s12.黏性液体总水头线下降(手册上有)13.催化转氢的酶是:氧化还原酶14.溶岩水的分布特征:极不均匀,向深度逐渐减弱,水里联系各项异性。
15.细菌生产和死亡数量相等的期间是:稳定期16.高锰酸钾草酸反应温度应保持在多少度:75~8517.硫细菌的营养方式:化能自养18.硝化菌与亚硝化菌属:互生关系19.络合滴定终点:砖红色20.气压泵工程大气压按手册上公式计算为6点多的那个atm21.小比转数水泵流量和养成特点:高扬程、低流量,闭闸22.培养基灭菌温度:120度23.明渠均匀流可能发生在:顺坡棱柱形渠道24.两明渠均匀流,流量粗糙系数及渠道断面相同,底坡i1h2(上午和下午重题)25.测量三要素里包括距离,高度,角度,不包括点位26.水泵折性曲线纵坐标为:应该为提升到静扬程27.建设工程招标开标由什么部门负责28.1:500比例图纸的精度:0.0529.有关宽堰流的,答案在手册上有,2.5-10之间那个30.设计标准采用频率:经验频率31.射流泵压力比的含义:手册上有(A)32.已知流量比,直径一样,问雷诺数之比:2 633.水泵实际工作点与特性曲线不一致,靠切削叶轮调节,问如何找切削点34.工程详规中应包括的内容(以上都包括)35.哪个工程与枯水流量无关:农业灌溉36.哪个污泥段含氧量低:多污带37.水加氯消毒中起主要作用的是:HCLO38.生活饮用水标准中细菌数不得超过:100/ml39.气蚀余量的公式(手册)40.电极滴定最终步骤:氢氧化钠滴定下列溶液,无滴定突越的是PH=741.NH3,AC,S2-,NH2NH2的共轭酸酸性最弱:S2-42.MN2+为什么在PH=10的时候可以:lgk-lga>843.著名的p珀尔公式是什么:A=eLc44.以下哪个属于水的质量力:表面张力45.下渗曲线脎积下渗量曲线有何联系:微分和积分的关系,有人刚刚在网上查到的:西安建筑科技大学考试标准答案46.取水井和河道的距离与取水半径之间的关系:b小于0.5R47.什么是视差:目标实相与十字丝平面不完全重合48.哪个属于系统误差的:刻度盘误差49.污水流量是按什么计算的:最高日最高时50.真空度为65000pa,求绝对压强:3500051.40,80,120,求变差系数:0.552.均匀流流速不变53.不同地下水,是测什么储水量的,调节储水量54.沙漠区域补水主要靠什么:地表水补给55.关于水准面错误的说法:水准面延伸线包围地球56.葡萄糖产生多少二氧化碳:6,无答案,选任何一个都给分。
水泵与水泵站试题A姓名专业班级学号题号一二三四五六总计得分一、名词解释(4小题,每小题2.5分,共计10分):1.水泵它是一种水力机械。
它把动力机的机械能传递给所输送的水流,使水流的能量增加,从而把水流从低处抽提到高处,或从一处输送到另一处。
2.流量单位时间内水泵所抽提的水体体积。
3.有效功率水流流经水泵时,实际得到的功率。
4.汽蚀由于某种原因,使水力机械低压侧的局部压力降低到该温度下的汽化压力以下,引起气泡的发生、发生和溃灭,从而造成过流部件损坏的全过程。
二、填空题(本题共20个空,每空0.5分,共10分):1.常见叶片泵的叶轮形式有封闭式、半开式、敞开式。
2.离心泵的工作原理是利用装有叶片的叶轮的高速旋转所产生的离心力来工作的。
3.轴流泵主要与离心泵不同的构件有进水喇叭管、导叶体、出水弯管。
4.叶片泵的性能曲线主要有基本性能曲线、相对性能曲线、通用性能曲线、全面性能曲线、综合(或系列)型谱。
5.离心泵工况点的调节方法有变径、变速、变角、变阀等。
6.叶片泵按其叶片的弯曲形状可分为后弯式、前弯式和径向式三种。
而离心泵大都采用后弯式叶片。
三、单项选择题(四选一,每小题1分,共10分)1.下列泵中,不是叶片式泵【 B 】A混流泵B活塞泵C离心泵D轴流泵。
2.与低比转数的水泵相比,高比转数的水泵具有【 C 】A流量小、扬程高B流量小、扬程低C流量大、扬程低D流量大、扬程高3.离心泵的叶轮一般都制成【 D 】A敞开式B半开式C半闭封式D闭封式4.叶片泵在一定转数下运行时,所抽升流体的容重越大(流体的其它物理性质相同),其理论扬程【 C 】A越大B越小 C 不变 D 不一定5.水泵铭牌参数(即设计或额定参数)是指水泵在时的参数【 B 】A最高扬程B最大效率C最大功率D最高流量6. 当水泵站其它吸水条件不变时,随当地海拔的增高水泵的允许安装高度【 A 】A将下降B将提高C保持不变D不一定7.定速运行水泵从水源向高水池供水,当水源水位不变而高水池水位逐渐升高时,水泵的流量【 B 】A保持不变B逐渐减小C逐渐增大D不一定8.固定式轴流泵只能采用【 C 】A 变径调节 B 变角调节 C 变速调节 D 变阀调节9.上凸管处危害最大的水击是【 D 】A 启动水击 B 关阀水击 C 正水击 D 负水击10.轴流泵的叶轮一般安装在水面【 A 】A 以下 B 以上 C 位置 D 不一定四、判断题(对的,在题后的括号内打“√”,错的打“×”。
《水泵与水泵站》试题A参考答案姓名专业班级学号名词解释(4小题,每小题分,共计10分):一、1.水泵站由抽水机(水泵、动力机、传动设备)、机房、管道、进出水构筑物、电力系统等所组成的多功能、多目标的综合水利枢纽。
2.扬程单位重量水体从水泵的进口到出口所获得的能量。
3.轴功率水泵泵轴的输入功率。
4.水锤由于某种原因,使水力机械或管道内的运动要素发生急剧变化的现象。
空题(本题共 20个空,每空分,共 10分):二、1.叶片泵可以分为离心泵、轴流泵、混流泵。
离心泵的工作原理是利用装有叶片的叶轮的高速旋转时所产生的离心力来工作的泵。
2.水泵的功率主要有有效功率、轴功率、配套功率。
3.水泵的汽蚀危害有使水泵的性能变坏、使过流部件损坏、产生噪音和震动,缩短机组的使用寿命。
4 .轴流泵应采用开阀启动方式,离心泵应采用关阀启动方式。
5.根据其结构型式,泵房可分为分基型、干室型、湿室型、块基型。
6.压力管道的布置形式有平行布置、辐射状布置、并联布置、串联布置。
单项选择题(四选一,每小题1分,共10分)三、1.某台离心泵装置的运行功率为N,采用变阀调节后流量减小,其功率变由N为N',则调节前后的功率关系为。
【 A】AN'<NBN'=NCN>'NDN' ≥N2.离心泵的叶片一般都制成【C】A旋转抛物线B扭曲面C柱状D球形3.叶片泵在一定转数下运行时,所抽升流体的容重越大(流体的其它物理性质相同),其轴功率【 A 】A越大B越小 C 不变 D 不一定nnnQ H之间的关扬程,其流量4.水泵调速运行时,调速泵的转速由与转速变为、时12系符合比例律,其关系式为【 C 】n)Q/H)=(/Q)=(n) (H/H)=(Q/Q=(n/n) B (HA2112222111212 2Q) =(n/n) 22 /nn/) D (H/H) =(Q//HC (/H)=(QQ)=(211221122121【】 B 5. 当水泵站其它吸水条件不变时,随输送水温的增高,水泵的允许安装高度不一定D将增大B将减小C保持不变A水泵的流,,当高水池水位不变而水源水位逐渐升高时6.定速运行水泵从水源向高水池供水B】量【DC保持不变不一定BA逐渐减小逐渐增大】7.性能参数中的水泵额定功率是指水泵的【CA有效功率B配套功率C轴功率D动力机的输出功率8..当起吊设备的最大重量为4吨时,一般采用起吊设备。
水泵与水泵站复习题A一、名词解释1、水泵2、流量3、水泵工况点4、气蚀5、泵站6、扬程7、水井的降深曲线8、有效汽蚀余量二、填空题1、水泵按工作原理可分为、、。
2、离心泵的工作原理是。
3、表征叶片泵性能的参数主要有、、、、和。
4、影响水泵工况点的因素主要有、和。
5、水泵气蚀的类型可以分为、和三种。
6、水泵机组产能够用的传动方式分为和。
7、根据进水侧岸边形式,分基型泵房放可分为和两种。
8、根据叶轮的结构形式及液体从叶轮流出的方向不同,叶片泵分为、和。
9、轴流泵的工作原理是。
10、单级泵的泄漏量主要发生在、和。
11、水泵工况调节的常用方法有、、、、、。
12、水泵气蚀的危害主要有使、、。
13、泵房的通风方式可以分为和。
14、根据进水方向,可将前池分为两大类和。
三、单项选择题1. 性能参数中的水泵额定功率是指水泵的()。
A有效功率B配套功率C轴功率D动力机的输出功率2、在一定转数下运行时,所抽送流体的容重越大(流体的其它物理性质相同),其轴功率()。
A越大B越小 C 不变 D 不一定3、当水泵站其它吸水条件不变时,随输送水温的增高,水泵的允许安装高度()。
A将增大B将减小C保持不变D不一定4、某台离心泵装置的运行功率为N,采用变阀调节后流量减小,其功率由N变为N',则调节前后的功率关系为()。
AN'<NBN'=NCN>'NDN' ≥N5、上凹管处危害最大的水击是()。
A 负水击B 正水击C 启动水击D 关阀水击6、水泵按其作用工作原理可分为()三类。
A 水泵、容积式水泵、其他水泵 B量水泵、中流量水泵、小流量水泵C水泵、中压水泵、低压水泵 D泵、污水泵、其他液体泵7、水泵是输送和提升液体的机器,是转换能量的机械,他把原动机的机械能转换为被输送液体的能量,是液体获得()。
A 速度B 动能和势能C 方向的变化D 场能8、轴流泵按调节叶片角度的可能性分为()三种类型。
A 定式、半调节式、全调节式B 立式、卧式、斜式C 封闭式、半开敞式和全开敞式D 全角、半角和固定角+SQ2,称为()方程。
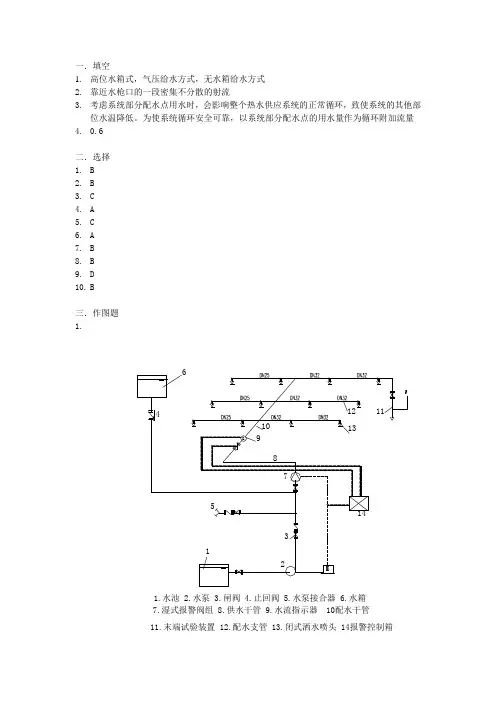
一.填空1.高位水箱式,气压给水方式,无水箱给水方式2.靠近水枪口的一段密集不分散的射流3.考虑系统部分配水点用水时,会影响整个热水供应系统的正常循环,致使系统的其他部位水温降低。
为使系统循环安全可靠,以系统部分配水点的用水量作为循环附加流量4.0.6二.选择1. B2. B3. C4. A5. C6. A7. B8. B9. D10.BH3:水表水头损失(KPa)H4:最不利配水点所需流出的水头(KPa)2.调节水量理论上可根据用水水量变化曲线确定,或按最高日用水量百分数确定,但实际上变化曲线很难获得,所以常按经验确定:水泵自动运行时可按不小于最高日用水量的5%计算,水泵人工操作时可按不小于最高日用水量的12%计算消防储水量应满足在火灾延续时间内室内外补充消防用水总量不足部分的要求,火灾延续时间按设计规范中的规定选用,一般选用10min的初期火灾消防用水量3.水封的作用,水封利用一定高度的静水压力来抵抗排水管内气压变化,防止管内气体进入室内的措施。
水封破坏因静态和动态原因造成存水弯内水封高度减少,不足以抵抗管道内允许的压力变化值(±25mmH2O)时,管道内气体进入室内的现象叫水封破坏。
设计中考虑到水封的设置:水封设在卫生器具排水口下,通常用存水弯来实施。
存水弯内积存一定水保证臭气不溢出。
水封破坏的原因:正压喷溅,自虹吸,惯性晃动,静态损失,毛细管作用,蒸发。
4.水箱的设置高度应使其最低水位的标高满足最不利配水点或消火栓的流出水头要求。
Zx≥Zz+(Hc+Hs)/10式中:Zx为高位水箱最低水位的标高(M);Zz为最不利配水点或消火栓的标高(M);Hc为最不利配水点或消火栓需要的流出水头(kpa);Hs为水箱出口至最不利配水点或消火栓的管道总水头损失(kpa)。
五.计算题1.(1)Qr=Krq h n0*b=(40-10)/(65-10)*250*30+(40-10)/(65-10)*250*5+(35-10)/(65-10)*。
水泵与水泵站试题A一、名词解释(4小题,每小题2.5分,共计10分):1•水泵它是一种水力机械。
它把动力机的机械能传递给所输送的水流,使水流的能量增加, 从而把水流从低处抽提到高处,或从一处输送到另一处。
2. 流量单位时间内水泵所抽提的水体体积。
3. 有效功率水流流经水泵时,实际得到的功率。
4. 汽蚀由于某种原因,使水力机械低压侧的局部压力降低到该温度下的汽化压力以下,引起气泡的发生、发生和溃灭,从而造成过流部件损坏的全过程。
二、填空题(本题共20个空,每空0.5分,共0分):1. 常见叶片泵的叶轮形式有_ 封闭式、半开式、敞开式。
2.离心泵的工作原理是_利用装有叶片的叶轮的高速旋转所产生的离心力来工作的。
3. 轴流泵主要与离心泵不同的构件有 ^进水喇叭管、一导叶体、一出水弯管 _。
4•叶片泵的性能曲线主要有_______ 基本性能曲线、_____ 相对性能曲线、通用性能曲线、全面性能曲线、综合(或系列)型谱。
5. 离心泵工况点的调节方法有 _ 变径 _、—速 _、变角 _、_ 变阀一等。
6. 叶片泵按其叶片的弯曲形状可分为—后弯式一、一前弯式一和一径向式一三种。
而离心泵大都采用__________ 后弯式 _________________________________________ 叶片。
三、单项选择题(四选一,每小题1分,共10分)1. 下列泵中, 不是叶片式泵2. 与低比转数的水泵相比,高比转数的水泵具有3. 离心泵的叶轮一般都制成 4•叶片泵在一定转数下运行时,所抽升流体的容重越大(流体的其它物理性质相同),其理论 扬程 ___________ 【C 】A 越大B 越小C 不变D 不一定5.水泵铭牌参数 (即设计或额定参数)是指水泵在 时的参数 【B 】A 最高扬程B 最大效率C 最大功率D 最咼流量6.当水泵站其它吸水条件不变时, 随当地海拔的增高水泵的允许安装高度【A 】 四、判断题(对的,在题后的括号内打错的打“X”。
《水泵与水泵站》试题A参考答案姓名专业班级学号一、名词解释(4小题,每小题分,共计10分):1.水泵站由抽水机(水泵、动力机、传动设备)、机房、管道、进出水构筑物、电力系统等所组成的多功能、多目标的综合水利枢纽。
2.扬程单位重量水体从水泵的进口到出口所获得的能量。
3.轴功率水泵泵轴的输入功率。
4.水锤由于某种原因,使水力机械或管道内的运动要素发生急剧变化的现象。
二、空题(本题共 20个空,每空分,共 10分):1.叶片泵可以分为离心泵、轴流泵、混流泵。
离心泵的工作原理是利用装有叶片的叶轮的高速旋转时所产生的离心力来工作的泵。
2.水泵的功率主要有有效功率、轴功率、配套功率。
3.水泵的汽蚀危害有使水泵的性能变坏、使过流部件损坏、产生噪音和震动,缩短机组的使用寿命。
4 .轴流泵应采用开阀启动方式,离心泵应采用关阀启动方式。
5.根据其结构型式,泵房可分为 分基型 、 干室型 、 湿室型 、 块基型 。
6.压力管道的布置形式有 平行布置 、 辐射状布置 、 并联布置 、 串联布置 。
三、 单项选择题(四选一,每小题1分,共10分)1. 某台离心泵装置的运行功率为N,采用变阀调节后流量减小,其功率变由N为N',则调节前后的功率关系为 。
【 A 】 A N'<N B N'=N C N>'N D N' ≥N2. 离心泵的叶片一般都制成 【 C 】A 旋转抛物线 B 扭曲面 C柱状 D 球形3. 叶片泵在一定转数下运行时,所抽升流体的容重越大(流体的其它物理性质相同),其轴功率 【 A 】 A 越大 B 越小 C 不变 D 不一定4. 水泵调速运行时,调速泵的转速由1n 变为2n 时,其流量Q 、扬程H 与转速n 之间的关系符合比例律,其关系式为 【 C 】 A (H1/H2)=(Q1/Q2)2=(n1/n2) B (H1/H2)=(Q1/Q2)=(n1/n2)2C (H1/H2)=(Q1/Q2) 2=(n1/n2) 2D (H1/H2) =(Q1/Q2) =(n1/n2) 5. 当水泵站其它吸水条件不变时,随输送水温的增高,水泵的允许安装高度 【 B 】 A 将增大 B 将减小 C 保持不变 D 不一定6.定速运行水泵从水源向高水池供水,当高水池水位不变而水源水位逐渐升高时,水泵的流量 【 B 】 A 逐渐减小 B 逐渐增大 C 保持不变 D 不一定7.性能参数中的水泵额定功率是指水泵的 【 C 】A 有效功率 B 配套功率 C 轴功率 D 动力机的输出功率 8..当起吊设备的最大重量为4吨时,一般采用 起吊设备。
注水泵工理论知识试题(中级工2009版)一.选择题(每题有四个选项,只有一个是正确的,将正确的选项号填入括号内)1.AAO0l适于油、气聚集,并形成油气藏的场所称为( )。
(A)圈闭(B)断层(C)储集(D)遮挡2.AA001圈闭是储藏( )的场所。
(A)石油(B)天然气(C)石油和天然气(D)石油和水3.AA00l储集层、盖层、( )在一定地质条件下结合起来,就组成了圈闭。
(A)油层(B)气层(C)断层(D)遮挡物4.AA002具有储集油、气的空隙空间的岩层是( )。
(A)遮挡物(B)生油层(C)储集层(D)盖层5.AA002油气运移至储集层后( )能够形成油气藏.(A)—定(B)不一定(C)很快(D)迅速6.AA002储集层是组成( )的最重要的条件.(A)油气藏(B)油层(C)圈闭(D)断层7.AA003盖层起阻止油气向( )逸散的作用.(A)上方(B)下方(C)周围(D)前方8.AA003遮挡物是指从各方面阻止油、气逸散的( )条件.(A)参考(B)一般(C)封闭(D)储备9.AA003 紧邻储集层的不渗透层,起阻止油气向上逸散作用的地层叫( )。
(A)夹层(B)盖层(C)渗透层(D)生油层10.AA004 生成的油气经过二次运移之后,必须保存于( )中方可形成油气藏。
(A)圈闭(B)裂缝(C)盖层(D)断层11.AA004 在一个沉积盆地内形成油气藏的最基本条件是( )、运移和圈闭。
(A)储集层(B)盖层(C)保存(D)生油12.AA004 形成油气藏必须具备生油层、储油层、盖层、( )等条件。
(A)气项(B)边水(C)油气运移(D)底水13.AA005 根据油气藏的分类原则,油气藏可分为( )类。
(A)二(B)三(C)四(D)五14.AA005 根据圈闭的成因,油气藏分为( )三类。
(A)构造油气藏、岩性油气藏、断层油气藏(B)构造油气藏、地层油气藏、岩性油气藏(C)沉积油气藏、岩性油气藏、裂缝油气藏(D)断层油气藏、岩性油气藏、古潜山油气藏15.AA005 目前国内外油气藏的分类广泛采用的是以( )类型为主的分类方式。
《水泵与水泵站》试题A参考答案姓名专业班级学号一、名词解释(4小题,每小题2.5分,共计10分):1.水泵站由抽水机(水泵、动力机、传动设备)、机房、管道、进出水构筑物、电力系统等所组成的多功能、多目标的综合水利枢纽。
2.扬程单位重量水体从水泵的进口到出口所获得的能量。
3.轴功率水泵泵轴的输入功率。
4.水锤由于某种原因,使水力机械或管道内的运动要素发生急剧变化的现象。
二、空题(本题共20个空,每空0.5分,共10分):1.叶片泵可以分为离心泵、轴流泵、混流泵。
离心泵的工作原理是利用装有叶片的叶轮的高速旋转时所产生的离心力来工作的泵。
2.水泵的功率主要有有效功率、轴功率、配套功率。
3.水泵的汽蚀危害有使水泵的性能变坏、使过流部件损坏、产生噪音和震动,缩短机组的使用寿命。
4 .轴流泵应采用开阀启动方式,离心泵应采用关阀启动方式。
5.根据其结构型式,泵房可分为 分基型 、 干室型 、 湿室型 、 块基型 。
6.压力管道的布置形式有 平行布置 、 辐射状布置 、 并联布置 、 串联布置 。
三、 单项选择题(四选一,每小题1分,共10分)1. 某台离心泵装置的运行功率为N,采用变阀调节后流量减小,其功率变由N为N',则调节前后的功率关系为 。
【 A 】 A N'<N B N'=N C N>'N D N' ≥N2. 离心泵的叶片一般都制成 【 C 】A 旋转抛物线 B 扭曲面 C柱状 D 球形3. 叶片泵在一定转数下运行时,所抽升流体的容重越大(流体的其它物理性质相同),其轴功率 【 A 】 A 越大 B 越小 C 不变 D 不一定4. 水泵调速运行时,调速泵的转速由1n 变为2n 时,其流量Q 、扬程H 与转速n 之间的关系符合比例律,其关系式为 【 C 】 A (H1/H2)=(Q1/Q2)2=(n1/n2) B (H1/H2)=(Q1/Q2)=(n1/n2)2C (H1/H2)=(Q1/Q2) 2=(n1/n2) 2D (H1/H2) =(Q1/Q2) =(n1/n2) 5. 当水泵站其它吸水条件不变时,随输送水温的增高,水泵的允许安装高度 【 B 】 A 将增大 B 将减小 C 保持不变 D 不一定6.定速运行水泵从水源向高水池供水,当高水池水位不变而水源水位逐渐升高时,水泵的流量 【 B 】 A 逐渐减小 B 逐渐增大 C 保持不变 D 不一定7.性能参数中的水泵额定功率是指水泵的 【 C 】 A 有效功率 B 配套功率 C 轴功率 D 动力机的输出功率8..当起吊设备的最大重量为4吨时,一般采用 起吊设备。
2009年全国一级建造师考试真题-水利水电(共140分) 【试题部分】一、单选题(20分) -- 选项当中只有一个是正确的答案3.渗透系数k的计算公式为:式中L表示()。
二、多选题(20分) -- 每题的备选项中,有2个或2个以上符合题意,至少有1个错项,错选,本题不得分;少选,所选的每个选项得0.5分三、案例解析题(100分) -- 用户在提交试卷后,根据该题的答案和解析进行自我评分某水闸施工合同上游连接段分部工程施工计划及各项工作的合同工程量和单价(钢筋混凝土工程为综合单价)见图。
合同约定:(1)预付款为合同价款的10%,开工前支付,从第1个月开始每月平均扣回;(2)保留金自第1个月起按每月工程进度款的5%扣留。
施工中发生以下事件:事件1.土方开挖时发现上游护底地基为软弱土层,需进行换土处理。
经协商确定,增加的“上游护底换土”是“土方开挖”的紧后、“上游护底”的紧前工作,其工作量为l000立方米,单价为22.5元/立方米(含开挖、回填),时间为10d。
事件2.在翼墙浇筑前,为保证安全,监理单位根据有关规定指示承包人架设安全网一道,承包人为此要求增加临时设施费用。
问题 1.计算工程预付款额及新增“上游护底换土”后合同总价(单位为元,保留2位小数。
下同)。
2.若实际工作量与合同工程量一致,各项工作均以最早时间开工且均匀施工,工程第1天开工后每月以30天计,计算第2个月的工程进度款、预付款扣还、保留全扣留和实际支付款。
3.施工单位提出的增加临时设施费的要求是否合理?为什么? 4.指出上游翼墙墙后回填土施工应注意的主要问题有哪些?津江水电站工程流道混凝土施工中,施工单位为了便于进度检查与调整,编制了双代号时标网络图如下:施工过程中发生如下事件:事件l.项目部第12天末组织了进度检查,检查结果以进度前锋线表示在上图中。
事件2.为了便于进度调整,项目部组织技术人员对可压缩工作的最短工作时间及赶工费用进行了全面分析,结果如下:问题 1.指出该网络图的关键线路,说明L(⑧→⑩)实线和波浪线长度各表示的含义。
水泵与水泵站试题A姓名专业班级学号一、名词解释(4小题,每小题2.5分,共计10分):它是一种水力机械。
它把动力机的机械能传递给所输送的水流,使水流的能量增加,从而把水流从低处抽提到高处,或从一处输送到另一处。
2。
流量单位时间内水泵所抽提的水体体积。
3.有效功率水流流经水泵时,实际得到的功率.4.汽蚀由于某种原因,使水力机械低压侧的局部压力降低到该温度下的汽化压力以下,引起气泡的发生、发生和溃灭,从而造成过流部件损坏的全过程.二、填空题(本题共20个空,每空0.5分,共10分):1.常见叶片泵的叶轮形式有封闭式、半开式、敞开式。
2.离心泵的工作原理是利用装有叶片的叶轮的高速旋转所产生的离心力来工作的。
3.轴流泵主要与离心泵不同的构件有进水喇叭管、导叶体、出水弯管。
4.叶片泵的性能曲线主要有基本性能曲线、相对性能曲线、通用性能曲线、全面性能曲线、综合(或系列)型谱。
5.离心泵工况点的调节方法有变径、变速、变角、变阀等。
6.叶片泵按其叶片的弯曲形状可分为后弯式、前弯式和径向式三种.而离心泵大都采用后弯式叶片.三、单项选择题(四选一,每小题1分,共10分)1.下列泵中,不是叶片式泵【 B 】A混流泵B活塞泵C离心泵D轴流泵.2.与低比转数的水泵相比,高比转数的水泵具有【 C 】A流量小、扬程高B流量小、扬程低C流量大、扬程低D流量大、扬程高3。
离心泵的叶轮一般都制成【 D 】A敞开式B半开式C半闭封式D闭封式4。
叶片泵在一定转数下运行时,所抽升流体的容重越大(流体的其它物理性质相同),其理论扬程【 C 】A越大B越小 C 不变 D 不一定5.水泵铭牌参数(即设计或额定参数)是指水泵在时的参数【 B 】A最高扬程B最大效率C最大功率D最高流量6。
当水泵站其它吸水条件不变时,随当地海拔的增高水泵的允许安装高度【 A 】A将下降B将提高C保持不变D不一定7.定速运行水泵从水源向高水池供水,当水源水位不变而高水池水位逐渐升高时,水泵的流量【 B 】A保持不变B逐渐减小C逐渐增大D不一定8.固定式轴流泵只能采用【 C 】A 变径调节 B 变角调节 C 变速调节 D 变阀调节9.上凸管处危害最大的水击是【 D 】A 启动水击 B 关阀水击 C 正水击 D 负水击10.轴流泵的叶轮一般安装在水面【 A 】A 以下B 以上C 位置D 不一定四、判断题(对的,在题后的括号内打“√”,错的打“×"。
给水系统——给水管网——取水工程——给水水泵知识题:一.单项选择题(共40题,每题1分。
每题的备选项中只有一个符合题意)给水系统总论1.某工厂将设备冷却排水不经处理直接用作工艺用水。
该系统为何种给水系统?【B】(A)直流给水系统(B)复用给水系统(C)分质给水系统(D)循环给水系统2009 上午2.下列关于给水系统组成的提法中,何项是不正确的?【A】(A)当地下水的原水浊度满足要求时,都可省去消毒外的水处理设施(B)当管网中设有水量调节构筑物时,水厂清水池调节容量可以减少(C)当配水管网采用重力配水时,水厂不必设置二级泵房(D)任何给水系统都必须设置取水构筑物2009上午1.下列关于给水系统各构筑物流量关系叙述中,错误的是?A 给水系统中所有构筑物以最高日用水量为基础计算B地表水取水构筑物按最高日平均时流量进行设计C配水管网中不设调节构筑物时,水厂二级泵站按最高日最高时流量设计D管网中无论是否设调节构筑物时,配水管网都应按最高日最高时流量设计2010 上午2.某小城镇现有地表水给水系统由取水工程、原水输水管、水厂和配水管网组成。
其中水厂净水构筑物16小时运行,二泵站24小时运行。
当供水规模增加40%时,必须扩建的是下列何项?A取水工程 B 原水输水管 C 水厂净水构筑物 D 二级泵站和配水管网2010上午1.某城镇给水系统有三座水厂,水源分别取自一条河流和一个水库,三座水厂以不同压力将出水送入同一个管网,该城镇给水系统属于何种系统?A多水源分质给水系统B多水源分压给水系统C多水源统一给水系统D多水源混合给水系统2.在地形平坦的大中城市的给水管网中设置调节构筑物的作用是下列何项?A可减少取水泵站的设计流量B可减少水厂的设计规模C可减少配水管网的设计流量D可减少水厂二级泵站设计流量2010年下午1.水源情况是一个城市给水系统布置的主要影响因素之一,下列关于这种影响的叙述中,哪项错误?【D】(A)水源种类和水质条件将直接影响水处理工艺流程(B)水源地平面位置将直接影响输水管渠的工程量(C)水源地的地形将直接影响取水工程的布置(D)水源地的高程将直接影响水处理工艺选择解析:参见三版秘书处教材P6相关部分。
泵站人员综合考试题及答案一、单项选择题(每题2分,共10题)1. 泵站的主要功能是什么?A. 提供电力B. 提供水资源C. 调节水位D. 储存物品答案:C2. 泵站中最常见的泵型是哪一种?A. 离心泵B. 轴流泵C. 混流泵D. 往复泵答案:A3. 泵站运行中,下列哪项是不需要定期检查的?A. 泵的轴承温度B. 电机的电流C. 泵的振动D. 泵站的绿化情况答案:D4. 泵站的自动化控制系统中,PLC的作用是什么?A. 提供动力B. 控制泵的启动和停止C. 储存数据D. 清洁设备答案:B5. 泵站中,泵的效率通常是指什么?A. 泵的转速B. 泵的流量C. 泵的功率D. 泵输出的有效功率与输入功率的比值答案:D6. 泵站的维护中,下列哪项不是必要的?A. 定期更换润滑油B. 检查电机绝缘C. 清洁泵站环境D. 更换泵站的装饰物答案:D7. 泵站的应急预案中,不包括以下哪项?A. 停电应急措施B. 洪水应急措施C. 火灾应急措施D. 员工生日庆祝答案:D8. 泵站的运行记录中,不需要记录以下哪项数据?A. 泵的运行时间B. 泵的流量C. 泵的维修记录D. 泵站员工的出勤情况答案:D9. 泵站的安全管理中,下列哪项不是安全检查的内容?A. 检查安全防护设施B. 检查操作规程的执行情况C. 检查泵站的卫生状况D. 检查泵站的绿化情况答案:D10. 泵站的节能措施中,不包括以下哪项?A. 使用变频技术调整泵的运行速度B. 定期维护泵和电机以减少能耗C. 优化泵站的运行计划D. 增加泵站的装饰照明答案:D二、多项选择题(每题3分,共5题)1. 泵站的运行中,以下哪些因素会影响泵的效率?A. 泵的选型B. 泵的维护状况C. 泵站的绿化D. 泵的运行工况答案:A, B, D2. 泵站的自动化控制系统中,可能包含哪些组件?A. 传感器B. PLCC. 显示器D. 泵站的装饰物答案:A, B, C3. 泵站的定期检查中,需要检查哪些设备?A. 泵B. 电机C. 管道D. 泵站的绿化答案:A, B, C4. 泵站的应急预案中,可能包括哪些应急措施?A. 停电应急措施B. 洪水应急措施C. 火灾应急措施D. 员工生日庆祝答案:A, B, C5. 泵站的节能措施中,可能包括哪些内容?A. 使用变频技术调整泵的运行速度B. 定期维护泵和电机以减少能耗C. 优化泵站的运行计划D. 增加泵站的装饰照明答案:A, B, C三、判断题(每题1分,共5题)1. 泵站的自动化控制系统可以完全替代人工操作。
水泵与水泵站试题A姓名专业班级学号一、名词解释(4小题,每小题2.5分,共计10分):1.水泵它是一种水力机械。
它把动力机的机械能传递给所输送的水流,使水流的能量增加,从而把水流从低处抽提到高处,或从一处输送到另一处。
2.流量单位时间内水泵所抽提的水体体积。
3.有效功率水流流经水泵时,实际得到的功率。
4.汽蚀由于某种原因,使水力机械低压侧的局部压力降低到该温度下的汽化压力以下,引起气泡的发生、发生和溃灭,从而造成过流部件损坏的全过程。
二、填空题(本题共20个空,每空0.5分,共10分):1.常见叶片泵的叶轮形式有封闭式、半开式、敞开式。
2.离心泵的工作原理是利用装有叶片的叶轮的高速旋转所产生的离心力来工作的。
3.轴流泵主要与离心泵不同的构件有进水喇叭管、导叶体、出水弯管。
4.叶片泵的性能曲线主要有基本性能曲线、相对性能曲线、通用性能曲线、全面性能曲线、综合(或系列)型谱。
5.离心泵工况点的调节方法有变径、变速、变角、变阀等。
6.叶片泵按其叶片的弯曲形状可分为后弯式、前弯式和径向式三种。
而离心泵大都采用后弯式叶片。
三、单项选择题(四选一,每小题1分,共10分)1.下列泵中,不是叶片式泵【B】A混流泵B活塞泵C离心泵D轴流泵。
2.与低比转数的水泵相比,高比转数的水泵具有【C】A流量小、扬程高B流量小、扬程低C流量大、扬程低D流量大、扬程高3.离心泵的叶轮一般都制成【 D 】A敞开式B半开式C半闭封式D闭封式4.叶片泵在一定转数下运行时,所抽升流体的容重越大(流体的其它物理性质相同),其理论扬程【C】A越大B越小 C 不变 D 不一定5.水泵铭牌参数(即设计或额定参数)是指水泵在时的参数【B】A最高扬程B最大效率C最大功率D最高流量6. 当水泵站其它吸水条件不变时,随当地海拔的增高水泵的允许安装高度【A】A将下降B将提高C保持不变D不一定7.定速运行水泵从水源向高水池供水,当水源水位不变而高水池水位逐渐升高时,水泵的流量【 B 】A保持不变B逐渐减小C逐渐增大D不一定8.固定式轴流泵只能采用【C】A 变径调节 B 变角调节 C 变速调节 D 变阀调节9.上凸管处危害最大的水击是【D】A 启动水击 B 关阀水击 C 正水击 D 负水击10.轴流泵的叶轮一般安装在水面【A】A 以下 B 以上 C 位置 D 不一定四、判断题(对的,在题后的括号内打“√”,错的打“×”。
水泵与水泵站试题A参考答案
姓名专业班级学号
一、名词解释(4小题,每小题2.5分,共计10分):
1.水泵
它是一种水力机械。
它把动力机的机械能传递给所输送的水流,使水流的能量增加,从而把水流从低处抽提到高处,或从一处输送到另一处。
2.流量
单位时间内水泵所抽提的水体体积。
3.有效功率
水流流经水泵时,实际得到的功率。
4.水泵站
由抽水机(水泵、动力机、传动设备)、机房、管道、进出水建筑物、输配电力系统等所组成的多功能、多目标的综合水利枢纽。
二、填空题(本题共 20个空,每空0.5分,共 10分):
1.常见叶片泵的叶轮形式有封闭式、半开式、敞开式 ,心泵最常用的叶轮是封闭式。
2.叶片泵可以分为离心泵、轴流泵、混流泵。
3.轴流泵主要与离心泵不同的构件有进水喇叭管、导叶体、出水弯管。
4.轴流泵应采用开阀启动方式,离心泵应采用关阀启动方式。
5.离心泵工况点的调节方法有变径、变速、变角、变阀等。
6.叶片泵按其叶片的弯曲形状可分为后弯式、前弯式和径向式三种。
1
而离心泵大都采用后弯式叶片。
三、单项选择题(四选一,本题共20小题,每小题1分,共20分)
1.下列泵中,不是叶片式泵【B】A混流泵B活塞泵C离心泵D轴流泵。
2.与低比转数的水泵相比,高比转数的水泵具有【C】A流量小、扬程高B流量小、扬程低C流量大、扬程低D流量大、扬程高
3.离心泵的叶轮一般都制成【 D 】A敞开式B半开式C半闭封式D闭封式
4.轴流泵的叶片一般都制成【B】
A柱状B扭曲面C旋转抛物线D球体
5.叶片泵在一定转数下运行时,所抽升流体的容重越大(流体的其它物理性质相同),其理论扬程【C】
A越大B越小 C 不变 D 不一定
6.叶片泵在一定转数下运行时,所抽升流体的容重越大(流体的其它物理性质相同),其轴功率【 C 】
A越大B越小 C 不变 D 不一定
5.水泵铭牌参数(即设计或额定参数)是指水泵在时的参数【B】A最高扬程B最大效率C最大功率D最高流量
6. 当水泵站其它吸水条件不变时,随当地海拔的增高水泵的允许安装高度【A】A将下降B将提高C保持不变D不一定
7.定速运行水泵从水源向高水池供水,当水源水位不变而高水池水位逐渐升高时,水泵的流量【 B 】A保持不变B逐渐减小C逐渐增大D不一定
8.固定式轴流泵只能采用【C】
A 变径调节
B 变角调节
C 变速调节
D 变阀调节
14.水泵调速运行时,调速泵的转速由n1变为n2时,其流量Q、扬程H与转速n之间的关系符合比例律,其关系式为【 C 】A (H1/H2)=(Q1/Q2)=(n1/n2) B (H1/H2)=(Q1/Q2)=(n1/n2)2
C (H1/H2)=(Q1/Q2)2=(n1/n2)2D (H1/H2)2=(Q1/Q2)=(n1/n2)2
9.某台离心泵装置的运行功率为N,采用变阀调节后流量减小,其功率变为N',则调节前后的功率关系为【C】AN'<NBN'=NCN'>NDN'≥N
10.上凸管处危害最大的水击是【D】
A 启动水击
B 关阀水击
C 正水击
D 负水击
11.轴流泵的叶轮一般安装在水面【A】A 以下 B 以上 C 位置 D 不一定
15.当水泵站其它吸水条件不变时,随输送水温的增高水泵的允许安装高度【 B 】A将增大B将减小C保持不变D不一定
16.定速运行水泵从水源向高水池供水,当高水池水位不变而水源水位逐渐升高时,水泵的流量【B】A逐渐减小B逐渐增大C保持不变D不一定
17.水泵性能参数中的额定功率是指水泵的【B】A有效功率B轴功率C配套功率D动力机的输出功率18.当起吊设备的最大重量为4吨时,一般采用起吊设备。
【 B】A 桥式吊车 B 单轨手动吊车 C 双轨电动吊车 D 三角架配手动葫芦
19.上凹管处危害最大的水击是【 B 】A负水击 B 正水击 C 启动水击 D 关阀水击
20.离心泵的叶轮一般安装在水面【 B】A 以上 B 以下 C 位置 D 不一定
四、判断题(对的,在题后的括号内打“√”,错的打“×”。
每小题2分,共10分)
1.并联的目的是为了提高水泵的扬程,串联的目的是为了增加水泵的流量。
【×】
2.水泵的比转数越大,其扬程越高。
【×】
3.离心泵大都是立式机组,一般安装在水面以上。
【×】
4.两台水泵的比转数必定相等,则其几何形状相似。
【×】
5.压力管道常用的敷设方式有镇墩、支墩和管床。
【×】
五、问答题(4小题,每题5分,共20分):
1.给出下列水泵型号中各符号的意义:
① 60—50—250 ②14 ZLB—70
答:① 60——水泵的进口直径,单位mm;50——水泵的出口直径,单位mm; 250——叶轮标称直径,单位mm;单级单吸悬臂式离心泵。
3
② 14 ——水泵的出口直径,单位英寸;Z ——轴流泵;L ——立式;B ——半调节;70——比转速为700。
2. 为什么离心式水泵要关阀启动,而轴流式水泵要开阀启动?
答:①离心泵的功率性能曲线,是一条缓慢上升的近似直线,其关死功率最小,为了轻载启动和停机,固在启动和停机前应首先关闭出水管闸阀。
② 轴流泵的功率性能曲线,是一条快速下降的上凸抛物线,其关死功率最大,为了避免错误的操作方式引起的动力机严重超载,轴流泵的抽水装置上不允许设置任何阀门。
3. 压力管道的选线原则是什么?
答:① 垂直等高线、线短弯少损失小;
② 在压力示坡线以下;
③ 减少挖方、避开填方、禁遇塌方;
④ 躲开山崩、雪崩、泥石流、滑坡和山洪;
⑤ 便于运输、安装、检修和巡视,利于今后的发展
4. 用图解法如何确定两台同型号泵并联运行的工作点?
答:方法一:把单泵的扬程性能曲线Q 1~H 1横向放大
一倍得到两台同型号泵并联运行的扬程性能曲线Q ~H ,与
抽水装置特性曲线R 的交点A 就是两台同型号泵并联运行
的工作点,过该点作水平线,与单泵扬程性能曲线的交点
A 1就是两台同型号泵并联运行单泵的工作点。
或方法二:绘制出两台同型号泵并联运行单泵的抽水
装置特性曲线R 1,与单泵的扬程性能曲线Q 1~H 1的交点
A 1就是两台同型号泵并联运行单泵的工作点。
(备注:两种方法,答一个即可以)
六、计算题 (3小题,共40分):
1.已知某12SH 型离心泵的额定参数为Q=692 m 3/h ,H=10m ,n=1450 r/min 。
试计算其比转数。
5 图。
试计算水泵扬程H 及轴功率N 。
(本小题15分) 解:353.10133.1019650.74-⎪⎭⎫ ⎝⎛⨯+=-=B O ST Z Z H m 86.57=
22114.016.044⨯⨯==ππD Q v S m /273.1=,2
22235.016.044⨯⨯==ππD Q v S m /663.1= j f f w h h h h ++=211j h g v D L g v D L ++=22223/162
22213/16111λλ 12663.135
.02000027.02273.14.0100028.02
3/1623/16+⨯+⨯=g g =22.63m 。
m h H H w ST 49.8063.2286.57=+=+=,
KW QH N 483.1807
.049.80*16.0*81.9===ηγ 答:水泵扬程和轴功率分别为:80.49m 和180.483KW 。
3. 12SH-19A 型离心水泵,设计流量为Q=220L/s ,在水泵样本中查得相应流量下的允许吸上真空高度为[H S ]=
4.5m ,水泵吸水口直径为D=300mm ,吸水管总水头损失为∑h S =1.0m,当地海拔高度为1000m,水温为40C o ,试计算最大安装高度H g . (海拔1000m 时的大气压为h a =9.2mH 2O ,水温40C o
时的汽化压强为h v a =0.75mH 2O) (15分) [解]: 水泵吸水口流速为m/s ..ωQ v π113302
41000220=⨯== [][]).h ()h .(H H va a s s 2403310----='=()()m ......86224075029331054=----
列吸水井水面(0—0)与水泵进口断面(1—1)能方程:
[][]m .....h g v H H s s g 3710181
92113862222=-⨯-=--'=。
答:371.H g =米。