钢板桩围堰设计示例
- 格式:pdf
- 大小:1.69 MB
- 文档页数:49
钢板桩围堰施工方案目录1 工程概况 (3)2 工程地质情况 (4)3 机械及劳动力配置 (5)3.1主要施工机具配置 (5)3.2人员组织 (5)4 施工方案综述 (6)5 围堰结构计算 (6)5.1钢板桩悬受力检算 (7)5.2 渗水量计算 (9)6 围堰开挖封底阶段主要施工方法及注意事项. 106.1 施工工艺流程 (10)6.2钢板桩施工方法 (10)6.3基坑排水 (11)7 安全、文明施工和环境因素管理 (12)8 锚碇区域北侧塔吊加固可靠性检算 (12)北锚碇锚体后悬段钢板桩围堰施工方案1 工程概况后悬段尺寸为23.6m(长)×6m(宽)×5m(高),属于上锚块部分,左右幅对称布置,单个后悬段混凝土约700m3,计划分两次进行浇筑施工,单次混凝土浇筑厚度为2.5m。
开挖5.65m深基坑,回填30cm厚碎混凝土块及15cm厚碎石,再浇筑20cm 厚的C20混凝土垫层。
图1-1 北锚碇沉井立面图(单位:cm)由于目前地下水位较高,且地下为砂土层,基坑采取12m钢板桩进行支护。
待后悬段施工完成,基坑并回填土方后,拔起钢板桩。
钢板桩采用YASP-Ⅳ型,长12m,钢板桩围堰共90延米,225根,重量207.9t。
围堰顶标高+4.8m,底标高-7.2m。
钢板桩围堰施工主要工程量见下表1-1。
表1-1 主要材料汇总表序材料(项材质规格单合计备注1 钢板桩YASP-根222 围堰挡土2 型钢Q235B I45a m 170 围堰内围3 钢管Q235B φ450m 25 围堰内支4 土方开挖m32332 基坑开挖5 混凝土素混C20 m383 封底混凝6 碎石m362 封底垫层7 碎混凝土m3124 封底垫层2 工程地质情况根据地质资料,北锚碇沉井位置各土层的性能参数见表2-1。
表2-1 各土层的性能参数汇总表地层编号层底埋深(m)地层厚度(m)岩土名称重度(kN/m3)固结快剪备注粘聚力Ccq(kPa)内摩檫角Φcq(度)1 1.7 1.7 亚粘土17.732 16.82 3.4 1.8 淤泥质亚粘土18.019 11.33 11.5 8.0 亚砂土18.9 8 31.64 22.8 11.3 粉砂18.86 30.93 机械及劳动力配置 3.1主要施工机具配置北锚碇后悬段钢板桩围堰主要采用挖机进行开挖,吊装施工主要采用塔吊或履带吊。
钢板桩围堰施工方案一、工程简介新建连镇铁路正线跨宁启铁路特大桥于DK241+165.777 处采用32m 简支梁跨越邵仙河。
1078#墩、1079#墩为双线圆端形实体桥墩,墩高 27.85m、27.35m 。
承台为两级承台,一级承台尺寸为10.3×10.3×3m;二级承台尺寸为 5.3×9.1×1.5m ;桩基采用钻孔灌注桩,设计为摩擦桩,1078#共9根,桩径1.5m,桩长42.5m ;1079#共9根,桩径1.5m,桩长40m;1078#、1079#位于河道中,为水中墩,桥墩位置与河岸的关系见下图。
图7.1 1078#墩、1079#墩与河岸位置关系示意图二、邵仙河水文特征实测邵仙河河面宽36m (含河滩宽度),水深2~3m 左右,航道现状等外级航道。
设计通航最高水位为4.33m。
每年7 月底至次年6 月初为枯水期,在此期间施工较为有利。
桥址区地表水对钢筋混凝土具无氯盐侵蚀性。
桥址处河道现状如下:图7.2 桥址现状图三、地震参数根据国家标准《中国地震动参数区划图》(GB18306-2001),场地地震动峰值加速度为0.15g,相应的地震基本烈度为七度,地震动反应谱特征周期分区为1 区,场地类别为Ⅲ类,地震动反应谱特征周期值为0.45。
四、地质概况水中墩承台位于河床内的地质情况较好,围堰钢板桩涉及的地层均为粉质粘土。
自河床往下土层统计详见下表:表7.4 水中墩承台所处地质统计表五、施工工期计划表7.5 工期计划表六、机械投入计划表7.6 机械设备投入计划表七、材料投入计划表7.7 跨邵仙河1078# 、1079#墩(单个)钢板桩围堰数量表八、围堰设计方案正线跨宁启铁路特大桥跨邵仙河处为32m 简支梁结构,1078#、1079#墩位于邵仙河河道中。
承台平面为正方形,长宽10.3m*10.3m。
1078#墩承台底面标高为-5.685m,1079#墩承台底面标高为-5.384m,承台高为4.5m 。
某泵闸工程双排钢板桩围堰设计案例作者:高炜杰徐量来源:《新农业》2017年第06期摘要:某泵闸工程围堰挡水高度4米,河床下为深厚软土层,围堰采用双排钢板桩的型式。
详细阐述了围堰的设计过程,提供了利用理正深基坑软件设计双排钢板桩围堰的方法。
提出了采用“重力式水泥土墙模型”与“排桩拉锚模型”分别进行围堰外部稳定与内部稳定计算,验算围堰宽度、钢板桩长度、稳定、强度等。
工程实际运行效果良好。
关键词:双排钢板桩;围堰;深基坑;稳定;结构双排钢板桩围堰是一种新型围堰型式,相较于常规土石围堰,具有结构自身刚度大、整体性好、止水效果好、变形小、施工周期短等特点。
且由于其堰体小,荷载小,堰体沉降量小,特别在水深较大、水下地形线较陡、空间不大的环境中优势更加显著。
然而该围堰结构形式仍采用以经验为主的理论结合经验的设计方法,尚没有一个统一的计算模型,桩问土作用于前后排钢板桩上的土压力大小及分布无法准确得出,结构受力机理还比较模糊。
因此,本文旨在提供一种可行性的双排钢板桩设计方案,将双排钢板桩围堰计算分为外部稳定性计算与内部稳定性计算,并通过理正深基坑软件实现,为其他相似工程提供设计参考依据。
1工程概况某泵闸工程位于宁波奉化江沿江堤防上,由3孔×4.5米水闸与20立方米/秒泵站组成,工程等别为Ⅲ等,主要建筑物级别为1级,次要建筑物级别为4级。
导流标准为10年一遇,导流建筑物级别为4级。
本工程在汛期需要留有导流通道,在非汛期将河床一次拦断,此时河道入江口将被封堵,平原涝水主要通过其他泵闸排入外江。
工程于2015年12月开工,2016年7月主汛期拆围通水。
外江侧围堰布置位置河底平均高程在1.00米,围堰高度较大,且距离入江口较近,无法布置常规土石围堰,因此选用双排拉森钢板桩围堰。
2工程地质情况工程区位于宁波平原中部,奉化江西岸,为海相沉积平原,区内第四系松散堆积物厚度大,浅部以海相沉积的淤泥质土为主,且厚度变化不大;下部为冲湖积的粉质黏土、黏土、冲海积的黏质粉土及冲洪积的砾砂等。
XX大桥钢板桩围堰专项施工方案因工期需要,本项目主墩承台采用钢板桩围堰,现7#、8#右幅钢板桩围堰已施工完成,左幅采用右幅方式,9#采用左右幅一起围堰,中间分隔。
原设计采用钢套箱,其从制作到安装施工周期单个为1个月以上,并且封底较困难,而钢板桩施工周期单个为1周左右,其封底较简单,施工安全保障。
围堰尺寸定为:单个主墩为10.5m×10.5m,钢板桩选用德国拉森Ⅳ型,采用长度为12m的钢板桩。
1、桥梁桩基、承台的相关参数:7#、8#、9#墩共计设计有24根直径为1.8m、桩长为58m的钻孔灌注桩。
桩基标高参数为:7#主墩桩顶56.178m、桩底-1.822m,8#主墩桩顶55.905m、-2.095m,9#主墩桩顶56.295m、桩底-1.705m。
7#、8#、9#墩设计承台6个、每个承台基础为4根桩。
左右幅承台尺寸为均为7.5m×7.5m×3m。
2、地质资料情况介绍经勘察查明,桥位区未见威胁桥梁安全的不良地质现象,地势开阔、平坦,地层分布简单,工程地质条件较好(详见地质勘察报告)。
3、钢板桩围堰简介根据河床地质和水文情况及施工要求,初步确定围堰尺寸为10.5m×10.5m。
钢板桩为宽0.4m的拉森IV型。
钢板桩入土部分为粉质粘土层,入土深度为承台设计标高底下5m。
其内支撑7#墩-9#墩均设置2道(详见另附图),第1层围囹斜撑均采用2I40a型钢,第2层围囹斜撑均采用2Hw400×400H型钢支撑,节点采用焊接(施工中严格执行钢结构施工规范)。
4、钢板桩的设计7#墩-9#墩围堰尺寸相同,且内支撑材料形式一样,受力情况基本一致,均采用砼封底,因8#墩水位较深,故可只分析验算其中受力复杂的8#墩围堰受力情况即可。
(1)、平面几何尺寸的确定主墩承台的几何尺寸为7.5m×7.5m,左右幅承台间距为4.5m,考虑到施工需要,主要体现在围堰打设方便、承台模板安装的作业空间,以及施工期间围堰内的抽水、集水井设置等因素,最后确定围堰的打设平面几何尺寸为10m×10m。
钢板桩围堰工法预览说明:预览图片所展示的格式为文档的源格式展示,下载源文件没有水印,内容可编辑和复制围堰类型及使用条件钢板桩围堰钢板桩围堰整体刚度大,防水性能好,在粘性土层深水河床桥墩基础施工中,甚至不需水下作业,打拔桩容易,回收率高,可节省大量现场加工构件,因此有一定的优越性。
1 钢板桩围堰平面及结构形式钢板桩平面一般有:1)圆形:受力最理想、支撑结构较简单,但占河床面积大,增加河道通航困难;2)矩形:占河道面积较小,但受水流冲击大;3)圆端型:占河道面积较小,利于通航,受水流冲击力较小,但支撑结构复杂对基础开挖和墩身施工有一定影响。
施工中需结合具体情况选定。
钢板桩围堰结构又分单层(或称单壁)和双层(或称双壁)两种。
单层结构形式由定位桩、导梁(或称导框、围笼)及钢板桩组成。
定位桩可用木桩或钢筋混凝土管桩,导框一般多用型钢组成,对小型矩形基坑如果木料方便也可使用方木制作。
浅基多用矩形及木导梁;中等深度基坑多用圆形及型钢导框;单层圆形及矩形钢板桩平面结构参见图5-19。
当水深和流速较大时则须采用双层钢板桩围堰,参见图5-20。
2 钢板桩类型规格按钢板桩横断面形状分为四类:平型(直型)、槽型、Z型、工字钢或槽钢。
按钢板桩锁口形状分三类:阴阳锁口(防渗性差)、环形锁口、套型锁口(防渗性好)。
在一个围堰内所用的钢板桩宜采用同类型同锁口的钢板桩,如用不同锁口钢板桩时,则需加制异型板桩连接。
3 钢板桩围堰施工:3.1 钢板桩整理钢板桩运到工地后,应进行检查、分类、编号及登记。
锁口检查:用一块长1.5m~2.0m符合类型、规格的钢板桩作标准,将所有同类型钢板桩作锁口通过检查。
检查是用绞车或卷扬机拉动标准钢板桩平车,从桩头至桩尾进行,见图5-25。
凡钢板桩有弯曲、破损、锁口不合的均应整修,按具体情况分别用冷弯、热敲(温度不超过800~1000摄氏度)、焊补、铆补、割除或接长。
板桩长度不够时,可用同类型钢板桩等强度焊接接长,焊接时先对焊或将接口补焊合缝,再焊加固板,相邻板桩接长缝应注意错开,见图5-26。
钢板桩围囹施工详解虎跳门特大桥全长2505.465m,主桥采用(120+248+120)m连续刚构-柔性拱组合结构(见图1),主桥全长489.6m,跨越国家Ⅰ级航道虎跳门堤防。
33号墩为北岸(江村侧)主墩,其基础为12根Φ3m钻孔灌注桩,采用行列式顺桥向3排4列布置,切割桩桩顶标高为-8.174m,桩底标高为-28.174m,桩长20m;承台平面为带圆角的矩形,分2层,平面尺寸为23m*17m*4m+16.6m*13.2m*2m,承台顶标高为-2.174m,底标高为-8.174m,承台高6m;承台采用钢板桩围堰施工,钢板桩长15m,设置3层内支撑围囹,采用C25封底混凝土,封底混凝土厚2.0m。
图1全桥布置示意33号墩位于虎跳门主航道中会,基础范围内河床面高程为-5.18~-5.58m。
标高-12.35m以上为覆盖层,首要为海陆交互海相沉积层,其地质情况从上向下依次为:第1层为灰褐色淤泥弯果细砂,厚度为11~12.4m;第2层为全风化花岗岩,厚度约为2m;第3层为强风化花岗岩,厚度为0~2.5m;标高-16.75m以下为基岩。
节兰按照柱桩设。
33号墩位于输油管道中,象跳门水道为国家Ⅰ级航道,可以通航3000t级海轮,航运繁忙,过往轮船多且吨位大。
由于在航道中各种物资设备、机械、人员均需要有通过栈桥运输,无大型场地堆放材料,对施工造成好多制约。
虎跳门特大桥位于既有公路虎跳门大桥上游2.3km处,根据水文观测资料Q1%=3081m3/s,H1%=3.24m,V1%=0.704m/s。
枯水位为+0.4m,常水位为+2.704m,雨季汛期最高水位为+2.904m,且河道水位受潮汐影响,每日均有水位变化趋势。
钢板桩围堰施工方案主要有2种可供选择:(1)常规施工方法。
钻孔缆线施工完毕后,接高4根角桩钢护筒,在护筒上焊接简易拼装牛腿,安装第1节着力点内支撑框架,切除牛腿,利用吊带吊挂于4根角桩护筒上;利用吊带吊挂下放第1节内支撑网络协议至顶面位于水面,安装钢板桩第2节着力点内支撑框架;利用吊带吊挂下放内充分利用支撑框架至设计位置,将内支撑框架固结于4根角桩护筒上;利用但仅支撑框架作为导向,在沿线插打钢板桩,插打完成后在清淤前将钢板桩与第1道水平支撑焊接牢靠,在保证内、外水头一致的情况下,吸泥、清理河床至封底混凝土底面、封底混凝土施工[1,2];在承台第1层混凝土顶面与钢筋桩围堰之间设置剖面抄紧垫块,进行支撑受力转换,使第3道内支撑框架的反力转换至抄紧垫块,拆除第3道内支撑框架保留周边框架;浇筑2八层混凝土及加台混凝土,第1、2道内则支撑框架中间2根内支撑转换,拆除第2道内支撑框架,围堰内注水施工墩身。
主墩承台钢板桩围堰施工方案一、概述珠江大桥东桥主墩承台,承台面低于平均潮位,承台底位于河床面以下,采用钢板桩围攻堰施工。
每个主墩有一个承台,承台尺寸为8.6m×6.7m×2.5m。
承台使用C30标号混凝土,分两次浇筑完成。
主筋为φ25钢筋,分两次安装完成。
承台模板一次安装到位。
模板采用小块组合钢模,以10cm方条为加劲梁,用水管或木尖支撑在钢围堰上。
工作平台采用门式支架,上端铺设10号槽钢,其上铺5cm木板,木板用马钉连成整片。
主墩承台在主墩桩基施工结束后开始进行施工。
材料转运利用装卸机、平板车、工作船、龙门吊和浮吊;人员上下班利用便桥;混凝土利用泵送。
二、三、1.简述一道在承台面上50cm×50cm1) 轴向力达200t,2)(123)4.注意事项1) 钢板桩围堰的防渗能力较好,但遇有锁口不密、个别桩入土不够及桩尖打卷的情况时,仍有渗漏、锁口不密的漏水可在抽水发现后以板条、棉絮、麻绒等在板桩内侧嵌塞,或在处侧抛洒锯屑堵塞。
堰脚漏水时,应观察研究打桩情况或由潜水工探索找出漏水位置,采用水下混凝土局部封底的办法防渗,以保证内撑受力均匀。
2) 内撑梁的加工及安装应严格控制精度,安装时测量组应配合定位各构件的平面位置,控制好各部位有关标时高程,防止意外。
3) 围堰抽水过程应检测钢板桩及内撑系统变形,变形过大应立即停止抽水,采取有效办法加固后再行施工。
四、钢板桩打入施工工艺1.简述珠江大桥东桥9/a~12/a(9/b~12/b)墩承台采用钢板桩围堰施工,钢板桩型号为FSPⅢ型,用振动锤打入强风化岩层中形成围堰后,在围堰内抽干水进行承台施工。
2。
工工艺流程图:3.场地准备门吊钢轨(龙门吊停放于围堰范围外)证龙门吊在围堰施工过程能正常使用。
平台准备好后,按施工图在桩基护筒上摆放架设内撑系统的工字钢,然后开始安装内撑系统。
先安装内撑系统的原因是因为内撑要作为钢板桩的导向装置。
内撑安装时,测量组须进行精确定位,保证各部件的安装精度(±1cm),考虑到工期的紧迫性,内撑系统应按图纸先行加工、预制成部件,运到平台拼装。
围堰专项施工方案编制:审核:审批:某某建设工程有限某某建设工程项目部年月日目录一、工程概况 (3)二、围堰方案比选 (3)三、围堰施工专项方案 (5)四、施工计划安排 (6)五、围堰施工注意事项 (6)六、围堰安全应急预案 (7)围堰施工专项方案一、工程概况该工程位于某某市,桥梁全长162m。
驳岸施工土质较复杂,软弱土层较多(具体土质情况详见地质勘察报告),施工时须对河中实施围堰,便于桥梁下部结构施工。
二、围堰方案比选围堰是一种临时性的挡水结构,用于在河流、湖泊等水域中隔离出一定的工作区域,以便进行水利工程建设、河道治理、桥梁施工等作业。
围堰的主要作用是防止水流对施工区域的影响,保证工程的顺利进行。
1、围堰的特点:围堰具有结构简单、施工方便、造价低廉等特点。
同时,围堰还需要具备一定的抗洪能力,以确保在施工期间能够抵御可能出现的洪水。
2、围堰的结构要求:围堰的结构要求主要包括稳定性、密封性和耐久性。
稳定性是指围堰能够承受水流、风浪等外部力的作用,保持整体稳定;密封性是指围堰能够有效地隔离工作区域和水域,防止水流渗透;耐久性则是指围堰在长期使用过程中能够保持其结构完整性和功能稳定性。
3、围堰的设计方案:围堰的设计方案需要根据具体工程条件和施工要求进行制定。
一般来说,围堰的设计需要考虑河流的水位、流速、流量等因素,以及施工期间可能出现的天气、水文条件等因素。
设计方案应包括围堰的结构形式、材料选择、施工方法等内容,并需要进行详细的结构计算和稳定性分析,以确保围堰的安全性和稳定性。
同时,在设计过程中还需要考虑到环境保护和生态平衡等因素,避免对周围环境造成不利影响。
本工程根据场地现有情况,本次设计两种围堰用以比选。
方案一:土石坝围堰:利用当地现有材料作为主要筑填材料;方案B:钢板桩围堰:采用钢板桩作为围堰外壁,然后填充粘土。
方案A(土石坝围堰)为传统的土石围堰,采用土石材料填筑河道。
土石围堰通常存在如下问题:(1)围堰一般要求快速施工,实际施工中往往需要量大土石方,但土石方运送以及堆不高不急时,容易造成沉滑问题。
钢板桩围堰设计计算一、土层地质情况根据设计图纸提供的参数,设计洪水位为+5.40M ,12#墩河床高程为-2.00M, 土层地质为淤泥质粉质粘土,土性质为:γ为16.5KN/M 3 ,φ取9.50 ,C 取12.3KPa 。
二、支撑布置围堰中共设三道支撑,第一点支撑标高为+3.19M ,第二支撑标高为+1.19M ,第三道支撑标高为-2.41M, 采用H40型钢进行支撑。
以φ400的钢管进行斜支撑。
支撑图纸如下图:H2=5.625H1=7.4R3R2R1支撑布置图(单位:M )三、体系简化验算:主动土压力系数:Ka=tg 2(450-9.50/2) =0.717 土压力: 取γ浮=9N/M 3Ea=1/2Ka γH 22 =1/2×0.717×9×5.6252 =102.088KN/M水压力:纯水 w 水=1/2ρg(H 1+H 2)2=1/2×10×(7.4+5.625)2=848.253KN/M 总压力 :Ea+E 水=102.088+848.253=950.341KN/M压力计算图单位:压力计算图(单位:M )四、应力计算R 1=1/2×10×(5.4-3.19)2=24.42KN/MR 2=1/2×10×(5.4+0.61)2-24.42=156.18-24.42=131.76KN/MR 3=1/2×10×(5.4+5.018)2-156.18+1/2×0.717×(5.018-2)2×9=415.882KN/M R 4=1/2×10×(5.4+7.625)2-542.674+1/2×0.717×9(7.625-2)2-29.388=378.284KN/M 五、钢板桩验算采用拉森Ⅳ型,宽40cm ,截面系数Wx=2270cm 3 R 1=24.42×0.4=9.768KN R 2=131.76×0.4=52.704KN R 3=415.882×0.4=166.353KN R 4=378.284×0.4=151.314KNN=1/2qH=1/2×0.4×9.8×H ×H=1/2×3.92×H ×H 即 q=3.92×H M E =0M D =-1/2×10×(5.4-3.19)2×1/3×2.21×0.4=-7.196KN.M M C =9.768×2-1/6×10×4.213 ×0.4=-30.21KN.MM B =9.768×5.6+52.704×3.6-1/6×10×7.813 ×0.4-1/6×0.717×9(2.41-2)3×0.4=-73.18M A =9.768×10.815+52.704×8.815+166.353×5.215-1/6×10×0.4×13.0253-1/6×0.717×0.4×9(7.625-2)3=-111.942KN.MM DC 中点=9.768×1-1/6×10×3.213 ×0.4=12.283KN.MM CB 中点=9.768×3.8+52.704×1.8-1/6×10×6.013 ×0.4=54.9KN.MM BA 中点=9.768×8.208+52.704×6.208+166.353×2.608-1/6×10×10.4183 ×0.4-1/6×0.717 ×9×3.0183 ×0.4 =75.574KN.M根据计算结果绘制弯矩图如下:单位:KNMMax=111.942KN.M查表得钢板桩[σ]=180MPa 截面模量w=2270cm3σ=111942/2270=49.3MPa<[σ]=180MPa 满足要求!六、基坑底的安全验算按围堰施工至封底混凝土人顶标高-7.625根据公式'γ>Kj 取安全系数K=1.5土的浮容重'γ=16.5-10=8.0KN/M3最大渗流力j=iγwi=h/(h+2t) =(5.4+7.625)/(5.4+7.625+2t)=13.025/(13.025+2t)t 为钢板桩底部到开挖面的距离所以j = iγw =10×13.025/(13.025+2t)'γ≥K j≥1.5×130.25/(13.025+2t)t≥5.7Mt实施过程中取值为6.5M,大于5.7M,满足要求!根据上面计算设计的钢板桩围堰基坑底满足安全方面要求。
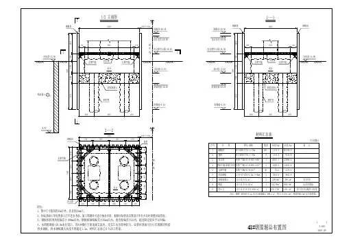
112018.091:16041#墩围堰总布置图粉质黏土22承台400015002350200051501500012000300060003000110098001100内支撑5000/2=2500支撑牛腿支撑牛腿封底混凝土钢护筒钢板桩河床面+15.00+0.91围堰底+5.50承台底+12.65封底砼底+10.65内支撑中心线+16.50设计水位+20.00围堰顶+20.501/2 立面图22111---1承台4000150023502000515015000围堰底+5.50承台底+12.65封底砼底+10.65内支撑中心线+16.50设计水位+20.00围堰顶+20.50钢板桩封底混凝土钢护筒280048002800支撑牛腿钢板桩支撑牛腿10400河床面+15.001300内支撑78001300承台桥中线2---2桥中线275032503250275012000275024502450275010400160024002000200024001600120024001600240012005000/2=2500角桩钢板桩支撑牛腿内支撑序号名 称图号/规格数量单重(kg)总重(kg)备 注1357钢板桩SP-U400×170,L=15m 22023621141.513943.132.6249.6m³251130.027886.21173.6499.2m³以41#墩计材料汇总表内支撑支撑牛腿封底混凝土见图“CBQ-03-B-605~608”见图“CBQ-03-B-611”12×10.4×2 m³水下C302角桩SP-U400×170,L=15m 89132.01141.5附注:1、图中尺寸除高程以m计外,其余均以mm计。
2、封底混凝土厚度暂按土层不透水考虑。
施工围堰时可进行抽水实验,根据实际情况反馈设计单位并及时调整封底厚度。
船台及驳岸施工围堰设计与计算1、工程概况浙江舟山市六横岛位于舟山群岛的南部海域,在虾峙门国际航道的西南侧,是舟山市的第三大岛,为舟山市重点扶持的三大岛之一,占地约106。
8 平方公里。
厂址区域四周由穿山半岛和舟山群岛所环抱,形成一个近封闭水域。
本工程位于厂内八号、九号码头之间。
工程范围:1. 船台二座:船台长250m,宽45m,水下段长60m,滑道坡度1:20,滑道底标高-3 。
00m,顶标高12。
40m;2. 陆域独立吊车道: 600T 龙门起重机轨道一组:2x437m; 150T门机轨道三组:6x303m;3. 直立驳岸约230m。
为了确保船台及驳岸的干地施工,须在外海侧顺堤设围堰,从而确保工程进度。
本工程工作量大,施工时间相对较紧,施工工期:2008 年1 月1 日~6 月30 日,共6 个月。
2、自然条件2.1 水文资料设计水位:设计高水位:2.14m设计低水位:-2.60m下水水位:1.50m2.2 地质资料场地内地质构造活动较稳定,未见新构造运动及活动断裂,不存在液化土层,故属基本稳定区。
根据工程地质勘察报告,场地地层自上而下分为:① 1 层杂色填土,为新近人工回填而成;① 2 层淤泥、② 1 层灰色淤泥质粉质粘土、④层粘土为软弱场地土;③1 层暗绿~灰黄色粉质粘土、⑤ 1 浅黄~灰绿色粉质粘土及⑤ 2 层粉质粘土夹砂砾、碎石为中硬场地土,⑥层强风化晶屑凝灰岩、⑦层中等风化晶屑凝灰岩为坚硬场地土。
由于拟建场地20.0m 深度范围内无饱和砂性土及粉土存在,本场地为不液化场地。
场地内分布有较厚的软弱土。
该区域由于拟建场地周围无污染源存在,对钢结构具中等腐蚀性。
本次设计钢板桩插入② 1 层灰色淤泥质粉质粘土土层中,淤泥质粉质粘土的物力力学性质指标为:含水率42.6%,比重 2.74,重度3,固快粘聚力13.34kPa、内摩察角12.5。
17.4kN/m其余参数详见地质勘探报告。
3、围堰方案比选围堰是用于围护水工建筑施工场地的临时挡水建筑物。
N2~N4围堰设计说明书(讨编稿)一、基本资料1、承台平面尺寸24.30×11.30,承台顶高程+10.5,承台厚5.0m,承台底高程+5.5m;2、围堰内净尺寸24.45×11.45m(考虑到位移变形影响,每侧增加75mm);3、围堰顶面高程暂按+20.5 m;4、围堰底高程+4.0,围堰高度20.5-4.0=16.50 m;5、河床底高程+8.85 m;6、分节制造:第一节(底节)高程从4.0~5.5,高1.5m(含起吊梁);第二节(中节)高程从5.5到10.5m,高5.0m(到承台顶面,水平加劲桁架设在外侧);第三节(上节)高程从10.5到20.5m高10.0m(水平加劲桁架高在内侧);7、抽水高程暂按+19.5m时抽水(按10月份的平均水位)。
此时抽水头高差14m(水头差);8、围堰底端入泥高度4.885m,利用吸泥机吸泥和自重下沉到+4.0。
二、吊箱围堰的结构设计1、设计特点:根据目前已完成桩基施工的前提,以及结合桥址处河床地形地质和水文条件,本次钢吊箱在施工下沉前为无底的钢吊箱,下沉到位后转化成有底的钢吊箱的总方案。
a、设计采用单壁式构造;b、根据钢吊箱工况需要中节用外侧桁架,上节用内支撑工字梁的全焊结构设计;c、拼弃传统的分块模式,本设计采用叠层式分块,以利于制造、起吊、拼装和拆除;d、采用特殊的止水带和节段间的联结;e、采用整体拆除钢吊箱的方案,采取特殊的工艺削减承台侧面和箱侧砼的粘结力,以利于整体提升拆除和重复使用;按照目前施工设备浮吊的起吊能力仅为150t,因此N2~N4钢吊箱设计分为底节、中节和上节组成共有三部分,结构尺寸和起吊重量如下表:2、第一节(底节)围堰是一个底部设有井格梁的无底吊箱结构,总高度1.95m。
箱体是由外侧加劲板和4条纵向起吊桁架和8条横向辅助桁架焊接成无底井格形全焊结构。
外侧板用δ=6mm钢板和L75×50×6mm加劲角钢劲肋间距取350mm组成侧板。
单层钢板桩深水围堰工程实例分析1.工程概况本工程基坑围堰位于常熟市常熟至福山公路望虞河上。
望虞河是太湖流域东北部的一条入江河道,主要为太湖泄洪之用。
望虞河大桥主桥为悬浇预应力混凝土连续箱梁。
主墩4号、5号墩为水中墩,采用单层钢板桩深水围堰方法施工。
本文以4号墩围堰施工为例对单层钢板桩深水围堰作具体分析。
主墩为埋置式承台,埋入河床泥面以下0.7m左右。
由于望虞河连接长江,受潮汐水位影响比较大,施工期间水位为1.5m~2.0m。
钢板桩顶标高控制为2.5m。
基坑底至施工水位平均为11.0m。
本桥承台尺寸为6.7m³14.7m,采用10m³18m的钢板桩围堰进行施工,钢板桩长为18m。
其尺寸见示意图。
2.工程地质情况本基坑钢板桩埋深范围内地质情况为:⑴层第一层亚粘土,灰黄色,软塑~可塑高程为 -5.8m ~ -11.1m。
⑵层第二层粉砂夹亚粘土,灰、灰黄色,稍密~中密高程为 -11.1m ~-13.3m。
⑶层第三层亚粘土,灰黄色,密实高程为 -13.3m及以下。
表1. 基坑中土性参数表层号名称重度r(KN/m3) 粘聚力c(KPa)内摩擦角Φ(°)⑴亚粘土19.4 33.4 12.8⑵粉砂夹亚粘土18.8 10 19.3⑶亚粘土19.6 35.6 14.63.方案的选取本基坑设计时,首先按先抽水再挖土的干挖法设计,对选用钢板桩长度、基坑稳定性能进行验算。
3.1 坑底涌砂验算本基坑范围内的亚粘土及粘土的含砂量较大,土层中间又有一层粉砂夹亚粘土层,所以对基坑内抽水可能引起涌砂的危险。
对基坑进行涌砂验算(如图2(a)所示),不产生涌砂的安全条件为:K²i²rw ≤rb式中:K—安全系数;i—水力梯度,i=h’/(h1+t);rw—水的容重;rb—土的浮容重。
本基坑中:t=6.5m;h1=9.7m;h’=11.0m;e=0.82;rs =2.719;rb=0.94g/cm3K=rb /(i²rw)=0.94/(0.679²1)=1.43.2 坑底隆起验算开挖基坑时,在坑壁土体自重及外荷载作用下,坑底软土可能受挤在坑底发生隆起现象(如图2中(b)所示)。
可编辑修改精选全文完整版钢板桩围堰计算书目录第一章设计条件 (1)1.1工程概况 (1)1.2设计概况 (1)1.3主要计算依据 (2)1.4荷载计算 (3)1.5土体参数 (3)1.6 材料特性 (4)第二章基坑支护结构受力计算 (4)2.1 计算工况 (4)2.2 钢板桩计算 (5)2.2.1工况一 (5)2.2.1工况二 (6)2.3 围檩及支撑 (8)第三章基坑稳定性验算 (11)3.1钢板桩入土深度验算 (11)3.2基坑稳定性计算 (11)3.3基坑承载力计算 (13)第一章设计条件1.1工程概况主线大承台位于陆地上,根据基坑开挖深度,拟定3种类型钢板桩围堰。
对于边墩承台拟定一种类型钢板桩围堰。
对于大承台,开挖6.5m及以上选用15m长钢板桩围堰,2层支撑;开挖6m-6.5m选用12m长钢板桩围堰,2层支撑,开挖6m以下,选用12m长钢板桩,1层支撑。
对于小承台,选用12m长钢板桩,一层支撑。
该计算书验算大承台第一种类型ZX179#(开挖7.45m)承台围堰受力情况。
ZX179#承台水文资料及设计参数计算,统计如下:(1)钢板桩顶标高: +9.0m(2)钢板桩底标高: -6m(3)承台顶标高: +4.8m(4)承台底标高: +1.6m(5)承台高度: 3.2m(6)地面标高: +8.95m(7)地下水位: +5.16m1.2设计概况承台尺寸18.7×10.6×3.2m,钢板桩围堰内轮廓尺寸为20.8×12.5m,高15m。
采用拉森—400×170型钢板桩,承台为一次性浇筑,按照开挖深度设置两道围檩及支撑。
围檁采用2I56,斜撑均采用2I32,内支撑均采用φ426×10钢管。
施工工艺:插打钢板桩并合拢,开挖至桩顶以下1m,安装第一道围檩及支撑;继续开挖并降水至第二层围檁标高,安装第二层围檁及支撑;开挖至基坑底;浇筑10cmC20混凝土垫层;进行承台施工。
钢板桩设计计算过程1.工程概况1.1项目概况河床地质:主要为粉土和粉砂,施工水位+1.59m,且河道内水流流速很小。
土层容重3/3.19mKN=γ,内摩擦角φ=14.85°,粘聚力c=15Kpa,河床底标高-6.12m。
1.2钢板桩围堰结构参数钢板桩拟采用拉森SKSP-SX27钢板桩,材质为SY295,钢板桩具体参数见表1-2。
表1-2 钢板桩截面参数表共设4道内支撑:(1)第一道围囹采用2HW588×300,围囹上下翼缘板采用10mm厚钢板焊接,见图1.1,内支撑采用φ600×12mm的钢管。
(2)第二、三、四道围囹均采用2HN900×300,围囹上下翼缘板采用10mm 厚钢板焊接,见图1.2,长内支撑采用φ660×16mm钢管,短内支撑采用φ600×12mm的钢管。
钢板桩采用SY295钢材,其余钢材均按照Q235钢材计算。
材料容许应力为:SY295bz钢板桩:[σ]=215Mpa;Q235钢材,强度计算:[σ]= 170MPa;稳定性计算:[σ]= 215MPa。
图1.2围堰立面布置图2.计算假定及荷载分析2.1计算假定本工程土压力计算采用的水土分算法,即钢板桩承受静水压力、主动土压力及被动土压力。
2.2土压力计算主动土压力系数:2tan (45)0.5922a k φ=-=0.7694=被动土压力系数:2tan (45) 1.6892p k φ=+=; 1.2997=水土分算土的浮重度为:3=19.310=9.3kN γ-’土/m 根据《建筑施工计算手册》,被动土压力修正系数: 1.594k =,则' 1.394 1.689 2.354p p K kk ==⨯=主动土压力:'20.5929.32150.7694 5.5123.08a a p k h h h γ=-=⨯-⨯⨯=- 令0a p =,求得h=4.2m 2.3静水压力计算h q w γ=3.工况分析3.1工况分析通过分析对以下几个工况进行计算,图中q a 为主动土压力强度,q p 为被动土压力强度,q w 为水压力强度。
钢板桩围堰摘要:严西湖大桥共有19个水中承台需要采取专项措施施工,本文从钢板桩围堰设计、施工以及后续的抽水开挖等方面简要介绍了严西湖大桥承台施工工艺和措施,并汇总了施工过程中发生的直接成本。
关键词:水中承台钢板桩围堰设计施工1、前言严西湖大桥是武汉市花山生态新城东西向一条主干道路,项目全长3.33km,其中主桥长1323.5m,为单箱五室等截面预应力连续箱梁,箱梁为蝶形,跨度有3 1.5和40m两种尺寸,引桥全长1414m,为预制24~25m斜腹小箱梁,路基592. 5m。
严西湖水域内共有19个桥墩,桥墩为H型变截面花瓶墩,高度从6.3m~11.4m 不等,承台尺寸5.5×7.9×2.5m,根据景观和通航要求,本项目承台均埋入河床内(承台顶面与河床平),桥梁基础为直径1.5m钻孔灌注桩,每个承台5根,呈梅花形布置。
项目的地质情况自上而下主要由5个单元层组成,即(1)填土层(Qm1)及湖积层(Q1);(2)第四系全新统冲积(Q4al)的一般粘性土层;(3)第四系上更新统冲洪积(Q3al+pl)的老粘性土层;(4)残积层(Qel);(5)志留系(S)泥岩、砂岩。
本项目的水中施工采用钢栈桥和钢管桩贝雷支架施工方案,每墩搭设钻孔平台和8m宽支栈桥。
湖区最高控制水位19.5m,考虑施工和拆除方便,钻孔平台和栈桥顶面标高大于22m。
2、钢板桩围堰设计钢围堰结构设计过程需要考虑以下5个方面:A、各种工况下的钢板桩剪力、弯矩和位移;B、整体稳定性验算;C、抗倾覆稳定性验算;D、抗隆起验算;E、桩的嵌固深度计算。
以上计算均可以采用理正深基坑计算软件进行,相关参数和安全系数满足《建筑基坑支护技术规程》、《建筑基坑工程技术规范》要求。
本项目基底无承压水,未做突涌验算。
为确保围堰内支撑安全可靠,在利用理正深基坑程序验算合格后,利用MIDAS CIVIL有限元程序建立钢围堰整体模型,计算围堰内支撑和钢板桩的受力状况。
某泵闸工程双排钢板桩围堰设计案例方案,将双排钢板桩围堰计算分为外部稳定性计算与内部稳定性计算,并通过理正深基坑软件实现,为其他相似工程提供设计参考依据。
1工程概况某泵闸工程位于宁波奉化江沿江堤防上,由3孔×4.5米水闸与20立方米/秒泵站组成,工程等别为Ⅲ等,主要建筑物级别为1级,次要建筑物级别为4级。
导流标准为10年一遇,导流建筑物级别为4级。
本工程在汛期需要留有导流通道,在非汛期将河床一次拦断,此时河道入江口将被封堵,平原涝水主要通过其他泵闸排入外江。
工程于2015年12月开工,2016年7月主汛期拆围通水。
外江侧围堰布置位置河底平均高程在1.00米,围堰高度较大,且距离入江口较近,无法布置常规土石围堰,因此选用双排拉森钢板桩围堰。
2工程地质情况工程区位于宁波平原中部,奉化江西岸,为海相沉积平原,区内第四系松散堆积物厚度大,浅部以海相沉积的淤泥质土为主,且厚度变化不大;下部为冲湖积的粉质黏土、黏土、冲海积的黏质粉土及冲洪积的砾砂等。
根据本次勘察的钻孔现场编录资料和土工试验成果,按地基土的土性特征、成因时代、埋藏分布条件及其物理力学性质,将场地勘探深度范围内的地基土划分为7个工程地质层,细分为11个工程地质亚层,围堰位置钻孔揭示主要为Ⅱ层淤泥质粉质黏土(mQ4)及V层粉质黏土(al-1Q3)。
3围堰结构型式初步拟定3.1钢板桩型号采用型号为PU-400×170热轧钢板桩。
桩顶高程为3.12米。
挡水高度为4米。
于2.50米及 1.00米高程各设置一道拉筋,拉筋采用型号为GB/T20934-2007-GLG345-D2-20×4000的钢拉杆,间距为1.6米,围檩采用2[32b]。
3.2建筑围堰内迎水面铺设一层防渗土工膜用于防渗,背水面钢板桩利用拉杆开孔排水。
堰体内以塘渣分层填筑,表面采用彩条布覆盖防水。
为增加安全系数,堰体两侧设2米宽抛石平台,以1:2坡度放坡到河底。