工具式钢筋加工防护棚4
- 格式:pdf
- 大小:75.41 KB
- 文档页数:1
钢筋木工加工棚一、加工棚基础加工棚基础平面图加工棚剖面图加工棚基础平面图说明:本加工棚为工具式,可周转利用,加工棚外设散水明沟,确保排水畅通。
加工棚基础说明:1、如无筋基础不能满足加工棚安全要求时,可浇灌有筋基础。
2、加工棚内地面需进行硬化,采用C20砼。
3、基础本加工棚为工具式,可周转利用,加工棚外设散水明沟,确保排水畅通。
4、该防护棚主要作用是防止高处落物伤人和保护机械设备,采用角钢焊接而成的,柱子采用方钢或圆形钢柱。
防护棚上方四周可挂安全警示标志牌和宣传标语。
5.在建筑物危险半径以内或建筑物高度大于24米以上时,必须采用双层防护。
在塔吊半径以外或建筑物高度小于24米时,可采用单层防护,棚内设施、设备有防雨要求时,防护棚应有防雨措施。
6.防护棚内的防护栏杆刷红白油漆相间@300,其余所有杆件刷黄色油漆。
7.该防护棚设计宽度为6米,高度为4米,如长度不够可增加一跨但结构不得随意改动。
8.开关箱的摆放位置应靠近操作人员,与所控制设备的距离不加工棚有筋基础加工棚无筋基础1001501501002280803-3φ6@2004011010015015010020010033J-1100501501505010015015050100501005540110550.000-0.200φ6@200φ6@200φ6@200得大于3米。
木工棚内应设置灭火器。
第三章 工具化、定型化防护3.1 管理要求3.1.1“四口”是指:楼梯口、电梯口、预留洞口、通道口。
根据《建筑施工高处作业安全技术规范》(JGJ 80-2016)当垂直洞口短边边长小于500 ㎜时,应采取封堵措施;当垂直洞口短边边长大于或等于500 ㎜时,应在临空一侧设置高度不小于1.2 m的防护栏杆,并应采用密目式安全立网或工具式栏板封闭,设置挡脚板;当非垂直洞口短边尺寸为250~500 ㎜时,应采用承载力满足使用要求的盖板覆盖,盖板四周搁置应均衡,且应防止盖板移位;当非垂直洞口短边边长为500~1500 ㎜时,应采用专项设计盖板覆盖,并应采取固定措施;当非垂直洞口短边边长大于或等于1500 mm时,应在洞口作业侧设置高度不小于1.2 m的防护栏杆,并应采用密目式安全立网或工具式栏板封闭,洞口应采用安全平网封闭。
3.1.2“五临边”是指深度超过2 m的槽、坑、沟的周边,在无外脚手架的屋面(作业面)和框架结构楼层的周边;井字架、龙门架、外用电梯和脚手架与建筑物的通道、上下跑道和斜侧道的两侧边;尚未安装栏板、栏杆阳台、料台、挑平台的周边;在施工程楼梯口的梯段边。
五临边必须设置防护栏杆,给排水沟槽、桥梁工程、泥浆池等临边危险部位应进行有效防护。
3.1.3井临边洞口高处作业前,应逐级进行安全技术教育及交底,落实所有安全技术措施和人身防护用品。
3.1.4 高处作业中的安全标志、工具、仪表、电气设施和各种设备,必须在施工前加以检查,确认其完好,方能投入使用。
3.1.5 攀登、悬空高处作业人员及搭设高处作业安全设施的人员,必须经过专业技术培训及专业考试合格,持证上岗,并必须定期进行体格检查。
3.1.6 施工中对高处作业的安全技术设施,发现有缺陷和隐患时,必须及时解决;危及人身安全时,必须停止作业。
3.1.7 作业场所有可能坠落的物件,应一律先行撤除或加以固定。
高处作业中所用的物料,均应堆放平稳,不妨碍通行和装卸。
工具式钢筋防护棚施工方案一、施工准备与交底施工前,详细阅读施工图纸,明确工程要求及设计参数。
召集施工人员进行技术交底,确保每位施工人员明确施工任务、技术要求、安全注意事项及质量标准。
准备所需施工材料、设备,包括但不限于钢筋、连接件、防护棚材料等,并对材料进行质量检查,确保其符合设计要求。
设立施工现场管理人员,负责现场协调与监督。
二、钢筋加工场地硬化选择平整、坚实的场地作为钢筋加工区,确保加工过程中场地稳定,避免对钢筋质量造成影响。
对选定场地进行硬化处理,如铺设混凝土地面或铺设钢板等,以确保场地平整、耐磨、防滑。
三、立柱安装与固定根据施工图纸确定立柱位置,确保立柱间距与高度符合设计要求。
立柱底部应安装基础底座,确保立柱稳固不晃动。
立柱间应设置水平拉杆,以增强整体稳定性。
四、防砸材质与安装选择符合安全标准的防护棚材料,如抗冲击、耐磨损的硬质塑料或钢板等。
根据施工图纸进行防护棚的安装,确保安装牢固、紧密,能够有效防止上方掉落物砸伤工人。
五、安全警示标识设计在防护棚显眼位置设置安全警示标识,如“注意安全”、“禁止抛物”等,提醒工人注意安全。
标识应清晰、醒目,易于被工人注意到。
六、操作规程图牌制作制作操作规程图牌,包括钢筋加工、防护棚搭设、验收等环节的操作流程与注意事项。
图牌应悬挂于施工现场显眼位置,方便工人随时查看,确保施工操作的规范性。
七、搭设施工与验收按照施工图纸与施工方案进行防护棚的搭设施工,确保每一步施工都符合设计要求。
搭设完成后进行验收,检查防护棚的稳定性、密封性、抗冲击性等是否符合安全标准。
八、施工安全与质量控制施工过程中应严格遵守安全操作规程,确保工人的人身安全。
定期对施工现场进行检查,及时消除安全隐患。
对施工材料进行质量控制,确保其符合设计要求。
对施工质量进行验收,确保工程质量符合要求。
本施工方案仅供参考,具体施工过程中应根据实际情况进行调整。
在施工过程中,应始终遵循安全第一的原则,确保施工任务的高效、优质完成。
可移动式钢筋加工防护棚施工工法可移动式钢筋加工防护棚施工工法一、前言随着钢筋加工工艺的不断提升,在施工现场,对于钢筋加工的需求也越来越大。
可移动式钢筋加工防护棚施工工法应运而生,为钢筋加工提供了一个安全、高效的施工环境。
本文将详细介绍可移动式钢筋加工防护棚的工法特点、适应范围、工艺原理、施工工艺、劳动组织、机具设备、质量控制、安全措施、经济技术分析和工程实例。
二、工法特点可移动式钢筋加工防护棚是一种灵活的施工设备,具有以下特点:1. 可移动性:该防护棚可以自由组装和拆卸,并具有一定的灵活性,在施工现场可根据需要进行移动和调整。
2. 钢筋加工专用:防护棚内部设有钢筋加工设备,如剪切机、弯曲机、焊接机等,能够满足钢筋加工的需求。
3. 安全性高:防护棚具有防护功能,可以为工人提供安全的施工环境,在钢筋加工过程中能够有效地保护工人免受伤害。
4.施工效率高:防护棚内设备齐全,施工人员可以在一个区域内完成钢筋加工工作,大大提高了施工效率。
三、适应范围可移动式钢筋加工防护棚适用于各类钢筋加工项目,广泛应用于建筑、桥梁、隧道、地铁等工程。
不论是大型施工项目还是小型钢筋加工作业,该工法都能提供合适的解决方案。
四、工艺原理可移动式钢筋加工防护棚工法将施工工法与实际工程相结合,采取一系列的技术措施:1. 构筑支撑结构:根据施工现场的具体情况,搭建起支撑结构,确保防护棚的稳定性和安全性。
2. 设置通风设备:在防护棚内设置专用通风设备,以确保室内空气流通,减少粉尘对施工人员的危害。
3. 布置钢筋加工设备:根据施工需求,合理布置钢筋加工设备,确保钢筋加工作业的顺利进行。
4. 保证钢筋加工质量:对于钢筋的加工工艺和规范进行严格控制,确保加工质量符合设计要求。
5. 施工现场管理:对施工现场进行合理的布局和管理,确保施工过程安全、高效。
五、施工工艺1. 搭建防护棚结构:根据施工现场情况,搭建起防护棚的支撑结构,确保稳定性和安全性。
1 . 木工加工棚工具式加工棚搭设尺寸宜选用3000mm×4500mm 单组加工棚拼装加长,如木工加工棚一,具体尺寸根据现场实际情况确定。
当对环境保护有特殊要求的项目,采用板房搭设封闭式木工房,如木工加工棚二尺宜为5400mm×5400mm。
1. 搭设在塔吊回转半径和建筑物周边的工具式木工加工棚必须设置双层硬质防护。
2. 加工车间地面需硬化,宜选用砼地面。
3. 立柱与地面连接方式与工具式钢筋加工棚相同。
4. 加工车间顶部应张挂安全警示标识和安全宣传用语的横幅,横幅宽度宜为1m。
5. 工具式木工加工棚需在醒目处挂操作规程图牌,图牌的尺寸为:宽×高=3000mm×1500mm,图牌朝内。
6.各种型材及构配件规格为参考值,具体规格应根据当地风荷载、雪荷载进行核算1.桁架除主梁,全部采用50×150mm 方钢;2. 桁架主梁采用150×150mm;2.顶铺0.5mm 厚压型钢板;4. 上层檩条上设置20×20mm 网孔钢板网;5.下层檩条上方铺设脚手板;6. 下层檩条下挂0.5mm 厚压型钢板或塑料扣板吊顶;7. 檩条为40×40 方钢;8. 立柱与桁架各焊接一片250×250×10mm 耳板,以M12 螺栓连接;9. 立柱为150×150mm 方钢提示:图纸(图片)仅供参考以实际生产加工图纸数据为准。
河南新乡锦银丰护栏厂(henan xinxiang jinyinfeng fence factory)是成立于2002年的生产型老护栏厂。
是建筑施工安全定型标准化产品研发、生产、销售和服务的综合型企业,全称为河南新乡锦银丰金属制品有限公司,生产热镀锌喷塑护栏,锌钢阳台护栏,空调栏杆,仿木纹护栏,组装楼梯,锌钢百叶窗,工地护栏网,基坑临边防护,建筑工地围栏,临时围挡,建筑防护栏杆,工地电梯门,电梯井防护门,爬架网,工地木工棚,钢筋加工棚,工地防护棚,安全通道,标准化建筑工地组装式钢筋加工棚,围墙护栏,铁艺护栏等,设备齐全质量稳定的实体生产型护栏厂家,品种齐全,在建筑行业拥有良好口碑的建筑护栏生产厂家。
钢筋加工棚/钢筋防护棚数据尺寸参考
建筑工地用组装式安全通道、组装式木工加工棚、组装式钢筋加工棚型厂家批发
产品名称:组装式安全通道、木工棚、钢筋加工棚
尺寸:整体尺寸长宽为:4M*6M、6M*6M、6M*9M、6M*12M。
立柱:100*100mm 顶部横竖梁40*60mm
产品材质:热镀锌钢管
产品特点:双层防砸结构,稳固耐用,标准化设计,全拼装式,快速组装,拆卸简单,可重复利用,方便运输。
配电箱防护棚,牢固稳定,组装设计,安装便捷,价格实惠.锦银丰配电箱防护棚喷涂工艺,焊接牢固,安装在工地美观大气又漂亮
河南新乡锦银丰公司主要生产防护棚、临边防护、定型化防护棚、建筑安全防护、定型化防护棚、标准化防护棚、建筑防护棚、安全防护棚、文明工地防护用品配电总箱、钢筋操作棚、安全通道、木工操作棚电箱防护棚安全通道钢筋加工及防护棚临边防护栏杆楼梯临边防护施工电梯防护门电梯井防护门木工加工棚等。
产品具有可多次拆装,重复利用、牢固、整齐、美观、拆装方便等优点。
欢迎来电咨询(建筑安全防护防护棚临边防护栏杆、施工电梯防护门)生产快发货快
河南新乡锦银丰护栏,生产型护栏厂家,不仅是注重质量,注重品质,注重信誉,给用户带来更多方便,而且一直在不断开发新产品。
您可以电话微信进行具体沟通,如果时间充足,随时欢迎您来河南省新乡市北环----实地看厂考察、洽谈合作订购。
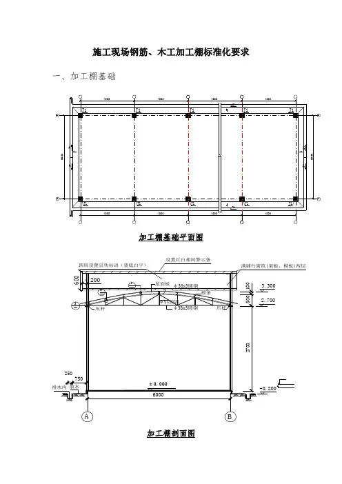
施工现场钢筋、木工加工棚标准化要求一、加工棚基础加工棚基础平面图加工棚基础平面图说明:本加工棚为工具式,可周转利用,加工棚外设散水明沟,确保排水畅通。
加工棚剖面图加工棚有筋基础加工棚无筋基础2-210015015010022100505010015015080803-3φ6@2004011010015015010020010033J-1100501501505010015015050100501005540110550.000-0.200φ6@200φ6@200φ6@200加工棚基础说明:1、如无筋基础不能满足加工棚安全要求时,可浇灌有筋基础。
2、加工棚内地面需进行硬化,采用C20砼。
3、基础本加工棚为工具式,可周转利用,加工棚外设散水明沟,确保排水畅通。
4、该防护棚主要作用是防止高处落物伤人和保护机械设备,采用角钢焊接而成的,柱子采用方钢或圆形钢柱。
防护棚上方四周可挂安全警示标志牌和宣传标语。
5.在建筑物危险半径以内或建筑物高度大于24米以上时,必须采用双层防护。
在塔吊半径以外或建筑物高度小于24米时,可采用单层防护,棚内设施、设备有防雨要求时,防护棚应有防雨措施。
6.防护棚内的防护栏杆刷红白油漆相间@300,其余所有杆件刷黄色油漆。
7.该防护棚设计宽度为6米,高度为4米,如长度不够可增加一跨但结构不得随意改动。
8.开关箱的摆放位置应靠近操作人员,与所控制设备的距离不得大于3米。
木工棚内应设置灭火器。
1.2.2定型化防护棚(强制配置)
配置说明:
1.建筑物坠落半径及塔吊起重臂旋转半径内
的临时设施、搅拌机、钢筋与木工加工区固定作
业位置必须设置间距600mm 双层硬防护棚,
2.在坠落半径以外可设单层硬防护棚。
3.使用型钢、钢管、扣件、密目网、防雨材
料等搭设,用竹胶板按双层防护间距封檐口板。
4.根据不同的安全、环保要求,防护棚要具
备防噪声、防尘、防雨、抗冲击能力。
5.双层硬防护棚必须满铺能承受大于等于10kpa 的均布荷载的材料(50mm 厚木板或符合规定的其他材料)、正面、斜面设斜撑。
6.在封檐板上设置相应的安全标志。
使用范围:
适用于钢筋加工棚和木工加工棚。
做法点评:
更换、补充了做法示意图,重点阐述如何防范通道范围内因高处落物所造成的物体打击伤害,安全防护棚在设置时应更加注重简洁、实用,避免华而不实、过于花哨,与企业VI 不相协调。
00000000
6000
6000。
工业厂房(望京大宗综合产业大厦)防护棚搭设搭设施工方案编制人: ___________审核人: ___________批准人: ___________东北金城建设股份有限公司2016-10-11目录1、编制依据 (3)2、工程概况 (3)3、防护棚施工概况 (3)4、防护棚方案选择 (3)5、安全防护领导小组 (5)6、搭设 (5)6.1 防护棚搭设工艺 (5)6.2 支撑架 (5)6.3 搭设立杆的注意事项 (7)6.4 搭设纵、横向水平杆的注意事项 (7)6.5 搭设剪刀撑、横向支撑、抛撑等注意事项 (7)6.6 扣件安装的注意事项 (7)7、防护棚质量保证措施 (7)8、防护棚安全注意事项 (8)9、防护棚计算书 (9)1、编制依据1《建筑施工扣件式钢管脚手架安全技术规范》(JGJ-130-2011);2《建筑施工高处作业安全技术规范》(JGJ 80-2016);3《建筑施工安全检查标准》(JGJ 59-2011);4本工程施工组织设计;2、工程概况1、工业厂房(望京大宗综合产业大厦项目)由北京大宗房地产开发有限公司开发建设,东北金城建设股份有限公司总承包。
该工程项目位于北京市朝阳区望京利泽中一路东侧,翠屏西路南侧。
建筑总面积68698.2 m2,为1栋集厂房、科研、办公楼于一体的建筑,建筑层数为地下4层,地上自西向东两侧建筑为14层,建筑高度为59.98 m,其中1〜7层为厂房,8〜12 楼为科研楼,13层为办公楼;中间地上建筑为4层,建筑高度为24 m,其中1〜3层为厂房,4层为会议室。
基础形式采用筏板基础,CFG桩复合地基。
建设单位:北京大宗房地产开发有有限限公司设计单位:北京新纪元建筑工程设计有限公司勘查单位:北京寰球地科工程技术有限公司施工单位:东北金城建设股份有限公司监理单位:北京大正建设监理有限公司3、防护棚施工概况根据施工组织设计及现场平面布置图,现场钢筋加工场、木工加工场都在塔吊旋转覆盖之内,需要搭设安全防护棚。
钢筋加工棚防护搭设施工方案1.施工方法1.1.功能要求围护架用φ48×3.5钢管及铸钢扣件搭设,所在区域不在塔吊覆盖半径之内,因此搭设单侧防护棚。
1.2.基本格构详图见附图2.搭设施工工艺2.1.施工准备2.1.1.栋号负责人应按施工组织设计及施工方案中有关防护棚的要求,逐级向架设和使用人员进行技术交底及安全技术交底。
2.1.2.应按要求对钢管、扣件、脚手板等进行检查验收,各种材料必须有产品质量检验合格证。
不合格的购配件不得使用,经检查合格的购配件应按品种、规格分类、堆放整齐、平整,堆放场地不得有积水。
2.1.3.清除地面杂物,平整搭设场地,并使排水畅通。
2.2.搭设2.2.1.防护棚搭设工艺:放置纵向扫地杆→逐根树立立柱,随即与扫地杆扣紧→放置横向扫地杆并与立杆或扫地杆扣紧→第一步纵向水平杆→第一步横向水平杆→连墙件(或加抛撑)→第二步纵向水平杆→第二步横向水平杆→加设临时斜撑杆→第三、四步纵向水平杆和横向水平杆→接立杆→架设剪刀撑。
2.2.2.搭设立杆的注意事项a本工程使用外径48mm壁厚3.5mm的钢管。
b相邻立柱的对接扣件不得在同一高度内,错开距离必须符合构造要求。
c开始搭设立柱时,每隔6跨设置一根抛撑,直至连接处安装稳定后,方可根据情况拆除。
2.2.3.搭设纵、横向水平杆的注意事项a封闭性防护棚的同一步纵向水平杆必须四周交圈,用直角扣件与内、外角柱固定。
2.2.4.搭设剪刀撑、横向支撑、抛撑等注意事项A连接处的构造必须符合要求。
当防护棚操作层高出连接点二步时,必须采取临时稳定措施,直到连墙件搭设完后方可拆除。
b剪刀撑、横向支撑必须随立柱、纵向水平杆等同步搭设,剪刀撑、横向支撑的构造必须符合要求。
2.2.5.扣件安装的注意事项a扣件规格必须与钢管外径相同;扣件螺栓拧紧扭力矩不得小于40N*m,并不大于65 N*m;主节点处,固定横向水平杆(或纵向水平杆)、剪刀撑、横向支撑等扣件的中心线距主节点的距离不得大于150mm;b对接扣件的开口必须边侧或朝内;c各杆件端头伸出扣件盖板边缘的长度为100mm。
钢筋防护棚标准尺寸
摘要:
1.钢筋防护棚简介
2.钢筋防护棚标准尺寸分类
3.钢筋防护棚尺寸选择要点
4.钢筋防护棚施工注意事项
正文:
一、钢筋防护棚简介
钢筋防护棚是一种施工现场临时搭建的设施,主要用于防护建筑物外部钢筋施工过程中的人员安全和物品安全。
钢筋防护棚可有效防止高空坠物、钢筋戳伤等事故的发生,确保施工顺利进行。
二、钢筋防护棚标准尺寸分类
根据我国相关标准,钢筋防护棚的尺寸可分为以下几种:
1.标准跨度:6米、8米、10米、12米等;
2.标准宽度:3米、4米、5米等;
3.高度:根据实际需求定制,一般分为2米、3米、4米等。
三、钢筋防护棚尺寸选择要点
1.依据施工现场实际情况选择合适尺寸,确保施工空间充足;
2.参考相关标准,结合工程需求,选择合适的跨度、宽度和高度;
3.考虑施工周期和材料利用率,合理选择尺寸,降低成本。
四、钢筋防护棚施工注意事项
1.严格按照设计图纸和施工方案进行施工;
2.确保钢筋防护棚结构稳定,承载力充足;
3.材料选用应符合国家标准,保证安全性能;
4.施工过程中,定期检查钢筋防护棚结构状况,发现问题及时整改;
5.现场施工人员必须严格遵守安全操作规程,确保自身和他人的安全。
通过以上内容,我们对钢筋防护棚的标准尺寸及其施工要求有了更深入的了解。
说明:
1、在塔吊半径范围以内必须采取双层防护,满铺脚手板或模板,斜面铺设彩
钢瓦等防雨材料。
本防护方式采用方钢、螺丝连接形式的工具化防护棚。
适用于各类防护棚(去除挑檐可用于安全通道、电梯防护等其他防护,材
质规格不变)。
2、机械的安装应坚实稳固,固定式机械应有可靠基础,移动式机械作业时应
楔紧行走轮。
3、作业后应堆放好成品,清理场地,切断电源,锁好开关箱,机械做好润滑
工作。
5.钢筋加工棚效果示意图
4、开关箱安装在同一高度,电箱中心距离地面 1.5m。
施工机具
钢筋加工棚图5
6.小型机械加工棚侧立面 6.小型机械加工棚效果示意图
说明:
1、塔吊作业半径内小型机械作业必须安装双层防护棚,防护方式采用钢筋棚
做法,材质及规格不变。
施工
小型机械加工棚图6。
监理的安全防护管理1.基坑沟槽的临边防护(1)深度超过2m的基坑、沟、槽周边应设置不低于1.2m的临边防护栏杆,并设置夜间警示灯。
(2)采用钢管搭设时,应设置两道防护栏杆(下道栏杆离地600mm,上道栏杆离地1.2m),立杆间距应不超过2m,防护栏杆内侧满挂密目安全网,防护外侧设置180mm 挡脚板。
2.基坑降排水的防护(1)基坑边沿周围地面应设防渗漏排水沟或挡水台。
(2)排水沟宽度300mm,高400mm。
(3)挡水台高150mm。
3.临边防护施工现场楼层临边作业区域,应按标准设置防护设施。
施工现场楼梯口和梯段边应搭设高度不低于1.2m的防护栏杆,喷刷红白相间安全警示色。
4.洞口防护(1)短边边长1.5m以下非垂直洞口,应设置钢筋网片,并采用坚实的盖板封闭,有防止挪动、位移的措施,盖板加警示标识。
(2)短边边长1.5m以上的非垂直洞口,应在洞口作业侧设置高度不小于 1.2m 的防护栏杆,洞口上侧支搭水平安全网封闭。
(3)伸缩缝、后浇带处应加固定盖板防护,并加设警示标识。
(4)电梯井口应设置固定式防护门,其高度不应低于1.5m,底部安装高度不低于180mm 挡脚板,竖向栏杆净距不大于120mm;防护栏四角采用膨胀螺栓与结构墙体固定,外侧设安全警示标志。
(5)电梯井道首层应设置双层水平安全网,首层以上和有地下室的电梯井道内每隔两层且不大于10m 增设一道水平安全网。
5.施工现场安全通道(1)建筑物主要出人口应搭设安全通道防护棚,高度大于或等于3.5m,宽于洞口两边各不小于 1m,多层建筑防护棚长度不小于3m,高层建筑防护棚长度不小于6m。
(2)安全通道上方铺设双层50mm脚手板,通道入口处挂安全警示标志。
6.悬挑水平网(1)在建工程外侧除使用落地式脚手架和高处作业吊篮外,应搭设水平安全网防护。
(2)多层建筑首层四周必须搭设3m宽的水平安全网,网底距接触面不得小于3m;高层建筑首层四周应搭设6m 宽的双层水平安全网,网底距接触面不得小于5m多层和高层建筑应每隔4层且不大于10m 设置一道 3m 宽的水平安全网。