经典园林景观规划设计平面图
- 格式:ppt
- 大小:14.03 MB
- 文档页数:20
第九章园林工程图--园林总平面图园林设计的五阶段1、任务书阶段2、基地调查和分析阶段3、方案设计阶段4、初步设计阶段5、施工图设计阶段方案设计阶段* 设计图纸:* 1、场地现状图* 2、总平面图* 3、功能分区图* 4、种植设计总平面图* 5、主要景点的大平面图* 6、主要景点的立面图或效果图* 7、设备管网与场地外线衔接的示意图或文字说明初步设计阶段* 设计图纸(园林景观专业)* 1、总平面图* 2、竖向布置图* 3、种植设计总平面图* 4、水景设计图* 5、铺装设计图* 6、园林景观建筑、小品设计图* 7、设备管网与场地外线衔接的示意图或文字说明施工图设计阶段* 设计图纸(园林景观专业)* 1、总平面图、平面分区图及分区放大平面图* 2、竖向布置图* 3、种植设计总平面图及种植详图* 4、水景设计图及详图* 5、铺装设计图及详图* 6、园林景观建筑、小品设计图及详图* 7、设备管网与场地外线衔接的示意图或文字说明园林工程图根据内容和作用的不同可分为:园林设计图:包括园林总平面图、竖向设计图、种植设计图。
园林施工图:建筑施工图:园林建筑施工图、假山工程图、园路工程图、驳岸工程图。
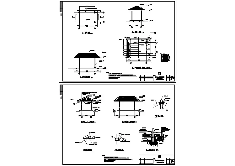
结构施工图设备施工图总平面图是园林总体规划设计图的简称,它表明了一个区域范围内园林总体规划设计的内容,反映了组成园林各个部分之间的平面关系及长宽尺寸,它是反映园林工程总体设计意图的主要图纸,也是绘制其它图纸及造园施工的依据。
第一节总平面图的内容总平面图是表现整个规划区域范围内各造园要素及周围环境的水平正投影图。
总平面图图纸上应反映出地形现状、山石水体、道路系统、植物的种植位置、建筑物位置、风景透视线、定点放线的依据等。
主要内容有:一、图名、图例。
二、规划用地区域现状及规划的范围。
二、对原有地形地貌等自然状况的改造和新的规划。
四、以详细尺寸或坐标网格标明山石、建筑物、道路、水系系统及地下或架空管线的位置和外轮廓,并注明其标高。
88张高质量庭院设计平面图开通黄钻88张高质量庭院设计平面图ly/286344996/infocenter?ptsig=9hap58GtuyBB1Ouz6E22yGIAyM5iJUE2UG25hGAao7k_风格是庭园设计中需要优先确立的内容,本章重点介绍各种风格的特点和如何选择适用的风格。
一、庭园风格的分类和特征(一)布局上说分为三大类:规则式、自然式、混合式1、规则式风格的构图多为几何图形,垂直要素也常为规则的球体、圆柱体、圆锥体等。
规则式庭园又分为对称式和不对称式,对称式有两条中轴线,在庭园中心点相交,将庭园分成完全对称的4个部分,规则对称式庭园庄重大气,给人以宁静、稳定、秩序井然的感觉;不对称式庭园的两条轴线不在庭园的中心点相交,单种构成要素也常为奇数,不同几何形状的构成要素布局只注重调整庭园视觉重心而不强调重复。
相对于前者,后者较有动感且显活泼。
2、自然式庭园是完全模仿纯天然景观的野趣美,不采用有明显人工痕迹的结构和材料。
设计上追求虽由人做,宛如天成的美学境界。
即使一定要建的硬质构造物,也采用天然木材或当地的石料,以使之融入周围环境。
3、大部分庭园兼有规则式和自然式的特点,这就是混合式庭园。
这有三类表现形式,一类是规则的构成元素呈自然式布局,欧洲古典贵族庭园多有此类特点;第二类是自然式构成元素呈规则式布局。
如北方的四合院庭园;第三类是规则的硬质构造物与自然的软质元素自然连接,新近的上海别墅庭院大部分场地尽管不对称,但靠近住宅的部分还是规则的,你可以将方形或圆形的硬质铺地与天然的植物景观和外缘不规则的草坪结合在一起。
如果一块地既不是严格的几何形状又不是奇形怪状的天然状态,此法可在其中找到平衡。
(二)从文化特征上分为三大类:中式、日式和欧式1、中式庭园有三个支流:北方的四合院庭园、江南的写意山水、岭南园林;其中江南园林成就最高,数量也最多。
中式庭园有着浓郁的古典水墨山水画意境。
构图上以曲线为主,讲究曲径通幽,忌讳一览无余,讲究风水的”聚气”,庭园是由建筑、山水、花木共同组成的艺术品,建筑以木质的亭台、台、廊、榭为主,月洞门、花格窗式的黛瓦粉墙起到或阻隔或引导或分割视线和游径和作用。
一次难得的经历,也是一个挑战。
每个大师园除了地块的范围、没有其他的限制条件,It is a rare experience and also a challenge toMaster Garden together with these world top landscapeXi'an International Horticulture Exhibition.There are not manyexcept the scope and cost of construction.So,it is anthe designers to reveal their unique understanding of garden在我看来,不论古今中外,优秀的花园都是空间的艺术,人去体验和感知。
它应该具有缜密的逻辑关系,有这些特性的同时,中国的花园还表达了一种哲学思想,在方寸之间创造世外桃源的理想。
我想,园设计中,我们尝试用简单的设计语言,创建一个简明的,花园。
它吸引人去体验和感知,无论在其中漫步还是静思,诗意和中国园林的空间情趣。
In my opinion,whether in modern or in ancient times,elsewhere,an excellent garden should be the art of spaceof poetic conception which attracts people to experienceMeanwhile a garden should have rigorous logic andintegrated into the regional landscape.Besides theseChinese garden demonstrates a philosophy,an ideal ofas well as harmony and creating paradise isolated from the图1四盒园平面图Figure1Plan of Four Boxes Garden图22个出入口的门都可以开启和关闭Figure2Doors of two entrances can be opened and closed图3一座小桥将游人引入“春盒”Figure3A small bridge guiding visitors into"Spring Box"12主入口竹丛台阶花架石汀步小路长凳次入口夯土墙春盒夏盒秋盒冬盒中国园林Chinese Landscape Architectureto enclose the garden.And at the use some folk materials including wood and brick to construct different atmosphere of spring,and winter,composing a seasonal with the wall form a main gardenandabout10smalland beside the cases.It forms a similar to the typical structure of (Figure 1).Rammed earth,brick,are most commonly used as localThe garden is named as which expresses the space garden.Meanwhileitisthea kind of Chinese folk house.In the traditional Chinese residential 2个出入口,木制的园门可以开“春3),来到“春盒”的中央,坐在长椅上,以及四周春意盎of the garden are two entrances doors can be opened and closed into the main entrance is theis constructed by white wall andacross a small bridge (Figure 3)the Box.People can enjoy the main courtyard and the vigorous the doors and windows in the sit on the bench (Figure 4).People different views of the "Spring Box"closing of windows.由于木材的搭接方式不开启和关闭的门同样会给游人带来变就像西北的农家院中is a wooden pergola cabin.The strong lighting effects and dramatic experienceowingtodifferentThere is a small yard in Box.The doors can be opened can also bring the changing Thepergolaiscoveredwithlike a farm yard in northwest 5).其地面比中心庭院高1m,墙上有456许多正方形的窗洞,形成一个个画框。
20款经典庭院设计平面图,先收藏着准没错
家里有个院子,可赏景可休闲,相信很多人都向往能有一个赏心悦目的庭院。
现在大家经济条件变好,开始追求个性化的庭院景观设计。
奈何自身对这方面了解较少,空有院子却不知如何下手。
今天就给大家分享20款经典的庭院平面设计图,先收藏好准没错。
庭院平面01
庭院平面02
庭院平面03
庭院平面04
庭院平面05
庭院平面06
庭院平面07
庭院平面08
庭院平面09
庭院平面10
庭院平面11
庭院平面12
庭院平面13
庭院平面14
庭院平面15
庭院平面16
庭院平面17
庭院平面18
庭院平面19
庭院平面20
需要更多别墅图纸:点击手机顶部头条号【农村自建房】,进入主页底部菜单【图纸商城】。
园林景观硬景工程施工总平面布置图
一、临时设施的布置
本工程施工临设办公区主要布置现场,办公室、值班室在附近租赁。
生活区根据现场实地考查,所有施工人员住宿、生活区在附近租赁。
施工现场临时设施一览表
二、施工现场临时用水、用电
1、施工临时供电
通过现场电网接入。
施工前将在施工范围内架设三相五线动力线路,装设统一的配电箱,保证工程用电畅通安全。
2、临时供水
施工用水主要是生活、生产用水,经计算,采用DN50主管可满足供水要求,并将用电、用水引向施工营地、制作场和施工现场。
3、临时通讯
项目经理部设程控电话及传真机各一台,管理人员均配备对讲机。
4、施工便道
总的原则是充分利用既有道路进场,按现有道路系统,并新修部分局部引入便道,注意在施工过程中加以维护。