桁架钢筋混凝土叠合板图集讲解共64页文档
- 格式:ppt
- 大小:7.16 MB
- 文档页数:64
今天给大家介绍下钢筋桁架叠合板,钢筋桁架叠合板在这里先简称叠合板。
叠板的内侧设有槽增强粘接度,连接部件由龙骨钢筋桁架焊接而成,混凝土浇筑时,它的连接部件与钢筋和混凝土融为一体,具有更加粘接牢固的效果。
模板外侧的砂磨面平整美观,不需要砂浆分离。
适用于现浇顶、现浇墙体等需要混凝土现浇成形的平面建筑结构。
板的常规尺寸:长2.44米,宽1.22米。
厚度有12 毫米和15毫米两种,规格尺寸可根据其设计图纸、甲方要求及具体施工要求等进行定制,定做的尺寸大小不超过常规尺寸。
叠合板施工时不需支模,施工方便快捷,工期短,效率高,节省人工。
其预制层在工厂制造,机械化程度高,能保证良好的养护效果。
与全预制板相比,其运输和吊装也具有良好的优势,保证了经济性和适用性。
建造阶段采用叠合板作为浇筑混凝土的模板,模板的强度和刚度由钢筋焊接在一起的桁架支撑。
钢筋桁架是在使用阶段对混凝土楼板进行配筋,以承受使用荷载。
因此,叠板不仅具有压型钢板和非组合地板施工速度快的优点,而且具有现浇地板整体刚性大、抗震性能好的优点,使用和发展前景很广阔。
该模板主要用于取代传统的铝、铁、钢、木模板,广泛应用于楼板现浇顶、地下室后浇带、地基、挡土墙、墙体等需要混凝土现浇成型的领域。
适用场所:隧道、地下通道、学校、医院、酒店、工厂、车站、图书馆、住宅、民居、商业大楼、仓库、地下停车场、桥梁结构等多种建筑现场。
本文由唐山瑞尔法叠合板公司编辑提供,未经允许禁止转载!。
钢筋桁架混凝土叠合板中桁架钢筋的布置
钢筋桁架混凝土叠合板是一种常用的建筑结构材料,它具有较高的强度和刚度。
在混凝土叠合板中,桁架钢筋的布置起着至关重要的作用,直接影响到板的承载能力和使用性能。
桁架钢筋的布置需要考虑以下几个方面:钢筋的数量、间距和布置形式。
钢筋的数量应根据板的受力情况和设计要求确定。
一般来说,桁架钢筋的数量越多,板的承载能力越高。
但是,过多的钢筋会增加施工难度和成本,因此需要根据实际情况进行合理的设计。
桁架钢筋的间距也需要根据板的受力情况确定。
一般来说,桁架钢筋的间距越小,板的刚度越高。
但是,过小的间距会增加施工难度和钢筋消耗量,因此需要在保证刚度的前提下,尽量减小间距。
桁架钢筋的布置形式也需要根据板的受力情况确定。
常见的布置形式有平行布置和交叉布置两种。
平行布置适用于板的受力均匀的情况,可以有效地提高板的承载能力。
交叉布置适用于板的受力不均匀的情况,可以提高板的整体刚度和抗弯能力。
在实际施工中,桁架钢筋的布置需要根据具体情况进行调整和优化。
可以根据板的受力分析和计算结果,选择合适的桁架钢筋布置方案。
同时,还需要考虑施工工艺和经济性,确保施工的可行性和经济效
益。
钢筋桁架混凝土叠合板中桁架钢筋的布置是一项关键工作,直接影响到板的承载能力和使用性能。
合理的布置方案可以提高板的刚度和抗弯能力,同时还需要考虑施工工艺和经济性。
因此,在设计和施工过程中,需要充分考虑各种因素,选择合适的桁架钢筋布置方案,确保叠合板的质量和安全性。
钢筋桁架楼承板是将楼板中的钢筋在工厂加工成钢筋桁架,并将钢筋桁架与镀锌压型钢板焊接成一体的组合模板。
在施工阶段,钢筋桁架楼承板可承受施工荷载,直接铺设到梁上,进行简单的钢筋工程便可浇筑混凝土。
由于完全替代了模板功能,减少了模板架设和拆卸工程,大大提高了楼板施工效率。
目前被广泛用于多层厂房,多层、高层、超高层钢结构楼宇、各种不规则楼面、混凝土结构、高速铁路等结构和建筑领域。
优点:
1、经济:
桁架受力模式合理,选材经济,综合造价优势明显。
可设计为双向板,可调整桁架高度与钢筋直径,拟适用于跨度较大的楼板。
2、便捷:
现场钢筋绑扎工作量减少60%~70%,更进一步缩短工期。
桁架受力模式合理,可以提供更大的楼承板刚度,可大大减少或无需施工用临时支撑。
3、安全:
力学性能与传统现浇楼板基本等同,抗裂性能好。
耐火性能与传统现浇楼板相当,优于压型钢板组合楼板。
底模不参与使用阶段受力,不需考虑防火、防腐问题。
4、可靠:
钢筋排列均匀,上下层钢筋间距及混凝土保护层厚度有可靠保证。
楼板的双向刚度相近,有利于建筑物抗震栓钉焊接质量更容易保证。
产品构成
钢筋桁架楼承板由上弦钢筋、下弦钢筋、腹杆钢筋、底模、支座钢筋构成。
产品型号
A型和B型是目前主推的.钢筋桁架楼承板产品两大类型,A型产品宽度为590mm,B型产品宽度为600mm,两大类型产品的具体型号、尺寸和截面系数等参数,请详见下表。
(注:可编辑下载,若有不当之处,请指正,谢谢!)。
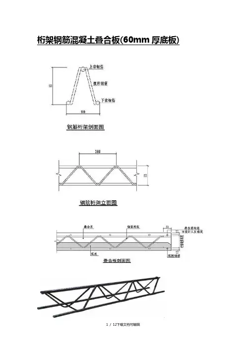
桁架钢筋混凝土叠合板(60mm厚底板)适用范围:、1、适用于环境类别为1级,屋面叠合板用底板(不适用于阳台、厨房、卫生间)2、本图集适用于非抗震设计或者抗震设防烈度在6~8度抗震设计的剪力墙结构;3、本图集适用于剪力墙厚度200mm,其他墙厚可以参考使用。
材料要求:1、底板混凝土强度等级C302、底板钢筋及钢筋桁架的上弦、下弦钢筋采用HRB400钢筋,钢筋桁架腹板钢筋采用HPB300钢筋叠合板规格及编号:1、底板厚度为60mm,后浇混凝土叠合层厚度为70mm、80mm、90mm 三种。
2、底板的标志宽度、标志跨度(mm)表1~表4表1双向板底板宽度表2双向板底板跨度表3单向板底板宽度表4单向板底板跨度双向叠合板编号:DBSA-BC-EeFf-GHDBS双向受力叠合板用底板,A:拼装位置1是边板,2是中板。
B:底板厚度cm。
C:后浇混凝土叠合层厚度cm。
Ee:底板标志跨度dm。
Ff:底板标志宽度dm。
G:底板跨度方向配筋代号。
H:底板宽度方向配筋代号。
表5底板跨度、宽度方向钢筋代号组合表例DBS1-67-3620-31。
双向受力叠合板用底板,拼装位置底板,底板厚度60mm,叠合层厚度70mm,底板标志跨度3600mm,底板标志宽度2000mm,底板跨度方向配筋¢10@200,底板宽度方向配筋¢8@200。
单向叠合板编号:DBD BC-EeFf-GDBD单向受力叠合板用底板B:底板厚度cm。
C后浇混凝土叠合层厚度cm。
Ee:底板标志跨度dm。
Ff:底板标志宽度dm。
G:底板跨度方向配筋代号表6单向叠合板用底板钢筋代号表例DBD67-3620-2 单向受力叠合板用底板,底板厚度60mm,后浇混凝土叠合层厚度70mm,底板标志跨度3600mm,底板标志宽度2000mm,底板跨度方向配筋¢8@150,分布钢筋为¢6@200钢筋桁架规格及代号:表7钢筋桁架规格及代号公称是汉语词语,是指统一公认的称呼,机器性能、图纸尺寸等的规格或标准,也可指产品合乎法规的准确公正的名称标识。
桁架叠合板内部编号:(YUUT-TBBY-MMUT-URRUY-UOOY-DBUYI-0128)适用范围:、1、适用于环境类别为1级,屋面叠合板用底板(不适用于阳台、厨房、卫生间)2、本图集适用于非抗震设计或者抗震设防烈度在6~8度抗震设计的剪力墙结构;3、本图集适用于剪力墙厚度200mm,其他墙厚可以参考使用。
材料要求:1、底板混凝土强度等级C302、底板钢筋及钢筋桁架的上弦、下弦钢筋采用HRB400钢筋,钢筋桁架腹板钢筋采用HPB300钢筋叠合板规格及编号:1、底板厚度为60mm,后浇混凝土叠合层厚度为70mm、80mm、90mm三种。
2、底板的标志宽度、标志跨度(mm)表1~表4表1双向板底板宽度表2双向板底板跨度表3单向板底板宽度表4单向板底板跨度双向叠合板编号:DBSA-BC-EeFf-GHDBS双向受力叠合板用底板,A:拼装位置1是边板,2是中板。
B:底板厚度cm。
C:后浇混凝土叠合层厚度cm。
Ee:底板标志跨度dm。
Ff:底板标志宽度dm。
G:底板跨度方向配筋代号。
H:底板宽度方向配筋代号。
表5底板跨度、宽度方向钢筋代号组合表例DBS1-67-3620-31。
双向受力叠合板用底板,拼装位置底板,底板厚度60mm,叠合层厚度70mm,底板标志跨度3600mm,底板标志宽度2000mm,底板跨度方向配筋¢10@200,底板宽度方向配筋¢8@200。
单向叠合板编号:DBD BC-EeFf-GDBD单向受力叠合板用底板B:底板厚度cm。
C后浇混凝土叠合层厚度cm。
Ee:底板标志跨度dm。
Ff:底板标志宽度dm。
G:底板跨度方向配筋代号表6单向叠合板用底板钢筋代号表例DBD67-3620-2 单向受力叠合板用底板,底板厚度60mm,后浇混凝土叠合层厚度70mm,底板标志跨度3600mm,底板标志宽度2000mm,底板跨度方向配筋¢8@150,分布钢筋为¢6@200钢筋桁架规格及代号:表7钢筋桁架规格及代号公称是汉语词语,是指统一公认的称呼,机器性能、图纸尺寸等的规格或标准,也可指产品合乎法规的准确公正的名称标识。
桁架钢筋混凝土叠合板(60mm厚底板)适用范围:、1、适用于环境类别为1级,屋面叠合板用底板(不适用于阳台、厨房、卫生间)2、本图集适用于非抗震设计或者抗震设防烈度在6~8度抗震设计的剪力墙结构;3、本图集适用于剪力墙厚度200mm,其他墙厚可以参考使用。
材料要求:1、底板混凝土强度等级C302、底板钢筋及钢筋桁架的上弦、下弦钢筋采用HRB400钢筋,钢筋桁架腹板钢筋采用HPB300钢筋叠合板规格及编号:1、底板厚度为60mm,后浇混凝土叠合层厚度为70mm、80mm、90mm 三种。
2、底板的标志宽度、标志跨度(mm)表1~表4表1双向板底板宽度表2双向板底板跨度表3单向板底板宽度表4单向板底板跨度双向叠合板编号:DBSA-BC-EeFf-GHDBS双向受力叠合板用底板,A:拼装位置1是边板,2是中板。
B:底板厚度cm。
C:后浇混凝土叠合层厚度cm。
Ee:底板标志跨度dm。
Ff:底板标志宽度dm。
G:底板跨度方向配筋代号。
H:底板宽度方向配筋代号。
表5底板跨度、宽度方向钢筋代号组合表例DBS1-67-3620-31。
双向受力叠合板用底板,拼装位置底板,底板厚度60mm,叠合层厚度70mm,底板标志跨度3600mm,底板标志宽度2000mm,底板跨度方向配筋¢10@200,底板宽度方向配筋¢8@200。
单向叠合板编号:DBD BC-EeFf-GDBD单向受力叠合板用底板B:底板厚度cm。
C后浇混凝土叠合层厚度cm。
Ee:底板标志跨度dm。
Ff:底板标志宽度dm。
G:底板跨度方向配筋代号表6单向叠合板用底板钢筋代号表例DBD67-3620-2 单向受力叠合板用底板,底板厚度60mm,后浇混凝土叠合层厚度70mm,底板标志跨度3600mm,底板标志宽度2000mm,底板跨度方向配筋¢8@150,分布钢筋为¢6@200钢筋桁架规格及代号:表7钢筋桁架规格及代号公称是汉语词语,是指统一公认的称呼,机器性能、图纸尺寸等的规格或标准,也可指产品合乎法规的准确公正的名称标识。
钢筋桁架楼承板是将楼板中的钢筋在工厂加工成钢筋桁架,并将钢筋桁架与镀锌压型钢板焊接成一体的组合模板。
在施工阶段,钢筋桁架楼承板可承受施工荷载,直接铺设到梁上,进行简单的钢筋工程便可浇筑混凝土。
由于完全替代了模板功能,减少了模板架设和拆卸工程,大大提高了楼板施工效率。
目前被广泛用于多层厂房,多层、高层、超高层钢结构楼宇、各种不规则楼面、混凝土结构、高速铁路等结构和建筑领域。
优点:
1、经济:
桁架受力模式合理,选材经济,综合造价优势明显。
可设计为双向板,可调整桁架高度与钢筋直径,拟适用于跨度较大的楼板。
2、便捷:
现场钢筋绑扎工作量减少60%~70%,更进一步缩短工期。
桁架受力模式合理,可以提供更大的楼承板刚度,可大大减少或无需施工用临时支撑。
3、安全:
力学性能与传统现浇楼板基本等同,抗裂性能好。
耐火性能与传统现浇楼板相当,优于压型钢板组合楼板。
底模不参与使用阶段受力,不需考虑防火、防腐问题。
4、可靠:
钢筋排列均匀,上下层钢筋间距及混凝土保护层厚度有可靠保证。
楼板的双向刚度相近,有利于建筑物抗震栓钉焊接质量更容易保证。
产品构成
钢筋桁架楼承板由上弦钢筋、下弦钢筋、腹杆钢筋、底模、支座钢筋构成。
产品型号
A型和B型是目前主推的.钢筋桁架楼承板产品两大类型,A型产品宽度为590mm,B型产品宽度为600mm,两大类型产品的具体型号、尺寸和截面系数等参数,请详见下表。
(注:可编辑下载,若有不当之处,请指正,谢谢!)。