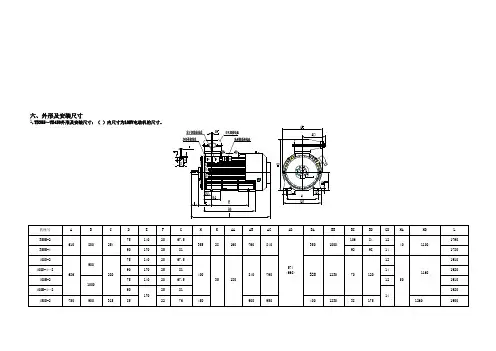
高压电机轴径尺寸
- 格式:docx
- 大小:8.54 KB
- 文档页数:1
440t/h+135MW超高压机组主机及主要辅机规范1 主机设备规范1.1 主机技术规范1.2 锅炉技术规范型号1.3 发电机技术规范2辅机技术规范2.1 凝汽器技术规范2.2 高压加热器技术规范2.3 低压加热器技术规范2. 4 轴封加热器技术规范2.5 旁路系统技术规范2.5.1 旁路系统主要有如下功能:2.5.1.1 启机时,可以加快锅炉升温升压速度,缩短启机时间,并且冷却再热器。
2.5.1.2 回收工质,降低噪音,保护再热器。
2.5.2 旁路设备技术规范2.6 油系统设备技术规范2.6.1 泵类设备技术规范2.6.2 润滑油冷油器技术规范2.6.3 主油箱外径3.032m,长6m,正常运行时容油25m3,最高油位时,有效容油28.84 m3。
若以水平中心线上方430mm处为运行中零位,则最高油位是250mm,最低油位是-200mm。
2.6.4油净化装置为HCP-100S型,具备脱水和颗粒过滤功能,可以用来除去油中的水分和固体杂质,对油质进行在线处理;使处理后的水含量低于100PPM,油质清洁度达到NAS4级或更高。
2.6.5 盘车装置为低速行星摆轮型盘车,用于机组停机状态时的转子直轴,防止大轴产生弯曲和对已经产生的弯曲进行消除,以保证机组的安全生产。
电机功率7.5KW,转速为2.0r/min。
2.7 发电机空冷器技术规范2.8 循环水泵技术规范2.9.1 真空泵技术规范2.9.2 真空泵附属热交换器技术规范2.10 凝结水泵及低加疏水泵技术规范2.11 冷却水塔规范2.12 工业水泵、消防泵和胶球泵技术规范2.13汽机快速冷却装置规范2.14 汽机除盐水(0米)补水泵技术规范2.15 消防水泵技术规范3.1 电动主给水泵:序号名称单位额定工况最大连续工况字串51 进口流量(未考虑轴封漏水) t/h 479 5142 出口流量(未考虑轴封漏水) t/h 449 4843 扬程mH2O 1850 1850 功率:3400KW4 汽蚀余量(必需) Mpa5 5.55 泵效率% ≥80 ≥806 抽头压力Mpa 7.0 7.07 抽头流量t/h 30 308 进口水温度℃164.3 167.19 转速r /min 4580 470010 密封及冷却水质凝结水凝结水11 密封及冷却水温℃≦50 ≦5012 密封及冷却水压Mpa(a) ~1.6 ~1.63.2 电动给水泵前置泵型号QG500-801流量505m3/h2扬程80m3转速2985 r/min4功率138KW5效率>80.5%。
济宁二号煤矿主排水泵1250kW电动机技术规格书编制:审核:批准:煤业公司专业部门(章):煤业公司专业技术负责人:济宁二号煤矿(章)年月日一、概述及现场条件1. 概述1.1 本技术规格适用于兖州煤业股份有限公司济宁二号煤矿主排水泵1250kW高压异步电动机的采购,它提出了电动机的设计、选材、制造、检测和试验的最基本的技术要求。
1.2卖方提供相应产品的试验合格证、生产许可资格证。
1.3每件设备应标明产品型号、技术规格、产地、生产厂家等必要内容。
1.4 如果卖方没有以书面形式对本文件的条文提出异议,则意味着提供的设备完全符合本文件的要求。
2. 使用条件2.1现场条件:本电动机安装于煤矿井下中央泵房,与D500A-57×11型水泵配用。
2.2电动机按现有基础配用底盘,附图一。
2.3电动机中心高为630mm,轴径为120mm,电动机伸出轴端头与地脚螺栓的相对位置必须符合现有尺寸,伸出轴加工要求附图二(0B302.4389)。
2.4起重梁最大承重吨数:8吨。
2.5购置数量:4台。
2.6高压电动机主要技术参数(1)额定功率:1250kW。
(2)额定电压: 6kV(3)额定频率:50Hz(4)额定转速:1487r/min(5)机体最大外形尺寸:2500×1650×1400二、对高压电动机的要求1、电动机的风罩上要用不锈钢箭头指示电动机的旋转方向。
2、电动机的引接线截面积在现有设计图纸基础上扩大1.5倍。
3、电动机均配钢性底盘,钢性底盘供货要求为:投标方配置的钢性底盘应具有安装找正用的纵、横向螺栓调节装置4、电动机采用防护类型达到防护等级IP55,B级温升,H级绝缘。
5、电动机在75%的额定电压情况下能直接启动。
6、电动机全压直接起动,正常起动允许冷态三次,热态两次。
7、电源电压与额定电压的偏差不超过±5%,电动机的输出功率应连续保持为额定值,此时,温升按B级考核,绝缘等级为H级。
高压电机检修工艺2008-10-18 下午 04:581、检修前的准备工作:检修前应认真作好检修各项准备工作,仔细讨论检修计划和各项措施,明确检修任务和质量要求,安排好项目检修进度,准备好检修的材料、工具、备品以及检修场地,搬运道路、车辆等.第一章、电动机维护检修规范1、电动机完好标准1.1零部件质量1.1.1外壳完整,无明显缺陷,表面油漆色调一致,铭牌清晰。
1.1.2润滑油脂质量符合要求,油量适当,不漏油。
1.1.3电动机内部无积灰和油污,风道畅通。
1.1.4外壳防护能力或防爆性能良好,既符合电动机出厂标准,又符合周围环境的要求。
1.1.5定转子绕组及铁芯无老化、变色和松动现象,槽楔、端部垫块及绑线齐全紧固。
1.1.6定转子间的间隙符合要求。
1.1.7风扇叶片齐全,角度适合,固定牢固。
1.1.8外壳有良好而明显的接地(接零)线。
1.1.9各部件的螺栓、螺母齐全紧固,正规合适。
1.1.10埋入式温度计齐全,接线完整,测温表计指示正确。
1.1.1l起动装置好用,性能符合电动机要求。
1.1.12通风系统完整,防锈漆无脱落,风道不漏风,风过滤器、风冷却器性能良好,风机运行正常。
1.1.13励磁装置运行稳定可靠,直流电压、电流能满足电动机要求。
1.1.14操作盘油漆完好,部件齐全,接线正规,标示明显。
1.1.15保护、测量、信号、操作装置齐全,指示正确,动作灵活可靠。
1.1.16电动机基础完整无缺。
1.1.17 电源线路接线正确牢固,相序标志分明,电缆外皮有良好的接地(接零)线。
1.2运行状况1.2.1在额定电压下运行,能达到铭牌数据要求,各部位温升不超过表1所列允许值。
表1 电动机的最高允许温升(环境温度为40~C时) ℃绝缘等级A级绝缘E级绝缘B级绝缘F级绝缘H级绝缘测量方法温度计法电阻法温度计法电阻法温度计法电阻法温度计法电阻法温度计法电阻法与绕组接触的铁芯及其他部件60 —— 75 —— 80 —— 100 —— 125 ——集电环或整流子60 —— 70 —— 80 —— 90 —— 100 ——滑动轴承40 —— 40 —— 40 —— 40 —— 40 ——滚动轴承55 —— 55 —— 55 —— 55 —— 55 ——电动机绕组50 60 65 75 70 80 85 100 105 1251.2.2电动机的振动值(两倍振幅值),一般应不大于表2的规定。
高压电机转轴修理全套一、捻打直轴法带绕组和铁心的转轴发生弯曲时,采用高温加热直轴法有一定困难,拆下转子铁心单独直轴又会增加检修工时,甚至有的结构无法拆卸。
这时可采取捻打直轴法。
制成4~6根捻棒。
轴面受力范围为圆周的三分之一左右。
在轴上预先划好受力范围。
捻打起点是三分之一圆弧中心’1'处。
然后按图示次序进行捻打。
在中间部位捻打次数要多些。
向左右均匀移动捻棒,越离中心远的地方捻打次数应越少。
每捻打一遍,要用千分表测量一次轴弯曲度变化情况。
记录。
最初捻打时,转轴伸直速度较快,以后速度减慢。
在最后接近调直时,要特别注意,以防调直过头。
有时多敲打几下就过头了。
要注意,捻打时不是用力打击转轴面,以防将轴面打出凹痕,而是振动,目的是使轴内部分子形成的内紧力降低。
此轴经六遍捻打即调直合格。
为了考验捻打直轴后受热变化情况,将轴放入120。
C烘炉中加热12h,取出后,将转轴放在50车床上重新测量轴弯曲度尺寸,检查结果无有变化。
电机直轴修复后,投入运行一直运行正常。
二、氧乙快喷涂法1.概述采用氧乙焕喷涂法修复转轴磨损的原理是利用普通氧乙焕火焰的热能(有效温度范围为3000),将合金粉末加热至一定温度,使粉末以150~200m/S,飞行速度喷射并沉积在转轴待涂表面上,使粉末在高温高速自熔下撞击转轴表面形成机械结合,使转轴磨损部位恢复正常尺寸,达到修复的目的。
由于喷涂湿度较低,适合于精度要求较高,不许变形的转轴的修复上(对于铸铁端盖止口磨损,也同样可以采用此法)。
合金粉末涂层在转轴表面结合原理,是靠下面四种结合作用。
Q)机械结合这是主要的结合形式,为了增加结合力,可增大转轴结合面积,如在转轴表面车成螺纹等。
(2)显微焊接喷射到转轴的合金粉末在高温下使粉末之间及粉末与转轴表面之间产生一定程度的显微焊接效果。
(3)金属原子间金属键的引力作用在高温影响下处于熔化状态和塑性状态的粉末,以一定速度碰撞转轴表面时,粉末的部分原子与转轴表面原子接近到金属晶体原子间距的几个埃的距离,金属键的引力发挥作用。
YB2系列高压隔爆型(ExdⅡCT4)三相异步电动机(机座号355~560)使用说明书江苏锡安达防爆股份有限公司2009年9月20日电话:*************、83591777、83591666厂址:无锡市惠山经济开发区张村路8号1.概述1.1本说明书适用于YB2-355~560系列高压隔爆型三相异步电动机(以下简称电动机),该电动机防爆性能执行GB3836.2-2000《爆炸性气体环境用电气设备 第2部分 隔爆型“d” 》的规定,电气性能执行Q/320206JLAB02-2009的规定,电动机制成隔爆型,防爆标志为ExdⅡCT4〈H2〉,适用于具有引燃温度组别为T1~T4组的可燃性气体或蒸气与空气形成的爆炸性气体混合物(H2)的场所。
1.2 电动机执行标准:GB3836.1 爆炸气体性环境用电气设备第1部分:通用要求GB3836.2 爆炸气体性环境用电气设备第2部分:隔爆型“d”Q/320206JLAB02-2009 YB2系列高压隔爆型(ExdⅡCT4)三相异步电动机技术条件1.3 电动机型号的含义:YB2 – 450 2 – 4 WW—户外型 隔爆型异步电动机 TH—湿热带中心高 TA—干热带 铁心长度代号 极数1.4 电动机的防爆标志位于铭牌及接线盒上,铭牌上防爆等级代号含义如下:Ex d ⅡC T4 (H2)含氢气混合物的环境防爆标志温度组别T4隔爆型Ⅱ类厂用、C级1.5 电动机适用于下列工作条件:1.5.1额定电压:3000V±5%、6000V±5%或10000V±5%,具体见电机铭牌;1.5.2额定频率:50Hz±1%或60Hz±1%;1.5.3 环境空气最高温度:随季节而变化,但不超过40°C;1.5.4 环境空气最低温度为-20℃。
1.5.5最高环境空气相对湿度不超过95%(当温度为+25℃时)或最湿月月平均最高相对湿度为90%,同时该月月平均最低温度不高于+25℃。
高压电动机检修规程1 总则1.1主题内容与适用范围1.1.1本规程规定了霍煤鸿骏铝电有限责任公司电力分公司C厂交流电动机的检修项目、程序、工艺标准、验收标准。
1.1.2本规程适用于霍煤鸿骏铝电有限责任公司电力分公司C厂交流电动机检修工作。
1.2引用标准1.2.1《发电厂检修规程》SD230-871.2.2《电气装置安装工程旋转电机施工及验收规范》GB50170-921.2.3《防止电力生产重大事故的二十五项重点要求》1.2.4《火力发电厂安全性评价查评依据》1.2.5《机械设计手册》(化学工业出版社第三版第二卷)1.2.6制造厂家提供的设备说明书、设计图纸、相关资料。
2 设备规范2.1 概述我厂高压电动机为三相交流异步电动机,额定电压等级均为6KV;按照安装形式可分为卧式和立式两大类,按照冷却方式可分为空-空冷和水-空冷两种形式。
3 检修策略3.1检修周期发电机组标准检修周期安排方式为:A-C-C-B-C-C-A,根据设备运行情况,每年可增加一次D级检修,具体检修项目可根据实际情况自行制订。
A级检修发电机停用时间:60-68天B级检修发电机停用时间:30-45天C级检修发电机停用时间:20-26天D级检修发电机停用时间:9-12天根据设备具体运行情况,可对检修周期及标准进行更改,但应提前提出申请。
高压电动机严格按照检修滚动计划进行,一般随机组的A、B、C级定期检修进行,临时性检修视电机的故障情况决定。
高压电动机检修滚动计划的制定遵循以下原则:对起动频繁、环境恶劣、易出故障的电机适当缩短大修周期,如磨煤机电机、送风机电机等;对于运行情况良好,环境干燥清洁,利用小时数比较低的电动机,可酌情延长A级检修周期,但应适当加强B、C级检修维护,以免失修。
3.2标准检修项目3.2.1A级检修定义及标准项目高压电动机的A级检修是指电机在全面解体情况下进行的检修。
高压电动机A级检修标准项目3.2.2B级检修定义及标准项目高压电动机B级检修是指电机部分解体,不抽转子情况下进行的检修。
隔离开关操动机构电机输出轴扭矩和电流关系的研究发表时间:2018-01-16T09:42:35.687Z 来源:《电力设备》2017年第28期作者:赵昕[导读] 摘要:在高压开关设备中,隔离开关(DS)的使用量是最大的,在高压电网中起到隔离线路,建立可靠绝缘间隙的作用,DS还用于换接线路以及变换母线接线方式。
(国网冀北电力有限公司唐山供电公司河北唐山 063000)摘要:在高压开关设备中,隔离开关(DS)的使用量是最大的,在高压电网中起到隔离线路,建立可靠绝缘间隙的作用,DS还用于换接线路以及变换母线接线方式。
DS性能的好坏直接影响电网的安全运行,是高压电网中最重要的设备之一。
高压隔离开关在分合闸过程中常由于操动机构速度的快或慢而引起拒分、拒合、分合闸不到位以及传动部件损坏变形等故障,因此,有必要对开关触头的运动过程进行控制。
以往的高压隔离开关操动机构采用弹簧、液压或气动技术,具有连杆多、结构复杂的缺点,因此,其累计运动公差大、响应缓慢、可控性差,难以实现触头的运动控制。
关键词:隔离开关;操动机构;电机输出;扭矩;电流关系;分析1导言高压隔离开关主要用于倒闸操作、隔离电源或者分合小负荷设备。
在倒换运行方式或者设备停电检修时,隔离开关能否顺利操作直接影响到系统的供电可靠性和安全性。
高压隔离开关多工作于户外环境,转动或传动机构长期暴露在空气中易发生锈蚀,加之运行维护不及时,出现隔离开关分合闸不到位、运动卡滞等机械故障,这已经成为隔离开关安全运行急需解决的难题之一。
隔离开关工作时,操动机构电机通过轴系统带动传动机构运动,完成分合闸动作。
当传动机构出现卡滞等异常情况时,操动机构电机输出轴的扭矩增大,因此电机输出轴扭矩是反映隔离开关机械故障的重要指标。
2 DS电机机构控制系统2.1分合闸隔离驱动控制电路设计本文采用功率开关器件IGBT来控制三相绕组电流的通断,并设置RCD缓冲电路改变器件的开关轨迹控制各种瞬态过压,降低器件开关损耗,保护器件安全运行。
2012.11.6日入厂YRKK450-6/400KW电机,震动大,定转子扫堂。
拆机检查:检查前端盖轴承室大0.1mm,转子轴承位没事.考虑仅仅因为轴承室大0.1mm不可能造成扫堂。
把转子放在平衡机上打表测量,轴头跳动+33丝,后风扇位-28丝,轴两头拧。
但是没看见裂痕。
决定把前后轴都补起来,车床加工使之同心,解决扫堂问题.放在车床加工转动,发现了铁芯里面轴裂了。
厂家同意换轴。
转子轴是6块Q235筋板焊接在45号钢轴上。
具体加工工艺如下:1.进50*70*720筋板6块,材料是Q235,Φ180*2530圆钢一根材料为45号钢(本来想用35号钢,没买着)2.把轴外圆粗加工到原电机轴Φ176上。
6块筋板在铣床上铣10*10倒角,并铣平地面。
确定好筋板在轴上的位置。
把6块筋板6等分预先点焊在轴上。
焊接前,把轴和焊条都放置在烘房中加热到200度以上(最好是300-350度,烘房温度达不到)。
要烘透。
注意:不可用氧-乙炔焰烘烤,否则因坡口表面氧化和加热不均而影响焊接质量。
焊接时不要停,有裂纹也不用管,一次焊完,随着温度增到自然就好了,焊条选用J506或J507,这次使用二保焊,焊丝是ER50-6。
3.原转子轴上,装铁芯的筋板,有一头有一个挡风板,一开始都认为是为了加固筋板用的,据听说有这样的电机,两面排风。
退火回来后又补焊上。
以后记住原来有什么就给人家做上什么,不管他有用没用。
免得以后麻烦。
5.转子轴消除内应力.最好用井式炉,井式炉没找到,用箱式炉,把轴垫平。
还行。
去应力退火工艺要求如下:① 1.开炉(盖盖)后,慢慢升温,2h内,升温到400℃以下;2h后,以每小时100℃的速度,加热到600℃~650℃,并保持炉内在加热过程中,各区的温度差不大于20℃。
② 2.加热到600℃~650℃,在炉内进行保温,保温时间4-6小时。
然后,在关闭的炉中,以50℃/小时的冷速,冷却到200℃以下时,将退火件从炉中移出,置于静止的空气中到室温。
高压电动机结构说明来源:湘潭电机集团有限公司 /1.1高压电动机结构形式无论是鼠笼式或绕线型,根据不同要求,有自通风冷却型、空—空冷却型、水—空冷却型及管道通风型等几种形式。
1.1.1无论哪种结构形式,电动机都有定子、转子、机座、轴承装置、出线盒等主要部件。
1.1.2自通风冷却型电动机,在机座顶部装有防护等级为IP23的防护顶罩。
根据要求也可以有防护等级为IPW23、IPW24的防护罩。
1.1.3空—空冷却型电动机,在机座顶部装有空—空冷却器,并在非轴伸端或轴伸端装有外冷却风扇和风罩。
对户外型电动机在冷却器出风羰还装有空罩。
1.1.4水—空冷却型电动机,在机座顶部装有水—空冷却器。
1.1.5管道通风型电动机,在机座顶部装有供接进、出风管道,或只装进风管道的防护顶罩。
1.1.6绕线型电动机在非轴伸羰装有集电环。
1.1.7通常电机只有一个轴伸,根据需要还可有两个轴伸,通常情况下,而对出线盒左端为主轴伸,右端为副轴伸,出线盒换边后则反之,本说明书中的“非轴伸端”对双轴伸电机而言是指副轴伸端。
1.2机座1.2.1吊入式机座是一个长方体的箱式结构,机座内部轴向有筋,用于支撑和固定定子。
定子是从上方放入机座,靠定子压圈与机座轴向筋定位并保证气隙均匀度。
再用螺栓将定子与机座紧固。
机座端端板的内止口与端盖的外止口紧密配合,能充分保证定、转子之间的气隙均匀度。
1.3定子线圈定子线圈是双层叠绕阻,绝缘等级为F级,电压等级为3KV级及以上者均有防电晕措施。
1.4转子线圈绕线型电动机的转子线圈是双层波绕组,用矩形铜排制成,绝缘等级为F级。
1.5定子定子是外压装结构,通常采用磁性槽楔,根据需要也可用非磁性槽楔。
线圈端部之间用适型材料垫紧,并与端箍、支撑杆扎牢在一起,经过真空压力整浸无溶剂漆后,整个定子成为一个整体,增强了其机械性和防潮能力。
1.6转子1.6.1鼠笼型电动机一般情况下采用铸铝转子,这种转子运行可靠,并具有较好的起动性能,它可以满压直接起动。
JR、JS系列的电机是中型三相异步电动机,是我国50年代未60年代初统一设计的中型电动机,它分低压和高压两部分,都是中型三相电动机的基本系列。
Y型系列三相电动机,是我国近年来研制成功的节能新型电机。
JR、JS系列的电机基本淘汰被Y系列所取代。
功率相同即是容量相同,只是Y型系列电机体积比JR、JS系列电机体积小本文摘自:JR系列电动机JR系列电动机为驱动各种不同机械之用,如通风机、压缩机、水泵、破碎机、切削机床、榆树机械及其他设备等。
本系列电动机一般为为自通风防护式。
电动机应在海拔高度不超过1,000米,使用地点空气温度不高于+40℃的室内正常工作,温升限度符合国家标准GB/T755-2000的规定。
本系列电动机符合机械工业部部颁标准JB563-64和JB564-64的规定。
本系列电动机共分为五个机座号,即11、12、13、14及15号机座。
例如:(1)JS147-6表示鼠笼转子型异步电动机,14号机座,定子铁心长度为7号,6极。
(2)JR147-10表示绕线转子型异步电动机,14号机座,定子铁心长度为7号,10极一、JS、JR系列概述J系列中型电机可驱动各种不同的机械,如通风机、压缩机、水泵、破碎机、球磨机、要削机床、运输机械及其他设备,可供煤矿、机械工业、发电厂及各种工矿企业中作原动机用。
JS系列为鼠笼转子三相异步电机。
JR系列为绕线转子三相异步电机。
JS系列电机符合部颁机准JB563-64技术条件的规定。
JR系列电机符合部颁机准JB564-64技术条件的规定。
本系列电机为防护式。
根据用户需要也可制成管道通风式。
防护式电机应装置在海拔高度不超过1KM,周围空气温度不高于+40℃,不低于0℃,空气清洁,无酸、碱等腐蚀性气体的室内。
电机不允许在含有爆炸性气体或尘埃较多的环境中工作。
当电机周围空气的温度超过上述规定或空气不清洁时,应采用管道通用方式。
此时,通入电机两端的冷却空气温度应为0℃——40℃并且应保证管道和电机内部的空气压力高于周围空气的压力,必要时应加装鼓风机、滤尘器等。
YB2系列高压隔爆型三相异步电动机样本用,可广泛应用于石油、化工、制药、冶金、煤炭等行业的各种机械设备。
2.型号说明YB2系列高压隔爆型三相异步电动机的型号说明如下:例如:YB2-355M1-4YB2——系列名称355——定子铁心高度(mm)M1——安装方式,IMB34——极数3.结构说明本系列电动机采用全封闭式结构,外壳采用铝合金铸造而成,具有良好的防爆性能和散热性能。
定子绕组通过F级绝缘处理,转子采用铸铝工艺制成。
加强了电动机的稳定性和耐久性。
轴承采用进口或国产高品质轴承,保证电动机的稳定性和寿命。
电动机的转子采用双重压铸工艺,确保电动机的运行平稳、噪声低。
4.使用条件本系列电动机适用于环境温度为-15℃~40℃,海拔高度不超过1000m。
电源电压为380V,频率为50Hz,工作制度为S1(连续运行),使用于1区、2区爆炸性气体环境中的各种机械设备。
5.技术参数本系列电动机的额定功率范围为160kW~1000kW,额定电压为6kV、10kV、11kV、13.8kV,额定频率为50Hz,额定转速为3000r/min、1500r/min、1000r/min、750r/min、600r/min。
6.结构及安装和外形尺寸本系列电动机的结构及安装和外形尺寸见附表。
7.质量证明本系列电动机的质量证明文件包括:出厂合格证、质量保证书、产品检验报告、产品合格证等。
8.订货须知订货时请注明电动机的型号、额定功率、额定电压、额定频率、额定转速、安装方式、防护等级、冷却方式、轴伸方向、轴承品牌、防爆标志等。
如有特殊要求,请与我公司销售部门联系,我们将尽力满足您的需求。
XXX。
machinery。
petrochemical。
and power XXX。
such as compressors。
pumps。
crushers。
cutting machines。
conveyors。
and other equipment.ExdI is XXX-mining working faces underground.ExdⅡAT4 XXX with Class ⅡA and temperature groups of T1.T2.T3.and T4.ExdⅡBT4 XXX with Class ⅡB and temperature groups of T1.T2.T3.and T4.ExdⅡCT4 XXX with Class ⅡC and temperature groups of T1.T2.T3.and T4.Motors can be made for different climate ns。
10kV高压电动机轴承温度高分析及处理发表时间:2019-05-06T10:24:32.547Z 来源:《电力设备》2018年第31期作者:李超贺彩荣[导读] 摘要:陕西华电榆横煤电有限责任公司榆横发电厂为2×660MW火力发电机组,生产所属区域10kV高压电动机共86台,已投运5年。
(陕西华电榆横煤电有限责任公司榆横发电厂陕西榆林 719000)摘要:陕西华电榆横煤电有限责任公司榆横发电厂为2×660MW火力发电机组,生产所属区域10kV高压电动机共86台,已投运5年。
10kV高压电动机是重要辅机设备,在运行中发生故障时可能会引起机组降出力,更甚可能造成机组非计划停运。
对机组的安全、稳定、经济、环保运行影响重大。
而轴承是10kV高压电动机的关键部件,一旦轴承故障将会直接导致10kV高压电动机不能正常运行。
近年来10KV 高压电动机轴承温度高的问题一直影响机组稳定运行,针对此问题,经现场调查、试验、对比、总结。
通过改善电动机本体散热路径、提高轴承装配技术、改善电动机轴承润滑脂等方式,对症下药多种途径解决了高压电动机轴承温度高的问题。
保证了机组的安全、稳定、经济、环保运行,提高了企业的经济效益。
关键词:10kV高压电动机;轴承温度;现场调查;润滑脂;装配;散热;质量;轴电流1轴承温度高判断根据10kV高压电动机厂家说明书规定,10kV高压电动机运行时滚动轴承外圈允许最高温度不应搞过95℃(榆横电厂10kV高压电动机轴承温度高跳闸值为90℃,报警值为80℃)。
但对于运行中最高温度以多少度属于轴承温度高,暂时没有明确的规定。
根据经验,一般认为10kV高压电动机在运行2小时后,滚动轴承稳定在65℃以下,并且滚动轴承温升不超过50℃便可认为正常。
轴承运行短时(如15min)上升至65℃或运行2小时以上超过65℃仍然没有下降趋势,及不到2h但轴承稳定温度超过75℃,皆可以视为轴承温度高(其中65℃、75℃是针对夏季而言,在寒冷的冬天以55℃、65℃为宜)。