钢筋混凝土构件详图
- 格式:ppt
- 大小:927.00 KB
- 文档页数:29
5.方茴说:“那时候我们不说爱,爱是多么遥远、多么沉重的字眼啊。
我们只说喜欢,就算喜欢也是偷偷摸摸的。
”6.方茴说:“我觉得之所以说相见不如怀念,是因为相见只能让人在现实面前无奈地哀悼伤痛,而怀念却可以把已经注定的谎言变成童话。
”7.在村头有一截巨大的雷击木,直径十几米,此时主干上唯一的柳条已经在朝霞中掩去了莹光,变得普普通通了。
8.这些孩子都很活泼与好动,即便吃饭时也都不太老实,不少人抱着陶碗从自家出来,凑到了一起。
9.石村周围草木丰茂,猛兽众多,可守着大山,村人的食物相对来说却算不上丰盛,只是一些粗麦饼、野果以及孩子们碗中少量的肉食。
1.“噢,居然有土龙肉,给我一块!”2.老人们都笑了,自巨石上起身。
而那些身材健壮如虎的成年人则是一阵笑骂,数落着自己的孩子,拎着骨棒与阔剑也快步向自家中走去。
第五节钢筋混凝土构件详图一、 钢筋混凝土构件详图的主要内容结构平面图只能表示建筑物各承重构件的平面布置,许多承重构件的形状、大小、材料、构造和连接情况并未清楚地表示出来,因此,需要单独画出各承重构件的结构详图。
钢筋混凝土构件有定型构件和非定型构件两种。
定型的预制或现浇构件可直接引用标准图或通用图,只要在图纸上写明选用构件所在标准图集或通用图集的名称、代号。
自行设计的非定型预制或现浇构件,则必须绘制构件详图。
钢筋混凝土构件详图是钢筋翻样、制作、绑扎、现场制模、设置预埋、浇捣混凝土的依据。
钢筋在混凝土构件中的作用除了增强受拉区的抗拉强度外,有时还起着其他作用。
所以,常把构件中不同位置的钢筋分为:1、 受力筋 这是构件中根据计算确定的主要钢筋,在受拉区的钢筋为受拉筋,在受压区的钢筋为受压筋。
2、 箍筋 在梁和柱中承受剪力或扭力作用的钢筋,并对纵向钢筋起定位的作用,使钢筋形成钢筋骨架。
3、 构造筋 包括架立筋、分布筋及由于构造需要的各种附加钢筋的总称。
其中,架立筋是在梁内与受力筋、箍筋构成骨架的钢筋;分布筋是在板内与受力筋组成骨架的钢筋。
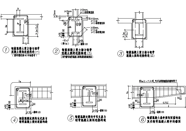
钢筋混凝土构件详图绘制说明4.4.7钢筋混凝土构件详图1现浇构件(现浇梁、板、柱及墙等详图)应绘出:1)纵剖面、长度、标高及钢筋,梁和板的支座(可利用标准图中的纵剖面图):现浇预应力混凝土构件尚应绘出预应力筋定位图,并提出锚固及张拉要求;2)横剖面、定位尺寸、断面尺寸、配筋(可利用标准图中的横剖面图);3)必要时绘制墙体立面图;4)若钢筋较复杂不易表示清楚时,易将钢筋分离绘出;5)对构件受力有影响的预留洞、预埋件,应注明其位置、尺寸、标高、洞边配筋及预埋件编号等;6)曲梁或平面折线梁易绘制放大平面图,必要时可绘展开详图;7)一般的现浇结构的梁、柱、墙可采用“平面整体表示法”绘制,标注文字较密时,纵、横向梁宜分两幅平面绘制;8)除总说明已叙述外需特别说明的附加内容,尤其是与所选用标准图不同的要求(如钢筋锚固要求、构造要求等);9)对建筑非结构构件及建筑附属机电设备与结构主体的连接,应绘制连接或锚固详图;注:非结构构件自身的抗震设计,由相关专业人员分别负责进行。
【补充说明】一般现浇结构可采用国家标准图集03G101-1的方法绘制梁、柱、墙的配筋图,当采用平法不能清楚表达构件的配筋时应绘制详图。
复杂的构件宜将模板和配筋图分别绘制,简单的对称构架可一半绘制模板图,另一半绘制配筋图,并标准对称的符号。
特殊复杂的构件宜绘制纵横剖面详图。
1.纵剖面中标注支座与轴线定位尺寸、支座宽度、构件长度、纵筋形状和尺寸、箍筋加密范围、附加横向钢筋(附加箍筋和附加吊筋)、钢筋间距、钢筋编号、构件标高等。
预应力构件应绘制预应力钢筋的定位尺寸、锚固端的做法及施工要求等,配筋复杂的构件可将非预应力钢筋单独绘制。
2.横剖面标注断面尺寸、纵向钢筋的数量和规格、箍筋的形状和尺寸、纵向构造钢筋和拉筋的数量和规格、钢筋的编号。
3.剪力墙连梁、错洞墙等绘制立面图,纵向钢筋锚固长度、箍筋布置,连梁斜向交叉暗撑、交叉钢筋,洞口位置、尺寸、补强钢筋。