12x10 五层半临街自建门面楼房设计图户型图平面图方案图纸效果图
- 格式:pdf
- 大小:5.54 MB
- 文档页数:19
12x10 五层半新农村自建房门面楼房设计图施工图建筑结构图效果图随着中国农村的快速发展,自建房已成为一种趋势。
本文将介绍一种12x10五层半新农村自建房门面楼房的设计、施工和建筑结构图以及效果图。
该设计图以简洁、实用为主,整体外观以现代风格为主,同时融入了一些地方特色元素。
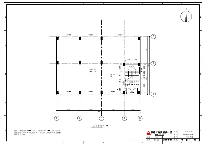
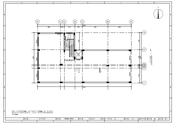
楼房的尺寸为12米宽,10米深,共有五层半,其中一层为门面,二层至五层为居住区。
在设计过程中,我们考虑到光照、通风、安全等因素。
门面部分设计为开放式,方便展示商品和交流。
居住区部分则注重私密性和舒适性,每个房间都配有窗户,保证充足的采光和通风。
该施工图详细列出了楼房建设的各个环节,包括地基处理、钢筋混凝土框架结构、墙体材料、防水工程等。
施工人员需要根据施工图逐步进行建设,确保工程质量。
在施工过程中,需要注意以下几点:地基处理要牢固,保证楼房的安全性;钢筋混凝土框架结构要按照规范进行搭建,确保承重能力和稳定性;墙体材料和防水工程等细节问题也要注意,保证居住的舒适性。
该建筑结构图主要包括框架结构、墙体、屋顶等部分。
框架结构采用钢筋混凝土搭建,承重能力强,稳定性高。
墙体采用保温材料制作,能够有效地保持室内温度。
屋顶采用防水材料铺设,防止雨水渗漏。
在建筑结构图中,我们还加入了节能环保的理念。
例如,在墙体中加入保温材料,能够减少能源消耗;在屋顶中加入太阳能板,能够实现能源的可持续利用。
该效果图展示了楼房建成后的外观和内部布局。
整体外观现代简洁,具有很高的辨识度。
内部布局合理,既满足了居住需求,又保证了舒适性。
在效果图中,我们还加入了人物元素,展示了楼房建成后居民的生活场景。
这些人物元素不仅增加了效果图的生动性,也让人们更加直观地感受到楼房的实用性和舒适性。
该12x10五层半新农村自建房门面楼房设计图施工图建筑结构图效果图是一套完整的设计方案,既满足了现代人对居住环境的追求,又融入了地方特色元素。
它不仅为新农村建设提供了一种新的思路和模式,也为自建房市场注入了一股新的活力。
±0.000-0.4504.5008.50011.70014.9004500400032003200320032003200220094502670018.10021.30024.50026.700122001700170050023009009001500900900500150090090050050012001200500100080021.300200300120050059°26.70020020050059°制图校核编号版本项目图名12345 12345桂林云合房屋设计室2014-1-11林应海已审 1 : 1009-1立面图 说明:外墙装饰参考效果图,材料户主自选。
1 : 301女儿墙大样1 : 302挡水墙大样±0.000-0.4504.5008.50011.70014.90022003200320032003200320040004500H A 2670045018.10021.30024.50026.700100090090090090090090090090090012001200500800制图校核编号版本项目图名1234 12345桂林云合房屋设计室2014-1-11林应海已审 说明:外墙装饰参考效果图,材料户主自选。
1 : 100A-H立面图±0.000-0.4504.5008.50011.70014.9002670045022003200320032003200320040004500918.10021.30024.50026.700112005003120277527452745制图校核编号版本项目图名1234 12345桂林云合房屋设计室2014-1-11林应海已审 1 : 1001-9立面图 说明:外墙装饰参考效果图,材料户主自选。
±0.000-0.4504.5008.50011.70014.90022003200320032003200320040004500H A 2670045018.10021.30024.50026.700230017001700500220022001000900150090090050012001200500制图校核编号版本项目图名1234 12345桂林云合房屋设计室2014-1-11林应海已审 1 : 100H-A立面图 说明:外墙装饰参考效果图,材料户主自选。