圆形水池计算书
- 格式:doc
- 大小:126.00 KB
- 文档页数:7
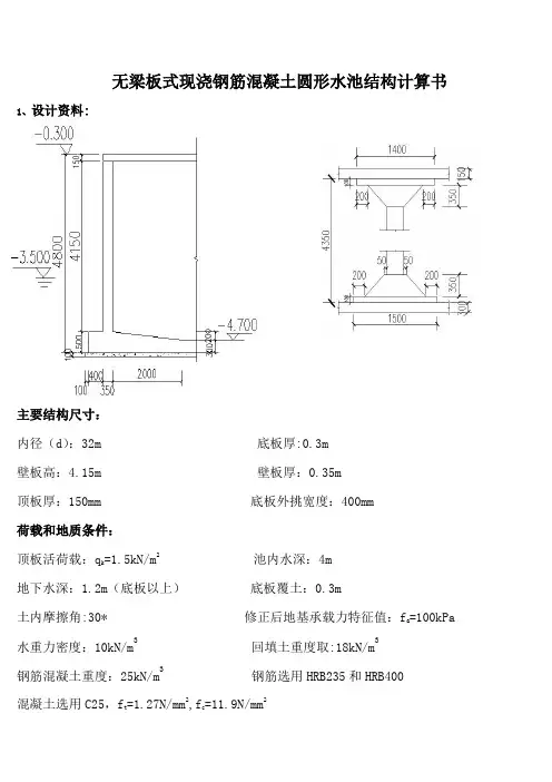
无梁板式现浇钢筋混凝土圆形水池结构计算书1、设计资料:主要结构尺寸:内径(d):32m 底板厚:0.3m壁板高:4.15m 壁板厚:0.35m顶板厚:150mm 底板外挑宽度:400mm荷载和地质条件:顶板活荷载:q k=1.5kN/m2 池内水深:4m地下水深:1.2m(底板以上)底板覆土:0.3m土内摩擦角:30* 修正后地基承载力特征值:f a=100kPa 水重力密度:10kN/m3 回填土重度取:18kN/m3钢筋混凝土重度:25kN/m3 钢筋选用HRB235和HRB400混凝土选用C25,f t=1.27N/mm2,f c=11.9N/mm22、抗浮稳定性验算:i )局部抗浮稳定性验算:取中间区格(4×4m 2)作为计算单元,抗力荷载标准值如下: 顶板自重:25×0.15×4×4=60kN 底板自重:25×0.3×4×4=120kN 支柱自重:25×0.3×0.3×3.45=7.76kN柱帽重:25×[1.42×0.1+31(0.32+0.3×1+12)×0.35]=8.95kN柱基重:25×[1.52×0.1+31(0.42+0.4×1.1+1.12)×0.35]=10.9kN池顶覆土重:18×4×4×0.3=86.4kN ΣG k =60+120+7.76+8.95+10.9+86.4=294.01kN局部浮力:F 浮=11)(A h d w ⋅+γ=10×(1.2+0.3)×4×4=240kN K=浮F G k ∑=24001.294=1.23>1.05满足局部抗浮要求 ii)整体抗浮验算:顶板自重:π(16+0.35)2×0.15×25=3149.32kN 顶板覆土重:π(16+0.35)2×0.3×18=4535.02kN 壁板自重:2π(16+0.35/2)×0.35×4.17×25=3708.24kN悬挑土重:π[(16+0.4+0.35)2-(16+0.35)2]×[(18-10)×1.2+18×3.5]=3019.77kN 池内支撑柱总重:45×(7.76+8.95+10.9)=1242.5kN 底板浮重:π(16+0.35+0.4)2×0.3×(25-10)=3966.35kNΣG k =3149.32+4535.02+3708.24+3019.77+1242.5+3966.35=19621.2kN总浮力:F 浮=A h d w ⋅+)(1γ=10×(1.2+0.3)×π(16+0.4+0.35)2=13221.2kN K=浮F G k ∑=2.132212.19621=1.48>1.05满足整体抗浮要求3、地基承载力验算:池内水重:G W =10×π×162×4.17=33537.13kN池顶活荷载:Q k =q k A=1.5×(16+0.35+0.4)2×π=1322.12kN 基地压力:P k =A Q G G k W ++∑=275.1612.132213.335372.19621⨯++π=61.81kPa<f a =100kPa 故地基承载力满足要求 4、抗冲切验算:顶板:按顶板周边简支的方格柱网无梁板计算顶板荷载 荷载效应准永久值 作用效应基本组合设计值 活荷载 1.5×0.4=0.6kN/m 2 1.5×1.4=2.1kN/2 顶板覆土 18×0.3=5.4kN/m 2 5.4×1.27=6.86kN/m 2 顶板自重 25×0.15=3.75kN/m 2 3.75×1.2=4.5kN/m 2 合计 10.15kN/m 2 13.94kN/m 2 I-I 截面抗冲切验算:P s [L 2-(B+h 0)2]≤0.7f tSh 0h 0=150-30=120mm,B+h 0=1400+120=1520mm S=4(B+h 0)=6080mm P s [L 2-(B+h 0)2]=13.94×[42-1.522]=190.83kN0.7f t Sh 0=0.7×1.27×6.08 ×0.12=648.61kN>190.83kN 满足抗冲切要求 II-II 截面抗冲切验算:P s [L 2-(B+h 0)2]≤0.7f tShh 0=250-30=220mm,B+h 0=1000+220=1220mm S=4(B+h 0)=4880mmP s[L2-(B+h0)2]=13.94×[42-1.222]=202.29kN0.7f t Sh0=0.7×1.27×4.88×0.22=954.43kN>202.29kN满足抗冲切要求底板:按底板板周边简支的方格柱网无梁板计算基地反力:准永久值:275 . 161242.5 3019.773708.244535.023149.32⨯+ +++π+0.6=18.36kN/m2基本组合设计值275 . 161.351242.51.273019.771.353708.241.274535.021.353149.32⨯⨯+⨯+⨯+⨯+⨯π+2.1=25.39kN/m2 i)I-I截面:h0=300-40=260mm B+h0=1500+260=1760mm4(B+h0)=7040mmP s[L2-(B+h0)2]=25.39×[42-1.762]=327.59kN0.7f t Sh0=0.7×1.27×7.04×0.26=1627.23kN>327.59kN满足抗冲切要求i)II-II截面:h0=300-40=260mm B+h0=1100+260=1360mm4(B+h0)=5440mmP s[L2-(B+h0)2]=25.39×[42-1.362]=359.28kN0.7f t Sh0=0.7×1.27×5.44×0.26=1257.4kN>359.28kN满足抗冲切要求5、顶板内力计算:顶板弯矩布置图如下1)柱帽计算宽度:C=(0.7-0.2+0.1)×2=1.2m>0.2L 且≤0.3L 2)中间区格总弯矩: 计算跨度:L 中=L-2c/3=3.2m准永久值 基本组合设计值M 0=281中qLL 51.97kN 71.37kN 总边区格总弯矩:计算跨度L 边=L-c/3+h/2=3.71M 0边=281边qLL 69.85kN 95.94kN 池壁与顶板视为铰接连接,其刚度比为零查得:α=1.45,β=1.8,γ=0故作用效应准永久值(kN.m) 作用效应组合设计值(kN.m) M 1=-0.5M 0=-25.99 M 1=-0.5M 0=-35.69 M 2=0.2M 0=10.39 M 2=0.2M 0=14.27 M 3=-0.15M 0=-7.80 M 3=-0.15M 0=-10.71 M 4=0.15M 0=7.8 M 4=0.15M 0=10.71 M 5=-0.5αM 0=-37.68 M 5=-0.5αM 0=-51.74 M 6=0.2βM 0=18.71 M 6=0.2βM 0=25.69 M 7=-0.15αM 0边=-15.19 M 7=-0.15αM 0边=-20.87 M 8=0.15βM 0边=18.85 M 8=0.15βM 0边=25.93 M 3’=-0.12M 0边=-8.38 M 3’=-0.12M 0边=-11.51 M 4’=0.12M 0边=8.38 M 4’=0.12M 0边=11.51 3)顶板按照承载力极限状态进行配筋计算: A S =87.0h f My ,h 0=150-30=120mm,HRB400f y =360N/mm 2,HRB235f y =210N/mm 2,(各区格板纵横向均需满足最小配筋率min ρ=0.2%,最小配筋面积A Smin =bh min ρ=600mm 2) A S1=949.61mm 2,A S2=379.68mm 2,A S4=284.96mm 2,A S5=1376.65mm 2,A S6=683.54mm 2,A S7=555.29mm 2,A S8=689.92mm 2,A S3’=306.25mm 2,A S4’=306.25mm 2;故:顶板选用双层双向C 10@200,A S =785mm 2>A Smin =600mm 2;因A S1、A S5均大于A S ,故M 1、M 5方向增加上层附加钢筋C 10@200,A S =1570mm 2大于A S1、A S5 4)按照正常使用极限状态进行裂缝宽度验算:1)M 6区格板087.0h A M s qsq =σ=12.078587.01071.183⨯⨯⨯=288.3N/mm 2 15020005.07855.0⨯⨯===bh A A A s te s te ρ=0.005 =⨯⨯⨯-=-=13.288005.078.165.01.165.01.12ασρψsq te tkf 0.197C25混凝土f tk =1.78N/mm 2,E S =2.1×105N/mm 2v dc E w teSsq)1)(11.05.1(8.11max αρσψ++==7.0)01)(005.01011.0305.1(101.23.288197.08.15⨯++⨯⨯⨯⨯=0.09mm<0.25mm 满足裂缝宽度要求。
矩形水池计算================================================================= ===========设计资料:池顶活荷P1=4(KN/m^2) 覆土厚度ht=500(mm) 池内水位Hw=2700(mm) 容许承载力R=100(KN/m^2)水池长度H=20000(mm) 水池宽度B=4500(mm) 池壁高度h0=2700(mm) 底板外伸C1=0(mm)底板厚度h1=300(mm) 顶板厚度h2=300(mm) 垫层厚度h3= 100 (mm) 池壁厚度h4=250(mm)地基承载力设计值R=100(KPa)地下水位高于底板Hd=1000(mm) 抗浮安全系数Kf = 1.10_____________________________________________________________________________ ___________一.地基承载力验算( 1 )底板面积AR1 = (H + 2 * h4 + 2 * C1) * (B + 2 * h4 + 2 * C1)= ( 20 + 2 * .25 + 2 * 0 ) * ( 4.5 + 2 * .25 + 2 * 0 )=102.5(m^2)( 2 )顶板面积AR2 = (H + 2 * h4) * (B + 2 * h4)= ( 20 + 2 * .25 ) * ( 4.5 + 2 * .25 )=102.5(m^2)( 3 )池顶荷载Pg = P1 + ht * 18= 4 + .5 * 18=13 (KN/m^2)( 4 )池壁重量CB = 25 * (H + 2 * h4 + B) * 2 * H0 * h4= 25 * ( 20 + 2 * .25 + 4.5 )* 2 * 2.7 * .25=843.7(KN)( 5 )底板重量DB1 = 25 * AR1 * h1= 25 * 102.5 * .3=768.7(KN)( 6 )顶板重量DB2 = 25 * AR2 * h2= 25 *102.5 * .3=768.7(KN)( 7 )水池全重G = CB + DB1 + DB2 + Fk1=843.7+768.7+768.7 +0=2381.1(KN)( 8 )单位面积水重Pwg = (H * B * Hw * 10) / AR1= ( 20 * 4.5 * 2.7 * 10) / 102.5=23.70(KN/m^2)( 9 )单位面积垫层重Pd = 23 * h3= 23 * .1=2.24(KN/m^2)( 10 )地基反力R0 = Pg + G / AR1 + Pwg + Pd=13 + 2381.1 / 102.5 + 23.70 + 2.24= 62 (KN/m^2)R0 = 62 (KN/m^2) < R = 100(KN /m^2) 地基承载力满足要求!二.水池整体抗浮验算抗浮全重Fk = G + ht * AR2 * 16+ Fkt (抗浮时覆土容重取16KN/m^3)= 2381.1+ .5 *102.5 * 16 +0= 3101 (KN)总浮力Fw = AR2 * (Hd + h1) * 10= 102.5 * ( 1 + .3 ) * 10= 1332 (KN)Fk= 3101 (KN) > Kf * Fw= 1465.2 (KN) 整体抗浮验算满足要求!三.水池局部抗浮验算池内无支柱,不需验算四.荷载计算(1)池内水压Pw= rw * H0 = 10 * 2.7 = 27 (KN/m^2)(2)池外土压Pt:池壁顶端Pt2 = [Pg + rt * (ht + h2)] * [Tan(45-φ/2) ^ 2]= [13 + 18 * ( .5 + .3 )] * [Tan(45-30/2) ^ 2]= 9.13(KN/m^2)池壁底端Pt1 = [Pg + rt * (ht + h2 + H0 - Hd) + rt * Hd] * [Tan(45-φ/2) ^ 2] + 10 * Hd = [13 + 18 *( .5 + .3 + 2.7 - 1 )+10 * 1 ] * [Tan(45-30/2)^2] + 10 * 1= 32.66(KN/m^2)池底荷载qD = Pg + (Fk1 + CB) / AR2= 13 +(0 +843.7) / 102.5= 21.23(KN/m^2)五.内力计算(B边)池壁内力计算B / H0 =4500 /2700=1.6由于0.5≤ B / H0 ≤ 2故按三边固定、顶边简支双向板计算池壁内力根据《矩形板均布荷载作用下静力计算表》采用插值法计算弯矩系数1.池外(土、水)压力作用下池壁内力( 1 )水平方向跨中弯矩 Mx = Mx412 + Mx312 = 2.28(KN-m)-----------------------------------------------------Mx412 =.016 *9.13 * 7.29 =1.06(KN-m)Mx312 =.0071 *(32.66-9.13)* 7.29 =1.21(KN-m)( 2 )竖直方向跨中弯矩 My = Mx414 + Mx314 = 7.00(KN-m)-----------------------------------------------------Mx414 =.0493 *9.13 * 7.29 =3.28(KN-m)Mx314 =.0217 *(32.66-9.13)* 7.29 =3.72(KN-m)( 3 )水平方向支座弯矩 Mx0 = Mx415 + Mx315 = -11.3(KN-m)-----------------------------------------------------Mx415 =-.077 *9.13 * 7.29 =-5.12(KN-m)Mx315 =-.036 *(32.66-9.13)* 7.29 =-6.17(KN-m)( 4 )竖直方向支座弯矩 My0 = Mx416 + Mx316 = -16.6(KN-m)-----------------------------------------------------Mx416 =-.103 *9.13 * 7.29 =-6.85(KN-m)Mx316 =-.057 *(32.66-9.13)* 7.29 =-9.77(KN-m)2.池内水压力作用下池壁内力( 1 )水平方向跨中弯矩 Mx312w = Sx312 * Pw * LX ^ 2= .0071 * 27 * 7.29 =1.39(KN-m)( 2 )竖直方向跨中弯矩 Mx314w = Sx314 * Pw * LX ^ 2= .0217 * 27 * 7.29 =4.27(KN-m)( 3 )水平方向支座弯矩 Mx315w = Sx315 * Pw * LX ^ 2= -.036 * 27 * 7.29 =-7.08(KN-m)( 4 )竖直方向支座弯矩 Mx316w = Sx316 * Pw * LX ^ 2= -.057 * 27 * 7.29 =-11.2(KN-m)(H边)池壁内力计算H / H0 =20000 /2700=7.4由于 H / H0 > 2故按竖向单向板(挡土墙)计算池壁内力1.池外(土、水)压力作用下池壁内力Pt0 = Pt1 - Pt2=32.66 -9.13= 23.53 (KN/m^2)U = Pt2 / Pt1=9.13 /32.66=.27V = (9 * U ^ 2 + 7 * U + 4) / 20) ^ 0.5=(9 * .27^ 2 + 7 *.27+ 4) / 20) ^ 0.5=.57QA = [(11 * Pt2 + 4 * Pt1) * H0] / 40=[11 * 9.13 + 4 * 32.66) * 2.7 ] / 40=15.Y0 = (V - U) * H0 / (1 - U)=(.57-.27) * 2700 / (1 -.27)=1.1最大弯矩Mn1 = QA * Y0 - [Pt2 * (Y0 ^ 2)] / 2 - [(Pt0 * (Y0 ^ 3)] / (6 * H)= 15. * 1.1 - [9.13* (1.1 ^ 2)] / 2 - [ 23.53 * (1.1 ^ 3)] / (6 * 20 )= 10.7(KN-m)底端弯矩Mn2 = -(7 * Pt2 + 8 * Pt1) * H0^2 / 120= -(7 *9.13 + 8 * 32.66) * 2.7 ^2 / 120= -19.(KN-m)角隅最大弯矩Mj1 = -0.076 * Pt1 * H0 ^ 2= -0.076 *32.66 * 2.7 ^ 2= -5.0(KN-m)2.池内水压力作用下池壁内力最大弯矩Mw1 = 0.0298 * Pw * H0 ^ 2= 0.0298 * 27 * 2.7 ^ 2= 5.86(KN-m)最大弯矩位置,距底端 0.553 * H0 = 1.4931 (m)底端弯矩Mw2 = -(Pw * H0 ^ 2) / 15= -( 27 * 2.7 ^ 2) / 15= -13.(KN-m)角隅最大弯矩Mj2 = -0.035 * Pw * H0 ^ 2= -0.035 * 27 * 2.7 ^ 2= -6.8(KN-m)浅议钢筋混凝土水池设计来源:作者:时间:2009-05-13 点击:1水池结构构成及分类水池结构由顶板、底板、池壁、支柱等组成。
均浆池池壁配筋计算工程概况均浆池为圆形水池,水池直径5.6m ,深3.9m ,池壁厚0.3m ,底板厚0.3m ;基底垫层为C10素混凝土;水池壁及底板的混凝土强度等级为C30,采用HRB335钢筋,钢筋保护层厚度40mm 。
计算模型水池池壁计算高度H=3.9 m ,圆柱壳的池壁厚度h=0.3m ,圆柱壳的计算半径R=2.5m 。
特征系数 2.9==7.30.76h0.76 1.350.2H H SR =⨯当1<H S≤15时,按壳体计算环向和竖向内力,查《给水排水工程结构设计手册》表2.2.4-1~2.2.4-39计算圆柱壳体在各种支承条件和侧向荷载作用下的内力。
230213()1E R S E hμμ-=- 式中0E ——土壤变形模量,取0E =10.0MPa E ——材料弹性模量,取E =43.010⨯ MPa μ——泊松比,钢筋混凝土可取1/6 0μ——土壤泊松比,取0μ=0.38 则,经计算S=0.658,取其值为0.8进行计算。
3.3荷载计算3.3.1圆柱壳(1)池内有水,池外无土 荷载标准值:110 2.828k q H kpaγ==⨯=荷载设计值:111.2 1.22833.6k q q kpa ==⨯= 荷载计算简图如图3.1图3.1均浆池池壁荷载计算简图(2)池内无水,池外有土因本工程无正式勘察报告,取填土重度318/kN m γ= ,内摩擦角30oϕ=,粘聚力C=01)基础荷载统计取1m 宽基础对应部分及1/3开间长度作为计算单元 活荷载:屋面活荷载取0.5 kN/m 2,p=1.4×0.5=0.7 kN/m恒荷载:屋面恒荷载取3.5 kN/m ,g 1=1.4×3.5=4.9 kN/m墙身及墙面荷载 g 2=(0.24×19+0.04×20)×3.9=20.9 kN/m基础及垫层荷载 g 3=0.48×0.24×19+0.72×0.3×19+0.92×0.1×22=8.32kN/m g= g 1+g 2+g 3=34.12 kN/m荷载总设计值 N=1.2g+1.4p=41.92 kN/m 2)基础传至池壁荷载 基础荷载传递简图如图3.2所示图3.2基础荷载传递简图基础传来荷载为:41.92/2.36=17.76kpa 将其换算为土层厚度h=17.76/18=0.987m 3)土压力计算由于池壁垂直光滑,则22tan (45/2)tan (4530/2)0.333a K ϕ=-=-=180.9870.333 5.92a hK kpa γ=⨯⨯=18 2.90.33317.38a H K kpa γ=⨯⨯=(其设计值为20.86kpa)土压力荷载(荷载设计值)简图如图3.33.3土压力荷载(荷载设计值)简图经比较可知,池内有水,池外无土为荷载最不利情况,故可只对池内有水,池外无土时的情况进行计算。
2000m³圆形水池设计执行规范:《混凝土结构设计规范》(GB 50010-2010), 本文简称《混凝土规范》《建筑地基基础设计规范》(GB 50007-2011), 本文简称《地基规范》《建筑结构荷载规范》(GB 50009-2012), 本文简称《荷载规范》《给水排水工程构筑物结构设计规范》(GB 50069-2002), 本文简称《给排水结构规范》《给水排水工程钢筋混凝土水池结构设计规程》(CECS 138-2002), 本文简称《水池结构规程》1 设计资料1.1 基本信息圆形水池形式:敞口池内液体重度10.0kN/m3浮托力折减系数1.00裂缝宽度限值0.20mm抗浮安全系数1.10水池的几何尺寸如下图所示:1.2 荷载信息地面活荷载:10.00kN/m2活荷载组合系数:0.90荷载分项系数:自重 :1.20其它恒载:1.27地下水压:1.27其它活载:1.40荷载准永久值系数:顶板活荷载 :0.40地面堆积荷载:0.50地下水压 :1.00温(湿)度作用:1.00活载调整系数:其它活载:1.00壁面温差:-10.0℃温差弯矩折减系数:0.65 混凝土线膨胀系数:0.0000101.3 混凝土与土信息土天然重度:18.00kN/m3土饱和重度:20.00kN/m3土内摩擦角ψ:30.0度地基承载力特征值fak=50.00kPa基础宽度和埋深的地基承载力修正系数ηb=1.00、ηd=1.00混凝土等级:C20 纵筋级别:HRB335混凝土重度:25.00kN/m3配筋调整系数:1.202 计算内容(1)荷载标准值计算(2)抗浮验算(3)地基承载力计算(4)内力及配筋计算(5)抗裂度、裂缝计算(6)混凝土工程量计算3 荷载标准值计算底板:恒荷载:池壁自重: 2.28kN/m2覆土自重:1.79kN/m2活荷载:地面活荷载:0.50kN/m2池壁:恒荷载:池内水压力 :23.00kN/m2池外侧土压力(池底):12.00kN/m2活荷载:温差作用 :-14.92kN.m/m地面活荷载 :3.33kN/m24 地基承载力验算:计算基础底面的压力:池壁内壁圆面积:Aic=πR2 = 3.14×15.2002 = 725.83m2池壁外壁圆面积:A t=π(R+t)2=3.14×(15.200+0.30)2=754.77m2池壁自重Gs=γc×A s×H=25.00×28.93×2.500=1808.38kN底板自重Gb=γc×A b×t2=25.00×794.23×0.30=5956.70kN水池自重Gp=Gs+Gb=1808.38+5956.70=7765.08kN挑出部分覆土重Gexs=γ土×(Ab-At)×(Hb-t2)= 18.00×(794.23-754.77)×(2.300-0.30)=1420.50kN池内水自重Gw=p w×Aic=23.00×725.83=16694.17kN外挑部分活荷载Gqm=qm×(A b-A t)=10.00×(794.23-754.77)=394.58kN基础底面的压力p k=(Gp+Gw+Gexs+Gqm)/A b=26274.33/794.23=33.08kPa基础宽度大于3m或埋置深度大于0.5m,需修正承载力特征值计算地基承载力特征值修正值:f a=f ak+ηbγ(b-3)+ηdγm(d-0.5)地下水位位于底板下1m以内,考虑地下水水池底板底下的土的重度γ=γ饱和-γ水=20.00-10.00=10.00kN/m3水池底板底以上土的加权平均重度γm=γ土=18.00kN/m3f a=50.00+1.00×10.00×(6.000-3)+1.00×18.00×(2.300-0.5)=112.40kPap k=33.08kPa<f a=112.40kPa 地基承载力满足5 抗浮验算:地下水位位于基底以下,无需验算6 内力及配筋计算:(轴力:kN 弯矩:kN.m 面积:mm2配筋面积:mm2/m)池壁:弯矩外侧受拉为正,轴力受拉为正顶板:下侧受拉为正,底板:上侧受拉为正按《给水排水工程结构设计手册》静力计算查表池壁的约束条件: 上端自由,下端固定池壁内力计算查表系数H2/dt=2.5002/30.700×0.30=0.68荷载组合:(1)闭水试验:池内有水,池外无土(2)使用时池内无水:池内无水,池外有土闭水试验:基本组合 :1.27×池内水作用+1.40×温度作用标准组合 :1.00×池内水作用+1.00×温度作用准永久组合:1.00×池内水作用+1.00×温度作用使用时池内无水:基本组合 :1.27×池外土作用+0.90×1.40×(温度作用+地面活荷载) 标准组合 :1.00×池外土作用+0.90×1.00×(温度作用+地面活荷载) 准永久组合:1.00×池外土作用+1.00×温度作用+0.50×地面活荷载池壁的竖向最大裂缝宽度:0.11<=0.20 裂缝满足要求池壁的环向最大抗裂度 :1.27<=act×ftk=1.34 抗裂度满足要求池壁的环向最大裂缝宽度:0.08<=0.20 裂缝满足要求底板:按《水池结构规程》6.2.4或6.2.5计算底板的计算半径:R=15.350m 底板的约束条件:周边固定荷载组合:使用时池内无水:基本组合 :1.20×自重+1.27×覆土自重+1.40×地面活荷载 S=1.20×2.28+1.27×1.79+1.40×0.50=5.70kN/m2准永久组合:自重+覆土自重+0.50×地面活荷载S=2.28+1.79+0.50×0.50=4.31kN/m2。
圆形蓄水池工程量及配筋Excel计算.xls一.项目背景圆形蓄水池工程是为了满足某地区水源供应需求而设计的水利工程。
该工程由蓄水池主体结构和相关配套设施组成,主要包括蓄水池的建设工程量和配筋计算。
二.蓄水池建设工程量计算1. 假设设计水位:XXXX(单位:米)2. 蓄水池顶高程计算:(1)蓄水池顶高程 = 假设设计水位 + 基底基准高程(2)基底基准高程 = XXXX(单位:米)3. 蓄水池底面积计算:(1)蓄水池底面积 = π * (蓄水池直径/2)^2(单位:平方米)(2)蓄水池直径 = XXXX(单位:米)4. 蓄水池壁面积计算:(1)蓄水池壁面积 = π * 蓄水池直径 * 蓄水池高度(单位:平方米)(2)蓄水池高度 = 假设设计水位 - 蓄水池底高程(单位:米)5. 蓄水池总体积计算:(1)蓄水池总体积 = 蓄水池底面积 * 蓄水池高度(单位:立方米)三.蓄水池配筋计算1. 蓄水池顶部配筋:(1)根据设计要求,确定蓄水池顶部配筋的规格和间距。
(2)根据蓄水池顶部面积计算配筋的总长度和数量。
2. 蓄水池壁面配筋:(1)根据设计要求,确定蓄水池壁面配筋的规格和间距。
(2)根据蓄水池壁面积计算配筋的总长度和数量。
3. 蓄水池底部配筋:(1)根据设计要求,确定蓄水池底部配筋的规格和间距。
(2)根据蓄水池底部面积计算配筋的总长度和数量。
附件:1. 圆形蓄水池工程量计算表格2. 圆形蓄水池配筋计算表格法律名词及注释:1. 假设设计水位:指在设计过程中预先确定的水位,用于计算蓄水池的容积。
2. 基底基准高程:蓄水池底部与参考基准面的相对高程。
3. π:圆周率,约等于3.1415926.一.项目背景圆形蓄水池工程是为了满足某地区水源供应需求而设计的水利工程。
该工程由蓄水池主体结构和相关配套设施组成,主要包括蓄水池的建设工程量和配筋计算。
二.蓄水池建设工程量计算1. 假设设计水位:XXXX(单位:米)2. 蓄水池顶高程计算:(1)蓄水池顶高程 = 假设设计水位 + 基底基准高程(2)基底基准高程 = XXXX(单位:米)3. 蓄水池底面积计算:(1)蓄水池底面积 = π * (蓄水池直径/2)^2(单位:平方米)(2)蓄水池直径 = XXXX(单位:米)4. 蓄水池壁面积计算:(1)蓄水池壁面积 = π * 蓄水池直径 * 蓄水池高度(单位:平方米)(2)蓄水池高度 = 假设设计水位 - 蓄水池底高程(单位:米)5. 蓄水池总体积计算:(1)蓄水池总体积 = 蓄水池底面积 * 蓄水池高度(单位:立方米)三.蓄水池配筋计算1. 蓄水池顶部配筋:(1)根据设计要求,确定蓄水池顶部配筋的规格和间距。
水池计算书.汤斜佳园水池结构计算书一、设计依据:1.《给水排水工程构筑物结构设计规范》GBS0069-20022.《钢筋混凝土结构设计规范》GB50010-20023.《给水排水工程钢筋混凝土水池结构设计规程》CECS 138:2002二、设计资料:1、本池埋地式现浇钢筋砼结构,池壁净高为3.5m,采用筏板基础,基础板厚300mm。
由于地下水对砼无腐蚀,砼强度等级采用C25,抗渗等级采用S6。
=3.5M;侧壁外4.5米厚覆土,考虑地面堆载按1米土柱取2、池内水位HW10kN/m2考虑,基础持力层为卵石层。
3、主受力钢筋采用HRB335级,强度设计值取f y=300MPa4、土的内摩擦角Ψ=30°5、抗浮水位绝对高程:9.500。
三、设计计算:1.水池自重标准值计算及地基承载力验算:1)自重标准值计算池壁自重G1:5.5x2x0.25x3.5x25+14.6x2x0.25x3.5x25+5x0.2x3.5x3x25+2.5 x3.5x0.18x25=1181.3KN顶板重G2:5.5x15.1x0.2x25=415.3KN底板自重G3:6.1x15.7x0.3x25=718.3KN覆土自重G4:5.5x15.1x1.8x18+0.3x15.7x4.5x18x2+0.3x5.5x4.5x18x2=3721 .2KN水自重G5:5x14.6x3.5x10==2555KN池壁外侧土水侧压力qs:10x4.5xt an2(45°-30°/2) +10x4.5=60kN/m2池内水压力qw:10x3.5=35kN/m2土堆载产生的侧压力qd:10x0.333=3.33kN/m2底板面积A:6.1x15.7=95.77m2池体活载Q:2.0 kN/m2总重量∑G:G1+G2+G3+G4+G5=1181.3+415.3+718.3+3721.2+2555=8591.1KNP=∑G/A+Q=8591.1/95.77+2=91.7< bdsfid="97" p=""><>地基承载力满足要求池体净自重Gn=8591.1-718.3-2555=5322.8KN基底净反力Pn=5322.8/95.77=55.58KN/m2(作为底板计算荷载)2.池体抗浮验算:水浮力:5.5x15.1x4.5x10=3737.3KN抗浮力:8591.1-3737.3=4853.8KN抗浮系数:抗浮力/水浮力=4853.8/3737.3=1.299>1.05池体抗浮满足要求3.池壁内力及配筋计算:(1) 1-1池壁计算1双向板: B-11.1基本资料1.1.1工程名称:工程一1.1.2边界条件(左端/下端/右端/上端):固端 / 固端 / 固端 / 铰支1.1.3荷载标准值1.1.3.1永久荷载标准值三角形荷载: g k1= 31kN/m永久荷载的分项系数,对由可变荷载效应控制的组合,取γG=1.27,对由永久荷载效应控制的组合,取γG= 1.271.1.3.2可变荷载标准值: q k= 01.1.4荷载的基本组合值1.1.4.1板面Q =Max{Q(L), Q(D)} =Max{39.37, 39.37} =39.37kN/m1.1.5计算跨度 L x= 5750mm,计算跨度 L y= 3650mm,板的厚度 h = 200mm (h = L y / 18)1.1.6混凝土强度等级为 C25, f c= 11.943N/mm , f t= 1.271N/mm , f tk= 1.779N/mm 1.1.7钢筋抗拉强度设计值 f y= 300N/mm , E s= 200000N/mm1.1.8纵筋合力点至截面近边的距离:板底 a s= 42mm、板面 a s' = 42mm1.1.9裂缝宽度验算时执行的规范:《给水排水工程构筑物结构设计规范》(GB 50069-2002)1.2弯矩标准值1.2.1平行于 L x方向的跨中弯矩 M xM xgk1= (0.0078+0.2*0.02038)*31*3.652=4.90kN·m1.2.2平行于 L y方向的跨中弯矩 M yM ygk1= (0.02038+0.2*0.0078)*31*3.652=9.06kN·m1.2.3沿 L x方向的支座弯矩 M x'M x'gk1= -0.03585*31*3.652= -14.81kN·m1.2.4沿 L y方向的支座弯矩 M y'M y'gk1= -0.05518*31*3.652= -22.79kN·m1.3配筋计算1.3.1平行于 L x方向的跨中弯矩 M xM xk=4.90kN·m,M xq=4.90kN·m;M x= Max{M x(L), M x(D)} = Max{6.23, 6.23} =6.23kN·mA sx= 142mm ,a s= 52mm,ξ = 0.024,ρ = 0.10%;ρmin = 0.20%,A s,min=400mm ;实配纵筋:Φ12@200 (A s=565);ωmax= 0.051mm1.3.2平行于 L y方向的跨中弯矩 M yM yk=9.06kN·m,M yq=9.06kN·m;M y= Max{M y(L), M y(D)} = Max{11.51, 11.51} =11.51kN·mA sy= 248mm ,a s= 42mm,ξ = 0.039,ρ = 0.16%;ρmin = 0.20%,A s,min=400mm ;实配纵筋:Φ12@200 (A s=565);ωmax= 0.084mm1.3.3沿 L x方向的支座弯矩 M x'M x'k= -14.81kN·m,M x'q= -14.81kN·m;M x' =Max{M x'(L), M x'(D)} =Max{-18.8, -18.8} =-18.80kN·mA sx' = 410mm ,a s' = 42mm,ξ = 0.065,ρ = 0.26%;实配纵筋:Φ12@200 (A s= 565);ωmax= 0.138mm1.3.4沿 L y方向的支座弯矩 M y'M y'k= -22.79kN·m,M y'q= -22.79kN·m;M y' =Max{M y'(L), M y'(D)} =Max{-28.94, -28.94} =-28.94kN·mA sy' = 560mm ,a s' = 42mm,ξ = 0.102,ρ = 0.41%;实配纵筋:Φ12@200 (A s= 565);ωmax= 0.199mm1.4跨中挠度验算1.4.1挠度验算参数参照《建筑结构静力计算手册》表4-36,挠度系数κ =0.00168(1/M)按荷载效应的标准组合计算的弯矩值 M k=9.06kN·m按荷载效应的准永久组合计算的弯矩值 M q=9.06kN·mE s= 200000N/mm ,A s= 565mm ,E c= 27871N/mm ,ftk= 1.779N/mm1.4.2荷载效应的标准组合作用下受弯构件的短期刚度 B s1.4.2.1裂缝间纵向受拉钢筋应变不均匀系数ψσsk=M k / (0.87h0·A s) (混凝土规范式 8.1.3-3)σsk= 9060088/(0.87*158*565) = 117N/mm矩形截面,A te=0.5·b·h = 0.5*1000*200 = 100000mmρte= A s / A tk(混凝土规范式 8.1.2-4)ρte= 565/100000 = 0.00565 <0.01,取ρte= 0.01ψ = 1.1 - 0.65f tk / (ρte·σsk) (混凝土规范式 8.1.2-2)ψ = 1.1-0.65*1.78/(0.01*117) = 0.108当ψ < 0.2 时,取ψ = 0.21.4.2.2钢筋弹性模量与混凝土模量的比值:αE= E s / E c=200000/27871 =7.18 1.4.2.3受压翼缘面积与腹板有效面积的比值γf'矩形截面,γf' = 01.4.2.4纵向受拉钢筋配筋率ρ =A s / (b·h0) = 565/(1000*158) =0.003581.4.2.5钢筋混凝土受弯构件的短期刚度 B s按混凝土规范式 8.2.3-1 计算:B s=E s·A s·h02 / [1.15ψ + 0.2 + 6·αE·ρ / (1 + 3.5γf')]=200000*565*1582/[1.15*0.2+0.2+6*7.18*0.00358/(1+3.5*0)] =4833.71kN·m1.4.3考虑荷载长期效应组合对挠度影响增大影响系数θ按混凝土规范第 8.2.5 条,当ρ' = 0 时,取θ = 2.01.4.4受弯构件的长期刚度 B 按混凝土规范式 8.2.2 计算:B =B s·M k / [M q·(θ - 1) + M k] = 4833.71*9.06/[9.06*(2-1)+9.06] =2416.85kN·m1.4.5挠度 f =κ·Q k·L y4 / B =0.00168*31*3.654/2416.85*1000 = 3.8mmf / L y= 3.8/3650 = 1/953(2) 2-2池壁计算工况一:池内有水,池外无土1双向板: B-11.1基本资料1.1.1工程名称:工程一1.1.2边界条件(左端/下端/右端/上端):固端 / 固端 / 固端 / 铰支1.1.3荷载标准值1.1.3.1永久荷载标准值三角形荷载: g k1= 35kN/m永久荷载的分项系数,对由可变荷载效应控制的组合,取γG=1.27,对由永久荷载效应控制的组合,取γG= 1.271.1.3.2可变荷载标准值: q k= 01.1.4荷载的基本组合值1.1.4.1板面Q =Max{Q(L), Q(D)} =Max{44.45, 44.45} =44.45kN/m1.1.5计算跨度 L x= 7300mm,计算跨度 L y= 3650mm,板的厚度 h = 250mm (h = L y / 15)1.1.6混凝土强度等级为 C25, f c= 11.943N/mm , f t= 1.271N/mm , f tk= 1.779N/mm 1.1.7钢筋抗拉强度设计值 f y= 300N/mm , E s= 200000N/mm1.1.8纵筋合力点至截面近边的距离:板底 a s= 42mm、板面 a s' = 42mm1.1.9裂缝宽度验算时执行的规范:《给水排水工程构筑物结构设计规范》(GB 50069-2002)1.2弯矩标准值1.2.1平行于 L x方向的跨中弯矩 M xM xgk1= (0.0045+0.2*0.0253)*35*3.652=4.46kN·m1.2.2平行于 L y方向的跨中弯矩 M yM ygk1= (0.0253+0.2*0.0045)*35*3.652=12.22kN·m1.2.3沿 L x方向的支座弯矩 M x'M x'gk1= -0.0367*35*3.652= -17.11kN·m1.2.4沿 L y方向的支座弯矩 M y'M y'gk1= -0.0622*35*3.652= -29.00kN·m1.3配筋计算1.3.1平行于 L x方向的跨中弯矩 M xM xk=4.46kN·m,M xq=4.46kN·m;M x= Max{M x(L), M x(D)} = Max{5.66, 5.66} =5.66kN·mA sx= 97mm ,a s= 54mm,ξ = 0.012,ρ = 0.05%;ρmin = 0.20%,A s,min=500mm ;实配纵筋:Φ12@200 (A s=565);ωmax= 0.042mm1.3.2平行于 L y方向的跨中弯矩 M yM yk=12.22kN·m,M yq=12.22kN·m;M y= Max{M y(L), M y(D)} = Max{15.52, 15.52} =15.52kN·mA sy= 252mm ,a s= 42mm,ξ = 0.030,ρ = 0.12%;ρmin = 0.20%,A s,min=500mm ;实配纵筋:Φ12@200 (A s=565);ωmax= 0.104mm1.3.3沿 L x方向的支座弯矩 M x'M x'k= -17.11kN·m,M x'q= -17.11kN·m;M x' =Max{M x'(L), M x'(D)} =Max{-21.73, -21.73} =-21.73kN·mA sx' = 356mm ,a s' = 42mm,ξ = 0.043,ρ = 0.17%;ρmin= 0.20%,A s,min=500mm ;实配纵筋:Φ12@200 (A s=565);ωmax= 0.146mm1.3.4沿 L y方向的支座弯矩 M y'M y'k= -29.00kN·m,M y'q= -29.00kN·m;M y' =Max{M y'(L), M y'(D)} =Max{-36.83, -36.83} =-36.83kN·mA sy' = 613mm ,a s' = 42mm,ξ = 0.074,ρ = 0.29%;实配纵筋:Φ12@175 (A s= 646);ωmax= 0.193mm1.4跨中挠度验算1.4.1挠度验算参数参照《建筑结构静力计算手册》表4-36,挠度系数κ =0.00206(1/M)按荷载效应的标准组合计算的弯矩值 M k=12.22kN·m按荷载效应的准永久组合计算的弯矩值 M q=12.22kN·mE s= 200000N/mm ,A s= 565mm ,E c= 27871N/mm ,f tk= 1.779N/mm1.4.2荷载效应的标准组合作用下受弯构件的短期刚度 B s1.4.2.1裂缝间纵向受拉钢筋应变不均匀系数ψσsk=M k / (0.87h0·A s) (混凝土规范式 8.1.3-3)σsk= 12216733/(0.87*208*565) = 119N/mm矩形截面,A te=0.5·b·h = 0.5*1000*250 = 125000mmρte= A s / A tk(混凝土规范式 8.1.2-4)ρte= 565/125000 = 0.00452 <0.01,取ρte= 0.01ψ = 1.1 - 0.65f tk / (ρte·σsk) (混凝土规范式 8.1.2-2)ψ = 1.1-0.65*1.78/(0.01*119) = 0.131当ψ < 0.2 时,取ψ = 0.21.4.2.2钢筋弹性模量与混凝土模量的比值:αE= E s / E c=200000/27871 = 7.181.4.2.3受压翼缘面积与腹板有效面积的比值γf'矩形截面,γf' = 01.4.2.4纵向受拉钢筋配筋率ρ =A s / (b·h0) = 565/(1000*208) =0.002721.4.2.5钢筋混凝土受弯构件的短期刚度 B s按混凝土规范式 8.2.3-1 计算:B s=E s·A s·h02 / [1.15ψ + 0.2 + 6·αE·ρ / (1 + 3.5γf')]=200000*565*2082/[1.15*0.2+0.2+6*7.18*0.00272/(1+3.5*0)] =8944.32kN·m1.4.3考虑荷载长期效应组合对挠度影响增大影响系数θ按混凝土规范第 8.2.5 条,当ρ' = 0 时,取θ = 2.01.4.4受弯构件的长期刚度 B 按混凝土规范式 8.2.2 计算:B =B s·M k / [M q·(θ - 1) + M k] = 8944.32*12.22/[12.22*(2-1)+12.22]=4472.16kN·m1.4.5挠度 f =κ·Q k·L y4 / B = 0.00206*35*3.654/4472.16*1000 = 2.9mmf / L y= 2.9/3650 = 1/1,276工况二:池外有土,池内无水1双向板: B-11.1基本资料1.1.1工程名称:工程一1.1.2边界条件(左端/下端/右端/上端):固端 / 固端 / 固端 / 铰支1.1.3荷载标准值1.1.3.1永久荷载标准值三角形荷载: g k1= 63.33kN/m永久荷载的分项系数,对由可变荷载效应控制的组合,取γG=1.27,对由永久荷载效应控制的组合,取γG= 1.271.1.3.2可变荷载标准值: q k= 01.1.4荷载的基本组合值1.1.4.1板面Q =Max{Q(L), Q(D)} =Max{80.43, 80.43} =80.43kN/m1.1.5计算跨度 L x= 7300mm,计算跨度 L y= 3650mm,板的厚度 h = 250mm (h = L y / 15)1.1.6混凝土强度等级为C25,f c=11.943N/mm ,f t=1.271N/mm , f tk= 1.779N/mm 1.1.7钢筋抗拉强度设计值 f y=300N/mm , E s= 200000N/mm1.1.8纵筋合力点至截面近边的距离:板底 a s= 42mm、板面 a s' = 42mm1.1.9裂缝宽度验算时执行的规范:《给水排水工程构筑物结构设计规范》(GB 50069-2002)1.2弯矩标准值1.2.1平行于 L x方向的跨中弯矩 M xM xgk1= (0.0045+0.2*0.0253)*63.33*3.652=8.07kN·m1.2.2平行于 L y方向的跨中弯矩 M yM ygk1= (0.0253+0.2*0.0045)*63.33*3.652=22.11kN·m1.2.3沿 L x方向的支座弯矩 M x'M x'gk1= -0.0367*63.33*3.652= -30.96kN·m1.2.4沿 L y方向的支座弯矩 M y'M y'gk1= -0.0622*63.33*3.652= -52.48kN·m1.3配筋计算1.3.1平行于 L x方向的跨中弯矩 M xM xk=8.07kN·m,M xq=8.07kN·m;M x= Max{M x(L), M x(D)} = Max{10.24, 10.24} =10.24kN·mA sx= 176mm ,a s= 54mm,ξ = 0.023,ρ = 0.09%;ρmin = 0.20%,A s,min=500mm ;实配纵筋:Φ12@200 (A s=565);ωmax= 0.077mm1.3.2平行于 L y方向的跨中弯矩 M yM yk= 22.11k N·m,M yq=22.11kN·m;M y= Max{M y(L), M y(D)} = Max{28.07, 28.07} =28.07kN·mA sy= 463mm ,a s= 42mm,ξ = 0.056,ρ = 0.22%;ρmin = 0.20%,A s,min=500mm ;实配纵筋:Φ12@200 (A s=565);ωmax= 0.188mm1.3.3沿 L x方向的支座弯矩 M x'M x'k= -30.96kN·m,M x'q= -30.96kN·m;M x' =Max{M x'(L), M x'(D)} =Max{-39.32, -39.32} =-39.32kN·mA sx' = 656mm ,a s' = 42mm,ξ = 0.079,ρ = 0.32%;实配纵筋:Φ12@150 (A s= 754);ωmax= 0.156mm1.3.4沿 L y方向的支座弯矩 M y'M y'k= -52.48kN·m,M y'q= -52.48kN·m;M y' =Max{M y'(L), M y'(D)} =Max{-66.65, -66.65} =-66.65kN·mA sy' = 1148mm ,a s' = 42mm,ξ = 0.139,ρ = 0.55%;实配纵筋:Φ14@120 (A s= 1283);ωmax= 0.174mm1.4斜截面受剪承载力计算V =Q·(2L x - L y)·L y / 4L x= 80.43*(2*7.3-3.65)*3.65/(4*7.3) = 110.1kNR =0.7·βh·f t·b·h0= 0.7*1*1271*1*0.208 =185.0kN ≥ V =110.1kN,满足要求。
圆形水池设计项目名称构件编号日期设计校对审核执行规:《混凝土结构设计规》(GB 50010-2010), 本文简称《混凝土规》《建筑地基基础设计规》(GB 50007-2011), 本文简称《地基规》《建筑结构荷载规》(GB 50009-2012), 本文简称《荷载规》《给水排水工程构筑物结构设计规》(GB 50069-2002), 本文简称《给排水结构规》《给水排水工程钢筋混凝土水池结构设计规程》(CECS 138-2002), 本文简称《水池结构规程》钢筋:d - HPB300; D - HRB335; E - HRB400; F - RRB400; G - HRB500; P - HRBF335; Q - HRBF400; R - HRBF500-----------------------------------------------------------------------1 设计资料1.1 基本信息圆形水池形式:有盖池液体重度10.0kN/m3浮托力折减系数1.00裂缝宽度限值0.20mm抗浮安全系数1.10水池的几何尺寸如下图所示:1.2 荷载信息顶板活荷载:1.50kN/m2地面活荷载:10.00kN/m2活荷载组合系数:0.90荷载分项系数:自重:1.20其它恒载:1.27地下水压:1.27其它活载:1.40荷载准永久值系数:顶板活荷载:0.40地面堆积荷载:0.50地下水压:1.00温(湿)度作用:1.00活载调整系数:其它活载:1.00不考虑温度作用1.3 混凝土与土信息土天然重度:18.00kN/m3土饱和重度:20.00kN/m3土摩擦角ψ:30.0度地基承载力特征值fak=40.00kPa基础宽度和埋深的地基承载力修正系数ηb=1.00、ηd=1.00 混凝土等级:C25 纵筋级别:HRB400混凝土重度:25.00kN/m3配筋调整系数:1.202 计算容(1)荷载标准值计算(2)抗浮验算(3)地基承载力计算(4)力及配筋计算(5)抗裂度、裂缝计算(6)混凝土工程量计算3 荷载标准值计算顶板:恒荷载:顶板自重:5.00kN/m2活荷载:顶板活荷载:1.50kN/m2底板:恒荷载:顶板自重+池壁自重: 67.41kN/m2覆土自重:12.50kN/m2活荷载:顶板活荷载:1.24kN/m2地面活荷载:1.74kN/m2地下水作用:12.50kN/m2池壁:恒荷载:池水压力:10.00kN/m2池外侧土压力(池顶):0.67kN/m2池外侧土压力(池底):24.00kN/m2活荷载:池外水压力(池顶) :2.00kN/m2池外水压力(池底) :72.00kN/m2地面活荷载:3.33kN/m24 地基承载力验算:计算基础底面的压力:池壁壁圆面积:Aic=πR2 = 3.14×0.7502 = 1.77m2池壁外壁圆面积:A t=π(R+t)2=3.14×(0.750+0.25)2=3.14m2顶板自重Gt=γc×A t×t1=25.00×3.14×0.20=15.71kN池壁自重Gs=γc×A s×H=25.00×1.37×7.000=240.53kN底板自重Gb=γc×A b×t2=25.00×3.80×0.30=28.51kN水池自重Gp=Gt+Gs+Gb=15.71+240.53+28.51=284.75kN挑出部分覆土重Gexs=γ土×(Ab-At)×Hw+(γ饱和-γ水)×(Ab-At)×(Hb-Hw-t2)=18.00×(3.80-3.14)×0.000+(20.00-10.00)×(3.80-3.14)×(7.500-0.000-0.30)=47.50kN池水自重Gw=p w×Aic=10.00×1.77=17.67kN顶板活荷载Gq=qk×A t=1.50×3.14=4.71kN外挑部分活荷载Gqm=qm×(A b-A t)=10.00×(3.80-3.14)=6.60kN地下水荷载Giw=47.50kN基础底面的压力p k=(Gp+Gw+Gexs+Gq+Gqm+Giw)/A b=408.73/3.80=107.52kPa 基础宽度大于3m或埋置深度大于0.5m,需修正承载力特征值计算地基承载力特征值修正值:f a=f ak+ηbγ(b-3)+ηdγm(d-0.5)水池底板底下的土的重度γ=γ饱和-γ水=20.00-10.00=10.00kN/m3水池底板底以上土的加权平均重度γm=[γ土×Hw+(γ饱和-γ水)×(Hb-Hw)]/Hb=[18.00×0.000+(20.00-10.00)×(7.500-0.000)]/7.500=10.00kN/m3f a=40.00+1.00×10.00×(7.500-0.5)=110.00kPap k=107.52kPa<f a=110.00kPa 地基承载力满足5 抗浮验算:水池自重Gp=284.75kN挑出部分的覆土重Gexs=47.50kN地下水作用荷载Giw=47.50kN总自重W=Gp+Gexs+Giw=379.75kN池体浸入水中高度h=7.50m水池底面积Ab=3.80m2浮托力折减系数ηfw=1.00总浮力F=ηfwγ水h A b=1.00×10.00×7.50×3.80=285.10kNW/F=1.33>Kf=1.10,抗浮验算满足。
无梁板式现浇钢筋混凝土圆形水池结构计算书1、设计资料:主要结构尺寸:内径(d):32m 底板厚:0.3m壁板高:4.15m 壁板厚:0.35m顶板厚:150mm 底板外挑宽度:400mm荷载和地质条件:顶板活荷载:q k=1.5kN/m2 池内水深:4m地下水深:1.2m(底板以上)底板覆土:0.3m土内摩擦角:30* 修正后地基承载力特征值:f a=100kPa 水重力密度:10kN/m3 回填土重度取:18kN/m3钢筋混凝土重度:25kN/m3 钢筋选用HRB235和HRB400混凝土选用C25,f t=1.27N/mm2,f c=11.9N/mm22、抗浮稳定性验算:i )局部抗浮稳定性验算:取中间区格(4×4m 2)作为计算单元,抗力荷载标准值如下: 顶板自重:25×0.15×4×4=60kN 底板自重:25×0.3×4×4=120kN 支柱自重:25×0.3×0.3×3.45=7.76kN柱帽重:25×[1.42×0.1+31(0.32+0.3×1+12)×0.35]=8.95kN柱基重:25×[1.52×0.1+31(0.42+0.4×1.1+1.12)×0.35]=10.9kN池顶覆土重:18×4×4×0.3=86.4kN ΣG k =60+120+7.76+8.95+10.9+86.4=294.01kN局部浮力:F 浮=11)(A h d w ⋅+γ=10×(1.2+0.3)×4×4=240kN K=浮F G k ∑=24001.294=1.23>1.05满足局部抗浮要求 ii)整体抗浮验算:顶板自重:π(16+0.35)2×0.15×25=3149.32kN 顶板覆土重:π(16+0.35)2×0.3×18=4535.02kN 壁板自重:2π(16+0.35/2)×0.35×4.17×25=3708.24kN悬挑土重:π[(16+0.4+0.35)2-(16+0.35)2]×[(18-10)×1.2+18×3.5]=3019.77kN 池内支撑柱总重:45×(7.76+8.95+10.9)=1242.5kN 底板浮重:π(16+0.35+0.4)2×0.3×(25-10)=3966.35kNΣG k =3149.32+4535.02+3708.24+3019.77+1242.5+3966.35=19621.2kN总浮力:F 浮=A h d w ⋅+)(1γ=10×(1.2+0.3)×π(16+0.4+0.35)2=13221.2kN K=浮F G k ∑=2.132212.19621=1.48>1.05满足整体抗浮要求3、地基承载力验算:池内水重:G W =10×π×162×4.17=33537.13kN池顶活荷载:Q k =q k A=1.5×(16+0.35+0.4)2×π=1322.12kN 基地压力:P k =A Q G G k W ++∑=275.1612.132213.335372.19621⨯++π=61.81kPa<f a =100kPa 故地基承载力满足要求 4、抗冲切验算:顶板:按顶板周边简支的方格柱网无梁板计算顶板荷载 荷载效应准永久值 作用效应基本组合设计值 活荷载 1.5×0.4=0.6kN/m 2 1.5×1.4=2.1kN/2 顶板覆土 18×0.3=5.4kN/m 2 5.4×1.27=6.86kN/m 2 顶板自重 25×0.15=3.75kN/m 2 3.75×1.2=4.5kN/m 2 合计 10.15kN/m 2 13.94kN/m 2 I-I 截面抗冲切验算:P s [L 2-(B+h 0)2]≤0.7f tSh 0h 0=150-30=120mm,B+h 0=1400+120=1520mm S=4(B+h 0)=6080mm P s [L 2-(B+h 0)2]=13.94×[42-1.522]=190.83kN0.7f t Sh 0=0.7×1.27×6.08 ×0.12=648.61kN>190.83kN 满足抗冲切要求 II-II 截面抗冲切验算:P s [L 2-(B+h 0)2]≤0.7f tShh 0=250-30=220mm,B+h 0=1000+220=1220mm S=4(B+h 0)=4880mmP s[L2-(B+h0)2]=13.94×[42-1.222]=202.29kN0.7f t Sh0=0.7×1.27×4.88×0.22=954.43kN>202.29kN满足抗冲切要求底板:按底板板周边简支的方格柱网无梁板计算基地反力:准永久值:275 . 161242.5 3019.773708.244535.023149.32⨯+ +++π+0.6=18.36kN/m2基本组合设计值275 . 161.351242.51.273019.771.353708.241.274535.021.353149.32⨯⨯+⨯+⨯+⨯+⨯π+2.1=25.39kN/m2 i)I-I截面:h0=300-40=260mm B+h0=1500+260=1760mm4(B+h0)=7040mmP s[L2-(B+h0)2]=25.39×[42-1.762]=327.59kN0.7f t Sh0=0.7×1.27×7.04×0.26=1627.23kN>327.59kN满足抗冲切要求i)II-II截面:h0=300-40=260mm B+h0=1100+260=1360mm4(B+h0)=5440mmP s[L2-(B+h0)2]=25.39×[42-1.362]=359.28kN0.7f t Sh0=0.7×1.27×5.44×0.26=1257.4kN>359.28kN满足抗冲切要求5、顶板内力计算:顶板弯矩布置图如下1)柱帽计算宽度:C=(0.7-0.2+0.1)×2=1.2m>0.2L 且≤0.3L 2)中间区格总弯矩: 计算跨度:L 中=L-2c/3=3.2m准永久值 基本组合设计值M 0=281中qLL 51.97kN 71.37kN 总边区格总弯矩:计算跨度L 边=L-c/3+h/2=3.71M 0边=281边qLL 69.85kN 95.94kN 池壁与顶板视为铰接连接,其刚度比为零查得:α=1.45,β=1.8,γ=0故作用效应准永久值(kN.m) 作用效应组合设计值(kN.m) M 1=-0.5M 0=-25.99 M 1=-0.5M 0=-35.69 M 2=0.2M 0=10.39 M 2=0.2M 0=14.27 M 3=-0.15M 0=-7.80 M 3=-0.15M 0=-10.71 M 4=0.15M 0=7.8 M 4=0.15M 0=10.71 M 5=-0.5αM 0=-37.68 M 5=-0.5αM 0=-51.74 M 6=0.2βM 0=18.71 M 6=0.2βM 0=25.69 M 7=-0.15αM 0边=-15.19 M 7=-0.15αM 0边=-20.87 M 8=0.15βM 0边=18.85 M 8=0.15βM 0边=25.93 M 3’=-0.12M 0边=-8.38 M 3’=-0.12M 0边=-11.51 M 4’=0.12M 0边=8.38 M 4’=0.12M 0边=11.51 3)顶板按照承载力极限状态进行配筋计算: A S =87.0h f My ,h 0=150-30=120mm,HRB400f y =360N/mm 2,HRB235f y =210N/mm 2,(各区格板纵横向均需满足最小配筋率min ρ=0.2%,最小配筋面积A Smin =bh min ρ=600mm 2) A S1=949.61mm 2,A S2=379.68mm 2,A S4=284.96mm 2,A S5=1376.65mm 2,A S6=683.54mm 2,A S7=555.29mm 2,A S8=689.92mm 2,A S3’=306.25mm 2,A S4’=306.25mm 2;故:顶板选用双层双向C 10@200,A S =785mm 2>A Smin =600mm 2;因A S1、A S5均大于A S ,故M 1、M 5方向增加上层附加钢筋C 10@200,A S =1570mm 2大于A S1、A S5 4)按照正常使用极限状态进行裂缝宽度验算:1)M 6区格板087.0h A M s qsq =σ=12.078587.01071.183⨯⨯⨯=288.3N/mm 2 15020005.07855.0⨯⨯===bh A A A s te s te ρ=0.005 =⨯⨯⨯-=-=13.288005.078.165.01.165.01.12ασρψsq te tkf 0.197C25混凝土f tk =1.78N/mm 2,E S =2.1×105N/mm 2v dc E w teSsq)1)(11.05.1(8.11max αρσψ++==7.0)01)(005.01011.0305.1(101.23.288197.08.15⨯++⨯⨯⨯⨯=0.09mm<0.25mm 满足裂缝宽度要求。
圆形水池设计项目名称构件编号日期设计校对审核执行规范:《混凝土结构设计规范》(GB 50010-2010), 本文简称《混凝土规范》《建筑地基基础设计规范》(GB 50007-2011), 本文简称《地基规范》《建筑结构荷载规范》(GB 50009-2012), 本文简称《荷载规范》《给水排水工程构筑物结构设计规范》(GB 50069-2002), 本文简称《给排水结构规范》《给水排水工程钢筋混凝土水池结构设计规程》(CECS 138-2002), 本文简称《水池结构规程》钢筋:d - HPB300; D - HRB335; E - HRB400; F - RRB400; G - HRB500; P - HRBF335; Q - HRBF400; R - HRBF500-----------------------------------------------------------------------1 设计资料1.1 基本信息圆形水池形式:有盖池内液体重度10.0kN/m3浮托力折减系数1.00裂缝宽度限值0.20mm抗浮安全系数1.10水池的几何尺寸如下图所示:1.2 荷载信息顶板活荷载:1.50kN/m2地面活荷载:10.00kN/m2活荷载组合系数:0.90荷载分项系数:自重 :1.20其它恒载:1.27地下水压:1.27其它活载:1.40荷载准永久值系数:顶板活荷载 :0.40地面堆积荷载:0.50地下水压 :1.00温(湿)度作用:1.00活载调整系数:其它活载:1.00不考虑温度作用1.3 混凝土与土信息土天然重度:18.00kN/m3土饱和重度:20.00kN/m3土内摩擦角ψ:30.0度地基承载力特征值fak=40.00kPa基础宽度和埋深的地基承载力修正系数ηb=1.00、ηd=1.00 混凝土等级:C25 纵筋级别:HRB400混凝土重度:25.00kN/m3配筋调整系数:1.20纵筋保护层厚度:2 计算内容(1)荷载标准值计算(2)抗浮验算(3)地基承载力计算(4)内力及配筋计算(5)抗裂度、裂缝计算(6)混凝土工程量计算3 荷载标准值计算顶板:恒荷载:顶板自重 :5.00kN/m2活荷载:顶板活荷载:1.50kN/m2底板:恒荷载:顶板自重+池壁自重: 67.41kN/m2覆土自重:12.50kN/m2活荷载:顶板活荷载:1.24kN/m2地面活荷载:1.74kN/m2地下水作用:12.50kN/m2池壁:恒荷载:池内水压力 :10.00kN/m2池外侧土压力(池顶):0.67kN/m2池外侧土压力(池底):24.00kN/m2活荷载:池外水压力(池顶) :2.00kN/m2池外水压力(池底) :72.00kN/m2地面活荷载 :3.33kN/m24 地基承载力验算:计算基础底面的压力:池壁内壁圆面积:Aic=πR2 = 3.14×0.7502 = 1.77m2池壁外壁圆面积:A t=π(R+t)2=3.14×(0.750+0.25)2=3.14m2顶板自重Gt=γc×A t×t1=25.00×3.14×0.20=15.71kN池壁自重Gs=γc×A s×H=25.00×1.37×7.000=240.53kN底板自重Gb=γc×A b×t2=25.00×3.80×0.30=28.51kN水池自重Gp=Gt+Gs+Gb=15.71+240.53+28.51=284.75kN挑出部分覆土重Gexs=γ土×(Ab-At)×Hw+(γ饱和-γ水)×(Ab-At)×(Hb-Hw-t2)=18.00×(3.80-3.14)×0.000+(20.00-10.00)×(3.80-3.14)×(7.500-0.000-0.30)=47.50kN池内水自重Gw=p w×Aic=10.00×1.77=17.67kN顶板活荷载Gq=qk×A t=1.50×3.14=4.71kN外挑部分活荷载Gqm=qm×(A b-A t)=10.00×(3.80-3.14)=6.60kN地下水荷载Giw=47.50kN基础底面的压力p k=(Gp+Gw+Gexs+Gq+Gqm+Giw)/A b=408.73/3.80=107.52kPa基础宽度大于3m或埋置深度大于0.5m,需修正承载力特征值计算地基承载力特征值修正值:f a=f ak+ηbγ(b-3)+ηdγm(d-0.5)水池底板底下的土的重度γ=γ饱和-γ水=20.00-10.00=10.00kN/m3水池底板底以上土的加权平均重度γm=[γ土×Hw+(γ饱和-γ水)×(Hb-Hw)]/Hb=[18.00×0.000+(20.00-10.00)×(7.500-0.000)]/7.500=10.00kN/m3f a=40.00+1.00×10.00×(7.500-0.5)=110.00kPap k=107.52kPa<f a=110.00kPa 地基承载力满足5 抗浮验算:水池自重Gp=284.75kN挑出部分的覆土重Gexs=47.50kN地下水作用荷载Giw=47.50kN总自重W=Gp+Gexs+Giw=379.75kN池体浸入水中高度h=7.50m水池底面积Ab=3.80m2浮托力折减系数ηfw=1.00总浮力F=ηfwγ水 h A b =1.00×10.00×7.50×3.80=285.10kNW/F=1.33>Kf=1.10,抗浮验算满足。
6 内力及配筋计算:(轴力:kN 弯矩:kN.m 面积:mm2配筋面积:mm2/m)池壁:弯矩外侧受拉为正,轴力受拉为正顶板:下侧受拉为正,底板:上侧受拉为正按《给水排水工程结构设计手册》静力计算查表池壁的约束条件: 上端自由,下端固定池壁内力计算查表系数H2/dt=7.0002/1.750×0.25=112.00≥56,按56查表。
荷载组合:(1)闭水试验:池内有水,池外无土(2)使用时池内无水:池内无水,池外有土闭水试验:基本组合 :1.27×池内水作用标准组合 :1.00×池内水作用准永久组合:1.00×池内水作用设计值/标准值/准永久值使用时池内无水:基本组合 :1.27×池外土作用+1.27×地下水作用+0.90×1.40×地面活荷载标准组合 :1.00×池外土作用+1.00×地下水作用+0.90×1.00×地面活荷载准永久组合:1.00×池外土作用+1.00×地下水作用+0.50×地面活荷载池壁配筋及裂缝、抗裂度验算:池壁的竖向最大裂缝宽度:0.07<=0.20 裂缝满足要求池壁的环向最大抗裂度 :0.03<=act×ftk=1.55 抗裂度满足要求池壁的环向最大裂缝宽度:0.01<=0.20 裂缝满足要求顶板:按《水池结构规程》6.2.4或6.2.5计算顶板的计算半径:R=0.850m 顶板的约束条件:周边简支荷载组合:基本组合 :1.20×自重+1.40×顶板活荷载S=1.20×5.00+1.40×1.50=8.10kN/m2准永久组合:自重+0.40×顶板活荷载S=5.00+0.40×1.50=5.60kN/m2底板:按《水池结构规程》6.2.4或6.2.5计算底板的计算半径:R=0.875m 底板的约束条件:周边简支+池壁弯矩荷载组合:闭水实验:基本组合 :S=1.20×67.41+1.27×(17.67/3.80-17.67/1.77)=74.09kN/m2准永久组合:S=1.00×67.41+1.00×(17.67/3.80-17.67/1.77)=62.06kN/m2池壁传递的弯矩:设计值/准永久值= 1.49/ 1.18 kN.m/m使用时池内无水:基本组合 :1.20×自重+1.27×覆土自重+1.27×地下水压力+0.90×(1.40×顶板活荷载+1.40×地面活荷载)S=1.20×67.41+1.27×12.50+1.27×12.50+0.90×(1.40×1.24+1.40×1.74)=116.38kN/m2准永久组合:自重+覆土自重+1.00×地下水压力+0.40×顶板活荷载+0.50×地面活荷载S=67.41+12.50+1.00×12.50+0.40×1.24+0.50×1.74=93.76kN/m2池壁传递的弯矩:设计值/准永久值= -14.91/ -11.53 kN.m/m取两种组合中最大值为控制内力。
7 混凝土工程量计算顶板面积:A t=π(R+t)2=3.14×(0.750+0.25)2=3.14m2池壁面积:A s=π((R+t)2-R2) = 3.14×((0.750+0.25)2-0.7502) = 1.37m2底板面积:A b=π(R+t+Le)2 = 3.14×(0.750+0.25+0.10)2 = 3.80m2水池混凝土总方量=A t×t1+A s×H+A b×t2=3.14×0.20+1.37×7.000+3.80×0.30=11.39m3。