钢结构雨篷设计计算介绍模板之令狐文艳创作
- 格式:doc
- 大小:66.00 KB
- 文档页数:25
xxxxxC7雨棚工程设计计算书设计:校对:审核:批准:xx幕墙装饰有限公司二〇一六年十一月二十五日目录1 计算引用的规范、标准及资料 (1)1.1 幕墙及采光顶相关设计规范: (1)1.2 建筑设计规范: (1)1.3 玻璃规范: (1)1.4 钢材规范: (2)1.5 胶类及密封材料规范: (2)1.6 相关物理性能等级测试方法: (3)1.7 《建筑结构静力计算手册》(第二版) (3)1.8 土建图纸: (3)2 基本参数 (3)2.1 雨篷所在地区 (3)2.2 地面粗糙度分类等级 (3)3 雨篷荷载计算 (3)3.1 雨篷的荷载作用说明 (3)3.2 风荷载标准值计算 (4)3.3 风荷载设计值计算 (6)3.4 雪荷载标准值计算 (6)3.5 雪荷载设计值计算 (6)3.6 雨篷面活荷载设计值 (7)3.7 雨篷构件恒荷载设计值 (7)3.8 选取计算荷载组合 (7)4 雨篷杆件计算 (8)4.1 结构的受力分析 (8)4.2 梁的抗弯强度计算 (10)4.3 拉杆的抗拉(压-稳定性)强度计算 (10)4.4 梁的挠度计算 (10)5 雨篷焊缝计算 (11)5.1 受力分析 (11)5.2 焊缝校核计算 (11)6 玻璃的选用与校核 (11)6.1 玻璃板块荷载组合计算 (12)6.2 玻璃板块荷载分配计算 (13)6.3 玻璃的强度计算 (13)6.4 玻璃最大挠度校核 (14)7 雨篷埋件计算(普通化学锚栓) (15)7.1 校核处埋件受力分析 (15)7.2 锚栓群中锚栓的拉力计算 (15)7.3 群锚受剪内力计算 (17)7.4 锚栓钢材破坏时的受拉承载力计算 (17)7.5 混凝土锥体受拉破坏承载力计算 (18)7.6 混凝土劈裂破坏承载力计算 (20)7.7 混凝土混合破坏受拉承载力计算 (22)7.8 锚栓钢材受剪破坏承载力计算 (24)7.9 混凝土楔形体受剪破坏承载力计算 (24)7.10 混凝土剪撬破坏承载能力计算 (26)7.11 拉剪复合受力承载力计算 (27)7.12 混凝土基材厚度、群锚锚栓最小间距及最小边距计算 (27)8 点式雨篷玻璃孔位及驳接件强度计算 (28)8.1 玻璃板块荷载 (28)8.2 孔位强度计算 (28)8.3 驳接爪的选择 (29)8.4 驳接头的选择 (29)9 附录常用材料的力学及其它物理性能 (31)钢结构雨篷设计计算书1 计算引用的规范、标准及资料1.1 幕墙及采光顶相关设计规范:《铝合金结构设计规范》GB50429-2007《玻璃幕墙工程技术规范》JGJ102-2003《建筑玻璃应用技术规程》JGJ113-2009《建筑幕墙》GB/T21086-2007 《建筑玻璃采光顶》JG/T231-2007《建筑用玻璃与金属护栏》JG/T342-2012《建筑幕墙工程技术规范》DGJ08-56-2012 1.2 建筑设计规范:《地震震级的规定》GB/T17740-1999 《钢结构设计规范》GB50017-2003《高层建筑混凝土结构技术规程》JGJ3-2010《高处作业吊蓝》GB19155-2003《工程抗震术语标准》JGJ/T97-2011《混凝土结构后锚固技术规程》JGJ145-2013《混凝土结构加固设计规范》GB50367-2013《混凝土结构设计规范》GB50010-2010《混凝土用膨胀型、扩孔型建筑锚栓》JG160-2004《建筑防火封堵应用技术规程》CECS154:2003 《钢结构焊接规范》GB50661-2011《建筑工程抗震设防分类标准》GB50223-2008《建筑结构荷载规范》GB50009-2012《建筑结构可靠度设计统一标准》GB50068-2001《建筑抗震设计规范》GB50011-2010《建筑设计防火规范》GB50016-2014《建筑物防雷设计规范》GB50057-2010《冷弯薄壁型钢结构技术规范》GB50018-2002 1.3 玻璃规范:《镀膜玻璃第1部分:阳光控制镀膜玻璃》GB/T18915.1-2013 《镀膜玻璃第2部分:低辐射镀膜玻璃》GB/T18915.2-2013 《防弹玻璃》GB17840-1999《平板玻璃》GB11614-2009《建筑用安全玻璃第3部分:夹层玻璃》GB15763.3-2009 《建筑用安全玻璃第2部分:钢化玻璃》GB15763.2-2005《建筑用安全玻璃防火玻璃》GB15763.1-2009《半钢化玻璃》GB/T17841-2008《热弯玻璃》JC/T915-2003(2014) 《压花玻璃》JC/T511-2002《中空玻璃》GB/T11944-20121.4 钢材规范:《建筑结构用冷弯矩形钢管》JG/T178-2005《不锈钢棒》GB/T1220-2007《不锈钢冷加工钢棒》GB/T4226-2009《不锈钢冷轧钢板及钢带》GB/T3280-2007《不锈钢热轧钢板及钢带》GB/T4237-2007《不锈钢丝》GB/T4240-2009《建筑用不锈钢绞线》JG/T200-2007《不锈钢小直径无缝钢管》GB/T3090-2000《彩色涂层钢板和钢带》GB/T12754-2006《低合金钢焊条》GB/T5118-2012《低合金高强度结构钢》GB/T1591-2008《建筑幕墙用钢索压管接头》JG/T201-2007《耐候结构钢》GB/T4171-2008《高碳铬不锈钢丝》YB/T096—1997《合金结构钢》GB/T3077-1999《金属覆盖层钢铁制品热镀锌层技术要求》GB/T13912-2002《冷拔异形钢管》GB/T3094-2012《碳钢焊条》GB/T5117-2012《碳素结构钢》GB/T700-2006《碳素结构钢和低合金结构钢热轧薄钢板及钢带》GB/T912-2008《碳素结构钢和低合金结构钢热轧厚钢板及钢带》GB/T3274-2007《优质碳素结构钢》GB/T699-19991.5 胶类及密封材料规范:《丙烯酸酯建筑密封膏》JC484-2006《幕墙玻璃接缝用密封胶》JC/T882-2001《彩色涂层钢板用建筑密封胶》JC/T884-2001《丁基橡胶防水密封胶粘带》JC/T942-2004《工业用橡胶板》GB/T5574-2008《混凝土建筑接缝用密封胶》JC/T881-2001《建筑窗用弹性密封剂》JC485-2007《建筑密封材料试验方法》GB/T13477.1~20-2002 《建筑用防霉密封胶》JC/T885-2001《建筑用硅酮结构密封胶》GB16776-2005《建筑用岩棉、矿渣棉绝热制品》GB/T19686-2005《建筑铝合金型材用聚酰胺隔热条》JG/T174-2014《聚氨酯建筑密封胶》JC/T482-2003《聚硫建筑密封胶》JC/T483-2006《绝热用岩棉、矿棉及其制品》GB/T11835-2007《硫化橡胶或热塑性橡胶撕裂强度的测定》GB/T529-2008《修补用天然橡胶胶粘剂》HG/T3318-2002《中空玻璃用弹性密封胶》JC/T486-2001《中空玻璃用丁基热熔密封胶》JC/T914-20031.6 相关物理性能等级测试方法:《玻璃幕墙工程质量检验标准》JGJ/T139-2001《玻璃幕墙光学性能》GB/T18091-2000《彩色涂层钢板和钢带试验方法》GB/T13448-2006《钢结构工程施工质量验收规范》GB50205-2001《混凝土结构工程施工质量验收规范》GB50204-2002(2011版)《建筑防水材料老化试验方法》GB/T18244-2000《建筑幕墙气密、水密、抗风压性能检测方法》GB/T15227-2007《建筑幕墙抗震性能振动台试验方法》GB/T18575-2001《建筑幕墙平面内变形性能检测方法》GB/T18250-2000《建筑装饰装修工程质量验收规范》GB50210-2001《金属材料拉伸试验第1部分:室温试验方法》GB/T228.1-20101.7 《建筑结构静力计算手册》(第二版)1.8 土建图纸:2 基本参数2.1 雨篷所在地区南京地区;2.2 地面粗糙度分类等级按《建筑结构荷载规范》(GB50009-2012)A类:指近海海面和海岛、海岸、湖岸及沙漠地区;B类:指田野、乡村、丛林、丘陵以及房屋比较稀疏的乡镇和城市郊区;C类:指有密集建筑群的城市市区;D类:指有密集建筑群且房屋较高的城市市区;依照上面分类标准,本工程按C类地形考虑。
钢结构雨棚设计计算书一、计算依据:1.《建筑结构荷载规》2.《钢结构设计规》GB50017-20033.《玻璃幕墙工程技术规》4.《建筑抗震设计规》二、计算基本参数: 1.本工程位于市,基本风压ω0=0.700(kN/m2),考虑到结构的重要性,按50年一遇考虑乘以系数1.1,故本工程基本风压ω=1.1x0.7=0.77(kN/m2)。
2. 地面粗糙度类别按C类考虑,风压高度变化系数取5.0米处(标高最高处),查下页表1-1知,该处风压高度变化系数为:z=0.74。
依据《玻璃幕墙工程技术规》,风荷载体形系数,对于挑檐风荷载向上取μs=2.0,瞬时风压的阵风系数βz=2.25 。
3. 本工程耐火等级一级,抗震设防七度。
三、结构受力分析该处雨棚是以钢架作为承重结构的悬臂体系。
四、设计荷载确定原则:作用于垂直雨棚平面的荷载主要是风荷载、地震作用及雨棚结构自重,其中风荷载引起的效应最大。
在进行雨棚构件、连接件承载力计算时,必须考虑各种荷载和作用效应的分项系数,即采用其设计值;进行位移和挠度计算时,各分项系数均取1.0,即采用其标准值。
1、风荷载根据《玻璃幕墙工程技术规》,垂直于雨棚平面上的风荷载标准值,按下列公式(1.1)计算:W k = z s z Wo ················(1.1)式中: W k ---风荷载标准值 (kN/m2);z---瞬时风压的阵风系数;βz=2.25s---风荷载体型系数;向上取μs=2.0z---风荷载高度变化系数,并与建筑的地区类别有关;按《建筑结构荷载规》GBJ9-87取值;W o---基本风压(kN/m2) 按《技术要求》W o =1.1x0.700=0.770(kN/m2)按《玻璃幕墙工程技术规》要求,进行建筑幕墙构件、连接件和锚固件承载力计算时,风荷载分项系数应取γw= 1.4表1-1高度(m) z(C 类)5 0.74 10 0.74 15 0.74 200.85即风荷载设计值为: W= γW W K = 1.4W K ··············(1.2)2、地震作用雨棚平面外地震作用标准值计算公式如下: qEK =Emax Gk A·················(1.3)雨棚平面地震作用标准值计算公式如下: PE =E max G ·················(1.4)式中, qEK 为垂直雨棚平面的分布地震作用;(kN/m2) PE 为平行于雨棚平面的集中地震作用;(kN) E 为地震动力放大系数;取E=3.0max 为水平地震影响系数最大值;取max=0.08(7度抗震设计) G 为幕墙结构自重(kN)Gk A 为单位面积的幕墙结构自重(kN/m2) ;取GkA=0.4kN/m2按规要求,地震作用的分项系数取γE= 1.3,即地震作用设计值为:qE=γEqEK = 1.3 qEK ·············(1.5)3、雨棚结构自重按规要求,幕墙结构自重的分项系数取γG=1.2。
钢结构雨棚设计计算书一、计算依据:1.《建筑结构荷载规》2.《钢结构设计规》GB50017-20033.《玻璃幕墙工程技术规》4.《建筑抗震设计规》二、计算基本参数: 1.本工程位于市,基本风压ω0=0.700(kN/m2),考虑到结构的重要性,按50年一遇考虑乘以系数1.1,故本工程基本风压ω=1.1x0.7=0.77(kN/m2)。
2. 地面粗糙度类别按C类考虑,风压高度变化系数取5.0米处(标高最高处),查下页表1-1知,该处风压高度变化系数为:μz=0.74。
依据《玻璃幕墙工程技术规》,风荷载体形系数,对于挑檐风荷载向上取μs=2.0,瞬时风压的阵风系数βz=2.25 。
3. 本工程耐火等级一级,抗震设防七度。
三、结构受力分析该处雨棚是以钢架作为承重结构的悬臂体系。
四、设计荷载确定原则:作用于垂直雨棚平面的荷载主要是风荷载、地震作用及雨棚结构自重,其中风荷载引起的效应最大。
在进行雨棚构件、连接件承载力计算时,必须考虑各种荷载和作用效应的分项系数,即采用其设计值;进行位移和挠度计算时,各分项系数均取1.0,即采用其标准值。
1、风荷载根据《玻璃幕墙工程技术规》,垂直于雨棚平面上的风荷载标准值,按下列公式(1.1)计算:W k = βz μs μz Wo ················(1.1)式中: W k ---风荷载标准值 (kN/m2);βz---瞬时风压的阵风系数;βz=2.25μs---风荷载体型系数;向上取μs=2.0μz---风荷载高度变化系数,并与建筑的地区类别有关;按《建筑结构荷载规》GBJ9-87取值;W o---基本风压(kN/m2) 按《技术要求》W o =1.1x0.700=0.770(kN/m2)按《玻璃幕墙工程技术规》要求,进行建筑幕墙构件、连接件和锚固件承载力计算时,风荷载分项系数应取γw= 1.4表1-1即风荷载设计值为: W= γW W K = 1.4W K ··············(1.2)2、地震作用雨棚平面外地震作用标准值计算公式如下: qEK =βE αmax GkA·················(1.3)雨棚平面地震作用标准值计算公式如下: PE =βE αmax G ·················(1.4)式中, qEK 为垂直雨棚平面的分布地震作用;(kN/m2) PE 为平行于雨棚平面的集中地震作用;(kN) βE 为地震动力放大系数;取βE=3.0αmax 为水平地震影响系数最大值;取αmax=0.08(7度抗震设计) G 为幕墙结构自重(kN)Gk A 为单位面积的幕墙结构自重(kN/m2) ;取GkA=0.4kN/m2按规要求,地震作用的分项系数取γE= 1.3,即地震作用设计值为:qE=γEqEK = 1.3 qEK ·············(1.5)3、雨棚结构自重按规要求,幕墙结构自重的分项系数取γG=1.2。
钢结构雨篷设计计算书一、计算依据:1.《建筑结构荷载规范》2.《钢结构设计规范》GB50017-20033.《建筑抗震设计规范》4.《钢雨篷(一)》07SG528-1图集二、计算基本参数: 1.本工程位于xx市,基本风压ω0=0.750(kN/m2),考虑到结构的重要性,按50年一遇考虑乘以系数1.0,故本工程基本风压ω=1.0x0.75=0.75(kN/m2)。
2. 地面粗糙度类别按B类考虑,风压高度变化系数取5.0米处(标高最高处),查荷载规范知,取: z=1.00,对于雨篷风荷载向上取μs=-2.0,向瞬时风压的阵风系数βz=1.70 。
3. 本工程耐火等级二级,抗震设防六度。
三、结构平面布置结构平面布置图:初步估计主梁采用:HN400×200×8×13次梁采用:HN250×125×6×9拉压杆采用:Φ152×5.0钢材均采用Q235级钢四、荷载计算1、风荷载垂直于雨篷平面上的风荷载标准值,按下列公式(1.1)计算:W k = βz μs μz Wo ················(1.1)式中: W k ---风荷载标准值 (kN/m2);βz---瞬时风压的阵风系数;βz=1.70μs---风荷载体型系数;参照07GSG528-1图集说明5.1.4条,向上取μs=-2.0,向下取μs=1.0。
μz---风荷载高度变化系数;按《建筑结构荷载规范》GB5009-2012取值μz=1.0;W o---基本风压(kN/m2) ,查荷载规范,北海市风压取 W o =0.750(kN/m2)正风:Wk+=1.70×1.0×1.0×0.75=1.28 kN/m2负风:Wk-=1.70×(-2.0)×1.0×0.75=-2.55 kN/m2简化为作用在主梁上的集中荷载,荷载作用面积A=5.08×1.1=5.59㎡正风时,W k1=1.28×5.59=7.12 kN/m负风时,W k2=-2.55×5.59=-14.25kN/m2、恒荷载07GSG528-1图集说明5.1.1条,正风时,雨篷玻璃永久荷载0.8 kN/m2,负风时取0.3 kN/m2。
钢结构雨篷设计计算书一、计算依据:1。
《建筑结构荷载规范》2.《钢结构设计规范》GB50017-20153.《建筑抗震设计规范》4.《钢雨篷(一)》07SG528—1图集二、计算基本参数:1.本工程位于xx市,基本风压ω0=0。
750(kN/m2),考虑到结构的重要性,按50年一遇考虑乘以系数1.0,故本工程基本风压ω=1。
0x0.75=0。
75(kN/m2)。
2. 地面粗糙度类别按B类考虑,风压高度变化系数取5.0米处(标高最高处),查荷载规范知,取:z=1。
00,对于雨篷风荷载向上取μs=—2.0,向瞬时风压的阵风系数βz=1。
70 。
3。
本工程耐火等级二级,抗震设防六度。
三、结构平面布置结构平面布置图:初步估计主梁采用:HN400×200×8×13次梁采用:HN250×125×6×9拉压杆采用:Φ152×5。
0钢材均采用Q235级钢四、荷载计算1、风荷载垂直于雨篷平面上的风荷载标准值,按下列公式(1.1)计算:W k = z s z Wo ················(1。
1)式中: W k —--风荷载标准值 (kN/m2);z—--瞬时风压的阵风系数;βz=1。
70s--—风荷载体型系数;参照07GSG528-1图集说明5.1。
4条,向上取μs=-2。
0,向下取μs=1。
0。
z——-风荷载高度变化系数;按《建筑结构荷载规范》GB5009-2012取值μz=1.0;W o———基本风压(kN/m2) ,查荷载规范,北海市风压取 W o =0.750(kN/m2)正风:Wk+=1.70×1.0×1。
0×0。
75=1。
28 kN/m2负风:Wk-=1.70×(—2。
nsys计算-钢结构玻璃雨篷计算书第一部分、雨篷计算第一章、雨篷面板计算一、计算说明玻璃雨篷面板选用5+5钢化夹胶玻璃。
参数如下:计算标高:3.6m玻璃分格: a×b=3.7 ×4.82 m a:玻璃分最大格短边 b:玻璃最大分格长边设计地震烈度:7度地面粗糙度类别:C类二、荷载计算 1、雨篷构件重量荷载雨篷钢构件自重由ANSYS有限元计算程序自动加载,这里只计算雨篷玻璃自重。
GAK:玻璃面板自重面荷载标准值玻璃采用5+5 GAK=(8+8)×10-3×25.6=0.410 KN/m2GGK:考虑各种零部件后的雨篷构件自重面荷载标准值 GGK=0.6 KN/m2GG: 考虑各种零部件后的雨篷构件自重面荷载设计值自重荷载分项系数:1.2 GG =1.2×GGK=1.2×0.60 =0.72 KN/m2 2、雪荷载作用 S0: 基本雪压 0.4 KN/㎡按《建筑结构荷载规范》(2006版)GB50009-2001附表D.4取值μr:积雪分布系数1.0按《建筑结构荷载规范》(2006版)GB50009-2001 表6.2.1第1项取值 SK: 雪荷载标准值 SK =μr×S0 =0.4 KN/m2S: 雪荷载设计值 S =1.4×SK =0.56 KN/m2 3、风荷载作用(负风压)WK:作用在雨蓬上的风荷载标准值βgz:瞬时风压的阵风系数, 2.3686按《建筑结构荷载规范》(2006版)GB50009-2001表7.5.1条取值μs:风荷载体型系数, -2.0按《建筑结构荷载规范》(2006版)GB50009-2001第7.3.3条取值μZ:风荷载高度变化系数,0.74 按《建筑结构荷载规范》(2006版)GB50009-2001表7.2.1条取值W0:基本风压,0.45 KN/m2按《建筑结构荷载规范》(2006版)GB50009-2001附表D.4取值 WK:风荷载标准值βgz:瞬时风压的阵风系数, 2.3686按《建筑结构荷载规范》(2006版)GB50009-2001表7.5.1条取值μs:风荷载体型系数, -2.0按《建筑结构荷载规范》(2006版)GB50009-2001第7.3.3条取值μZ:风荷载高度变化系数,0.74 按《建筑结构荷载规范》(2006版)GB50009-2001表7.2.1条取值W0:基本风压,0.45 KN/m2按《建筑结构荷载规范》(2006版)GB50009-2001附表D.4取值 WK:风荷载标准值 WK =βgzμs μz W0=2.3686×(-2.0)×0.74×0.45=-1.5775 KN/m2(方向垂直向上) W:风荷载设计值R:风荷载作用效应的分项系数,1.4 W=γ·Wk=1.4×(-1.5775)=-2.2085 KN/三、荷载效应组合1、由负风荷载效应控制的组合(向上)rG: 重力荷载分项系数,《建筑结构荷载规范》(2006版)GB50009-2001第3.2.5条规定:对结构的倾覆、滑移或飘浮验算,应取0.9 rW :风荷载分项系数按《建筑结构荷载规范》(2006版)GB50009-2001第3.2.5条取1.4 ψW:风荷载组合系数 GK:重力荷载标准值 WK:风荷载标准值组合标准值: qK =GK+ψW·WK=0.6+1.0×(-1.5775) =-0.9775 KN/m2组合设计值: q =rG GK +ψW·rW·WK=0.9×0.6+1.0×1.4×(-1.5775) =-1.6685 KN/m22、由自重荷载效应控制的组合(向下) rG: 重力荷载分项系数按《建筑结构荷载规范》(2006版)GB50009-2001规定取1.35 rs:雪荷载分项系数按《建筑结构荷载规范》(2006版)GB50009-2001第3.2.5条取1.4 ψs:雪荷载组合系数 GK:重力荷载标准值SK:雪荷载标准值 SK =μr×S0 =0.4 KN/m2荷载组合:雨篷活荷载按q活 =0.5 KN/m2计算,活荷载大于雪荷载,验算时取恒载+活载载。
钢结构雨棚面积的计算方法
钢结构雨棚作为建筑中常见的一种结构形式,其面积的计算是在设计和施工过程中不可或缺的重要环节。
下面将介绍如何计算钢结构雨棚的面积。
1. 组件分析
首先,我们需要了解钢结构雨棚通常由哪些组件构成。
一般来说,钢结构雨棚包括主梁、次梁、支撑柱、覆盖板等部分。
这些组件的尺寸和形状将直接影响雨棚的实际面积。
2. 面积计算公式
计算钢结构雨棚的面积通常采用以下公式:
$$ A = L \\times W $$
其中,A为钢结构雨棚的面积,L为雨棚的长度,W为雨棚的宽度。
3. 面积计算步骤
在实际操作中,我们可以按照以下步骤计算钢结构雨棚的面积:
步骤一:测量雨棚的长度和宽度
首先,使用测量工具准确测量钢结构雨棚的长度和宽度。
在测量时确保准确无误,以避免面积计算出现偏差。
步骤二:代入公式计算面积
将测量得到的长度和宽度代入上述公式中进行计算,得到钢结构雨棚的面积。
在计算过程中,注意单位的统一,避免转换错误导致计算结果不准确。
4. 示例
假设钢结构雨棚的长度为10米,宽度为5米,根据上述公式计算得到:
$$ A = 10 \\times 5 = 50 \\text{平方米} $$
因此,该钢结构雨棚的面积为50平方米。
结语
通过以上步骤,我们可以准确计算钢结构雨棚的面积,为设计和施工提供参考依据。
在实际操作中,我们还需要考虑结构的强度、承重能力等因素,以确保钢结构雨棚的使用安全和稳定。
钢结构雨棚计算书范本
1. 引言
在建筑工程中,钢结构雨棚是一种常见的构筑物,具有承载荷载、遮挡风雨等功能。
本文将根据典型的钢结构雨棚设计要求,提供一份计算书范本,以指导工程师进行钢结构雨棚的设计计算。
2. 荷载计算
2.1 风荷载计算
根据《建筑结构荷载规范》,钢结构雨棚的风荷载计算应考虑风速、风向等因素。
采用公式:
$$F_{wind} = C_f \\times A \\times P$$
其中,F wind为风荷载,C f为风压系数,A为风压面积,P为大气压。
2.2 雨荷载计算
雨荷载为钢结构雨棚在雨天积聚水的重量,根据设计排水能力计算。
3. 结构计算
钢结构雨棚的结构计算主要包括主梁、次梁、支撑等元件的受力分析和强度验算。
按照受力平衡原理和钢结构设计规范计算各构件的截面尺寸及钢材强度要求。
4. 连接设计
钢结构雨棚的连接设计需要考虑连接件的承载能力和连接方式的可靠性。
根据设计荷载和构件受力情况,选择适当的连接方式和规格,并计算连接件的极限承载能力。
5. 其他要求
除上述要素外,钢结构雨棚设计还需考虑防腐防锈、防雷、抗震等特殊要求,
确保钢结构雨棚在使用过程中安全可靠。
结语
通过本文提供的钢结构雨棚计算书范本,设计人员可以遵循其中的步骤和方法,进行钢结构雨棚的设计计算工作,确保结构的安全稳定性。
愿本文对您有所帮助!。
钢构厂房雨棚设计方案钢结构厂房雨棚设计方案一、设计目标及要求本方案旨在设计一种坚固耐用、结构合理、施工方便的钢结构厂房雨棚,以满足工业厂房对于防雨、防晒等基本需求。
二、设计方案1.结构选材:采用Q235高强度钢材作为结构材料,保证其在负载下不发生塑性变形。
2.结构布局:以厂房主体建筑为基础,在其一侧搭建雨棚结构,形成一个L形的空间。
雨棚的高度应与主体建筑高度保持一致,避免视觉上的不协调。
3.梁柱设计:主体建筑的梁柱可同时作为雨棚的支撑结构,以减少结构材料和施工工艺。
梁柱的尺寸按照规范进行设计,考虑工艺性、荷载性等因素。
4.屋面设计:雨棚屋面采用彩钢板作为覆盖材料,其具有防腐蚀、耐候性好的特点。
彩钢板采用锁边式连接,使得屋面整体性能更佳,较好抵抗外力作用。
5.支撑设计:在运用梁柱结构的基础上可适当设置支撑柱,以提高整体结构的稳定性。
支撑柱的尺寸和位置应符合结构力学原理。
6.系统灵活性:设计中应充分考虑雨棚的灵活性,以方便后期的拆除和重新组建。
同时,应考虑增加模块化设计,方便进行扩建或改造。
7.防露设计:考虑到雨棚遇到大雨时可能有滴水或者积水的情况,底部可以设置排水孔或者排水槽,保证雨水能够及时流走。
三、结构设计说明1.整个雨棚结构采用梁柱桁架体系,梁为I形钢,柱为H形钢,均为热镀锌工艺。
2.雨棚主体结构设计包括:主梁、次梁、柱子、连接件等。
梁柱之间通过焊接连接,焊接接头牢固可靠,同时采用螺栓连接。
3.彩钢板屋面采用锁边式连接,每块板材通过扣槽连接,可有效防止雨水渗透,提高抗风能力。
4.支撑柱采用H形钢,通过螺栓连接梁柱,形成一个稳定的支撑系统,增强整体结构的稳定性。
5.底部设置排水孔,确保雨水及时排出。
孔口通过镀锌钢板固定,提高耐腐蚀性。
四、施工方案1.先进行土方开挖和地基处理,保证地基坚实稳定。
2.按照设计方案搭建梁柱体系,同时进行焊接、螺栓连接等工艺处理。
3.搭建好梁柱后,安装彩钢板屋面,固定板材接缝,确保屋面的平整度和结构的稳定性。
钢结构雨棚设计计算书一、计算依据:1.《建筑结构荷载规范》2.《钢结构设计规范》GB50017-20033.《玻璃幕墙工程技术规范》4.《建筑抗震设计规范》二、计算基本参数: 1.本工程位于深圳市,基本风压ω0=0.700(kN/m2),考虑到结构的重要性,按50年一遇考虑乘以系数1。
1,故本工程基本风压ω=1.1x0。
7=0.77(kN/m2)。
2. 地面粗糙度类别按C类考虑,风压高度变化系数取5.0米处(标高最高处),查下页表1-1知,该处风压高度变化系数为:μz=0。
74。
依据《玻璃幕墙工程技术规范》,风荷载体形系数,对于挑檐风荷载向上取μs=2.0,瞬时风压的阵风系数βz=2。
25 。
3. 本工程耐火等级一级,抗震设防七度.三、结构受力分析该处雨棚是以钢架作为承重结构的悬臂体系。
四、设计荷载确定原则:作用于垂直雨棚平面的荷载主要是风荷载、地震作用及雨棚结构自重,其中风荷载引起的效应最大.在进行雨棚构件、连接件承载力计算时,必须考虑各种荷载和作用效应的分项系数,即采用其设计值;进行位移和挠度计算时,各分项系数均取1。
0,即采用其标准值。
1、风荷载根据《玻璃幕墙工程技术规范》,垂直于雨棚平面上的风荷载标准值,按下列公式(1.1)计算:W k = βz μs μz Wo ················(1.1)式中: W k -——风荷载标准值 (kN/m2);βz——-瞬时风压的阵风系数;βz=2。
25μs---风荷载体型系数;向上取μs=2.0μz--—风荷载高度变化系数,并与建筑的地区类别有关;按《建筑结构荷载规范》GBJ9-87取值;W o---基本风压(kN/m2)按《技术要求》W o =1。
1x0.700=0.770(kN/m2)按《玻璃幕墙工程技术规范》要求,进行建筑幕墙构件、连接件和锚固件承载力计算时,风荷载分项系数应取γw= 1.4表1-1即风荷载设计值为:W= γW W K = 1.4W K··············(1。
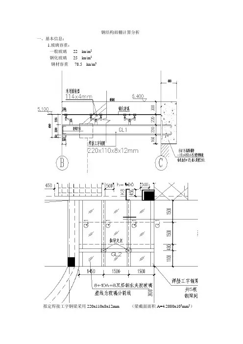
钢结构雨棚计算分析一、基本信息:1.玻璃容重:一般玻璃22 kn/m2钢化玻璃25 kn/m2钢材容重78.5 kn/m3------------------------------------------------------- --------------------------------------------------------------- 拟定焊接工字钢梁采用220x110x8x12mm (梁截面面积A=4.2080x103mm2)截面特性:I x =bh 3/12=122201103x -12)212220()8110(3⨯-⨯-=33.5X106mm 4 w x =2Ix h =2220100.3356⨯=0.3055x106mm 3二:荷载计算恒:玻璃: 采用8+8双层夹胶钢化玻璃G 1=25KN/m 3*0.016m*2.25m=0.9kN/m钢梁: 采用220*110*8*12焊接工字钢G 2=78.5*0.0042=0.33kN/m活荷载:积灰0.5*2.25=1.125kN/m风荷载:风荷载标准值按式o z sl gz k ωμμβω=,基本风压w 0=0.55KN/m2。
由《荷载规,8.3.3.2》查得0.1sl =μ(正风)和0.2sl -=μ(负风),B 类地区,离地面高度5.0m ,查表8.6.1得 gz β=1.70,z μ=1.0。
正风:W k =1.7*1.0*1.0*0.55*2.25=2.104kN/m负风:W k =1.7*2.0*1.0*0.55*2.25=4.208kN/m荷载组合:正风:恒荷控制:1.35*(0.9+0.33)+1.4*0.7*1.125+1.4*0.6*2.104=4.53kN/m 活荷控制:1.2*(0.9+0.33)+1.4*2.104+1.4*0.7*1.125=5.524kN/m 负风:1.0*(0.9+0.33)-1.4*4.208=-4.67kN/m力学模型A B计算弯矩:正风:M B =-3.3kN*m M AB =6.2kN*m负风:M B =2.8kN*m M AB =-5.5kN*m三:1.钢梁受弯强度验算:(由以上结果可知,钢梁截面由正风活荷载控制组合控制)xx x W M *γσ==20.4 N/mm 2>215N/mm 2 满足抗弯要求。
钢结构雨棚结构设计说明cad结构设计说明【模板一】钢结构雨棚结构设计说明1.引言本文档旨在详细说明钢结构雨棚的设计方案,包括结构设计、材料选择、施工工艺等内容。
2.结构设计2.1 设计目标:阐明钢结构雨棚的设计目标,如承载能力、耐久性等。
2.2 结构类型:介绍选择的结构类型,并说明其适用性和优势。
2.3 荷载分析:详细分析雨棚所承受的各种荷载,如风荷载、雨水荷载等。
2.4 结构计算:进行结构计算,包括雨棚的整体稳定性和各个部位的尺寸、连接方式等计算。
2.5 结构细节设计:细化结构设计,包括节点设计、连接件设计等。
3.材料选择3.1 主体材料:介绍选择的钢材品种,并说明其机械性能和耐腐蚀性。
3.2 表面处理:说明进行表面处理的方法和材料,以增加钢材抗腐蚀性能。
3.3 其他辅助材料:如连接件、封板材料等的选择和规格说明。
4.施工工艺4.1 预制加工:介绍预制加工的方法和流程,以提高施工效率和质量。
4.2 安装过程:详细说明雨棚的安装过程,包括起吊、定位、焊接等操作注意事项。
4.3 施工检验:介绍施工过程中应进行的检验项目和方法,并规定合格标准。
5.附件本文档附带以下附件:(列表附件名称和文件路径)6.法律名词及注释6.1 法律名词1:“XXXXX”- 注释说明。
6.2 法律名词2:“XXXXX”- 注释说明。
(根据实际情况添加更多法律名词和注释)【模板二】CAD结构设计说明1.引言本文档为CAD结构设计说明,旨在提供CAD结构设计的详细信息,并为提供。
2.设计目标2.1 功能要求:明确CAD设计的功能要求,如图纸制作、建模等。
2.2 界面要求:阐明CAD软件界面的设计标准及友好性要求。
2.3 兼容性要求:说明CAD设计的兼容性要求,如与其他软件和平台进行数据交互等。
3.设计流程3.1 数据采集:说明CAD设计前的数据采集过程,如测量现有结构、收集设计需求等。
3.2 初始设计:介绍CAD软件的初始设计流程和相关工具的使用。
雨棚钢结构工程令狐文艳施工组织设计编制人:审核人:审定人:目录第一章、工程概述第二章、工程施工组织设计编导依据第三章、工程施工前期准备第四章、工程材料管理第五章、施工计划方案第六章、技术保证措施第七章、安全保证措施第一章、工程概况1、工程名称:XX雨棚钢结构工程2、工程地点:XXXX3、工程结构形式及建设规模:单层弧形轻钢结构,屋面采用6mm+PV1.14+6mm钢化夹胶玻璃,钢梁采用H型钢梁或钢管,次龙骨采用70*50*3方钢管。
4、质量验收等级:合格等级。
5、安全指标:现场员工安全教育合格率100%,人身死亡率为零,重伤率为零,重大交通、火灾、环境污染事故的发生率为零。
第二章、工程施工组织设计编导依据1、本公司采用的国家及行业的有关技术、验收标准规范:《钢结构工程施工及验收规范》(GB50205-2001)《钢结构工程质量检验评定标准》(GB50021-95)《建筑工程施工质量验收统一标准》(GB5300)《建筑安装工程质量检验评定统一标准》(BGJ301-88)《钢结构设计规范》(GBJ17-88)《优质碳素结构钢技术条件》(GB699-878)《合金钢技术条件》(GB3077-88)《碳钢焊条》(GB/T5117-95)《低合金钢焊条》(GB/T5118-95)《钢焊缝手工超声波探伤方法和探伤结果分级》(GB11345-89)《涂装前钢材表面锈蚀等级和除锈等级》(GB8923-88)第三章、工程施工前期准备1、熟悉合同、图纸及规范,参加图纸会审,做好施工现场调查记录。
其程序是:熟悉合同、会审图纸、计算工程量、现场调查2、人员组织现场施工人员分为两大类:施工管理层及施工劳务层,他们在项目法管理模式下共同完成工程施工任务。
a 、项目法管理模式科学合理的管理体制、统一有效的工程指挥系统是顺利施工的重要保证,为此,我们将在本工程的施工组织上推行“项目法施工”管理,组建钢结构厂房安装工程项目班子。
雨蓬玻璃雨篷设计计算书设计:校对:审核:批准:徐州二〇〇七年十二月二十七日目录1 计算引用的规范、标准及资料 (1)1.1 幕墙设计规范: (1)1.2 建筑设计规范: (1)1.3 铝材规范: (2)1.4 金属板及石材规范: (2)1.5 玻璃规范: (2)1.6 钢材规范: (3)1.7 胶类及密封材料规范: (3)1.8 门窗及五金件规范: (4)1.9 相关物理性能级测试方法: (5)1.10 《建筑结构静力计算手册》(第二版) (5)1.11 土建图纸: (5)2 基本参数 (5)2.1 雨篷所在地区: (5)2.2 地面粗糙度分类等级: (5)3 雨篷荷载计算 (6)3.1 玻璃雨篷的荷载作用说明: (6)3.2 风荷载标准值计算: (6)3.3 风荷载设计值计算: (8)3.4 雪荷载标准值计算: (8)3.5 雪荷载设计值计算: (8)3.6 雨篷面活荷载设计值: (8)3.7 雨篷构件恒荷载设计值: (8)3.8 选取计算荷载组合: (9)4 雨篷杆件计算 (10)4.1 结构的受力分析: (10)4.2 选用材料的截面特性: (11)4.3 梁的抗弯强度计算: (11)4.4 拉杆的抗拉(压)强度计算: (12)4.5 梁的挠度计算: (12)5 雨篷焊缝计算 (12)5.1 受力分析: (12)5.2 焊缝校核计算: (13)6 幕墙玻璃的选用与校核 (13)6.1 玻璃板块荷载组合计算: (13)6.2 玻璃板块荷载分配计算: (14)6.3 玻璃的强度计算: (15)6.4 玻璃最大挠度校核: (16)7 雨篷埋件计算(后锚固结构) (16)7.1 校核处埋件受力分析: (16)7.2 锚栓群中承受拉力最大锚栓的拉力计算: (17)7.3 群锚受剪内力计算: (17)7.4 锚栓钢材破坏时的受拉承载力计算: (18)7.5 混凝土锥体受拉破坏承载力计算: (18)7.6 锚栓钢材受剪破坏承载力计算: (20)7.7 混凝土楔形体受剪破坏承载力计算: (20)7.8 混凝土剪撬破坏承载能力计算: (21)7.9 拉剪复合受力承载力计算: (22)8 附录常用材料的力学及其它物理性能 (23)钢结构雨篷设计计算书1 计算引用的规范、标准及资料1.1幕墙设计规范:《玻璃幕墙工程技术规范》 JGJ102-2003《点支式玻璃幕墙工程技术规程》 CECS127-2001《点支式玻璃幕墙支承装置》 JC139-2001《吊挂式玻璃幕墙支承装置》 JC138-2001《建筑玻璃应用技术规程》 JGJ113-2003《建筑瓷板装饰工程技术规范》 CECS101:98《建筑幕墙》 JG3035-2003《金属与石材幕墙工程技术规范》 JGJ133-2001《全玻璃幕墙工程技术规程》 DBJ/CT014-20011.2建筑设计规范:《采暖通风与空气调节设计规范》 GB50019-2003《地震震级的规定》 GB/T17740-1999《防静电工程技术规范》 DGJ08-83-2000《钢结构防火涂料》 GB14907-2002《钢结构设计规范》 GB50017-2003《高层建筑混凝土结构技术规程》 JGJ3-2002《高层民用钢结构技术规程》 JGJ99-98《高层民用建筑设计防火规范》 GB50045-2001《高处作业吊蓝》 GB19155-2003《工程抗震术语标准》 JGJ/T97-95《工程网络计划技术规程》 JGJ/T121-99《公共建筑节能设计标准》 GB50189-2005《混凝土结构后锚固技术规程》 JGJ145-2004《混凝土结构设计规范》 GB50010-2002《混凝土用膨胀型、扩孔型建筑锚栓》 JG160-2004《既有居住建筑节能改造技术规程》 JGJ129-2000《建筑表面用有机硅防水剂》 JC/T902-2002《建筑材料放射性核素限量》 GB6566-2001《建筑防火封堵应用技术规程》 CECS154:2003《建筑钢结构焊接技术规程》 JGJ81-2002《建筑隔声评价标准》 GB/T50121-2005《建筑工程抗震设防分类标准》 GB50223-2004《建筑工程预应力施工规程》 CECS180:2005《建筑结构荷载规范》 GB50009-2001 2006年版《建筑结构可靠度设计统一标准》 GB50068-2001《建筑抗震设防分类标准》 GB50223-2004《建筑抗震设计规范》 GB50011-2001《建筑设计防火规范》 GBJ16-87(2001年版)《建筑物防雷设计规范》 GB50057-2000 《冷弯薄壁型钢结构设计规范》 GB50018-2002 《民用建筑隔声设计规范》 GBJ118-88《民用建筑热工设计规范》 GB50176-93《民用建筑设计通则》 GB50352-2005 《膜结构技术规程》 CECS158:2004 《夏热冬冷地区居住建筑节能设计标准》 JGJ134-2001《夏热冬暖地区居住建筑节能设计标准》 JGJ75-2003《预应力筋用锚具、夹具和连接器应用技术规程》JGJ85-2002《中国地震动参数区划图》 GB18306-2001 《中国地震烈度表》 GB/T17742-19991.3铝材规范:《变形铝及铝合金化学成份》 GB/T3190-1996 《建筑用隔热铝型材-穿条式》 JG/T175-2005 《建筑用铝型材、铝板氟碳涂层》 JC133-2000《铝合金建筑型材第1部分基材》 GB5237.1-2004 《铝合金建筑型材第2部分阳极氧化、着色型材》 GB5237.2-2004 《铝合金建筑型材第3部分电泳涂漆型材》 GB5237.3-2004 《铝合金建筑型材第4部分粉末喷涂型材》 GB5237.4-2004 《铝合金建筑型材第5部分氟碳漆喷涂型材》 GB5237.5-2004 《铝合金建筑型材第6部分隔热型材》 GB5237.6-2004 《铝合金建筑型材》 GB/T5237-2004 《铝及铝合金彩色喷涂层》 YS/T431-2000 《铝及铝合金彩色涂层板、带材》 YS/T431-2000 《铝及铝合金轧制板材》 GB/T3880-1997 《铝型材截面几何参数算法及计算机程序要求》 YS/T437-2000 《有色电泳涂漆铝合金建筑型材》 YS/T459-20031.4金属板及石材规范:《干挂饰面石材及其金属挂件》 JC830.1、2-2005 《建筑装饰用微晶玻璃》 JC/T872-2000 《铝幕墙板板基》 YS/T429.1-2000 《铝幕墙板氟碳喷漆铝单板》 YS/T429.2-2000 《铝幕墙板》 YS/T429-2001 《铝塑复合板》 GB/T17748-1999 《铝塑复合板用铝带》 YS/T432-2000 《天然板石》 GB/T18600-2001 《天然大理石荒料》 JC/T202-2001 《天然大理石建筑板材》 GB/T19766-2005 《天然花岗石荒料》 JC/T204-2001 《天然花岗石建筑板材》 GB/T18601-2001 《天然石材统一编号》 GB/T17670-1999 《天然饰面石材术语》 GB/T13890-921.5玻璃规范:《镀膜玻璃第二部分低辐射镀膜玻璃》 GB/T18915.2-2002 《镀膜玻璃第一部分阳光控制镀膜玻璃》 GB/T18915.1-2002 《防弹玻璃》 GB17840-1999《防火玻璃》 GB15763-1995 《浮法玻璃》 GB11614-1999 《钢化玻璃》 GB/T9963-1998 《夹层玻璃》 GB9962-1999 《建筑用安全玻璃第2部分钢化玻璃》 GB15763.2-2005 《建筑用安全玻璃防火玻璃》 GB15763.1-2001 《幕墙用钢化玻璃与半钢化玻璃》 GB17841-1999 《普通平板玻璃》 GB4871-1995 《热反射玻璃》 JC693-1998《热弯玻璃》 JC/T915-2003 《压花玻璃》 JC/T511-2002 《中空玻璃》 GB/T11944-2002 《着色玻璃》 GB/T18701-20021.6钢材规范:《不锈钢棒》 GB/T1220-1992 《不锈钢和耐热钢冷扎带钢》 GB/T4239-1991 《不锈钢冷加工钢棒》 GB/T4226-1984 《不锈钢冷扎钢板》 GB/T3280-1992 《不锈钢热扎钢板》 GB/T4237-1992 《不锈钢热扎钢带》 GB/T5090-1985 《不锈钢丝》 GB/T4240-93 《不锈钢丝绳》 GB9944-88《不锈钢小直径无缝钢管》 GB/T3090-2000 《擦窗机》 GB19154-2003 《彩色涂层钢板和钢带》 GB/T12754-2006 《低合金钢焊条》 GB/T5118-1995 《低合金高强度结构钢》 GB/T1591-1994 《钢丝绳铝合金压制接头》 GB6946-1993 《高耐候结构钢》 GB/T4171-2000 《高碳铬不锈钢丝》 YB/T096—1997 《焊接结构用耐候钢》 GB/T4172-2000 《合金结构钢》 GB/T3077-1999 《结构用无缝钢管》 JBJ102《金属覆盖层钢铁制品热镀锌层技术要求》 GB/T13912-1992 《冷拔异形钢管》 GB/T3094-2000 《碳钢焊条》 GB/T5117-1995 《碳素结构钢》 GB/T700-1988 《碳素结构和低合金结构钢热轧薄钢板及钢带》 GB/T912-1989 《碳素结构和低合金结构钢热轧厚钢板及钢带》 GB/T3274-1988 《优质碳素结构钢》 GB/T699-1999 《预应力筋用锚具、夹具和连接器》 GB/T14370-20001.7胶类及密封材料规范:《丙烯酸酯建筑密封膏》 JC484-1992《玻璃幕墙接缝用密封胶》 JC/T882-2001 《彩色钢板用建筑密封胶》 JC/T884-2001 《彩色涂层钢板用建筑密封胶》 JC/T884-2001 《丁基橡胶防水密封胶粘带》 JC/T942-2004 《干挂石材幕墙用环氧胶粘剂》 JC887-2001《工业用橡胶板》 GB/T5574-1994《硅酮建筑密封膏》 GB/T14683-2003《硅酮建筑密封胶》 GB/14683-2003《混凝土接缝用密封胶》 JC/T881-2001《建筑窗用弹性密封剂》 JC485-1992《建筑密封材料试验方法》 GB/T13477.1~20-2002 《建筑用防霉密封胶》 JC/T885-2001《建筑用硅酮结构密封胶》 GB16776-2005《建筑用岩棉、矿渣棉绝热制品》 GB/T19686-2005《建筑用硬质塑料隔热条》 JG/T174-2005《建筑装饰用天然石材防护剂》 JC/T973-2005《聚氨酯建筑密封胶》 JC/T482-2003《聚硫建筑密封胶》 JC483-1992《绝热用岩棉、矿棉及其制品》 GB/T11835-98《硫化橡胶或热塑性橡胶撕裂强度的测定》 GB/T529-1999《幕墙玻璃接缝用密封胶》 JC/T882-2001《石材幕墙接缝用密封胶》 JC/T883-2001《石材用建筑密封胶》 JC/T883-2001《橡胶袖珍硬度计压入硬度试验方法》 GB/T530-1999《修补用天然橡胶胶粘剂》 HGT3318-2002《中空玻璃用弹性密封胶》 JC/T486-2001《中空玻璃用丁基热熔密封胶》 JC/T914-20031.8门窗及五金件规范:《闭门器》 GB/T9305-1988《抽芯锚钉技术条件》 GB12619-90《地弹簧》 GB/T9296-1988《封闭型沉头抽芯铆钉》 GB/T12616-2004《封闭型平圆头抽芯铆钉》 GB/T12615-2004《紧固件螺栓和螺钉》 GB/T5277-1985《紧固件公差螺栓、螺钉、螺柱和螺母》 GB/T3103.1-2002《紧固件机械性能不锈钢螺母》 GB3098.15-2000《紧固件机械性能不锈钢螺母》 GB/T3098.15-2000 《紧固件机械性能不锈钢螺栓、螺钉、螺柱》 GB/T3098.6-2000《紧固件机械性能抽芯铆钉》 GB/T3098.19-2004 《紧固件机械性能螺母、粗牙螺纹》 GB/T3098.2-2000《紧固件机械性能螺母、细牙螺纹》 GB/T3098.4-2000《紧固件机械性能螺栓、螺钉和螺柱》 GB/T3098.1-2000《紧固件机械性能自攻螺钉》 GB/T3098.5-2000《紧固件机械性能》 GB/T3098.1~20-2000 《紧固件术语盲铆钉》 GB/T3099-2004《铝合金窗》 GB/T8479-2003《铝合金窗不锈钢滑撑》 GB/T9300-1988《铝合金窗撑挡》 GB/T9299-1988《铝合金窗锁》 GB/T9302-1988《铝合金门》 GB/T8478-2003《铝合金门插销》 GB/T9297-1988《铝合金门窗工程设计、施工及验收规范》 DBJ15-30-2002《铝合金门窗拉手》 GB/T9301-1988《铝合金门窗型材粉末静电喷涂层技术条件》 JG/T30451-1998《铝合金门锁》 GB/T9303-1988《螺纹紧固件应力截面积和承载面积》 GB/T16823.1-1997《平开铝合金窗执手》 GB/T9298-1988《十字槽盘头螺钉》 GB/T818-2000《推拉铝合金门窗用滑轮》 GB/T9304-19881.9相关物理性能级测试方法:《玻璃幕墙工程质量检验标准》 JGJ/T139-2001《玻璃幕墙光学性能》 GB/T18091-2000《采暖居住建筑节能检验标准》 JGJ132-2001《彩色涂层钢板和钢带试验方法》 GB/T13448-2006《钢结构工程施工质量验收规范》 GB50205-2001《混凝土结构工程施工质量验收规范》 GB50204-2002《建筑防水材料老化试验方法》 GB/T18244-2000《建筑幕墙风压变形性能测试方法》 GB/T15227-94《建筑幕墙抗震性能振动台试验方法》 GB/T18575-2001《建筑幕墙空气渗透性能测试方法》 GB/T15226-94《建筑幕墙平面内变形性能检测方法》 GB/T18250-2000《建筑幕墙物理性能分级》 GB/T15225-94《建筑幕墙雨水渗透性能测试方法》 GB/T15228-94《建筑外窗保温性能分级及检测方法》 GB/T8484-2002《建筑外窗采光性能分级及检测方法》 GB/T11976-2002《建筑外窗抗风压性能分级及检测方法》 GB/T7106-2002《建筑外窗空气隔声性能分级及检测方法》 GB/T8485-2002《建筑外窗气密性能分级及检测方法》 GB/T7107-2002《建筑外窗水密性能分级及检测方法》 GB/T7108-2002《建筑装饰工程施工质量验收规范》 GB50210-2001《金属材料室温拉伸试验方法》 GB/T228-20021.10《建筑结构静力计算手册》(第二版)1.11土建图纸:2 基本参数2.1雨篷所在地区:徐州地区;2.2地面粗糙度分类等级:按《建筑结构荷载规范》(GB50009-2001)A类:指近海海面和海岛、海岸、湖岸及沙漠地区;B类:指田野、乡村、丛林、丘陵以及房屋比较稀疏的乡镇和城市郊区; C类:指有密集建筑群的城市市区;D类:指有密集建筑群且房屋较高的城市市区;依照上面分类标准,本工程按C类地区考虑。
钢结构雨棚设计总说明一、钢结构雨棚设计采用下类荷载标准值:雨棚恒荷载:玻璃板自重+玻璃附件= 0.6kN/m2(钢结构自重有计算软件自动施加,重力方向)雨棚检修荷载:1.0 kN/m(不上人屋面)沿雨棚边缘雨棚活荷载:0.50 kN/m2基本风压: 0.35 kN/m2地面粗糙度类型:C类抗震设防烈度:7度,设计地震加速度为:0.15g二、本设计遵循下列规范:建筑结构荷载规范………………………GB50009-2012钢结构设计规范…………………………GB50017-2003建筑抗震设计规范………………………GB50011-2010(2016年版)建筑设计防火规范………………………GB50016-2014钢结构工程施工及验收规范……………GB50205-2001建筑钢结构焊接技术规程………………JGJ81-2002玻璃幕墙工程技术规范…………………JGJ102-2003建筑安全玻璃第3部分:夹层玻璃……………GB15763.3-2009金属与石材幕墙工程技术规范………………JGJ133-2001 建筑用硅酮结构密封胶…………………GB16776三、材料选用:钢材:本工程钢结构主要采用采用Q235B钢,钢材质量符合GB700-88《碳素结构钢》技术条件。
焊条:Q235B钢采用《碳钢焊条》(GB/T5117-95) 中的E43-XX系列焊条。
Q345B钢采用《低合金钢焊条》(GB/T5118-95)中的E50-XX系列焊条。
焊丝及焊剂:焊丝应符合国标《熔化焊用钢丝》(GB/T14957) 的标准。
焊剂应符合国标《碳素钢埋弧焊用焊剂》(GB/T5293-85) 及《低合金钢埋弧焊用焊剂》(GB/T2470-90) 的规定。
紧固件:高强螺栓连接的规格和技术条件应符合设计要求和现行国家标准《钢结构用高度强大六角头螺栓,大六角螺母,垫圈与技术条件》的规定。
其钢材应符合《合金结构钢技术条件》(GB3077-88) 和《优质碳素结构钢及一般技术条件》(GB699-88) 的规定。
钢结构雨篷设计计算书1令狐文艳2基本参数2.1雨篷所在地区:苏州地区;2.2地面粗糙度分类等级:按《建筑结构荷载规范》(GB50009-2012)A类:指近海海面和海岛、海岸、湖岸及沙漠地区;B类:指田野、乡村、丛林、丘陵以及房屋比较稀疏的乡镇和城市郊区;C类:指有密集建筑群的城市市区;D类:指有密集建筑群且房屋较高的城市市区;依照上面分类标准,本工程按B类地形考虑。
3雨篷荷载计算3.1玻璃雨篷的荷载作用说明:玻璃雨篷承受的荷载包括:自重、风荷载、雪荷载以及活荷载。
(1)自重:包括玻璃、连接件、附件等的自重,可以按照400N/m2估算:(2)风荷载:是垂直作用于雨篷表面的荷载,按GB50009采用;(3)雪荷载:是指雨篷水平投影面上的雪荷载,按GB50009采用;(4)活荷载:是指雨篷水平投影面上的活荷载,按GB50009,可按500N/m2采用;在实际工程的雨篷结构计算中,对上面的几种荷载,考虑最不利组合,有下面几种方式,取用其最大值:A:考虑正风压时:a.当永久荷载起控制作用的时候,按下面公式进行荷载组合:S k+=1.35G k+0.6×1.4w k+0.7×1.4S k(或Q k)b.当永久荷载不起控制作用的时候,按下面公式进行荷载组合:S k+=1.2G k+1.4×w k+0.7×1.4S k(或Q k)B:考虑负风压时:按下面公式进行荷载组合: S k-=1.0G k+1.4w k3.2风荷载标准值计算:按建筑结构荷载规范(GB50009-2012)计算:w k+=βgzμzμs1+w0……7.1.1-2[GB50009-2012 2006年版]w k-=βgzμzμs1-w0上式中:w k+:正风压下作用在雨篷上的风荷载标准值(MPa);w k-:负风压下作用在雨篷上的风荷载标准值(MPa);Z:计算点标高:4m;βgz:瞬时风压的阵风系数;根据不同场地类型,按以下公式计算(高度不足5m按5m计算):βgz=K(1+2μf)其中K为地面粗糙度调整系数,μf为脉动系数A类场地:βgz=0.92×(1+2μf) 其中:μf=0.387×(Z/10)-0.12B类场地:βgz=0.89×(1+2μf) 其中:μf=0.5(Z/10)-0.16C类场地:βgz=0.85×(1+2μf) 其中:μ-0.22f=0.734(Z/10)D类场地:βgz=0.80×(1+2μf) 其中:μ-0.3f=1.2248(Z/10)对于B类地形,5m高度处瞬时风压的阵风系数:βgz=0.89×(1+2×(0.5(Z/10)-0.16))=1.8844μz:风压高度变化系数;根据不同场地类型,按以下公式计算:A类场地:μz=1.379×(Z/10)0.24当Z>300m时,取Z=300m,当Z<5m时,取Z=5m;B类场地:μz=(Z/10)0.32当Z>350m时,取Z=350m,当Z<10m时,取Z=10m;C类场地:μz=0.616×(Z/10)0.44当Z>400m时,取Z=400m,当Z<15m时,取Z=15m;D类场地:μz=0.318×(Z/10)0.60当Z>450m时,取Z=450m,当Z<30m时,取Z=30m;对于B类地形,5m高度处风压高度变化系数:μz=1.000×(Z/10)0.32=1μs1:局部风压体型系数,对于雨篷结构,按规范,计算正风压时,取μs1+=2;计算负风压时,取μs1-=-2.0;另注:上述的局部体型系数μs1(1)是适用于围护构件的从属面积A小于或等于1m2的情况,当围护构件的从属面积A大于或等于10m2时,局部风压体型系数μs1(10)可乘以折减系数0.8,当构件的从属面积小于10m2而大于1m2时,局部风压体型系数μs1(A)可按面积的对数线性插值,即:μs1(A)=μs1(1)+[μs1(10)-μs1(1)]logA在上式中:当A≥10m2时取A=10m2;当A≤1m2时取A=1m2;w0:基本风压值(MPa),根据现行<<建筑结构荷载规范>>GB50009-2012附表 D.4(全国基本风压分布图)中数值采用,按重现期50年,苏州地区取0.00045MPa;(1)计算构件的风荷载标准值:构件的从属面积:A=3×1.5=4.5m2LogA=0.653μsA1+(A)=μs1+(1)+[μs1+(10)-μs1+(1)]logA=1.739μsA1-(A)=μs1-(1)+[μs1-(10)-μs1-(1)]logA =1.739w kA+=βgzμzμsA1+w0=1.8844×1×1.739×0.00045=0.001474MPaw kA-=βgzμzμsA1-w0=1.8844×1×1.739×0.00045=0.001474MPa(2)计算面板部分的风荷载标准值:面板构件的从属面积:A=1.5×1.5=2.25m2LogA=0.352μsB1+(A)=μs1+(1)+[μs1+(10)-μs1+(1)]logA =1.859μsB1-(A)=μs1-(1)+[μs1-(10)-μs1-(1)]logA =1.859w kB+=βgzμzμsB1+w0=1.8844×1×1.859×0.00045=0.001576MPaw kB-=βgzμzμsB1-w0=1.8844×1×1.859×0.00045=0.001576MPa3.3风荷载设计值计算:w A+:正风压作用下作用在雨篷上的风荷载设计值(MPa); w kA+:正风压作用下作用在雨篷上的风荷载标准值(MPa); w A-:负风压作用下作用在雨篷上的风荷载设计值(MPa);w kA-:负风压作用下作用在雨篷上的风荷载标准值(MPa); w A+=1.4×w kA+=1.4×0.001802=0.002523MPaw A-=1.4×w kA-=1.4×0.001802=0.002523MPaw B+:正风压作用下作用在雨篷玻璃上的风荷载设计值(MPa);w kB+:正风压作用下作用在雨篷玻璃上的风荷载标准值(MPa);w B-:负风压作用下作用在雨篷玻璃上的风荷载设计值(MPa);w kB-:负风压作用下作用在雨篷玻璃上的风荷载标准值(MPa);w B+=1.4×w kB+=1.4×0.001927=0.002698MPaw B-=1.4×w kB-=1.4×0.001927=0.002698MPa3.4雪荷载标准值计算:S k:作用在雨篷上的雪荷载标准值(MPa)S0:基本雪压,根据现行<<建筑结构荷载规范>>GB50009-2012取值,苏州地区50年一遇最大积雪的自重:0.0002MPa.μr:屋面积雪分布系数,按表6.2.1,为2.0。
根据<<建筑结构荷载规范>>GB50009-2012公式 6.1.1屋面雪荷载标准值为:S k=μr×S0=2.0×0.0002=0.0004MPa3.5雪荷载设计值计算:S:雪荷载设计值(MPa);S=1.4×S k=1.4×0.0004=0.00056MPa3.6雨篷面活荷载设计值:Q:雨篷面活荷载设计值(MPa);Q k:雨篷面活荷载标准值取:500N/m2Q=1.4×Q k=1.4×500/1000000=0.0007MPa因为S k≤Q k,所以计算时活荷载参与正压组合!3.7雨篷构件恒荷载设计值:G+:正压作用下雨篷构件恒荷载设计值(MPa);G-:负压作用下雨篷构件恒荷载设计值(MPa);G k:雨篷结构平均自重取0.0004MPa;因为G k与其它可变荷载比较,不起控制作用,所以:G+=1.2×G k=1.2×0.0004=0.00048MPaG-=G k=0.0004MPa3.8选取计算荷载组合:(1)正风压的荷载组合计算:S kA+:正风压作用下的荷载标准值组合(MPa);S A+:正风压作用下的荷载设计值组合(MPa);S kA+=G k+w kA++0.7Q k=0.002552MPaS A+=G++w A++0.7Q=0.003493MPaS kB+:正风压作用下的玻璃的荷载标准值组合(MPa); S B+:正风压作用下的玻璃的荷载设计值组合(MPa);S kB+=G k+w kB++0.7Q k=0.002677MPaS B+=G++w B++0.7Q=0.003668MPa(2)负风压的荷载组合计算:S kA-:负风压作用下的荷载标准值组合(MPa);S A-:负风压作用下的荷载设计值组合(MPa);S kA-=G k+w kA-=0.001402MPaS A-=G-+w A-=1.0G k+1.4w kA-=0.002123MPaS kB-:负风压作用下的玻璃的荷载标准值组合(MPa);S B-:负风压作用下的玻璃的荷载设计值组合(MPa);S kB-=G k+w kB-=0.001527MPaS B-=G-+w B-=1.0G k+1.4w kB-=0.002298MPa(3)最不利荷载选取:S kA:作用在构件上的最不利荷载标准值组合(MPa);S A:作用在构件上的最不利荷载设计值组合(MPa);按上面2项结果,选最不利因素(正风压情况下出现): S kA=0.002552MPaS A=0.003493MPaS kB:作用在玻璃上的最不利荷载标准值组合(MPa);S B:作用在玻璃上的最不利荷载设计值组合(MPa);按上面2项结果,选最不利因素(正风压情况下出现):S kB=0.002677MPaS B=0.003668MPa4雨篷杆件计算基本参数:1:计算点标高:4m;2:力学模型:悬臂梁;3:荷载作用:均布荷载(无拉杆作用);4:悬臂总长度:L=1500mm6:分格宽度:B=1250mm7:悬臂梁用200*200*8*10 T型钢,材质:Q235;8:埋板用300*250*12mm厚钢板本处杆件按悬臂梁力学模型进行设计计算,受力模型如下:4.1结构的受力分析:(1)荷载集度计算:q k:组合荷载作用下的线荷载集度标准值(按矩形分布)(N/mm);q:组合荷载作用下的线荷载集度设计值(按矩形分布)(N/mm);S k:组合荷载标准值(MPa);S:组合荷载设计值(MPa);B:分格宽度(mm);q k=S k B=0.002552×1500=3.828N/mmq=SB=0.003493×1500=5.24N/mm(2)拉杆轴力计算:由于拉杆在雨篷外力作用下在铰接点产生的位移量在垂直方向上的矢量代数和等于拉杆在轴力作用下产生的位移量在垂直方向上的矢量即:P:拉杆作用力在垂直方向上的分力(N);qL4(3-4a/L+(a/L)4)/24EI-Pb3/3EI=PL拉杆/EAE:材料的弹性模量,为206000MPa;4.2选用材料的截面特性:(1)悬臂的截面特性:材料的抗弯强度设计值:f=215MPa;材料弹性模量:E=206000MPa;主力方向惯性矩:I=15260000mm4;主力方向截面抵抗矩:W=181000mm3;塑性发展系数:γ=1.05;材料弹性模量:E=206000MPa;4.3梁的抗弯强度计算:抗弯强度应满足:N L/A+M max/γW≤f上式中:N L:梁受到的轴力(N);A:梁的截面面积(mm3);M max:悬臂梁的最大弯矩设计值(N·mm);W:在弯矩作用方向的净截面抵抗矩(mm3);γ:塑性发展系数,取1.05;f:材料的抗弯强度设计值,取215MPa;则:N L=Pctgα=13551.688NN L/A+M max/γW=13551.688/2867+4031812.5/1.05/181000=25.941MPa≤215MPa悬臂梁抗弯强度满足要求。