楼层板施工方案
- 格式:docx
- 大小:11.40 KB
- 文档页数:5
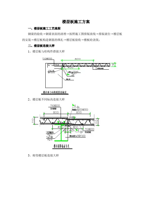
楼层板施工方案一、楼层板施工工艺流程钢梁的验收→钢梁表面的清理→按照施工图排版放线→排版就位→楼层板的安装→楼层板构造钢筋的绑扎→楼层板验收→楼板砼浇筑;二、楼层板连接大样1、楼层板与砼构件搭接大样2、楼层板不同标高连接大样3、相邻楼层板连接大样三、楼承板铺设当H型钢梁安装完成,并经检验合格后,开始铺设楼承板。
为保证质量,在铺设前,先在H型钢梁上弹出基准线,按基准线进行铺设。
铺设后及时点焊牢固,楼承板面应紧贴梁、柱面。
混凝土结合型楼承板必须在板上加加劲肋,楼承板必须在两端支座及中间支座处或平面的边缘处用间距300mm,直径19mm的熔焊固定在H型钢梁上。
在楼承板的平面端头处,柱周边以及所有需要封闭的外周边处,布置和安装泛水和封头板。
封头板必须与电梯、楼梯、自动扶梯和其他建筑节点做法一致。
四、楼承板安装注意事项①、楼承板在打包时必须有固定的支架并且有足够多的支点,防止在吊运、运输及堆放的工程中变形,严禁用钢丝绳捆绑在楼承板上直接进行起吊,吊点要在固定支架上。
放置在楼层内时,应放置在主梁与次梁的交界处。
②、在楼承板铺设的时候,应注意不要一下将所有的楼承板拆包,要边拆包、边铺设、边固定。
每天拆开的楼承板必须铺设并固定完毕,没有铺设完毕的楼承板要用铁丝等进行临时固定,避免大风或其它原因造成楼承板飞落伤人。
③、楼承板铺设不得出现探头板。
④、不要将重物直接放置在楼承板上,避免集中荷载,若要放置一定要将受力点支撑在H型钢梁上。
在主要的行走通道,要铺设跳板,避免直接在楼承板上行走。
⑤、浇灌混凝土时,为避免混凝土堆积过高,以及倾倒混凝土所造成的冲击,应从H型钢梁处开始浇灌混凝土,避免从楼承板的搭接中段开始浇灌。
3、栓钉安装方法①、本工程使用专用栓钉熔焊机进行焊接施工,该设备需要设置专用配电箱及专用线路(从变压器引入)。
②、安装前先放线,定出栓钉的准确位置,并对该点进行除锈、除漆、除油污处理,以露出金属光泽为准,并使施焊点局部平整。
一、工程概况本工程为某住宅小区,共20栋楼,其中多层、高层住宅17栋,幼儿园1栋,社区医疗1栋,物管用房、居委会及附属-1F地下车库各1栋。
总建筑面积为115476.31平方米,地上建筑面积为85769.07平方米,地下建筑面积为29707.2平方米。
楼层板采用预制装配式混凝土叠合板。
二、施工准备1. 人员准备:组织专业施工队伍,进行技术培训和安全教育。
2. 材料准备:采购符合国家标准的预制叠合板,钢筋、水泥、砂、石等原材料。
3. 机械准备:配置吊车、卷扬机、切割机、水平仪、钢卷尺等施工机械。
4. 施工场地准备:清理施工场地,搭建临时设施,确保施工顺利进行。
三、施工工艺1. 施工流程:材料验收→叠合板安装准备→支撑体系安装→叠合板吊装→就位和校正→机电线盒、管线安装→钢筋绑扎→混凝土浇筑→养护→验收。
2. 叠合板安装准备:根据施工图纸,检查叠合板构件类型,确定安装位置,并对叠合板吊装顺序进行编号;根据施工图纸,弹出叠合板的水平及标高控制线,同时对控制线进行复核。
3. 支撑体系安装:在预制实心墙安装完成后开始搭设楼板支撑体系。
楼板支撑体系工字梁设置方向应垂直于叠合楼板内格构梁的方向,起始支撑设置根据叠合板与边支座的搭设长度来决定。
当叠合板边与边支座的搭接长度大于或等于40mm时,楼板边支座附近1.5m内无需设置支撑;当叠合板与边支座的搭接长度小于35mm时,需在楼板边支座附近200~500mm范围内设置一道支撑体系。
4. 叠合板吊装、就位和校正:采用模数化吊装梁吊装,要求吊装时四个吊点均匀受力,吊点位置为格构梁上弦与腹筋交接处,距离板端为整个板长的1/4~1/5之间,起吊缓慢保证安全。
5. 机电线盒、管线安装:在叠合板就位后,进行机电线盒、管线安装,确保线路布置合理、美观。
6. 钢筋绑扎:按照设计要求进行钢筋绑扎,确保钢筋间距、保护层厚度等符合规范要求。
7. 混凝土浇筑:在叠合板、钢筋绑扎完成后,进行混凝土浇筑。
楼层板施工方案
楼层板施工方案
1.项目概述
本施工方案为某楼层的板施工方案,包括工程描述、安全措施、施工流程、质量控制等内容。
2.工程描述
本楼层板施工项目位于某大型商业楼,总建筑面积20000平方米。
楼层板面积约10000平方米,采用混凝土楼板。
3.安全措施
为确保工作人员的安全,需遵循以下安全措施:
- 所有施工人员必须配备个人防护装备,如安全帽、手套、安
全鞋等;
- 搭设安全警示标志,提醒他人注意施工区域;
- 施工前应对现场进行安全检查,确保施工区域安全;
- 坚决执行工程质量、安全操作规程。
4.施工流程
本施工方案主要分为以下步骤:
- 准备工作:清理施工区域,确保施工区域平整;
- 铺设筏板:按设计要求,铺设预制混凝土筏板;
- 浇筑混凝土:根据设计方案,进行混凝土浇筑;
- 抗裂处理:对浇筑完成的混凝土进行抗裂处理;
- 等待固化:让混凝土在适当的温度和湿度下固化;
- 铺设地坪:将铺设完成的混凝土楼板进行后续处理,如打磨、
抛光等。
5.质量控制
为保证工程质量,需采取如下措施:
- 精确的工程技术测量,确保楼板尺寸和平整度符合设计要求;- 对所有施工材料进行质量检验,确保符合相关标准;
- 施工过程中严格按照施工方案的要求进行操作;
- 定期检查施工现场,及时发现并纠正质量问题。
6.总结
本施工方案从工程描述、安全措施、施工流程、质量控制等方面全面介绍了楼层板施工的方案。
通过合理的组织和管理,使得施工过程安全、高效,并确保了工程质量的达标。
某高层住宅楼工程模板施工方案1. 引言本文档旨在提供某高层住宅楼工程模板的施工方案,包括项目概述、施工步骤、安全措施和质量保证等内容。
本方案将确保工程施工按照设计要求和相关标准进行,以确保施工的安全和质量。
2. 项目概述该高层住宅楼工程模板位于某城市的新开发区,总建筑面积约为XX 平米。
项目由地基与桩基工程、主体结构工程和装饰装修工程组成。
本方案主要针对主体结构工程的施工,包括地面工程、框架结构和楼板施工等内容。
3. 施工步骤3.1 地基与桩基工程1.进行场地勘测和土壤测试,确定地基处理方式和桩基布置方案。
2.进行地基处理,包括土方开挖、填筑和压实。
3.进行桩基施工,包括桩基的钻孔、灌注和检测。
3.2 主体结构工程1.进行地面工程施工,包括基坑开挖和地下管线的敷设。
2.进行框架结构施工,包括砌体墙体、柱子和梁的建造。
3.进行楼板施工,包括钢筋工程和混凝土浇筑。
4.进行外墙和屋面的施工,包括外墙砌筑和屋面防水。
5.进行室内隔墙和楼梯的施工。
6.进行钢结构和玻璃幕墙的安装。
7.进行屋面设备和消防设备的安装。
3.3 装饰装修工程1.进行墙面和地面的铺装。
2.进行室内门窗和洁具的安装。
3.进行室内装饰,包括吊顶、墙纸和照明等。
4.进行外部景观和绿化的施工。
4. 安全措施在施工过程中,应严格按照相关安全法规和标准进行操作,确保施工人员的安全。
以下是施工过程中需要注意的安全措施:•提供安全防护设施,包括安全帽、安全绳和安全网等。
•指定专人负责安全管理和监督。
•建立施工现场巡视制度,及时发现并处理安全隐患。
•定期进行安全培训和演练,增强施工人员的安全意识。
5. 质量保证为确保工程质量,施工方案应包含质量保证的相关措施:•在施工前进行施工方案的审查和批准。
•设立专门的质量控制部门,负责施工过程中的质量管理。
•严格遵守相关工程建设标准和规范。
•定期进行施工质量检查和评估,及时发现和处理质量问题。
•提供完整的施工记录和验收报告,确保施工质量的可追溯性。
楼面工程施工专项方案一、工程概况本工程位于xx市xx区xx路xx号,总建筑面积约xxxx平方米,是一座xx层的xx建筑。
楼面工程包括地面层及以上的楼板和楼梯,主要施工内容包括混凝土浇筑、钢筋加工、楼板防水、楼梯安装等。
二、施工前准备1. 施工前应做好场地平整及清理,保证施工区域无障碍物。
2. 精心制定楼面工程施工计划,明确施工的主要内容和时间节点。
3. 配备齐全的施工设备和工具,包括混凝土搅拌机、塔吊、脚手架、打磨机等。
4. 检查施工现场的安全设施,确保安全防护措施完备。
5. 成立施工监理小组,以确保工程按照规范进行。
三、主要工作内容1. 混凝土浇筑(1)按照设计要求,设置混凝土浇筑的模板及支架。
(2)在模板内设置并绑扎钢筋。
(3)准备好混凝土,并进行浇筑和振捣。
(4)浇筑完成后,及时进行养护。
2. 钢筋加工(1)根据设计要求进行钢筋的切割和加工。
(2)将钢筋按照构造图纸进行捆扎和安装。
(3)在钢筋安装完毕后,进行验收和记录。
3. 楼板防水(1)清理楼板上的杂物和灰尘,确保表面干净。
(2)对楼板进行防水材料的刷涂。
(3)对接缝处进行密封处理,确保楼板防水效果。
4. 楼梯安装(1)根据设计要求,设置楼梯及扶手的支撑和固定。
(2)进行楼梯的安装、砂浆填充及拼接。
(3)进行楼梯的竖直度和水平度检查,确保安装质量。
四、安全措施1. 所有施工人员必须佩戴安全帽,工作服及防尘口罩等防护用品。
2. 在施工现场设置警示标语及警戒线,禁止非施工人员进入施工区域。
3. 对搅拌机、塔吊等大型设备进行定期检查及维护,确保设备安全可靠。
4. 制定应急预案,以应对突发事件,确保施工安全。
五、质量控制1. 混凝土的配比和浇筑质量必须符合设计要求,检测合格后方可进行施工。
2. 钢筋加工要严格按照构造图纸要求进行,确保安装位置准确。
3. 对防水工程主要部位进行抽检,确保防水效果。
4. 对楼梯安装进行验收,检查其竖直度、水平度及稳固性。
本工程为普通楼板安装工程,楼板采用钢筋混凝土结构,主要应用于住宅、商业、办公楼等建筑物的地面、楼层等部位。
楼板厚度为120mm,采用C30混凝土,配筋符合设计要求。
本方案主要包括施工准备、施工工艺、质量控制、安全措施等内容。
二、施工准备1. 材料准备:楼板钢筋、混凝土、模板、水泥、砂、石子、钢筋加工机械、混凝土搅拌机、运输车辆等。
2. 机械设备准备:塔吊、施工电梯、钢筋弯曲机、切割机、焊接机、水平仪、垂直仪、线锤等。
3. 人员准备:施工技术人员、施工班组、质检员、安全员等。
4. 施工现场准备:施工场地平整、排水畅通,施工材料堆放整齐,施工设备布置合理。
三、施工工艺1. 楼板钢筋施工(1)钢筋加工:根据设计要求,对钢筋进行下料、弯曲、焊接等加工。
(2)钢筋绑扎:按照设计要求,将加工好的钢筋绑扎成骨架。
(3)钢筋保护层:钢筋绑扎完成后,按照设计要求设置钢筋保护层。
2. 混凝土浇筑(1)模板安装:按照设计要求,将模板安装到位,确保模板的稳固性。
(2)混凝土搅拌:根据混凝土配合比,进行混凝土搅拌。
(3)混凝土浇筑:按照浇筑顺序,将混凝土均匀浇筑到模板内。
(4)混凝土振捣:采用振捣棒进行混凝土振捣,确保混凝土密实。
3. 模板拆除混凝土强度达到设计要求后,方可拆除模板。
拆除模板时,注意保护楼板表面,防止损坏。
四、质量控制1. 楼板钢筋:钢筋加工尺寸、形状、焊接质量等符合设计要求。
2. 混凝土:混凝土强度、坍落度、和易性等符合设计要求。
3. 模板:模板安装稳固,无变形、裂缝等缺陷。
4. 拆除模板:拆除模板后,楼板表面平整,无损坏。
五、安全措施1. 施工现场设置安全警示标志,确保施工安全。
2. 施工人员佩戴安全帽、安全带等防护用品。
3. 机械设备操作人员持证上岗,确保操作安全。
4. 施工过程中,加强安全巡查,及时发现并消除安全隐患。
六、施工进度安排根据工程实际情况,制定合理的施工进度计划,确保工程按时完成。
七、总结本方案针对普通楼板安装工程,详细阐述了施工准备、施工工艺、质量控制、安全措施等内容。
综合楼高模板专项施工方案一、前期准备在进行综合楼高模板专项施工前,需要进行充分的前期准备工作。
首先要对建筑设计图纸进行详细的审查,确认施工计划和施工工艺,制定详细的施工方案。
其次,要进行场地勘察,确保施工过程中的安全和顺利进行。
同时,要准备好所需的材料、设备和施工人员,保证施工进度。
二、基础工程在进行综合楼高模板专项施工中,基础工程是至关重要的一环。
首先进行地基处理,包括挖土、填土和压实等工作,确保地基承载力达到要求。
然后进行基础的浇筑,采用适当的混凝土配合比和防水措施,以确保基础结构的稳固和耐久。
三、模板搭设综合楼高模板专项施工中,模板的搭设是非常重要的环节。
首先要选择适当的模板材料,确保其质量和可靠性。
然后根据设计图纸进行模板的精确搭建,保证建筑结构的准确性和完整性。
同时,要加强模板的支撑和连接,确保施工过程中的安全和稳定。
四、主体结构施工主体结构施工是综合楼高模板专项施工的核心环节。
在进行主体结构的浇筑之前,要对模板和支撑进行细致的检查和调整,确保施工过程中的准确性和稳定性。
然后按照设计要求进行混凝土的浇筑和养护,保证主体结构的强度和耐久性。
五、收尾工程综合楼高模板专项施工的最后阶段是收尾工程。
在主体结构完成后,要进行墙体、地面和屋面的装修和收尾工作,使建筑物达到设计要求的外观和功能。
同时要进行设备的安装和调试,确保建筑物的正常使用和运营。
结语综合楼高模板专项施工是一项复杂而重要的工程,需要综合考虑设计、施工、安全和质量等各个方面的因素。
只有科学规划和精心准备,才能确保施工过程的顺利进行和建筑物的安全耐久。
希望通过本文的介绍,能够对综合楼高模板专项施工有更深入的了解和认识。
加一层楼板的施工方案1. 简介本文档旨在介绍一种加一层楼板的施工方案。
在进行楼层扩建或改造时,需要先进行楼板的施工。
本方案可作为参考,详细介绍了施工流程、所需材料、施工工具以及注意事项等。
2. 施工流程以下是加一层楼板的施工流程:1.准备工作:–清理现有楼面:将原楼板表面清除干净,确保平整。
–强度检测:对现有楼板进行强度检测,确保承重能力满足要求。
2.定位和标线:–根据设计图纸,确定新楼层的位置和尺寸。
–在墙面上进行标线,以指导后续施工工作。
3.搭设模板:–根据标线在墙体上安装水平支撑板。
–搭设模板:根据设计要求,在水平支撑板上安装并调整横、竖向的模板。
4.铺设钢筋:–根据设计要求,在模板上铺设钢筋网,确保足够的承重能力。
5.浇筑混凝土:–准备混凝土:按照设计要求制作好的混凝土。
–使用泵或者手推车等工具将混凝土运输到施工现场。
–将混凝土均匀地倒在模板内,并使用振动器进行震实。
6.养护:–在混凝土浇筑完成后,进行养护工作:•第一天:使用水进行湿润保护。
•三天后:覆盖塑料薄膜,防止水分挥发太快。
•七天后:开始逐渐移除塑料薄膜,让混凝土自然干燥。
3. 所需材料在进行加一层楼板的施工时,需要准备以下材料:•混凝土:根据设计要求购买足够的混凝土。
•钢筋网:根据设计要求购买合适尺寸的钢筋网。
•模板材料:可选用胶合板、钢模板等。
•水泥、沙子、石子等施工材料。
•养护材料:水、塑料薄膜等。
4. 施工工具在进行加一层楼板的施工时,需要使用以下工具:•振动器:用于将混凝土震实,排除气泡。
•水平仪、测量工具:用于定位、标线和调整模板。
•铲子、扫帚等清理工具。
•钢筋剪切机:用于剪切和调整钢筋尺寸。
•混凝土泵或手推车:用于运输混凝土。
5. 注意事项在进行加一层楼板的施工时,需要注意以下事项:•施工前务必对现有楼板进行强度检测,确保能够承受新楼层的重量。
•施工过程中要保持施工现场的整洁。
•施工前要对施工材料进行检查,确保质量符合要求。
钢结构楼板安装施工方案
1. 施工准备
- 确认楼板设计图纸,包括楼板布置、尺寸、梁柱位置等信息。
- 检查是否有必要的许可和审批文件,确保施工合规。
- 准备所需工具和设备,例如吊车、脚手架、焊接设备等。
2. 材料采购和准备
- 根据设计要求,采购符合标准的钢板、焊条、螺栓等构件材料,确保质量可靠。
- 对所采购的材料进行检查和验收,确保符合要求。
3. 施工过程
3.1 清理和标记
- 清理工作区域,清除障碍物和杂物。
- 根据设计图纸标记梁柱位置和楼板安装位置。
3.2 梁柱的安装
- 根据设计图纸和要求,使用吊车或起重设备将梁柱安装到指
定位置。
- 使用螺栓将梁柱与地面固定,确保稳固性。
3.3 楼板的安装
- 按照设计要求,将钢板逐个安装在梁柱上。
- 使用焊接设备对钢板与梁柱进行焊接,确保牢固度。
- 逐层安装楼板,确保楼层之间的连接性。
3.4 修整和检查
- 对安装完成的楼板进行修整,确保平整度。
- 检查焊接部位是否牢固,没有裂缝或断裂。
- 检查楼板与梁柱之间的连接是否牢固。
4. 施工安全
- 遵守安全操作规程,确保施工过程中没有发生人员伤害事故。
- 保证工人佩戴必要的个人防护设备,如安全帽、安全鞋等。
- 定期检查和维护所使用的设备和工具,确保安全可靠。
以上是钢结构楼板的安装施工方案,仅供参考。
在实施过程中,请根据具体情况进行调整和完善。
楼板工程方案一、工程概述楼板是建筑结构中承载楼层荷载的重要构件,承担着人们生活、工作的重要区域。
因此,楼板工程的设计和施工质量至关重要。
本方案旨在对楼板工程进行规范化、科学化的设计和施工,确保楼板的安全性、耐久性和美观性。
二、设计方案1. 材料选择楼板一般采用钢筋混凝土结构,在材料选择上,应根据楼层荷载和使用要求选择合适的混凝土和钢筋,并确保材料的质量符合建筑设计规范要求。
2. 结构设计根据建筑结构设计要求,对楼板结构进行合理分析和计算,确定楼板厚度、受力钢筋等主要参数,确保楼板结构的承载能力和稳定性。
3. 防水设计为确保楼板的防水性能,应在设计中考虑防水材料的选择和施工工艺,对楼板表面进行防水处理,确保楼板在使用过程中不受潮。
4. 隔热设计针对部分楼层可能面临的阳光直射和高温,应在设计中考虑采用隔热材料或隔热层,确保楼板不受高温和热辐射的影响。
5. 声学设计为减少楼板的传声效应,应在设计中考虑采用吸声材料或隔音层,提升楼板的声学性能,确保楼板在使用过程中不会产生过多的噪音。
6. 美观设计在设计中应考虑楼板的美观性,选择合适的装饰材料和工艺,确保楼板的外观整洁、美观。
三、施工方案1. 施工准备施工前需根据设计图纸和施工要求准备好所需材料和设备,包括混凝土、钢筋、模板、施工机械等。
2. 模板安装根据设计要求,进行模板的安装,并严格按照规范要求进行支撑和固定,确保模板的稳定和垂直度。
3. 钢筋绑扎钢筋绑扎应按照设计要求进行,确保钢筋的数量、位置、连接符合规范要求,提升楼板的承载能力。
4. 混凝土浇筑在混凝土浇筑过程中,应注意浇筑均匀、顺畅,避免混凝土的裂缝和空鼓,确保楼板的整体性和耐久性。
5. 抹平和收光混凝土初凝后进行抹平和收光,确保楼板表面的平整和光滑,提升楼板的美观性和耐用性。
6. 防水和隔热在施工过程中,对楼板进行防水和隔热处理,确保楼板具有优良的防水和隔热性能。
7. 验收和保养在施工结束后,对楼板进行验收,检查楼板的质量和安全性。
楼板工程施工方案范本一、工程概况1.1 工程名称:某某楼板工程1.2 工程地点:某某地点1.3 工程范围:楼板施工范围1.4 施工性质:新建/改建/维修1.5 施工单位:某某建筑施工有限公司1.6 施工时间:起止时间1.7 工程负责人:某某1.8 施工联系方式:联系电话二、施工前准备2.1 工程测量:按设计图纸进行现场测量,确定楼板长度、宽度、高度及现场环境等。
2.2 施工材料准备:根据设计要求,准备所需的水泥、沙子、碎石、钢筋等材料,并进行质量检验。
2.3 机械设备准备:准备搅拌机、升降机、模板等施工所需的机械设备,并进行设备检查和保养。
2.4 安全防护措施:确定施工现场的安全防护措施,包括设置安全带、安全网、警示标识等。
2.5 组织人员安排:确定施工现场所需的施工人员,包括负责人、技术人员、施工工人等,并进行安全培训。
2.6 环境保护措施:进行环境保护验收,保证施工过程中对周边环境的影响尽量减小,符合环保要求。
2.7 施工图纸确认:确认施工图纸和设计要求,确保施工过程中按照设计要求进行施工。
2.8 施工方案制定:根据设计要求和工程实际情况,制定详细的施工方案,包括施工步骤、工序安排、材料配比等。
三、施工步骤3.1 模板安装:根据设计要求,安装楼板的模板,确保模板的平整和稳固。
3.2 钢筋加工:根据设计要求,对楼板的钢筋进行加工、焊接和安装,确保钢筋的数量和位置符合设计要求。
3.3 混凝土浇筑:进行混凝土的配比和搅拌,然后进行混凝土的浇筑,确保混凝土的质量和均匀性。
3.4 养护管理:对新浇筑的混凝土进行养护管理,保证混凝土的强度和稳定性。
3.5 模板拆除:待混凝土达到设计要求的强度后,拆除模板,并对楼板进行表面处理,确保楼板的平整和美观。
3.6 安全监管:对施工现场进行安全监管,确保施工过程中的安全性和质量。
四、施工注意事项4.1 施工中要严格按照设计图纸和设计要求进行施工,不得私自改动。
4.2 施工人员要严格遵守施工安全规定,佩戴好安全帽、安全带等防护装备。
加装现浇楼板施工方案1. 引言本文档旨在提供加装现浇楼板的施工方案,以确保施工过程顺利进行并达到预期效果。
加装现浇楼板是指在已有楼层之上进行新的楼板施工,该方案将详细介绍施工准备工作、施工步骤、质量控制措施等内容。
2. 施工准备在进行加装现浇楼板施工之前,需要进行以下准备工作:2.1 施工方案设计根据现有楼层结构和设计要求,制定加装现浇楼板的施工方案。
包括楼板材料选择、支撑方案、楼板厚度等。
2.2 建设施工组织设计制定施工组织设计,明确施工队伍的职责和任务分工,确保施工工作有条不紊进行。
2.3 施工材料准备准备合格的混凝土、钢筋及其他施工所需的材料。
确保所有材料符合相关标准和规范要求。
2.4 施工机械设备准备准备施工所需的机械设备,包括升降机、搅拌机等。
确保设备的正常运行和安全性。
2.5 安全措施制定并落实安全措施,如安全警示标识、安全守则、安全教育等。
确保施工过程中的安全。
3. 施工步骤3.1 设计标高确定根据现有楼层结构和设计要求,确定加装现浇楼板的设计标高。
标出楼板混凝土的浇筑高度。
3.2 支撑搭设按照施工方案,对现有楼层进行支撑搭设。
确保支撑结构稳固可靠,能够承受混凝土的重量。
3.3 钢筋加工与安装根据设计要求,进行钢筋的加工和安装。
确保钢筋的数量、位置和间距符合设计要求。
3.4 模板安装根据施工方案,安装楼板的模板。
确保模板的固定牢固,不会因浇筑混凝土时移动或变形。
3.5 砼浇筑将预先准备好的混凝土通过搅拌机送至现场,并进行砼浇筑施工。
注意浇筑的连续性和均匀性,避免出现空隙和缺陷。
3.6 砼养护对浇筑完成的楼板进行养护。
包括铺设湿布、喷水养护等措施,确保混凝土的强度和稳定性。
3.7 支撑拆除在混凝土达到规定强度后,进行支撑拆除工作。
确保拆除过程中不会对楼板结构造成破坏。
4. 质量控制在加装现浇楼板施工过程中,需要进行严格的质量控制,以确保施工质量达到标准要求。
质量控制措施包括:•施工现场的巡查和监督,及时发现和纠正施工过程中的问题。
模板施工方案(29#楼)
1. 项目背景
位于城市中心的29#楼是一座高档住宅楼,由于楼内的装修退出问题,需要进行模板施工。
2. 施工准备
在进行模板施工前,需要做好以下准备工作: - 确保施工人员具备相关证书和经验; - 准备好所需的模板材料,包括胶合板、钢筋、螺栓等; - 检查施工现场,确保安全措施到位。
3. 模板施工流程
3.1 模板测量
在进行模板施工前,首先需要对楼内的各个位置进行测量,确定模板的尺寸和形状。
3.2 模板制作
根据测量结果,制作相应尺寸和形状的模板,确保其与楼内的结构相匹配。
3.3 模板安装
将制作好的模板安装在相应的位置,使用螺栓等工具将其牢固固定,确保其稳定性和安全性。
4. 施工注意事项
在进行模板施工时,需要注意以下事项: - 严格按照设计图纸和施工方案进行操作,确保施工质量; - 注意施工现场的安全,做好防护措施,防止意外发生; - 加强与其他施工工程的协调,确保施工进度和质量。
5. 施工验收
在模板施工完成后,需要进行验收工作,确保施工质量符合要求,没有缺陷和安全隐患。
结语
通过本文对29#楼模板施工方案的介绍,希望能够帮助相关人员顺利完成工作,确保施工质量和安全。
如有疑问或需要进一步了解,请与相关负责人联系。
以上为模板施工方案(29#楼)内容,欢迎检阅。
本工程为某住宅楼楼承板安装工程,楼承板采用压型钢板,规格为0.8mm厚,型号为YX-50-1025W。
施工范围为住宅楼所有楼层楼承板安装,总面积约2000平方米。
二、施工准备1. 施工人员:施工人员应具备相关专业技能,熟悉楼承板安装工艺,并经过岗前培训。
2. 施工材料:楼承板、栓钉、焊条、焊机、切割机、卷尺、墨斗、线坠等。
3. 施工工具:手锤、长钢尺、短钢尺、焊把钳、割枪、氧气表、乙炔表、氧气瓶、乙炔瓶等。
4. 施工图纸:楼承板布置图、楼承板安装节点图、楼承板施工图等。
三、施工工艺流程1. 施工准备:检查楼承板质量,确保无破损、变形等缺陷;检查施工材料、工具设备是否齐全。
2. 放样:根据楼承板布置图,在楼承板两端端部弹设基准线,距离钢梁翼缘边至少50mm处。
3. 铺设:楼承板的铺设应由下往上逐层施工。
确认钢结构已完成校正、焊接、检测后方可施工。
铺设时以楼承板母肋为基准起始边,依次铺设。
4. 固定:采用栓钉与钢梁焊接固定,栓钉规格为M16*100。
5. 封边、堵漏:在楼承板边缘安装封头板,封边、堵漏。
6. 检验:对楼承板安装质量进行检查,确保安装牢固、平整、无破损。
四、施工注意事项1. 施工前,应熟悉施工图纸,了解设计意图及参照的施工规范和技术标准。
2. 施工过程中,注意楼承板安装顺序,确保安装牢固、平整。
3. 施工过程中,注意安全防护,避免安全事故发生。
4. 施工过程中,注意环保,减少噪音、粉尘等污染。
五、质量保证措施1. 施工前,对施工人员进行技术交底,确保施工人员掌握施工工艺和质量要求。
2. 施工过程中,严格执行施工规范和质量标准,加强现场监督检查。
3. 施工完成后,进行自检、互检、专检,确保楼承板安装质量达到设计要求。
4. 施工过程中,做好施工记录,为工程验收提供依据。
六、安全生产及文明施工措施1. 施工过程中,严格执行安全生产制度,加强现场安全管理。
2. 施工过程中,注意文明施工,保持施工现场整洁。
钢结构楼层板施工方案一、方案概述本施工方案旨在介绍钢结构楼层板的施工方法和流程,确保楼层板的安全、高效建设。
方案涵盖了前期准备、材料选用、施工步骤等方面的内容。
二、前期准备1. 确定施工设计方案:根据楼层的载荷要求和结构设计要求,确定楼层板的尺寸、数量以及间距等参数。
2. 准备施工材料和设备:包括钢结构楼层板、焊接机、起重机和施工工具等。
3. 施工现场准备:清理现场,确保施工区域的平整和无障碍物。
三、材料选用1. 钢结构楼层板:选择具有足够强度和刚度的钢结构楼层板,符合设计要求并通过质量检验。
2. 焊接材料:选用符合标准的焊接材料,确保焊接接头的牢固性和可靠性。
四、施工步骤1. 钢结构楼层板安装a) 按照设计要求将楼层板部件运送至施工现场,并进行临时堆放。
b) 按照设计方案和施工图纸,使用起重机将楼层板部件安装到指定位置。
c) 确保楼层板的水平度和垂直度符合要求,并通过临时支撑固定在位。
2. 焊接连接a) 对楼层板的搭接部分进行清理,确保焊接接头附着表面的洁净。
b) 进行预热处理,提高焊接接头的质量和可靠性。
c) 使用焊接机对楼层板的搭接部分进行焊接,确保焊接的牢固性和密实性。
d) 对焊接接头进行质量检验,合格后进行下一步施工。
3. 钢筋混凝土浇筑a) 在楼层板上进行钢筋布置,确保钢筋的位置准确、数量充足。
b) 搭建钢模板,固定在楼层板上,确保模板的牢固和平整。
c) 进行混凝土的搅拌和浇筑,注意控制浇筑过程中的压力和速度。
d) 在混凝土浇筑完毕后,进行养护和检查,确保混凝土的质量和强度。
五、安全措施1. 工人必须穿戴符合标准的安全防护用具,如安全帽、安全鞋等。
2. 施工现场必须设置明显的警示标识,避免他人误入施工区域。
3. 严格按照操作规程进行作业,确保施工过程中的安全。
4. 定期进行安全检查,及时排除施工现场的安全隐患。
六、质量控制1. 施工过程中进行材料的质量检验,确保材料符合相关标准和设计要求。
楼层施工方案简介在建筑施工中,楼层施工是一个非常重要的环节。
一个高质量的楼层施工方案能够确保施工进度、施工质量以及安全性。
本文将介绍一些常用的楼层施工方案,以及相关注意事项。
楼层施工方案1. 平面铺设法平面铺设法是最常见的楼层施工方案之一。
它适用于地面平整的场地,并且具有施工速度快、施工质量高、成本低等优点。
平面铺设法的施工步骤如下:1.准备材料:包括水泥、沙子、砖块等建筑材料;2.搭建模板:将模板搭建在地面上,确保平整、牢固;3.浇筑地面:将水泥混凝土浇筑在模板内,用抹光器抹平;4.整平地面:用平整板把地面整平;5.铺设砖块:等地面干燥后,使用砖块铺设地面;6.填缝:用水泥填缝。
2. 二层搭建法二层搭建法适用于需要楼间距大、楼层高、地形复杂等情况。
它具有建筑高度可控、结构稳定等优点。
二层搭建法的施工步骤如下:1.准备材料:包括钢筋、水泥、砖块等建筑材料;2.砌墙:先砌墙,按照设计要求强度和结构比例施工;3.安装钢筋:在墙体上安装钢筋构件;4.浇筑地面:将水泥混凝土浇筑在钢筋构件上,用抹光器抹平;5.整平地面:用平整板把地面整平;6.铺设砖块:等地面干燥后,使用砖块铺设地面;7.填缝:用水泥填缝。
3. 钢筋混凝土浇筑法钢筋混凝土浇筑法适用于建筑高层和需要承重的场合。
它具有建筑高度可控、结构稳定、承载能力强等优点。
钢筋混凝土浇筑法的施工步骤如下:1.准备材料:包括钢筋、水泥、砖块等建筑材料;2.砌墙:先砌墙,按照设计要求强度和结构比例施工;3.安装钢筋:在墙体上安装钢筋构件;4.浇筑混凝土:将水泥混凝土浇筑在钢筋构件上,按要求浇筑次数和质量;5.整平地面:用平整板把地面整平;6.铺设砖块:等地面干燥后,使用砖块铺设地面;7.填缝:用水泥填缝。
注意事项在楼层施工中,我们需要注意以下几点:1.合理规划施工时间,合理安排施工工作量;2.积极采用新技术、新材料,提高施工效率和质量;3.严格控制施工现场管理,确保施工安全;4.合理分配人员,明确职责,确保施工顺畅。
楼层板施工方案范文一、施工准备工作1.组织施工队伍:根据工程需要,组织一支熟练的施工队伍,包括工人、施工师傅等。
2.选购材料:根据设计要求和工程需要,选购合适的楼层板材料,如水泥、石膏板等。
3.准备工具设备:准备各种施工所需的工具设备,如切割机、钢筋机、搅拌机等。
4.清理施工场地:清理施工场地,确保施工区域干净整洁,便于施工进行。
二、楼层板施工步骤1.接收施工图纸:由项目经理接收施工图纸,并详细阅读施工图纸,了解设计要求和施工方案。
2.搭建施工脚手架:根据施工要求,搭建施工脚手架,并确保其结构稳定可靠。
3.铺设桁架:根据设计要求和实际情况,铺设桁架,并保证其水平度和平整度。
4.安装楼层板:根据施工图纸,将楼层板依次安装在桁架上,并确保其平整度和稳定性。
5.进行楼层板检查:在安装完成后,对楼层板进行检查,确保其安全可靠,没有明显的问题。
6.进行楼层板修补:如发现楼层板有缺陷或出现问题,及时进行修补,确保其质量符合要求。
7.进行楼层板密封处理:对安装完成的楼层板进行密封处理,增加其防水性能和使用寿命。
8.进行楼层板测试:在施工完成后,对楼层板进行测试,包括承载能力和声音传播等方面的检测。
9.清理施工现场:施工完成后,清理施工现场,包括清除杂物、整理设备、收集废弃物等。
三、施工注意事项1.施工期间,严格遵守安全生产规定,确保施工人员的人身安全。
2.在施工过程中,确保施工区域的通风良好,避免有害气体对施工人员的影响。
3.楼层板的施工应按照施工图纸和设计要求进行,确保施工质量和效果。
4.施工队伍应根据实际情况和工期要求,合理安排施工进度,确保按时完成施工任务。
5.施工过程中,及时与施工负责人和设计师沟通,解决问题和协调施工进展。
6.施工现场应保持整洁,施工材料应妥善存放,避免对施工质量和进度造成影响。
7.完成施工后,及时进行验收和交付工程,并确保施工质量符合要求。
楼承板施方案
1、施工工艺
1.1 、楼承板铺设工艺流程
1.2 、焊钉焊接工艺流程
2、施工方法
2.1 施工顺序
2.1.1 平面施工顺序
随主体钢结构安装施工顺序铺设楼承板。
2.2.2 立面施工顺序
为保证上层钢柱安装时人员操作安全,应逐层铺设楼承板。
2.2 施工方法
2.2.1 材料的吊运及堆放
(1)板材在加工厂配好料后,运入现场, 分别吊入每一施工节间。
为保证楼承板在吊运时不变形,应使用软吊索,每次使用之前要严格检查吊索是否有损坏,以确保安全。
(2)堆放楼承板处的地坪应基本平整,楼承板堆叠不宜过高,以每堆不超过50 张为宜。
(3)楼承板运至现场需妥善保护,不得有任何损害与污染,特别是油污(4)吊装前先核对楼承板捆号及吊装位置是否准确、包装是否稳固。
5)起吊前应先行试吊,以检查重心是否稳定、软吊索是否会滑动,待
安全无虑时方可起吊
(6)起吊时每捆应有两条钢索绳或专用吊带,分别捆于两端四分之一处。
以由下往上楼层顺序吊料为原则,避免因先行吊放上层材料后阻碍下一楼层之吊放作业。
2.2.2 楼承板的安装
(1)安装前按楼承板的平面位置图,在加工厂分区配套下料。
分批运入现场,排成要装顺序,吊至底空,放于主梁上。
分块铺设,由近至远用人工搭拢。
要保证接茬顺直、搭接吻合。
(2)当本层主梁焊接经质检探伤无误后,即可安装受弯杆件,分区配套吊入楼承板。
其顺序为:
焊支托角钢于柱上T吊入压型板到指定位置T 铺设楼承板T安装外围封板T安装楼梯间封板T安装楼承板堵头。
整个过程随铺随点焊。
(3)铺设楼承板前,要清理次梁梁顶污物,严防潮湿或有积水。
以保证下道工序(穿透焊)栓钉焊接的质量。
(4)放线安装前先在主梁上放线。
楼承板铺设后次梁被覆盖,给栓钉焊接造成困难,因此,我们采用吊
线坠的办法,以上层梁为基准确定下层梁的位置。
由于结构要求,使一部分位置的楼承板形状不规则,对此应在地面放出形状不规则区域所用的楼承板的形状,按照楼承板排板图中所标识的尺寸对楼承板进
行切割。
5)在铺设楼承板时,要按照施工图纸的起板线开始,随板安装位置移
动,确保铺设完毕后,压型板横平竖直。
(6)楼承板铺设时, 以母肋为起始边,自钢梁中心偏移距离开始铺设,详见施工图中标注, 未注明处请从钢梁中心处开始铺设。
铺设楼承板由一端至另一端,最后一块作为调节板若有差值用板间搭接宽度进行调整。
(7)楼承板与柱连接处,板端应按照设计图纸裁好边角,并补好收边等防止漏灰(8)凡在楼梯边缘,楼梯孔洞处在楼承板的外侧时,应设楼板封板,以便浇注混凝土,封板与楼承板同时施工。
(9)对于梁间距、跨度较大的部位,楼层较高的比如二层顶板, 由于层高较高, 为防止浇灌混凝土时板下挠,采用钢支撑进行支顶;
(10)在施工现场进行的楼承板开孔或裁切,采用的工具有:用乙炔及氧气的气体切割,需经业主(或甲方)、监理同意后方可使用或者采用等离子切割机切割。
切割面力求平整。
2.2.3 楼承板的焊接及栓钉连接
(1)楼承板焊接采用手工电弧焊,焊条为:E4313或E4322,直径在3.2mm
以下,根据设计图纸要求,严格控制楼承板端头支撑点点焊的间距,楼承板板与板连接点焊间距、楼承板与主梁点焊间距、封板与主梁点焊间距:
楼承板公母肋扣合处应以夹钳夹紧(或焊接方式固定),间距不大于
305mm;
(2)探头板要求伸入板端,与压型板点焊。
要求放正顶死,防止浇注砼
时漏浆。
五、质量要求
1、楼承板的制作
1.1压型金属板成型后,其基板不应有裂纹;成型后表面应干净,不应有
明显的凹凸和皱褶。
注丄为测量长度,指板长扣除两端各0.5mm后的实际长度(小于10mm)或扣除后任选的10mm长度.
2、楼承板的安装
2.1组合楼板中压型钢板与主体结构的锚固支撑长度应符合设计要求,且
不应小于50mm
2.2压型金属板与主体构件在支撑长度内接触紧密,压型钢板应固定可靠、
无松动,连接件数量、间距符合设计要求和国家先行有关标准规定。
3、对所有不满足强度及变形要求的跨度和荷载条件的楼承板需增加支撑。
4、剪力栓钉的要求4.1除特别注明外最小栓钉直径为13mm最小栓钉长度(包括扩大头)应为130mm。
4.2 首先对采用的栓钉和钢材焊接应进行焊接工艺评定, 其结果应符合设计要求
和国家先行有关标准的规定, 瓷环应按照产品说明书进行烘焙.
4.3 剪力栓钉试验
焊钉焊接后应进行弯曲试验检查,每批同类构件抽查10%, 且不应少于10 件;被抽查构件中,每件检查焊钉数量的1%,但不应少于1 个,检验方法为: 焊钉弯曲30 度后用角尺检查和观察检查。
六、施工进度安排
1、压型钢板施工要求随着钢结构的安装进度插入施工。
2、第一次压型钢板插入施工是从二层顶板按五区-四区-三区—二区等的顺序开始铺设。
七、操作注意事项
1 、铺设楼承板两人要互相配合,在梁上行走时要扶好安全绳。
2、严格遵守各有关安全操作规程,当用气割下料时,要根据本工程消防要求配备有关设备和看火人员。
3、孔、洞、柱边及异形板边要单做处理。
4、楼承板施工过程中,在每一层留好20个测量用孔洞(每区五个), 以利控制线投测.。