焦油加工工艺流程简述及流程图
- 格式:doc
- 大小:28.00 KB
- 文档页数:3
煤焦油的生产工艺流程本项目包括的工艺装置有槽区(含焦油脱水脱渣、油品配制、酸碱库、油库)、焦油蒸馏、洗涤脱酚和酚盐分解、工业萘蒸馏、精酚、精萘和改质沥青。
各装置工艺方案选择国内成熟、可靠的先进技术。
1、生产工艺流程从焦化厂来的焦油送到焦油油库,在此进行脱水脱渣,然后送至焦油蒸馏工段.焦油蒸馏采用常压蒸馏,切取三混馏份工艺。
蒸馏包括一段蒸发器脱水,二段蒸发器切取中温沥青和Ⅱ蒽油,馏份塔分离出轻油、Ⅰ蒽油和混合份,得到的混合份送至馏份脱酚工段。
馏份脱酚工段采用连续洗涤工艺,混合份首先进入一次连洗塔,加入碱性酚钠洗涤后分离出中性酚钠,再进入二次连洗塔加碱洗涤,分离出碱性酚钠获得已洗混合酚。
已洗混合酚送至工业萘工段。
中性酚钠经酚盐蒸吹釜得到净酚盐,并送至分解。
酚盐分解采用连续CO2分解工艺,在分解塔内分别分离出粗酚和碳酸钠。
工业萘蒸馏采用双炉双塔常压蒸馏工艺.馏份脱酚工段得到的已洗混合份进入工业萘初馏塔,分离出酚油后进入工业萘精馏塔,分离出洗油和工业萘产品。
精酚采用间歇减压蒸馏工艺。
原料粗酚送入脱水脱渣釜,在此蒸馏脱除水和残渣。
无水粗酚进入初馏釜,在初馏釜和初馏塔内蒸出全馏份。
全馏份分别在精馏釜、精馏塔进行多次复蒸分别产出酚、甲酚、二甲份。
精萘采用箱式分布结晶工艺。
原料工业萘进入特制的结晶箱,进行降温、升温的结晶和熔化操作程序,在多次程序操作过程中分离出精萘残油和精萘。
改质沥青采用釜式热缩聚工艺。
中温沥青自流入改质沥青反应釜,釜顶吹出的闪蒸油经闪蒸油冷却器冷却后进入闪蒸油槽。
改质后的沥青进入改质沥青槽,再经改质沥青高置槽冷却后进入改质沥青成型机成型后得到改质沥青产品。
2、主要设备焦油蒸馏装置、馏分脱酚及酚盐分解装置、萘蒸馏装置、精酚装置、精萘装置、改质沥青装置、槽区装置德国VFT公司焦油加工技术的考察报告温燕明徐新洲陈昌华(济南钢铁集团总公司)1 基本情况1997年7月16~30日,我公司组团考察了德国的煤焦油加工、炼焦和煤气净化等技术,先后与Thyseen Still Otto公司、VFT焦油加工公司、KruppKoppers公司和Kaiserstuhl焦化厂等8个单位进行了技术交流和现场参观。
50万t/a煤焦油加工工艺流程简述一:脱水、馏分原料焦油经无水焦油输送泵直接从原料油库抽吸分别与焦油预热器(仅开工时用)、洗油冷却器、洗油冷凝器、两混油冷凝器加热至180~190℃,减压后进入脱水塔中部,塔顶轻油气经过轻油冷凝冷却器和油水分离器,水相自流至酚水槽,由酚水泵定期送往污水处理,轻油相进入回流槽及轻油回流泵,部分回流,部分通过流量调节循环至原料焦油预混配,达到共沸精馏的目的,多余的轻油经过回流槽液位调节进入轻油中间槽。
塔釜焦油由焦油循环泵送至焦油/软沥青换热器I、焦油/软沥青换热器I换热温度达到210℃后,回到脱水塔塔釜,塔釜温度控制在190~200℃左右。
脱水至0.2%以下的焦油由脱水塔塔釜焦油抽出泵送至管式炉对流段加热至250℃后进入馏分塔中部。
馏分塔底部分离出的软沥青,经沥青循环泵,一部分送至焦油/软沥青换热器I;另一部分送到焦油管式炉辐射段加热至340℃后回到馏分塔底部。
馏份塔顶逸出的酚、萘、洗混合油气经洗油冷凝器部分冷凝后,液相进入洗油冷却器,气相进入两混油冷凝器换热后,液相进入三混油冷却器,气相部分经不凝气冷却器冷却后进入真空系统。
从洗油冷却器出来的洗油(130℃左右)进入洗油回流槽,一部分洗油馏份由回流泵作为馏份塔的回流送回馏份塔顶,其余洗油经过三混油冷却器冷却到90℃后送往未洗混合份槽。
各设备的排气均集中后送至尾气吸收处理装置,经洗油洗涤后排至管式炉燃烧。
管式炉以焦炉煤气作为热源。
二、馏分脱酚、盐分解工艺流程简述a)馏份脱酚馏份脱酚、酚盐分解及碳酸钠苛化装置设计规模为:一套30万吨/年。
酚萘洗混合馏份的脱酚采用连续洗涤脱酚的工艺流程。
贮存于未洗混合份槽中的酚萘洗混合馏份,由一次连洗泵抽出,与碱性酚钠高位槽来的碱性酚钠一起在泵内充分混合、反应,并进入一次连洗分离塔,静置分离为混合份和中性酚钠,混合份进入一次脱酚缓冲槽,中性酚钠流入中性酚钠槽。
为了进一步脱除混合份中的酚类,再用8~12%的稀碱(NaOH)进行二次脱酚。
焦油车间工艺简介及工艺流程图
工艺简介
焦油作业区以煤焦油加工为主,设计年加工焦油为10万吨,产品有工业萘、中温沥青、改质沥青、脱晶蒽油等十余种。
分为焦油蒸馏、工业萘蒸馏和改质沥青三个工段,有油库、蒸馏、结晶、洗涤、工业萘、转鼓结晶、粗酚、中温沥青、改质沥青和燃料油等生产工序。
蒸馏工段包括油库、焦油蒸馏和结晶工序。
蒸馏为一塔式连续加热蒸馏工艺,将焦油初步分离成中温沥青、二蒽油、一蒽油、三混油和轻油等,中温沥青送改质沥青工段处理或配制燃料油(炭黑油),二蒽油作为产品外发,一蒽油送结晶工序生产脱晶蒽油和粗蒽,三混油送工业萘工段处理。
工业萘生产采用的是双炉双塔连续加热蒸馏工艺,将蒸馏工段来的三混油进行碱洗后的已洗萘油送管式炉加热、蒸馏处理,洗涤后的酚盐送粗酚工序处理。
蒸馏塔精馏出酚油、工业萘和洗油,工业萘经冷凝冷却后至转鼓结晶成型后装包外发,酚油和洗油送油库作为液态产品外发。
粗酚采用CO2分解工艺,来自焦炉的烟道气经除尘除雾后与脱除中性油后的净酚盐在分解塔内进行逆向反应,生产粗酚产品和Na2CO3。
改质沥青生产采取的是釜式连续高温热聚工艺,对中温沥青进行改性处理。
此外,还以中温沥青为原料,按一定比例配制燃料油、炭
黑油,也可直接生产中温沥青。
煤焦油加工35张工艺流程图二维码进入环保智库煤焦油是煤焦化过程中得到的一种黑色或黑褐色粘稠状液体,主要用于分馏出各种酚类、芳香烃、烷类等,并可用于制造其他染料或药物。
接下来小七用35张工艺流程图告诉大家煤焦油加工工艺有哪些。
先用一张图告诉大家焦油加工工艺有哪些:焦油蒸馏焦油蒸馏工艺主要包括减压蒸馏,常压蒸馏及常减压蒸馏工艺,在此基础上,各个企业根据具体的应用情况对其进行了改进,主要工艺如下所示:1、常压蒸馏工艺一塔式焦油蒸馏工艺流程二塔式焦油蒸馏工艺流程多塔式焦油蒸馏工艺流程2、减压蒸馏工艺减压蒸馏工艺流程宝钢、济钢减压蒸馏工艺流程3、常减压蒸馏工艺4、带沥青循环的焦油蒸馏工艺英国带沥青循环工艺流程美国带沥青循环工艺流程5、其他焦油蒸馏工艺日本钢管公司焦油蒸馏工艺流程德国焦油蒸馏工艺流程美国焦油蒸馏工艺流程焦油二次蒸馏工艺流程日本改良焦油工艺流程粗酚的提取处理后的焦油包含多种混合物质,提取粗酚时主要包括馏分洗涤和酚钠溶液的净化分解过程。
1、馏分洗涤工艺(1)基本原理注:当馏分中同时存在盐基和酚时,则吡啶盐基与酚生成络合物,对碱洗不利。
(2)馏分洗涤工艺馏分间间歇洗涤工艺馏分连续洗涤工艺酚萘洗混合分工艺流程2、酚钠溶液的净化酚钠蒸吹工艺流程酚钠蒸吹脱油工艺流程3、酚钠分解硫酸分解酚钠工艺流程二氧化碳分解酚钠工艺流程精酚的生产1、粗酚的预处理粗酚脱水脱渣工艺流程2、粗酚的精馏粗酚的间歇精馏工艺流程粗酚的连续精馏工艺流程萘及其同系物的分离与精制1、工业萘的生产工艺单炉单塔工艺流程单炉双塔工艺流程双炉双塔工艺流程2、精萘生产工艺(1)硫酸净化法精萘生产工艺萘的净化流程图洗涤萘精馏工艺流程(2)区域熔融法生产精萘精制机示意图区域熔融法生产精萘工艺流程沥青改质工艺1、改质沥青工艺与焦油蒸馏结合的工艺流程欧洲常用工艺流程2、延迟焦(针状焦)工艺延迟焦(针状焦)工艺流程来源:化工707。
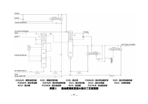
E101A/B-粗焦油预热器E102-降膜式预热器C103-脱水塔P104A/B-脱水焦油循环泵E105-脱水焦油换热器P106A/B-脱水焦油泵E107A/B-脱水焦油预热器E111-脱水塔冷器D112-油水分离器D113-分离控制器B114-氨水槽P115A/B-氨水输送泵B116-轻油槽P117A/B-轻油回流泵附图3 焦油蒸馏装置脱水部分工艺流程图C201-初馏塔P202A/B/C-沥青管式炉循环泵H203A/B-沥青管式炉E204-分缩器C211-汽提塔P212A/B-软沥青输送泵E213A/B/C/D-沥青冷却器E221-重油冷却器附图4 焦油蒸馏装置初馏部分工艺流程图E301-冷凝器C302-激冷塔D303-分离控制器D304-油水分离器E305-激冷冷凝器D306-油水分离器D307-分离控制器B308-氨水槽B309-轻油槽B311-宽馏份泵储槽P312A/B-宽馏份输送泵P313A/B-轻油循环泵P314A/B-冷凝氨水泵附图5 焦油蒸馏装置激冷部分工艺流程图C401-中和塔D402-中和宽馏份分离器B403-氨水槽P404A/B-氨水输送泵P406A/B-碱喷入泵B407-宽馏份分离器B408-氨水分离器附图6 焦油蒸馏装置中和部分工艺流程图T501-中和宽馏份缓冲槽P502A/B-宽馏份原料泵E503-宽馏份预热器E504-洗油冷却器E505-蒽油冷却器E506-重油冷却器C508-馏份塔E509-馏份塔顶分凝器E511-全凝器B512-闪蒸罐E513-酚油冷却器E514A/B/C-萘油冷却器C515-洗油塔E516-洗油塔顶分凝器P517A/B-洗油输送泵E518-洗油塔再沸器P519A/B-蒽油输送泵P521A/B-重油管式炉循环泵E522-节能器H523-管式炉P524A/B-真空泵P525-氨水泵附图7 焦油蒸馏装置精馏部分工艺流程图T7306-酚油中间槽P7301AB-酚油进料泵K7304-酚油抽提塔P7303A~H-酚盐抽出泵T7304-脱酚萘油中间槽T7305-酚盐中间槽P7302AB-酚盐输送泵K7302-1#萘油抽提塔K7303-2#萘油抽提塔P7306ABC-脱酚萘油循环泵X7301-1#喷射混合器X7302-2#喷射混合器P7305AB-脱酚萘油输送泵E7302-NaOH预热器E7301-NaOH加热器附图8 洗涤脱酚工艺流程图E7501-原料第一换热器E7502-原料第二换热器E7506AB-甲基萘油冷却器E7503-酚油冷却器T7501-初馏塔回流槽K7501-初馏塔P7501AB-初馏塔回流泵P7502AB-初馏塔底循环泵F7501-初馏塔管式炉T7505-锅炉给水槽P7501AB-锅炉给水泵E7504-蒸汽发生器E7505-工业萘冷却器T7502-精馏塔回流槽P7503AB-精馏塔回流泵K7502-精馏塔P7505AB-精馏塔底循环泵F7502-精馏塔管式炉附图9 工业萘蒸馏工艺流程图。
最全的焦化⼚⽣产⼯艺流程(附现场图、流程图)焦化⼚总⼯艺流程图从5个⽅⾯带你进⼊焦化⼚⼯艺流程现场!⼀原料⼆备煤⼯艺三炼焦⼯艺四化⼯⽣产⼯艺五化⼯产品原料——煤⼀原料煤炭是炼焦的主要原料,根据成煤条件不同,⾃然界的煤可分为三⼤类,即腐植煤、残植煤和腐泥煤。
腐植煤在⾃然界中分布最⼴,储量最⼤,在煤炭利⽤和化学加⼯⽅⾯占有主要的位置。
煤炭分类及参数⽰例如下表:⼆备煤⼯艺1 备煤流程——备煤作业区操作完成备煤:对进⼚的洗精煤进⾏处理,以达到炼焦要求,通常把原料煤在炼焦前进⾏的⼯艺处理过程称为备煤⼯艺过程。
达到炼焦要求之后,通过⽪带被输送到煤塔供炼焦作业区使⽤。
流程:洗精煤(<80mm)由汽车运来(预留⽕车卸料系统)——螺旋卸料机卸⼊卸煤槽——按煤的种类分别由不同的运煤⽪带输送机——堆取料机主⽪带——堆存作业——上煤——堆取料机取煤经带式输送机——配煤仓——电⼦⾃动配料秤——按相应⽐例配给到仓下⽪带和除铁器除铁后——可逆反击锤式粉碎机被粉碎⾄<3mm占85%以上——焦炉煤塔内供炼焦⽤。
2 设备图解螺旋卸车机煤场和堆取料机卸料——汽车来煤⾃卸车直接⼊卸煤槽,⾮⾃卸车采⽤桥式螺旋卸车机卸车,卸约800吨/⼩时精煤堆场——煤场贮煤⾯积~34000m2,7.4万吨精煤储存量,约为炼焦17天的⽤煤量;堆场设两台DQ3025型堆取料机,单台堆料能⼒为600t/h,取料能⼒300t/h,煤场设推⼟机库,辅助堆取料机作业。
在精煤煤场设有喷洒⽔和喷洒覆盖剂装置, 可防⽌煤尘飞扬造成对周围环境的污染。
配煤仓煤塔配煤——按⽐例配合不同煤种, 使配合煤达到符合炼焦⽤煤的要求, 配煤仓为直径8⽶的双曲线⽃嘴仓7个。
每个仓的储量约为500t。
煤仓双曲线钢漏⽃内衬超⾼分⼦塑料板,防⽌棚料。
仓下配煤设备采⽤配料稳定, 配⽐准确, ⾃动化程度⾼的电⼦⾃动配料秤, 系统控制为PLC 控制。
粉碎——选⽤可逆反击锤式粉碎机PFCK两台, 其单台破粹能⼒为250t/h, ⼀开⼀备。
工艺流程简述焦油I段工艺流程焦油是一种成分复杂的混合物,根据焦油各组分沸点的不同,可通过蒸馏将各组分富集到相应的馏分中,为进一步提纯提供原料。
焦油在焦油大槽中,经过均和、加热、静置、脱水,用焦油泵输送到焦油中间槽。
脱水塔进料泵将焦油从中间槽底部抽出,经焦油加热器与蒸汽换热,加热至115-130℃进入脱水塔。
脱水塔顶部出来的蒸汽和少量轻油经脱水塔轻油冷却器冷却后,经油水分离器将分离水排出,轻油自流至轻油槽,塔底含水<0.5%的焦油由加热炉进料泵抽出经管式炉加热至400±5℃后,打入聚合塔。
聚合塔顶部排出的油气进入分馏塔,进行分离,聚合塔底沥青经化验合格后放料,进入高置槽,再经链板机冷却后堆放外销。
聚合塔顶部出来的油气进入分馏塔第52层(分馏塔由55层浮阀塔板组成),进入分馏塔的油气在上升过程中,与塔顶1层轻油回流液接触,轻油油气由分馏塔顶部排出,经轻油冷却器冷却后进入轻油回流槽。
轻油回流槽内的轻油,一部分用轻油回流泵打入分馏塔1层回流,一部分满流至轻油槽(自轻油回流槽液位600mm处)。
酚萘洗三混馏分自分馏塔26、28、30、32层采出,经三混冷却器进入三混贮槽,三混馏分自三混贮槽底抽出入洗涤工序或装车线外售。
I蒽油馏分自分馏塔47、49层采出,经I蒽油冷却器自流至I蒽油贮槽,I蒽油用泵打入蒽油贮槽或入装车线外售。
塔底排出的II蒽油经II蒽油冷却器进入II蒽油中间槽,再经II蒽油输送泵输送至II蒽油贮槽,II蒽油由槽底装车线装车外售。
二、焦油II段工艺流程本焦油连续蒸馏装置采用单塔常压蒸馏工艺流程。
工艺流程见图所示。
原料焦油用焦油原料泵从焦油贮槽抽出送往焦油加热器,加热至110-130℃后进入脱水塔。
在此蒸出的部分轻油和水经轻油凝缩器(I)冷却,进入油水分离器(I),轻油与水分离进入回流柱,分离出的水排入酚水分离池处理。
脱水塔底部出来的无水焦油通过加热炉进料泵,经管式炉辐射段加热至385-405℃后进入聚合塔,使馏分和沥青分离。
备煤炼焦所用精煤,一方面由外部购入,另一方面由原煤经洗煤后所得,洗精煤由皮带机送入精煤场。
精煤经受煤坑下的电子自动配料称将四种煤按相应的比例送到带式输送机上除铁后,进入可逆反击锤式粉碎机粉碎后(小于3mm占90%以上),经带式输送机送至焦炉煤塔内供炼焦用。
炼焦装煤推焦车在煤塔下取煤,捣固成煤饼后,按作业计划从机侧推入炭化室内。
煤饼在炭化室内经过一个结焦周期的高温干馏,炼成焦炭并产生荒煤气。
炭化室内的煤饼结焦成熟后,由装煤推焦机推出并通过拦焦机的导焦栅送入熄焦车内。
熄焦车由电机牵引至熄焦塔熄焦。
熄焦后的焦炭卸至凉焦台,冷却后送往筛焦楼进行筛分和外运。
煤在干馏过程中产生的荒煤气汇集到炭化室的顶部空间,经上升管、桥管进入集气管。
700℃的荒煤气在桥管内经过氨水喷洒后温度降至85℃左右,煤气和冷凝下来的焦油氨水一起经吸煤气管道送入煤气回收车间进行煤气净化及焦油回收。
焦炉加热燃用的净化煤气经预热器预热至45℃左右进入地下室,通过下喷管把煤气送入燃烧室立火道,燃烧后的废气经烟道、烟囱排入大气。
冷鼓由焦炉送来的80-83℃的荒煤气,沿吸煤气管道入气液分离器。
经气液分离后,煤气进入初冷器进行两段间接冷却;上段用32℃循环水冷却煤气,下段用16-18℃低温水冷却煤气,使煤气冷却至22℃,然后经捕雾器入电捕焦油器除去悬浮的焦油雾后进入鼓风机,煤气由鼓风机加压送至脱硫工段。
在初冷器下段用含有一定量焦油、氨水的混合液进行喷洒,以防止初冷器冷却水管外壁积萘,提高煤气冷却效果。
由气液分离器分离出的焦油氨水混合液自流入机械化氨水澄清槽,进行氨水、焦油和焦油渣的分离。
分离后的氨水自流入循环氨水中间槽,用泵送到焦炉集气管喷洒冷却荒煤气,多余的氨水(即剩余氨水)送入剩余氨水槽,焦油自流入焦油中间槽,然后用泵将焦油送至焦油贮槽,静置脱水后外售,分离出的焦油渣定期用车送至煤场掺入精煤中炼焦。
脱硫来自冷鼓工段的粗煤气进入脱硫塔下部与塔顶喷淋下来的脱硫液逆流接触洗涤后,煤气经捕雾段除去雾滴后全部送至硫铵工段。
1.1.1产品品种及数量本工程生产的各产品品种及数量如下表。
a)表错误!文档中没有指定样式的文字。
1 产品品种及产量表1.1.2原料及产品质量指标1)焦油b)表错误!文档中没有指定样式的文字。
2煤焦油(YB/T5075-93)2)粗酚c)表错误!文档中没有指定样式的文字。
3 粗酚(YB/T5079-93)3)工业萘d)表错误!文档中没有指定样式的文字。
4 工业萘(焦化萘)(GB/T6699-1998)4)洗油5 洗油质量指标e)表错误!文档中没有指定样式的文字。
f)表错误!文档中没有指定样式的文字。
6 轻油质量指标6)脱酚酚油g)表错误!文档中没有指定样式的文字。
7 脱酚酚油质量指标7)改质沥青h)表错误!文档中没有指定样式的文字。
9 改质沥青质量指标8)炭黑油i)表30 炭黑油质量指标(YB/T5174-93)1.2生产工艺流程与主要设备选择本工程包括焦油蒸馏、萘蒸馏、馏分洗涤和酚盐分解、改质沥青、溶剂脱酚、原料油库和产品油库等工艺装置,各装置生产工艺和主要设备选择分述如下。
1.2.1焦油蒸馏装置1.2.1.1工艺流程简述工艺流程见焦油蒸馏部分工艺流程图。
由油库来的原料焦油经原料焦油/炭黑油换热器(E-7112)与炭黑油换热后,在焦油预热器(E-7101)由蒸汽加热到125℃后,进入脱水塔(K-7101)。
脱水塔塔顶温度约105℃,塔顶逸出的轻油馏份和水经轻油冷凝冷却器(E-7111)冷却到30℃后,流入轻油分离槽(S-7101)内,在此,轻油与水分离。
分离出的轻油一部分返回脱水塔作为回流,其余轻油作为产品送至焦油槽区和原料、产品槽区。
分离水自流到馏份洗涤部分的硫酸钠槽(T-8103)。
脱水塔循环泵(P-7103AB)将脱水塔塔底的无水焦油抽出,送至焦油加热炉节能器(F-7111)与加热炉烟道气换热,被加热至220℃后,返回脱水塔底部作为脱水塔的热源。
脱水塔底焦油,由塔底抽出泵(P-7104AB)抽出,经无水焦油/炭黑油换热器(E-7113)与炭黑油换热,加热至250℃后,进入主塔(K-7103)。
煤焦油的工艺流程下载温馨提示:该文档是我店铺精心编制而成,希望大家下载以后,能够帮助大家解决实际的问题。
文档下载后可定制随意修改,请根据实际需要进行相应的调整和使用,谢谢!并且,本店铺为大家提供各种各样类型的实用资料,如教育随笔、日记赏析、句子摘抄、古诗大全、经典美文、话题作文、工作总结、词语解析、文案摘录、其他资料等等,如想了解不同资料格式和写法,敬请关注!Download tips: This document is carefully compiled by theeditor. I hope that after you download them,they can help yousolve practical problems. The document can be customized andmodified after downloading,please adjust and use it according toactual needs, thank you!In addition, our shop provides you with various types ofpractical materials,such as educational essays, diaryappreciation,sentence excerpts,ancient poems,classicarticles,topic composition,work summary,word parsing,copy excerpts,other materials and so on,want to know different data formats andwriting methods,please pay attention!煤焦油是一种重要的化工原料,它是煤焦油深加工的产物。
煤焦油的工艺流程包括以下几个步骤:1. 煤焦油的萃取:首先,将煤焦油从焦油中提取出来。
焦油加工岗位操作技术规程编制:校核:审核:审定:批准:2010年9月1日6目录一、蒸馏I段岗位操作技术规程二、蒸馏II段岗位操作技术规程三、洗涤岗位操作技术规程四、工业萘岗位操作技术规程五、焦油加工车间安全规程6焦油加工蒸馏 I 段岗位操作技术规程6目录(一)焦油蒸馏工艺流程(二)焦油蒸馏工艺技术指标(三)焦油蒸馏化验指标及化验频次一览表(四)焦油蒸馏设备一览表(五)焦油蒸馏技术规程(六)焦油蒸馏岗位责任制(七)附图6(一)焦油蒸馏工艺流程焦油是一种成分复杂的混合物,根据焦油各组分沸点的不同,可通过蒸馏将各组分富集到相应的馏分中,为进一步提纯提供原料。
焦油在焦油大槽中,经过均和、加热、静置、脱水,将焦油水分控制在4%以下,用焦油泵输送到焦油中间槽,并保持90~95℃。
用脱水塔进料泵将焦油从中间槽底部抽出,经焦油加热器与蒸汽换热,加热至120~130℃进入脱水塔。
脱水塔顶部出来的蒸汽和少量轻油经脱水塔轻油冷却器冷却后,经油水分离器将分离水排出,轻油自流至轻油槽,塔底含水<0.5%的焦油由加热炉进料泵抽出经管式炉加热至400±5℃后,打入聚合塔。
聚合塔顶部排出的油气进入分馏塔,进行分离,聚合塔底沥青经化验合格后放料,进入高置槽,再经链板机冷却后堆放外销。
聚合塔顶部出来的油气进入分馏塔第52层(分馏塔由55层浮阀塔板组成),进入分馏塔的油气在上升过程中,与塔顶1层轻油回流液接触,轻油油气由分馏塔顶部排出,经轻油冷却器冷却后进入轻油回流槽。
轻油回流槽内的轻油,一部分用轻油回流泵打入分馏塔1层回流,一部分满流至轻油槽(自轻油回流槽液位600mm处)。
酚萘洗6三混馏分自分馏塔26、28、30、32层采出,经三混冷却器进入三混贮槽,三混馏分自三混贮槽底抽出入洗涤工序或装车线外售。
I蒽油馏分自分馏塔47、49层采出,经I蒽油冷却器自流至I蒽油贮槽,I蒽油用泵打入蒽油贮槽或入装车线外售。
塔底排出的II蒽油经II蒽油冷却器进入II蒽油中间槽,再经II蒽油输送泵输送至II蒽油贮槽,II蒽油由槽底装车线装车外售。
焦油加工工艺流程介绍焦油蒸馏工序工艺流程外来焦油卸入80方焦油地下槽,然后用液下泵打入500立方焦油混合贮槽中,焦油经超级离心机脱水脱渣后再用泵打入4500立方焦油大槽中。
焦油在大槽中经过均和、加热、静置、脱水,将焦油水分控制在4%以下,用焦油泵输送到焦油中间槽,并保持85-90℃。
用一段泵将焦油从焦油中间槽底部(或直接从焦油大槽)抽出,焦油依次与轻油、一蒽油换热到120-130℃后,进入一段蒸发器(脱水塔)。
一段蒸发器顶部出来的蒸汽和少量轻油经一段轻油冷凝冷却器冷却后,再经油水分离器将分离水排出,轻油自流至轻油槽,塔底含水<0.5%的焦油由二段泵(加热炉进料泵)抽出,经焦油∕沥青换热器与沥青换热后进入管式炉加热至395±5℃,打入二段蒸发器(聚合塔)。
二段蒸发器顶部排出的油气进入分馏塔,进行分离,二段蒸发器底部沥青经化验合格后,进入沥青高置槽,再经链板机冷却后堆放外销。
二段蒸发器顶部出来的油气从中下部进入分馏塔,分馏塔顶部采出的轻油馏分经轻油冷凝冷却器冷却后进入轻油油水分离器,分离水进入废水槽,轻油进入轻油中间槽;分馏塔中上部采出三混油经三混油冷却器冷却到80℃后进入三混槽,然后用泵打到洗涤工段。
塔中部采出的一蒽油经与原料焦油换热后再经冷却器冷却后进入一蒽油贮槽,塔底部采出的二蒽油经与原料焦油换热后再经冷却器冷却后进入二蒽油贮槽,然后用泵打到油库。
(二)洗涤工序工艺流程从焦油蒸馏输送来的三混馏分,自未洗槽底部流出与从碱性酚盐高位槽来的碱性酚盐,在一次碱洗泵前混合后打入一次碱洗塔,塔底排出中性酚盐流入中性酚盐槽;塔顶排出的一次油进入缓冲槽与从稀碱高位槽来的12-13%稀碱溶液在二次碱洗泵前混合后,打入二次碱洗塔。
二次碱洗塔上部排出的二次油流入已洗槽;塔底排出的碱性酚盐自流入碱性酚盐槽或高位槽,已洗混合份送入工业萘工段。
中性酚盐自中性酚盐槽用泵抽出,经换热器与蒸吹塔顶排出的蒸汽换热后,进入蒸吹塔,蒸吹塔内的热量由塔底直接蒸汽和间接蒸汽提供,塔顶逸出的气体与中性酚盐换热后,进入换热冷却器,冷凝液流入蒸吹油水分离器,油水分离后,水排入废水池,油流入碱性槽。
山西金尧焦化公司的16.5万t/a煤焦油加工装置姚润生杨怀旺(山西临汾煤炭气化公司,临汾041000)煤焦油加工再度引起人们的重视,一方面是由于钢铁工业飞速发展及国际市场对焦炭需求的增长,为煤焦油的集中加工提供了丰富的原料资源;另一方面是由于中国经济的持续发展与科技的不断进步,新设备、新材料、新工艺的不断涌现,自控装备的不断提高,不仅传统焦油加工产品如酚类、萘、蒽、苊及沥青等开发出了新的用途,而且应用新技术提取或进一步加工成高附加值的煤焦油产品,如蒽氧化制得高档染料中间体,具有良好的市场前景;咔唑除了做重要的染料中间体外,还可以用于合成导光、导电材料、合成活性物质;由苊开发成功的红色染料具耐热耐晒的特点。
备受人们关注的大宗产品沥青,随着电炉钢产量的增加及信息产业的发展,经加工制得的改质沥青、针状焦、炭素材料等传统产品都具有较大的市场;新开发沥青产品,如替代肥煤炼焦、煤沥青燃料油、乳化煤沥青燃料油替代重油,用于燃料发电、气化造气供城市煤气和合成氨的原料、塑料制品煤沥青添加剂、煤-石油基乳化混合沥青、道路面层粘结剂等方面均具有极强的市场竞争力。
煤焦油蒸馏装置的大型化得到了国家产业政策的支持,不仅可提高企业的经济效益、降低能耗,而且可提高焦油产品的回收率和稳定产品质量。
因此,煤焦油蒸馏装置大型化势在必行。
山西金尧焦化有限公司于2004年3月建设的16. 5万t/a煤焦油加工装置,于2005年5月投产运行。
1 技术方案1.1 工艺方案的确定在选择煤焦油精制工艺路线的基本原则如下:(1) 在保证产品质量、产量和提高产品附加值的前提下,尽量采用先进的工艺设备与材料。
通过提高自动化水平和精馏设备的技术进步,确保生产操作的稳定性和灵活性;(2) 采用先进有效的环保措施,减少环境污染,满足环境标准的要求;(3)充分利用工艺余热,以减少工艺能耗,尽可能做到节能降耗。
遵循上述基本原则,16. 5万t/a煤焦油加工装置选择了沥青循环的单炉单塔切取三混馏分的焦油蒸馏工艺。
焦油加工生产过程及程序1、焦油蒸馏我公司焦油加工,采用连续常压蒸馏,一塔式切取三混馏份的流程。
原料焦油卸车后用泵送入4台3600m³的焦油大槽中,原料焦油在焦油大槽中经加热静置初步脱水,然后用泵输送到焦油预热器、一蒽油换热器、二蒽油换热器,经一系列换热后以125-135℃的温度进入一次蒸发器进行最终脱水,在一次蒸发器中水和部分轻油自顶部逸出,经冷凝冷却器和油水分离器流入相应贮槽。
一次蒸发器底部的无水焦油再由泵送到管式炉加热到380℃-390℃后进入二次蒸发器。
沥青采出温度360℃自二段蒸发器底部流出进入沥青冷却器,冷却后至200-220℃进入沥青高位槽进行成型或者与蒽油、洗油一起进入混配油贮槽生产混配油。
二次蒸发器顶部出来的混合蒸汽进入馏分塔。
馏分塔底部排除蒽油290-310℃经冷却后流入蒽油中间槽,一部分送往二次蒸发器顶作回流液。
馏分塔侧线采出的三混油200-220℃经冷却后流入洗涤贮槽。
馏分塔顶出来的轻油120-130℃经冷凝冷却器、油水分离器流入回流槽,一部分送回馏分塔顶作回流,其余作为产品。
2、洗涤分解由蒸馏系统出来的未洗三混油在一次分离器和二次分离器中经碱性酚钠和稀碱洗涤脱酚排出的中性酚盐作为产品外卖,碱性酚盐作为一遍碱洗的辅料。
洗涤后的混合份送往工业萘蒸馏,做制取工业萘的原料。
生产技术控制指标(1)洗涤温度保持70-90℃(2)稀碱浓度(NaOH):10-12%(3)未洗混合份、碱性酚盐贮槽温度70-90℃(4)一次塔未洗加料量:4-6.5t/h(5)一次塔碱性酚盐加料量=未洗加料量×油中含酚量×0.32÷碱性酚盐游离碱浓度。
(6)二次塔一遍油加料量:4-6.5t/h(7)二次塔加新碱量=一遍油加料量×油中含酚量×0.4×(2~3)÷碱浓度(8)一遍油含酚:1-2%(9)已洗含酚:<0.8%3、工业萘蒸馏经碱洗后的已洗三混油在原料槽中加热到85-90℃静置脱水脱碱钠后,由原料泵输送到工业萘换热器换热到200-230℃,然后进入初馏塔,从塔顶引出酚油蒸汽,塔顶温度控制在175-185℃。
焦油深加工工艺流程
焦油深加工是指将原始焦油经过一系列工艺加工,使其得到更高的利用价值和综合利用效益的过程。
焦油深加工工艺流程包括预处理、分馏、裂解、精制等步骤。
首先是预处理阶段。
原始焦油经过过滤和脱硫处理,去除其中的杂质和硫化物等有害物质,净化焦油。
接下来是分馏阶段。
将经过预处理的焦油送入分馏塔,在不同温度下进行分馏,根据不同的沸点、密度和分子量将焦油分为不同的组分,如轻油、重油和渣油等。
然后是裂解阶段。
将重油送入裂解炉,进行热裂解反应,将重油中的高分子化合物裂解为较低分子量的产品,如汽油、柴油和煤油等。
裂解反应需要控制一定的温度和压力,同时加入适量的催化剂,促进反应进行。
最后是精制阶段。
将裂解产物经过脱硫、脱氮、脱氧等一系列的精制操作,去除其中的硫化物、氮化物和氧化物等有害物质,同时提高产品的品质和纯度。
精制操作可以采用物理方法,如吸附、溶剂抽提等,也可以采用化学方法,如脱硫反应等。
通过上述工艺流程,原始焦油可以得到更高的利用价值和综合利用效益。
其中轻油产品可以用作燃料或化工原料,如汽油、柴油和煤油等;重油产品可以用作燃料油和润滑油,如燃料油、石蜡和润滑脂等;渣油可以用作燃料或炼焦原料,如炼焦煤和煤焦油等。
此外,焦油中还可以提取出各种有机化合物和化工
产品。
总之,焦油深加工工艺流程是一系列复杂的物理和化学反应过程,通过分馏、裂解和精制等步骤,将原始焦油转化为更高价值的产品。
焦油的深加工不仅可以提高资源利用效率,还可以减少废弃物的产生,具有重要的经济和环境意义。
第一章冷鼓工段1、焦油生产工艺从焦炉炭化室出来的荒煤气在桥管处被循环氨水喷洒冷却,温度由700~800℃降至75~85℃,经气液分离器后煤气进入三台并联操作的横管冷却器,在此被冷却至22℃左右后进入电捕焦油器,除去焦油雾后经鼓风机送往后序工序净化;焦油氨水混合液进入三台并联操作的机械化氨水澄清槽,在此焦油氨水与焦油渣按自重分层,上部氨水靠自流进入循环氨水槽,中部焦油自流进入焦油中间槽,下部沉淀下来的焦油渣被刮板机连续不断地刮至排渣装置,用焦油渣小车送至煤厂掺混炼焦。
煤气在横管冷却器中分两段冷却,上段用循环水,下段用制冷水。
上段和下段的冷凝液分别通过冷凝液液封槽进入上下段循环槽,然后分别用上下段循环泵送回初冷器进行循环喷洒,吸收煤气中的焦油、萘等杂质。
上下段循环槽互相连通,下段循环槽多余的冷凝液送至机械化氨水澄清槽;为了保证横管冷却器冷却效果,在其顶部用热氨水定期冲洗,以清除管壁上的焦油、萘等杂质。
含焦油雾的煤气进入电捕焦油器后,通过气体分布筛板被均匀地分布到各沉淀管中,在电极区发生电离,尘粒荷电使焦油雾和煤气分离。
被分离出来的焦油雾滴沿着蜂窝状的沉淀极向下流动,从电捕底部流出,进入电捕水封槽,由液下泵送至机械化氨水澄清槽,捕除焦油雾的煤气进入鼓风机。
进入循环氨水槽的氨水,大部分做为循环氨水送往焦炉冷却荒煤气,少部分送至横管冷却器、电捕焦油器、终冷塔、预冷塔等处用来清洗设备,还有一少部分用做高压氨水用于焦炉的无烟装煤。
而多余的氨水送至剩余氨水槽,由剩余氨水泵送往蒸氨塔进行蒸氨。
进入焦油中间槽的焦油,静置分离后送往罐区外售。
2、焦油生产工艺技术指标冷凝鼓风系统煤气系统横管冷却器前煤气温度:75~85℃横管冷却器后煤气温度:20~24℃电捕焦油器出口煤气中焦油含量:≤10mg/Nm3电捕焦油器后煤气含氧量:0.8%报警;2.0%电捕停车。
横管冷却器系统横管冷却器上段循环水入口温度:32℃左右横管冷却器上段循环水入口温度:40℃左右横管冷却器下段制冷水入口温度:16℃左右横管冷却器下段制冷水入口温度:23℃左右横管冷却器阻力≦1.5KPa横管冷却器前吸力:-0.3~-0.8Kpa电捕焦油器系统电捕焦油器的工作电压:3.5~4.5万伏电捕焦油器的工作电流:800~1200毫安电捕焦油器绝缘箱温度:≦80℃、≧100℃报警,≦70℃、≧110℃报警连锁保护用净煤气流量为:80m3/h电捕焦油器阻力:≦1.5KPa电捕焦油器后煤气含氧量:≧0.8%报警,≧2.0%报警联锁槽区系统机械化氨水澄清槽界面液位上限:≦1.7m,下限≧1.4m剩余氨水槽液位(距底):上限≦8m;下限≧1m上段冷凝液循环槽液位:1.5m左右焦油中间槽液位:2.5m左右焦油中间槽温度:75~85℃泵循环氨水流量:1400m3/h循环氨水泵出口压力:0.7MPa剩余氨水泵出口压力: 0.5MPa高压氨水泵出口压力: 4.0MPa各泵轴承、轴套温度: ≦70℃,电机温升(或按铭牌规定): ≦60℃鼓风机鼓风机前吸力: ≧-3.5KPa鼓风机后压力: ≦26.5KPa煤气流量: 50000~102000m3/h鼓风机工作电流: ≦68A集气管煤气压力: 120~140Pa前导向控制: ≧0(无自动调节则无此指标)鼓风机油站用油:L-TD46鼓风机报警及停机条件:鼓风机转速指示报警联锁:<500r/min,报警联锁鼓风机轴位移指示报警联锁: >0.4mm,>0.8mm停车鼓风机振动指示报警联锁: >87um,>107um停车鼓风机煤气进口温度指示报警联锁:≧45℃停车(报警、联锁)鼓风机煤气出口温度指示报警联锁:≧70℃停车(报警、联锁)鼓风机轴承温度指示报警联锁:≧75℃报警,≧85℃停车鼓风机喘振脉冲数:>3in25sec主电机轴承温度指示报警联锁:≧75℃报警,≧80℃停车主电机定子温度指示报警联锁:≧105℃报警,≧155℃停车主电机振动指示报警联锁:>4.5mm/sec报警,>7.1mm/sec停车鼓风机润滑油温度指示报警联锁:≦20℃,≧45℃报警,鼓风机润滑油压:≦0.06MPa停车(报警、联锁)鼓风机润滑油箱液位指示报警联锁:≦300mm报警≦260mm停车3、电捕焦油器工作原理电捕焦油器内有数量不等的六角形蜂窝管,每根管子中心悬挂一根金属导线,金属导线与高压直流电的负极相连,为电晕极。
工艺流程简述
焦油I段工艺流程
焦油是一种成分复杂的混合物,根据焦油各组分沸点的不同,可通过蒸馏将各组分富集到相应的馏分中,为进一步提纯提供原料。
焦油在焦油大槽中,经过均和、加热、静置、脱水,用焦油泵输送到焦油中间槽。
脱水塔进料泵将焦油从中间槽底部抽出,经焦油加热器与蒸汽换热,加热至115-130℃进入脱水塔。
脱水塔顶部出来的蒸汽和少量轻油经脱水塔轻油冷却器冷却后,经油水分离器将分离水排出,轻油自流至轻油槽,塔底含水<0.5%的焦油由加热炉进料泵抽出经管式炉加热至400±5℃后,打入聚合塔。
聚合塔顶部排出的油气进入分馏塔,进行分离,聚合塔底沥青经化验合格后放料,进入高置槽,再经链板机冷却后堆放外销。
聚合塔顶部出来的油气进入分馏塔第52层(分馏塔由55层浮阀塔板组成),进入分馏塔的油气在上升过程中,与塔顶1层轻油回流液接触,轻油油气由分馏塔顶部排出,经轻油冷却器冷却后进入轻油回流槽。
轻油回流槽内的轻油,一部分用轻油回流泵打入分馏塔1层回流,一部分满流至轻油槽(自轻油回流槽液位600mm处)。
酚萘洗三混馏分自分馏塔26、28、30、32层采出,经三混冷却器进入三混贮槽,三混馏分自三混贮槽底抽出入洗涤工序或装车线外售。
I蒽油馏分自分馏塔47、49层采出,经I蒽油冷却器自流至I蒽油贮槽,I蒽油用泵打入蒽油贮槽或入装车线外售。
塔底排出的II蒽油经II蒽油冷却器进入II蒽油中间槽,再经II蒽油输送泵输送至II蒽油贮槽,II蒽油由槽底装车线装车外售。
二、焦油II段工艺流程
本焦油连续蒸馏装置采用单塔常压蒸馏工艺流程。
工艺流程见图所示。
原料焦油用焦油原料泵从焦油贮槽抽出送往焦油加热器,加热至110-130℃后进入脱水塔。
在此蒸出的部分轻油和水经轻油凝缩器(I)冷却,进入油水分离器(I),轻油与水分离进入回流柱,分离出的水排入酚水分离池处理。
脱水塔底部出来的无水焦油通过加热炉进料泵,经管式炉辐射段加热至385-405℃后进入聚合塔,使馏分和沥青分离。
闪蒸出的油气由聚合塔顶进入分馏塔,塔底沥青采入沥青高置槽,再经链板机冷却成型或者通过液体沥青装车线外发。
加热炉对流段注水或通蒸汽保护。
聚合塔来的高温油气由3#塔盘进入分馏塔,根据各组分沸点的不同,分别由上自下采出轻油、三混、I蒽油及II蒽油。
分馏塔顶部逸出的轻油
油气,经轻油凝缩器(II)冷却,进入油水分离器(II)排出分离水后进入回流柱,回流柱内轻油一部分用于塔顶回流,一部分满流采入轻油槽。
侧线采出的三混经三混冷却器冷却后自流入三混中间槽,储存至一定量机能感外甩泵导入洗涤工段三混贮槽。
I蒽油由7#9#塔盘采出,经I蒽油冷却器冷却后进入I蒽油地下槽,储存至一定量后,用I蒽油液下泵导至I 蒽油贮槽。
II蒽油由塔底采出,经II蒽油冷却器冷却后自流入II蒽油地下槽,储存至一定量后,用II蒽油液下泵导至槽区蒽油贮槽。
三、洗涤工段工艺流程
洗涤是将酚、萘、洗三混中的通过加碱中和,生成可溶于水的酚盐,从而与不溶于水的萘、洗馏分分离,为工业萘蒸馏提供原料。
分离出的中性酚盐,通过蒸吹去除其中杂油获得精制酚盐,再通过硫酸分解,最终得到含酚>83%的粗酚。
具体流程如下:从焦油蒸馏输送来的三混馏分,自未洗槽底部流出与二次碱洗塔来的碱性酚盐,进入一次混合器,经一次碱洗泵入一次碱洗塔,塔底排出中性酚盐流入中性酚盐槽;塔顶排出的一次油与12-13%稀碱溶液经二次混合器混合后,用泵打入二次碱洗塔。
二次塔上部排出含酚不高于0.5%的已洗混合份(以下称二次油)流入已洗大槽;塔底排出的碱性酚盐自流入碱性酚盐高位槽,再进入一次泵前的一次混合器,在此与未洗份充分混合,然后进入一次碱洗塔。
已洗混合份送入工业萘蒸馏做原料。
中性酚盐自中性酚盐槽用泵抽出,经换热器与蒸吹塔顶排出的蒸汽换热后,进入蒸吹塔,蒸吹塔内的热量由直接蒸汽和间接蒸汽提供,塔顶逸出的气体与中性酚盐换热后,进入换热冷却器,冷凝液流入蒸吹油水分离器,油水分离后,水排入废水池,油流入碱性槽。
蒸吹塔底排出精制钠盐,经冷却器冷却后,进入精制钠盐槽。
精制钠盐用泵打入精制钠盐高位槽与硫酸高位槽来的浓硫酸、水高位槽来的水进入分解混合器,三种原料经混合器混合后,进入分解冷却器,冷却至90℃以下,进入分解器,混合液在分解器经压缩空气搅拌后,调节PH为5-6时,静置8小时,经化验合格后,硫酸钠废水放入废水池,粗酚放入粗酚槽。
四、工业萘工艺流程
由洗涤系统来的已洗混合馏分在工业萘蒸馏系统中被加工,其生产工艺为单炉单塔连续操作馏程。
(如附图所示)。
已洗混合馏分于已洗槽中加热到70-90℃,经过静置脱水、脱酚盐后由原料泵送至工业萘精馏塔(29、31、33、35、37、39层)。
由塔顶采出酚油,
油气温度控制在190-192℃。
此油气经酚油冷凝冷却器冷却后进入净酚油槽,一部分作塔顶回流,一部分送至成品槽。
塔底温度为280-283℃的洗油用热油泵抽出,在管式炉加热置304℃左右后返回塔内,以热油循环方式供给精馏塔热量。
在热油循环过程中,从热油泵的出口分出一部分洗油,经洗油冷却器冷却后入洗油中间槽,再用泵定期导至洗油槽。
从萘精馏塔侧线(44、46、48、50、52、54层)采出含萘量大于95%、温度位225-228℃的液体工业萘,经汽化冷却器冷却至90-105℃后,流入工业萘成品槽,再经转鼓结晶机冷却结晶,既得到片状结晶的工业萘。