10kV耐张绝缘子串双联组装图(SN)
- 格式:pdf
- 大小:796.84 KB
- 文档页数:1
⼀图闲聊架空输电线路耐张绝缘⼦串及连接⾦具1、名称解读根据《电⼒⾦具名词术语》(GB/T 5075-2016 )定义,知由绝缘⼦串、耐张线夹、连接⾦具、防护⾦具组合⽽成,⽤于张紧导(地)线,能承受规定机械负荷和电⽓负荷的串(或组)叫耐张绝缘⼦串(或组) 。
如下图所⽰:▲耐张塔中耐张绝缘⼦串(组)⽰意图▲耐张绝缘⼦串(组)元件连接⽰意图上图耐张绝缘⼦串(组)中主要设备材料按照顺序分别是:①、U型挂环②、延长环③、联板④、球头挂环⑤、绝缘⼦串(玻璃绝缘⼦串)⑥、碗头挂板⑦、Z型挂板⑧、平⾏挂板⑨、调整板⑩、耐张线夹注:1.图中除开⑤、⑩外都属于连接⾦具,图中⽆防护⾦具,绝缘⼦串中的防护⾦具⼀般指均匀环、屏蔽环、均匀屏蔽环及招弧⾓等防护⾦具。
2.⾦具强度在最⼤使⽤荷载情况下不应⼩于2.5倍的相应荷载;断线、断联、验算情况下其荷载不应⼩于1.5倍的相应荷载。
2、内容解读①、U型挂环 U型挂环是⼀端为环形连接⼀端为槽形连接所构成的U形连接⾦具。
U型挂环⼀般分为U型、UL型(加长U型)。
这类⾦具主要与杆塔横担的连接与板与环的过渡连接等,本⼯程采⽤的是U型挂环。
▲图 U型挂环.②、延长环(挂环)延长环是两端均为环型连接的连接⾦具。
延长环主要⽤来加长连接尺⼨或转变连接⽅向。
本⼯程采⽤的是PH延长环。
③、联板(L型)联板是承受多个受⼒的板形连接⾦具。
联板⼀般分为L型联板、LF型联板、LV型联板、LS型联板、LJ型联板、LK型联板、LC型联板(也称LX型联板)、LL型联板、LB型联板等。
L型联板主要⽤于双联耐张绝缘⼦串与单根导线组装、单串绝缘⼦与双根导线组装、双根拉线的组装、单串绝缘⼦双⽀点悬垂传达组装以及其他需要L型联板组装等的地⽅,本⼯程采⽤的是L型联板。
▲图 L型联板.④、球头挂环球头挂环是⼀端为球形⼀端为环形所构成的连接⾦具。
球头挂环分为Q型、QH型、QP型。
球头挂环主要⽤于⾦具与绝缘⼦的连接。
本⼯程采⽤的是QP型球头挂环。
带电更换耐张双联绝缘子四措二案批准:审核:编制:目录一、项目简介 (2)二、施工方案 (2)三、施工组织措施 (4)1、施工组织机构 (19)2、施工单位组织机构 (19)3、保证安全的组织措施 (23)4、保证工期的组织措施 (23)5、施工总平面布置 (25)四、施工技术措施 (25)五、施工安全措施 (27)1、安全工作方针 (31)2、安全工作目标 (27)3、安全管理措施 (31)4、专项预防措施 (31)六、环境保护措施 (40)七、现场专项处置方案 (38)1、事故风险分析 (38)2、专项应急处置机构及职责 (39)3、专项应急处置 (43)4、专项应急处置事项 (43)5、专项应急处置联系方法及注意事项 (48)施工方案一、项目简介本项目为带电更换耐张双联单串绝缘子施工方案二、施工方案1、实施部署1)人员根据本工程的特点、工期要求、施工组织方式,按工程人员定额和施工进度计划的要求详见劳动力作业人员配置计划表。
项目部对劳动力进行动态管理。
劳动力动态管理包括以下内容:对施工现场的劳动力进行跟踪平衡、劳动力补充与减员,同时向公司劳动人事处提出申请计划。
向进入施工现场的作业班组下达施工任务书,进行考核并兑现费用支付和奖惩。
项目部加强对人力资源的教育培训和思想管理,加强对劳务人员作业质量和效率的检查。
2)材料根据工程施工进度计划,并结合具体情况以及施工场地狭小、工期短、任务重的特点,在设备物资的供应上要采取措施,保证设备材料能按施工计划供应,既不造成设备积压,占据大量的施工现场,又不延误正常施工,要保证设备和材料满足工程进度要求。
各种材料应有制造厂的质量合格证,质量符合有关标准要求并报验监理检验批准后方可使用。
2 施工准备(1)施工技术资料准备:施工技术资料的准备工作由项目部负责组织安排施工技术资料的编制,在开工前,应把技术资料编制完毕;在技术资料准备阶段,项目技术负责人应负责同甲方、监理单位和设计室联系,及时取得有关的施工图纸和甲方对工程的要求。
10kV及以下杆型组装图分析注:A:本分析参照2016版典型设计、2014版典型设计结合实际设计中业主通用的要求编制。
B:本分析只做学习用,不作为设计依据。
具体设计要求参照业主要求。
1、10kV单回直线杆对导线起支撑作用,只受到导线向下的压力。
线路直线段内用。
1、15m直线水泥杆——1基,埋深2.5m,横担距杆顶1m。
(12m直线水泥杆,埋深2m)。
根据国标,目前10kV水泥杆杆顶一般选择梢径为D190的水泥杆,15m杆杆底直径为390mm,12m杆杆底为D350mm。
根据锥度计算,从杆顶向下,每增加1m,直径增加13.33mm。
根据这个可以计算在什么位置选择什么型号的抱箍。
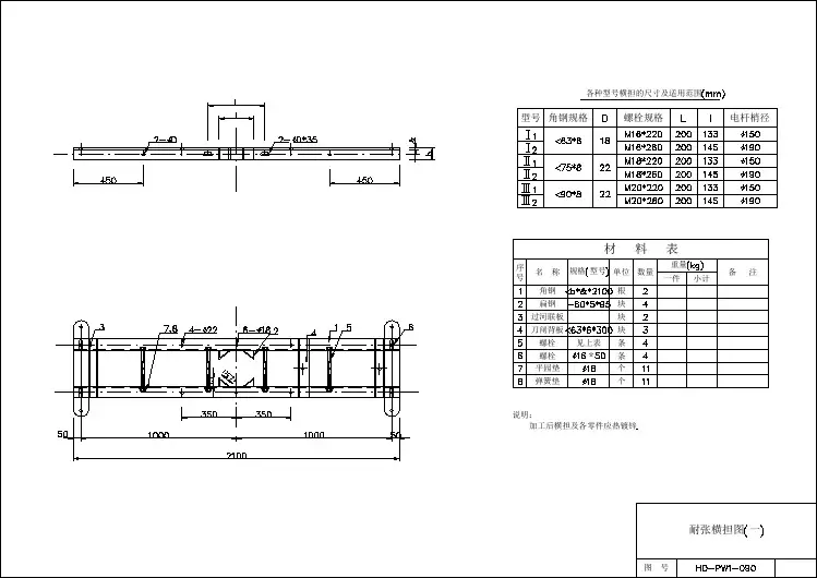
2、线路角铁横担——1根,根据导线型号不同选择横担所用钢材型号不同。
订货后需与厂家沟通确认横担上的孔距及开孔大小,与U型螺丝、双头螺栓、及绝缘子螺栓型号有关。
确保孔大小合适。
3、柱式绝缘子FPQ-10/5T——3支。
柱式绝缘子订货后需与厂家确定螺栓大小,确保与横担配套使用。
绝缘线路防雷装置——3支,一般为10kV直线杆用,与柱式绝缘子每隔1基交替使用。
使用这种时需做接地订货时需确认螺栓大小,同时需确认压线处为穿刺式还是压接式。
穿刺有个不好的地方是时间长了,线路长时间舞动易发生断线。
压接式的施工队需要对压接处剥皮。
4、U型螺栓——1块。
根据导线型号不同选择横担所用钢材型号不同。
订货时注意圆弧处为扁的。
5、杆顶瓷瓶架(单杆顶)——1套。
有两种,双抱箍的和单抱箍的,订货时需确认螺栓带不带以及顶部螺栓孔大小,保证与绝缘子配套。
推荐使用第一种,典设全高为400mm。
6、水泥制品——底盘(水泥杆底)、卡盘(上平面距地面不小于500mm)2、10kV单回加强(跨越)杆对导线起支撑作用,只受到导线向下的压力。
一般用在导线跨路、跨河等地方。
1、15m直线水泥杆——1基,埋深2.3m,横担距杆顶1m。
(12m直线水泥杆,埋深1.9m)2、线路角铁横担——2根,根据导线型号不同选择横担所用钢材型号不同。
广东电网有限责任公司配网标准设计10kV架空线路技术文件说明广东电网公司基建部二O一九年六月前言为进一步开展基建配网工程标准建设深化工作,规范配网工程建设,根据公司基建部工作安排,开展基建配网工程标准建设(设计部分)的梳理完善工作。
本规范执行国家和行业有关法律、法规、规程和规范,基于网、省公司标准设计进行整合,优化;结合网、省公司基建管理规定、技术导则、施工作业指导书、验评规范等编制而成,适用于本地区基建配网工程10kV架空线路标准建设。
本规范由清远电力规划设计院有限公司统筹, 江门市大光明电力设计有限公司、茂名天成电力设计咨询有限公司、广东天能电力设计有限公司参与完成、惠州电力勘察设计院有限公司。
目录前言 (II)1、设计依据 (3)2、主要内容 (4)3、气象条件 (5)4、架空线路 (6)4.1导线截面及安全系数 (6)4.2线路的档距 (6)4.3线间距离 (7)4.4 金具、绝缘子、防雷及接地 (7)4.5杆塔 (9)4.6拉线 (10)4.7基础 (11)4.8 10kV柱上设备及电缆头 (11)附件1-1:10kV架空线路应用复合电杆技术措施标准附件1-2:复合电杆杆型组装应用表附件2:10kV架空线路标准设计图纸编码说明附件3:铁塔基础跟开、地脚螺栓一览表附件4:各种风速条件下10kV电杆强度与基础配置表1、设计依据1.1 广东电网公司关于10kV配网工程标准设计的指导原则和修编意见。
《南方电网公司10kV和35kV标准设计V1.0》《广东省沿海地区设计基本风速分布图》《广东电网公司沿海地区配电网遭受台风受损原因调研报告》1.2 国家、电力行业有关10kV配网设计的标准、规程及规范:《66kV及以下架空电力线路设计规范》GB50061-97《圆线同心绞架空导线》GB1179-1999《额定电压10kV、35kV架空绝缘导线》GB14049-1993《混凝土结构设计规范》GB50010-2002《环型混凝土电杆》GB/T 4623-2006《交流电气装置的接地设计规范》GB/T 50065-2011《10kV及以下架空配电线路设计技术规程》DL/T5220-2005《架空绝缘配电线路设计技术规程》DL/T601-1996《架空送电线路杆塔结构设计技术规定》DL/T5154-2002《架空送电线路基础设计技术规定》DL/T5219-2005《城市中低压配电网改造技术导则》DL/T 599-2005 《中国南方电网城市配电网装备技术导则》Q/CSG 10012-2005《110kV及以下配电网装备技术导则》Q/CSG 10703-2009《10kV及以下复合电杆标准技术标书》《南方电网公司反事故措施》(2019版)《广东电网有限责任公司低压配电网技术导则》2、主要内容本设计为基建配网工程标准建设10kV架空线路设计部分,主要内容涉及10kV单回路、双回路、四回路架空线路的小档距和大档距设计,共包含五个部分,即:杆塔部分、基础部分、机电部分、部件加工图、安健环部分;杆塔部分:根据不同的材质、气象、导线截面、回路数等条件的组合,确定常用杆塔型式,包含单、双回路电杆,单、双回路铁塔,四回路铁塔以及二、四回路大跨越铁塔。
说明一、气象条件最大风速为30m/s和25m/s两级,覆冰厚度为0、5、10、15mm四级,环境温度为+40~-20℃。
二、导线及镀锌钢绞线1.导线及镀锌钢绞线的规格及最小安全系数。
见表1表12.导线排列采用三角形(正三角形、扁三角形),单回线导线最小间距0.8m,其最大允许档距为70m。
三、电杆及横担1.按国家标准选用钢筋或环形预应力钢筋混凝土电杆。
2.横担一律采用角铁横担,按使用条件分为直线横担、直线转角横担、耐张横担以及终端横担等四种。
3.直线杆采用针式绝缘子,承力杆或耐张杆采用2片悬式绝缘子或蝶式绝缘子加悬式绝缘子组合方式。
四、拉线及基础1.拉线分为普通拉线、V形拉线、水平拉线和弓形拉线四种。
3.拉线底把采用自制拉线棒,并带UT型线夹调整拉线松紧。
4.拉线要装设拉紧绝缘子。
5.底盘、卡盘和拉线盘全部为预制钢筋混凝土结构。
五、防雷及接地1.雷电活动强烈的地方和经常发生雷击故障的杆塔和线段,应采取设置避雷器的保护方式。
2.在居民区无避雷线的钢筋混凝土电杆宜接地,接地电阻不宜超过30Ω(沥青路面或有运行经验地区的钢筋混凝土杆不必另设人工接地装置)。
3.柱上油开关、负荷开关及电缆终端的避雷器,其接地线应与设备的金属外壳连接,其接地电阻不应超过10Ω。
4.电力线路之间以及电力线路与弱电线路交叉,根据规范要求需接地时,其接地电阻不宜超过表2所列数值的2倍。
表2六、其他1.图中金属制造的材料采用热镀锌或做防腐处理,并符合使用强度要求。
图中的横担、拉线、接地体等铁件全部采用热镀锌处理。
2.图中的材料表系指主要材料。
3.在人口密集的场所、城镇、居民区等建筑施工现场宜优先采用绝缘导线架空安装,详见本章第二节。
导线规格安全系数导线规格安全系数LJ-252.5,3.0LGJ-16 2.5,3.0LJ-35LGJ-253.0 LJ-50LGJ-35LJ-70 3.0LGJ-50 3.5 LJ-95LGJ-70LJ-1204.0LGJ-954.0LJ-150LGJ-120 LJ-185LGJ-150 LJ-210LGJ-185GJ-254.0LGJ-2104.5GJ-35LGJ-240GJ-50 GJ-70 GJ-100土壤电阻率(·)工频接地电阻()及以下以上至以上至以上至以上蝶式绝缘子刀闸悬式绝缘子10kV6636数量悬式绝缘子名称36个片片规范具10kV单位33。
样板示范内容:绝缘子(支柱绝缘子)安装2013 年示范工程样板点施工作业指导书绝缘子(支柱绝缘子)安装目录1.适用范围 (3)2.编写依据 (3)3.作业流程 (3)4.安全风险分析与控制措施 (4)5.作业准备 (5)6.作业方法 (6)7.工艺质量控制措施及检验标准 (7)8.工艺成品要求 (10)9.成品展示 (10)样板示范内容:绝缘子(支柱绝缘子)安装1.适用范围本作业指导书适用于110~500kV 电压等级的绝缘子(支柱绝缘子)安装作业,其他电压等级可参照执行。
2.编写依据表2-1 编写依据序号引用资料名称1GB 50150—2006《电气装置安装工程电气设备交接试验标准》2GB 50149—2010《电气装置安装工程母线装置施工及验收规范》;3GB 26860—2011《电力安全工作规程(发电厂和变电站电气部分)》4D L5009.3—1997《电力建设安全工作规程(变电所部分)》5Q/C S G 10001—2004《变电站安健环设施标准》6Q/C S G 10007—2004《电力设备预防性试验规程》7《10kV~500kV 输变电及配电工程质量验收与评定标准第二册:变电电气安装》8Q/C S G11105.2—2008《南方电网工程施工工艺控制规范》9《中国南方电网公司反事故措施》生2012[71]号3.作业流程作业(工序)流程见图3-1。
图3-1 作业(工序)流程图4.安全风险分析与控制措施4.1绝缘子(支柱绝缘子)安装作业前,施工项目部根据该项目作业任务、施工条件,参照《电网建设施工安全基准风险指南》(下简称《指南》)开展针对性安全风险评估工作,形成该任务的风险分析表。
4.2按《指南》中与绝缘子(支柱绝缘子)安装作业相关联的《电网建设安全施工作业票》(附件1 安全施工作业票编码:B DD Q-Z W-05-01/01),结合现场实际情况进行差异化分析,确定风险等级,现场技术员填写安全施工作业票,安全员审核,施工负责人签发。