大南山隧道【公示稿】0625资料
- 格式:ppt
- 大小:7.78 MB
- 文档页数:15
TA1 施工组织设计(方案)报审表工程项目名称:厦深铁路广东段施工合同段:XSGZQ-2 编号:ZS/XS—080902注:本表一式四份,承包单位两份,监理单位、建设单位各一份.中国中铁隧道集团厦深铁路(广东段)XSGZQ—2标大南山隧道进口FⅡ—1富水断层带施工方案编制:审核:批准:中国中铁隧道集团有限公司厦深铁路(广东段)工程指挥部二00八年十月一、编制依据1、新建铁路厦门至深圳铁路广东段站前重点工程施工图。
2、双线隧道复合式衬砌参考图:图号:厦深汕深隧参05(W);双线隧道拱架、施工方法及辅助施工措施参考图:图号:厦深汕深隧参08(W).3、国家和铁道部的适用于本标段的设计施工规范、规程、规则、规定、质量检验与验收标准等。
4、厦深铁路(广东段)XSGZQ—2标实施性施工组织设计。
5、现有的施工技术水平、施工管理水平和机械设备配备能力。
6、 DK262+368。
98~DK262+560段超前地质预报资料.7、(1) 2008年9月20日部工程设计鉴定中心关于大南山隧道进口施工的会议精神。
(2)2008年9月20日厦深铁路广东有限公司工程部《研究有关设计工作》的会议纪要。
(3)2008年9月22日厦深铁路广东有限公司工程部《研究大南山隧道施工有关问题》的会议纪要。
二、编制原则1、贯彻执行国家、铁道部的有关方针、政策及铁路客运专线隧道施工规范和验收标准。
2、严格按照实施性施工组织设计进行合理编制.3、优先考虑安全、质量的原则。
精心组织施工,合理安排工作量和工期,确保无安全、质量事故发生。
4、重视大南山隧道的工程地质、水文地质调查及超前地质预报工作,把超前地质预报纳入施工工序。
建立以地质工作内容为先导、以量测为依据的信息化施工管理体系.三、工程概况大南山隧道全长12697m(DK261+606~DK274+303),为双线铁路隧道,总体呈北东走向。
大南山隧道地处粤东山区,位于大南山向斜及北西向断层组内,构造相对简单,区内主要为燕山期花岗岩体,受区域地质构造影响,断裂构造很发育,在现有地貌上主要沿长大冲沟发育。
隧道通行的公告
尊敬的市民朋友们:
为了改善市区交通状况,提高道路通行能力,我市决定在近期内对部分路段进行隧道建设工程。
现将有关事宜公告如下:
一、隧道名称及位置
本次建设的隧道名为“XX隧道”,位于市区XX路与XX路交叉口处,连接两个主要交通干道,全长约XXX米。
二、施工时间
自即日起至XX年XX月XX日止,共计XX天。
施工时间为每天上午X点至晚上X点,以保障市民的正常出行。
三、交通管制措施
为确保施工期间的交通安全和顺畅,将对周边道路实施临时交通管制措施,具体如下:
1. 在施工期间,XX路与XX路交叉口将禁止机动车通行;
2. 周边道路将实行单向循环交通,车辆需按照现场交通标志和交警指挥行驶;
3. 请广大市民尽量选择其他道路绕行,避免拥堵。
四、安全提示
1. 请广大市民在通过施工区域时注意观察现场交通标志和信号灯,确保行车安全;
2. 请勿在隧道附近停车、逗留或观望,以免发生意外;
3. 如遇特殊情况,请及时拨打交通管理部门的电话进行咨询和求助。
五、联系方式
如您对本次隧道工程有任何疑问或建议,请随时与我们联系。
联系电话:XXXX-XXXXXXX。
厦深铁路(广东段)站前工程XSGZQ—2标一号斜井底板施工方案编制:复核:审核:厦深铁路(广东段)站前工程XSGZQ-2标二00八年二月二十日一、编制依据1、新建铁路厦门至深圳铁路广东段站前重点工程大南山隧道工程施工设计图纸。
2、大南山隧道设计图:夏深重施(隧)—2。
3、国家和铁道部的适用于本标段的设计施工规范、规程、规则、规定、质量检验与验收标准等。
4、大南山隧道施工组织设计。
5、现有的施工技术水平、施工管理水平和机械设备配备能力。
二、编制原则1、优先考虑安全、质量的原则。
精心组织施工,合理安排工序,确保无安全、质量事故发生。
2、在施工方案中,坚持施工技术先进、施工方案可行、重信誉守合同、施工组织科学合理、按期优质安全高效、不留后患。
3、采用大型机械化配套快速施工技术,无轨运输。
三、工程概况新建厦门至深圳铁路(广东段)XSGZQ—2标段工程位于广东省揭阳市境内。
大南山隧道进口位于普宁市的益岭镇,出口位于惠来市的圆墩镇.起止里程为:DK260+292~DK274+740,线路全长14。
448km。
主要工程内容为:大南山隧道1座12697m(DK261+606~DK274+303);桥梁3座451。
31m(含框架中桥1座);涵洞5座112。
8横延米;路基长1299。
69m。
大南山隧道区位于大南山向斜及北西向断层组内,构造相对简单.该地区主要为燕山期花岗岩体,受区域地质构造影响,断裂构造很发育,主要断裂15条,断裂以北西向为主.调查区的断裂在现有地貌上主要沿长大冲沟发育。
大南山隧道长12697m(DK261+606~DK274+303),为双线隧道,双块式无碴轨道道床。
其Ⅴ、Ⅳ、Ⅲ、Ⅱ级围岩长度分别为578m、752m、410m、10957m,所占比例分别为4。
6%、5。
9%、3。
2%、86.3%。
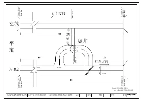
本隧道共设斜井2座。
1#斜井位于线路前进方向右侧,与隧道相交于DK266+890,与隧道中线正交;斜井内设置30m缓坡段6处,斜井最大坡度10。
广东省平远(赣粤界)至兴宁高速公路第7标段(K1623+720~K1632+700)南山隧道风险评估报告项目负责人:编制:审核:单位:平兴七标项目经理部日期: 2013 年 7 月 15 日目录一、工程概况 (1)二、编制依据 (1)三、地质条件 (2)四、评估对象及目标 (2)五、风险评估程序和评估方法 (3)5.1成立风险评估小组 (3)5.2确定项目总体风险等级 (3)5.3确定风险源 (3)六、风险评估内容 (8)七、风险对策措施及建议 (9)八、风险评估结论 (9)南山隧道风险评估报告一、工程概况本合同段南山隧道工程位于广东省兴宁市黄槐镇禾村范围内,平远端洞口段左、右线线间距约为18m,梅河高速端洞口段左、右线线间距约为14m;设计为小净距隧道,洞室净空10.75×5m。
南山隧道地面最大高程约为287m,隧道最大埋深约为55m;左、右线隧道平远端位于圆曲线上,左、右线隧道梅河高速端均位于缓和曲线上。
左线LK1625+926~LK1626+284,长度为358m;右线:RK1625+900~LK1626+276,长度376m。
隧道洞身围岩以全~强风化岩为主,局部为中风化岩。
全~强风化岩强度低,遇水易软化,中风化岩强度较高,属较硬岩。
强~中风化岩体层面、节理、风化裂隙发育,岩体破碎。
因此,本隧道全~强风化岩初步划分为Ⅴ级围岩,中风化岩初步划分为Ⅳ级围岩。
洞身以系统锚杆、喷深混凝土、钢筋网、格栅钢架、工字钢钢架等组成的初期支护与二次模筑混凝土相结合的复合衬砌型式。
左线衬砌类型(358m)右线衬砌类型(376m)二、编制依据(1)《公路桥梁与隧道工程施工安全风险评估指南》(试行)(2)《转发交通运输部关于开展公路桥梁和隧道工程施工安全风险评估试行工作的通知》(粤交基函〔2011〕1284)(3)《公路隧道施工技术规范》、《公路隧道施工技术细则》(4)《爆破安全规程》(GB6722-2003)(5)《广东省高速公路建设标准化管理规定》、《广东省高速公路建设标准化管理指南》(6)《广东省公路工程平安工地建设基本要求》(7)有关安全规范及业主、监理等单位对隧道安全施工的相关要求。
厦深铁路大南山隧道F2-1断层突泥涌水处理技术
蒲小平;王全胜
【期刊名称】《隧道建设》
【年(卷),期】2009(029)004
【摘要】厦深铁路大南山隧道在开挖至F2-1断层破碎带DK262+411时出现了突泥涌水,涌水量约为60m3/h,段内围岩主要为花岗岩、石英岩、辉绿岩等组成的断层角砾岩,遇水泥化,围岩稳定性差,根据现场情况设计了止浆墙,并采用上半断面布孔的全断面注浆技术对该段进行了注浆堵水和加固处理,顺利安全地通过了该断层.
【总页数】4页(P466-469)
【作者】蒲小平;王全胜
【作者单位】中铁隧道集团三处有限公司,广东,深圳,518052;中铁隧道集团有限公司洛阳科学技术研究所,河南,洛阳,471009
【正文语种】中文
【中图分类】U455.4
【相关文献】
1.厦深铁路梁山隧道L7断层大规模突水涌泥溃口封堵技术 [J], 林福地
2.客运专线铁路大断面隧道断层涌水、涌泥处治技术研究 [J], 李辉
3.铁路隧道大断层突水涌沙处治技术 [J], 张旭辉
4.花椒坡隧道断层破碎带突泥涌水处治技术 [J], 林克
5.丽香铁路花椒坡隧道断层破碎带突泥涌水处治技术 [J], 林克
因版权原因,仅展示原文概要,查看原文内容请购买。
广元南山隧道规划方案随着城市交通的发展和人们出行需求的增加,广元市决定建设一条名为广元南山隧道的重要交通通道,以缓解城市交通拥堵问题并提高市民出行的效率和舒适度。
本文将介绍广元南山隧道规划方案的主要内容。
一、项目概述广元南山隧道是一项重大的城市基础设施建设项目,旨在连接广元市南区和山区,缩短交通运输时间,改善山区居民的出行条件。
隧道全长约10公里,设计速度为80公里/小时。
为了保证隧道的通行安全和舒适度,规划中将设置多个应急出口和疏导通道,并且配备先进的照明和通风设施。
二、隧道设计1. 隧道路线设计考虑到地质条件和环境因素,广元南山隧道的路线经过了详尽的勘察和评估。
规划中的隧道路线兼顾了地形起伏、山体稳定性等因素,确保了隧道的安全和稳定性。
2. 隧道截面设计广元南山隧道的截面设计采用了现代化的标准,以确保车辆通行的便捷性。
隧道将设置标准的行车道、应急车道以及隔离带,以提供充足的通行空间。
3. 照明和通风系统设计为了确保隧道中的良好亮度和空气质量,广元南山隧道将配备先进的照明和通风系统。
照明系统将采用高效节能的LED灯具,以提供明亮、均匀的照明效果。
通风系统将使用循环风系统,确保隧道内新鲜空气的持续供应,并排除有害气体和烟雾。
三、出口和连通道路规划广元南山隧道规划中将设置多个出口和连通道路,以提供便捷的通行方式。
出口将设置在适当的位置,方便进入相应的城市区域。
同时,为了解决交通拥堵问题,规划中还将建设与隧道相连的快速道路和环线,为市民的出行提供更多选择。
四、环境保护措施广元南山隧道规划方案中充分考虑到环境保护问题,采取了以下措施:1. 减少噪音污染在隧道设计中将采用隔音材料,减少交通噪音对周边居民的影响。
同时,在隧道出口处设置隔音屏障,进一步降低噪音传播。
2. 减少空气污染为了减少车辆尾气对隧道内空气质量的影响,将设置排风系统,排出尾气中的有害物质。
同时,隧道入口处将设置洗车设施,要求车辆在入口前进行清洁,减少尾气排放。