幕墙隐蔽验收记录范例
- 格式:docx
- 大小:27.28 KB
- 文档页数:6
编号:03-02□□□工程名称城厢街道湖头陈社区城中村改造安置房-湖头陈花苑(暂名)一期工程分部(子分部)工程名称幕墙工程项目经理赵小明施工单位龙邦装潢股份有限公司验收部位3#楼东面施工图号施工执行标准名称及编号建筑装饰装修工程质量验收规范《GB50210-2001》分项工程名称/检验批编号预埋件隐蔽联系单号或日期检查项目检查情况说明或简图:1、预埋件、后置埋件的数量、位置及后置埋件的拉拔力符合要求2、各种材料的链接情况符合要求3、金属柜架及连接件的防腐处理符合要求4、变形缝、墙角的链接节点符合要求检查验收意见施工单位项目专业质量检验员(签名):项目专业技术负责人(签名):监理单位专业监理工程师(签名):(建设单位项目专业技术负责人)编号:03-02□□□工程名称城厢街道湖头陈社区城中村改造安置房-湖头陈花苑(暂名)一期工程分部(子分部)工程名称幕墙工程项目经理赵小明施工单位龙邦装潢股份有限公司验收部位3#楼南面施工图号施工执行标准名称及编号建筑装饰装修工程质量验收规范《GB50210-2001》分项工程名称/检验批编号预埋件隐蔽联系单号或日期检查项目检查情况说明或简图:1、预埋件、后置埋件的数量、位置及后置埋件的拉拔力符合要求2、各种材料的链接情况符合要求3、金属柜架及连接件的防腐处理符合要求4、变形缝、墙角的链接节点符合要求检查验收意见施工单位项目专业质量检验员(签名):项目专业技术负责人(签名):监理单位专业监理工程师(签名):(建设单位项目专业技术负责人)编号:03-02□□□工程名称城厢街道湖头陈社区城中村改造安置房-湖头陈花苑(暂名)一期工程分部(子分部)工程名称幕墙工程项目经理赵小明施工单位龙邦装潢股份有限公司验收部位3#楼西面施工图号施工执行标准名称及编号建筑装饰装修工程质量验收规范《GB50210-2001》分项工程名称/检验批编号预埋件隐蔽联系单号或日期检查项目检查情况说明或简图:1、预埋件、后置埋件的数量、位置及后置埋件的拉拔力符合要求2、各种材料的链接情况符合要求3、金属柜架及连接件的防腐处理符合要求4、变形缝、墙角的链接节点符合要求检查验收意见施工单位项目专业质量检验员(签名):项目专业技术负责人(签名):监理单位专业监理工程师(签名):(建设单位项目专业技术负责人)编号:03-02□□□工程名称城厢街道湖头陈社区城中村改造安置房-湖头陈花苑(暂名)一期工程分部(子分部)工程名称幕墙工程项目经理赵小明施工单位龙邦装潢股份有限公司验收部位3#楼北面施工图号施工执行标准名称及编号建筑装饰装修工程质量验收规范《GB50210-2001》分项工程名称/检验批编号预埋件隐蔽联系单号或日期检查项目检查情况说明或简图:1、预埋件、后置埋件的数量、位置及后置埋件的拉拔力符合要求2、各种材料的链接情况符合要求3、金属柜架及连接件的防腐处理符合要求4、变形缝、墙角的链接节点符合要求检查验收意见施工单位项目专业质量检验员(签名):项目专业技术负责人(签名):监理单位专业监理工程师(签名):(建设单位项目专业技术负责人)编号:03-02□□□工程名称城厢街道湖头陈社区城中村改造安置房-湖头陈花苑(暂名)一期工程分部(子分部)工程名称幕墙工程项目经理赵小明施工单位龙邦装潢股份有限公司验收部位4#楼东面施工图号施工执行标准名称及编号建筑装饰装修工程质量验收规范《GB50210-2001》分项工程名称/检验批编号预埋件隐蔽联系单号或日期检查项目检查情况说明或简图:1、预埋件、后置埋件的数量、位置及后置埋件的拉拔力符合要求2、各种材料的链接情况符合要求3、金属柜架及连接件的防腐处理符合要求4、变形缝、墙角的链接节点符合要求检查验收意见施工单位项目专业质量检验员(签名):项目专业技术负责人(签名):监理单位专业监理工程师(签名):(建设单位项目专业技术负责人)编号:03-02□□□工程名称城厢街道湖头陈社区城中村改造安置房-湖头陈花苑(暂名)一期工程分部(子分部)工程名称幕墙工程项目经理赵小明施工单位龙邦装潢股份有限公司验收部位4#楼南面施工图号施工执行标准名称及编号建筑装饰装修工程质量验收规范《GB50210-2001》分项工程名称/检验批编号预埋件隐蔽联系单号或日期检查项目检查情况说明或简图:1、预埋件、后置埋件的数量、位置及后置埋件的拉拔力符合要求2、各种材料的链接情况符合要求3、金属柜架及连接件的防腐处理符合要求4、变形缝、墙角的链接节点符合要求检查验收意见施工单位项目专业质量检验员(签名):项目专业技术负责人(签名):监理单位专业监理工程师(签名):(建设单位项目专业技术负责人)编号:03-02□□□工程名称城厢街道湖头陈社区城中村改造安置房-湖头陈花苑(暂名)一期工程分部(子分部)工程名称幕墙工程项目经理赵小明施工单位龙邦装潢股份有限公司验收部位4#楼西面施工图号施工执行标准名称及编号建筑装饰装修工程质量验收规范《GB50210-2001》分项工程名称/检验批编号预埋件隐蔽联系单号或日期检查项目检查情况说明或简图:1、预埋件、后置埋件的数量、位置及后置埋件的拉拔力符合要求2、各种材料的链接情况符合要求3、金属柜架及连接件的防腐处理符合要求4、变形缝、墙角的链接节点符合要求检查验收意见施工单位项目专业质量检验员(签名):项目专业技术负责人(签名):监理单位专业监理工程师(签名):(建设单位项目专业技术负责人)编号:03-02□□□工程名称城厢街道湖头陈社区城中村改造安置房-湖头陈花苑(暂名)一期工程分部(子分部)工程名称幕墙工程项目经理赵小明施工单位龙邦装潢股份有限公司验收部位4#楼北面施工图号施工执行标准名称及编号建筑装饰装修工程质量验收规范《GB50210-2001》分项工程名称/检验批编号预埋件隐蔽联系单号或日期检查项目检查情况说明或简图:1、预埋件、后置埋件的数量、位置及后置埋件的拉拔力符合要求2、各种材料的链接情况符合要求3、金属柜架及连接件的防腐处理符合要求4、变形缝、墙角的链接节点符合要求检查验收意见施工单位项目专业质量检验员(签名):项目专业技术负责人(签名):监理单位专业监理工程师(签名):(建设单位项目专业技术负责人)编号:03-02□□□工程名称城厢街道湖头陈社区城中村改造安置房-湖头陈花苑(暂名)一期工程分部(子分部)工程名称幕墙工程项目经理赵小明施工单位龙邦装潢股份有限公司验收部位5#楼东面施工图号施工执行标准名称及编号建筑装饰装修工程质量验收规范《GB50210-2001》分项工程名称/检验批编号预埋件隐蔽联系单号或日期检查项目检查情况说明或简图:1、预埋件、后置埋件的数量、位置及后置埋件的拉拔力符合要求2、各种材料的链接情况符合要求3、金属柜架及连接件的防腐处理符合要求4、变形缝、墙角的链接节点符合要求检查验收意见施工单位项目专业质量检验员(签名):项目专业技术负责人(签名):监理单位专业监理工程师(签名):(建设单位项目专业技术负责人)编号:03-02□□□工程名称城厢街道湖头陈社区城中村改造安置房-湖头陈花苑(暂名)一期工程分部(子分部)工程名称幕墙工程项目经理赵小明施工单位龙邦装潢股份有限公司验收部位5#楼南面施工图号施工执行标准名称及编号建筑装饰装修工程质量验收规范《GB50210-2001》分项工程名称/检验批编号预埋件隐蔽联系单号或日期检查项目检查情况说明或简图:1、预埋件、后置埋件的数量、位置及后置埋件的拉拔力符合要求2、各种材料的链接情况符合要求3、金属柜架及连接件的防腐处理符合要求4、变形缝、墙角的链接节点符合要求检查验收意见施工单位项目专业质量检验员(签名):项目专业技术负责人(签名):监理单位专业监理工程师(签名):(建设单位项目专业技术负责人)编号:03-02□□□工程名称城厢街道湖头陈社区城中村改造安置房-湖头陈花苑(暂名)一期工程分部(子分部)工程名称幕墙工程项目经理赵小明施工单位龙邦装潢股份有限公司验收部位5#楼西面施工图号施工执行标准名称及编号建筑装饰装修工程质量验收规范《GB50210-2001》分项工程名称/检验批编号预埋件隐蔽联系单号或日期检查项目检查情况说明或简图:1、预埋件、后置埋件的数量、位置及后置埋件的拉拔力符合要求2、各种材料的链接情况符合要求3、金属柜架及连接件的防腐处理符合要求4、变形缝、墙角的链接节点符合要求检查验收意见施工单位项目专业质量检验员(签名):项目专业技术负责人(签名):监理单位专业监理工程师(签名):(建设单位项目专业技术负责人)编号:03-02□□□工程名称城厢街道湖头陈社区城中村改造安置房-湖头陈花苑(暂名)一期工程分部(子分部)工程名称幕墙工程项目经理赵小明施工单位龙邦装潢股份有限公司验收部位5#楼北面施工图号施工执行标准名称及编号建筑装饰装修工程质量验收规范《GB50210-2001》分项工程名称/检验批编号预埋件隐蔽联系单号或日期检查项目检查情况说明或简图:1、预埋件、后置埋件的数量、位置及后置埋件的拉拔力符合要求2、各种材料的链接情况符合要求3、金属柜架及连接件的防腐处理符合要求4、变形缝、墙角的链接节点符合要求检查验收意见施工单位项目专业质量检验员(签名):项目专业技术负责人(签名):监理单位专业监理工程师(签名):(建设单位项目专业技术负责人)编号:03-02□□□工程名称城厢街道湖头陈社区城中村改造安置房-湖头陈花苑(暂名)一期工程分部(子分部)工程名称幕墙工程项目经理赵小明施工单位龙邦装潢股份有限公司验收部位6#楼东面施工图号施工执行标准名称及编号建筑装饰装修工程质量验收规范《GB50210-2001》分项工程名称/检验批编号预埋件隐蔽联系单号或日期检查项目检查情况说明或简图:1、预埋件、后置埋件的数量、位置及后置埋件的拉拔力符合要求2、各种材料的链接情况符合要求3、金属柜架及连接件的防腐处理符合要求4、变形缝、墙角的链接节点符合要求检查验收意见施工单位项目专业质量检验员(签名):项目专业技术负责人(签名):监理单位专业监理工程师(签名):(建设单位项目专业技术负责人)编号:03-02□□□工程名称城厢街道湖头陈社区城中村改造安置房-湖头陈花苑(暂名)一期工程分部(子分部)工程名称幕墙工程项目经理赵小明施工单位龙邦装潢股份有限公司验收部位6#楼南面施工图号施工执行标准名称及编号建筑装饰装修工程质量验收规范《GB50210-2001》分项工程名称/检验批编号预埋件隐蔽联系单号或日期检查项目检查情况说明或简图:1、预埋件、后置埋件的数量、位置及后置埋件的拉拔力符合要求2、各种材料的链接情况符合要求3、金属柜架及连接件的防腐处理符合要求4、变形缝、墙角的链接节点符合要求检查验收意见施工单位项目专业质量检验员(签名):项目专业技术负责人(签名):监理单位专业监理工程师(签名):(建设单位项目专业技术负责人)编号:03-02□□□工程名称城厢街道湖头陈社区城中村改造安置房-湖头陈花苑(暂名)一期工程分部(子分部)工程名称幕墙工程项目经理赵小明施工单位龙邦装潢股份有限公司验收部位6#楼西面施工图号施工执行标准名称及编号建筑装饰装修工程质量验收规范《GB50210-2001》分项工程名称/检验批编号预埋件隐蔽联系单号或日期检查项目检查情况说明或简图:1、预埋件、后置埋件的数量、位置及后置埋件的拉拔力符合要求2、各种材料的链接情况符合要求3、金属柜架及连接件的防腐处理符合要求4、变形缝、墙角的链接节点符合要求检查验收意见施工单位项目专业质量检验员(签名):项目专业技术负责人(签名):监理单位专业监理工程师(签名):(建设单位项目专业技术负责人)编号:03-02□□□工程名称城厢街道湖头陈社区城中村改造安置房-湖头陈花苑(暂名)一期工程分部(子分部)工程名称幕墙工程项目经理赵小明施工单位龙邦装潢股份有限公司验收部位6#楼北面施工图号施工执行标准名称及编号建筑装饰装修工程质量验收规范《GB50210-2001》分项工程名称/检验批编号预埋件隐蔽联系单号或日期检查项目检查情况说明或简图:1、预埋件、后置埋件的数量、位置及后置埋件的拉拔力符合要求2、各种材料的链接情况符合要求3、金属柜架及连接件的防腐处理符合要求4、变形缝、墙角的链接节点符合要求检查验收意见施工单位项目专业质量检验员(签名):项目专业技术负责人(签名):监理单位专业监理工程师(签名):(建设单位项目专业技术负责人)编号:03-02□□□工程名称城厢街道湖头陈社区城中村改造安置房-湖头陈花苑(暂名)一期工程分部(子分部)工程名称幕墙工程项目经理赵小明施工单位龙邦装潢股份有限公司验收部位7#楼东面施工图号施工执行标准名称及编号建筑装饰装修工程质量验收规范《GB50210-2001》分项工程名称/检验批编号预埋件隐蔽联系单号或日期检查项目检查情况说明或简图:1、预埋件、后置埋件的数量、位置及后置埋件的拉拔力符合要求2、各种材料的链接情况符合要求3、金属柜架及连接件的防腐处理符合要求4、变形缝、墙角的链接节点符合要求检查验收意见施工单位项目专业质量检验员(签名):项目专业技术负责人(签名):监理单位专业监理工程师(签名):(建设单位项目专业技术负责人)编号:03-02□□□工程名称城厢街道湖头陈社区城中村改造安置房-湖头陈花苑(暂名)一期工程分部(子分部)工程名称幕墙工程项目经理赵小明施工单位龙邦装潢股份有限公司验收部位7#楼南面施工图号施工执行标准名称及编号建筑装饰装修工程质量验收规范《GB50210-2001》分项工程名称/检验批编号预埋件隐蔽联系单号或日期检查项目检查情况说明或简图:1、预埋件、后置埋件的数量、位置及后置埋件的拉拔力符合要求2、各种材料的链接情况符合要求3、金属柜架及连接件的防腐处理符合要求4、变形缝、墙角的链接节点符合要求检查验收意见施工单位项目专业质量检验员(签名):项目专业技术负责人(签名):监理单位专业监理工程师(签名):(建设单位项目专业技术负责人)编号:03-02□□□工程名称城厢街道湖头陈社区城中村改造安置房-湖头陈花苑(暂名)一期工程分部(子分部)工程名称幕墙工程项目经理赵小明施工单位龙邦装潢股份有限公司验收部位7#楼西面施工图号施工执行标准名称及编号建筑装饰装修工程质量验收规范《GB50210-2001》分项工程名称/检验批编号预埋件隐蔽联系单号或日期检查项目检查情况说明或简图:1、预埋件、后置埋件的数量、位置及后置埋件的拉拔力符合要求2、各种材料的链接情况符合要求3、金属柜架及连接件的防腐处理符合要求4、变形缝、墙角的链接节点符合要求检查验收意见施工单位项目专业质量检验员(签名):项目专业技术负责人(签名):监理单位专业监理工程师(签名):(建设单位项目专业技术负责人)编号:03-02□□□工程名称城厢街道湖头陈社区城中村改造安置房-湖头陈花苑(暂名)一期工程分部(子分部)工程名称幕墙工程项目经理赵小明施工单位龙邦装潢股份有限公司验收部位7#楼北面施工图号施工执行标准名称及编号建筑装饰装修工程质量验收规范《GB50210-2001》分项工程名称/检验批编号预埋件隐蔽联系单号或日期检查项目检查情况说明或简图:1、预埋件、后置埋件的数量、位置及后置埋件的拉拔力符合要求2、各种材料的链接情况符合要求3、金属柜架及连接件的防腐处理符合要求4、变形缝、墙角的链接节点符合要求检查验收意见施工单位项目专业质量检验员(签名):项目专业技术负责人(签名):监理单位专业监理工程师(签名):(建设单位项目专业技术负责人)编号:03-02□□□工程名称城厢街道湖头陈社区城中村改造安置房-湖头陈花苑(暂名)一期工程分部(子分部)工程名称幕墙工程项目经理赵小明施工单位龙邦装潢股份有限公司验收部位8#楼东面施工图号施工执行标准名称及编号建筑装饰装修工程质量验收规范《GB50210-2001》分项工程名称/检验批编号预埋件隐蔽联系单号或日期检查项目检查情况说明或简图:1、预埋件、后置埋件的数量、位置及后置埋件的拉拔力符合要求2、各种材料的链接情况符合要求3、金属柜架及连接件的防腐处理符合要求4、变形缝、墙角的链接节点符合要求检查验收意见施工单位项目专业质量检验员(签名):项目专业技术负责人(签名):监理单位专业监理工程师(签名):(建设单位项目专业技术负责人)编号:03-02□□□工程名称城厢街道湖头陈社区城中村改造安置房-湖头陈花苑(暂名)一期工程分部(子分部)工程名称幕墙工程项目经理赵小明施工单位龙邦装潢股份有限公司验收部位8#楼南面施工图号施工执行标准名称及编号建筑装饰装修工程质量验收规范《GB50210-2001》分项工程名称/检验批编号预埋件隐蔽联系单号或日期检查项目检查情况说明或简图:1、预埋件、后置埋件的数量、位置及后置埋件的拉拔力符合要求2、各种材料的链接情况符合要求3、金属柜架及连接件的防腐处理符合要求4、变形缝、墙角的链接节点符合要求检查验收意见施工单位项目专业质量检验员(签名):项目专业技术负责人(签名):监理单位专业监理工程师(签名):(建设单位项目专业技术负责人)编号:03-02□□□工程名称城厢街道湖头陈社区城中村改造安置房-湖头陈花苑(暂名)一期工程分部(子分部)工程名称幕墙工程项目经理赵小明施工单位龙邦装潢股份有限公司验收部位8#楼西面施工图号施工执行标准名称及编号建筑装饰装修工程质量验收规范《GB50210-2001》分项工程名称/检验批编号预埋件隐蔽联系单号或日期检查项目检查情况说明或简图:1、预埋件、后置埋件的数量、位置及后置埋件的拉拔力符合要求2、各种材料的链接情况符合要求3、金属柜架及连接件的防腐处理符合要求4、变形缝、墙角的链接节点符合要求检查验收意见施工单位项目专业质量检验员(签名):项目专业技术负责人(签名):监理单位专业监理工程师(签名):(建设单位项目专业技术负责人)编号:03-02□□□工程名称城厢街道湖头陈社区城中村改造安置房-湖头陈花苑(暂名)一期工程分部(子分部)工程名称幕墙工程项目经理赵小明施工单位龙邦装潢股份有限公司验收部位8#楼北面施工图号施工执行标准名称及编号建筑装饰装修工程质量验收规范《GB50210-2001》分项工程名称/检验批编号预埋件隐蔽联系单号或日期检查项目检查情况说明或简图:1、预埋件、后置埋件的数量、位置及后置埋件的拉拔力符合要求2、各种材料的链接情况符合要求3、金属柜架及连接件的防腐处理符合要求4、变形缝、墙角的链接节点符合要求检查验收意见施工单位项目专业质量检验员(签名):项目专业技术负责人(签名):监理单位专业监理工程师(签名):(建设单位项目专业技术负责人)编号:03-02□□□工程名称城厢街道湖头陈社区城中村改造安置房-湖头陈花苑(暂名)一期工程分部(子分部)工程名称幕墙工程项目经理赵小明施工单位龙邦装潢股份有限公司验收部位9#楼东面施工图号施工执行标准名称及编号建筑装饰装修工程质量验收规范《GB50210-2001》分项工程名称/检验批编号预埋件隐蔽联系单号或日期检查项目检查情况说明或简图:1、预埋件、后置埋件的数量、位置及后置埋件的拉拔力符合要求2、各种材料的链接情况符合要求3、金属柜架及连接件的防腐处理符合要求4、变形缝、墙角的链接节点符合要求检查验收意见施工单位项目专业质量检验员(签名):项目专业技术负责人(签名):监理单位专业监理工程师(签名):(建设单位项目专业技术负责人)编号:03-02□□□工程名称城厢街道湖头陈社区城中村改造安置房-湖头陈花苑(暂名)一期工程分部(子分部)工程名称幕墙工程项目经理赵小明施工单位龙邦装潢股份有限公司验收部位9#楼南面施工图号施工执行标准名称及编号建筑装饰装修工程质量验收规范《GB50210-2001》分项工程名称/检验批编号预埋件隐蔽联系单号或日期检查项目检查情况说明或简图:1、预埋件、后置埋件的数量、位置及后置埋件的拉拔力符合要求2、各种材料的链接情况符合要求3、金属柜架及连接件的防腐处理符合要求4、变形缝、墙角的链接节点符合要求检查验收意见施工单位项目专业质量检验员(签名):项目专业技术负责人(签名):监理单位专业监理工程师(签名):(建设单位项目专业技术负责人)编号:03-02□□□工程名称城厢街道湖头陈社区城中村改造安置房-湖头陈花苑(暂名)一期工程分部(子分部)工程名称幕墙工程项目经理赵小明施工单位龙邦装潢股份有限公司验收部位9#楼西面施工图号施工执行标准名称及编号建筑装饰装修工程质量验收规范《GB50210-2001》分项工程名称/检验批编号预埋件隐蔽联系单号或日期检查项目检查情况说明或简图:1、预埋件、后置埋件的数量、位置及后置埋件的拉拔力符合要求2、各种材料的链接情况符合要求3、金属柜架及连接件的防腐处理符合要求4、变形缝、墙角的链接节点符合要求检查验收意见施工单位项目专业质量检验员(签名):项目专业技术负责人(签名):监理单位专业监理工程师(签名):(建设单位项目专业技术负责人)。
A7工程报验单工程名称:光莆产业基地一期工程办公楼编号:办公玻璃节点隐001附件:1、分项的工程验收,应由质检员提早24小时〔特殊情况不得少于12小时〕签发本通知单,报送专业监理工程师。
2、地基与根底工程、主体结构中间验收应由质检员提早二天签发本通知单,报送监理工程师。
3、本表由施工单位填写一式三份,审核后建设、监理、施工单位各留一份。
*咨询题少时可直截了当在“审查、验收意见〞中列出,多时写“详见监理通知〞。
厦门市建设监理专业委员会监制隐蔽工程验收记录A7工程报验单工程名称:光莆产业基地一期工程办公楼编号:办公玻璃节点隐002附件:1、分项的工程验收,应由质检员提早24小时〔特殊情况不得少于12小时〕签发本通知单,报送专业监理工程师。
2、地基与根底工程、主体结构中间验收应由质检员提早二天签发本通知单,报送监理工程师。
3、本表由施工单位填写一式三份,审核后建设、监理、施工单位各留一份。
*咨询题少时可直截了当在“审查、验收意见〞中列出,多时写“详见监理通知〞。
厦门市建设监理专业委员会监制隐蔽工程验收记录A7工程报验单工程名称:光莆产业基地一期工程办公楼编号:办公玻璃节点隐003附件:1、分项的工程验收,应由质检员提早24小时〔特殊情况不得少于12小时〕签发本通知单,报送专业监理工程师。
2、地基与根底工程、主体结构中间验收应由质检员提早二天签发本通知单,报送监理工程师。
3、本表由施工单位填写一式三份,审核后建设、监理、施工单位各留一份。
*咨询题少时可直截了当在“审查、验收意见〞中列出,多时写“详见监理通知〞。
厦门市建设监理专业委员会监制隐蔽工程验收记录A7工程报验单工程名称:光莆产业基地一期工程办公楼编号:办公玻璃节点隐004附件:1、分项的工程验收,应由质检员提早24小时〔特殊情况不得少于12小时〕签发本通知单,报送专业监理工程师。
2、地基与根底工程、主体结构中间验收应由质检员提早二天签发本通知单,报送监理工程师。
本表由施工单位填报,建设单位、施工单位、城建档案馆各保存一份。
本表由施工单位填报,建设单位、施工单位、城建档案馆各保存一份。
基础底板后浇带层⑦~⑧/~轴线-5.750~-4.950m标高隐检依据:施工图图号结施1,设计变更/洽商(编号)及有关国家现行标准等。
主要材料名称及规格/型号:钢筋HRB33514、16、18
检查意见:
经检查:1.基础底板⑦~⑧/~轴后浇带钢筋的品种、级别、规格、配筋数量、位置、间距符合设计要求。
2.钢筋绑扎安装质量牢固,无漏扣现象,观感符合要求,搭接长度42d。
3.保护层厚度符合要求。
上述项目均符合《混凝土结构工程施工质量验收规范》(GB50204-2002)的规定。
检查结论:□同意隐蔽□不同意,修改后重新复查
本表由施工单位填报,建设单位、施工单位、城建档案馆各保存一份。
本表由施工单位填报,建设单位、施工单位、城建档案馆各保存一份。
本表由施工单位填报,建设单位、施工单位、城建档案馆各保存一份。
复查人:复查日期:
签字栏建设(监理)单位
施工单位
专业技术负责人专业质检员专业工长。
注:本表由施工单位填写。
山东省建设工程质量监督总站监制注:本表由施工单位填写。
山东省建设工程质量监督总站监制注:本表由施工单位填写。
山东省建设工程质量监督总站监制注:本表由施工单位填写。
山东省建设工程质量监督总站监制注:本表由施工单位填写。
山东省建设工程质量监督总站监制注:本表由施工单位填写.山东省建设工程质量监督总站监制注:本表由施工单位填写。
山东省建设工程质量监督总站监制注:本表由施工单位填写。
山东省建设工程质量监督总站监制注:本表由施工单位填写。
山东省建设工程质量监督总站监制注:本表由施工单位填写。
山东省建设工程质量监督总站监制注:本表由施工单位填写。
山东省建设工程质量监督总站监制注:本表由施工单位填写。
山东省建设工程质量监督总站监制注:本表由施工单位填写。
山东省建设工程质量监督总站监制注:本表由施工单位填写。
山东省建设工程质量监督总站监制注:本表由施工单位填写。
山东省建设工程质量监督总站监制注:本表由施工单位填写。
山东省建设工程质量监督总站监制注:本表由施工单位填写。
山东省建设工程质量监督总站监制注:本表由施工单位填写.山东省建设工程质量监督总站监制注:本表由施工单位填写。
山东省建设工程质量监督总站监制注:本表由施工单位填写.山东省建设工程质量监督总站监制注:本表由施工单位填写。
山东省建设工程质量监督总站监制注:本表由施工单位填写。
山东省建设工程质量监督总站监制注:本表由施工单位填写。
山东省建设工程质量监督总站监制。
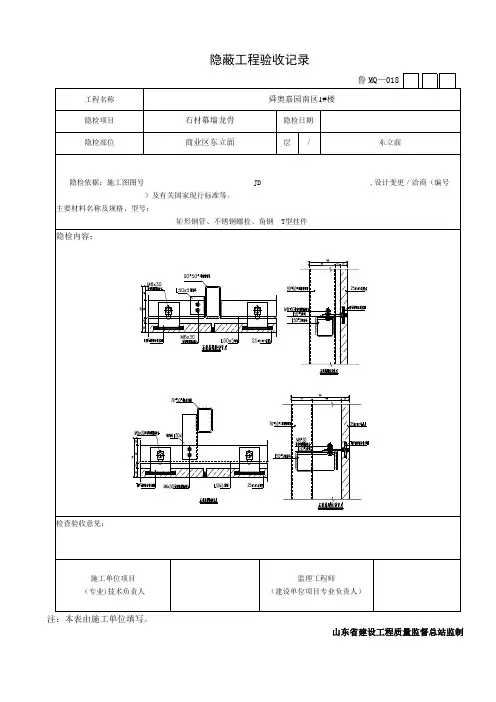
幕墙隐蔽验收记录范例一、幕墙隐蔽工程检查内容依据施工图纸、有关施工验收规范要求和施工方案、技术交底,检查以下内容:1.预埋件(或后置埋件)、连接件、紧固件连接:各种埋件、连接件、紧固件的数量、规格、位置、锚固深度和防腐处理等。
2.连接节点处理:幕墙顶部(女儿墙部位)、幕墙底部、立柱、梁柱等的连接情况。
3.变形缝及墙面转角处的构造节点处理:幕墙的抗震缝、伸缩缝、沉降缝等部位的处理(宜采用详图示意),墙角的连接节点(宜采用详图示意)应符合设计要求和技术标准的规定;变形缝罩面与两侧幕墙结合处不得渗透。
4.幕墙防雷装置设置:幕墙应形成自身的防雷体系,并与主体结构的防雷体系可靠地连接,严禁串联;女儿墙部位的连接节点(宜采用详图示意)应符合设计规定等。
5.幕墙防火、保温及防潮层构造处理。
1)防火材料铺设:防火材料品种、材质、耐火品级、铺设厚度、防腐处置惩罚应吻合设计和标准划定;铺设应饱满、均匀、无漏掉,厚度同等且不宜小于70mm;防火材料不得与幕墙玻璃间接接触。
防火层的密封材料应接纳防火密封胶,防火层与玻璃的间距应大于40mm。
2)防火节点安装:防火节点构造必须符合设计要求;安装应牢固,无遗漏,并应严密无缝隙;防火层与幕墙和主体结构间的缝隙必须用防火密封胶严密封闭。
3)玻璃幕墙四周与主体布局之间的漏洞,应接纳防火保温材料填塞,填塞应饱满、平整、接缝应周密不渗漏。
保温材料密度、厚度应吻合设计请求。
2、幕墙隐蔽工程填写要点幕墙工程隐检记录中要注明施工图纸编号,幕墙类型,主要材料的规格型号、预埋件、连接件、紧固件的具体位置、连接方法和防腐处理;主体结构与立柱、立柱与横梁的连接情况;玻璃与玻璃、玻璃与玻璃肋间缝隙的填充情况;防雷节点的位置,防火、防水、保温情况等,将检查内容描述清楚。
隐蔽工程验收记录表C5-1工程名称施工单位验收项目验收部位XXX玻璃幕墙(立柱、横粱安装)资料编号筑业软件大厦监理单位验收日期0309C5001XXX2017年4月11日六层,1-17/A-H轴,33.6m~39.2m验收内容:1.后置埋件(MJ01、MJ02)使用M12×160的化学螺栓及M12×100的收缩螺栓固定在主体布局上,化学螺栓与收缩螺检对角布置。
注:本表由施工单位填写。
山东省建设工程质量监督总站监制注:本表由施工单位填写。
山东省建设工程质量监督总站监制注:本表由施工单位填写。
山东省建设工程质量监督总站监制注:本表由施工单位填写。
山东省建设工程质量监督总站监制注:本表由施工单位填写。
山东省建设工程质量监督总站监制隐蔽工程验收记录注:本表由施工单位填写。
山东省建设工程质量监督总站监制隐蔽工程验收记录注:本表由施工单位填写。
山东省建设工程质量监督总站监制隐蔽工程验收记录注:本表由施工单位填写。
山东省建设工程质量监督总站监制隐蔽工程验收记录注:本表由施工单位填写。
山东省建设工程质量监督总站监制隐蔽工程验收记录注:本表由施工单位填写。
山东省建设工程质量监督总站监制隐蔽工程验收记录注:本表由施工单位填写。
山东省建设工程质量监督总站监制隐蔽工程验收记录注:本表由施工单位填写。
山东省建设工程质量监督总站监制隐蔽工程验收记录注:本表由施工单位填写。
山东省建设工程质量监督总站监制隐蔽工程验收记录注:本表由施工单位填写。
山东省建设工程质量监督总站监制隐蔽工程验收记录注:本表由施工单位填写。
山东省建设工程质量监督总站监制隐蔽工程验收记录注:本表由施工单位填写。
山东省建设工程质量监督总站监制隐蔽工程验收记录注:本表由施工单位填写。
山东省建设工程质量监督总站监制隐蔽工程验收记录注:本表由施工单位填写。
山东省建设工程质量监督总站监制隐蔽工程验收记录注:本表由施工单位填写。
山东省建设工程质量监督总站监制隐蔽工程验收记录注:本表由施工单位填写。
山东省建设工程质量监督总站监制隐蔽工程验收记录注:本表由施工单位填写。
山东省建设工程质量监督总站监制隐蔽工程验收记录注:本表由施工单位填写。
山东省建设工程质量监督总站监制隐蔽工程验收记录注:本表由施工单位填写。
山东省建设工程质量监督总站监制你知道你能做到,别人觉得你也许可以做到,那么,少废话,做到再说,其他的怨气都是虚妄。
自己没有展露光芒,就不应该怪别人没有眼光。
幕墙隐蔽验收记录范例
一、幕墙隐蔽工程检查内容
依据施工图纸、有关施工验收规范要求和施工方案、技术交底,检查以下内容:
1.预埋件(或后置埋件)、连接件、紧固件连接:各种埋件、连接件、紧固件的数量、规格、位置、锚固深度和防腐处理等。
2.连接节点处理:幕墙顶部(女儿墙部位)、幕墙底部、立柱、梁柱等的连接情况。
3.变形缝及墙面转角处的构造节点处理:幕墙的抗震缝、伸缩缝、沉降缝等部位的处理(宜采用详图示意),墙角的连接节点(宜采用详图示意)应符合设计要求和技术标准的规定;变形缝罩面与两侧幕墙结合处不得渗透。
4.幕墙防雷装置设置:幕墙应形成自身的防雷体系,并与主体结构的防雷体系可靠地连接,严禁串联;女儿墙部位的连接节点(宜采用详图示意)应符合设计规定等。
5.幕墙防火、保温及防潮层构造处理。
(1)防火材料铺设:防火材料品种、材质、耐火等级、铺设厚度、防腐处理应符合设计和标准规定;铺设应饱满、均匀、无遗漏,厚度一致且不宜小于70mm;防火材料不得与幕墙玻璃直接接触。
防火层的密封材料应采用防火密封胶,防火层与玻璃的间距应大于
40mm。
(2)防火节点安装:防火节点构造必须符合设计要求;安装应牢固,无遗漏,并应严密无缝隙;防火层与幕墙和主体结构间的缝隙必须用防火密封胶严密封闭。
(3)玻璃幕墙四周与主体结构之间的缝隙,应采用防火保温材料填塞,填塞应饱满、平整、接缝应严密不渗漏。
保温材料密度、厚度应符合设计要求。
二、幕墙隐蔽工程填写要点
幕墙工程隐检记录中要注明施工图纸编号,幕墙类型,主要材料的规格型号、预埋件、连接件、紧固件的具体位置、连接方法和防腐处理;主体结构与立柱、立柱与横梁的连接情况;玻璃与玻璃、玻璃与玻璃肋间缝隙的填充情况;防雷节点的位置,防火、防水、保温情况等,将检查内容描述清楚。