木门安装工艺流程图
- 格式:doc
- 大小:73.00 KB
- 文档页数:4
安装工序流程标准木门安装是整个木门工艺流程中最重要一道工序,测量尺寸是安装工序中的重中之重,尺寸的准确决定工程质量与进度,且行业中有一谚语“三分制造,七分安装”,足见木门安装的重要性.安装工序的工艺流程是否标准顺畅决定工程的成败,木门安装的工艺流程简述如下:一:木门出厂检验检验项目:成品入库前的检验是对成品木门主要项目和一般项目的检验,包括构件连接、扇的启闭、木门的装配质量、外形尺寸、表面质量方面的检验.其检验项目、内容、等级要求如下表:二:包装合格成品在检验完毕后,一定要包装,防止在运输过程中损坏.1施工现场成品储运与保管1木门在现场的运输过程中应防止剧烈碰撞及相互磨损,严禁撬摔.2木门应放置在通风防雨清洁平整的地方,严禁与腐蚀性物质接触,更应防止人为因素破坏.3木门不宜直接触地面,底部应衬垫厚度不小于30mm非金属防滑垫板.不同规格木门不宜叠放.4成品储存的环境温度应小于50℃,距热源不小于2m.凡在低于10℃环境中存放的木门应在室温下放置24小时后再进行安装.三:安装工艺.墙体及洞口要求木门必须在基体或基层验收合格后方可进行.安装必须采用预留洞口的方法,木门洞口尺寸应符合GB5824-86中的有关规定.对于同一类型木门左右相邻洞口的上下边及上下相邻洞口的左右边均应在同一水平线或垂直线上.且门套与墙体缝隙不易过小,应能够填充发泡剂为宜.洞口宽度及高度允许偏差应符合表的有关规定.木门安装应在墙体湿作业完成且固化后进行.1安装位置基准线的确定1.洞口宽度方向基准线为洞口中线,中线由建筑物最高层一次垂吊标记,门套的宽度方向基准线为门洞口中线.2.抹完底灰的洞口应以洞口高度中线作为水平基准线,对于较大规模工程,应以统一确定的水平基准线为准3.墙体厚度方向基准线根据设计或施工要求确定.2木门框与墙体的固定方法1.木门框与墙体的固定可采用发泡胶填充法.发泡胶填充法强度大,稳定性高3安装步骤将木门框放入洞口发泡胶填充法应预先固定门套,并用木楔找正定位.按照基准线要求,用水平尺依次调整校正水平度,垂直度,直角度,缝隙均匀.水平度以下框为基准,垂直度以边框为基准,直角度以对角线为基准.调整时严禁使用硬物锤击框体.2.确认框的水平度,垂直度,直角度均符合要求后填充发泡胶等弹性填充物质.填充发泡胶前要清理干净洞口的灰尘等,待PU发泡胶完全固化后去掉木楔.3.对于特殊工程还应待湿作业固化后在墙体与框接合处打硅密封胶作防水处理.vi.安装木门扇及配件,根据木门不同形式进行安装.表洞口尺寸允许偏差4平开木门装五金五金的规格尺寸、安装位置应符合图纸要求.安装应牢固、可靠,安装螺钉不准有滑扣现象.五金安装后,扇开启、关闭灵活,不存在卡阻现象,使用功能满足使用要求.框扇四周搭接配合应均匀,配合尺寸偏差±1mm.5打胶内外墙胶,宽度要均匀、平滑、无胶翅且连续美观,胶的厚度不低于3mm,宽度不窄于8mm.木门框所有下框安装孔、所有拼接缝、开启扇位置、中梃与L线连接处应打玻璃胶,防止门套受潮导致门套开裂变形等形象的发生.四:质量验收规范操作工人在安装前,首先应检查待安装的木门型材表面是否有划痕,门框横平竖直,对角线公差小于.操作工人严格按工序要求进行安装操作,每道工序完成后立即进行自检,自检中发现的不合格项,班组立即纠正,直到全部合格.发泡剂填充门框与墙体缝隙时应先进行淋水处理,同时还要将空隙中的灰尘处理干净.发泡要保证填充均匀饱满.检查内外墙胶是否横平竖直,宽度要均匀,平滑,胶的厚度不低于3mm,宽度不窄于8mm.木门框所有下框安装孔、所有拼接缝、开启扇位置、中梃与L线连接处应打玻璃胶或者瓷白胶,防止门套受潮导致门套开裂变形等形象的发生.木门构件连接应牢固、不缺件、不松动.木门各附件应符合同级质量标准规定,外表无飞边、毛刺、金属件镀层完整,无脱落、腐蚀等现象.木门相邻构件的着色表面应基本一致,无明显色差.保证满足使用要求,木门扇和配件装配好后,应开启顺畅,不能有阻抗现象.五:售后服务在质保期内,接维修通知24小时内到位维护服务.业主提出的有关产品问题,我方做到4小时内答复.综上所述,木门安装是将一个合格木门经过工地安装,顺利交付用户手中的过程,其重要性可想而知.木门安装的好坏直接影响着木门的使用寿命.影响木门安装的因素多种多样,错综复杂,除了木门制作外,还受土建洞口,外墙保温等外部因素制约,大大增加了木门的安装难度,只有在保证木门制作、安装水平下,努力协调各方关系才能使木门安装达到工地验收标准,顺顺利利的将木门交付到客户手中.安装工序发泡胶的使用说明膨胀胶为比利时进口“速得”品牌;是一种罐装的自喷密封胶,喷出后为发泡状,发泡胶对岩棉,纸芯,木材,铁,泡沫,不锈钢,PVC等粘接力超强,并且耐高温,发泡胶使用特性:1、高膨胀,能有效节约综合成本,能打23米;2、泡沫稳定、抗压强度高、收缩小、使门框与墙体粘结牢固,免钉安装;;3、闭孔率高达95%,防水保温的首选,有效防止二次后胀;4、安装方便快捷,节约人力成本;5、粘结力极强,使门框与墙体粘结极牢固,免钉安装;6、能防霉、防虫.常用于高级木门的、实木复合门、实木门、卫生间门、模压木门等材料的门窗使用.应用温度:料罐的正常使用温度 +5℃~+35℃最佳使用温度 +18℃~+25℃1、门窗安装:门窗与墙体之间的填缝密封,固定粘结、外墙的粘接等;2、隔音消声:语音室、播音室等装修时的缝隙填补,可以起到隔音消声作用等;3、日常维修:空洞、缝隙、墙砖、地砖、地板的修补、汽车隔音、隔热、保温、填充等;4、防水堵漏:自来水管道、下水道等漏洞的修补,堵漏;5、包装运输:可方便地将贵重易碎商品包裹,省时快捷,抗震耐压;。
实木门工艺流程-参考实木门工艺流程1、主要生产工艺流程图:2.1( 一般木门、门框生产工艺流程图:干燥横截纵解平刨压刨截准件门板门框锯风坑出榫头钻榫眼组框门框开止口涂胶、配坯、胶压开榫槽裁边螺圆角封边、铣边、修改开锁眼锯榫肩开铰位钉窗线钉百页打磨、喷漆2.2. 当生产的木门,门框较特殊时,其工艺流程允许有所改动。
3、各工序的加工工艺要求3.1. 干燥3.1.1. 见《木材干燥工艺规程》(HL/T9.1.5)。
3.2 横截3.2.1. 基本工艺和操作要求:根据图纸的长度尺寸加上约10MM的加工余量进行锯切,同时,除去材料中不符合选材要求的缺陷部份(如开裂、腐朽、死节等)。
截料应在材料长度方向长短搭配,做到长材不短用,从而提高木材利用率。
3.2.2. 使用材料、设备:开料锯。
3.2.3. 质量要求:锯成材必须符合选材标准的规定,尺寸只允许正误差,不允许有负误差。
3.2.4. 质量记录:“开料通知单”3.3. 纵解3.3.1 基本工艺和操作要求:根据毛料宽度在工作台上设置定位档块。
其加工余量因材料用途、长度不同而各有规定。
现。
3.3.4. 质量记录:“开料通知单”。
3.4. 平刨3.4.1.基本工艺和操作要求:开机前,将平刨后工作台表面调正在与柱形刀头切削的同一切线上,保持前后工作台平行,确定一次刨削量,通常定为1.5,2.5MM;检查安全装置是否完善,导尺的导向面与工作台面是否垂直。
本工序,严禁加工长度为200MM以下的工作。
操作中,工件一定要紧靠导尺,保证工件相邻面互垂直3.4.2. 使用材料、设备:具有规格尺寸的毛料,平刨。
3.4.3. 质量要求:工作两相邻加面成90度角;被加工表面无明显波痕、毛刺等加工缺陷。
3.5. 压刨3.5.1. 基本工艺和操作要求:开机前,要调试好设备和刀具,待厚度尺寸调试准确后方可生产。
操作中,操作者应站在机床侧进行操作,不能站在机床前后,以免被工件打伤。
3.5.2. 使用材料、设备:具有基准面和基准边的规格必须符合图纸要求,误差范围+1MM,正负件加工面要平直光滑,无明显波纹、毛刺等加工缺陷。
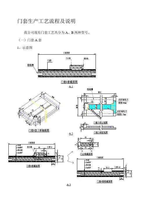
门套生产工艺流程及说明我公司现有门套工艺共分为A、B两种型号。
(一)门套A套1、示意图A-1A-2A-32.1、生产工艺流程图A-4工艺说明1)备料;包括复合板、木皮、门止线等的备料,到仓库统一领取。
复合板为已加工完毕的2440×1220×22+0.2-0.2规格料(结构如A-3示意图)。
门止线为15胶合板铣型后直接包覆木皮。
2)砂光定厚:保证厚度统一,方便后工序加工,注:白色封闭漆不用砂光。
(指定设备:硬辊砂光机)。
3)下料;根据生产明细进行排料下料,长度加20mm加工余量,宽度不加余量;下料宽度误差±0.5mm,允许侧弯范围为1mm/m。
2)、3)工序可根据实际情况调换。
(指定设备:直线锯、高精密推台锯、多片锯)。
4)贴皮;先大面热压贴皮,再窄面封边。
(指定设备:热压机、封边机)5)开槽;按工艺图纸开套板脸线槽、门止线槽。
(指定设备:立轴铣、木线机)。
6)打端;门套上框两端需企口如A-2示意图。
(指定设备:单端铣、双端铣或立铣)7)白茬打磨;机加工完毕,由人工进行白茬打磨修补,满足油漆要求。
8)底漆;根据订单要求进行相应油漆工艺。
9)修色;根据订单要求进行修色。
10)钉门止线;立框齐头,上框如A-2示意图。
(指定设备:直钉枪)11)精裁;按生产明细将套板净尺。
(指定设备:推台锯)12)面漆。
13)质检;油漆完毕质检检验合格通知包装。
14)包装;按包装通知进行包装并合理堆放,通知销售部发货。
2.2、门止线生产工艺流程及说明门止线工艺说明1)备料:从仓库领取15mm胶合板;2)下料:按生产明细下料;(指定设备:直线锯或高精密推台锯或多片锯)3)倒角:按工艺图纸进行倒角;(指定设备:立轴铣)4)开槽:按工艺图纸进行开槽、企口;(指定设备:立轴铣)5)包覆木皮:按订单要求进行包覆木皮;6)白茬打磨:机加工完毕,由人工进行白茬打磨修补,满足油漆要求。
7)油漆:根据订单要求进行相应油漆工艺致修色。
一、关于门的部分:1、目前报价包含:一个门扇,两个长门套,一个短门套(即我们常说的四周的木框),5根线条(门的装饰边线),2.5根门挡条(用在门的三面起密封与消音防震作用)。
我们的门套直接出厂就是成品,购回之后即可直接安装,因其安装简单快捷故称快装套,无须细木工板做基层,省工省时省料,而且我们的门套都是实心的;报价不含五金:锁、合页、门吸,可选择从我们的店铺加钱另配或从其他渠道购买,关于锁孔均由安装师傅现场开,安装的工钱已含此项工作,在现场也更精确,每套门加10元可由我们出厂开好,为自己尝试安装的朋友提供方便;如果选择带玻璃的款式,恕不配玻璃,玻璃厚度不能超过6毫米,请从当地购买;报价不包运费、安装费。
2、产品生产工艺严格依照《国家木门行业标准》,各项性能参数优于同行业品牌:门扇厚4公分,单门扇重25公斤左右,厚重而隔音,门扇表面采用高强度密度板,采用的板材一立方重量达850公斤,在单位面积内,密度越大,分子结构结合越紧密,其强度和韧性越好,门扇四周采用优质杉木做为主料,故称之为高强度密度板与优质杉木复合而成,门扇里面采用龙骨支撑,贯通门扇上下,合理布局,受力均匀,有特殊要求的,可另加钱做全实芯门扇,目前配置其实已经具备实木门的质感与厚重,隔音性能绝佳,可以放心使用的。
3、门的尺寸:因我们提供定制服务,所以会先量好门洞的宽、高和墙厚之后再生产门,对尺寸没有任何限制,可大可小,可宽可窄。
4、门洞量尺寸:门宽度以最窄的尺寸计算、门高度以最低尺寸计算、门厚度以最厚尺寸计算,如果还没有贴瓷砖的减去6公分。
标准门洞尺寸为:210*90*30,也就是说如果您家门洞的尺寸为215*90*32,那么已经超高5cm,超厚2cm。
5、定制时间:一般免漆门从订货到客户收到需要12到20天左右的时间,主要是按标准的生产工艺生产,每一道工序都必不可少,正常的生产周期要7天左右,我们基本可以保证8天左右准时出厂发货,具体的运输时间要根据路途的远近来定,路途近的3到5天,中等远的5到7天,稍微远些的10天左右可到。
木门安装技术交底图文并茂工程名称交底部位交底提要:.技术交底记录鲁JJ—005李沧区李家庵小学建设项目普通教室、舞蹈教室及音乐教室等施工单位工序名称中启胶建集团有限公司木门安装木门安装施工工序中使用的材料、机具、施工顺序、工艺流程、作业条件、人员素质、注意事项、技术要点、成品保护、必要的安全、技术及环保措施、图文说明等。
交底内容:一、施工准备及作业条件:1、施工准备1.1、木门框进入施工现场必须进行验收,木门加工制作的型号,尺寸及加工质量必须符合设计要求,不得有窜角翘扭、弯曲、劈裂、脱胶、戗槎等现象。
要有出厂合格证制作时的木材含水率不应大于12%1.2、五金及配件的型号、规格符合设计要求,产品必须是合格品。
1.3、防腐剂:采用稀释的冷底子油,涂刷木门框与墙体接触的部位。
1.4、清理门洞埋设的木砖,其位置和数量,应满足规定要求。
2、作业条件2.1、门框和扇安装前先检查型号、尺寸、是否正确,外观质量应满足规定要求,不得有损坏和变形。
2.2、木门框与墙体、地面接触部位用冷底子油做防腐。
2.3、主体工程施工完毕,留置洞口尺寸、标高经复核应满足规定要求,室内水平控制线(1.01线)已确定并弹到墙上。
二、施工工艺:,木门1、工艺流程:弹线找规矩→决定门框安装位置→决定安装标高→做门框、扇安装样板→门框安装→门扇安装2、木门框安装2.1、门框的安装应符合图纸要求的型号及尺寸,并注意门扇的开启方向,以确定门框安装的裁口方向,安装高度应按室内楼梯口处的标高(蓝色三角形)为准,从标高处往木门上框口引1.09m。
2.2、按照安装控制线就位,上下用木楔固定,检查无误后用150mm铁钉钉入,钉帽应轧扁,勿全部钉入,预留10mm备后期调整用,安装应牢固可靠,木砖数量应满足要求。
项目(专业)交底人技术负责人接受人山东省建设工程质量监督总站监制注:本记录一式两份,一份交底单位存,一份接受交底单位存。
.工程名称交底部位交底提要:.技术交底记录鲁JJ—005李沧区李家庵小学建设项目普通教室、舞蹈教室及音乐教室等施工单位工序名称中启胶建集团有限公司木门安装木门安装施工工序中使用的材料、机具、施工顺序、工艺流程、作业条件、人员素质、注意事项、技术要点、成品保护、必要的安全、技术及环保措施、图文说明等。
木门安装1)施工准备及作业条件(1)门框和扇安装前应先检查有无窜角、翘扭、弯曲、劈裂,如有以上情况应先进行修理。
(2)门框靠墙、靠地的一面应刷防腐涂料,其他各面及扇均应涂刷清油一道。
刷油后分类码放平整,底层应垫平、垫高。
每层框与框、扇与扇间垫木板条通风,如露天堆放时,需用苫布盖好,不准风晒雨淋。
(3)门框的安装应依据图纸尺寸核实后进行安装,并按图纸开启方向要求,安装时注意裁口方向。
安装高度按室内50cm平线控制。
(4)门框安装应在抹灰前进行。
门扇和窗扇的安装宜在抹灰完成后进行,如窗扇必须先行安装时应注意成品保护;防止碰撞和污染。
2)施工流程3)施工方法(1)安装位置划线:主体结构完工后,复查洞口标高、尺寸和木砖位置,在安装位置划出安装线。
(2)木门框安装:用吊线坠校正框的正、侧面垂直度,用水平尺校正框冒头的水平度。
用砸扁的钉帽的钉子钉牢在木砖上。
钉帽要冲入木框内1-2mm,每块木砖要钉两处。
(3)木门扇安装:量出樘口净尺寸,考虑留缝宽度。
确定门扇的高、宽尺寸,若门扇高、宽尺寸过大,则刨去多余的部分。
门扇为双扇时,应先作打叠高低缝,并以开启方向的右扇压左扇。
试装门扇时,应先用木楔塞在门窗扇的下边,然后再检查缝隙,合格后划出合页的位置线,剔槽装合页。
(4)木门五金安装:所有小五金必须用木螺丝固定,使用木螺丝时,先用手锤钉入全长的1/3,接着用螺丝刀拧入。
小五金应安装齐全,位置适宜,固定可靠。
(5)细部处理A、立口安装:立门框,应综合考虑门口边装修做法,按设计图纸立口,一般应符合以下原则:薄墙的门口不宜立在墙中,可立在墙内侧或外侧,且应预留出墙面装饰量,以达到门口一侧凸出墙装饰面2mm~3mm的效果。
厚墙的门口可立在墙中或里平、外平。
门框立在墙内侧处实例门框立在与墙平处实例B、门框与周围墙面交接处可采取以下处理方法如果墙的一侧为饰面砖墙面时,门口应立在靠近饰面砖墙面一侧,饰面砖直接撞门框,交接处应擦缝严密,宜打胶处理。
木门安装方案Company Document number:WTUT-WT88Y-W8BBGB-BWYTT-19998木门安装1)施工准备及作业条件(1)门框和扇安装前应先检查有无窜角、翘扭、弯曲、劈裂,如有以上情况应先进行修理。
(2)门框靠墙、靠地的一面应刷防腐涂料,其他各面及扇均应涂刷清油一道。
刷油后分类码放平整,底层应垫平、垫高。
每层框与框、扇与扇间垫木板条通风,如露天堆放时,需用苫布盖好,不准风晒雨淋。
(3)门框的安装应依据图纸尺寸核实后进行安装,并按图纸开启方向要求,安装时注意裁口方向。
安装高度按室内50cm平线控制。
(4)门框安装应在抹灰前进行。
门扇和窗扇的安装宜在抹灰完成后进行,如窗扇必须先行安装时应注意成品保护;防止碰撞和污染。
2)施工流程3)施工方法(1)安装位置划线:主体结构完工后,复查洞口标高、尺寸和木砖位置,在安装位置划出安装线。
(2)木门框安装:用吊线坠校正框的正、侧面垂直度,用水平尺校正框冒头的水平度。
用砸扁的钉帽的钉子钉牢在木砖上。
钉帽要冲入木框内1-2mm,每块木砖要钉两处。
(3)木门扇安装:量出樘口净尺寸,考虑留缝宽度。
确定门扇的高、宽尺寸,若门扇高、宽尺寸过大,则刨去多余的部分。
门扇为双扇时,应先作打叠高低缝,并以开启方向的右扇压左扇。
试装门扇时,应先用木楔塞在门窗扇的下边,然后再检查缝隙,合格后划出合页的位置线,剔槽装合页。
(4)木门五金安装:所有小五金必须用木螺丝固定,使用木螺丝时,先用手锤钉入全长的1/3,接着用螺丝刀拧入。
小五金应安装齐全,位置适宜,固定可靠。
(5)细部处理A、立口安装:立门框,应综合考虑门口边装修做法,按设计图纸立口,一般应符合以下原则:薄墙的门口不宜立在墙中,可立在墙内侧或外侧,且应预留出墙面装饰量,以达到门口一侧凸出墙装饰面2mm~3mm的效果。
厚墙的门口可立在墙中或里平、外平。
门框立在墙内侧处实例门框立在与墙平处实例B、门框与周围墙面交接处可采取以下处理方法如果墙的一侧为饰面砖墙面时,门口应立在靠近饰面砖墙面一侧,饰面砖直接撞门框,交接处应擦缝严密,宜打胶处理。
木门安装施工工艺木门安装在进行木门安装前,需要做好以下准备工作:1.确保木门符合设计要求,有出厂合格证,木材含水率不应大于12%。
2.确保墙体中预埋件、木砖和连接件符合规范要求。
3.确保小五金及其配件符合规范要求,并与门框扇相匹配。
4.准备主要机具,如粗刨、细刨、裁口刨、单线刨、锯、锤子、斧子、改锥、线勒子、扁铲、塞尺、线坠、红线包、墨斗、木钻、小电锯、担子板、笤帚等。
在作业条件方面,需要注意以下事项:1.门框进入施工现场前必须检查验收,门框和扇安装前先检查型号、尺寸是否符合设计及规范要求。
2.门框靠墙、靠地的一面应刷防腐涂料,其它各面扇均应涂刷清油一道,刷油后应通风干燥。
3.刷好油的门应分类码放在存物架上,架子上面应垫平,且距地20~30cm,码放时框与框、扇与扇之间应垫木板条。
如露天堆放时,需用苫布盖好,严禁日晒雨淋。
4.门框的安装应符合图纸要求的型号及尺寸,并注意门的开启方向,安装高度应按室内+50cm线控制。
5.门框安装应在抹灰前进行,门扇和窗扇的安装宜在抹灰后进行。
如必须先安装时,应注意对成品的保护,以防碰撞和污染。
木门安装的工艺流程如下:弹线找规矩→决定门框安装位置→决定安装标高→掩扇、门框安装样板→门安装→门扇安装具体操作工艺如下:1.室内外门框应根据图纸位置和标高安装,为保证安装的牢固,应提前检查预埋木砖数量是否满足要求。
2.木门框安装应在地面工程和墙面抹灰施工以前完成。
3.弹线安装门框扇时,应考虑抹灰层厚度,并根据门尺寸、标高、位置及开启方向,在墙上画出安装位置线。
4.木门扇的安装需要先确定门的开启方向及小五金型号、安装位置,对开门扇扇口的裁口位置及开启方向。
检查门口尺寸是否正确,边角是否方正,有无窜角。
门口高度应量门的两个立边,门口宽度应量门口的上、中、下三点,并在扇的相应部位定点划线。
5.五金安装应符合设计图纸的要求,不得遗漏。
一般门锁、碰珠、拉手等距地高度为95~100cm,插销应在拉手下面。
木门安装工艺流程图
说明:
1 、现场质检:产品运到现场放置于安装位置时,由安装队负责人、设计人员及安装师共同对门的状况进行检验,确认无误后方可进行安装;
2 、门套组装:按照门扇及洞口尺寸在铺有保护垫或光滑洁净的地面进行门套组装;
3 、配件定位:按照标准、设计或订购方要求确定合页、门锁的位置,进行开槽打孔;标准门合页为每扇三个,门锁中心距门扇底边距离: 900mm__1000mm ;
4 、复核洞口:确定洞口的尺寸偏差是否影响安装或有否改动;
5 、临时固定门套:将门套放予门洞口内,用木楔进行临时固定,临时固定点主要为门套左右两上角位置;
6 、安装门扇:将门扇与门套用合页连接固定;
7 、调整:运用木撑或专用工具在门套内侧进行横向和竖向支撑,进行门扇边缝等细部调整;运用垂线及其他工具进行垂直度调整,
8 、胶结固定:使用发泡胶结材料对已调整标准的成套门进行最终固定,将发泡胶注入门套与墙体之间的结构空隙内,填充密实度达百分之八十五以上;在四小时内不得有外力影响,以免发生改变;
9 、锁具安装;
10 、门脸线安装;在发泡胶结材料注入四小时以后,进行门脸线的安装;
11 、密封条安装;
12 、安装验收:分自检和甲方验收两部分,在自检合格后由甲方进行最后验收。
木门安装详细要求与工艺说明
木门安装流程示意图
一、安装条件
1、木门必须采用预留洞口的安装方法,严禁边安装边砌口做法。
2、木门须在门口地面工程(如地砖、石材)安装完毕后,同时在墙面乳胶漆作业最后一道工序之前,方可进行安装作业,若遇墙体潮湿应用隔潮材料隔离。
二、安装工具
电锤、木工榔头、平锉、边刨、细齿锯(钢锯)、螺丝刀、角尺、卷尺、吊线锤、电钻、开孔器、戳子、相应规格钻头。
三、安装材料
60铁钉、自攻螺丝(40、25)、502胶、毛巾、木钉、小木条、发泡胶、地板胶、门锁、合页、门吸、墙体隔潮材料。
四、安装程序
首先检查门各部件是否齐全,各部件尺寸是否正确,分配各套门到相应安装的位置是否与门洞尺寸相符。
1、装门套
(1)组合门套板:根据墙的厚度,调整好相应的门套板宽度,在门套板背面用25mm自攻螺丝将采口板和调节板紧固,螺丝之间的间距≤250mm,组合好后采口板与调节板间隙应小于0.2mm。
(1)锯立套板顶端组装缺口:
①先将组装好的立套板顶端锯成同一平面,且与立套板成90度直角。
②在立套板的顶部锯凹口,凹口位置及尺寸应刚好合符。
顶套板凸出的挡门块部份,要求切口必须平直,用平锉打磨光滑、平整、不能有毛口边。
(2)门套顶板与立板组合,将顶套板盖压在立套板上,顶套板的凸出挡门块部分镶入立套板切锯的凹下部分,两端各用3或4颗40mm的木螺丝将三块紧固,要求三块采口在同一平面,门套内侧立套板与顶套板连接处缝隙小于0.2mm,两立套板与顶套板必须是90度。
门套采口部位内空尺寸:宽为门扇宽+7mm,高为门扇高+13mm。
2、安装门套:
(1)用电锤在门洞口上打两排孔(略向内倾斜),间距约为300MM,用与之相应大小的木针敲击在里面使之填满。
(2)把组装牢固的门套整体放入门洞中,门套的两面与墙体两面在同一平面上,检查门套整体是否垂直于地平。
(3)先用调速电钻(4.2mm钻头)在门套上引孔,在用60mm铁钉将门套上合页面先固定在墙体上,确定采口部位尺寸后再固定门套的另一侧和顶套板,两对角线误差小于2mm,因门套与墙体间有小的间隙,此时可用小木条和发泡胶填充,使门套与墙体连接牢固密实。
(4)在门套采口处粘贴隔音防撞条。
3、安装门扇:
(1)开合页槽、开锁孔,在操作过程中不得损伤门及门套其它部位表面油漆。
(2)安合页装门扇,先在每合页上下先拧一枚螺丝,然后关门检查缝隙是否一致,开启是否灵活,无误后再将其它螺钉拧紧,严禁将螺丝直接打入门扇、门套内。
(较重的门建议每扇门安装三块合页)
(3)安装门锁,根据提供的锁型安装到相应的位置,锁位距地高度约为:900---1000mm,装好后检查门扇、门锁开关是否灵活,留缝是否符合规范。
4、安装门套线:
根据安装现场尺寸确认,将带直角边的门套线锯切成45度斜角,用平锉或木工刨打磨,直角边插入门套槽内,并用地板胶将门套线与门套板粘牢,90度碰尖处斜角一致、平整,且合缝严密,门套线合缝处用胶粘牢,在门套线两端顶碰角部钉一小直钉将其锁死。
5、在相应的位置安装门吸。
6、清洁已装好的全套实木门(现场清洁干净),并交用户验收,给用户介绍其保养方法。
五、安装质量验收标准
1、整体效果:
(1)接口一致,不错位。
(2)门扇、门锁开关灵活。
(3)门扇左、右、上缝隙一致,具体尺寸为:饰面实木门、实木门为4---5mm,平板门为3---4mm,门扇距地缝为:8---9mm。
(4)门套立套板应垂直于地平,无弯扭现象。
(5)门套组装缝隙严密牢固。
(6)门套线与墙体表面密合。
(7)装饰表面无损伤。
2、页位置标准:
(1)上下合页位置为门扇高度的1/10;
(2)中合页在门扇两侧中心;
3、门锁位置:锁位距地面900-1000mm。
六、其他注意事项
1、转角墙、丁字墙门洞安装前应通知客户先在平面的那一侧做“假墙”宽度不少于45mm,否则,安装后的门套线将左右不均。
2、门洞预留尺寸为:门洞高度=门扇高度+50mm,门洞宽度=门扇宽度+80mm。
(注意:门洞高度是指从已做好门口地板工程的净高度)。