电梯洞口水平防护方案
- 格式:doc
- 大小:118.50 KB
- 文档页数:4
序号具体部位要求具体做法图例一外架悬挑防护棚1、原则上地方政府、甲方等相关部门没有强制要求做悬挑防护棚的,外架外侧周边不再做防护棚;若外墙靠近人行道、售楼处、临时办公楼等可在二层结构标高处做单层悬挑防护棚或双层落地防护棚。
防护棚安装、拆除时严禁在防护棚上堆放材料,安装、拆除及上人时必须佩戴好安全带才能作业。
注:项目设置防护棚需编制专项施工方案才能实施。
2、现场若需设置悬挑防护棚时,采用可收回式做法,在水平防护下侧用一根钢管做斜向支撑。
外挑3m。
水平挑网一端连接在外脚手架横杆上,一端连接在φ48.3×3.6钢管搭设水平杆上,水平杆用斜撑杆与外架下层横杆连接牢固(双扣件),斜撑杆间距不大于3m。
做法:第一步,安装挑网架斜撑杆,斜撑杆下部与外架外侧横杆用旋转扣件连接,上部靠紧脚手架;第二步,在斜撑杆上部安装纵向水平杆;第三步,在斜撑杆上部水平杆和外架横杆上绑上大眼网和密目网各一道(大眼序号具体部位要求具体做法图例网和密目网尺寸要提前计算好);第四步,松开大眼网和密目网,让斜撑杆上部慢慢离开外架,直至大眼网和密目网撑紧;第五步,每6米采用一根直径为6-8mm钢丝绳用三个绳卡水平拉结固定在外立杆与大横杆交接处和斜撑杆连接。
第六步、拧紧斜撑杆下部与外架横杆连接的扣件螺栓,保证挑网架稳定牢固。
设置的防护棚应在悬挑工字钢悬挑的下部,并需编制专项施工方案才能实施。
拆除:适当松开斜撑杆下部扣件螺栓,斜撑杆能转动即可→拉动钢丝绳使大眼网和密目网靠近外脚手架→拆除密目网和大眼网→拆除纵向水平杆→拆除钢丝绳→拆除挑网架斜杆。
安装、拆除时,搭设人员必须在外架内侧进行操作,严禁跨越到外架外部操作。
遇到台风时,及时收回防护棚。
序号具体部位要求具体做法图例二外架、采光井与建筑物之间间隙控制1、当外架与建筑物之间间隙大于20cm时,在最接近楼板的一步架体,沿外架连续设置填芯杆。
若填芯杆之间未挂兜网时,应按照要求不超过10米设置一道水平兜网。
“三宝”、“四口”、“五临边”防护方案“三宝”、“四口"和“五临边”的防护,主要是依据《建筑施工高处作业安全技术规范》(JGJ80-91)要求.“三宝"是指:安全帽、安全带、安全网等防护用品的正确使用;“四口”主要是指:楼梯口、电梯井口、预留洞口、通道口等各种洞口的防护应符合要求.两者之间虽没有有机的联系,但这两部分防护做的不好,在施工现场引起的伤亡事故却是相互交叉的,即有高空坠落事故又有物体打击事故。
(一)、安全帽的质量标准及佩戴要求:a、在发生物体打击的事故中,由于不戴安全帽,所造成的事故者,也占了一定比例,无论工地有多少人员,只要有一个不戴安全帽的,就有着被落物打击而造成伤亡的隐患。
b、关于安全帽的标准及正确使用必须符合《安全帽》(GB2811-81)和《安全帽试验方法》(GB2812-81)标准。
安全帽是防冲击的主要用品,它是采用具有一定强度的帽壳和帽衬缓冲结构组成,可以承受和分散落物的冲击,并保护或减轻由于高处坠落头部先着地面的撞击伤害。
c、人本颈椎冲击承受能力是有一定限度的,国际规定:用5kg钢锤自1米高度落下进行冲击试验,头模所受冲击的最大值不应超过— 1 —500kg;耐穿透性能,用3kg钢锥自1米高度落下进行冲击试验,钢锤不应与头模接触。
d、帽壳采用半球形,表面光滑,易滑走落物,前部的帽舌尺寸为10~55㎜,其余部分的帽沿尺寸为10~35㎜.e、帽衬项端至帽壳内面的垂直间距为20~25㎜,帽衬至帽壳内侧面的水平间距为5~20㎜.f、安全帽在保证承受冲击力的前提下,要求越轻越好,重量不超过400g。
g、每顶安全帽上应有:制造厂名称、商标、型号、制造年月、许可证编号。
每顶安全帽出厂时,必须有检验部门批量验证和工厂检验合格证。
h、佩戴安全帽时,必须系紧下颚系带,防止安全帽坠落而失去防护作用。
(二)、安全带的质量标准及使用要求:必须符合《安全带》(GB6094—85)、《安全带检验方法》(GB6095—85)标准.a、冲击力的大小主要是由人体体重和坠落距离而定,坠落距离与安全挂绳长度有关,使用3m以上的长绳应加缓冲器,单腰带式安全带的冲击试验荷载不超过9.0kN。
电梯井口洞口安全防护设施标准1 总则1.1为提高十七冶集团有限公司施工安全技术水平,实现建筑施工现场安全防护设施的规范化、标准化和定型化,促进集团公司安全管理,结合本集团工程管理实际情况,制定本标准。
1.2本标准适用于十七冶集团有限公司所有施工现场涉及电梯井口和洞口安全防护设施的设置和管理。
1.3 建筑施工现场安全防护设施的设置和使用,除执行本标准外,还应符合国家有关法律法规和现行强制性标准、规范的规定。
1.4 本标准的黑体字部分为强制性条款。
2 引用文件2.1 建筑施工安全检查标准JGJ59-992.2 建筑施工高处作业安全技术规范JGJ80-912.3 工程建设标准强制性条文(施工安全部分)3 术语3.1 安全防护设施建筑施工现场为预防施工中发生人员伤亡事故而设置的各类设施、设备、器具等。
3.2 高处作业凡在坠落高度基准面2m以上(含2m)有可能坠落的高处进行的作业。
3.3 洞口作业孔与洞口边的作业,包括施工现场及通道旁深度在2m以上(含2m)的桩孔、人孔、沟槽与管道、孔洞等边沿上的作业。
3.4 安全网用来防止人、物坠落,或用来避免、减轻坠落及物击伤害的网具。
安全网一般由网体、边绳、系绳等构件组成。
主要种类有密目式安全立网和安全平网二种。
平网作用是挡住坠落的人和物,避免或减轻坠落及物击伤害;主要由于水平防护;立网作用是防止人或物坠落,主要用于临边立面防护。
4 电梯井口、管道井口安全防护设施4.1 电梯井、管井必须设置防止人员坠落和落物伤人的防护设施,并加设明显标志警示。
4.2 电梯井洞口、宽度超过400mm管井洞口等竖向落地洞口,必须设置防护门,井道内应每隔两层且不超过10m设一道安全平网。
4.3因施工需要临时拆除井道防护,需经项目安全管理负责人审核批准,工作过程有人值守并设置标志,当日工作完毕必须及时恢复原样。
4.4井口防护采用钢筋铁栅防护门。
门高1.50m,下部设180mm高踢脚板,紧贴楼地面安装,门两侧边超出电梯井口边不小于100mm,上端固定,门栅间距不大于150mm 。
目录第一章编制说明及编制依据 (2)第1节编制说明 (2)第2节编制依据 (2)第二章工程概况 (2)第1节工程建设概况 (2)第2节结构设计概况 (3)第3节电梯井设计概况 (3)第三章电梯井钢平台设计 (6)第1节基本概况 (6)第2节基本参数 (7)第四章平台制作 (7)第1节材料准备 (7)第2节机具、人员准备 (7)2.1机具准备 (7)2.2人员准备 (7)第3节工艺流程 (8)第4节制作施工要点 (8)第5节平台提升 (8)第6节电梯井道水平防护 (9)第7节电梯门口防护 (13)第五章安全保证措施 (14)第六章附图 .................................................................................... 错误!未定义书签。
第一章编制说明及编制依据第1节编制说明本电梯井道因尺寸限制无法安装爬模架物料提升平台,为保障施工期间电梯井壁四周剪力墙及梁钢筋绑扎、模板支设安全、方便,本工程拟在主体结构施工期间在“OS1”电梯井内搭设工具式提升钢平台进行防护,从4层开始使用,逐层提升使用。
特编制钢平台施工方案,用以指导现场施工。
第2节编制依据第二章工程概况第1节工程建设概况第2节结构设计概况第3节电梯井设计概况本工程1号楼(2号楼)17层以下核心筒内设计有6部电梯,编号为OS1、OS2、L01、L02、L03、L04;19~29层核心筒内设计有6部电梯,编号为OS1、OS2、M01、M02、M03、M04;31~41层核心筒内设计有6部电梯,编号为OS1、OS2、MH01、MH02、MH03、MH04;43~53层核心筒内设计有8部电梯,编号为OS1、OS2、H01、H02、H03、H04、H05、H06。
核心筒内电梯平面布置及井道尺寸见下图,图中标注单位均为mm。
31~41层核心筒内电梯平面布置图43~53层核心筒内电梯平面布置图第三章电梯井钢平台设计第1节基本概况本工程3层开始在在核心筒电梯井及核心筒外墙使用液压爬模,液压爬模在电梯井道内及核心筒外墙自带爬模架及防护架,可供电梯井道四周结构钢筋绑扎、模板支设、模板拆除,施工方便、安全,其中H06中设置有液压布料机,无法爬模架及钢平台。
临边与洞口的安全防护措施1、临边防护措施:所有临边部位均设置防护栏杆,防护栏杆由上、下两道横杆及栏杆柱组成,上杆距地高度为1.2米,下杆离地高度为0.5米,如楼层进行砌筑时,护栏下口需设挡脚板,防护栏杆与框架柱连接牢固,楼、电梯洞边外用电梯接料平台必须安装临时护栏,并加挂立网,间隔2米设栏杆柱。
2、洞口防护措施进行洞口作业以及在因工程和工序需要产生的,使人与物有坠落危险或危及人身安全的其他洞口进行高空作业时,必须设置防护措施。
楼层、屋顶等外边长小于50cm的洞口,必须加设盖板。
盖板须能保持四周均衡,并有固定其位置的措施。
边长为50~150cm的洞口,必须设置以扣件接钢管而成的网格,并在上面满铺脚手板。
边长大于150cm以上洞口四周除设防护栏杆外,洞口下面设安全水平网。
3、“三宝四口”的防护措施正确使用安全帽,不能把安全帽抛、扔或坐、垫,进入施工现场必须戴好安全帽,否则禁止进入,安全帽按职能配有不同颜色以分别对应不同职能的工作人员,安全带必须经检查合格后方可使用,对检验不合格的,必须更换安全带后才能使用。
在建筑物四周用合格的密目安全网全封闭,围护整体网缝必须牢固,拼接严密,外看无接缝,平整美观。
当预留洞口在20cm以上时,要设有防护栏,洞口要设安全网,水平栏杆围护,在楼梯口、通道口、施工洞口等处都要有明显的指示标志。
陕西省第十一建筑工程公司二一二所项目部预防掉物打击的措施1、随着楼层的增高,为防止高空坠物伤人,建筑物四周采用细目安全网全封闭,楼梯口、吊栏口、预留洞口及建筑物的过人通道、操作现场、架空电线(缆)上空必须搭设双层防护棚,第一层用3-4cm 厚木板密铺,第二层用竹架板密铺,宽度≥3m,两层中间间隔50cm,用钢管扣件搭设,两侧设两道横杆作为栏杆,栏杆及立杆刷红、白相间油漆作为警示标志,安全员对搭设子的防护棚要进行验收。
2、在楼层的“四口”“五临边”应设置1000-1200mm高防护栏,栏杆用钢管扣件搭设,刷红、白相间油漆作为警示标志。
建筑工程洞口、临边安全防护实施方案1、洞口的防护(1)边长小于500cm的洞口应安装预制构件时的洞口以及缺件临时形成的洞口,可用竹、木板作盖板加以盖设,盖板搁置时,四周要保持均衡,并没有固定其位置的措施,防止发生牵动;(2)边长大于500cm的洞口应必须设置以扣件扣接钢管而成网格,并在其上满铺竹笆或脚手板,也可采用贯穿于混凝土板内的钢筋构成防护网,钢筋网格的间距不能大于20cm。
且其所有楼梯必须设置安全防护栏杆,栏杆选用钢管进行搭设,设置两道水平杆,第一道距楼梯面20cm,第二道距楼梯面90cm,钢管涂刷红白油漆;在平台架卸料层两侧面及防护门间的空档处设置挡脚板和防护网,并于平台架体绑扎牢固平台底板应满铺脚手板,固定牢固,材质符合要求。
有条件的工程必须使用悬挑工具式卸料平台;落地式卸料平台必须有独立的支撑系统,支设牢固,严禁与脚手架架体连接。
2、临边防护(1)临边必须根据实际情况设置符合安全要求的防护设施。
(2)防护设施抗冲击性必须符合安全要求。
(3)临边防护采用钢管、扣件组装,刷红白漆,间距300mm。
防护设置600、1200mm两道,用密目网封闭或下设180mm挡脚板,立柱间距不大于2m。
(4)基坑周边,尚未安装栏杆或栏板的阳台、料台与挑平台周边,雨篷与挑檐边,无外脚手的屋面与楼层周边及水箱与水塔周边等处,都必须设置防护栏杆。
(5)首层墙高度超过3.3m的二层楼面周边,以及无外脚手的高度超过3.2m 的楼层周边,必须在外围架设安全平网一道。
(6)分层施工的楼梯口和梯段边,必须安装临时护栏。
顶层楼梯口应随工程结构进度安装正式防护栏杆。
(7)各种垂直运输接料平台,除两侧设防护栏杆外,平台口还应设置安全门或活动防护栏杆。
(8)搭设临边防护栏杆时,必须符合下列要求:①防护栏杆应由上、下两道横杆及栏杆柱组成,上杆离地高度为 1.2m,下杆离地高度0.6m。
②1.5m×1.5m以下的孔洞,应预埋通长钢筋网或加固盖板。
临边、洞口的施工防护计划安全施工组织设计编制人:审阅人:同意人:临边、洞口的施工防护1、临边的施工选用钢管作防护,在墙体中放置预埋铁,用电焊将钢管焊接成防护栏,再用密目式安全网关闭,并设置安全标识。
2、楼层内一切预留洞口都必须闭装盖实,用2.5cm以上厚度的木板,将洞口钉住封实,而且常常查看,有专人担任防护、修理(担任人:)3、楼梯口的栏杆用钢管焊接成暂时楼梯扶手,并按标准进行搭设,设置安全标识。
以上井道防护和临边洞口防护,由木匠班组施工(担任监督履行)。
“四口”是指修建施工中的楼梯口、预留洞口、通道口、电梯井口,它是工人施作业业中常常触摸的区域,也是容易发生事端的要害部位,由此做好“四口”的安全防护作业是确保施工安全的一个重要环节。
“四口”的安全防护办法:一、楼梯口、电梯井口的安全防护1、《修建施工高处作业安全技术标准》(JGJ80-91)规则:进行洞口作业以及因工程工序需求而发生的,使人与物有掉落风险或危及人身安全的其他洞口进行高处作业时,必须按规则设置防护设备。
2、楼梯口应设置防护栏杆;电梯井口除设置固定栅栏外,(门栅网格的距离不该大于15cm)还应在电梯井内每隔两层(不大于10cm)设置一道安全平网。
平网内无杂物,网与井壁空隙不大于10cm。
当防护高度超越一个标准层时,不得选用脚手板等硬质资料做水平防护。
3、防护栏杆、防护栅栏应契合标准规则,规整结实,与现场标准化办理相适应。
防护设备应在施工组织规划中有规划、规整漂亮,周转运用。
二、预留洞口、坑、井防护1、依照《修建施工高处作业安全技术标准》(JGJ80-91)规则,对孔洞口(水平孔洞短边尺度大于2.5cm的,竖向孔洞高度大于75cm的)都要进行防护。
2、各类洞口的防护具体做法,应针对洞口巨细及作业条件,在施工组织规划中别离进行规划规则,并在一个单位或在一个施工现场中形成型化,不允许由作业人员随意找资料盖上的暂时做法,避免因为不紧密不结实而存在事端隐患。
各区建管站(安全站),各建设、施工、监理单位:为进一步贯彻落实《市城建委关于加强建设工程施工现场电梯井施工安全管理的通知》城建[2010]358号)要求,规范施工现场电梯井施工操作架(平台)及安全防护设施的搭设安装标准,现将《电梯井施工操作架(平台)搭设及安全防护技术要求》印发给你们,请结合实际参照执行。
二〇一一年四月一日电梯井安全防护应符合以下要求。
(一)电梯井施工操作架(平台)拆除完毕后应及时对电梯井进行安全防护。
(二)电梯井门洞口安装1800mm高工具式防护门;防护门底部安装200mm高木质踢脚板,防护门外侧张挂“当心坠落”安全警示标志牌。
(三)电梯井内应每隔两层并不大于10m搭设一道水平防护平台;水平防护平台采用钢管、木枋及模板搭设,平台之间每个楼层电梯井内应增设一道水平兜网。
(四)水平防护平台搭设方法电梯井道内每隔两结构层且不大于10 m应搭设一道水平硬质隔断。
水平硬质隔断的搭设应根据井道尺寸,在电梯门洞侧及对面剪力墙内预埋穿墙φ60PVC套管,待电梯井模板及施工操作架拆除后,将钢管插入预埋的穿墙φ60PVC套管内,采用钢管扣件搭设纵横向井字形水平隔断基座,基座纵向钢管应插入剪力墙预留洞内且伸出剪力墙应不小于150 mm,钢管两端另增加限位钢管予以固定;基座上面采用模板木枋进行硬质封闭。
禁止采用井壁内预留钢筋头或采用可调支托顶住井壁等简单方式作为基座固定端。
(五)安全平网的挂设每两层水平硬质隔断之间的楼层电梯井道内应增设一道安全平网。
安全平网应牢固挂设在穿墙钢管、预埋挂钩等可靠受力构件上。
安全平网的规格尺寸、材质和系绳连接方式应符合安全网(GB 5725-2009)标准。
安全平网的相邻两系绳间距应不大于0.75m,网与井壁的间隙应不大于100 mm。
“四口”、“五临边”的防护方案
一、“四口”的防护。
1、电梯井及内防护
电梯井设置高度1.5米固定翻盖式护栏进行防护,层层设置。
电梯井内,每隔二层,高度不超过10米设安全网一道。
2、预留洞口
卫生间管道大于200mm的洞均采用钢筋网片固定,1.5㎡以下的洞口用钢筋做固定盖板网保护,1.5㎡以上的洞口,四周设防护栏并加设安全网,护栏高1m,设两道水平杆。
3、楼梯口东西两个楼梯口用φ钢管@200焊成网片,与剪力墙砼上构造钢筋进行焊接固定。
楼梯设有临时固定栏杆。
4、通道口
通道口用于北面一层同往施工通道,搭设防护棚。
5、阳台、楼梯、屋面等临边防护。
本工程的临边防护采用以下几点:
(1)、临边有墙的地方及时进行砌筑,进行防护。
(2)、建筑物四面从五层开始,无外墙部分及临边部分设两道防护栏杆并挂安全网。
项目部。
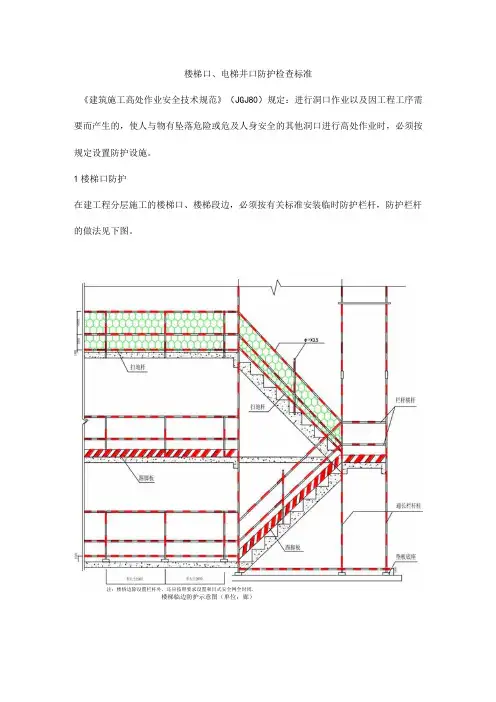
楼梯口、电梯井口防护检查标准《建筑施工高处作业安全技术规范》(JGJ80)规定:进行洞口作业以及因工程工序需要而产生的,使人与物有坠落危险或危及人身安全的其他洞口进行高处作业时,必须按规定设置防护设施。
1楼梯口防护在建工程分层施工的楼梯口、楼梯段边,必须按有关标准安装临时防护栏杆,防护栏杆的做法见下图。
注:楼桥边除设置栏杆外,还应按照要求设置和目式安全网全封闭.楼梯临边防护示意图(单位:廊)2.电梯井口的防护电梯井口除设置固定栅门(门栅网格的间距不应大于15Cm)做立面封闭防护外,还应在电梯井内每隔两层(不大于Iom)设置一道安全平网。
平网内无杂物,网与井壁间隙不大于10cm。
当防护高度超过一个标准层时,不得采用脚手板等硬质材料做水平防护。
.防护栏杆、防护栅门应符合规范规定,整齐牢固,与现场规范化管理相适应。
防护设施应在施工组织设计中有设计、有图纸,并经验收形成工具化、定型化的防护用具,安全可靠、整齐美观,周转使用。
五、预留洞口、坑、井防护1按照《建筑施工高处作业安全技术规范》规定,对孔洞口(水平孔洞短边尺寸大于2.5Cm的,竖向孔洞高度大于75Cm的)都要进行防护。
2.各类洞口的防护具体做法,应针对洞口大小及作业条件,在施工组织设计中分别进行设计规定,并在一个单位或在一个施工现场中形成定型化,不允许由作业人员随意找材料盖上的临时做法,防止由于不严密不牢固而存在事故隐患。
3.较小的洞口可临时砌死或用定型盖板盖严;较大的洞口可采用贯穿于混凝土板内的钢筋构成防护网,上面满铺竹笆或脚手板;边长在15m以上的洞口,张挂安全平网并在四周设防护栏杆或按作业条件设计更合理的防护措施。
(D边长1500-2000的洞∏(2)边长20007000的洞口注:所有栏杆刷红白漆相间均为@300,栏杆的立面除用踢脚板外也可以用密目网围挡。
洞口防护图(单位:mm)。
Word格式电梯井、采光井等洞口防护方案编制:初审:审核(工程技术部):审核(安全管理部):批准:深圳市鹏城建筑集团有限公司金域揽峰花园花园1-7栋及室外环境工程二○一四年七月十日目录第一节工程概况 (1)1.1总体概况 (1)1.2电梯井、采光井等洞口概况 (1)第二节施工部署 (5)2.1、技术准备 (5)2.2、现场准备 (6)2.3、材料准备 (6)2.4、施工安排 (6)第三节、电梯井、采光井等洞口防护施工 (6)3.1防护架体搭设 (6)3.2洞口封闭施工 (7)3.3立面防护栏杆 (7)3.4防护警示措施 (8)附图一:电梯井防护平面图 (8)附图二:采光井等洞口防护平面图 (8)附图三:1-1剖面图-电梯井防护架搭设剖面图 (10)附图五:1’-1’剖面-电梯井防护架卸荷示意图 (12)附图六:1’’-1’’剖面-电梯井防护架工字钢悬挑示意图 (13)附图七:2-2剖面-采光井等洞口防护架搭设剖面图 (14)附图八:2’-2’剖面-采光井等洞口卸荷示意图 (15)附图九:防护栏杆固定方式一 (16)附图十:防护栏杆固定方式二 (16)金域揽峰花园1-7栋及室外环境工程工程电梯井、采光井等洞口防护方案第一节工程概况1.1总体概况工程名称:金域揽峰花园1-7栋及室外环境工程建设地点:广东省深圳市龙岗区布龙路与吉华路交叉口(上水径地铁站)建设单位:深圳市万联嘉投资发展有限公司设计单位:深圳市筑博工程设计有限公司施工单位:深圳市鹏城建筑集团有限公司监理单位:深圳市邦迪工程顾问有限公司本工程包括六栋高层住宅(1-6栋),一栋垃圾收集站(7栋),附设一层架空层或商业,地下设一层地下室;其中6栋塔楼部分为住宅,下设商业、社区健康服务中心、管理用房、社区居委会、社区服务站、社区警务室、文化活动室、公厕。
6栋层数33层,建筑高度98.15米,1栋(包括1A、1B两栋塔楼)、2栋、3栋、6栋层数均为32层,建筑高度95.25米;4栋、5栋层数均为30层,建筑高度89.45米;7栋层数为1层,建筑高度5米。
临边、洞口的施工防护方案安全施工组织设计编制人:审核人:批准人:临边、洞口的施工防护1、临边的施工采用钢管作防护,在墙体中放置预埋铁,用电焊将钢管焊接成防护栏,再用密目式安全网封闭,并设置安全标识。
2、楼层内所有预留洞口都必须闭装盖实,用2.5cm以上厚度的木板,将洞口钉住封实,并且经常检查,有专人负责防护、维修。
3、楼梯口的栏杆用钢管焊接成临时楼梯扶手,并按规范进行搭设,设置安全标识。
以上井道防护和临边洞口防护,由木工班组施工。
“四口”是指建筑施工中的楼梯口、预留洞口、通道口、电梯井口,它是工人施工作业中经常接触的区域,也是容易发生事故的要害部位,由此做好“四口”的安全防护工作是保证施工安全的一个重要环节。
“四口”的安全防护措施:一、楼梯口、电梯井口的安全防护1、《建筑施工高处作业安全技术规范》(JGJ80-91)规定:进行洞口作业以及因工程工序需要而产生的,使人与物有坠落危险或危及人身安全的其他洞口进行高处作业时,必须按规定设置防护设施。
2、楼梯口应设置防护栏杆;电梯井口除设置固定栅门外,(门栅网格的间距不应大于15cm)还应在电梯井内每隔两层(不大于10cm)设置一道安全平网。
平网内无杂物,网与井壁间隙不大于10cm。
当防护高度超过一个标准层时,不得采用脚手板等硬质材料做水平防护。
3、防护栏杆、防护栅门应符合规范规定,整齐牢固,与现场规范化管理相适应。
防护设施应在施工组织设计中有设计、整齐美观,周转使用。
二、预留洞口、坑、井防护1、按照《建筑施工高处作业安全技术规范》(JGJ80-91)规定,对孔洞口(水平孔洞短边尺寸大于2.5cm的,竖向孔洞高度大于75cm的)都要进行防护。
2、各类洞口的防护具体做法,应针对洞口大小及作业条件,在施工组织设计中分别进行设计规定,并在一个单位或在一个施工现场中形成型化,不允许由作业人员随意找材料盖上的临时做法,防止由于不严密不牢固而存在事故隐患。
3、较小的洞口可临时砌死或用定型盖严;较大的洞口可采用穿于混凝土板内的钢筋构成防护网,上面满铺竹笆或脚手板;边长在1.5cm以上的洞口,张挂安全平网并在四周设防护栏杆或作业条件设计更合理的防护措施。
第一节、水平洞口防护1、边长在200~250mm(含250mm)的水平洞口防护采用洞口楔紧2根木枋(水平放),上盖木胶合板用木螺丝上紧,面层刷红白相间的警示油漆间距15cm角度45度。
2、边长在250~500mm(含500mm)的水平洞口防护,采用洞口楔紧2根木枋(水平放),上盖木胶合板用木螺丝上紧,面层刷红白相间的警示油漆间距15cm角度45度。
3、边长在500~1500mm(含1500mm)的水平洞口防护0.5×1.5m洞口上铺木方,木方间距250mm,木方上铺废旧模板用铁钉钉牢,侧面与地面之间的缝隙用15mm厚木胶合板封严,面层刷红白相间的警示油漆间距15cm角度45°。
洞口周边设置交圈的定型化防护栏杆,防护栏杆的水平杆、立杆刷间距为400mm红白相间油漆,并在最上一道水平杆处悬挂“当心坠落”警示标志。
4、边长在1500mm 以上的洞口:(1)1500mm以上水平洞口,采用48钢管在洞口上搭设井字型框架,框架四周钢管上绑扎安全网进行防护,周边采用工具化立柱连接48钢管进行防护,底端设一个高度200的挡脚板,在栏杆外侧张挂“当心坠落”安全警示标志牌。
防护栏杆距洞口边不得小于 200mm.所有立杆及C型钢连接件都刷成红白相间油漆,Φ48的钢管刷成红白相间每道40cm。
第二节、电梯井竖向洞口防护1、电梯井洞口防护采用项目原有标准化防护栏杆栏杆做防护。
2、连墙件采用1mm厚铁皮制作成半径为35mm的半圆型卡片,连接时采用设钉枪将防护栏杆固定在墙上。
电梯井道内防护说明:1、电梯井内水平防护采用在井洞内每隔一层或(≤10m)采用钢管搭设一道硬性防护,用钢丝绳拉结(混凝浇筑时要提前预留洞口,穿钢管或穿墙螺栓使用),硬性隔离防护平台铺设脚手板。
电梯井道内防护采用软硬结合,硬防护20米左右设置一道,首层必须设置一道硬防护.2、电梯井内采用安全平网进行防护时每隔10m 搭设一道,在施工时预留穿钢管预留洞。
合肥市华润置地•凯旋门二期Ⅰ标段 电梯井洞口水平防护方案
第 1 页
电梯井洞口水平防护方案
一、工程概况及编制说明
合肥市华润置地•凯旋门二期一标工程位于合肥市政务区潜山路与嘉和路交
叉口,建设单位为华润置地(合肥)有限公司,由安徽寰宇建筑设计院设计,中
建四局总承包施工。
本方案为三栋住宅楼(07#楼、17#楼、20#楼)施工时电梯井洞口水平防护
做法。主楼结构类型为剪力墙结构,电梯井道四周均为混凝土墙,地下2层,地
上41层,建筑高度119米。三栋主楼每栋每层各有电梯井洞口4个,共504个。
电梯井洞口尺寸为2.2米X2.2米,拟采用预埋钢管上铺模板的硬防护方式层层防
护,防止人与物的坠落,确保施工期间人员安全。
二、电梯洞口水平防护方式的选择
方式一:根据合肥市质监站的要求,电梯井洞口采用钢筋网上铺模板的方式进行
防护,钢筋大小及间距同电梯井四周的楼板钢筋。
方式二:根据我司在上海、广州地区的施工经验,在电梯井道施工时,每个电梯
井洞口在楼层板处预埋两根水平钢管,待井道内的模板拆除后,再在预埋的钢管
上搭设分布杆,然后上面满铺模板。(详见后图)
在保证施工安全的前提下,结合本工程实际情况对两种方式进行比较,市站的方
法,电梯井洞口层层预留钢筋,洞口封堵后导致电梯井道内的剪力墙大模板无法
转运至上一层;若采用方式二,井道内大模板可用手动葫芦直接拉升至上一层,
可大大节约劳动量和工期。为此,在同质监站领导沟通解释并得其同意后,特编
制本方案报业主、监理审批,以规范电梯井道水平防护,保障施工安全。
三、电梯洞口水平防护做法
合肥市华润置地•凯旋门二期Ⅰ标段 电梯井洞口水平防护方案
第 2 页
四、电梯洞口水平防护验算书
纵向的两道钢管(主梁)为受力最大处,验算针对此处,若此处能满足要
求,则其余钢管均能满足要求。按照简支梁计算,承受脚手板自重、坠落物冲击
集中荷载。截面几何参数如下:截面抵抗矩 W = 4.49 cm3;截面惯性矩 I = 10.78
cm4;
冲击荷载按最不利情况作用于跨中,上部钢管传递的恒载按等间距步置。
冲击荷载: F= 1.4×0.8KN= 1.12 kN;(按照一个体重80kg的人坠落考虑)
上部钢管传递恒载:P=1.2×0.35×0.3×2.2 = 0.277 kN;
支撑钢管计算简图
合肥市华润置地•凯旋门二期Ⅰ标段 电梯井洞口水平防护方案
第 3 页
支撑钢管计算弯矩图(kN.m)
最大弯矩 Mmax = 0.878 kN.m ;
最大应力 σ= Mmax / W = 0.878×106 / (4.49×103) = 195.608 N/mm2;
支撑钢管的计算应力 195.608 N/mm2 小于 横向钢管的抗压强度设计值 205
N/mm2,满足要求!
五、电梯洞口防护日常管理
1、电梯井安全防护需派专人进行管理,项目各部门人员发现有不当行为应及时
制止。
2、电梯井必须设置防止人员坠落和落物伤人的防护设施,并加设明显标志示警。
3、电梯井水平防护如上图,竖向防护按照中建四局标准设置电梯井防护门,并
上锁,悬挂安全警示标语。
4、定期清扫水平防护板上的落灰、建筑垃圾等。
5、此处水平防护板仅作为安全防护使用,不得在其上堆放钢管、扣件、砌体等
任何材料。
6、、电梯井口防护每搭设完成一处,须由施工部和安全部验收,平时施工期间
由安全部负责检查有无堆载、拆除等,发现后应及时整改恢复完毕。
7、因作业必须,临时拆除或变动安全防护设施时,必须经施工负责人同意,并
采取相应的可靠措施,作业后必须立即恢复。
合肥市华润置地•凯旋门二期Ⅰ标段 电梯井洞口水平防护方案
第 4 页
六、电梯洞口操作层做法及日常管理
电梯井操作层在安装、拆除模板的两个作业层,根据安装螺杆、模板就位校
正的需要,人站在水平防护板上摸不到模板上口的地方,针对此情况做出如下设
计安排:
在洞口防护钢管的水平横杆上起4根钢管立柱,在距离楼层面1.5米左右的
标高处用4根短钢管将树起的4跟立杆连接起来,供作业人员踩踏,安拆电梯井
上口模板。
操作层在满足上述管理要求外,还需做到如下几点:
1、搭立杆为了操作站人所需,一次仅可站1人;
2、安装模板穿螺杆固定前以及模板拆除后,严禁讲模板、木方等材料集中堆放
在洞口防护板上。