余热锅炉教材要点
- 格式:doc
- 大小:119.00 KB
- 文档页数:14
图强制循环余热锅炉图自然循环余热锅炉图水平蒸发管中的流动形式蒸发器的最小流量保护从安全性来分析对蒸发器本身而言,进入水量少是不利的,将会导致蒸发器管受到超温破坏。
对循环泵而言,如果循环泵出水量少而使进入蒸发器的水量少,除了对蒸发器产生不刊后果以外,对泵本身也是不利的。
因为进入循环泵水量少,泵的轮叶摩擦的热量容易使水汽化,使循环泵发生汽蚀现象。
从热经济性来分析,进入蒸发器的水量少,会影响蒸发器管内的换热系数。
尽管蒸发器内侧汽水混合物的换热系数很大,一旦水少而汽多,会使换热系数下降,最后使烟气放热量减少。
烟气在蒸发器的放热量减少,会影响蒸汽产量,还会使锅炉排烟温度增加,增加排烟损失使锅炉效率降低。
(一)汽包内件从蒸发器来的是汽水混合物。
当蒸汽带水时,水中溶解有各种盐类,如钠盐、硅酸等,这些盐随水滴留在蒸汽中。
蒸汽进入过热器内,水滴在过热器内汽化,将盐类积存在过热器管壁上形成垢,垢的热阻很大,增加了传热的热阻,妨碍传热,使蒸汽出口温度达不到原设计值,同时管壁不能被汽流冷却,管壁温度升高,减弱金属的强度,会使管子烧坏。
有些硅酸盐随着蒸汽进入汽轮机,又随着蒸汽压力降低附在汽轮机的喷嘴和叶片上,影响汽轮机的功率。
所以锅炉要提供合格的蒸汽供给用户。
汽包内装置一些元件就能达到改善蒸汽品质的要求,这些元件的主要任务是使蒸汽内无水滴。
一个水滴随汽流上升所受的力: 水滴自身重力N 63g d G ρπ'=蒸汽对水滴的浮力蒸汽对水滴的拉曳力(摩擦力)上三式中:d 一水滴直径,m ;ρ’,ρ’’一水和汽的密度kg/m 3; w ’’-蒸汽和水滴的相对速度m/s ; C y 一蒸汽和水滴间的摩擦系数。
当水滴停留在汽流中时,此三个力的平衡关系式为:G =F f +F m ,此时水滴不会落下,对应的水滴直径为:从上式可以看到,当蒸汽流速大,能带走的水滴直径也大,此时带的水滴量就多,蒸汽品质就差。
(2)汽水分离在汽包内的汽水分离过程有三个阶段:第一阶段:汽水混合物进入分配器。
余热锅炉安全操作规程余热锅炉是利用废热产生蒸汽或热水的设备,广泛应用于各种工业领域。
为了确保余热锅炉的安全运行,减少事故的发生,制定余热锅炉安全操作规程非常重要。
本文将详细介绍余热锅炉的安全操作规程,以确保工作人员的安全和设备的正常运行。
一、基本原则1. 符合国家和行业相关标准、规范,遵守安全生产法律法规;2. 安全第一,防范为主,预防为主,综合施措;3. 依法进行安全培训,提高员工的安全意识和操作技能;4. 定期检查设备,确保其完好无损;5. 搞好安全生产宣传,推动员工形成安全文化。
二、操作人员的要求1. 具备相关的岗位培训和技能培训;2. 理解和掌握余热锅炉的工作原理、结构和操作规程;3. 严格遵守操作规程,不擅自调整设备参数或操作方式;4. 掌握应急措施和危险事故处理方法;5. 身体健康,无酗酒、吸烟等不良嗜好。
三、安全操作规程1. 开机前(1)检查余热锅炉设备是否正常,检查阀门、管道等是否有漏损;(2)检查燃料和水位是否充足,各仪表是否正常;(3)检查安全阀和压力表是否正常;(4)确认周围环境安全,无易燃易爆物品。
2. 启动(1)按照启动程序操作,依次打开给水阀门、燃气阀门、点火器等设备;(2)逐步升温,注意观察锅炉运行状态;(3)根据需要调整燃烧器火焰大小,保证燃烧充分。
3. 运行(1)定期检查和记录余热锅炉的运行参数,包括压力、温度、排烟温度等;(2)定期清理锅炉的烟道和余热换热器,防止堵塞;(3)防止燃烧器过热,及时处理燃气泄漏和火焰熄灭等异常情况;(4)严禁非授权人员接触锅炉设备。
4. 停机(1)根据工作需求,按照停机程序逐步关闭给水阀门、燃气阀门、燃烧器等设备;(2)停机后及时清理燃烧室和烟道,防止积灰引起安全事故;(3)停机后检查各设施设备是否有漏损、故障,确认其安全可靠;(4)临时停机期间,必要时采取防护措施,防止他人误操作。
四、安全预防措施1. 严格遵守操作规程,禁止擅自调整设备参数或操作方式;2. 定期进行设备检修和维护,确保其正常运行;3. 周期性进行安全演练和事故应急演练,提高应急处理能力;4. 配备完备的消防设施,确保发生火灾时有能力及时扑灭;5. 备足备品备件,及时更换老化或损坏的设备;6. 定期对操作人员进行安全培训和考核,提高其安全意识和技能。
( 操作规程 )单位:_________________________姓名:_________________________日期:_________________________精品文档 / Word文档 / 文字可改余热锅炉操作规程(标准版)Safety operating procedures refer to documents describing all aspects of work steps and operating procedures that comply with production safety laws and regulations.余热锅炉操作规程(标准版)1.适用范围本规程适用于烟化炉余热锅炉及底吹炉余热锅炉的操作。
2技术规范锅炉型号烟化炉余热锅炉底吹炉余热锅炉最大蒸汽量(t/h)1711主蒸汽饱和压力4.04.03.烘炉新安装的余热锅炉在投入正式运行前,要进行烘炉,以便对炉墙进行干燥,提高强度。
3.1.烘炉前的准备工作3.1.1锅炉、安全附件和附属设备经检查已符合运行条件,且经过水压试验验收合格。
3.1.2.打开各处门孔,自然干燥一些时间3.1.3清理烟道内杂物;3.1.4开启锅筒上的放空阀,向锅炉注入软化水,水位维持在最低水位,并对水位表进行一次无压冲洗;3.1.5制定烘炉操作程序。
3.2烘炉方法与相连的烟化炉或底吹炉同时烘炉,即利用烟化炉或底吹炉烘炉的余热来烘干余热锅炉。
3.3烘炉过程3.3.1烘炉时应缓慢加温,第一天应控制余热锅炉烟道与烟化炉体或氧气底吹炉接口处的温升,温升不得超过100℃,以后每天温升不得超过40℃,烘炉后期最高烟气温度(余热锅炉出口)不得超过180℃。
整个烘炉过程持续7天左右,并如实做好温升记录;3.3.2烘炉过程注意事项①烘炉期间,锅炉产生的蒸汽由放空阀排出,锅炉水位保持在水位表的低水位,发现水位下降应及时补充;②烘炉过程中必须按烘炉升瘟规定的时间和温度把握好温升速度、不允许忽高忽低。
第一节大型干法水泥纯低温余热发电技术概述一、掌握内容1、复合闪蒸补汽式纯低温余热发电系统工艺流程2、复合闪蒸补汽式纯低温余热发电废气的取热方法3、纯低温余热发电技术一是在新型干法生产线生产过程中,通过余热回收装置(余热锅炉)将窑头、窑尾排出大量地品位的废气渔人进行回收换热,产生过热蒸汽推动汽轮机实现热能-机械能的转换,再带动发电机发出电能,并供给水泥生产过程中的用电负荷从而不仅大大提高了水泥生产过程中能源的利用水平,对于保护环境,提高企业的经济效益,提升产品的市场竞争力,起到了巨大的促进作用。
4、纯低温余热发电技术的特点是在不提高水泥生产过程中能耗指标的前提下,完全利用水泥煅烧过程中产生的余热进行回收,最大限度的提高水泥生产过程中热能的利用效率,另外配制纯低温余热发电系统将对原油水泥工艺系统不产生影响当两个系统接口计合理,将融和成为一个更优的大系统。
二、了解内容1、水泥余热发电应用的历史条件和发展方向2、国内余热发电已普遍采用的几种热力循环系统、循环参数及废气取热方式的特点和存在的主要问题讲解资料一、发展水泥窑余热发电技术的目的1. 1降低能耗、保护环境水泥熟料锻烧过程中,由窑尾预热器、窑头熟料冷却机等排掉的400c以下低温废气余热,其热量约占水泥熟料烧成总耗热量30%以上,造成的能源浪费非常严重。
水泥生产,一方面消耗大量的热能(每吨水泥熟料消耗燃料折标准煤为100〜115kg),另一方面还同时消耗大量的电能(每吨水泥约消耗90〜115kwh)。
如果将排掉的400℃以下低温废气余热转换为电能并回用于水泥生产,可使水泥熟料生产综合电耗降低60%或水泥生产综合电耗降低30%以上,对于水泥生产企业:可以大幅减少向社会发电厂的购电量或大幅减少水泥生产企业燃烧燃料的自备电厂的发电量以大大降低水泥生产能耗;可避免水泥窑废气余热直接排入大气造成的热岛现象,同时由于减少了社会发电厂或水泥生产企业燃烧燃料的自备电厂的燃料消耗,可减少CO2等燃烧废物的排放而有利于保护环境。
余热发电培训方案及培训计划一、培训方案1. 培训对象余热发电技术是一项复杂的技术领域,需要具备一定的技术水平和专业知识。
因此,培训对象主要包括以下几类人员:(1)工业生产企业的工程技术人员,他们需要具备较强的技术背景和工程能力,能够进行余热发电的技术设计和运营管理。
(2)专业技术人员,他们需要具备较强的电力知识和技术水平,能够进行余热发电设备的维护和故障处理。
(3)其他相关人员,如环保人员、质量管理人员、安全管理人员等,需要了解余热发电技术对工业生产的影响,以及如何协调余热发电技术与工业生产的关系。
2. 培训内容余热发电技术的培训内容主要涉及以下几个方面:(1)余热发电技术的原理和基本概念,包括余热的来源、收集、转换和利用等基本知识。
(2)余热发电设备的种类和特点,包括余热锅炉、余热发电机组、余热蒸汽轮机等设备的工作原理和结构特点。
(3)余热发电系统的设计和运行,包括余热发电系统的工程设计、设备选型、系统组成、运行管理等技术要点。
(4)余热发电系统的调试和维护,包括余热发电设备的调试程序、维护方法、故障排除等方面的技术要点。
(5)余热发电技术的应用和推广,包括余热发电技术在工业生产中的应用范围、经济效益、环境影响等方面的知识。
3. 培训形式余热发电技术的培训形式可以采取多种方式,包括理论培训、实践教学、案例分析、参观考察等形式。
(1)理论培训。
通过专家讲座、学术讲座、专题研讨等形式,向学员介绍余热发电技术的基本原理、设备结构、系统设计、运行管理等方面的理论知识。
(2)实践教学。
通过实验教学、实习实训、技术操作等形式,向学员传授余热发电设备的实际操作技能和应用能力。
(3)案例分析。
通过实际案例分析、技术问题解决、工程项目评审等形式,向学员讲解余热发电技术在工业生产中的应用实践和解决技术问题的方法。
(4)参观考察。
通过企业参观、设备观摩、现场考察等形式,向学员展示余热发电技术在实际工业生产中的应用效果和技术特点。
余热锅炉基础知识讲解目录1. 内容综述 (2)1.1 余热锅炉的定义与重要性 (2)1.2 基础知识讲解的目的与意义 (3)2. 余热锅炉概述 (4)2.1 余热锅炉的定义及工作原理 (5)2.2 余热锅炉的种类与结构 (6)2.3 余热锅炉的应用领域 (7)3. 余热锅炉的工作原理 (9)3.1 余热回收与利用 (10)3.2 锅炉内部的热量传递过程 (10)3.3 余热锅炉的热效率及影响因素 (12)4. 余热锅炉系统组成 (13)4.1 主体设备 (14)4.2 辅助设备 (15)4.3 控制系统 (16)5. 余热锅炉的操作与维护 (18)5.1 操作规程及注意事项 (19)5.2 日常维护与保养 (21)5.3 故障诊断与排除 (22)6. 余热锅炉的安全运行 (23)6.1 安全运行的重要性 (24)6.2 安全操作规程 (25)6.3 安全防护与应急处理 (26)7. 余热锅炉的应用与优化 (27)7.1 在不同行业的应用实例 (29)7.2 提高余热锅炉效率的措施 (30)7.3 优化运行与节能减排 (31)8. 总结与展望 (32)8.1 对余热锅炉基础知识的总结 (33)8.2 对未来发展趋势的展望 (34)1. 内容综述余热锅炉的类型和工作原理:对常见类型的余热锅炉进行分类介绍,并详细阐述其工作原理、特点和应用范围。
余热锅炉的结构组成:从外界热源入流到蒸汽或热水出流,详细描述余热锅炉各个主要组成部件以及其功能,包括热交换器、燃烧器、吹灰装置、节能措施等。
余热锅炉的操作和维护:简述余热锅炉的正常运行流程、常见故障排除方法以及日常维护保养要点,以帮助用户更好地操作和管理设备。
余热锅炉的节能效益和环保优势:通过数据和案例,分析余热锅炉在节能减排方面的实际应用效果,突显其在可持续发展中的重要作用。
1.1 余热锅炉的定义与重要性也称废热回收锅炉或余热回收锅炉,是一种特殊的中央加热设备,主要功能是利用工业生产过程中的余热来加热水或其他介质,达到能源的有效重新利用。
余热锅炉操作规程范本第一章总则第一条为了确保余热锅炉的安全运行,保证热能的有效利用,提高生产效率,制定本操作规程。
第二条本操作规程适用于余热锅炉的运行和操作。
第三条操作人员在进行余热锅炉操作时,必须严格按照本操作规程的要求执行。
第四条操作人员必须具备相应的操作技术,熟悉锅炉的基本原理和工作流程,并具备相应的安全意识和应急处理能力。
第五条操作人员必须按照岗位责任进行操作,禁止超负荷操作或违规操作。
第六条严禁操作人员在饮酒、服用药物等情况下进行操作。
第七条操作人员在操作过程中必须保证设备齐全、完好,故障设备必须及时报修。
第八条本规程确定了液相余热锅炉的操作程序和要求。
第九条本规程经具备法律法规的程序及时修订。
第二章操作程序第一节开机操作第十条开机前,操作人员必须检查锅炉供电是否稳定,各仪表指示是否正常。
第十一条开机前,操作人员必须检查余热锅炉的各个设备是否完好,无漏气、漏水等现象。
第十二条开机前,操作人员必须确保余热锅炉的水位、安全阀和排污阀处于正常状态。
第十三条开机时,操作人员必须按照启动程序依次操作,确保各个设备能够正常运行。
第十四条开机后,操作人员必须及时关注锅炉的运行状态,确保锅炉处于正常工作条件下。
第十五条在开机过程中,如发现有异常情况,操作人员必须停止锅炉的运行,并及时报告相关人员进行处理。
第十六条开机后,操作人员必须根据设备的使用情况,调整锅炉的工作参数,确保热能的有效利用。
第二节运行操作第十七条在运行过程中,操作人员必须定期检查锅炉的水位、压力、温度等参数,确保锅炉处于正常运行条件。
第十八条在运行过程中,操作人员必须加强烟气排放监测,确保排放符合相关法规要求。
第十九条在运行过程中,操作人员必须检查锅炉的燃料供应情况,保证燃料充足,并及时补充。
第二十条在运行过程中,操作人员必须注意锅炉的安全事故防范,并进行相应的检查和维护。
第二十一条在运行过程中,操作人员必须密切关注设备的故障和异常情况,并及时采取措施进行处理。
余热锅炉系统§1概论一、简述在燃气轮机内做功后排出的燃气,仍具有比较高的温度,一般在540℃左右,利用这部分气体的热能,可以提高整个装置的热效率。
通常是利用此热量加热水,使水变成蒸汽。
蒸汽可以用来推动蒸汽轮机一发电机,也可用于生产过程的加热或供生活取暖用。
对于稠油的油田可以用蒸汽直接注入油井中,以提高采油量。
根据不同的蒸汽用途,要求有相应的蒸汽压力和蒸汽温度,也就需要不同参数的产汽设备。
利用燃气轮机排气的热量来产汽的设备,称为“热回收蒸汽发生器”,表明回收了排气的热量,用英文字母HRSG来表示。
我国习惯上称为“余热锅炉,本文也采用“余热锅炉”的名称,并把燃气轮机的排气简称为“烟气”。
“余热锅炉”通常是没有燃烧器的,如果需要高压高温的蒸汽,可以在“余热锅炉”内装一个附加燃烧器。
通过燃料的燃烧使整个烟气温度升高,能够产生高参数的蒸汽。
例如某余热锅炉不装燃烧器时,入口烟气温度为500℃,装设附加燃烧器后,可使入口烟气温度达到756℃。
蒸汽的压力可以从4MPa升到10MPa,蒸汽的温度可以从450℃升到510℃,蒸汽可以供高温高压汽轮机用,从而增加了电功率输出。
目前我国油田进口的余热锅炉的蒸汽参数有:4MPa配450℃及1.4MPa配195℃(饱和蒸汽)。
前者供给中压汽轮机来发电,后者可以供生产或供生活取暖用。
注:关于多种余热锅炉,余热锅炉利用燃气轮机排气的方式,补燃问题。
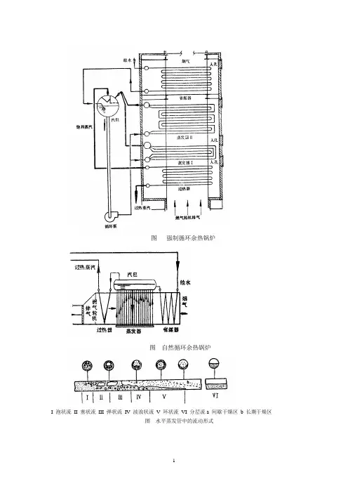
二、余热锅炉的组成(一)蒸汽的生产过程图19-1是一台余热锅炉的结构示意图,从图中可以看出产汽的过程。
图19-1强制循环余热锅炉(注意蒸发器为顺流布置,即管束流向自下而上,以免上下弯头处积汽。
)从燃气轮机出口的烟气,经烟道到余热锅炉入口,烟气自下而上流动,流经过热器、两组蒸发器和省煤器,最后排入烟囱。
排烟温度约为150-180℃,烟气温度从540℃降到排烟温度,所放出的热量用来使水变成蒸汽。
进入余热锅炉的给水,其温度约为105℃左右,先进入上部的省煤器,水在省煤器内吸收热量使水温上升,水温升到略低于汽包压力下的饱和温度,就离开省煤器进入汽包。
余热锅炉安装的控制要点摘要:本文结合云南源鑫炭素有限公司600Kt/a炭素项目余热锅炉的安装工艺进行分析,总结此类锅炉的安装经验,为以后安装此类锅炉提供可借鉴的经验。
关键词:特种设备余热锅炉安装1 概述此台余热锅炉为杭州锅炉厂设计生产的Q243/1100-117-9.81/540型,烟气进口温度1100℃,蒸发量117吨/时,主蒸汽温度540℃,工作压力9.81MPa,余热锅炉主要包括锅炉钢架、水冷壁系统、省煤器系统、蒸发器系统、过热器系统、炉墙系统、锅炉管道系统、灰斗、进出口烟道、辅助设备包括定期排污扩容器、连续排污扩容器、取样及加药装置等。
本次只分析余热锅炉本体部分,余热锅炉属于特种设备,危险性大,所以,对于每一道工序必须严格控制和把关,才能确保锅炉安装质量。
2 余热锅炉整体安装工序余热锅炉整体安装工序:平台铺设→材料验收→基础验收→钢架组对→构件分片组对→横梁安装(预留设备吊装孔)→停点检查→受热面设备通球试验→分片组合→左右水冷壁安装→前后水冷壁下半部分安装→吊装孔处预留梁复位→锅筒及内件检查→锅筒安装→鳍片蒸发器安装→低温过热器安装→高温过热器安装→吊挂管安装→省煤器安装→前、后水冷壁上半部分→顶部平台及防雨棚→锅炉附属管道安装→灰斗→进出口烟道安装→停点检查→整体水压试验→筑炉→漏风试验→保温→烘炉→煮炉→安全阀调校→整体试运行→竣工验收,本文只对重点工序进行总结分析。
3 余热锅炉钢架安装3.1 为了焊接方便、尺寸测量准确、工作效率高,立柱对接和构架组合应在稳定的平台上进行。
3.2 钢架安装一件,找正一件,严禁在未找正好的构架上进行下一工序的安装,以免造成无法纠正的误差。
3.3 锅炉钢构架组合安装时应先找正,并点焊牢固,留有适当的焊接收缩余量,经复查尺寸合格后才允许正式焊接,采用对称同时焊接的方法,严格控制焊接后的焊接变形。
3.4 吊装时应保持结构的稳定,必要时临时加固,构架安装后应复查立柱的垂直度,主梁挠曲值和各部位的主要尺寸,控制在允许偏差之内。
余热锅炉操作规程8篇【第1篇】余热锅炉工段平安技术操作规程1、锅炉岗位主要任务:将焙烧岗位高温炉气经余热锅炉汲取热量生产中压蒸汽送到余热发电岗位发电,降温后二氧化硫炉气经旋风除尘、电除尘后送至净化系统。
给水泵把经处理后利用除氧器除氧符合锅炉水质标准的水送入锅炉汽包,炉水一部分利用汽包下降管自然循环分离沉降至沸腾炉膛内4组水箱汲取炉内热量后变为汽水混合物升高向汽包汇合;另一部分炉水利用汽包下降管至热水循环泵加压后,依次进入ⅰ、ⅰ、ⅰ蒸发管组汲取高温炉气热量后,变为汽水混合物依次向汽包汇合。
利用汽包内的汽水分别器分别,把饱和蒸汽从汽包顶部排出进入过热器进一步加热加压至450ⅰ和3.82mp的过热蒸汽后送到汽轮机发电。
3、主要控制指标操作指标控制参数操作指标控制参数蒸汽压力3.82mp炉水ph值9--11蒸汽温度430—450ⅰ磷酸根5--154.工段主要设备一览表序号设备名称规格型号序号设备名称规格型号1余热锅炉4省煤器2热水循环泵5滚筒排渣机3锅炉给水泵6增湿器5、锅炉岗位平安操作注重事项5.1锅炉开车平安操作程序5.1.1余热锅炉岗位操作工必需经特地技术培训,考试合格,取得《司炉操作证》,并持有《平安作业证》方能上岗操作。
5.1.2开车前必需确信装置是处于清洁、良好和平安的状态;各仪表、阀门、平安阀调校好,各电器设备处于完好状态;打开锅炉饱和蒸汽放空阀,关闭各排污阀和取样阀;设备操作通道畅通、照明设施良好;以上工作检5.1.3查完毕后启动锅炉给水泵,用锅炉给水旁路阀上水,当汽包液位到达到2∕3后,启动热水循环泵,观看汽包液位状况补充给水。
5.1.4沸腾炉点火升温后,锅炉开头升温升压。
当饱和蒸汽放空阀开头向外排汽较大时即关闭该阀。
5.1.5汽包压力升压速度:5.1.5.1mpa需2小时。
在0.1mpa时冲洗水位计。
在0.2mpa时仪表工冲洗压力表、流量计和水位计等的衔接管线,检修工第一次热紧受压元件螺栓。
余热锅炉设计要点
余热锅炉设计要点
余热锅炉设计要点
1.设计余热锅炉的目的是回收工业生产中产生的热能,降低能耗并提高能源利用效率。
2. 首先要确定余热锅炉的工作条件,包括余热源的温度、流量、成分等参数,以及要回收的热量和使用的介质。
3. 根据工作条件,选择适合的余热锅炉类型,如水管式余热锅炉、烟气式余热锅炉等。
4. 设计余热锅炉的热传导系统,包括传热面积、传热系数等参数的计算,以确保热量的充分回收。
5. 选择适合的余热锅炉材料,如不锈钢、合金钢等,以确保耐腐蚀、耐高温等特性。
6. 设计余热锅炉的防爆、安全保护等装置,确保生产过程中的安全性。
7. 进行余热锅炉的运行和性能测试,对其进行调整和改进,提高其效率和使用寿命。
8. 在余热锅炉的设计中,应重视节能、环保等因素,尽可能地减少对环境的影响。
- 1 -。
余热锅炉操作规程模版第一章总则第一条为了保证余热锅炉的运行安全,提高其运行效率,合理利用余热资源,减少能源消耗,特制订本操作规程。
第二条本操作规程适用于余热锅炉的操作、维修和保养。
第三条余热锅炉操作人员应具备相关专业知识,熟悉操作规程。
第二章余热锅炉的日常操作第一条工作人员操作前应检查余热锅炉的各项运行指标是否正常,包括水位、压力、燃烧情况等。
第二条正常情况下,余热锅炉的水位控制在正常水位线以上,不得过高或过低。
第三条燃烧系统应保持良好的通风状态,确保燃烧充分、稳定,不得出现烟尘、黑烟等异常情况。
第四条定期清洗余热锅炉的各个部位,包括炉膛、烟道等,保持其清洁。
第五条若发现异常情况,及时停止运行并通知上级领导和维修人员进行处理。
第三章余热锅炉的维修与保养第一条定期检查余热锅炉的设备、管路和阀门等部件是否完好,若发现有磨损、松动等情况,及时更换或修复。
第二条定期清洗炉排和烟道,除尽燃烧废气中的灰尘和沉积物。
第三条定期检查余热锅炉的水质,及时调整水质平衡。
第四条定期清理余热锅炉的水位计和压力表,确保准确可靠。
第五条若出现故障,由专业维修人员进行处理,不得私自维修。
第六条严禁在余热锅炉周围放置易燃物品或其他危险品。
第四章余热锅炉的安全操作第一条余热锅炉操作时应注意安全,不得擅自关闭锅炉的保护装置。
第二条严禁在余热锅炉周围抽烟或使用明火。
第三条操作人员应按照规定穿戴好个人防护装备,包括安全帽、护目镜、防护服等。
第四条出现漏气、火花、异响等异常情况时,应立即采取安全措施并报告上级领导和维修人员。
第五条注意余热锅炉的放水操作,定期排放锅炉内的废水,确保锅炉内清洁。
第五章附则第一条操作人员应定期参加安全培训和技术培训,不得操作超过自己掌握范围的设备。
第二条本操作规程由负责余热锅炉操作的专业人员担任监管并监督执行。
第三条操作人员应严格执行操作规程,不得擅自修改或忽视规定。
第四条对于严重违反操作规程的操作人员,将根据情节严重程度给予相应的处罚。
自热炉余热锅炉第一节概述余热锅炉是有色冶炼过程的关键设备之一,由于铜冶炼烟气SO2浓度较高且具有烟温高、含尘量大、烟尘粘结性强等特点,余热锅炉能否适应冶炼烟气的特点,直接关系到整个冶炼工艺的安全生产。
自热炉余热锅炉安置于自热炉炉顶出烟口,由垂直布置的上升烟道、下降烟道和水平布置的对流区组成。
熔炼过程产生的高温烟气首先进入上升烟道然后折转进入下降烟道,最后通过对流区,烟气温度降至360℃左右排除余热锅炉。
余热锅炉采用强制循环。
为了有效控制各组受热面间的循环流量分配,在每组受热面管的入口均装设节流孔板。
节流孔板同时还可以保证水循环的稳定,防止发生停滞、倒流和脉动显现。
1、自热炉炉体 5、密封圈带 9、锅炉振打2、余热锅炉过渡段 6、锅炉刮板 10、对流区灰斗3、余热锅炉上升段 7、余热锅炉对流区 11、对流区出口4、余热锅炉下降段 8、对流区锅炉顶盖自热炉余热锅炉简图第二节余热锅炉系统运行参数及设备自热炉余热锅炉原设计为配套引进俄罗斯技术, 94年安装投产运行,余热锅炉水冷壁结构为盘管内衬钢板式,这种结构形式烟气换热效率低,烟尘易在锅炉上升段、下降段乃至对流区烧结,不仅人工清理劳动强度大,而且作业率低,清理时不利于安全保障。
2003年08月经北京有色设计院设计,江苏省张家港海陆锅炉总厂生产,将锅炉盘管内衬钢板式水冷壁改造为膜式壁结构,换热面分:过渡段、上升段、下降段、对流区、对流管束。
这种膜式壁结构换热率高,烟尘在过渡段以上不会烧结,清理方便,劳动强度降低,作业率提高。
余热锅炉主要技术性能一、烟气条件(1)、进口烟气量 8000m3/h(2)、进口烟气温度 1280℃(3)、出口烟气温度 420+20℃(4)、烟气含尘量 120g/m3(5)、进口负压 -5~-30Pa二、余热锅炉设计参数(1)、额定蒸发量 6t/h(2)、饱和蒸汽温度 250℃(3)、工作运行压力 2.5~3.9MPa(4)、汽包压力(最大) 4.0MPa(5)、给水温度 104℃(6)、循环水流量 150 m3/h(7)、除氧水箱 V=4 m3×2(8)、除氧器Q=5 m3/h P=0.02MPa 外网加热蒸汽压力0.6MPa (9)、排污膨胀器Φ670mm P=0.4MPa (10)、汽水加热器 F1.0-273-2.7-2型 2.7 m2 (11)、磷酸盐过滤器Φ500mm 填充无烟煤a、 0.5~1mm H=360mmb、 5~10mm H=103mm(12)、计量箱 V=0.5 m3(13)、搅拌槽 V=0.5 m3 搅拌电机0.37kw (14)、计量泵X—16/80 Q=0.016 m3/h H=800mH2O电机Y90S—2, N=1.5kw 往返次数83次/分(15)、溶液泵型号:2SF-25 轴功率:0.9kw 配用功率:1.5kw流量:36m3/n 扬程:25m 效率:27%转速:2960rpm电机型号:Y90S-2 功率:1.5kw 转速:2840rpm(16)、热水循环泵 HPH80—200 Q=100m3/h H=50mH2O电机 Y180M—2 N=22kw 1台(国产) HPH 80—200 Q=100 m3/h H=50mH2On=2950rpm p=0.784kg.dm3电机:KnR180M2 N=22kw 2台(进口)(17)、给水泵 DG 12—50×12 Q=12.5 m3/h H=600mH2O电机 Y280S—2 N=55kw 1台(国产)型号:HGM1/12 Q=5.7t/h △p=55.96bar电机7-up225M N=55kw 2台(进口)三、余热锅炉水质控制标准(1)、PH>9(9—11) 25℃(2)、P碱度<2mval/kg(3)、电导率<80ms/m(4)、PO-34<15(5—15)PPm四、余热锅炉循环管网工艺流程由动力厂二车间化学水处理(或闪速炉化学水处理)站供来的除盐水进入热力除氧器除氧,除氧后的给水由给水泵打入余热锅炉锅筒。
锅筒中的炉水由下降管送至循环泵,经循环水泵升压后送至各组水冷壁和对流管束。
汽水混合物返回锅筒进行汽水分离,部分饱和蒸汽经减压后送入除氧器作为自用汽,其余蒸汽经减压后送入厂区热力管网。
闪速炉余热炉化学水处理站送来的软化水(动力厂二车间)→汽水加热器→除氧头第三节余热锅炉系统运行维护及管理一、余热锅炉的管理与维护(1)、控制室操作人员时刻监视微机,监视炉水的循环情况,保证循环水流量稳定,保持汽包水位在±50mm内波动,每一小时书面记录锅炉运行参数,每天白班及小夜班对锅炉炉水水质进行化验。
(2)、时刻监视汽包压力,发现异常要及时调整。
(3)、保持除氧器水箱水位在450mm处,压力20kPa。
(4)、每小时校对水位计一次,发现差值通知有关人员校对,同时保持水位计清晰可辨,否则应进行冲洗。
(5)、每30分钟观察给水泵和循环泵的电流变化情况,当电流超过额定值时,应按规定处理。
(6)、随时根据化验分析结果,控制炉水标准在规定范围,否则应采取排污或加药处理。
(7)、每小时检查阀门,法兰及人孔的使用情况,发现问题及时采取相应措施。
(8)、及时调整给水泵出口压力,控制在5.5-6.0MPa,低于上值时,要立即调整再循环阀。
(9)、每30分钟检查给水泵和循环泵的运行状况,发现振动或汽蚀,及时将泵切换到另外一台泵。
(10)、每周对余热锅炉(包括弹簧振打装置)进行一次全面检查,发现有漏风用石棉绳或镁泥填充,不能处理的待检修时进行。
(11)、余热锅炉正常运行时运行参数调整范围:汽包水位中水位±50mm饱和蒸汽温度 250℃工作运行压力 2.5~3.9MPa汽包压力(最大) 4.0MPa给水温度 104±5℃给水压力 5.5~6.5MPa循环水流量 130~160 m3/h除氧器压力 16~20Kpa除氧器水位水位计450 mm处二、岗位出现非正常情况的处置及报告程序余热锅炉在遇到下列情况时,应立即紧急停炉:(1)、余热锅炉严重缺水,即使关闭水位计上部的蒸汽旋塞,也未显示水位,这时绝对禁止加水。
(2)、余热锅炉严重满水,水位超过水位计可见水位,打开事故排水和排污阀后水位仍未下降。
(3)、水位计、压力表、安全阀全部出现故障不能使用时。
(4)、汽包压力超过4.2MPa,安全阀已起跳而压力并未下降。
(5)、余热锅炉受压部件或焊缝有裂缝、凸起、蜂窝、鼓包等现象。
(6)、给水系统或循环系统发生严重故障。
(7)、循环泵出口压力低于规定值,或事故停电。
(8)、余热锅炉元件有损坏,危及到人身及设备安全。
三、余热锅炉清灰由于冶炼烟气中含有大量烟尘,易在余热锅炉受热面产生积灰,因而在各受热面均装有振打清灰装置,振打装置被分为4组,即过渡段、上升段、下降段、对流区,每组振打频率根据锅炉内壁粘结情况和工艺要求由技术员安排调整,每台振打器的振打力,可根据锅炉内壁粘结情况和工艺要求将举锤高度做30º、60º、90º相应调整。
如果自动发生故障时,锅炉工应及时根据设定时间改为手动控制振打。
余热锅炉灰斗下部装有埋刮板出灰机,余热锅炉中沉降下来的烟尘和通过振打清除下来的灰渣由出灰机排出炉外,为避免大块灰渣卡塞埋刮板出灰机,在下降烟道底部灰斗设有格栅。
第四节余热锅炉运行常见故障及处理任何设备,只要设计、制造、安装不良,年久又失修,加上运行操作不当,都会酝酿直至发生事故。
因此,要防止事故,必须从设备的设计、制造、安装、检修着手,也必须提高运行人员的运行水平,这样才可以防止和消灭事故的发生。
由于事故带来的危害极大,因此对于锅炉的典型事故及其处理方法必须了解掌握。
一、危险因素:(1)、炉管爆裂、锅炉循环系统发生泄漏,高温水蒸汽伤人;(2)、锅炉泄漏炉水进入自热炉后,发生放炮。
二、发生事故的现象、原因、预防及处理1、冷却器缺水a、缺水的现象:汽包水位低于规定的正常水位;计算机汽包水位显示出现报警信号;缺水有轻微缺水和严重缺水。
b、缺水原因:(1)、操作人员疏忽大意,对水位监视不够或误操作;(2)、给水自动调节阀失灵,(调节阀无仪表风或冬季水位变送器导压管冻、堵塞等原因);(3)、水位计指示不正确,这有以下几种情况:水位计的水连管及汽连管阻塞时,会引起水位计内的水位上升。
如汽连管阻塞,则水位逐渐上升;如果水位计的放水旋塞漏水,则水位计的水位将降低;水位计有不严密之处;(4)、给水系统发生故障供不上水;(5)、余热锅炉排污阀未关严,甚至在排污后未关排污阀;(6)、炉管出现爆裂。
c、缺水的预防(1)、操作人员应严格遵守操作规程,随时监视汽包内的水位,确保水位计的正常使用;(2)、保证余热锅炉自动给水调节阀和水位计灵敏和准确,发生故障做好记录,及时处理,同时做好1#,2#给水管路的相互备用。
d、缺水的处理:(1)、首先进行汽包水位计通水部分的冲洗工作再用“叫水”法检查水位,以确定是严重缺水还是轻度缺水;(叫水法:先开启水位计放水旋塞,再关闭汽连管旋塞,然后缓慢关闭放水旋塞,观察水位计内是否有水出现。
)(2)、如用“叫水”法后,水位在水位计内出现时(即轻微缺水),应保持汽包正常工作压力,逐渐恢复汽包水位到正常水位,并注意水位在水位计内的变动情况;(3)、如经用“叫水”法后,水位计中仍见不到水位(即严重缺水)时、应紧急停炉。
此时严禁向炉内进水;(4)、汽包出现缺水时,应将给水阀调节由自动改为手动控制。
2、冷却器满水a、满水现象(1)、汽包水位计内,水位超过最高安全水位;(2)、汽包水位计显示上限信号;(3)、出口蒸汽温度下降;(4)、严重满水时蒸汽管内发生水冲击,法兰处向外冒汽。
b、满水原因(1)、操作人员疏忽大意,对水位监视不够或误操作;(2)、给水操作阀失灵。
(原因见缺水部分);(3)、水位计指示不正确,使操作人员操作失误。
c、满水的处理(1)、进行汽包各水位计的对照与冲洗,以检查其指示是否正常;(2)、给水自动调节阀由自动改为手动;(3)、停止或减少冷却器进水,并开启底部排污阀进行放水,同时应严密监视水位,出现水位后应停止进水;(4)、打开主汽阀,减压站疏水阀适当放水,以防止管内发生水冲击。
3、冷却器爆管a、爆管现象(1)、冷却器炉管有大量的蒸汽喷出;(2)、汽包水位计内水位迅速降低,蒸汽压力和给水压力下降。
b、炉管爆炸的原因(1)、炉水水质不符合标准,致使管子内部结垢或腐蚀;(2)、在安装和检修时,管内有杂物堵塞,使管子局部过热而出现破裂;(3)、在检修,清理烟灰块时,有下落物砸坏管子,而又未及时发现;(4)、烟气结露造成对炉管的腐蚀,炉管破裂;(5)、自热炉喷炉熔体烧坏炉管,造成管子鼓包开裂;(6)、焊接质量不合格,材料不合乎标准,以及其它制造中的缺陷引起爆管;(7)、设计有缺陷,水循环被破坏;(8)、安装不合要求,热膨胀不均或有开炉时急速升温升压,有可能造成开裂,或者炉管长期受烟气中的烟灰粒子冲刷而造成管壁局部变薄。