铁塔设计方案图样
- 格式:doc
- 大小:263.50 KB
- 文档页数:12
铁塔制作要求1、铁塔设计设计要求设备安装铁塔为前端监控设备的运行提供必要的保障,为了使设备正常运行,在基础建设上本着牢固可靠、坚固耐用的原则,铁塔设计遵循《高耸结构设计规》GB135-90,满足设备安装的要求。
铁塔抗风性能要加强,据了解,该地区最大历史风力记录为18级强台风,14级台风每年都有不少于10次,故此,需要特别注意安装铁塔的抗风要求,加强铁塔、基础的抗风制作级别,确保安装铁塔以及设备的安全。
由于设备安装点地处海岛,常年台风季节多,伴随雷电多发天气也多,需要加强铁塔的接地级别要求,本协议要求铁塔的整体接地阻值不大于1欧姆。
2、铁塔设计考虑的因素:1)铁塔的设计原则是“安全,适用,经济,美观”。
由于海域监控系统地处海边,为了系统建设后与整体环境协调,铁塔的设计在满足安装、安全性的条件下,追求线条流畅,与周边环境和谐,铁塔颜色可根据环境色调搭配;2)铁塔设计、施工、验收依据《建筑结构可靠度设计统一标准》GB50068-2001《建筑结构荷载规》GB50009-2001《钢结构设计规》GB50017-2003《钢结构工程施工工程质量验收规》GB50205-2001《建筑抗震设计规》GB50135-2006《钢塔桅结构设计规程》GBJ1-84《建筑钢结构焊接技术规程》JGJ81-2002《移动通信工程钢塔桅结构设计规》YD/T5131-20053)基本抗风、结构安全等级及设计使用年限:抗风级别18级,铁塔抗震为不低于9级,铁塔设计使用寿命不低于10年。
4)铁塔负载要求:铁塔要求负载不小于200公斤,该铁塔负载不包括钢结构主材、螺栓、节点板、避雷针等永久载荷和风荷载、地震作用、雪荷载、裹冰荷载、人员上塔安装检修等可变载荷。
5)铁塔主要材质要求:主材—Q345;其余—Q235;螺栓—M16为4.8级;螺栓—M20为6.8级,铁塔总体垂直度不大于千分之一。
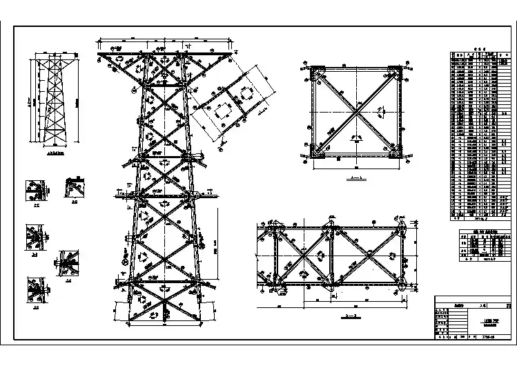
6)铁塔的结构要求:铁塔顶部设计一个平台。
平台面积为0.26*0.26的安装云台支撑平台,在云台支撑平台上设计四个安装孔,安装孔的位置为181mmX181mm,孔的大小为Φ11。
单管铁塔工程安装方案设计一、项目背景单管铁塔是电力输送线路上的一种重要设备,用于支撑电力输送线路,支持线路的正常运行。
其安装工程牵涉到土地所有权、电力设备规划及建设、土地资源利用等方面。
本方案设计将主要包括铁塔选址、土地准备、施工方案、安装计划等内容。
二、铁塔选址1. 选址原则单管铁塔应选择平整、无障碍物的场地进行安装。
选址应考虑周边环境,如水源、土壤状况、地貌等因素,确保选址区域适合进行铁塔安装,并不会影响周边环境和村庄的日常生活。
2. 选址程序(1)寻找候选选址:根据输电线路规划和地形地貌,确定候选选址,并进行初步勘察。
(2)进行实地勘察:到候选选址实地勘察,确定最适合的场地进行铁塔安装。
(3)编制选址报告:制定选址报告,报请审批部门批准选址。
三、土地准备1. 土地占用手续铁塔安装涉及土地占用问题,需要向相关部门申请土地使用权。
申请土地使用权需要提供完整的施工图纸、用地方案、环评资料等材料,并经相关部门审批。
2. 土地平整在选定的场地上进行土地平整工作,确保场地平整、无障碍物,便于后续施工和铁塔的安装。
四、施工方案1. 施工准备(1)组织人员:确定施工负责人员及施工队伍,确保施工人员具备相应的技能和资质。
(2)物资准备:准备所需的施工设备、材料等物资,确保施工过程中不乏材料和设备。
2. 施工工序(1)基础施工:进行铁塔基础的施工,包括打桩、浇筑混凝土等工作。
(2)铁塔安装:进行铁塔的安装工作,包括铁塔的拼装、安装、固定等步骤。
(3)验收交付:完成铁塔安装后,进行验收并交付使用。
五、安装计划1. 工期计划根据施工方案确定施工工期,科学合理地制定安装计划,确保施工进度和质量。
2. 安全防护在施工过程中,要加强安全教育,贯彻施工安全管理制度,确保施工人员的人身安全和设备安全。
3. 质量控制严格按照相关标准和要求进行质量控制,保证铁塔安装工程质量。
六、总结与展望本方案设计包括铁塔选址、土地准备、施工方案、安装计划等内容,针对单管铁塔的安装工程进行了详细的规划和设计。
铁塔设计方案图样铁塔制作要求1、铁塔设计设计要求设备安装铁塔为前端监控设备的运行提供必要的保障,为了使设备正常运行,在基础建设上本着牢固可靠、坚固耐用的原则,铁塔设计遵循《高耸结构设计规范》GB135-90,满足设备安装的要求。
铁塔抗风性能要加强,据了解,该地区最大历史风力记录为18级强台风,14级台风每年都有不少于10次,故此,需要特别注意安装铁塔的抗风要求,加强铁塔、基础的抗风制作级别,确保安装铁塔以及设备的安全。
由于设备安装点地处海岛,常年台风季节多,伴随雷电多发天气也多,需要加强铁塔的接地级别要求,本协议要求铁塔的整体接地阻值不大于1欧姆。
2、铁塔设计考虑的因素:1)铁塔的设计原则是“安全,适用,经济,美观”。
由于海域监控系统地处海边,为了系统建设后与整体环境协调,铁塔的设计在满足安装、安全性的条件下,追求线条流畅,与周边环境和谐,铁塔颜色可根据环境色调搭配;2)铁塔设计、施工、验收依据《建筑结构可靠度设计统一标准》GB50068-2001《建筑结构荷载规范》GB50009-2001《钢结构设计规范》GB50017-2003《钢结构工程施工工程质量验收规范》GB50205-2001《建筑抗震设计规范》GB50135-2006《钢塔桅结构设计规程》GBJ1-84《建筑钢结构焊接技术规程》JGJ81-2002《移动通信工程钢塔桅结构设计规范》YD/T5131-20053)基本抗风、结构安全等级及设计使用年限:抗风级别18级,铁塔抗震为不低于9级,铁塔设计使用寿命不低于10年。
4)铁塔负载要求:铁塔要求负载不小于200公斤,该铁塔负载不包括钢结构主材、螺栓、节点板、避雷针等永久载荷和风荷载、地震作用、雪荷载、裹冰荷载、人员上塔安装检修等可变载荷。
5)铁塔主要材质要求:主材—Q345;其余—Q235;螺栓—M16为级;螺栓—M20为级,铁塔总体垂直度不大于千分之一。
6)铁塔的结构要求:铁塔顶部设计一个平台。
铁塔制作要求1、铁塔设计设计要求设备安装铁塔为前端监控设备的运行提供必要的保障,为了使设备正常运行,在基础建设上本着牢固可靠、坚固耐用的原则,铁塔设计遵循《高耸结构设计规范》GB135-90,满足设备安装的要求。
铁塔抗风性能要加强,据了解,该地区最大历史风力记录为18级强台风,14级台风每年都有不少于10次,故此,需要特别注意安装铁塔的抗风要求,加强铁塔、基础的抗风制作级别,确保安装铁塔以及设备的安全。
由于设备安装点地处海岛,常年台风季节多,伴随雷电多发天气也多,需要加强铁塔的接地级别要求,本协议要求铁塔的整体接地阻值不大于1欧姆。
2、铁塔设计考虑的因素:1)铁塔的设计原则是“安全,适用,经济,美观”。
由于海域监控系统地处海边,为了系统建设后与整体环境协调,铁塔的设计在满足安装、安全性的条件下,追求线条流畅,与周边环境和谐,铁塔颜色可根据环境色调搭配;2)铁塔设计、施工、验收依据《建筑结构可靠度设计统一标准》GB50068-2001《建筑结构荷载规范》GB50009-2001《钢结构设计规范》GB50017-2003《钢结构工程施工工程质量验收规范》GB50205-2001《建筑抗震设计规范》GB50135-2006《钢塔桅结构设计规程》GBJ1-84《建筑钢结构焊接技术规程》JGJ81-2002《移动通信工程钢塔桅结构设计规范》YD/T5131-20053)基本抗风、结构安全等级及设计使用年限:抗风级别18级,铁塔抗震为不低于9级,铁塔设计使用寿命不低于10年。
4)铁塔负载要求:铁塔要求负载不小于200公斤,该铁塔负载不包括钢结构主材、螺栓、节点板、避雷针等永久载荷和风荷载、地震作用、雪荷载、裹冰荷载、人员上塔安装检修等可变载荷。
5)铁塔主要材质要求:主材—Q345;其余—Q235;螺栓—M16为4.8级;螺栓—M20为6.8级,铁塔总体垂直度不大于千分之一。
6)铁塔的结构要求:铁塔顶部设计一个平台。
平台面积为0.26*0.26的安装云台支撑平台,在云台支撑平台上设计四个安装孔,安装孔的位置为181mmX181mm,孔的大小为Φ11。
摄像机云台底座尺寸7)铁塔钢构件制作要求:含连接螺栓,螺母及垫圈等紧固件,基础骨架及埋在混凝土内的构件均采用热镀锌防腐处理,按照GB/T 13912-2002《金属覆盖层钢铁制件热浸镀锌层技术要求及试验方法》进行。
镀层厚度:当杆件厚度≥5mm 时,不小于86微米;当杆件厚度<5mm时,不小于65微米。
因工艺要求在构件上焊接零件时,应在镀锌前进行。
3、铁塔的施工工艺(1)铁塔安装时要求接面接口平整,接缝处应紧密平直,接地连接良好;铁塔顶,摄像机安装板要求平整,无翘角;出线口的位置准确,铁塔内侧安装布线管道,不影响整体美观性,并做好防腐处理。
(2)线路管道敷设时,管路的弯曲处不应有褶皱、凹穴和裂缝现象,弯扁程度不应大于管外径的1/10,弯曲半径不应小于管外径的6倍。
管入盒、箱等处管口应平齐、无毛刺,管口露出箱、盒应小于5MM,用螺母固定,需接地的地方接地跨接良好。
管口露出锁母的丝扣为2-4扣。
并应一管一孔。
孔的大小应与管径相吻合。
管道连接点采用连接头连接做到严密、牢固;管道材质选择PE管或者热镀锌钢管。
(3)设备接线位置根据实际情况留有足够的冗余。
导线两端应按照设备说明提供的线号用标签进行标识,根据编号来进行端子接线。
设备导线头拨开5-10mm线皮,露出铜芯,套压接线端子后接在设备接线端口。
(4)管内穿线前,先锉平管道切口,管口应刮光、无毛刺。
(5)直埋辐射电缆时,使用铠装直埋式电缆,下埋深度不少于600mm,回填土压紧夯实。
(6)防雷接地系统:安装铁塔、数字微波系统均建设防雷措施,采用专用避雷针、防雷器,防雷器采用模块化,安装在设备控制箱内。
铁塔、立柱按照“避雷针-引下线-接地线-接地极”方式,将雷电感应到的电流导入地下接地网,接地阻值在1Ω以内;设备电源线、视频线、信号馈线两端均加装防雷器,保证设备的绝对安全。
(7)电源与控制线的接头应用接线盒内接或用端子连接;并做好防水保护。
(8)所有基础、手孔制作的混凝土标号为C25,在制作完成后需要养护5-7天后方可使用。
4、铁塔的施工要求铁塔安装及防雷符合电信级要求,整体外观做好防腐、防锈处理;安装应竖直平稳,垂直偏差不得超过1%;铁塔的安装底座采用专用基础固定;基础的大小根据铁塔的受力分析,绘制出绝对安全的基础结构图纸,严格按照图纸施工;在制作基础时根据铁塔底座固定螺栓间距,在基础内浇注安装地脚螺栓、法兰盘,在浇注基础时,地脚螺栓用机油和塑料模做好防锈保护措施,底座法兰盘要水平,最大偏差不大于2mm。
铁塔做好防雷接地工作,接地阻值不超过1Ω。
摄像机、数字微波等设备安装在铁塔顶部,要牢固、稳定、平衡;设备做好防雷措施,在设备连接馈线两端加装防雷器件。
5、铁塔防雷接地要求(1)设计、施工、验收依据:《通信局(站)防雷与接地工程设计规范》《建筑物防雷设计规范》GB50057-94(2000年版);(2)在铁塔塔顶安装避雷针,并通过40x4镀锌扁铁连接到接地体上,同时避雷针与塔身可靠电气连接;铁塔金属构件应在塔脚处与铁塔基础可靠焊接(采用满焊方式);避雷针对最远端设备的保护角度小于25度。
(3)铁塔地网:铁塔地网应采用40mmX4mm的热镀锌扁钢将铁塔地基各塔脚内部金属构件焊接连通组成铁塔地网,并将铁塔地网延伸到塔基四脚外1.5m远的范围,其周边为封闭式;同时还要利用每个塔基地桩内的两根以上主钢筋作为铁塔地网的垂直接地体(或与铁塔基础钢筋笼整体连接)。
地网设置及敷设要求水平接地体的上端距地面应不小于1.2m。
(4)单独从避雷针接地对角引40X4的镀锌扁铁到塔顶,作为防雷接地用,两端电气应可靠接地并做好防腐处理;电阻值小于等于1欧姆。
(5)铁塔接地施工以“铁塔接地制作图”为指导,依次进行接地的施工。
●优化避雷雷电通流量Nominal Discharge Current (In) 300KA抗风强度Anti – Wind (m/s) 40接闪针数Number of Rod 1净重量Weight (Kg) ≤10总高度Height (mm) 1500阀兰规格Dimension Φ300×280材质Material 不锈钢工作温度Temperature (℃) -40℃~+80℃●接地极接地是防雷的基础,标准规定的接地方法是采用金属型材铺设水平或垂直地极,在腐蚀强烈的地区可以采用镀锌和加大金属型材的截面积的方法抗腐,接地体的冲击接地电阻不宜大于1欧,如达不到要求可用添加降阻剂和增加接地体数量等方法来降低阻值。
根据本项目实际情况,我们选用非金属型接地材料,在铁塔周围做环形地网,要求接地阻值小于1Ω,由于铁塔位于高山上,土壤电阻率约为相对较高,土壤电阻率高,降阻难度大,因此,为了改善土壤条件建议采用化学降阻剂和非金属接地模块。
在距离铁塔四个角2米的地方环绕铁塔一周挖封闭环形地沟,地沟宽度要求0.5m,深度要求1.5m,周长40m,在环形地沟内每隔3米的地方放置一块非金属接地模块作为垂直地极,同时在每个模块附近的方坑内灌注降阻剂,然后用镀锌扁钢将模块焊连接起来,同时将铁塔的四个角分别与地网用镀锌扁钢相互焊接连通一次。
若阻值达不到要求,应再增加一圈环形接地装置。
非金属接地极参数:电阻率变化Impedancel Variation50KA冲击无变化腐蚀速率Corrosion Rate ≤0.03g/cm Ph值 7.5净重量Weight (Kg) 6尺寸规格Dimension (mm) φ200×400降阻剂技术参数要求:电阻率变化Impedancel Variation 36KV冲击无变化腐蚀速率Corrosion Rate ≤0.0075g/cm Ph值 7.0净重量Weight (Kg) 3.7材料形态袋装(白色粉末)6、铁塔安装要求(1)塔架结构的安装应遵守《钢结构工程施工及验收规范》GB50205-2001、《塔桅钢结构工程施工质量验收规程》(CECS 80:2006)中有关规定(2)安装时不允许使用气割或电割扩孔、增孔、或用氧气火焰校正构件变形。
(3)塔架安装过程中应随时校正其垂直度,架设完毕后塔身实际轴线与设计轴线不得大于被测高度的1/1000,局部弯曲不得大于被测长度的1/750。
(4)高强度螺栓及其他螺栓预紧扭矩满足规范要求。
7、铁塔基础施工要求(1)施工期间合理选择土方堆放地,采取必要的防护措施,避免海风吹动沙石击伤他人,因未采取必要防护措施造成的人员伤亡及财产损失由乙方自行赔付;(2)合理确定砼配合比:根据JGJ/T55-2000;混凝土配制强度:fcu.0≧fcu.k+1.645δ;δ=5 MPa ;fcu.k=25 MPa混泥土强度(32.5-40MPa),砂子为中砂,含泥量不超过4%,混凝土坍落度30-50mm,混凝土配制强度30MPa,则:水泥用量442-388 水193-190 砂子554-599 石子1234-1243kg。
采用配合比:水泥:水:砂:碎石=1 : 0.47 : 1.59 : 3.39(3)如果基础下面是岛屿岩石,无法开挖基础坑时,需要用风炮将岩石冲击出1.6米以上的深孔,孔径在30mm左右,孔眼不少于50个,里面插入不低于M24钢筋,深度1.5米以上;钢筋缝隙中灌入高标混凝土,钢筋露出岩石部分高度不少于1.5米,将露出钢筋利用横向钢筋网连接,采用经纬交替方式,交叉点焊接;横向钢筋不小于M16,整体焊接成一个钢筋笼,再用模板固定外部基础结构,整体用C25混凝土浇筑,有必要时为了增加基础强度,可将底座下的岩石拓展整体浇筑到基础内部。
(4)钢筋进场除验收清单中各类钢筋数量外,还必须有出示合格证及材质证明,并按要求堆码整齐且作好钢筋标识;(5)钢筋绑扎要求间距准确、绑扎牢固,应保证网眼的尺寸、根数、骨架的高度、宽度、长度,受力钢筋的间距、排距、弯起点的位置和钢筋保护层的厚度。
避免钢筋移位,并按要求绑扎好钢筋保护层垫块,严格遵照设计及设计变更要求施工。
(6)混凝土浇筑前不应发生初凝和离析现象。
一次性浇筑完成,不能分次浇筑;混凝土要要振荡密实,应符合混凝土施工规范的规定。
(7),铁塔基础底座位置,需要预留一个1米*0.8米(长边与基础连接,短边为宽度)的平台,用于安装设备控制箱;利用膨胀螺栓固定在安装平台上,横向可用钢丝加固。
附件二、铁塔、基础图纸1、铁塔图纸:2、基础图纸:11 / 12文档可自由编辑(学习的目的是增长知识,提高能力,相信一分耕耘一分收获,努力就一定可以获得应有的回报)12 / 12文档可自由编辑。