污水处理厂规划
- 格式:doc
- 大小:31.00 KB
- 文档页数:5
污水工程专项规划方案一、项目背景随着城镇化进程的加快和人口的不断增加,城市污水问题日益突出。
大量污水直排河流和田间地头,污染了环境,影响了人民的生活质量。
为此,需要建设污水处理设施,对城市污水进行处理和回收利用,达到净化环境和节约资源的目的。
本规划方案拟在某市城市区域内,对污水处理设施进行规划建设,以解决城市污水问题。
二、规划目标1. 建设完善的城市污水处理设施,提高城市污水处理能力。
2. 实施水资源回收利用,提高水资源利用率。
3. 降低城市污水排放对环境造成的影响。
4. 优化城市污水管网,提高城市污水运输效率。
三、项目范围本规划方案拟在某市城市区域内,建设污水处理设施和改建城市污水管网。
四、项目内容1. 污水处理设施建设本项目拟建设污水处理厂,以化学方法、物理方法和生物方法对城市污水进行处理。
处理后的污水将达到国家污水排放标准,可以安全排放或再利用。
同时,还将建设污泥处理设施,对处理后的污泥进行资源化利用,达到减少污泥对环境的污染的目的。
2. 城市污水管网改建本项目将对城市污水管网进行改建,优化城市污水管网的布局和建设,以提高城市污水的运输效率。
同时,对老旧的管网进行维护和更换,以减少城市污水管网的漏损率。
3. 污水处理设施运营管理本项目将建立污水处理设施的运营管理体系,实行科学的污水处理运营管理,以保障污水处理设施的正常运行和污水的安全处理。
五、规划内容1. 污水处理设施建设规划本规划拟建设一座污水处理厂,将城市污水集中到该污水处理厂进行处理。
同时,还将建设一座污泥处理设施,对处理后的污泥进行资源化利用。
2. 城市污水管网改建规划本规划拟对城市污水管网进行改建,优化城市污水管网的布局和建设,以提高城市污水的运输效率。
同时,对老旧的管网进行维护和更换,以减少城市污水管网的漏损率。
3. 污水处理设施运营管理规划本规划将建立科学的污水处理设施运营管理体系,实行科学的污水处理运营管理,以保障污水处理设施的正常运行和污水的安全处理。
污水处理厂的选址与规划应该考虑哪些因素在城市发展和环境保护的进程中,污水处理厂的建设至关重要。
而污水处理厂的选址与规划则是整个项目的关键起点,直接关系到污水处理的效率、成本以及对周边环境和居民生活的影响。
那么,在进行污水处理厂的选址与规划时,究竟应该考虑哪些因素呢?首先,要充分考虑污水处理厂的服务范围和处理规模。
这需要对所在区域的人口数量、工业企业分布以及未来的发展趋势进行详细的调研和预测。
如果服务范围过小,可能无法满足区域内的污水处理需求;而服务范围过大,则会增加污水收集和输送的成本。
处理规模的确定也要合理,过大的规模可能导致设备闲置和资源浪费,过小则无法应对污水量的增长。
其次,地理位置和地形条件是重要的考量因素。
污水处理厂应尽量选择在地势较低的区域,这样有利于污水依靠重力自流进入处理厂,减少提升泵站的设置,降低运行成本。
同时,要避开地震断裂带、滑坡、泥石流等地质灾害频发的区域,确保处理厂的安全稳定运行。
此外,选择交通便利的地点也很有必要,便于污水处理设备的运输和维护,以及处理后达标水的排放。
环境因素也是不容忽视的一点。
污水处理厂应远离居民区、学校、医院等对环境质量要求较高的区域,以减少异味、噪音等对居民生活和公共健康的影响。
同时,要避开风景名胜区、自然保护区等生态敏感区域,避免对生态环境造成破坏。
在规划时,还要考虑处理厂的排放对周边水体、土壤和大气环境的影响,采取有效的防护和治理措施。
土地利用规划也是选址与规划的重要依据。
污水处理厂的建设需要占用一定面积的土地,应与当地的土地利用总体规划相协调,优先选择废弃地、荒地等未利用土地,避免占用耕地和基本农田。
此外,还要考虑周边土地的开发利用情况,避免对未来的城市发展造成限制。
污水收集系统的布局也是一个关键因素。
污水处理厂的位置应与污水收集管网的布局相匹配,尽量缩短污水输送距离,减少管道埋深和管径,降低建设成本和运行能耗。
同时,要考虑污水收集管网的建设难度和可行性,避免穿越复杂的地形和建筑物。
污水处理厂在城市规划中的考虑因素随着城市化进程的加速,城市污水处理成为一项至关重要的环境保护工作。
污水处理厂在城市规划中的设计和建设中需要考虑多个因素,以确保水资源的可持续利用和城市环境的健康发展。
本文将探讨污水处理厂在城市规划中的考虑因素,并提出建议。
一、污水处理厂的位置选择在规划污水处理厂时,其位置选择是首要考虑因素。
污水处理厂应尽可能靠近污水源头,以降低污水输送距离和成本。
同时,要考虑周边地区的环境敏感度,避免对居民和周边生态环境造成不良影响。
因此,在城市规划中,应在必要时采取合适的隔离带和屏障,减少污水处理厂对周边的负面影响。
二、污水处理设施的规模与技术在城市规划中考虑污水处理厂时,应综合考虑城市的规模,人口密度,污水产生量等因素,确定适当的规模和处理能力。
同时,也需要考虑未来的城市发展趋势,提前预留扩建空间,以适应未来的城市增长。
选择适当的污水处理技术也是重要因素之一。
不同地区的水质和环境条件不同,因此需要根据具体情况选择合适的处理工艺,如生物处理,物理化学处理等。
同时,还要考虑污水处理厂的能耗情况,采用节能技术和设备,以减少对环境的影响。
三、排放标准与水资源利用在城市规划中,排放标准的设定至关重要。
应根据国家和地方相关法律法规以及环境质量目标,制定适当的排放标准。
同时,还要考虑当地地下水和水环境承载力,避免对水资源造成过度压力。
通过合适的处理工艺和技术,能够有效的净化污水并降低对水环境的污染,从而保护水资源的可持续利用。
四、安全与运营管理在城市规划中,安全与运营管理也是重要的考虑因素。
污水处理厂的运营安全直接关系到人们的生活和环境的健康。
因此,应建立完善的管理制度和安全防护设施,加强对人员的培训和管理,确保污水处理厂的安全运营。
同时,还需要考虑污水处理厂的可持续发展问题。
合理的运营管理和维护,延长设备的使用寿命,以及科学合理的资金投入和收益模式,将有助于污水处理厂的可持续发展。
综上所述,污水处理厂在城市规划中的考虑因素包括位置选择、规模与技术、排放标准与水资源利用以及安全与运营管理等。
农村污水处理厂的规划和实施方案1. 项目背景随着我国新农村建设的深入推进和农村生活水平的不断提高,农村生活污水的处理问题日益凸显。
农村污水处理厂的建设对于改善农村居民生活环境、保护水资源和促进农村可持续发展具有重要意义。
2. 项目目标本项目旨在为农村地区提供一套高效、经济、实用的污水处理方案,实现农村生活污水的有效处理和资源化利用,提高农村居民生活质量,保护农村生态环境。
3. 规划原则- 科学合理:根据农村地区的实际情况,合理确定处理厂的规模、处理工艺和选址等。
- 经济高效:在满足处理效果的前提下,力求降低运行成本,提高处理效率。
- 环保可持续:采用环保、节能、低碳的处理技术,减少对环境的影响,实现可持续发展。
- 易于管理:简化处理工艺,便于运行管理和维护。
4. 规划内容4.1 污水处理厂规模根据农村人口规模、生活惯和地域特点,合理确定污水处理厂的规模。
一般来说,处理厂的规模应在500-2000人/座之间。
4.2 污水处理工艺农村污水处理可采用生化处理、生态处理和物理处理等多种工艺。
具体选择应根据实际情况进行技术经济比较,确保处理效果和运行成本的平衡。
- 生化处理:如A2/O、SBR等工艺,适用于有机物含量较高的污水。
- 生态处理:如人工湿地、稳定塘等工艺,适用于处理浓度较低的污水。
- 物理处理:如砂滤池、沉淀池等工艺,适用于去除悬浮固体和部分有机物。
4.3 污水处理厂选址污水处理厂的选址应充分考虑交通便利、便于排水和供电等因素,同时避免对周边环境和居民生活的影响。
4.4 设备选型与配置根据处理工艺要求,合理选择污水处理设备,包括泵站、格栅、沉砂池、生化池、沉淀池、消毒设备等。
设备选型应考虑处理能力、运行成本、维护方便等因素。
4.5 排水系统规划合理规划农村排水系统,包括污水收集、输送和处理等环节。
污水收集采用雨污分流或合流制,根据实际情况确定。
4.6 生态环境保护与恢复在污水处理厂建设和运行过程中,注重生态环境保护与恢复,采取绿化、隔离等措施,减少对周边环境的影响。
污水厂工作计划及目标一、概述污水处理是现代城市建设中必不可少的一环。
随着城市化进程的加快,城市污水的处理和管理工作变得愈发重要。
污水处理厂是城市环境保护的重要组成部分,其工作任务是对城市产生的污水进行处理,使其能够达到排放标准,保护环境和公共卫生。
本文旨在针对污水处理厂的工作计划及目标进行详细阐述,以确保污水处理工作能够有序进行。
二、工作计划1. 污水收集系统的运行维护为了确保污水处理的顺利进行,需要对污水收集系统进行定期维护和检修。
首先需要对污水管网进行巡视,及时发现并解决污水管道漏水、管道破损等问题,以确保污水能够顺利地进入处理厂。
另外,还需要对泵站、梯级设备等进行定期检查,确保其正常运行。
针对可能出现的故障,需要建立完善的应急预案和维修手段,保障污水收集系统的安全、稳定运行。
2. 污水处理设备的日常维护污水处理设备是污水处理厂的核心部分,其日常维护工作至关重要。
在日常运行中,需要每日对处理设备进行巡检,发现问题及时解决;对生化池、沉淀池、滤池等定期进行清洗和检修,以确保其正常运行;同时还需要定期进行设备保养和大修工作,维护设备的长期使用性能,延长使用寿命。
3. 污水处理工艺的优化改进随着科技的发展,污水处理技术也在不断更新和改进。
为了提高处理效果,需要不断对处理工艺进行改进和优化。
在实际操作中,需要加强对处理工艺的研究和改进工作,引进先进的处理技术,提高处理效率和处理质量。
另外,还需要加强对工艺运行数据的统计和分析,为工艺优化提供科学依据。
4. 紧急情况处理准备在污水处理过程中,可能会发生各种紧急情况,如设备故障、污水溢流等。
为了应对这些紧急情况,需要制定完善的应急预案,建立应急处理措施,提高工作人员的应急处理能力。
同时还需要加强对应急设备和物资的储备,确保在紧急情况下能够迅速有序地进行应对。
5. 建立健全的管理制度良好的管理制度是污水处理工作的保障。
需要建立健全的设备管理制度、安全生产制度、环境保护制度等,规范工作流程,明确工作职责,确保各项工作有序进行。
污水处理厂专项规划方案一、背景污水处理是一项重要的环保工作,对于保护水资源、改善水环境、维护生态平衡具有非常重要的意义。
为了提高污水处理的效率和质量,制定专项规划方案,成为推进污水处理工作的必要措施。
二、目标1. 提高污水处理的处理能力,确保城市污水得到有效处理。
2. 改善水环境质量,减轻水污染对生态环境的破坏。
3. 提升污水处理厂的技术水平和管理能力,增强运营效益。
4. 建立健全的监测评估机制,确保污水处理工作的可持续发展。
三、规划内容1. 建设与改造1.1 建设新的污水处理厂:根据城市发展规划和污水处理需求,确定新建污水处理厂的选址,并科学规划其设计容量和处理工艺。
1.2 改造和升级现有的污水处理设施:对于已建成的污水处理厂,进行必要的改造和升级工作,以提高其处理能力和运行效率。
1.3 建设配套设施:完善污水处理厂的配套设施,包括污泥处理设施、排放管道和设备等,以确保污水处理的全面性和高效性。
2. 技术研究与创新2.1 开展污水处理技术研究:加强对污水处理技术的研究和应用,提升处理效果和资源利用效率。
2.2 推广先进的污水处理技术:借鉴和引进国内外先进的污水处理技术,对适用的技术进行推广应用,以提高处理能力和效果。
3. 运行管理与监测评估3.1 建立健全的运行管理机制:确保污水处理厂的正常运行和管理,加强对设备和工艺的维护和监管,及时发现和解决问题。
3.2 加强监测评估工作:建立污水处理厂的监测评估机制,对处理效果、排放标准和运行管理进行监测和评估,实现持续改进和优化。
四、实施步骤1. 制定详细的工作计划:根据规划内容和目标,制定污水处理厂的实施计划,明确各项任务和时间节点。
2. 组织实施工作:成立污水处理厂规划实施团队,明确各成员的职责和工作任务,确保各项工作有序推进。
3. 资金筹措和项目推进:根据规划需求,制定资金筹措方案,争取政府支持和社会资本参与,推进项目的建设和改造。
4. 监管和验收:建立健全的监管机制,对污水处理厂的建设和改造工作进行监督和验收,确保项目按计划实施。
污水处理厂明年工作计划一、前言污水处理是环保工作中的重要一环,污水处理厂是城市环境保护的重要组成部分。
为了有效处理城市污水,保护环境与居民健康,污水处理厂需要制定明确的工作计划。
本文将围绕污水处理厂明年的工作计划进行详细的规划和阐述。
二、污水处理厂的现状目前,我国的污水处理厂整体运行状况良好,技术设备较为完备,处理效率较高。
然而,仍然存在一些问题和挑战,例如,设备老化、节能减排、处理能力提升等。
因此,针对这些问题和挑战,我们需要制定一份明确的工作计划,以确保污水处理厂的正常运行和提高处理效率。
三、明年工作计划1. 设备更新与改造针对设备老化问题,明年我们计划进行设备的更新与改造工作。
具体措施包括对老化设备进行维修或更换,引进先进的污水处理设备,以提升处理效率和降低运行成本。
同时,针对设备更新与改造,我们将制定详细的计划表,确保设备改造的顺利进行。
2. 节能减排在明年的工作中,我们将大力推进节能减排工作。
具体措施包括优化污水处理工艺、提高设备利用率、减少能源消耗、降低废水排放等。
我们将建立节能减排的长效机制,以确保节能减排工作的顺利实施。
3. 提升处理能力为了应对城市污水增长的需求,明年我们计划提升污水处理厂的处理能力。
具体措施包括扩建处理设施、提高处理效率、提升处理能力等。
我们将加强对处理能力提升工作的监督与管理,确保工作任务的按时完成。
4. 安全生产明年,我们将加强安全生产工作。
具体措施包括加强设备维护、完善应急预案、加强员工安全培训等。
我们将组织安全生产的宣传教育活动,提高员工的安全意识,确保安全生产工作的顺利进行。
5. 环境监测与治理对于固定资产已经建成的污水处理厂,明年我们将加强环境监测与治理工作。
具体措施包括加强环境监测、加强环境保护设施的建设与管理、加强环境影响评价等。
我们将加强对环境治理工作的督导与检查,确保污水处理厂的环境保护工作得到有效执行。
6. 沟通与宣传明年,我们将加强对污水处理工作的宣传与沟通。
城市污水处理厂的建设与规划城市污水处理厂是城市基础设施的重要组成部分,其建设与规划对于维护城市环境卫生和人民健康至关重要。
本文将探讨城市污水处理厂的建设与规划,包括选址、工艺选择、设计要点以及运行管理等。
一、选址城市污水处理厂的选址需要考虑多个因素。
首先,要充分考虑周边环境的敏感性,避免对周边居民和生态环境造成不良影响。
其次,选址要考虑污水处理厂的供水和电力供应条件,以确保正常运行。
此外,还要考虑交通便利和未来发展规划等因素。
二、工艺选择城市污水处理厂的工艺选择是建设过程中的关键一步。
常见的处理工艺包括物理处理、生物处理和化学处理等。
在设计污水处理工艺时,要考虑处理效果、设备成本和运行管理等方面的因素,确保达到国家和地方相关标准。
1. 物理处理:物理处理主要是通过沉淀、过滤等方式去除污水中的颗粒物和悬浮物质。
常见的物理处理设备包括格栅、沉砂池和过滤器等。
2. 生物处理:生物处理是利用微生物对有机物进行分解降解的过程。
生物处理的常见方式有厌氧处理和好氧处理等。
好氧处理通常包括活性污泥法和生物膜法,而厌氧处理则采用厌氧消化池等设备。
3. 化学处理:化学处理主要是利用化学药剂对污水中的有机物和无机物进行处理和移除。
常用的化学处理方式有氧化法、沉淀法和吸附法等。
三、设计要点城市污水处理厂的设计要点包括处理能力、污泥处理和排放标准等。
1. 处理能力:处理能力应根据城市人口数量、工业污水排放情况和未来发展规划等综合因素确定。
要合理规划建设规模,兼顾短期和长期的发展需求,确保污水处理厂的可持续发展。
2. 污泥处理:污泥是处理过程中产生的固体废物,其处理方式对环境影响和资源利用至关重要。
常见的污泥处理方式有厌氧消化和焚烧干化等,应根据当地实际情况选择合适的处理方式。
3. 排放标准:污水处理厂的排放应符合国家和地方相关标准,确保排放的水质达到环境要求,不对周边环境和水体造成污染。
四、运行管理城市污水处理厂的运行管理直接关系到其正常运行和处理效果。
污水处理厂的规划和运营方案随着城市化进程的加快和人口的不断增长,污水处理成为了城市建设和环境保护的重要课题。
污水处理厂作为城市环境建设的关键设施,具有着重要的作用。
本文将从规划和运营两个方面,探讨污水处理厂的建设和运营方案。
一、规划方案1. 城市发展规划与环境保护的结合在制定城市发展规划时,应将环境保护作为重要的考虑因素。
污水处理厂的规划应与城市发展规划相结合,合理布局,确保污水处理厂能够满足未来城市人口增长的需求。
2. 污水处理厂的选址污水处理厂的选址应考虑以下几个因素:距离城市中心的远近、周边环境的承载能力、地质条件、水资源状况等。
选址时还需充分考虑未来城市发展的方向,避免污水处理厂对周边环境造成不利影响。
3. 设施规划与技术选型污水处理厂的规划应包括处理设施的布局和技术选型。
设施布局应合理,确保各个处理单元之间的协调与衔接。
技术选型应根据当地水质特点和处理要求,选择适合的处理工艺,以提高处理效率和水质达标率。
4. 建设成本与效益评估在规划污水处理厂时,要充分考虑建设成本和运营成本,并进行合理的效益评估。
建设成本包括土地购置、设备采购、工程施工等方面的费用,运营成本包括人员工资、能源消耗、维护保养等费用。
通过综合评估,确保污水处理厂的建设和运营具有可行性和经济性。
二、运营方案1. 运营管理机构建设污水处理厂的运营管理机构应具备专业的技术和管理能力。
建立科学的组织结构和管理体系,明确各个职能部门的职责和权限,确保污水处理厂的运营顺利进行。
2. 运营管理制度建设建立完善的运营管理制度,包括运行维护、安全管理、环境监测等方面的制度。
规范运营管理流程,确保污水处理厂的运行达到规定的标准和要求。
3. 运营监测与数据分析建立运营监测系统,对污水处理厂的运行情况进行实时监测和数据采集。
通过对监测数据的分析,及时发现问题和隐患,采取相应的措施进行处理,确保污水处理效果达标。
4. 运营维护与设备更新定期进行设备的检修和维护,确保设备的正常运行。
城市污水处理厂的规划与建设引言城市污水处理是现代城市建设中至关重要的一环。
随着城市人口的增加和工业的发展,污水处理厂的规划和建设变得愈发重要。
本文将探讨城市污水处理厂的规划与建设,从技术、环境和经济等多个角度进行分析和讨论。
一、规划阶段1. 污水处理厂选址城市污水处理厂的选址是规划阶段的首要任务。
选址应考虑到城市的发展方向、地形地势、水资源以及周边环境等因素。
合理的选址可以最大限度地减少对周边环境的影响,并方便后续的建设和运营。
2. 设施规模确定根据城市的人口规模和污水排放量,确定污水处理厂的处理能力。
同时,还需要考虑未来城市发展的潜力和可持续性,以确保污水处理厂在未来仍能满足城市的需求。
3. 工艺选择污水处理厂的工艺选择直接关系到处理效果和成本。
常见的工艺包括生物处理、化学处理和物理处理等。
规划阶段需要综合考虑各种工艺的优缺点,并选择适合城市特点的工艺方案。
二、建设阶段1. 设备采购和安装在建设阶段,需要根据规划阶段确定的工艺方案采购和安装相应的设备。
设备的选择应考虑到处理效率、耐久性和维护成本等方面。
同时,安装过程中需要严格按照相关规范和标准进行,确保设备的正常运行。
2. 建筑施工污水处理厂的建筑施工包括处理池、管道、控制室等设施的建造。
施工过程中需要保证工程质量,确保设施的稳定性和安全性。
同时,还要考虑施工对周边环境的影响,采取相应的措施进行环境保护。
三、运营阶段1. 运营管理污水处理厂的运营管理是确保其正常运行的关键。
包括设备的日常维护、水质监测和处理工艺的优化等。
运营管理需要建立科学的管理体系和运行规范,确保污水处理厂的稳定运行和处理效果。
2. 污泥处理污水处理过程中产生的污泥需要进行处理和处置。
常见的处理方式包括厌氧消化、压滤和焚烧等。
污泥处理需要考虑到处理效果、资源化利用和环境影响等因素,选择合适的处理方法。
四、技术创新与发展1. 新技术应用随着科技的进步,新的污水处理技术不断涌现。
污水处理厂项目规划书项目背景随着城市人口的不断增加和工业发展的加快,污水排放问题逐渐突显。
为有效应对这一问题,我公司决定开展污水处理厂项目。
本文是污水处理厂项目的规划书,旨在详细阐述项目的目标、范围、计划和关键步骤,以确保项目的顺利开展和取得预期成果。
项目目标本项目旨在建立一座现代化、高效能的污水处理厂,完善城市污水处理系统,保护环境、提高生活质量,具体目标包括: 1. 增强城市污水处理能力,满足不断增长的污水处理需求。
2. 提高污水处理效率,提高排放水质达标率。
3. 减少对水体的污染,保护生态环境。
4. 降低运营成本,提高经济效益。
项目范围本项目的范围包括: 1. 污水处理厂建筑工程:包括建筑设计、施工、装修等。
2. 污水处理设备采购:包括污水处理设备、管道、泵站等。
3. 自动化控制系统:包括监测仪器、控制仪表等。
4. 运营管理系统:包括信息化管理软件、数据分析工具等。
项目计划阶段一:前期准备1.确定项目目标、范围和计划。
2.成立项目团队,明确团队成员职责和工作安排。
3.开展市场调研,分析污水处理厂市场需求和竞争情况。
4.完善项目预算和资金筹措计划。
5.筹备项目所需的技术、设备和人力资源。
阶段二:设计与采购1.进行污水处理厂的建筑设计,包括厂房布局、管道布置等。
2.制定污水处理设备采购计划,评估供应商和产品质量。
3.开展自动化控制系统设计,确定监测仪器和控制仪表的配置方案。
4.设计运营管理系统,确保信息化管理的高效运作。
阶段三:施工与测试1.污水处理厂建筑工程施工,包括土建、安装、调试等。
2.安装污水处理设备和自动化控制系统,进行联调和测试。
3.完善运营管理系统,确保软件和硬件设备的正常运作。
4.开展厂房、设备和系统的验收测试,确保符合设计要求和技术规范。
阶段四:投产与运营1.正式投入运营,建立健全的管理体系,确保安全、高效地运营。
2.开展污水处理效果监测和水质检测,实时监控处理效果。
污水处理厂计划(经典版)编制人:__________________审核人:__________________审批人:__________________编制单位:__________________编制时间:____年____月____日序言下载提示:该文档是本店铺精心编制而成的,希望大家下载后,能够帮助大家解决实际问题。
文档下载后可定制修改,请根据实际需要进行调整和使用,谢谢!并且,本店铺为大家提供各种类型的经典范文,如职场文书、合同协议、总结报告、演讲致辞、规章制度、自我鉴定、应急预案、教学资料、作文大全、其他范文等等,想了解不同范文格式和写法,敬请关注!Download tips: This document is carefully compiled by this editor. I hope that after you download it, it can help you solve practical problems. The document can be customized and modified after downloading, please adjust and use it according to actual needs, thank you!Moreover, our store provides various types of classic sample essays for everyone, such as workplace documents, contract agreements, summary reports, speeches, rules and regulations, self-assessment, emergency plans, teaching materials, essay summaries, other sample essays, etc. If you want to learn about different sample essay formats and writing methods, please stay tuned!污水处理厂计划污水处理厂计划10篇日子如同白驹过隙,我们的工作又进入新的阶段,为了在工作中有更好的成长,现在就让我们制定一份计划,好好地规划一下吧。
污水处理厂规划
第1款污水处理方式
按照“集中与分散相结合,以集中为主“的原则,采用大中小相结合的处理方式以适应各种不同情况进行规划,按照城市规划道路网格、结合地形河道等实际情况,并考虑近远期结合、分期实施的可能性,进行污水处理系统设计。
温瑞塘河流域污水处理系统是一个满足多目标要求的集成体系,需考虑如下四个方面的内容:
(1)可容纳初期雨水的集中污水处理厂。
本规划提出的是建立一个瑞安中心污水处理厂的方案,可满足整个区域集中污水处理的需要。
(2)分散组团式的小型污水处理厂(站)。
满足局部地区的发展需要,作为对中心污水处理厂的补充。
(3)小区原地污水处理及资源化设施。
与中水回用相结合,满足小区污水处理要求,可作为对中心污水处理厂的补充,并减轻中心污水处理厂的压力;
(4)河道走廊生态处理与恢复系统。
既可以集中强化处理部分河段水质,也可以建设成为生态教育示范基地。
此系统在本规划景观设计部分加以说明。
本规划主要考虑以集中污水处理厂为主,结合河道走廊生态处理与恢复相结合的方式,对分散式污水处理厂(站)以及小区原地污水处理和资源化设施的规划,需要考虑进一步发展的需要,不作明确要求。
根据《瑞安市污水处理工程可行性报告》的方案论证,规划区域城市污水集中处理建设一个污水处理厂的方案系统风险性较小,管理较为集中,运行费用相对较小,为建设实施方案。
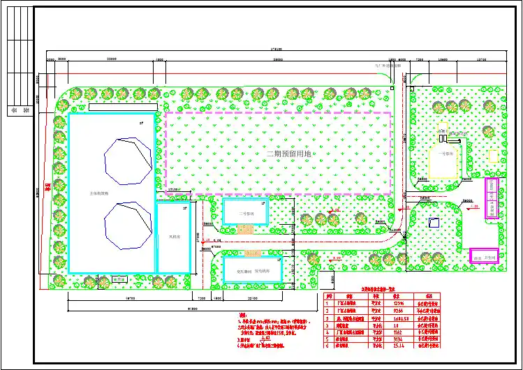
第2款污水处理厂规模
表错误!文档中没有指定样式的文字。
-1 瑞安市污水处理
厂规模
第3款污水处理厂处理工艺
瑞安中心污水处理厂第一期工程采用卡鲁塞尔氧化沟加脱氮除磷污水处理工艺。
中远期建设的污水处理工艺应进一步考虑到瑞安市的实际社会情况、技术水平及生产管理能力,选取更为稳妥可靠、技术先进、运行灵活的处理工艺,满足本规划对污水处理水质的要求,确保污水处理效果,尤其要保证脱氮除磷的效果。
第4款污水处理厂环境效益分析
瑞安市污水处理厂建成后,将大大改善温瑞塘河、及飞云江的水环境质量,各种水污染物的排放量将大幅度削减。
其最大日污染物去除量见表错误!文档中没有指定样式的文字。
-2。
表错误!文档中没有指定样式的文字。
-2 本工程最大日污染物去除量单位:吨/日
第5款污水排放去向规划
污水厂排放口设置在飞云江肖宅下游F45-2断面,从北岸伸入江中550m左右。
第6款污水处理厂建设投资估算
表错误!文档中没有指定样式的文字。
-3 规划期内污水处
理厂投资估算
第7款有关城市污水处理设施建设的若干建议
(1)为提高城市污水的处理率,推进城市污水处理产业化,应当对城市污水处理实行收费制度,污水处理费为使用者费用,用以补偿城市污水处理设施的投资、建设和运营的支出。