陶板及陶板幕墙施工方案(含节点图)
- 格式:doc
- 大小:2.94 MB
- 文档页数:17
. 专业.专注 .陶土板幕墙施工方案和技术举措一、安装前的施工准备1、施工安装的基本条件主体结构竣工,现场清理洁净,在二次装饰行进行。
同时,也要组织好工种交错,防止其余部分施工时污染、破坏幕墙。
利用吊篮施工安装应与土建施工单位协调好脚手架的拆掉进度安排。
安装前应保存垂直运输设备以便吊运构件和资料。
埋设件已妥当埋入,地点正确。
主体结构工程达到施工查收规范的要求。
2、施工准备资料、构件要按施工组织分类,按使用地址寄存,陶板应运入相对应的房间内,塑料布盖严,下面应垫上垫板,陶板应稍倾斜直立摆放,以防碰坏;五金件及其余资料应分楼层堆放在固定房间内并加锁。
安装前要检查钢材,要求平直、规方,不得有显然的变形、刮痕;构件、资料和零附件应在施工现场查收,查收时监理方和公司所有人应在场。
立柱等主要型材加工完成。
协助加工仅为简单钻孔、其加工地点、尺寸,应与设计图符合。
后备资料 :不合格的构件应予改换,幕墙构件在运输、堆放和吊装过程中有可能变形、破坏等,因此应依据详细状况,对易破坏和丢掉的构件、配件、密封资料和胶垫等,应有必定的改换、贮备数目。
1)原资料的检验幕墙原资料查收程序幕墙资料进厂后先卸于“待检区”,采买员填写“资料入库交验单”,对该批幕墙资料的工程名称、品种、规格、型号、数目、重量一一填写清楚,并请计划员核实署名,而后连同资料“证明书”、出货码单调并交与库房管理员,库房管理员收到上述票据后应实时通知厂质检部门的检验员前来库房检验。
检验员在收到“资料入库交验单”和有关资料后,第一检查该批资料“质量保证书”上所写化学成分、机械性能指标能否达到工程技术条件的要求,接着由资料保存员陪伴到“待检区”复核资料表面质量,外观能否切合标准,如所有切合要求,在“入库交验单”上填写合格、签订检验员的姓名、检验时间等,在资料表面做出检验合格的认同标志。
经检验凡发现“资料质量保证书”上的数据不清楚、不齐备,材质标志模糊,表面质量、外观尺寸不切合有关标准的要求时,检验员需上报厂资料质量部门恳求复核,复检人员依据工程的重要性及资料质量的详细状况作出判决和进行复检签订。
陶板及陶板幕墙施工方案1. 引言本文档提供了关于陶板及陶板幕墙施工方案的详细说明。
陶板和陶板幕墙是一种常用于建筑装饰的材料,在建筑外立面以及室内墙面装饰中具有广泛的应用。
本文档将介绍陶板及陶板幕墙的施工流程、材料选用、施工注意事项等内容。
2. 施工流程陶板及陶板幕墙的施工流程一般包括以下几个步骤:2.1 准备工作在施工开始之前,需要进行一些准备工作:•确定施工图纸:根据建筑设计图纸确定具体的施工方案和要求。
•准备材料和工具:根据施工图纸上的要求采购所需的陶板材料以及施工所需的工具和设备。
•搭建脚手架:搭建适当的脚手架以便施工人员进行安全的施工作业。
2.2 陶板安装陶板的安装是整个施工过程中的核心环节,包括以下步骤:1.清洁基层墙面:在安装陶板之前,需要确保基层墙面的清洁平整,以便更好地粘贴陶板。
2.打磨和切割陶板:根据施工设计图纸和要求,将陶板进行打磨和切割,以适应墙面形状和尺寸的需要。
3.安装固定构件:根据陶板安装位置和类型,安装相应的固定构件,如龙骨、角条等。
这些固定构件将用于固定陶板并保证其稳固性。
4.按顺序粘贴陶板:将陶板按照施工图纸上的顺序粘贴到基层墙面上,使用专用的陶瓷胶水将陶板固定在基层墙面上。
5.整齐安装并调整位置:在粘贴陶板时,需要确保陶板的位置整齐,采用专用的工具和装置进行调整,以使陶板安装完毕后呈现出理想的效果。
2.3 粘贴陶板幕墙陶板幕墙是一种由多块陶板组成的大面积墙体装饰,施工流程如下:1.安装骨架结构:根据施工设计图纸和要求,安装陶板幕墙的骨架结构。
骨架结构的安装需要根据具体情况选取合适的固定构件和连接方式。
2.安装垂直构件:根据骨架结构的要求,安装垂直构件,如立柱和横梁等。
这些构件将用于支撑陶板幕墙的整体结构。
3.粘贴陶板:将陶板逐一粘贴到骨架结构上,使用专用的陶瓷胶水进行固定。
在粘贴过程中,需要注意陶板之间的间距和整体的平整度。
4.排列调整:在粘贴陶板之后,根据设计要求对陶板进行排列调整,以达到理想的外观效果。
陶板及陶板幕墙施工方案1. 引言本文档旨在提供陶板及陶板幕墙的施工方案,包括施工环境评估、施工步骤、材料使用等内容。
通过本方案的实施,可有效保证陶板及陶板幕墙的施工质量和安全。
2. 施工环境评估在进行陶板及陶板幕墙施工前,需要对施工环境进行评估,确保施工条件符合要求。
评估的内容包括以下几个方面:2.1 基础条件评估评估基础条件是否满足施工要求,包括建筑结构的稳定性、基础地基的坚固性等。
2.2 施工场地评估评估施工场地是否满足施工要求,包括空间大小、通风条件、距离道路的远近等。
2.3 安全评估评估施工期间的安全风险,包括高空作业、电气安全、消防安全等。
确保施工期间的安全措施得到有效实施。
3. 施工步骤陶板及陶板幕墙的施工步骤如下:3.1 准备工作包括施工材料的验收、准备施工所需工具和设备,布置施工区域等。
3.2 陶板的安装根据设计图纸要求,选择合适的陶板进行安装,确保安装的平整度和垂直度符合要求。
3.3 防水处理根据设计要求,对陶板及陶板幕墙进行防水处理,确保幕墙的密封性。
3.4 结构安装根据设计图纸要求,安装幕墙的支撑结构,确保结构的稳定性和安全性。
3.5 龙骨及背板安装根据设计要求,安装龙骨及背板,为陶板的安装提供支撑。
3.6 陶板的粘贴使用专用粘合材料,将陶板粘贴到龙骨和背板上,注意粘贴的平整度和垂直度。
3.7 排水处理在幕墙和建筑之间设置排水系统,确保雨水能顺利排出,防止积水造成损坏。
3.8 清洁和验收施工完成后,进行清洁工作,清理施工区域的杂物。
进行验收工作,检查施工质量是否符合要求。
4. 材料使用陶板及陶板幕墙施工所需的材料主要包括:•陶板:选择符合设计要求的陶板。
•粘合材料:选用高强度和耐候性好的粘合材料。
•龙骨:根据设计要求选择合适的龙骨。
•背板:使用符合要求的背板材料。
•密封材料:选择合适的密封材料,确保幕墙的密封性。
5. 安全措施在陶板及陶板幕墙施工过程中,要注意以下安全措施:•工人必须佩戴安全帽、安全鞋等个人防护装备。
板及板幕墙施工方案第一章,板简介1、板幕墙的历史人类对土的应用,据可靠的考古证据证明,已有超过6000年的历史。
土板幕墙——充分运用现有科技手段,通过的不可变特性铸就永恒的建筑视觉效果。
2、板的起源板,又称土板。
是目前全球流行的一种建筑幕墙装饰、百叶装饰以及室外墙面装饰的质轻体干挂材料。
板作为干挂幕墙材料,最早出现于1985年的欧洲,设计灵感来自于一位欧洲建筑师对于中国兵马俑的文化膜拜,将瓦的感觉从屋面转移到墙面,其特有的土质感和返璞归真的色泽,使建筑看起来更接近中国的兵马俑艺术。
随着90年代玻璃幕墙被大量的应用于建筑外观设计,那些有超前思想的建筑师,开始尝试将玻璃的明快、现代质感和板的沧桑久远的文明象征结合起来,形成古老与现代、原始感和科技感并存的建筑表现形式,并大获成功。
于是,板的制造,被国外一些敏锐的建材生产商所重视,并开始将板作为一种新的产业来规模化经营。
然而,板制造工艺的特殊性,又在其发展的过程中,被赋予了从生产到应用的极大创造性。
当板以“板”的形式更多的体现在建筑的外观设计之时,其产品的形式又随着设计的需求产生了诸多的变化。
这是板区别于其他干挂幕墙材料的不同之处。
板的制造工艺,起源于屋面瓦,进入二十世纪中叶以后,随着建筑外围护结构的概念出现,轻钢龙骨体系在建筑中的应用得到了迅速的发展;与此同时,用于挤出、干燥、烧制的机械设备,在这一时期也随着建筑瓷工业的发展,更趋于现代化、科技化和自动化。
在这一时期,建筑设计的语言也产生了变化,艺术表现手法上更趋于复古风潮,建筑表皮技术更趋于承载人类的文明以及城市的历史。
为了满足建筑设计的发展要求,生产板的制造商又根据自身的工艺特点,制造出形式各样的产品。
板的生产方法是将粘土经过不同配比,与水混炼成近似于雕塑用的泥状,经高吨位真空挤压机,通过设计好的模具出口挤出想要的产品泥胚,再经过相似于自然风干的干燥设备蒸发水分,最后经过超过1000℃的高温窑炉烧制而成。
共享知识分享快乐烟台开发区第五初级中学2#礼堂项目陶板幕墙施工方案山东创元建设集团有限公司2017年 11月 20日1 幕墙描述 (2)2 施工方法 (2)3 陶土板幕墙施工流程 (2)3.1测量放线 (2)3.2水准测量 (4)3.3后置埋件 (5)3.4连接件安装 (7)3.5竖龙骨安装 (8)3.6 次龙骨定位与放线 (9)3.7 次龙骨角码定位钻孔 (10)3.8角码安装 (10)3.9陶板安装 (11)4 质量控制标准 (12)5 质量保证措施 (13)6 安全措施 (14)7 环保措施 (14)1 幕墙描述本工程外墙大面积为陶板幕墙,陶材幕墙采用专用配套铝合金挂件。
2 施工方法干挂陶板幕墙采用外脚手架进行施工。
陶土板幕墙属于构件式幕墙,通过固定在建筑物主体结构上的立柱、横梁骨架,采用滑移扣件将陶土板安装在骨架上,形成装饰面层,从而达到建筑装饰效果。
3 陶土板幕墙施工流程测量放线→后置埋件→连接件安装→竖龙骨安装→横龙骨安装→防火棉、保温棉安装→陶土板安装。
3.1测量放线一)测量放线技术方案1.清理预埋件,测定基准轴线及边线;2.按:中—边—中—边的循环测量方法,测定各支持点中心线位置;3.全面校准并定位各中心线间距;4.测定与校准底层基准水平线。
5.定各支持点中心线的垂线。
二)测量原理幕墙测量遵循着由整体至局部的测量原则。
与土建的测量工程师取得联系,办理主体结构的水准测量基准点和平面控制测量基准点的移交;进行水准测量和控制测量;然后根据测量成果放线;报请总包、监理验线;测量主体结构及预埋件偏差。
使用水平仪和长度尺确定等高线(如图1)使用激光经纬仪确定垂直线(如图2)使用激光经纬仪校核空间交叉点(如图3)建立控制网并在平面设定平面坐标系统。
四)平面控制网的测设:首先,对总包单位提供的控制点和有关起算数据用经纬仪分别进行两测回测角测距,检测无误后即将其作为该工程平面控制网的基准点和起算数据。
【最新整理,下载后即可编辑】运城职业技术学院图书馆外装饰工程陶板幕墙施工方案编制:审核:审批:陕西东大幕墙装饰工程有限公司2016年06月陶板幕墙施工方案1 幕墙描述本工程外墙大面积为陶板幕墙,陶材幕墙采用专用配套铝合金挂件。
2 施工方法干挂陶板幕墙采用吊篮进行施工。
吊篮拆装方案同玻璃幕墙电动吊篮方案。
2.1陶土板幕墙施工流程:吊篮安装→测量放线→后置埋件→连接件安装→竖龙骨安装→横龙骨安装→防火棉、保温棉安装→陶土板安装。
2.1.2测量放线一)测量放线技术方案1.清理预埋件,测定基准轴线及边线;2.按:中—边—中—边的循环测量方法,测定各支持点中心线位置;3.全面校准并定位各中心线间距;4.测定与校准底层基准水平线。
5.定各支持点中心线的垂线。
二)测量原理幕墙测量遵循着由整体至局部的测量原则。
与土建的测量工程师取得联系,办理主体结构的水准测量基准点和平面控制测量使用水平仪和长度尺确定等高线(如图1)使用激光经纬仪、铅垂仪确定垂直线(如图2)使用激光经纬仪校核空间交叉点(如图3)建立控制网并在在一层平面设定平面坐标系统。
四)平面控制网的测设:首先,对总包单位提供的控制点和有关起算数据用经纬仪分别进行两测回测角测距,检测无误后即将其作为该工程平面控制网的基准点和起算数据。
用全站仪按一级导线技术要求,对控制点进行闭合导线测量,建立平面控制网。
一级导线测量的主要技术要求:a) 首先,对总包公司提供的施工现场控制点与城市水准进行联测,后用DSG320自动补偿水准仪按照四等水准测量规范要求,把高程点引测到每个平面控制点上,并以此作为高程控制网。
水准测量的主要技术要求:c) 使用水平仪和长度尺确定等高线1.使用激光经纬仪、铅垂仪确定垂直线2.使用激光经纬仪校核空间交叉点3.使用激光经纬仪、铅垂仪确定坐标定位点及精度控制4.在由内外部主控点为坐标原点、相互垂直的控制轴线及建筑标高的构成的三维坐标系统,幕墙各控制点均可通过计算得出其精确的三维坐标,在施工中精确给出其位置指引施工并对其校核是本工程幕墙外形保证和精度控制的关键。
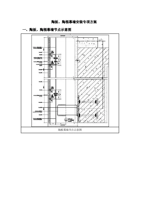
陶板、陶棍幕墙安装专项方案一、陶板、陶棍幕墙节点示意图陶板幕墙节点示意图陶棍幕墙节点示意图二、安装流程测量放线→埋件的修补和补埋→楼层连接件安装→立柱安装→→铝合金挂码安装→陶板面板安装→清洗2.1、施工控制要点2.1.1钢通立柱安装根据放线的具体位置,进行骨架安装。
骨架固定,采用连接件将骨架与主体结构相连。
待连接件固定后,可以安装立柱骨架。
(因为立柱与主体结构相连)。
对于通长的竖向骨架,当高度较高时,应用仪器进行进出位校正,转角处作左右位及进出位校正,这样做是为了保证骨架的安装质量,骨架安装质量是陶面板及陶棍安装质量的基础。
(1)应注意立柱本身的防腐处理问题,焊接完成后,需要对焊接处进行除锈及防腐处理。
(2)幕墙骨架,都存在骨架接长问题,特别是骨架的立柱,要确保上下立柱之间的连接可靠。
(3)立柱安装的准确性和质量,将影响整个陶板幕墙的安装质量,是幕墙安装施工的关键之一。
(4)立柱安装前应认真核对立柱的规格、尺寸、数量、编号是否与施工图纸相一致。
(5)施工人员必须进行有关高空作业的培训,并取得上岗证,方可进入施工现场施工。
施工时严格执行国家有关劳动、卫生法规和行业标准的有关规定,特别要注意在风力超过六级时,不允许进行高空作业。
(6)立柱通过焊接与连接件连接,固定于预埋件上。
安装标高偏差不应大于 2mm,轴线前后偏差不应大于 2mm,左右偏差不应大于2mm。
同时注意误差不得积累。
(7)相邻立柱安装标高偏差不应大于 3mm,同层立柱的最大标高偏差不应大于 3mm,相邻立柱的距离偏差不应大于 2mm。
(8)立柱按偏差要求初步定位后,应进行自检,对不合格的应进行调校修正;自检合格后,再报质检人员进行抽检,抽检数量应为立柱总数量的 5%以上,且不少于 5件。
2.1.2陶板面板安装(1)定位划线:在前面测量放线工序的基础上,确定陶板板块在外平面的水平、垂直位置;并在框格平面外设控制点,拉控制线,控制安装的平面度和各组件的位置。
陶板及陶板幕墙施工方案引言陶板幕墙是一种现代建筑装饰材料,具有优雅、美观、环保等特点,被广泛应用于高层建筑、商业建筑等建筑领域。
本文将介绍陶板及陶板幕墙的施工方案。
一、材料准备1.1 陶板陶板是主要的建筑装饰材料,具有优良的耐久性和装饰效果。
在施工前,需先将陶板经过质量检验,确保无裂纹、破损或其他缺陷。
同时,还需要对陶板进行染色或涂层处理,以满足设计要求。
1.2 金属支撑结构陶板幕墙需要使用金属支撑结构来支撑陶板的安装。
金属支撑结构应选用高强度的铝合金或不锈钢材料,以确保幕墙的稳定性和安全性。
二、施工步骤2.1 预制作业在施工前,需要进行以下预制作业:•制作金属支撑结构:根据设计要求,制作金属支撑结构,并进行预装配。
•制作陶板:根据设计要求,制作陶板,并进行染色或涂层处理。
2.2 安装金属支撑结构1.绘制标高线:根据设计图纸,使用激光仪器在墙体上标定出幕墙的标高线。
2.安装垂直抗弯支撑结构:根据设计要求,将金属支撑架固定在墙体上,确保垂直度和平整度。
3.安装水平抗弯支撑结构:根据设计要求,将水平抗弯支撑架连接到垂直抗弯支撑结构上,确保整个支撑结构的稳定性。
4.安装陶板支撑结构:安装陶板支撑结构,根据设计要求,将陶板支撑结构连接到水平抗弯支撑结构上。
2.3 安装陶板1.进行防水处理:在安装陶板前,需要对墙体进行防水处理,以确保幕墙的密闭性。
2.安装陶板:根据设计要求,将预制的陶板安装到陶板支撑结构上。
安装时需要注意以下事项:–陶板的安装应从底部向上进行,逐层安装。
–陶板之间需要保持一定的间隙,以便进行伸缩。
–安装陶板时,一定要注意接缝的对齐和封闭性。
2.4 完善细节处理1.完善陶板幕墙的各种细节,包括角部处理、门窗洞口处理、设备洞口处理等。
2.进行防污处理:在施工完成后,对陶板进行防污处理,以保持幕墙的美观和耐久性。
三、施工注意事项在施工陶板及陶板幕墙时,需要注意以下事项:1.施工前,需对材料进行质量检验,确保达到设计要求。
陶板及陶板幕墙施工方案1. 引言陶板是一种常用的建筑材料,具有耐高温、耐腐蚀、隔热隔音等特性。
陶板幕墙运用了陶板材料,能够为建筑提供独特的外观效果和良好的环境保护功能。
本文将介绍陶板及陶板幕墙的施工方案,包括设计、制作、安装等方面。
2. 设计陶板及陶板幕墙的设计是施工的基础,要考虑以下几个方面:•结构设计:根据建筑的需求和陶板的特性,确定陶板幕墙的结构形式和连接方式,确保其稳固性和安全性。
•材料选择:选择符合建筑需求和外观效果要求的陶板材料,考虑材料的耐腐蚀性、耐高温性和可塑性等因素。
•尺寸规划:根据建筑的尺寸和比例要求,确定陶板幕墙的尺寸和分布规律,保证整体效果和美观性。
3. 制作陶板的制作需要经过以下步骤:•原材料准备:选择优质的陶瓷材料,经过筛选、清洗等工序,确保材料质量。
•成型工艺:根据设计要求,采用模压、流延、注塑等工艺,将陶料进行成型。
•干燥烧结:经过成型后,将陶板进行干燥和烧结,以提高其密实性和强度。
•表面处理:根据建筑要求,对陶板进行喷涂、釉面处理等工艺,提高其外观效果和耐腐蚀性。
4. 安装陶板幕墙的安装流程包括以下步骤:•架子搭建:根据设计要求,搭建承载陶板幕墙的辅助结构,确保其稳定性和安全性。
•安装固定:将陶板逐块安装在辅助结构上,通过螺栓、焊接等方式进行固定,确保陶板的牢固性和整体结构的稳定性。
•连接处理:根据设计要求和陶板的尺寸,对陶板之间进行连接处理,确保连接处的平整度和美观性。
•检验调整:完成安装后,对陶板幕墙进行检验和调整,确保其平整度、水平度和垂直度等达到要求。
5. 施工注意事项在进行陶板及陶板幕墙的施工过程中,需要注意以下事项:•施工前应对材料进行检查,确保陶板的质量和完整性。
•施工过程中应注意安全,采取必要的防护措施,避免人员和物品的伤害。
•施工现场应保持整洁,保证施工质量和效率。
•施工过程中应随时进行质量检验,及时发现并处理问题。
•施工完成后,应进行验收,确保陶板幕墙的质量和效果达到设计要求。
陶土板幕墙施工工法陕西xx集团第二建筑工程有限公司1. 前言陶土板幕墙是一种新型的墙体饰面材料,近几年在国内得到了人们的推广和认可,陶土板幕墙结合了陶制品永恒不变的特征,将现代幕墙技术融为一体,蕴含着几千年古老中国的传统陶文化,赋予了建筑物庄重而强烈的艺术美感,使传统原料与现代建筑巧妙完美的结合,产品本身具有极好的耐久性。
陶土板是环保材料、无须维护、历久弥新,色彩随时间推移更加绚丽,安装便捷可独立更换,具有天然环保、颜色丰富、自然质感、保温节能、重量轻、强度高、自洁等功能特点以及华贵、自身的完美将装饰效果发挥至极至,创造了高科技与生态学之间的和谐,具有较高的品位,同玻璃、金属、石材等幕墙在经济上有较高的性价比。
2. 工法特点2.1 规格精准采用先进的工艺设备,确保产品品质的稳定,全自动化温控系统,使得每件陶土板均具有精准的外形控制尺寸。
2.2 防火阻燃,耐久性好陶土板是不可燃材料,经过高温煅烧,耐酸碱性,抗冻融性好,耐久性好。
2.3更换简单陶土板幕墙独特的干挂安装系统可以自由装卸设计,使每块陶土板都可以在局部破损的情况下自由拆卸、更换,而不会对幕墙整体造成破坏。
2.4 自由切割陶土板高强度的物理特性使之能够随意切割,满足多样的建筑造型及设计理念要求的多样化规格,赋予安装更多的灵活性。
2.5 安装方便,简洁陶土板的系统设计能最大程度的满足幕墙收边、接口、接缝的局部需要,无论是平面、转角或其它部位,都能保持幕墙立面的连贯、美观,并给设计、施工带来更多的自主性。
3. 适用范围适用于非抗震及抗震要求的建筑物建筑外装饰幕墙、建筑内装饰幕墙等工程施工。
4. 工艺原理陶土板幕墙属于构件式幕墙,通过固定在建筑物主体结构上的立柱、横梁骨架,采用滑移扣件将陶土板安装在骨架上,形成装饰面层,从而达到建筑装饰效果。
5. 施工工艺流程及操作要点5.1 施工工艺流程施工工艺流程见图1图1 施工工艺流程图5.2 操作要点5.2.1 施工准备1 编制专项施工方案,对操作人员进行岗前培训,并做好安全技术交底工作;2 根据建筑设计装饰图进行排版设计,画出排版图;3 对外墙龙骨的预埋件位置进行检查。
墙体构造设计作业讲评整理表姓名:职业工种:申请级别:受理机构:填报日期:墙体构造设计作业讲评一、设计方法和步骤(一)设计之前的准备1.熟悉设计任务书,理解本次设计的目的、要求,并合理安排自学时间,按时完成设计。
2.消化吸收所学过的理论知识。
理论知识是一切实践性环节的基础。
3.收集设计资料为了方便学生设计,本教材附有一些设计资料,设计时可以参考使用。
但由于各地区的建筑构造做法存在差异,学生也可参考当地的标准设计图集或规范资料。
学生在进行设计时,不要违背建筑设计规律,,要严格按照建筑制图规范制图。
4.理论联系实际,多参加一些工程实践锻炼,以使设计满足实际施工的需要。
(二)设计方法和步骤注意整个图面布图合理而不局促。
注意线条的合理运用:在3个节点详图中,被剖到的墙体以及过梁结构外轮廓线用粗实线绘制;被剖到的散水、地层中的混凝土垫层、窗框、楼板等用中实线绘制;其余线条用细实线绘制。
以上3种线型的对比要分明。
设计步骤大体如下(以墙脚节点详图1为例):1.先画轴线。
2.沿轴线画出墙线,画出窗框及其轮廓线,再在墙内外画装修层次。
3.按标高画墙体室内外地面、散水、勒脚、水平防潮层以及踢脚等构造。
4.在此基础上画出室外地坪、散水与室内地层的具休构造层次。
5.进行有关的尺寸或文字标注。
6.标注图名、比例。
二、设计要点和常见问题提示1.勒脚构造设计要点(1)勒脚为室内外地面的高差部分,其高度一般不低于室内地坪高度,有时做到底层窗台底。
(2)常采用密实度大的材料处理勒脚。
常见的饰面做法有:水泥砂浆或其他强度高、具有一定防水能力的抹灰处理;石块砌筑;贴面砖或天然石材。
2.散水的构造设计要点(1)散水宽度为600-1000 mm,坡度为3%~5%,外边缘比室外地坪高出20-30 mm。
(2)面层材料有混凝土、砖、石等。
采用混凝土时,宜按20 -30 m间距设置伸缩缝。
一般灰土垫层宽度不小于800 mm,厚度不小于150 mm;混凝土宽度不小于600 mm,厚度不小于50 mm (3)由于建筑物的沉降,勒脚与散水施工时间的差异,在勒脚与散水交接处应设置分隔缝,缝宽20-30 mm,用沥青类弹性材料嵌缝,上嵌沥青胶盖缝,以防渗水。
陶土板幕墙施工方案与技术措施一、安装前得施工准备1、施丄安装得基本条件主体结构完工,现场清理干净,在二次装修前进行•同时,也要组织好工种交叉,避免其它部分施工时污染、损坏幕墙。
利用吊篮施工安装应与土建施工单位协调好脚手架得拆除进度安排.安装前应保留垂直运输设备以便吊运构件与材料。
埋设件已妥善埋入,位置准确.主体结构工程达到施工验收规范得要求.2、施工准备材料、构件要按施工组织分类,按使用地点存放,陶板应运入相对应得房间内,塑料布盖严,下边应垫上垫板,陶板应稍倾斜直立摆放,以防碰坏;五金件及其它材料应分楼层堆放在固定房间内并加锁。
安装前要检查钢材,要求平直、规方,不得有明显得变形、刮痕;构件、材料与零附件应在施工现场验收,验收时监理方与企业所有人应在场。
立柱等主要型材加工完毕。
辅助加工仅为简单钻孔、其加工位置、尺寸,应与设计图相符.后备材料:不合格得构件应予更换,幕墙构件在运输、堆放与吊装过程中有可能变形、损坏等,所以应根据具体情况,对易损坏与丢失得构件、配件、密封材料与胶垫等,应有一定得更换、储备数量。
1)原材料得检验。
幕墙原材料验收程序幕墙材料进厂后先卸于“待检区”,采购员填写“材料入库交验单”,对该批幕墙材料得工程名称、品种、规格、型号、数量、重量一一填写清楚,并请计划员核实签名,然后连同材料“证明书”、出货码单一并交与仓库管理员,仓库管理员收到上述单据后应及时通知厂质检部门得检验员询来仓库检验。
检验员在收到“材料入库交验单"与有关资料后,首先检查该批材料“质量保证书”上所写化学成分、机械性能指标就是否达到工程技术条件得要求,接着山材料保管员陪同到“待检区”复核材料表面质量,外观就是否符合标准,如全部符合要求,在“入库交验单”上填写合格、签署检验员得姓名、检验时间等,在材料表面做出检验合格得认可标记。
经检验凡发现“材料质量保证书”上得数据不清楚、不齐全,材质标记模糊, 表面质量、外观尺寸不符合有关标准得要求时,检验员需上报厂材料质量部门请求复核,复检人员根据丄程得重要性及材料质量得具体情况作出裁决与进行复检签定。
陶板幕墙施工方案一、引言陶板幕墙是指由陶瓷板材组成的外墙装饰系统,具有独特的艺术魅力和高品质的装饰效果。
本文档旨在提供一种基于陶板的幕墙施工方案,介绍施工过程和注意事项,以确保施工质量和安全。
二、材料准备1. 陶板选择高质量的陶板作为幕墙装饰材料,重点考虑其强度、耐候性和装饰效果。
建议选择防火等级符合要求的陶板,并确保其表面光滑平整、颜色均匀一致。
2. 结构材料选择合适的结构材料用于幕墙施工,如建筑钢结构、铝型材等。
材料的选用应满足幕墙的承重要求和建筑设计要求。
3. 安装工具准备一套适合幕墙施工的工具,如电动螺丝刀、吊篮、脚手架等。
根据施工现场的具体情况,选择合适的工具来提高施工效率和安全性。
三、施工步骤1. 幕墙结构搭建根据建筑设计图纸和施工方案,在建筑物的外墙上搭建幕墙的基本结构。
这包括安装横、竖向的承重结构材料,确保其坚固和稳定。
2. 安装陶板将预先准备好的陶板逐一安装到幕墙的结构上。
安装过程中,注意以下事项:- 使用合适的安装工具,如电动螺丝刀,确保陶板固定牢固; - 每块陶板之间的间隔应符合设计要求,确保整个幕墙的装饰效果; - 针对大面积幕墙,要注意膨胀缝和弹性接头的设置,以应对温度变化和结构变形。
3. 清洁和检验在陶板安装完成后,进行清洁和检验工作,包括: - 清洁陶板表面,确保其整洁无尘; - 检查每块陶板的安装质量,确认其承重性和装饰效果; - 检查整个幕墙结构的稳定性,确保其符合安全要求。
4. 质量验收经过清洁和检验后,进行质量验收工作。
验收范围包括陶板的尺寸、表面质量、安装质量等。
同时,还要按照设计要求进行功能性测试和整体效果评估。
四、安全注意事项在施工过程中,应特别注意以下安全事项: - 搭建幕墙结构时,要保证承重材料的稳定性,防止结构倒塌事故; - 确保施工工人佩戴必要的防护装备,如手套、安全帽等; - 在高空作业时,要加强对脚手架和吊篮的检查和维护,确保其安全可靠; - 清洁和检验工作时,要注意防止陶板破损和跌落事故; - 在质量验收过程中,要对幕墙的承重和装饰效果进行全面检查,确保其符合要求。
以我给的标题写文档,最低1503字,要求以Markdown 文本格式输出,不要带图片,标题为:陶板及陶板幕墙施工方案# 陶板及陶板幕墙施工方案## 1. 引言陶板是一种常见的建筑材料,由于其质地坚固、防水性能好以及良好的装饰性能,被广泛应用于建筑幕墙的设计和施工中。
本文将详细介绍陶板及陶板幕墙的施工方案,包括陶板的选材、安装、施工工艺以及关键注意事项等内容。
## 2. 陶板的选材陶板的选材是确保施工质量和效果的关键步骤。
在选择陶板时,需要考虑以下几个因素:- 耐候性:优质的陶板应具有强大的耐候性,能够抵御恶劣天气和长期紫外线照射。
- 强度:陶板需要具有足够的强度,能够承受外部荷载和较大的温度变化。
- 色彩和纹理:陶板的色彩和纹理应与建筑整体风格相符,带来良好的视觉效果。
在选择陶板供应商时,建议考虑其信誉度、产品质量和售后服务等因素。
## 3. 陶板的安装陶板的安装是陶板幕墙施工的核心步骤。
下面介绍一般的陶板安装方法:### 3.1. 准备工作在安装陶板之前,需要进行以下几项准备工作:- 确定安装位置和方式。
- 清理施工区域,确保基面平整干净。
- 根据设计方案和施工图纸进行水平和垂直布线。
### 3.2. 安装步骤陶板的安装步骤如下:1. 将已选好的陶板按照设计要求和施工图纸进行排列和标记。
2. 根据标记的位置,在基面上做出相应的固定点。
3. 使用专用的陶板粘结剂将陶板粘贴在基面上,并确保其与基面紧密贴合。
4. 保证陶板之间的拼缝均匀,采用专用的填缝胶进行填补。
5. 使用专用的安装工具,确保陶板的固定和对齐。
在进行陶板幕墙施工时,需要注意以下几点:- 严禁使用有损伤和破损的陶板进行安装。
- 使用合适的工具和设备,避免对陶板造成二次损伤。
- 在安装过程中,保持施工区域干净整洁,避免污染陶板和施工环境。
## 4. 陶板幕墙施工工艺陶板幕墙的施工工艺包括以下几个方面:### 4.1. 预处理工艺在进行陶板幕墙施工之前,需要进行一些预处理工艺,包括基面处理、防水处理等。
目录1 编制依据...................................... 错误!未指定书签。
2 工程概况....................................... 错误!未定义书签。
3 施工安排....................................... 错误!未指定书签。
4 机械设备配备计划安排ﻩ错误!未指定书签。
5 施工准备....................................... 错误!未指定书签。
6 施工工艺ﻩ错误!未定义书签。
7、材料要求: ...................................... 错误!未定义书签。
8、施工方法:..................................... 错误!未指定书签。
9 技术措施ﻩ错误!未指定书签。
10防雷施工ﻩ错误!未指定书签。
11、陶土板装饰墙面清洗ﻩ错误!未定义书签。
12 主要施工管理措施ﻩ错误!未指定书签。
13、现场施工质量保证措施......................... 错误!未指定书签。
14、施工配合措施ﻩ错误!未指定书签。
15、现场文明施工安全方案......................... 错误!未指定书签。
16 保修维护方案................................. 错误!未指定书签。
ﻬ1 编制依据1.1 本施工方案编制的依据1.1.1《陶土板幕墙工程施工图》1.1.2本企业质量管理体系的文件、本企业工程质量检验标准1.1.3工程技术文件和规范1.1.4施工技术规范《金属及石材幕墙工程技术规范》133-20131.1.5钢材规范《钢结构设计规范》50017-2003《建筑钢结构焊接技术规程》81-20021.1.6胶类规范《硅酮建筑密封胶》14683-20031.1.7紧固件《紧固件机械性能螺栓、螺钉和螺柱》3098.1-2000《紧固件机械性能螺母、粗牙螺纹》3098.2-2000《紧固件机械性能螺母、细牙螺纹》3098.4-2000《紧固件机械性能自攻螺钉》3098.5-2000《紧固件机械性能不锈钢螺柱、螺钉和螺柱》3098.6-2000《紧固件机械性能不锈钢螺母》3098.15-2000《紧固件机械性能不锈钢紧定螺钉》3098.16-20001.2、编制原则1.2.1 满足施工图纸和有关工程技术规范的各项技术和功能要求;1.2.2 满足工程进度、质量、安全目标和要求;1.2.3满足工程各项经济、效益指标要求1.2.4 配合监理、总包和其它承包商的施工要求;1.2.5实施的各项目标:1.2.5.1施工总工期:施工安装工期90日,开工日期2013年11月28日施工。
陶板及陶板幕墙施工方案第一章,陶板简介1、陶板幕墙的历史人类对陶土的应用,据可靠的考古证据证明,已有超过6000年的历史。
陶土板幕墙——充分运用现有科技手段,通过陶的不可变特性铸就永恒的建筑视觉效果。
2、陶板的起源陶板,又称陶土板。
是目前全球流行的一种建筑幕墙装饰、百叶装饰以及室内外墙面装饰的陶质轻体干挂材料。
陶板作为干挂幕墙材料,最早出现于1985年的欧洲,设计灵感来自于一位欧洲建筑师对于中国兵马俑的陶文化膜拜,将陶瓦的感觉从屋面转移到墙面,其特有的土陶质感和返璞归真的色泽,使建筑看起来更接近中国的兵马俑艺术。
随着90年代玻璃幕墙被大量的应用于建筑外观设计,那些有超前思想的建筑师,开始尝试将玻璃的明快、现代质感和陶板的沧桑久远的文明象征结合起来,形成古老与现代、原始感和科技感并存的建筑表现形式,并大获成功。
于是,陶板的制造,被国外一些敏锐的建材生产商所重视,并开始将陶板作为一种新的产业来规模化经营。
然而,陶板制造工艺的特殊性,又在其发展的过程中,被赋予了从生产到应用的极大创造性。
当陶板以“板”的形式更多的体现在建筑的外观设计之时,其产品的形式又随着设计的需求产生了诸多的变化。
这是陶板区别于其他干挂幕墙材料的不同之处。
陶板的制造工艺,起源于屋面瓦,进入二十世纪中叶以后,随着建筑外围护结构的概念出现,轻钢龙骨体系在建筑中的应用得到了迅速的发展;与此同时,用于挤出、干燥、烧制的机械设备,在这一时期也随着建筑陶瓷工业的发展,更趋于现代化、科技化和自动化。
在这一时期内,建筑设计的语言也产生了变化,艺术表现手法上更趋于复古风潮,建筑表皮技术更趋于承载人类的文明以及城市的历史。
为了满足建筑设计的发展要求,生产陶板的制造商又根据自身的工艺特点,制造出形式各样的产品。
陶板的生产方法是将粘土经过不同配比,与水混炼成近似于雕塑用的陶泥状,经高吨位真空挤压机,通过设计好的模具出口挤出想要的产品泥胚,再经过相似于自然风干的干燥设备蒸发水分,最后经过超过1000℃的高温窑炉烧制而成。
这种湿法挤压成型的制陶工艺,使陶板不仅仅局限于“板”,还可以设计成不同形状的模具得到不同形状、规格的陶制品,能在一定程度上满足建筑设计的不同立面要求。
于是,更多的建筑师开始青睐于,用自己的创想定制需要的产品形式,使这一神奇的陶产品,被赋予更多的功能,诸如遮阳、棍型装饰、线条装饰等。
2、陶板产品形式的划分1)、陶板是陶产品应用于外墙干挂法的形式之一,因其生产工艺的可塑性,陶板产品的形式多样,陶板可分为陶板、异型陶板、陶土百叶几大类。
2)、陶板主要成分是陶土。
用陶土经湿法挤压成型、干燥、窑烧后形成的带空腔的板材称为陶板。
陶板的厚度一般为15mm~30mm,根据历史沿革和优化后的生产工艺,决定了最常规的平板厚度为18mm 或30mm。
宽度为200mm~ 600mm。
长度400mm~1200mm 。
皮要求,达到相应效果。
3、陶板的特点:1)强度高,重量较小。
2)性能稳定,耐久,耐酸硷。
3)色彩多样,色差小,风格古朴。
4)干法安装,无胶缝污染。
5)容易清洁。
6)耐火,不燃烧。
7)旧建筑墙面改造也很适用。
4、陶板幕墙、金属幕及石材幕墙之对比1)、石材幕墙石材幕墙属于传统的三大幕墙之一,厚重、结实,根据不同的色彩和质感可以营造出或沧桑或华贵之风格。
但缺点也很明显:a、颜色可选性小,与其他建筑的雷同率高,难以形成业主或设计师的个性诉求;b、色差大,不易控制,对整体的外观效果往往形成破坏性影响;c、自重大、易脱落,以及有害的放射性,对于久居其内的办公人员和过往行人存在安全隐患。
2)、金属幕墙A、优点金属幕墙中的主导产品铝板,到目前为止,金属幕墙中的铝板幕墙一直在金属幕墙中占主导地位,轻量化的材质,减少了建筑的负荷,为高层建筑提供了良好的选择条件;防水、防污、防腐蚀性能优良,保证了建筑外表面持久长新;加工、运输、安装施工等都比较容易实施,为其广泛使用提供强有力的支持;色彩的多样性及可以组合加工成不同的外观形状,拓展了建筑师的设计空间;较高的性能价格比,易于维护,使用寿命长,符合业主的要求。
B、缺点a、幕墙系统的抗变形能力必须对幕墙系统的每个重要部位进行科学的力学计算,考虑风压、自重、地震、温度等作用对幕墙系统的影响,对埋件、连接系统、龙骨系统、面板及紧固件进行仔细校核,确保幕墙的安全性。
b、板块是否采用浮动连接浮动式连接保证了幕墙变形后的恢复能力,保证幕墙的整体性,不会使幕墙因受作用力而造成变形,避免幕墙表面鼓凸或凹陷情况的发生。
c、板块的固定方式板块的固定方式对板块的安装平整度起着决定性作用。
板块各个固定点的受力不一致会造成面材的变形影响外饰效果,所以板块的固定方式必须采用定距压紧的固定方式,保证幕墙表面的平整度。
d、复合型面材材料拆边处是否有补强措施因复合型面板材料的折边只保留了正面板材厚度,厚度变薄,强度降低,所以拆边必须有可靠的补强措施。
e、板背面是否合理设置加强筋,以增加板面的强度和刚度。
加强筋的布置距离以及加强筋本身的强度和刚度,必须均满足要求,以保证幕墙的使用功能及安全性。
f、防水密封方式是否合理防水密封方式很多,结构防水,内部防水,打胶密封,不同的密封方式价格也不尽相同,选择适合的密封方式用于工程中,保证幕墙的功能及外饰效果。
3)、陶板的特点:a、色彩陶板颜色丰富,有红、黄、灰和咖啡四大色系共几十种颜色,而且单一颜色大面积使用,色差可控,能充分满足客户需求。
b、安全陶板幕墙经严格的原料处理、高压挤出成型、1200度的高温烧制,其理化性能非常稳定,具有良好的抗折、抗冲击、冻循环、耐腐蚀等性能;石材则是天然形成,内在质地无法均匀,理化性能自然有别。
陶板幕墙自重轻,每平方仅31公斤。
而石材每平方的重量要超过60公斤,是陶板的两倍,不太适合高层建筑使用。
陶板幕墙背后用于安装挂件的沟槽是在陶板生产时一次成型的,深浅及大小统一,偏差小。
而石材则是在施工现场加工,加工质量受人为因素的影响大。
陶板安装系统设计合理、成熟,通过了严格的抗风压、抗震和挂装系统结构强度测试;安装部件以铝合金材质为主,更具防腐性和不易变形。
c、环保:生产工艺上:陶板幕墙的生产采用湿法成型工艺,避免了目前国内陶瓷界普遍采用的干法成型工艺,大大降低了能耗和污染,代表着未来陶瓷生产工艺的新趋势。
实际使用上:陶板为中空结构,可以有效阻隔热传导,降低建筑空调能耗,节约能源。
石材干挂多属于密闭式,而陶板特有的横缝搭接所形成的开放安装方式,使得面材跟墙体之间的空气层能够“自由呼吸”,比密闭式能够更大程度地降低能耗。
近年来随着世界性的能源紧张,政府已经对公用建筑的能耗问题颁布实施了强制性的节能标准,相对于石材来讲陶板更能够满足这种要求。
d、维护陶板幕墙表面防静电,不易吸附灰尘;若陶板表面有灰尘,经过雨水冲刷后则很容易保持干净。
所以陶板具有一定的自洁功能。
自洁功能可以降低陶板幕墙的清洗和维护费用,尤其对于高层建筑来说更是不容小觑。
性能指标陶板石材铝板重量31-46㎏/㎡60-85㎏/㎡8㎏/㎡左右颜色品种丰富,色差小自然成因,色调单一,有明显色差品种丰富,无色差质感天然材料,富有内涵及艺术气息天然材料,质感淳朴金属质感,缺乏艺术气息抗震性高,超过10度抗震设防较高高耐久性不变形,不褪色板面随时间久远易褪色、变色时间长易褪色、变形辐射高温烧制后无辐射辐射较严重,主要是氡元素没有辐射节能特性空腔结构,保温隔热性好,高效节能实心结构,隔热性差,不利于节能导热性高,不利于节能降噪性较好一般较差环保特性可回收,生产低能耗,无环境污染不可回收,生产能耗高,无环境污染可回收,生产能耗高,环境污染严重自洁性有无无耐酸碱性不易腐蚀表面易受酸碱腐蚀,光泽及平滑度降低金属材料,易腐蚀断裂模数强度较高,≥14.4Mpa易碎裂,≥10Mpa强度高,≥125Mpa干挂系数槽式挂接,挂接口是板自带的槽口,安全可靠主要为T码式和背栓式连接,需钻孔或开槽,钻孔或开槽处应力增加易引起破坏工厂加工成型,现场安装方便第二章、陶板安装施工方案第一节、施工中采用的技术标准和规范《工程测量规范》(GB50026—2007)《建筑工程施工质量验收统一标准》(GB50300-2001)《建筑幕墙》(GB/T 21086-2008)《建筑幕墙用陶板》(JG/T 324-2011)《建筑幕墙工程质量验收规程》(DGJ32J124-2011)《玻璃幕墙工程技术规范》(JGJ 102-2003)《干挂空心陶瓷板》(JC/T 1080-2008)《陶土板幕墙工程技术规范》(Q/TOBSG-03)《施工现场临时用电安全技术规范》(JGJ46-2005)《建筑施工安全检查标准》(JGJ59-2011)《建筑施工高处作业安全技术规范》(JGJ80-91)《建设工程文件归档整理规范》(GB/T50328—2001)国家现行的其他有关标准、规范第二节、陶板幕墙各项性能分析1、陶板物理力学性能陶板物理力学性能取决于板厚和开孔,可由试验决定。
吸水率: 2.5%~6.5% 密度: 2.2~2.4 g/cm3(实体)板重: 0.25~0.50kN/m2(带孔)抗弯强度:一般规定15~20 N/mm2,实际大于20N/mm2抗冻性:100次冻融循环无损坏线膨胀系数:1.0~1.2 X 10E-5/C2、板缝设计面板之间,应留出板缝。
当主体结构、支承结构由水平侧移、温度变化使面板产生相对移动和面板自身的温度膨胀时,开放式板缝两侧的面板不应相碰;注胶式板缝中,密封材料的拉压变形不应超出其耐受能力。
横向板缝的宽度不宜小于4mm。
挂板应设水平移动限位装置,防止陶板竖缝相碰。
常见板缝形式有:注胶式板缝、嵌缝式板缝、开放式板缝。
a、注胶式板缝:注胶式板缝是最普遍采用的板缝形式,其气密性能和水密性能比较可靠,承建商也熟悉,施工质量有保证,有条件时可以采用注胶式板缝。
1)板缝底部宜用泡沫条充填。
宜采用硅酮耐候密封胶嵌缝,硅酮胶缝厚度不宜小于3.5mm,宽度不宜小于厚度的2倍。
不应采用三面粘结的胶缝;2)陶板胶缝应采用无污染、无渗油的石材专用密封胶。
选用前宜进行防污染性试验,确认无渗油现象;3)注胶式板缝也可以采用聚胺酯密封胶嵌缝,聚胺酯胶缝厚度宜为缝宽的0.5~1.0倍,且不宜小于5mm;4)建筑设计有需要时也可以采用深胶缝。
深胶缝表面与陶板表面的距离可以大于5mm;5)石材专用密封胶用于陶板的硅酮密封胶目前只能用石材专用密封胶,除符合一般硅酮建筑密封胶的性能要求外,还要求对陶板不产生污染。
b、嵌缝式板缝:1)采用的胶条宜为三元乙丙橡胶条、氯丁橡胶条或硅橡胶条;陶土劈开砖的施工方法2)胶条在十字交叉处必须粘结严密,可采用压敏粘结材料粘结;3)应采用多道密封防水措施;c、开放式板缝:开放式板缝不作密封处理,防水层移至板后的空间,放在保温层的前面。