污水处理工艺流程图
- 格式:doc
- 大小:26.92 KB
- 文档页数:1
污水处理工艺流程图污水处理工艺流程图是指用于描述污水处理过程中各个处理单元之间关系和操作步骤的图表。
下面是一个典型的污水处理工艺流程图示例,详细介绍了污水处理的各个阶段和相关的处理单元。
1. 污水采集和初步处理阶段:- 污水采集:通过排水管网将城市、工业区等地区的污水采集到污水处理厂。
- 粗格栅:用于去除大颗粒物质,如树叶、纸张等。
- 细格栅:去除较小的悬浮物和固体颗粒。
- 沉砂池:通过重力作用使沉积物沉淀,去除沙子和砾石。
2. 污水生物处理阶段:- 活性污泥法:将污水引入活性污泥池,通过微生物降解有机物质。
- 曝气池:通过曝气装置供氧,促进微生物的生长和有机物的降解。
- 沉淀池:将处理后的污水引入沉淀池,使污泥沉淀。
- 污泥回流:将一部份沉淀后的污泥回流至活性污泥池,增加微生物数量。
3. 污泥处理阶段:- 污泥浓缩:将沉淀池中的污泥通过浓缩装置浓缩,减少体积。
- 污泥消化:将浓缩后的污泥进入消化池,通过厌氧消化降解有机物质。
- 污泥脱水:将消化后的污泥通过脱水设备脱水,减少水分含量。
4. 污水深度处理阶段:- 活性炭吸附:将处理后的污水通过活性炭吸附装置,去除有机物和异味。
- 膜分离:使用微孔膜或者超滤膜对污水进行过滤,去除弱小颗粒和细菌。
- 臭氧氧化:利用臭氧对污水进行氧化处理,去除难降解有机物和色度。
5. 出水处理和回用阶段:- 出水消毒:对处理后的污水进行消毒,杀灭细菌和病毒。
- 出水调节:对出水进行调节,使其达到国家和地方排放标准。
- 污水回用:将处理后的污水用于农田灌溉、工业用水等方面。
请注意,以上流程图仅为示例,实际的污水处理工艺流程图可能因地区、工艺和设备的不同而有所差异。
在设计和运营污水处理厂时,需要根据具体情况进行调整和优化。
希翼以上信息能够满足您的需求,如果还有其他问题,请随时提问。
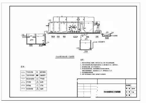
污水处理工艺流程图 污水进入厂区先通过截流井(让厂能处理的污水进入厂区进行处理)进入粗格栅(打捞较大的渣滓)到污水泵(提升污水的高度)到细格栅(打捞较小的渣滓)到沉沙池(以重力分离为基础,将污水的比重较大的无机颗粒沉淀并排除)到生化池(采用活性污泥法去除污水里的BOD5、SS和以各种形式的氮或磷)进入终沉池(排除剩余污泥和回流污泥)进入D型滤池(进一步减少SS,使出水达到国家一级标准)进入紫外线消毒(杀灭水中的大肠杆菌)然后出水生化池、终沉池出的污泥一部分作为生化池的回流污泥,剩下的送入污泥脱水间脱水外运 主要有物理处理法,生化处理法和化学处理法,生化处理法经常被使用,主流处理方法主要看被处理水质和受纳水体情况,一般城市生活污水的主流处理方法为生化处理法,如活性污泥法,mbr 等方法。
污水处理sewage treatment.wastewater treatment 为使污水经过一定方法处理后.达到设定的某些标准.排入水体.排入某一水体或再次使用等的采取的某些措施或者方法等.现代污水处理技术.按处理程度划分.可分为一级.二级和三级处理.一级处理.主要去除污水中呈悬浮状态的固体污染物质.物理处理法大部分只能完成一级处理的要求.经过一级处理的污水.BOD一般可去除30%左右.达不到排放标准.一级处理属于二级处理的预处理.二级处理.主要去除污水中呈胶体和溶解状态的有机污染物质(BOD.COD 物质).去除率可达90%以上.使有机污染物达到排放标准.三级处理.进一步处理难降解的有机物.氮和磷等能够导致水体富营养化的可溶性无机物等.主要方法有生物脱氮除磷法.混凝沉淀法.砂率法.活性炭吸附法.离子交换法和电渗分析法等.整个过程为通过粗格删的原污水经过污水提升泵提升后.经过格删或者筛率器.之后进入沉砂池.经过砂水分离的污水进入初次沉淀池.以上为一级处理(即物理处理).初沉池的出水进入生物处理设备.有活性污泥法和生物膜法.(其中活性污泥法的反应器有曝气池.氧化沟等.生物膜法包括生物滤池.生物转盘.生物接触氧化法和生物流化床).生物处理设备的出水进入二次沉淀池.二沉池的出水经过消毒排放或者进入三级处理.一级处理结束到此为二级处理.三级处理包括生物脱氮除磷法.混凝沉淀法.砂滤法.活性炭吸附法.离子交换法和电渗析法.二沉池的污泥一部分回流至初次沉淀池或者生物处理设备.一部分进入污泥浓缩池.之后进入污泥消化池.经过脱水和干燥设备后.污泥被最后利用.各个处理构筑物的能耗分析1.污水提升泵房进入污水处理厂的污水经过粗格删进入污水提升泵房.之后被污水泵提升至沉砂池的前池.水泵运行要消耗大量的能量.占污水厂运行总能耗相当大的比例.这与污水流量和要提升的扬程有关.2.沉砂池沉砂池的功能是去除比重较大的无机颗粒.沉砂池一般设于泵站前.倒虹管前.以便减轻无机颗粒对水泵.管道的磨损,也可设于初沉池前.以减轻沉淀池负荷及改善污泥处理构筑物的处理条件.常用的沉砂池有平流沉砂池.曝气沉砂池.多尔沉砂池和钟式沉砂池.沉砂池中需要能量供应的主要是砂水分离器和吸砂机.以及曝气沉砂池的曝气系统.多尔沉砂池和钟式沉砂池的动力系统.3.初次沉淀池初次沉淀池是一级污水处理厂的主题处理构筑物.或作为二级污水处理厂的预处理构筑物设在生物处理构筑物的前面.处理的对象是SS和部分BOD5.可改善生物处理构筑物的运行条件并降低其BOD5负荷.初沉池包括平流沉淀池.辐流沉淀池和竖流沉淀池.初沉池的主要能耗设备是排泥装置.比如链带式刮泥机.刮泥撇渣机.吸泥泵等.但由于排泥周期的影响.初沉池的能耗是比较低的.4.生物处理构筑物污水生物处理单元过程耗能量要占污水厂直接能耗相当大的比例.它和污泥处理的单元过程耗能量之和占污水厂直接能耗的60%以上.活性污泥法的曝气系统的曝气要消耗大量的电能.其基本上是联系运行的.且功率较大.否则达不到较好的曝气效果.处理效果也不好.氧化沟处理工艺安装的曝气机也是能耗很大的设备.生物膜法处理设备和活性污泥法相比能耗较低.但目前应用较少.是以后需要大力推广的处理工艺.5.二次沉淀池二次沉淀池的能力消耗主要是在污泥的抽吸和污水表明漂浮物的去除上.能耗比较低.6.污泥处理污泥处理工艺中的浓缩池.污泥脱水.干燥都要消耗大量的电能.污泥处理单元的能量消耗是相当大的.这些设备的电耗功率都很大.针对各个处理构筑物的节能途径1.污水提升泵房污水提升泵房要节省能耗.主要是考虑污水提升泵如何进行电能节约.正确科学的选泵.让水泵工作在高效段是有效的手段.合理利用地形.减少污水的提升高度来降低水泵轴功率N也是有效的办法.定期对水泵进行维护.减少摩擦也可以降低电耗.2.沉砂池采用平流沉砂.避免采用需要动力设备的沉砂池.如平流沉砂池.采用重力排砂.避免使用机械排砂.这些措施都可大大节省能耗.3.初次沉淀池初次沉淀池的能耗较低.主要能量消耗在排泥设备上.采用静水压力法无疑会明显降低能量的消耗.4.生物处理构筑物国外的学者通过能耗和费用效益分析比较了生物处理工艺流程.他们认为处理设施大部分的能量消耗是发生在电机这类单一的设备上.因而节能应从提高全厂功率因数.选择高效机电设备及减少高峰用电要求等方面入手.他们提出的节能措施既包括改善电机的电气性能.也包括解决运转的工艺问题.还包括污水厂产物中的能量回收(EnergyRecovery).曝气系统的能耗相当大.对曝气系统能耗能效的研究总是涉及到曝气设备的改造和革新.新型的曝气设备虽然层出不穷.但目前仍然可划分为2类:第1种是采用淹没式的多孔扩散头或空气喷嘴产生空气泡将氧气传递进水溶液的方法.第2种是采用机械方法搅动污水促使大气中的氧溶于水的方法.微孔曝气.曝气扩散头的布局和曝气系统的调节这些都是节能的有效措施.在传统活性污泥处理厂曝气池中辟出前端厌氧区.用淹没式搅拌器混合的节能.生物除磷方案.这一简单的改造可以节省近20%的曝气能耗.如果算上混合用能.节能也达到12%.自动控制系统的应用于污水处理节能.曝气系统进行阶段曝气.溶解氧存在浓度梯度.既减少了能耗.又可以改善处理效果.减少污泥量.生物膜法处理工艺采用厌氧处理可以明显降低能量的消耗.5.二次沉淀池二次沉淀池中对排泥设备的研究和排泥方式的改善是降低能耗的有效方法.6.污泥处理污泥处理系统节能研究主要集中于污泥处理的能量回收.从污水污泥有机污染物中回收能量用于处理过程早在上世纪初就已投入实践.但能源危机之前一直不受重视.目前有两种回收途径:一是污泥厌氧消化气利用.一是污泥焚烧热的利用.消化气性质稳定.易于贮存.它可通过内燃机或燃料电池转化为机械能或电能.废热还可回收于消化污泥加热.因此利用消化气能解决污水厂不同程度的能量自给问题.林荣忱等人比较了沼气发电机和燃料电池两种利用形式.认为燃料电池能量利用率高.具有很好的发展前途.对消化气的最大化利用是提高能效的主要方式.沼气发电机组并网发电的研究和应用在国内已有应用实例.是大型污水处理厂的沼气综合利用的可行途径.另外一种能量回收方式是将城市固体废物焚烧场建在污水处理厂旁.将固废与污水污泥一起焚烧.获得的电能用于处理厂的运转.城市污水处理的能耗分析研究与节能技术和手段的发展往往并不同步.由于污水处理能量平衡分析方法研究的欠缺.节能措施的制订和实施常常超前.而多数节能途径和手段常常由处理厂的操作管理人员结合各处理设施实际情况提出.具有经验性和个别性.不一定能适用于其他污水厂甚至是工艺相似的污水厂,另一方面.从广义上说.污水处理学科领域的技术创新.新材料和新设备的使用都蕴涵着节能增效的潜力.因而节能的途径和手段往往是很宽泛的.结论污水处理是能源密集(energy intensity)型的综合技术.一段时期以来.能耗大.运行费用高一定程度上阻碍了我国城市污水处理厂的建设.建成的一些处理厂也因能耗原因处于停产和半停产状态.在今后相当长的一段时期内.能耗问题将成为城市污水处理的瓶颈.能否解决耗污水厂的能耗问题.合理进行能源分配.已经成为决定污水处理厂运行效益好坏的关键因素.能耗是否较低.也是未来新的污水处理厂可行性分析的决定性因素.开发能效较高的污水处理技术.合理设计及运行污水处理厂.必将是未来污水处理厂设计和运行的必由之路. ? 污水处理厂的工作岗位 1.有哪些岗位?主要职能是负责污水泵站、污水处理、污泥处理的安全、正常运行,确保进厂的污水经处理后全部达标排放。
四十种污水处理工艺流程图[正文]I. 滤网工艺1. 静态微滤2. 动态微滤3. 布滤II. 活性污泥法1. 延流式活性污泥法a. 好氧活性污泥法b. 厌氧活性污泥法2. 离子交换法a. 离子交换膜法b. 离子交换树脂法III. 人工湿地法1. 垂直流人工湿地法2. 横向流人工湿地法3. 浮床人工湿地法IV. 气浮法1. 溶气浮法2. 静态浮法3. 组合气浮法V. 沉淀法1. 重力沉淀法2. 压力沉淀法3. 混凝沉淀法VI. 活性炭吸附法1. 粉状活性炭吸附法2. 颗粒活性炭吸附法VII. 膜分离法1. 微滤膜法2. 超滤膜法3. 逆渗透法VIII. 生物膜法1. 固定化微生物膜法2. 海洋水产养殖固氮除磷技术IX. 反渗透技术1. 脱盐反渗透技术2. 脱色反渗透技术X. 非氧化法1. 稳定沉淀酸化法2. 重金属吸附剂法XI. 混凝沉淀法1. 铁电解法2. 铝酸盐沉淀法XII. 高级氧化法1. 光催化氧化法2. 高级氧化过程产生致密沉淀法XIII. 高级沉淀法1. 活性胶体磁化处理法2. 活性氧化污泥处理法XIV. 核技术1. 光速电子束处理技术2. 离子等离子体束处理技术XV. 生物脱氮除磷工艺1. 厌氧/好氧法2. 边磨边反式除磷工艺XVI. 真菌/菌类处理法1. 白腐真菌处理法2. 褐腐真菌处理法XVII. 安氏外生菌处理法1. 纤毛虫-藻共培养法2. 枯草杆菌处理法XVIII. 冷冻法1. 冷冻沉淀法2. 冷冻融化法XIX. 偏析法1. 静态偏析法2. 动态偏析法XX. 气相吸附法1. 活性炭吸附法2. 活性氧化吸附法XXI. 单元操作1. 油脂分离技术2. 格栅操作技术3. 流态床菌膜技术附件:1. 附件A: 滤网工艺实施示意图2. 附件B: 活性污泥法工艺示意图3. 附件C: 人工湿地法处理流程图4. 附件D: 气浮法处理示意图5. 附件E: 沉淀法处理工艺流程图6. 附件F: 高级氧化法工艺示意图7. 附件G: 反渗透技术处理流程图8. 附件H: 生物脱氮除磷工艺图9. 附件I: 核技术处理工艺示意图[法律名词及注释]1. 危(wei)险废物:指对人体健康和环境造成危害的废物,其性质和数量超过国家和地方规定的排放标准和限制。
污水处理PID工艺流程图污水处理PID工艺流程图1. 概述本文档旨在详细描述污水处理的PID工艺流程图,以便更好地理解和实施污水处理工程。
2. 原水处理2.1 水源采集:收集来自各个水源的原水,并进行初步过滤。
2.2 原水储存:将初步过滤后的原水存储在储水池中,以便后续处理使用。
2.3 进一步过滤:使用过滤器进一步去除悬浮颗粒和微生物。
2.4 调节pH值:根据实际需要,在原水中加入化学药剂,以调节pH值。
3. 水处理过程3.1 混合反应器:将调节后的原水进入混合反应器,与混合剂混合,并加入絮凝剂来促使悬浮颗粒凝聚。
3.2 沉淀池:将混合反应器中的混合液流入沉淀池,在沉淀过程中,悬浮颗粒沉降到底部形成污泥。
3.3 综合氧化槽:将上一步中产生的清水从沉淀池取出,再进入综合氧化槽中进行生物处理。
3.4 次生沉淀池:从综合氧化槽中取出的水再经过次生沉淀池,以去除残余的悬浮颗粒。
3.5 过滤器:将次生沉淀池取出的水通过过滤器进一步去除微生物和悬浮颗粒。
3.6 消毒:为了杀灭水中可能存在的病原体,对过滤后的水进行消毒处理。
3.7 水质调节:根据最终使用要求,对消毒后的水进行pH值及其他参数的调节。
4. 污泥处理4.1 污泥浓缩:将沉淀池和次生沉淀池中的污泥经过压滤或离心等方式进行浓缩。
4.2 污泥脱水:对浓缩后的污泥进行脱水处理,以减少其体积。
4.3 污泥处理:脱水后的污泥可以进行干化、焚烧或用于土壤改良等处理方式。
5. 出水处理5.1 出水质量检测:对处理后的水进行质量检测,以确保达到排放标准。
5.2 出水回用:如果水质符合要求,可以考虑将处理后的水回用于工业生产或灌溉等领域。
附件:本文档涉及的附件包括PID工艺流程图、水质检测报告等相关文件,详见附件部分。
法律名词及注释:- 污水处理:根据国家相关法律法规对废水进行净化处理,以达到排放标准或回用要求的过程。
- PID工艺:Proportional-Integral-Derivative(比例-积分-微分)控制系统,用于控制工艺过程中的参数。
污水处理工艺流程图污水进入厂区先通过截流井(让厂能处理的污水进入厂区进行处理)进入粗格栅(打捞较大的渣滓)到污水泵(提升污水的高度)到细格栅(打捞较小的渣滓)到沉沙池(以重力分离为基础,将污水的比重较大的无机颗粒沉淀并排除)到生化池(采用活性污泥法去除污水里的BOD5、SS和以各种形式的氮或磷)进入终沉池(排除剩余污泥和回流污泥)进入D 型滤池(进一步减少SS,使出水达到国家一级标准)进入紫外线消毒(杀灭水中的大肠杆菌)然后出水生化池、终沉池出的污泥一部分作为生化池的回流污泥,剩下的送入污泥脱水间脱水外运主要有物理处理法,生化处理法和化学处理法,生化处理法经常被使用,主流处理方法主要看被处理水质和受纳水体情况,一般城市生活污水的主流处理方法为生化处理法,如活性污泥法,mbr 等方法。
污水处理sewage treatment.wastewater treatment 为使污水经过一定方法处理后.达到设定的某些标准.排入水体.排入某一水体或再次使用等的采取的某些措施或者方法等.现代污水处理技术.按处理程度划分.可分为一级.二级和三级处理.一级处理.主要去除污水中呈悬浮状态的固体污染物质.物理处理法大部分只能完成一级处理的要求.经过一级处理的污水.BOD一般可去除30%左右.达不到排放标准.一级处理属于二级处理的预处理.二级处理.主要去除污水中呈胶体和溶解状态的有机污染物质(BOD.COD物质).去除率可达90%以上.使有机污染物达到排放标准.三级处理.进一步处理难降解的有机物.氮和磷等能够导致水体富营养化的可溶性无机物等.主要方法有生物脱氮除磷法.混凝沉淀法.砂率法.活性炭吸附法.离子交换法和电渗分析法等.整个过程为通过粗格删的原污水经过污水提升泵提升后.经过格删或者筛率器.之后进入沉砂池.经过砂水分离的污水进入初次沉淀池.以上为一级处理(即物理处理).初沉池的出水进入生物处理设备.有活性污泥法和生物膜法.(其中活性污泥法的反应器有曝气池.氧化沟等.生物膜法包括生物滤池.生物转盘.生物接触氧化法和生物流化床).生物处理设备的出水进入二次沉淀池.二沉池的出水经过消毒排放或者进入三级处理.一级处理结束到此为二级处理.三级处理包括生物脱氮除磷法.混凝沉淀法.砂滤法.活性炭吸附法.离子交换法和电渗析法.二沉池的污泥一部分回流至初次沉淀池或者生物处理设备.一部分进入污泥浓缩池.之后进入污泥消化池.经过脱水和干燥设备后.污泥被最后利用.各个处理构筑物的能耗分析1.污水提升泵房进入污水处理厂的污水经过粗格删进入污水提升泵房.之后被污水泵提升至沉砂池的前池.水泵运行要消耗大量的能量.占污水厂运行总能耗相当大的比例.这与污水流量和要提升的扬程有关.2.沉砂池沉砂池的功能是去除比重较大的无机颗粒.沉砂池一般设于泵站前.倒虹管前.以便减轻无机颗粒对水泵.管道的磨损,也可设于初沉池前.以减轻沉淀池负荷及改善污泥处理构筑物的处理条件.常用的沉砂池有平流沉砂池.曝气沉砂池.多尔沉砂池和钟式沉砂池.沉砂池中需要能量供应的主要是砂水分离器和吸砂机.以及曝气沉砂池的曝气系统.多尔沉砂池和钟式沉砂池的动力系统.3.初次沉淀池初次沉淀池是一级污水处理厂的主题处理构筑物.或作为二级污水处理厂的预处理构筑物设在生物处理构筑物的前面.处理的对象是SS和部分BOD5.可改善生物处理构筑物的运行条件并降低其BOD5负荷.初沉池包括平流沉淀池.辐流沉淀池和竖流沉淀池.初沉池的主要能耗设备是排泥装置.比如链带式刮泥机.刮泥撇渣机.吸泥泵等.但由于排泥周期的影响.初沉池的能耗是比较低的.4.生物处理构筑物污水生物处理单元过程耗能量要占污水厂直接能耗相当大的比例.它和污泥处理的单元过程耗能量之和占污水厂直接能耗的60%以上.活性污泥法的曝气系统的曝气要消耗大量的电能.其基本上是联系运行的.且功率较大.否则达不到较好的曝气效果.处理效果也不好.氧化沟处理工艺安装的曝气机也是能耗很大的设备.生物膜法处理设备和活性污泥法相比能耗较低.但目前应用较少.是以后需要大力推广的处理工艺.5.二次沉淀池二次沉淀池的能力消耗主要是在污泥的抽吸和污水表明漂浮物的去除上.能耗比较低.6.污泥处理污泥处理工艺中的浓缩池.污泥脱水.干燥都要消耗大量的电能.污泥处理单元的能量消耗是相当大的.这些设备的电耗功率都很大.针对各个处理构筑物的节能途径1.污水提升泵房污水提升泵房要节省能耗.主要是考虑污水提升泵如何进行电能节约.正确科学的选泵.让水泵工作在高效段是有效的手段.合理利用地形.减少污水的提升高度来降低水泵轴功率N也是有效的办法.定期对水泵进行维护.减少摩擦也可以降低电耗.2.沉砂池采用平流沉砂.避免采用需要动力设备的沉砂池.如平流沉砂池.采用重力排砂.避免使用机械排砂.这些措施都可大大节省能耗.3.初次沉淀池初次沉淀池的能耗较低.主要能量消耗在排泥设备上.采用静水压力法无疑会明显降低能量的消耗.4.生物处理构筑物国外的学者通过能耗和费用效益分析比较了生物处理工艺流程.他们认为处理设施大部分的能量消耗是发生在电机这类单一的设备上.因而节能应从提高全厂功率因数.选择高效机电设备及减少高峰用电要求等方面入手.他们提出的节能措施既包括改善电机的电气性能.也包括解决运转的工艺问题.还包括污水厂产物中的能量回收(EnergyRecovery).曝气系统的能耗相当大.对曝气系统能耗能效的研究总是涉及到曝气设备的改造和革新.新型的曝气设备虽然层出不穷.但目前仍然可划分为2类:第1种是采用淹没式的多孔扩散头或空气喷嘴产生空气泡将氧气传递进水溶液的方法.第2种是采用机械方法搅动污水促使大气中的氧溶于水的方法.微孔曝气.曝气扩散头的布局和曝气系统的调节这些都是节能的有效措施.在传统活性污泥处理厂曝气池中辟出前端厌氧区.用淹没式搅拌器混合的节能.生物除磷方案.这一简单的改造可以节省近20%的曝气能耗.如果算上混合用能.节能也达到12%.自动控制系统的应用于污水处理节能.曝气系统进行阶段曝气.溶解氧存在浓度梯度.既减少了能耗.又可以改善处理效果.减少污泥量.生物膜法处理工艺采用厌氧处理可以明显降低能量的消耗.5.二次沉淀池二次沉淀池中对排泥设备的研究和排泥方式的改善是降低能耗的有效方法.6.污泥处理污泥处理系统节能研究主要集中于污泥处理的能量回收.从污水污泥有机污染物中回收能量用于处理过程早在上世纪初就已投入实践.但能源危机之前一直不受重视.目前有两种回收途径:一是污泥厌氧消化气利用.一是污泥焚烧热的利用.消化气性质稳定.易于贮存.它可通过燃机或燃料电池转化为机械能或电能.废热还可回收于消化污泥加热.因此利用消化气能解决污水厂不同程度的能量自给问题.林荣忱等人比较了沼气发电机和燃料电池两种利用形式.认为燃料电池能量利用率高.具有很好的发展前途.对消化气的最大化利用是提高能效的主要方式.沼气发电机组并网发电的研究和应用在国已有应用实例.是大型污水处理厂的沼气综合利用的可行途径.另外一种能量回收方式是将城市固体废物焚烧场建在污水处理厂旁.将固废与污水污泥一起焚烧.获得的电能用于处理厂的运转.城市污水处理的能耗分析研究与节能技术和手段的发展往往并不同步.由于污水处理能量平衡分析方法研究的欠缺.节能措施的制订和实施常常超前.而多数节能途径和手段常常由处理厂的操作管理人员结合各处理设施实际情况提出.具有经验性和个别性.不一定能适用于其他污水厂甚至是工艺相似的污水厂,另一方面.从广义上说.污水处理学科领域的技术创新.新材料和新设备的使用都蕴涵着节能增效的潜力.因而节能的途径和手段往往是很宽泛的. 结论污水处理是能源密集(energy intensity)型的综合技术.一段时期以来.能耗大.运行费用高一定程度上阻碍了我国城市污水处理厂的建设.建成的一些处理厂也因能耗原因处于停产和半停产状态.在今后相当长的一段时期.能耗问题将成为城市污水处理的瓶颈.能否解决耗污水厂的能耗问题.合理进行能源分配.已经成为决定污水处理厂运行效益好坏的关键因素.能耗是否较低.也是未来新的污水处理厂可行性分析的决定性因素.开发能效较高的污水处理技术.合理设计及运行污水处理厂.必将是未来污水处理厂设计和运行的必由之路.?污水处理厂的工作岗位1.有哪些岗位?主要职能是负责污水泵站、污水处理、污泥处理的安全、正常运行,确保进厂的污水经处理后全部达标排放。
污水处理工艺流程图污水进入厂区先通过截流井(让厂能处理的污水进入厂区进行处理)进入粗格栅(打捞较大的渣滓)到污水泵(提升污水的高度)到细格栅(打捞较小的渣滓)到沉沙池(以重力分离为基础,将污水的比重较大的无机颗粒沉淀并排除)到生化池(采用活性污泥法去除污水里的BOD5、SS和以各种形式的氮或磷)进入终沉池(排除剩余污泥和回流污泥)进入D 型滤池(进一步减少SS,使出水达到国家一级标准)进入紫外线消毒(杀灭水中的大肠杆菌)然后出水生化池、终沉池出的污泥一部分作为生化池的回流污泥,剩下的送入污泥脱水间脱水外运主要有物理处理法,生化处理法和化学处理法,生化处理法经常被使用,主流处理方法主要看被处理水质和受纳水体情况,一般城市生活污水的主流处理方法为生化处理法,如活性污泥法,mbr 等方法。
污水处理sewage treatment.wastewater treatment 为使污水经过一定方法处理后.达到设定的某些标准.排入水体.排入某一水体或再次使用等的采取的某些措施或者方法等.现代污水处理技术.按处理程度划分.可分为一级.二级和三级处理.一级处理.主要去除污水中呈悬浮状态的固体污染物质.物理处理法大部分只能完成一级处理的要求.经过一级处理的污水.BOD一般可去除30%左右.达不到排放标准.一级处理属于二级处理的预处理.二级处理.主要去除污水中呈胶体和溶解状态的有机污染物质(BOD.COD物质).去除率可达90%以上.使有机污染物达到排放标准.三级处理.进一步处理难降解的有机物.氮和磷等能够导致水体富营养化的可溶性无机物等.主要方法有生物脱氮除磷法.混凝沉淀法.砂率法.活性炭吸附法.离子交换法和电渗分析法等.整个过程为通过粗格删的原污水经过污水提升泵提升后.经过格删或者筛率器.之后进入沉砂池.经过砂水分离的污水进入初次沉淀池.以上为一级处理(即物理处理).初沉池的出水进入生物处理设备.有活性污泥法和生物膜法.(其中活性污泥法的反应器有曝气池.氧化沟等.生物膜法包括生物滤池.生物转盘.生物接触氧化法和生物流化床).生物处理设备的出水进入二次沉淀池.二沉池的出水经过消毒排放或者进入三级处理.一级处理结束到此为二级处理.三级处理包括生物脱氮除磷法.混凝沉淀法.砂滤法.活性炭吸附法.离子交换法和电渗析法.二沉池的污泥一部分回流至初次沉淀池或者生物处理设备.一部分进入污泥浓缩池.之后进入污泥消化池.经过脱水和干燥设备后.污泥被最后利用.各个处理构筑物的能耗分析1.污水提升泵房进入污水处理厂的污水经过粗格删进入污水提升泵房.之后被污水泵提升至沉砂池的前池.水泵运行要消耗大量的能量.占污水厂运行总能耗相当大的比例.这与污水流量和要提升的扬程有关.2.沉砂池沉砂池的功能是去除比重较大的无机颗粒.沉砂池一般设于泵站前.倒虹管前.以便减轻无机颗粒对水泵.管道的磨损,也可设于初沉池前.以减轻沉淀池负荷及改善污泥处理构筑物的处理条件.常用的沉砂池有平流沉砂池.曝气沉砂池.多尔沉砂池和钟式沉砂池.沉砂池中需要能量供应的主要是砂水分离器和吸砂机.以及曝气沉砂池的曝气系统.多尔沉砂池和钟式沉砂池的动力系统.3.初次沉淀池初次沉淀池是一级污水处理厂的主题处理构筑物.或作为二级污水处理厂的预处理构筑物设在生物处理构筑物的前面.处理的对象是SS和部分BOD5.可改善生物处理构筑物的运行条件并降低其BOD5负荷.初沉池包括平流沉淀池.辐流沉淀池和竖流沉淀池.初沉池的主要能耗设备是排泥装置.比如链带式刮泥机.刮泥撇渣机.吸泥泵等.但由于排泥周期的影响.初沉池的能耗是比较低的.4.生物处理构筑物污水生物处理单元过程耗能量要占污水厂直接能耗相当大的比例.它和污泥处理的单元过程耗能量之和占污水厂直接能耗的60%以上.活性污泥法的曝气系统的曝气要消耗大量的电能.其基本上是联系运行的.且功率较大.否则达不到较好的曝气效果.处理效果也不好.氧化沟处理工艺安装的曝气机也是能耗很大的设备.生物膜法处理设备和活性污泥法相比能耗较低.但目前应用较少.是以后需要大力推广的处理工艺.5.二次沉淀池二次沉淀池的能力消耗主要是在污泥的抽吸和污水表明漂浮物的去除上.能耗比较低.6.污泥处理污泥处理工艺中的浓缩池.污泥脱水.干燥都要消耗大量的电能.污泥处理单元的能量消耗是相当大的.这些设备的电耗功率都很大.针对各个处理构筑物的节能途径1.污水提升泵房污水提升泵房要节省能耗.主要是考虑污水提升泵如何进行电能节约.正确科学的选泵.让水泵工作在高效段是有效的手段.合理利用地形.减少污水的提升高度来降低水泵轴功率N也是有效的办法.定期对水泵进行维护.减少摩擦也可以降低电耗.2.沉砂池采用平流沉砂.避免采用需要动力设备的沉砂池.如平流沉砂池.采用重力排砂.避免使用机械排砂.这些措施都可大大节省能耗.3.初次沉淀池初次沉淀池的能耗较低.主要能量消耗在排泥设备上.采用静水压力法无疑会明显降低能量的消耗.4.生物处理构筑物国外的学者通过能耗和费用效益分析比较了生物处理工艺流程.他们认为处理设施大部分的能量消耗是发生在电机这类单一的设备上.因而节能应从提高全厂功率因数.选择高效机电设备及减少高峰用电要求等方面入手.他们提出的节能措施既包括改善电机的电气性能.也包括解决运转的工艺问题.还包括污水厂产物中的能量回收(EnergyRecovery).曝气系统的能耗相当大.对曝气系统能耗能效的研究总是涉及到曝气设备的改造和革新.新型的曝气设备虽然层出不穷.但目前仍然可划分为2类:第1种是采用淹没式的多孔扩散头或空气喷嘴产生空气泡将氧气传递进水溶液的方法.第2种是采用机械方法搅动污水促使大气中的氧溶于水的方法.微孔曝气.曝气扩散头的布局和曝气系统的调节这些都是节能的有效措施.在传统活性污泥处理厂曝气池中辟出前端厌氧区.用淹没式搅拌器混合的节能.生物除磷方案.这一简单的改造可以节省近20%的曝气能耗.如果算上混合用能.节能也达到12%.自动控制系统的应用于污水处理节能.曝气系统进行阶段曝气.溶解氧存在浓度梯度.既减少了能耗.又可以改善处理效果.减少污泥量.生物膜法处理工艺采用厌氧处理可以明显降低能量的消耗.5.二次沉淀池二次沉淀池中对排泥设备的研究和排泥方式的改善是降低能耗的有效方法.6.污泥处理污泥处理系统节能研究主要集中于污泥处理的能量回收.从污水污泥有机污染物中回收能量用于处理过程早在上世纪初就已投入实践.但能源危机之前一直不受重视.目前有两种回收途径:一是污泥厌氧消化气利用.一是污泥焚烧热的利用.消化气性质稳定.易于贮存.它可通过内燃机或燃料电池转化为机械能或电能.废热还可回收于消化污泥加热.因此利用消化气能解决污水厂不同程度的能量自给问题.林荣忱等人比较了沼气发电机和燃料电池两种利用形式.认为燃料电池能量利用率高.具有很好的发展前途.对消化气的最大化利用是提高能效的主要方式.沼气发电机组并网发电的研究和应用在国内已有应用实例.是大型污水处理厂的沼气综合利用的可行途径.另外一种能量回收方式是将城市固体废物焚烧场建在污水处理厂旁.将固废与污水污泥一起焚烧.获得的电能用于处理厂的运转.城市污水处理的能耗分析研究与节能技术和手段的发展往往并不同步.由于污水处理能量平衡分析方法研究的欠缺.节能措施的制订和实施常常超前.而多数节能途径和手段常常由处理厂的操作管理人员结合各处理设施实际情况提出.具有经验性和个别性.不一定能适用于其他污水厂甚至是工艺相似的污水厂,另一方面.从广义上说.污水处理学科领域的技术创新.新材料和新设备的使用都蕴涵着节能增效的潜力.因而节能的途径和手段往往是很宽泛的. 结论污水处理是能源密集(energy intensity)型的综合技术.一段时期以来.能耗大.运行费用高一定程度上阻碍了我国城市污水处理厂的建设.建成的一些处理厂也因能耗原因处于停产和半停产状态.在今后相当长的一段时期内.能耗问题将成为城市污水处理的瓶颈.能否解决耗污水厂的能耗问题.合理进行能源分配.已经成为决定污水处理厂运行效益好坏的关键因素.能耗是否较低.也是未来新的污水处理厂可行性分析的决定性因素.开发能效较高的污水处理技术.合理设计及运行污水处理厂.必将是未来污水处理厂设计和运行的必由之路.?污水处理厂的工作岗位1.有哪些岗位?主要职能是负责污水泵站、污水处理、污泥处理的安全、正常运行,确保进厂的污水经处理后全部达标排放。
污水处理工艺流程图污水进入厂区先通过截流井(让厂能处理的污水进入厂区进行处理)进入粗格栅(打捞较大的渣滓)到污水泵(提升污水的高度)到细格栅(打捞较小的渣滓)到沉沙池(以重力分离为基础,将污水的比重较大的无机颗粒沉淀并排除)到生化池(采用活性污泥法去除污水里的BOD5、SS和以各种形式的氮或磷)进入终沉池(排除剩余污泥和回流污泥)进入D型滤池(进一步减少SS,使出水达到国家一级标准)进入紫外线消毒(杀灭水中的大肠杆菌)然后出水生化池、终沉池出的污泥一部分作为生化池的回流污泥,剩下的送入污泥脱水间脱水外运主要有物理处理法,生化处理法和化学处理法,生化处理法经常被使用,主流处理方法主要看被处理水质和受纳水体情况,一般城市生活污水的主流处理方法为生化处理法,如活性污泥法,mbr 等方法。
污水处理sewage treatment.wastewater treatment 为使污水经过一定方法处理后.达到设定的某些标准.排入水体.排入某一水体或再次使用等的采取的某些措施或者方法等.现代污水处理技术.按处理程度划分.可分为一级.二级和三级处理.一级处理.主要去除污水中呈悬浮状态的固体污染物质.物理处理法大部分只能完成一级处理的要求.经过一级处理的污水.BOD一般可去除30%左右.达不到排放标准.一级处理属于二级处理的预处理.二级处理.主要去除污水中呈胶体和溶解状态的有机污染物质(BOD.COD物质).去除率可达90%以上.使有机污染物达到排放标准.三级处理.进一步处理难降解的有机物.氮和磷等能够导致水体富营养化的可溶性无机物等.主要方法有生物脱氮除磷法.混凝沉淀法.砂率法.活性炭吸附法.离子交换法和电渗分析法等. 整个过程为通过粗格删的原污水经过污水提升泵提升后.经过格删或者筛率器.之后进入沉砂池.经过砂水分离的污水进入初次沉淀池.以上为一级处理(即物理处理).初沉池的出水进入生物处理设备.有活性污泥法和生物膜法.(其中活性污泥法的反应器有曝气池.氧化沟等.生物膜法包括生物滤池.生物转盘.生物接触氧化法和生物流化床).生物处理设备的出水进入二次沉淀池.二沉池的出水经过消毒排放或者进入三级处理.一级处理结束到此为二级处理.三级处理包括生物脱氮除磷法.混凝沉淀法.砂滤法.活性炭吸附法.离子交换法和电渗析法.二沉池的污泥一部分回流至初次沉淀池或者生物处理设备.一部分进入污泥浓缩池.之后进入污泥消化池.经过脱水和干燥设备后.污泥被最后利用.各个处理构筑物的能耗分析1.污水提升泵房进入污水处理厂的污水经过粗格删进入污水提升泵房.之后被污水泵提升至沉砂池的前池.水泵运行要消耗大量的能量.占污水厂运行总能耗相当大的比例.这与污水流量和要提升的扬程有关.2.沉砂池沉砂池的功能是去除比重较大的无机颗粒.沉砂池一般设于泵站前.倒虹管前.以便减轻无机颗粒对水泵.管道的磨损,也可设于初沉池前.以减轻沉淀池负荷及改善污泥处理构筑物的处理条件.常用的沉砂池有平流沉砂池.曝气沉砂池.多尔沉砂池和钟式沉砂池.沉砂池中需要能量供应的主要是砂水分离器和吸砂机.以及曝气沉砂池的曝气系统.多尔沉砂池和钟式沉砂池的动力系统.3.初次沉淀池初次沉淀池是一级污水处理厂的主题处理构筑物.或作为二级污水处理厂的预处理构筑物设在生物处理构筑物的前面.处理的对象是SS和部分BOD5.可改善生物处理构筑物的运行条件并降低其BOD5负荷.初沉池包括平流沉淀池.辐流沉淀池和竖流沉淀池.初沉池的主要能耗设备是排泥装置.比如链带式刮泥机.刮泥撇渣机.吸泥泵等.但由于排泥周期的影响.初沉池的能耗是比较低的.4.生物处理构筑物污水生物处理单元过程耗能量要占污水厂直接能耗相当大的比例.它和污泥处理的单元过程耗能量之和占污水厂直接能耗的60%以上.活性污泥法的曝气系统的曝气要消耗大量的电能.其基本上是联系运行的.且功率较大.否则达不到较好的曝气效果.处理效果也不好.氧化沟处理工艺安装的曝气机也是能耗很大的设备.生物膜法处理设备和活性污泥法相比能耗较低.但目前应用较少.是以后需要大力推广的处理工艺.5.二次沉淀池二次沉淀池的能力消耗主要是在污泥的抽吸和污水表明漂浮物的去除上.能耗比较低.6.污泥处理污泥处理工艺中的浓缩池.污泥脱水.干燥都要消耗大量的电能.污泥处理单元的能量消耗是相当大的.这些设备的电耗功率都很大.针对各个处理构筑物的节能途径1.污水提升泵房污水提升泵房要节省能耗.主要是考虑污水提升泵如何进行电能节约.正确科学的选泵.让水泵工作在高效段是有效的手段.合理利用地形.减少污水的提升高度来降低水泵轴功率N也是有效的办法.定期对水泵进行维护.减少摩擦也可以降低电耗.2.沉砂池采用平流沉砂.避免采用需要动力设备的沉砂池.如平流沉砂池.采用重力排砂.避免使用机械排砂.这些措施都可大大节省能耗.3.初次沉淀池初次沉淀池的能耗较低.主要能量消耗在排泥设备上.采用静水压力法无疑会明显降低能量的消耗.4.生物处理构筑物国外的学者通过能耗和费用效益分析比较了生物处理工艺流程.他们认为处理设施大部分的能量消耗是发生在电机这类单一的设备上.因而节能应从提高全厂功率因数.选择高效机电设备及减少高峰用电要求等方面入手.他们提出的节能措施既包括改善电机的电气性能.也包括解决运转的工艺问题.还包括污水厂产物中的能量回收(EnergyRecovery).曝气系统的能耗相当大.对曝气系统能耗能效的研究总是涉及到曝气设备的改造和革新.新型的曝气设备虽然层出不穷.但目前仍然可划分为2类:第1种是采用淹没式的多孔扩散头或空气喷嘴产生空气泡将氧气传递进水溶液的方法.第2种是采用机械方法搅动污水促使大气中的氧溶于水的方法.微孔曝气.曝气扩散头的布局和曝气系统的调节这些都是节能的有效措施.在传统活性污泥处理厂曝气池中辟出前端厌氧区.用淹没式搅拌器混合的节能.生物除磷方案.这一简单的改造可以节省近20%的曝气能耗.如果算上混合用能.节能也达到12%.自动控制系统的应用于污水处理节能.曝气系统进行阶段曝气.溶解氧存在浓度梯度.既减少了能耗.又可以改善处理效果.减少污泥量.生物膜法处理工艺采用厌氧处理可以明显降低能量的消耗.5.二次沉淀池二次沉淀池中对排泥设备的研究和排泥方式的改善是降低能耗的有效方法.6.污泥处理污泥处理系统节能研究主要集中于污泥处理的能量回收.从污水污泥有机污染物中回收能量用于处理过程早在上世纪初就已投入实践.但能源危机之前一直不受重视.目前有两种回收途径:一是污泥厌氧消化气利用.一是污泥焚烧热的利用.消化气性质稳定.易于贮存.它可通过内燃机或燃料电池转化为机械能或电能.废热还可回收于消化污泥加热.因此利用消化气能解决污水厂不同程度的能量自给问题.林荣忱等人比较了沼气发电机和燃料电池两种利用形式.认为燃料电池能量利用率高.具有很好的发展前途.对消化气的最大化利用是提高能效的主要方式.沼气发电机组并网发电的研究和应用在国内已有应用实例.是大型污水处理厂的沼气综合利用的可行途径.另外一种能量回收方式是将城市固体废物焚烧场建在污水处理厂旁.将固废与污水污泥一起焚烧.获得的电能用于处理厂的运转.城市污水处理的能耗分析研究与节能技术和手段的发展往往并不同步.由于污水处理能量平衡分析方法研究的欠缺.节能措施的制订和实施常常超前.而多数节能途径和手段常常由处理厂的操作管理人员结合各处理设施实际情况提出.具有经验性和个别性.不一定能适用于其他污水厂甚至是工艺相似的污水厂,另一方面.从广义上说.污水处理学科领域的技术创新.新材料和新设备的使用都蕴涵着节能增效的潜力.因而节能的途径和手段往往是很宽泛的.结论污水处理是能源密集(energy intensity)型的综合技术.一段时期以来.能耗大.运行费用高一定程度上阻碍了我国城市污水处理厂的建设.建成的一些处理厂也因能耗原因处于停产和半停产状态.在今后相当长的一段时期内.能耗问题将成为城市污水处理的瓶颈.能否解决耗污水厂的能耗问题.合理进行能源分配.已经成为决定污水处理厂运行效益好坏的关键因素.能耗是否较低.也是未来新的污水处理厂可行性分析的决定性因素.开发能效较高的污水处理技术.合理设计及运行污水处理厂.必将是未来污水处理厂设计和运行的必由之路.?污水处理厂的工作岗位1.有哪些岗位?主要职能是负责污水泵站、污水处理、污泥处理的安全、正常运行,确保进厂的污水经处理后全部达标排放。
污水处理系统工艺流程图污水处理系统工艺流程图是用于描述污水处理过程中各个工艺单元之间的流程和关联关系的图表。
它能清晰地展示污水处理系统的整体结构和工艺流程,帮助工程师和操作人员了解污水处理过程中各个环节的处理方式和效果。
一、污水处理系统工艺流程图的基本要素1. 工艺单元:污水处理系统通常包括预处理、初级处理、中级处理和高级处理等多个工艺单元。
每个工艺单元都有特定的功能和处理效果。
2. 连接线:连接线表示各个工艺单元之间的流程关系,用于展示污水的流动路径。
3. 处理设备:工艺单元中涉及到的处理设备,如格栅、沉砂池、曝气池、沉淀池、生物反应器等。
4. 控制装置:污水处理系统中的控制装置,如自动控制系统、监测仪器等。
5. 污泥处理:污水处理过程中产生的污泥需要进行处理,包括浓缩、脱水、干化等环节。
二、污水处理系统工艺流程图的绘制步骤1. 确定系统的处理规模和要求:根据实际情况确定污水处理系统的处理规模和要求,包括处理能力、出水水质要求等。
2. 制定工艺流程:根据处理要求和现有技术,制定适合的工艺流程,包括预处理、初级处理、中级处理和高级处理等工艺单元。
3. 绘制主要工艺流程图:将各个工艺单元按照处理顺序绘制在图纸上,并用连接线表示各个工艺单元之间的流程关系。
4. 添加处理设备和控制装置:在工艺流程图中添加各个工艺单元所涉及的处理设备和控制装置,如格栅、泵站、调节池、曝气池、污泥浓缩装置等。
5. 标注参数和数据:在工艺流程图中标注各个工艺单元的参数和数据,如流量、浓度、出水水质等。
6. 补充污泥处理部分:在工艺流程图中添加污泥处理部分,包括污泥浓缩、脱水、干化等环节。
7. 完善控制装置:在工艺流程图中完善控制装置,如自动控制系统、监测仪器等。
8. 优化和调整:根据实际情况对工艺流程图进行优化和调整,确保系统的稳定运行和处理效果。
三、污水处理系统工艺流程图的应用1. 工程设计:污水处理系统工艺流程图是工程设计的重要依据,能够帮助工程师确定系统的处理工艺和设备选型。