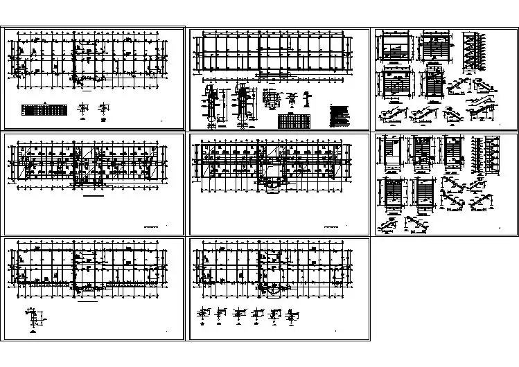
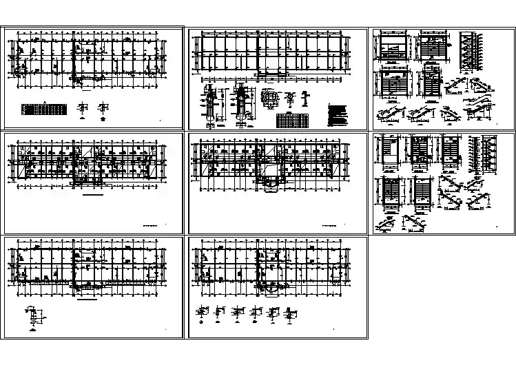
详1#楼梯大样图、楼面梁、挑梁、屋面支座处预空板板缝应放18构造负筋,每边伸出净长1/4LO,板缝内应放18,灌C15细石混凝土捣实。现浇屋面上、下表面沿纵横两个方向应配置温度收缩钢筋,其架立筋为6@300。6@150应先砌墙后浇混凝土柱,马牙搓宜从每层柱脚开始,先退后进,以保证柱脚有较大的混凝土断面。,应按照现行国家有关规范与规程之规定施工。2222222五、砌体工程:六、本说明未详尽之处的混凝土保护层厚度为30mm。22、独立柱、构造柱与砌体连结面沿高度每隔500放拉筋伸入柱内200,每边伸入墙体1000长,施工时26132、楼面恒荷载标准值:现浇厕所为5.0KN/m,现浇板为4.2KN/m,现浇楼梯板为6.5KN/m。楼面活荷载标准值:楼梯为2.5KN/m,走道为2.5KN/m,其余为2.0KN/m。3、屋面恒荷载标准值为6.5KN/m不上人屋面活荷载标准值为0.5KN/m4、受力钢筋的混凝土保护层厚度一类环境:板为15mm,梁为25mm,柱为30mm;二类环境(厨房、卫生间、厕所、屋面等):板为20mm,梁为30mm,柱为30mm;基础中受力钢筋的混凝土保护层厚度为50mm,基础圈梁受力钢筋5、纵向受拉钢筋的最小锚固长度见10G101-1P53页。纵向受拉钢筋绑扎搭接长度Ll=1.4La,且不得小于300mm,其搭接接头面积百分率不超过50% ,梁柱箍筋的弯钩应弯成135度,弯钩平直长度为10d。6、纵向受力钢筋的替代原则:当需要以强度等级高的钢筋替代原设计中的纵向受力钢筋时,应按照钢筋受拉承载力设计值相等的原则换算,并应满足正常使用阶段的挠度和裂缝宽度验算等要求。7、应严格按建筑施工规范的要求做好混凝土养护工作,并应按施工规范要求控制拆模时间,悬挑构件应待混凝土强度达到100%后再拆模,其余构件未作特别规定时应待混凝土强度达到80%以上方可拆模。8、上下水管道及设备孔洞必须按各专业施