2016年全国职业院校技能大赛建筑CAD识图试卷带答案
- 格式:pdf
- 大小:914.84 KB
- 文档页数:15
2016年全国职业院校技能大赛中职组建筑CAD赛项“建筑施工图识图与理论”环节试题共50题,其中建筑识图25题,每题0.8分;房建理论25题,每题0.4分,总分30分,时间50分钟。
1.根据所给构件正立面图和左侧立面图,选择正确的平面图。
()2.根据所给构件左侧立面图和平面图,选择正确的正立面图。
()3.根据所给构件正立面图和左侧立面图,选择正确的平面图。
( )4.根据所给1-1、3-3剖面图,选择正确的2-2剖面图。
( )5.已知某构件的平面图,请选择1-1剖面图正确的一项。
()6.已知某构件的平面图和正立面图,请选择正确的A向局剖视图。
()7.已知某构件的正立面和左侧立面图,请选择正确的1-1断面图。
( )8.图中关于建筑物入口朝向说法正确的是()。
A.朝东B.朝西C.朝南D.朝北9.图中为某办公楼的檐沟详图,本图详图符号表示内容为:()。
A.详图在编号为3号的施工图上B.详图在编号为5号的施工图上C.被索引的图纸在编号为3号的施工图上D.被索引的图纸在编号为5号的施工图上10、图示为石材幕墙干挂龙骨的断面,请选择石材、角钢、柱子材料图例表示均正确的选项。
()11. 新旧建筑埋深不合理的是()。
12.地下室防水中防水层需高出最高地下水位()mm。
13.图中哪一项注写错误?()14. 下列图示墙身水平及垂直防潮层位置做法错误的是( )。
15. 下列为单向板的是()。
A.①②③⑥⑦ B.①②③⑥ C.①②③ D.②③16. 图示木地面的构造方式为()。
A.空铺式 B.实铺式 C.粘贴式 D.拼装式17. 下图所示楼地面,面层做法和图最匹配的是()。
A.水磨石面层 B.细石混凝土面层 C.缸砖面层 D.木地板面层18. 图示为某住宅自行车坡道详图,请选择坡道长度L正确的选项。
()A. 6500mmB. 4500mmC. 4000mmD. 3500mm19. 下图中楼梯栏杆高度表达正确的选项是()。
2016年全国职业院校技能大赛中职组建筑CAD赛项“建筑施工图绘图”环节任务书竞赛须知1.本竞赛环节总分100分,竞赛时间210分钟。
2.竞赛过程中,所需素材文件均已经放在操作系统桌面的文件夹中,文件夹名称为“建筑CAD 素材”。
3.文件夹命名要求:在D盘根目录下,创建参赛选手文件夹,文件夹以“赛场号+赛位号”命名,如参赛选手赛场号为“1”、赛位号为“1”,则创建文件夹的具体名称为“101”(小于10的“赛位号”,中间加“0”);若“赛位号”为“10”,则文件夹的名称为“110”。
4.本次竞赛所有任务的完成结果必须保存在上述文件夹中,如“D:\101”或“D:\110”,否则以未做任务处理。
5.文件命名要求:必须按各任务要求正确命名文件名称,不符上述要求的,其内容不能作为比赛正式结果,不作为评分依据。
6.在规定时间内完成即可,提前完成竞赛任务不加分。
7.为减少因突发情况造成的损失,竞赛过程中请选手注意手动保存竞赛结果,也可自行设置软件自动保存的时间(建议每5~10分钟保存一次)。
8.遇到意外情况,应及时向裁判报告,听从裁判安排,不要自行处理。
经现场裁判及技术支持人员鉴定,非人为原因造成的电脑及软件死机,加时不超过10分钟。
所加时间从选手提出报告开始计时。
9.选手在提交竞赛结果前,务必检查文件夹和文件的名称是否正确,赛场提供的所有纸质材料不得带出赛场,离开赛场时不要关闭电脑。
10.不能在上交文件中明示或暗示选手身份,不得有雷同卷,否则按作弊处理。
任务一:设置绘图环境(10分)1.设置文字样式设置2种文字样式,分别用于“汉字”和“数字与英文字母”的注释,所有字体均为直字体,宽度因子为 0.7。
(1)用于“汉字”文字样式命名为“HZ”,字体名选择“仿宋”,语言为“CHINESE_GB2312”。
(2)用于“数字与英文字母”文字样式命名为“XT”,字体名选择“Simplex”,大字体选择“HZTXT”。
2016年全国职业院校技能大赛中职组建筑CAD赛项“建筑施工图识图与理论”环节试题1.根据所给构件正立面图和平面图,选择正确的左侧立面图。
()2.根据所给构件正立面图和左侧立面图,选择正确的平面图。
()3.根据所给构件正立面图和左侧立面图,选择正确的平面图。
()4.根据所给1-1、3-3剖面图,选择正确的2-2剖面图。
()5.已知某构件的平面图和正立面图,选择正确的1-1剖面图。
()6.已知某构件的正立面图与左侧立面图,选择正确的平面镜像图。
()7.钢筋混凝土翼墙平面图,选择正确的1-1断面图。
()8.以下哪个符号为室外总平面图的标高符号?()9.如图下图所示,墙体线宽为1,图中e处线宽应为。
()10.下列图例表示建筑材料是石膏板的?()11.如图所示基础埋置深度正确的为()。
12.如图所示地下室采光井构造尺寸正确的为()。
13.请选择附加圈梁构造要求正确的一项。
( )A. L≥h且 L≥800 mmB. L≥h且 L≥1000mmC. L≥2h且 L≥800 mmD. L≥2h且 L≥1000 mm14.水平防潮层作法不正确的是()。
15.请选择地面垫层留缝不正确的选项。
()16.请选择水磨石楼面图示正确的选项。
()17.以下板端处理合理的是()。
18.下图为某建筑第五层楼梯间,其中门的设置有误的选项是()。
19.某高层建筑剪刀楼梯平面图如下,请选择梯段与平台宽度均符合规范的一项。
()20.已知楼梯平面图,请选择楼梯剖面图B-B正确的一项。
()21.构件式遮阳是结合窗过梁等构件,在窗前设置遮阳板进行遮阳。
在我国海南省的夏季,房屋正南向窗遮阳形式宜采用()。
A.①③B.②③C.③④D. ①②22.木窗框与墙缝的构造处理符合要求的一项是()。
23.下列屋面构造属于倒置式屋面的是()。
A.①③B. ①④C.②③D.②④24.下图中属于坡屋面有组织封檐构造是()。
25.防火间距合理的是()。
26.当地基持力层比较软弱或部分地基有一定厚度的软弱土层时,我们常采用哪种方法来加固地基?()A.压实法 B.打桩法 C.换土法 D.机械压实法27.当地基条件较好,基础埋置深度较浅,且为砖混结构的建筑的基础多采用()。
2016年全国职业院校技能大赛中职组建筑CAD赛项“建筑施工图识图与理论”环节试题1.根据所给构件正立面图和左侧立面图,选择正确的平面图。
()2.根据所给构件的左侧立面图和平面图,选择正确的正立面图。
()3.根据所给构件正立面图和左侧立面图,选择正确的平面图。
()4.已知某构件的平面图,请选择正确的2-2剖面图。
()5.已知某构件的平面图,请选择1-1剖面图正确的一项。
()6.已知某构件的正立面图与左侧立面图,请选择正确的平面镜像图。
()7.根据现浇板的正立面图,请选择平面图上作出的重合断面图正确的选项。
()8.请选择总平面图中尺寸标注正确的选项:。
()9.如图下图所示,墙体线宽为1,图中e处线宽应为。
()10.下列图例在总图中表示坑槽正确的一项。
()11. 新旧建筑埋深不合理的是()。
12.图中地下室卷材防水构造正确的是()。
13. 图中所示玻璃幕墙形式为()。
A.露框玻璃幕墙B.隐框玻璃幕墙C.半隐框式玻璃幕墙D.全玻式玻璃幕墙14.构造柱的马牙槎构造错误的是()。
15. 请选择地面垫层留缝不正确的选项。
()16. 如图楼板所示,该板X1=1800mm, X2=4200mm,此板应平行于哪个方向配置主筋?()。
A.X1 B.X2 C.两个方向均需配置 D.两个方向均无需配置17. 下图所示楼地面,面层做法和图最匹配的是()。
A.水磨石面层 B.细石混凝土面层 C.缸砖面层 D.木地板面层18. 下图板厚表达正确的是()。
19. 已知某商场楼梯平面,请选择1号详图正确的选项。
()20. 下图中楼梯入口净高设置合理的是()。
21.构件式遮阳是结合窗过梁等构件,在窗前设置遮阳板进行遮阳。
在我国海南省的夏季,房屋正南向窗遮阳形式宜采用()。
A.①③B.②③C.③④D. ①②22.房间中门窗位置对室内自然通风影响很大,下图中室内自然通风效果由好到差依次是()。
A.②①③④B. ①②③④C.①②④③D.③①②④23.积灰较多的单层工业厂房屋面应采用以下哪种排水方式()。
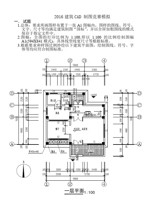
2016建筑CAD 制图竞赛模拟
一.试题
1.总体:要求所画图样布置于一张A1图幅内,图样的图线、符号、
文字、尺寸等均满足建筑制图“国标”,并以全屏加粗图线的模式保存于指定文件中。
2.图幅:全图的打印比例为1:100,即以1:100的比例绘制图幅
A1(594X841横式),具体线型线宽尺寸等根据标准。
3.根据要求和样图比例抄绘以下建筑平面图,绘制图线、符号、字
体等均应符合制图标准。
一层平面1:100
2.根据所提供的样图、比例、数据信息等自行识图后绘制出相应的楼梯详图,即包括完善平面图和绘制剖面图,图样和标注深度按建筑楼梯详图的制图标准。
数据和说明:图中剖面基础和屋顶等未表明的不详部分可剖断略去不
绘制,楼梯栏杆可单线绘制,仅扶手双线绘制。
栏杆高1000,扶手Φ50;砖墙200;柱截面400X600;
休息平台处开窗:宽1800,窗台高1000,高度至梁底;
二层平面1:50一层平面1:50三层平面1:50。
2016年全国职业院校技能大赛中职组建筑CAD赛项“建筑施工图识图与理论”环节样卷1.已知踏步的正立面图与平面图,请选择左侧立面图正确的一项:2.已知同坡屋顶正立面图与左侧立面图,请选择平面图正确的一项:6.某厂房排架柱Z1的三面投影如图所示,请选择1-1断面图绘制正确的一项:11.图中为某办公楼的檐沟详图,本图详图符号表示内容为:A.详图在编号为3号的施工图上B.详图在编号为5号的施工图上C.被索引图纸在编号为3号的施工图上D.被索引图纸在编号为5号的施工图上12.请选择下列标高标注正确的一项:13.请选择图中标高符号标注规范的一项:14.请选择该建筑物室内外高差说法正确的一项:A.0.050MB.0.250MC.0.300MD.0.350M15.本图所示为某一玻璃幕墙型材断面图,请选择尺寸标注规范的一项:16.请选择图中定位轴线编号正确的一项:17.请选择1#宿舍楼室内外高差说法正确的一项:A.10.150M B.10.600M C.±0.000M D.0.450M18.请选择平面图中标注的C1518表示正确的一项:A.门洞宽1500mm、高1800mm B.门洞宽1800mm、高1500mm C.窗洞宽1500mm、高1800mm D.窗洞宽1800mm、高1500mm19.请选择平面图中定位轴线的绘制与编号均正确的一项:20.请选择总平面图中尺寸标注正确的一项:21.请选择图中基础埋深标注正确的一项:22.请选择建筑物勒脚的面层材料正确的一项:A.浅灰色外墙涂料B.浅黄色外墙涂料C.深黄色外墙涂料D.灰色花岗岩23.下图为C15素混凝土基础大样图,pk值为150kpa,请选择基础台阶尺寸错误的一项:24.下图为基础类型示意图,请选择柱下独立基础示意图正确的一项:25.请选择图中地下室防潮大样图构造正确的一项:26.某住宅局部墙身图如下,请选择窗台防护高度不符合规范要求的一项:27.图示为外墙明沟大样图,请选择构造正确的一项:28.图示为外墙外保温构造简图,请选择构造正确的一项:29.请选择下图中卫生间地面的坡度及标高均符合设计要求的一项:30.图示为某建筑二层墙身局部构造图,请选择楼面标高标注正确的一项:31.某建筑物地面采用细石混凝土面层,构造做法见图中表格,请选择地面构造简图正确的一项:32.图为某建筑物四层开敞阳台平面图,请选择排水构造正确的一项:33.图示为现浇整体式钢筋混凝土楼板构造示意,请选择无梁楼板示意正确的一项:34.图示为地下室底板卷材外防水构造简图,请选择正确的一项:35.某建筑平屋面采用材料找坡排水设计,请选择排水坡度正确的一项:36.图示为某建筑女儿墙泛水详图,请选择构造正确的一项:37.请选择图中檐沟构造正确的一项:38.图示为某建筑物檐沟详图,其屋面标高为18.500M,请选择正确的一项:39.请选择图中出屋面排气道构造正确的一项:40.请选择图中屋面出入口构造正确的一项:41.请选择图中檐沟构造正确的一项:42.某六层住宅楼梯平面图如下,请选择梯段与平台宽度均符合规范的一项:43.某教师公寓的楼梯剖面图如下,请选择图中楼梯净高不符合要求的一项:。
样卷2016年全国职业院校技能大赛中职组建筑CAD赛项“建筑施工图绘图”环节任务书竞赛须知1.本竞赛环节总分100分,竞赛时间210分钟。
2.文件夹命名要求:在电脑桌面创建参赛选手文件夹,文件夹以“竞赛号”命名。
例如,参赛选手竞赛号为“JZCAD001”,则创建文件夹的名称为“JZCAD001”。
3.本次竞赛所有任务的完成结果必须保存在上述文件夹中,否则以未做任务处理。
4.文件命名要求:必须按各任务要求正确命名文件名称。
5.选手设置的文件夹名称和各竞赛任务的文件名称不符上述要求的,其内容不能作为比赛正式结果,不作为评分依据。
6.在规定时间内完成即可,提前完成竞赛任务不加分。
7.为减少因突发情况造成的损失,竞赛过程中请选手注意手动保存竞赛结果,也可自行设置软件自动保存的时间。
8.遇到意外情况,应及时向裁判报告,听从裁判安排,不要自行处理。
经现场裁判及技术支持人员鉴定,非人为原因造成的电脑及软件死机,加时不超过10分钟。
所加时间从选手提出报告开始计时。
9.选手在提交竞赛结果前,务必检查文件夹和文件的名称是否正确,赛场提供的所有纸质材料不得带出赛场,离开赛场时不要关闭电脑。
10.不能在上交文件中明示或暗示选手身份,不得有雷同卷,否则按作弊处理。
任务一:设置绘图环境(10分)1.设置文字样式设置2种文字样式,分别用于“汉字”和“数字与英文字母”的注释,所有字体均为直字体,宽度因子为 0.7。
(1)用于“汉字”文字样式命名为“HZ”,字体名选择“仿宋”,语言为“CHINESE_GB2312”。
(2)用于“数字与英文字母”文字样式命名为“XT”,字体名选择“Simplex”,大字体选择“HZTXT”。
2.设置尺寸标注样式尺寸标注样式名为“BZ”,其中文字样式用“XT”,其它参数请根据国标的相关要求设置。
3.创建布局(1)新建布局并更名为“PDF-A3”。
(2)页面设置:配置打印机/图仪名称为DWG to PDF.pc5的虚拟打印机;纸张幅面为A3、横向、打印边界四周均为0;采用黑色打印;打印比例为 1: 1。
2016年全国职业院校技能大赛中职组建筑CAD赛项“建筑施工图识图与理论”环节试题1.根据所给构件正立面图和平面图,选择正确的左侧立面图。
()2.根据所给构件正立面图和左侧立面图,选择正确的平面图。
()3.根据所给构件正立面图和左侧立面图,选择正确的平面图。
()4.根据所给1-1、3-3剖面图,选择正确的2-2剖面图。
()5.已知某构件的平面图和正立面图,选择正确的1-1剖面图。
()6.已知某构件的正立面图与左侧立面图,选择正确的平面镜像图。
()7.钢筋混凝土翼墙平面图,选择正确的1-1断面图。
()8.以下哪个符号为室外总平面图的标高符号?()9.如图下图所示,墙体线宽为1,图中e处线宽应为。
()10.下列图例表示建筑材料是石膏板的?()11.如图所示基础埋置深度正确的为()。
12.如图所示地下室采光井构造尺寸正确的为()。
13.请选择附加圈梁构造要求正确的一项。
( )A. L≥h且 L≥800 mmB. L≥h且 L≥1000mmC. L≥2h且 L≥800 mmD. L≥2h且 L≥1000 mm14.水平防潮层作法不正确的是()。
15.请选择地面垫层留缝不正确的选项。
()16.请选择水磨石楼面图示正确的选项。
()17.以下板端处理合理的是()。
18.下图为某建筑第五层楼梯间,其中门的设置有误的选项是()。
19.某高层建筑剪刀楼梯平面图如下,请选择梯段与平台宽度均符合规范的一项。
()20.已知楼梯平面图,请选择楼梯剖面图B-B正确的一项。
()21.构件式遮阳是结合窗过梁等构件,在窗前设置遮阳板进行遮阳。
在我国海南省的夏季,房屋正南向窗遮阳形式宜采用()。
A.①③B.②③C.③④D. ①②22.木窗框与墙缝的构造处理符合要求的一项是()。
23.下列屋面构造属于倒置式屋面的是()。
A.①③B. ①④C.②③D.②④24.下图中属于坡屋面有组织封檐构造是()。
25.防火间距合理的是()。
26.当地基持力层比较软弱或部分地基有一定厚度的软弱土层时,我们常采用哪种方法来加固地基?()A.压实法 B.打桩法 C.换土法 D.机械压实法27.当地基条件较好,基础埋置深度较浅,且为砖混结构的建筑的基础多采用()。
2016年全国职业院校技能大赛中职组建筑CAD赛项“建筑施工图识图与理论”环节试题1.根据所给构件正立面图和左侧立面图,选择正确的平面图。
()2.根据所给构件的左侧立面图和平面图,选择正确的正立面图。
()3.根据所给构件正立面图和左侧立面图,选择正确的平面图。
()4.已知某构件的正立面图和平面图,请选择正确的1-1剖面图。
()5.已知某构件的平面图与正立面图,请选择正确的1-1剖面图。
()6.已知某构件的局部平面图与正立面图,请选择正确的A向斜视图。
()7.下图为工字钢的移出断面图,表达正确的是()。
8.请选择总平面图中尺寸标注正确的选项:。
()9.请选择图中标高符号标注规范的选项。
()10.下图表示哪一种图例。
()11.基础埋深合理的是()。
12.请选择图中截面附合构造要求的混凝土基础。
( )13.以下明沟构造表达有误的是()。
14.图中构造柱的马牙槎构造错误的是()。
15.下列图示中属于凹阳台的是()。
16.图示为一梁板式雨篷的1-1剖面图,请问图示中的Ⅰ;Ⅱ分别代表()。
A.水舌;淌水B. 排水;流水C.水舌;滴水D.排水;滴水17.某建筑物地面为水泥混凝土防水地面,构造做法见图中表格,请选择地面构造简图正确的一项。
()18.以下楼梯剖面中,()所示为梁板式楼梯中的暗步楼梯。
19.下图为某建筑二层安全疏散楼梯平面图,其安全疏散设计合理的是()。
20.下图中楼梯入口净高设置合理的是()。
21.黑龙江某街道办事处一层平面图如下,请选择门类型选用不合理的一项是()。
(不考虑门位置和数量设置的合理性)22.卫生间带百叶门的外立面图,其百叶部分的剖面详图正确的一项是()。
23.下列屋顶最高点标高最高的是()。
24.屋面坡度为20%时,油毡铺贴应采用以下哪种形式()。
25.下列房屋选址合理的是()。
26.建筑物地下室墙身防潮,应在墙面外侧填()。
A.低渗透性土壤 B.高渗透性土壤C. 任意土壤D. 素混凝土27.地基中需要进行计算的土层为()。
2016年全国职业院校技能大赛中职组建筑CAD赛项“建筑施工图识图与理论”环节试题1.根据所给构件正立面图和平面图,选择正确的左侧立面图。
()2.根据所给构件左侧立面图和平面图,选择正确的正立面图。
()3.根据所给构件正立面图和平面图,选择正确的左侧立面图。
()4.已知构件平面图与正立面图,请选择正确的1-1剖面图。
()5.已知某构件的平面图与正立面图,请选择正确的1-1剖面图。
()6.已知某构件的正立面图与左侧立面图,选择正确的平面镜像图。
()7.已知某构件的正立面和平面图,请选择正确的1-1断面图。
()8.图中关于建筑物入口朝向说法正确的是()。
A.朝东B.朝西C.朝南D.朝北9.某建筑平屋顶采用材料找坡排水设计,请选择i=2%排水坡度符号表示正确的选项。
( )10.下面哪个选项在总图中代表散状材料露天堆场?()11.基础埋深合理的是()。
12.如图所示地下室采光井构造尺寸正确的为()。
13.图中砖墙组砌方式哪种为一顺一丁式?()14. 下列图示墙身水平及垂直防潮层位置做法错误的是( )。
15. 图示中住宅的阳台栏杆设置合理的是()。
16. 下列图示中属于挑板式阳台的为()。
17. 某建筑物地面为水泥混凝土防水地面,构造做法见图中表格,请选择地面构造简图正确的一项。
()18. 下图为某建筑第五层楼梯间,其中门的设置有误的选项是()。
19. 某七层住宅楼无障碍出入口设计如下,图中数据表示不正确的是()。
20. 某七层住宅楼无障碍出入口设计如下,请选择图中坡道及入口平台设计正确的选项。
()21.图中门尺寸设计不合理的是()。
22.下列门窗图例与名称对应正确的是()。
A.①②③④⑤B.①③④C.②③⑤D.②③④⑤23.下列屋顶最高点标高最高的是()。
24.下图中属于坡屋面有组织封檐构造是()。
25. 下列合适的建筑平面的形状是()。
26. 下列对于深基础和浅基础的说法,正确的是()。
A.当基础埋深大于或等于4m叫深基础B.确定基础埋深时,应优先考虑浅基础C.当基础埋深大于或等于基础宽度5倍是叫深基础D.基础埋深小于4m或基础埋深小于基础宽度的4倍时叫浅基础27. 基础埋深不超过()的称为浅基础。
2016年全国职业院校技能大赛中职组建筑CAD赛项“建筑施工图识图与理论”环节试题共50题,其中建筑识图25题,每题0.8分;房建理论25题,每题0.4分,总分30分,时间50分钟。
1.根据所给构件正立面图和左侧立面图,选择正确的平面图。
()2.根据所给构件左侧立面图和平面图,选择正确的正立面图。
()3.根据所给构件正立面图和左侧立面图,选择正确的平面图。
( )4.根据所给1-1、3-3剖面图,选择正确的2-2剖面图。
( )5.已知某构件的平面图,请选择1-1剖面图正确的一项。
()6.已知某构件的平面图和正立面图,请选择正确的A向局剖视图。
()7.已知某构件的正立面和左侧立面图,请选择正确的1-1断面图。
( )8.图中关于建筑物入口朝向说法正确的是()。
A.朝东B.朝西C.朝南D.朝北9.图中为某办公楼的檐沟详图,本图详图符号表示内容为:()。
A.详图在编号为3号的施工图上B.详图在编号为5号的施工图上C.被索引的图纸在编号为3号的施工图上D.被索引的图纸在编号为5号的施工图上10、图示为石材幕墙干挂龙骨的断面,请选择石材、角钢、柱子材料图例表示均正确的选项。
()11. 新旧建筑埋深不合理的是()。
12.地下室防水中防水层需高出最高地下水位()mm。
13.图中哪一项注写错误?()14. 下列图示墙身水平及垂直防潮层位置做法错误的是( )。
15. 下列为单向板的是()。
A.①②③⑥⑦ B.①②③⑥ C.①②③ D.②③16. 图示木地面的构造方式为()。
A.空铺式 B.实铺式 C.粘贴式 D.拼装式17. 下图所示楼地面,面层做法和图最匹配的是()。
A.水磨石面层 B.细石混凝土面层 C.缸砖面层 D.木地板面层18. 图示为某住宅自行车坡道详图,请选择坡道长度L正确的选项。
()A. 6500mmB. 4500mmC. 4000mmD. 3500mm19. 下图中楼梯栏杆高度表达正确的选项是()。
2016年全国职业院校技能大赛中职组建筑CAD赛项“建筑施工图绘图”环节任务书竞赛须知1.本竞赛环节总分100分,竞赛时间210分钟。
2.竞赛过程中,所需素材文件均已经放在操作系统桌面的文件夹中,文件夹名称为“建筑CAD 素材”。
3.文件夹命名要求:在D盘根目录下,创建参赛选手文件夹,文件夹以“赛场号+赛位号”命名,如参赛选手赛场号为“1”、赛位号为“1”,则创建文件夹的具体名称为“101”(小于10的“赛位号”,中间加“0”);若“赛位号”为“10”,则文件夹的名称为“110”。
4.本次竞赛所有任务的完成结果必须保存在上述文件夹中,如“D:\101”或“D:\110”,否则以未做任务处理。
5.文件命名要求:必须按各任务要求正确命名文件名称,不符上述要求的,其内容不能作为比赛正式结果,不作为评分依据。
6.在规定时间内完成即可,提前完成竞赛任务不加分。
7.为减少因突发情况造成的损失,竞赛过程中请选手注意手动保存竞赛结果,也可自行设置软件自动保存的时间(建议每5~10分钟保存一次)。
8.遇到意外情况,应及时向裁判报告,听从裁判安排,不要自行处理。
经现场裁判及技术支持人员鉴定,非人为原因造成的电脑及软件死机,加时不超过10分钟。
所加时间从选手提出报告开始计时。
9.选手在提交竞赛结果前,务必检查文件夹和文件的名称是否正确,赛场提供的所有纸质材料不得带出赛场,离开赛场时不要关闭电脑。
10.不能在上交文件中明示或暗示选手身份,不得有雷同卷,否则按作弊处理。
任务一:设置绘图环境(10分)1.设置文字样式设置2种文字样式,分别用于“汉字”和“数字与英文字母”的注释,所有字体均为直字体,宽度因子为 0.7。
(1)用于“汉字”文字样式命名为“HZ”,字体名选择“仿宋”,语言为“CHINESE_GB2312”。
(2)用于“数字与英文字母”文字样式命名为“XT”,字体名选择“Simplex”,大字体选择“HZTXT”。
2016年全国职业院校技能大赛中职组建筑CAD赛项“建筑施工图识图与理论”环节试题1.根据所给构件左正立面图和左侧立面图,选择正确的平面图。
()2.根据所给构件正立面图和平面图,选择正确的正立面图。
()3.根据所给正立面图和左侧立面图,选择正确的平面图。
()4.已知某构件的平面图,请选择正确的2-2剖面图。
()5.根据所给的1-1、3-3剖面图,选择正确的2-2剖面图。
()6.已知某构件的平面图和正立面图,请选择正确的A向局剖视图。
()7.已知某构件的正立面和平面图,请选择正确的1-1断面图。
()8.选择图中标注规范的一组剖视剖切符号。
()9.请选择关于散水构造详图说法正确的一项。
()A.建施2中的9号详图B.建施9中的2号详图C.建施1中的9号详图D.建施9中的1号详图10.下列图例在总图中表示坑槽正确的一项。
()11.如图所示基础形式为()。
A. 独立基础B. 条形基础C.箱形基础D. 筏形基础12.如图所示相邻基础净距不满足要求的为()选项。
13.图中砖墙组砌方式哪种为一顺一丁式?()14.水平防潮层设置正确的是()。
15.下图中板厚为( )。
16.如图楼板所示,该板X1=1800mm, X2=4200mm,此板应平行于哪个方向配置主筋?()。
A.X1 B.X2 C.两个方向均需配置 D.两个方向均无需配置17.下图所示楼地面,面层做法和图最匹配的是()。
A.木地板面层 B.缸砖面层 C.细石混凝土面层 D.水磨石面层18.本图为某幼儿园楼梯踏步详图,请选择尺寸正确的一项。
()19.某七层住宅楼无障碍出入口设计如下,图中数据表示不正确的是()。
20.某耐火等级为三级的学校建筑楼梯间设置不当的是()。
21.图中开向公共走道的窗,其标高设计合理的一项是()。
22.房间中门窗位置对室内自然通风影响很大,下图中室内自然通风效果由好到差依次是()。
A.②①③④B. ①②③④C.①②④③D.③①②④23.上人屋面栏杆高度设置合理的一项是()。