隔油池的设计精编版
- 格式:doc
- 大小:266.00 KB
- 文档页数:11
新版[规范]建筑给水排水设计规范-隔油池技术资料.pdf隔油池技术资料隔油器(隔油池)所谓隔油器(隔油池),就是餐饮行业排放废水中的油脂、杂物和水分离开的一种专用设施。
隔油器按材质可分为:不锈钢隔油器、碳钢防腐隔油器、碳钢喷塑隔油器,玻璃钢隔油器。
按安装方式可分为:地上式隔油器、地埋式隔油器、吊装式隔油器。
按进水方式可分为:明沟式隔油器、管道式隔油器。
龙康隔油器按有无动力可分为:普通隔油器、自动隔油器,自动刮油隔油器,带气浮自动刮油隔油器。
按有格栅分为:机械隔格栅隔油器,普通格栅隔油器。
龙康隔油池隔油器的各项技术参数指标均按照国家标准《建筑给水排水设计规范》(GB50015-2003)中第 4.8.2条设计。
主要原理:含油废水在重力的作用下,借助油水比重差,采用自然上浮法分离去除废水中的可浮油与部分细分散油。
其内部分为三个隔档,提高了油水分离功能,应用导流分离原理以及紊流变层流的辩证关系,使废水流经油水分离器的过程中,流速降低,通过增加过水断面从而降低流速(≤0.005m/s),增加废水的水力停留时间,并使整个过水断面能够匀速流过。
出水区的构造也充分考虑了水流均匀性问题以及防臭防虹吸等措施。
实践证明,该产品可将粒径60um以上的可浮油去除90%以上,外排废水中动植物油的含量低于《污水综合排放标准》(GB8978-1996)中的三级标准(100mg/L)。
国内餐饮业污水处理的一般方法龙康隔油器隔油池是国内处理餐饮业污水最经常使用的方法。
隔油池的原理是利用污水中的油脂与水的密度不同而将油脂自然分离出来。
由于自然分离需要一定的时间,而且这时间与处理的污水中的油脂的具体状态有关系,餐饮业污水当中的油脂和悬浮颗粒绝大部分是十分细小的,很难在有限的停留时间内通过重力分离,对这部分油脂和悬浮颗粒,隔油池可以说是没有办法的。
隔油池有自己的设计规范,但是,在实际工程运用中,由于各种客观、主观和经济上的原因,业主经常采用简陋的设计,这样隔油效率很低。
隔油池设计方案隔油池是一种用于分离油水混合物的设备,常用于污水处理、废水处理以及工业设备中。
下面是一个隔油池的设计方案:1. 设计目标:设计一个有效的隔油池来分离油水混合物,使得油和水的分离效果最大化,同时确保设备的稳定使用。
2. 设计原则:a. 提供足够的容量:隔油池的容量应根据处理的流量和油水分离的效果要求来确定,以确保足够的时间让油水混合物分离。
b. 提供合适的流速:隔油池的进水速度和排水速度应适当,以避免过快或过慢对油水分离效果的影响。
c. 提供合适的设计参数:隔油池的设计参数,如倾角、长度、宽度等应根据具体的需求来确定。
3. 结构设计:a. 池体:隔油池的池体应采用耐腐蚀材料制作,以防止污染物对设备的损害。
池体中设置有适当的截留板,可防止油水混合物在进入和离开隔油池时的搅拌,从而增加油水分离的效果。
b. 进水口和排水口:进水口应位于隔油池的一侧,以便油水混合物在进入隔油池时能够形成流动,而排水口则应位于隔油池的底部,以便分离出的油能够沉积在底部,从而方便排出。
c. 上部结构:隔油池的上部应设置适当的覆盖物,以防止外界杂质进入池体,同时便于操作和维护设备。
4. 操作维护:a. 定期清理:隔油池应定期清理,以去除沉积在底部的油和污物,以及清除积聚在表面的浮油。
b. 维护设备:隔油池应定期检查设备的运行状态,如泄漏、堵塞等问题,并及时进行维修和更换。
5. 安全措施:a. 防止溢流:隔油池应设置防溢流装置,以预防油水混合物溢出。
b. 防火措施:隔油池周围应设置防火设施,以防止油蒸气引发火灾。
c. 警示标识:隔油池周围应设置明显的警示标识,以提醒人们注意安全。
综上所述,隔油池设计方案应考虑容量、流速、设计参数等因素,结构设计应合理,操作维护和安全措施应做到位,以最大化油水分离效果并确保设备的安全可靠运行。
某某海港开发区第五加油站隔油池项目施工方案编制人:审核人:审批人:隔油池施工方案本工程位于某某乐亭县,本站为第二级加油站。
根据设计要求,1#罐区内建立两个密闭隔油池,分别位于1#罐区得两侧。
本工程施工内容:管井降水、土方开挖、钢筋砼水池浇筑、池壁四周做防水、钢栏杆制安、土方回填等。
由于水池所在位置地下水丰富,根据现场情况,我公司采取管井井点降水的措施进展降水,井点降水所排出的水必须按要求排放到指定的排水井,并做好排水的过滤工作。
这些降水、排水工作都要持续到根底工程完毕回填后才能停止,以保证根底等在枯燥条件下施工。
〔一〕、降水施工技术措施1、安装程序井点放线定位→安装高压水泵→凿孔安装埋设井点管→布置安装总管→井点管与总管连接→安装抽水设备→试抽与检查→正式投入降水程序。
2、井点管埋设根据建设单位提供的测量控制点,测量放线确定井点位置〔见附图〕,然后在井位先挖一个小土坑,深大约500mm,以便于冲击孔时集水、埋管时灌砂,并用水沟将小坑与集水坑连接,以便排泄多余水。
用绞车将简易井架移到井点位置,将套管水枪对准井点位置,启动高压水泵,水压控制在~0.8MPa,在水枪高压水射流冲击下套管开始下沉,并不断地升降套管与水枪。
一般含砂的粘土,按经验,套管落距在1000mm之内,在射水与套管冲切作用下,大约在10~15min 时间之内,井点管可下沉10m左右,假如遇到较厚的纯粘土时,沉管时间要延长,此时可增加高压水泵的压力,以达到加速沉管的速度。
冲击孔的成孔直径应达到300~350mm,保证管壁与井点管之间有一定间隙,以便于填充砂石,冲孔深度应比滤管设计安置深度低500mm 以上,以防止冲击套管提升拔出时局部土塌落,并使滤管底部存有足够的砂石。
凿孔冲击管上下移动时应保持垂直,这样才能使井点降水井壁保持垂直,假如在凿孔时遇到较大的石块和砖块,会出现倾斜现象,此时成孔的直径也应尽量保持上下一致。
井孔冲击成型后,应拔出冲击管,通过单滑轮,用绳索提起井点管插人井孔,井点管的上端应用木塞塞住,以防砂石或其他杂物进入,井在井点管与孔壁之间填灌砂石滤层。
*实用文库汇编之三、设计内容*1、隔油池隔油池是分离废水中的浮油及泥沙的构筑物,它是利用油于水之间的密度差异进行油水分离的。
隔油池也是用上浮方法去除废水中相对密度小于1的浮油的构筑物。
在隔油池中,相对密度小于1,粒径较大的油品杂质上浮于水面,与水分离;相对密度大于1的杂质则沉入池底。
所以,隔油池同时又是沉淀池,但主要起隔油作用。
和沉淀池类似,它也有平流式,竖流式及斜板斜管式。
我国目前多采用的是平流式隔油池,个别地方采用斜板斜管或其它形式的隔油池。
重力型隔油池是处理含油废水的最常用的设备,其处理过程是将含油废水置于池中进行油水重力分离,然后,撇除废水表面的油脂。
理论上重力分离过程可以用斯托克斯公式表示。
但是由于常发生紊流和短循环,重力分离器的实际效率依赖于合理的水利设计和废水停留时间。
停留时间越长,漂浮油与水的分离效果越好。
停留时间小于20min时,油水的分离效率低于50%,如果延长停留时间可以改善分离情况。
隔油池水面的浮油可以用集油管排出,,也可采用机械撇除,小隔油池也可采用人工撇油。
平流式隔油池(API)由池体,刮油刮泥机和集油管等几部分组成,普通平流隔油池的构造如图3所示。
废水从一端进入,从另一端流出,由于池内水平流速很小,相对密度小于1.0而粒径较大的油品杂质在浮力的作用下上浮,并且,聚集在池的表面,通过设在池表面的集油管和刮油机收集浮油。
而相对密度大于1.0的杂质沉于池底。
集油管设于出水口一侧的水面上。
集油管一般直径为200-300mm的钢管制成。
沿管的长度在管壁的一侧开有切口,其宽度一般是对应中心角为60°,集油管可以绕管轴转动,由螺杆控制。
平时切口向上并位于水面以上,当水面浮油达到一定厚度时(一般不大于0.25m),转动集油管,使切口浸入水面油层一下,浮油即自行进入管内,并沿集油管流向池外。
刮油机通常是由链条或钢丝绳牵引的。
在用链条牵引时,隔油机在池面上起刮油作用,将浮油刮向池的末端;而在池的底部可以起刮泥机作用,将下沉的油泥刮向池出口端的泥斗中,通过排泥管适时排出,排泥管一般直径为200mm,池底向污泥斗的坡度为0.01-0.02,污泥斗深度一般为0.5m,底宽不小于0.4m,倾面倾角不小于45°-60°。
隔油池方案1. 引言隔油池是一种常见的环保设施,广泛应用于餐饮、酒店、食品加工等行业,其主要作用是分离和收集废水中的油脂,以减少对环境的污染。
本文将详细介绍隔油池的功能和原理,以及在设计和使用中需要考虑的因素。
2. 隔油池的功能和原理隔油池的主要功能是分离和收集废水中的油脂。
在餐饮等行业,由于食物加工和清洗的活动,大量的油脂会进入废水中。
如果这些废水直接排入下水道或自然水体中,会对环境造成污染。
隔油池通过物理和化学的方式将废水中的油脂分离出来,使其沉积在隔油池底部,从而净化废水。
它的原理是利用油脂比水密度小的特性,使油脂在废水中浮起,并通过设计合理的结构将其收集起来。
隔油池通常由进水口、排水口、沉淀区和排油区组成。
3. 隔油池的设计和使用在设计和使用隔油池时,需要考虑以下因素:3.1 容量和尺寸隔油池的容量和尺寸应根据实际需要进行合理选择。
容量过小会导致油脂的堆积和泄漏,容量过大则会增加成本和占用空间。
一般而言,隔油池的容量应能够满足预估的废水排放量,并根据需要进行定期清理和维护。
3.2 进水口和排水口的位置进水口和排水口的位置设置应考虑废水流动的方向和速度,以便使废水中的油脂更容易被分离和收集。
进水口应设计在废水流入隔油池的一侧,而排水口应设计在废水流出隔油池的底部。
3.3 沉淀区和排油区的设计沉淀区是隔油池的核心区域,其设计应使油脂沉积在底部,并避免被搅动和重新悬浮。
常见的设计方式包括设置隔板和调整进水口和排水口的位置。
排油区则是收集沉淀的油脂,通常位于隔油池的一侧或顶部,并配有管道和泵进行油脂的排放和回收。
3.4 清理和维护隔油池的清理和维护非常重要,可以通过以下方式进行:•定期清理:根据实际情况,制定清理计划,定期清除沉积在隔油池底部的油脂。
•清理设备:选择合适的清理设备,如抽污泵和吸油器,以便有效清除底部的油脂。
•检查和维修:定期检查隔油池的进水口、排水口和排油区的管道和阀门,确保其正常运行。
04S519隔油池设计册简介本文档为《04S519隔油池设计册》国标设计册,旨在提供有关隔油池设计的详细信息和要求。
隔油池是一种用于分离水和油的设备,常用于工业和环保领域。
本设计册将涵盖隔油池的设计原则、尺寸规范、安全要求等内容。
设计原则隔油池的设计应遵循以下原则:- 分离效率高:隔油池应能有效地分离水和油,并确保油污不再混入环境。
- 操作简便:设计应考虑到隔油池的易于操作和维护,以提高使用效率。
- 安全可靠:设计应符合相关安全标准,确保操作人员和环境的安全。
尺寸规范隔油池的尺寸规范应满足以下要求:- 容积大小:根据需要确定隔油池的容积,以保证足够的油污分离容量。
- 尺寸比例:设计时需要合理确定隔油池的长度、宽度和深度的比例关系,以确保分离效率和操作性能。
- 净高要求:设计要考虑到油水分离后的净油高度,以保证有效分离和油污收集的便利性。
安全要求隔油池设计应满足以下安全要求:- 防漏设计:设计应采用防漏措施,避免油污污染地下水和周围环境。
- 防爆措施:如需要,设计应考虑到防爆要求,以防止隔油池内油气产生爆炸。
- 材料选择:设计时需选择耐腐蚀、耐高温的材料,以确保设备的长久稳定性和安全性。
结论《04S519隔油池设计册》为您提供了关于隔油池设计的必要信息和指导原则。
针对工业和环保领域的隔油池设计,我们需要考虑分离效率、操作简便性和安全可靠性等方面的因素。
同时,尺寸规范和安全要求也是设计时需要重点关注的内容。
本设计册将帮助您了解隔油池的设计原则和要求,并在设计过程中提供指导和参考。
隔油池的设计——处理5万吨/天的炼油废水炼油废水一般都是以含油废水为主,隔油是处理含油废水的必要步骤,隔油的设备很多,可以根据含油废水的性质不同选择不同的隔油设备,而隔油池是处理炼油厂排放的含油废水的主要构筑物。
隔油池是分离废水中的浮油及泥沙的构筑物,它是利用油于水之间的密度差异进行油水分离的。
隔油池也是用上浮方法去除废水中相对密度小于1的浮油的构筑物。
隔油池的一般分为平流式隔油池,斜管斜板式隔油池(平行板式隔油池和波纹板式隔油池),吸油插板式隔油池,下水道式隔油池,排洪沟式隔油池等。
处理炼油废水常应用平流式隔油池和斜管斜板式隔油池,其中平流式隔油池是处理炼油厂废水的标准设备,它是美国石油协会的API制定的定定性标准而设计的。
平流式隔油池相对于其他类型的隔油池具有结构简单,运行管理方便,除油效果稳定等特点。
在本次设计通过比较依然选用平流式隔油池处理流量为5万吨/天的炼油废水。
通过油滴上浮速度法计算得出平流式隔油池的构筑尺寸,画出结构示意图。
前言 (8)1、文献综诉 (10)、含油废水 (10)1.1.1含油废水的来源 (10)1.1.2含油废水的危害及污染特征 (11)1.1.3油类在水中的存在形态 (11)1.1.4含油废水的处理方法 (12)炼油废水 (15)1.2.1炼油废水的来源、分类及性质 (15)1.2.2炼油废水的处理方法 (16)1.2.3连油废水的处理工艺 (17)除油装置 (22)1.3.1隔油池 (22)1.3.2隔油池的类型及特征 (23)2、设计部分 (30)设计方案的选择 (30)平流式隔油池设计常用数据 (31)设计计算 (32)2.3.1已知条件 (32)2.3.2计算方法及过程 (32)2.3.3 设计计算结果 (40)3、结论 (40)4、谢辞 (42)5、参考文献 (43)前言随着社会经济的发展和人口的不断增加,水资源的短缺已经成为目前人类社会面临的一个很严重的环境问题,甚至是未来人的生存为题。
餐饮业隔油池、油烟管道资料3.1餐饮业餐饮业主要指包括酒楼、酒店、大排档、单位食堂、西餐、粥粉面店、甜炖品店等,该类项目通常存在有污水、油烟和噪声等各种污染。
3.1.1废水治理餐饮污水排放时需达到相应的污水排放标准(见表6),因此选择餐饮污水的处理方法相当重要,一般来讲,根据餐饮污水排放量、排放标准等因素,其处理方法包括初级处理(如隔油隔渣)、一级处理(现主要指采用气浮原理、微生物消解、化学等处理方法)、二级处理(现阶段主要采用二级生化工艺,如A/O、A2/O工艺)等处理方法。
根据政策要求,处理方法的确定与建设项目所在地理位置、排放的废水量及浓度有关。
废水排放量越大、浓度越高,要求处理的级别越高。
3.1.1.1水量的确定实际水量的确定一般按照以下原则确定:①餐厅、酒楼、大排档、西餐、粥粉面店、甜炖品店等对外营业的餐厅按照0.16m3/座?次、一天营业10个小时计算(每一餐营运时间约3到3.5个小时)。
例如,某酒家一共设200个餐座,一天设3餐,则其一天的水量为0.16×200×3=96m3/天。
每小时的水量为96÷10=9.6m3/h。
②企业内部职工食堂,按照0.05m3/人?次计、按一天10小时计算。
如某食堂供应三餐,职工人数为100人,则其处理水量为0.05×100÷10=0.5m3/h。
需要说明的是:选择处理工艺及设备时所根据的设计水量是在上述的实际水量基础上再乘以一个1.2~1.5的系数。
3.1.1.2处理方法确定设计水量后,下面的步骤就是选择工艺及设备。
a、采用隔油隔渣池处理:设计水量在10 m3/h以下的可采用隔油池的方法进行初步处理。
设计水量为0-4.5 m3/h ,隔油池容积在20m3以下的隔油池做法如图1:餐饮废水三级隔油隔渣池的具体尺寸可参照下表10:备注:本表中H2(m)是假设隔油隔渣池的三个隔油隔渣主体长度为4 m时计算出来的,当条件不允许时,可以根据实际情况按照三个隔油隔渣主体容积来确定相应的尺寸。
小型污水预处理设施设计选型指引清源行动办公室2007年7月目录一、说明1二、设计需要考虑的因素1三、主要水处理设施21、隔油池22、毛发集污井33、汽车洗车污水隔油沉淀池47、化粪池4.一、说明随着我市的高速发展,人口的不断增加,同时我市的水环境也日益恶化。
其中原建筑物改变功能及监督管理不到位是造成水污染的重要原因。
如住宅区内或路边楼宇现改成了餐饮店、理发店、洗车场等经营性场所。
按照建筑给水排水设计规范,公共饮食业厨房含有大量油脂的洗涤废水、洗车冲洗水应单独排水至水处理构筑物。
含油污水应经除油装置后方许排入污水管道,生活污水需经化粪池处理后才能排入市政排水管道。
本指引主要介绍以上相关的小型水处理设施设计、选型,包括化粪池、隔油池、汽车洗车污水隔油沉淀池、毛发集污井。
二、设计需要考虑的因素为了满足预期要求,达到理想效果,作为一个设计者应考虑以下几个因素。
1、水处理设施建设位置,应不能影响现有建筑物功能及便于维护、清理。
2、运行维护周期。
、最大服务人数。
3.4、将来是否有扩容的需要。
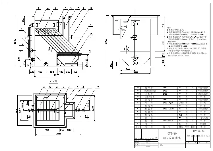
三、主要水处理设施1、隔油池图1隔油池示意图1.1隔油池按设计秒流量计算;1.2在池内流速不大于0.005m/s。
1.3含油污水在池内停留时间为10min;;7d清除周期1.4.1.5隔油池选用表隔油池型号1型2型3型4型最大设计秒流量4.80 1.60 1.00 3.20 (L/S)4.50)有效容积(m0.901.503.003设计举例:确定最大设计秒流量,可通过观察水表用水高峰期流量估算,假设为5m/h,选型?3最大设计秒流量:5*1000/3600=1.39 L/S,则选2型。
1.6 附件隔油池标准图2、毛发集污井图2毛发集物井示意图2.1室内、外毛发集污井用于理发室、公共浴池等需要滤去毛发或污物的室内外排水管道上;2.2附件毛发集污井标准图3、汽车洗车污水隔油沉淀池图3汽车洗车污水隔油沉淀池示意图3.1汽车洗车污水隔油沉淀池用于需要除去汽车洗车污水中的残油和泥沙的室外排水管道上。
隔油池的设计——处理5万吨/天的炼油废水摘要炼油废水一般都是以含油废水为主,隔油是处理含油废水的必要步骤,隔油的设备很多,可以根据含油废水的性质不同选择不同的隔油设备,而隔油池是处理炼油厂排放的含油废水的主要构筑物。
隔油池是分离废水中的浮油及泥沙的构筑物,它是利用油于水之间的密度差异进行油水分离的。
隔油池也是用上浮方法去除废水中相对密度小于1的浮油的构筑物。
隔油池的一般分为平流式隔油池,斜管斜板式隔油池(平行板式隔油池和波纹板式隔油池),吸油插板式隔油池,下水道式隔油池,排洪沟式隔油池等。
处理炼油废水常应用平流式隔油池和斜管斜板式隔油池,其中平流式隔油池是处理炼油厂废水的标准设备,它是美国石油协会的API制定的定定性标准而设计的。
平流式隔油池相对于其他类型的隔油池具有结构简单,运行管理方便,除油效果稳定等特点。
在本次设计通过比较依然选用平流式隔油池处理流量为5万吨/天的炼油废水。
通过油滴上浮速度法计算得出平流式隔油池的构筑尺寸,画出结构示意图。
关键词:炼油废水,平流式隔油池,油水分离1AbstractThe oil refining waste water is a main source of oily water, separating oil is necessary step of treating the oily water, there are a lot of equipments for separating oil, we can choose different equipments for separating oil according to the property of oily water, and the oil separator pond is the main construct to handle the oily water of oil refinery. oil separator pond is the construct to separate the float oil and sediments, it make use of density difference of oil and water of carry on the oil-water separation. Oil separator po nd is also the construct,in which float oil that its density was smaller than 1 was separated with the method of floatation.There are lots of kinds of oil separator ponds, among them, the even flow type is the most familiar to separate the oil pond, incl ined take care of the inclined plank type to separate the oil pond. (The parallel plank type to separate the oil pond and ripples plank types to separate the oil pond).The processing oil refining waste water often applied these two kinds of separate the oi l ponds. The even flow type separate the oil pond is standard equipment that handles the oil refinery waste water, it is the certainly settle of the API establishment sex standard but designs of American Petroleum Institute of. With inclined take care of the inclined plank type to separate the oil pond to compare the even flow type to separate the oil pond to have the structure in brief, circulate management convenience, support in brief, stabilize etc. in2addition to the oil result advantages. The ev en flow type separate the oil pond in addition to the oil efficiency is generally above60%.Currently, separate the oil pond application to compare with the even flow type in the domestic each oil refining of big oil refinery liquid waste processing craft extensively.Pass to choose more and still tooil separator pond processing discharge as the oil refining waste water of 50,000 tons/ days with the even flow type in this design. Pass the oil drop to float the speed method calculation up an even flow type separates the oil pond to construct the size, drawing a structure sketch map.Keywords: The oil refining waste water, the even flow separate the oil pond, separation oil fro m waste water3目录前言 (8)1、文献综诉 (10)1.1、含油废水 (10)1.1.1含油废水的来源 (10)1.1.2含油废水的危害及污染特征 (11)1.1.3油类在水中的存在形态 (11)1.1.4含油废水的处理方法 (12)1.2炼油废水 (15)1.2.1炼油废水的来源、分类及性质 (15)1.2.2炼油废水的处理方法 (16)1.2.3连油废水的处理工艺 (17)1.3除油装置 (22)1.3.1隔油池 (22)1.3.2隔油池的类型及特征 (23)2、设计部分 (30)2.1设计方案的选择 (30)2.2平流式隔油池设计常用数据 (31)2.3设计计算 (32)2.3.1已知条件 (32)2.3.2计算方法及过程 (32)2.3.3 设计计算结果 (40)3、结论 (40)44、谢辞 (42)5、参考文献 (43)5前言随着社会经济的发展和人口的不断增加,水资源的短缺已经成为目前人类社会面临的一个很严重的环境问题,甚至是未来人的生存为题。
小型污水预办理设备设计选型引导清源行动办公室2007 年 7 月目录一、说明 (1)二、设计需要考虑的要素 (1)三、主要水办理设备 (2)1、隔油池 (2)2、毛发集污井 (4)3、汽车洗车污水隔油积淀池 (5)4、化粪池 (7)一、说明跟着我市的高速发展,人口的不停增添,同时我市的水环境也日趋恶化。
此中原建筑物改变功能及监察管理不到位是造成水污染的重要原由。
如住所区内或路边楼宇现改成了餐饮店、剪发店、洗车场等经营性场所。
依据建筑给水排水设计规范,公共饮食业厨房含有大批油脂的清洗废水、洗车冲刷水应独自排水至水办理修建物。
含油污水应经除油装置后方许排入污水管道,生活污水需经化粪池办理后才能排入市政排水管道。
本引导主要介绍以上有关的小型水办理设备设计、选型,包含化粪池、隔油池、汽车洗车污水隔油积淀池、毛发集污井。
二、设计需要考虑的要素为了知足预期要求,达到理想成效,作为一个设计者应试虑以下几个要素。
1、水办理设备建设地点,应不可以影响现有建筑物功能及便于保护、清理。
2、运转保护周期。
3、最大服务人数。
4、未来能否有扩容的需要。
三、主要水办理设备1、隔油池图 1 隔油池表示图1.1隔油池按设计秒流量计算;1.2在池内流速不大于 0.005m/s;1.3含油污水在池内逗留时间为 10min;1.4消除周期 7d ;1.5 隔油池采纳表隔油池型号 1 型 2 型 3 型 4 型最大设计秒流量( L/S ) 1.00 1.60 3.20 4.80有效容积( m3 )0.90 1.50 3.00 4.50设计举例:确立最大设计秒流量,可经过察看水表用水顶峰期流量估算,假定为5m 3 /h ,选型?最大设计秒流量:5*1000/3600= 1.39L/S,则选2型。
1.6附件隔油池标准图有资料说:Qmax--污水最大设计秒流量,m3/s 。
可按下述标准采纳:营业餐厅20L/ (人·餐),工作时间12h/d,K=2;员工餐厅15L/ (人·餐),工作时间9h/d,K=2。
小型污水预处理设施设计选型指引
清源行动办公室
2007年7月
目录
一、说明 (1)
二、设计需要考虑的因素 (1)
三、主要水处理设施 (2)
1、隔油池 (2)
2、毛发集污井 (3)
3、汽车洗车污水隔油沉淀池 (4)
4、化粪池 (6)
一、说明
随着我市的高速发展,人口的不断增加,同时我市的水环境也日益恶化。
其中原建筑物改变功能及监督管理不到位是造成水污染的重要原因。
如住宅区内或路边楼宇现改成了餐饮店、理发店、洗车场等经营性场所。
按照建筑给水排水设计规范,公共饮食业厨房含有大量油脂的洗涤废水、洗车冲洗水应单独排水至水处理构筑物。
含油污水应经除油装置后方许排入污水管道,生活污水需经化粪池处理后才能排入市政排水管道。
本指引主要介绍以上相关的小型水处理设施设计、选型,包括化粪池、隔油池、汽车洗车污水隔油沉淀池、毛发集污井。
二、设计需要考虑的因素
为了满足预期要求,达到理想效果,作为一个设计者应考虑以下几个因素。
1、水处理设施建设位置,应不能影响现有建筑物功能及便于维护、清理。
2、运行维护周期。
3、最大服务人数。
4、将来是否有扩容的需要。
三、主要水处理设施
1、隔油池
图1隔油池示意图1.1隔油池按设计秒流量计算;
1.2在池内流速不大于0.005m/s;
1.3含油污水在池内停留时间为10min;
1.4清除周期7d;
1.5隔油池选用表
设计举例:
确定最大设计秒流量,可通过观察水表用水高峰期流量估算,假设为5m3/h,选型?
最大设计秒流量:5*1000/3600=1.39 L/S,则选2型。
1.6 附件隔油池标准图
2、毛发集污井
图2毛发集物井示意图
2.1室内、外毛发集污井用于理发室、公共浴池等需要滤去毛发或污物的室内外排水管道上;
2.2附件毛发集污井标准图
3、汽车洗车污水隔油沉淀池
图3汽车洗车污水隔油沉淀池示意图
3.1汽车洗车污水隔油沉淀池用于需要除去汽车洗车污水中的残油和泥沙的室外排水管道上。
设计人根据工程车辆用途,道路路面等级和沾污程度,以及采用冲洗方式选用冲洗用水量进行复核,以确定有效容积;
3.2汽车洗车污水隔油沉淀池分为1型和2型,按所洗车车型及用水量选用,用水量见下表:
汽车冲洗用水量表(L/辆·次)
3.3冲洗时间10min//辆·次;
3.4污水流速不大于0.005m/s;
3.5污水停留时间10min;
3.6污水中的污泥量占污水量2~4%;
3.7清除污泥周期10d~15d;
3.8汽车洗车污水隔油沉淀池选用表:
3.9设计举例:
假设同时高压水枪冲洗6辆车,如何选型?
假定洗车用水量为80 L/辆·次,选1型。
复核:
1型L=1.5m B=1m
6*80 L/辆·次*10min/辆·次=4800L
4.8m3/(1.5m*1m*600s)=0.0053m/s>0.005m/s 则需改选2型
3.9附件汽车洗车污水隔油沉淀池标准图
4、化粪池
图4化粪池示意图
4.1化粪池根据不同建筑物,不同用水量标准,不同清掏周期等情况下,计算化粪池设计总人数,设计人员可直接按表查出。
如不符,由设计人员另行计算确定;
4.2化粪池的设置地点,距生活饮用水水池不得小于10m,距地下取水构筑物不得小于30m,化粪池外壁距建筑物外墙净距不宜小于5m,并不得影响建筑基础;
4.3化粪池均设置通气管;
4.4 化粪池进出水管有三个方向任选;
4.5 化粪池容积确定
4.5.1 化粪池容积计算
化粪池有效容积:
W=W1+W2
式中:W-化粪池有效容积,m3;
W1-化粪池内污水部分容积,m3;
W2-化粪池内污泥部分容积,m3。
W1=N zαqt/24*1000
式中:N z-化粪池设计总人数,人;
q-每人每日污水定额(同每人最高日生活用水定额),L/人·d;
t-污水在化粪池内停留时间,按12h,24h计算;
α实际使用卫生器具的人数与设计人数的百分比,采用下列数据;
a、医院,疗养院,幼儿园(有住宿)α=100%;
b、住宅,集体宿舍,旅馆,宾馆α=70%;
c、办公室,教学楼,工业企业生活间α=40%;
d、食堂,影剧院,体育馆,其他类似公共场所α=10%W2=1.2aN zαT(1-b)K/[(1-c)*1000]
a-合流系统,a=0.7 L/人·d;分流系统,a=0.4 L/人·d‘b-污泥含水率,b=95%;
c-浓缩后污泥含水率,c=90%;
k-腐化期间污泥缩减系数,k=0.8;
T-化粪池清掏周期,按90d,180d,360d计;
1.2-清掏后考虑留20%熟污泥的容积系数;
带入上式简化为:
合流:W2=1.2(0.00028N zαT)
分流:W2=1.2(0.00016N zαT)
……………………………………………………………最新资料推荐…………………………………………………4.5.2化粪池型号设计
确定有效容积后,选定q,α,t,T,按下式计算设计总人数。
合流:N Z=W/[α10-5(4.17qt+33.6T)
分流:N Z=W/[α10-5(4.17qt+19.2T)
4.5.3 经计算如果污泥容积超过有效容积的70%(W<25m3),或80%(W>30m3),按污泥容积相应等于有效容积的70%或80%,用污泥容积公式计算设计总人数。
4.6设计举例
估算N z=1000人,取q=200L/人·d,t=12h,α=70%;W1=N zαqt/(24*1000)=1000*70%*200*12/(24*1000)=70 m3
取a=0.7 L/人·d, b=95%,c=90%,k=0.8,T=90d,合流:W2=1.2(0.00028N zαT)=1.2*0.00028*1000*70%*90=21.168m3
W=W2+W2=91.168m3
查表得有效容积100 m3,选用13号池
设计总人数为:N Z=100/[70%*10-5(4.17*200*12+33.6*90)]=1096
4.7附件化粪池标准图及选用表
9。